Скачать Серия 3.503-50 Выпуск 14. Монтаж пролетных строений. Пролетное строение Lp=63+2х84+63 м. Рабочие чертежиДата актуализации: 01.01.2021
|
| Обозначение: | Серия 3.503-50 |
| Обозначение англ: | Series 3.503-50 |
| Статус: | действует |
| Название рус.: | Выпуск 14. Монтаж пролетных строений. Пролетное строение Lp=63+2х84+63 м. Рабочие чертежи |
| Дата добавления в базу: | 01.09.2013 |
| Дата актуализации: | 01.01.2021 |
| Дата введения: | 01.07.1981 |
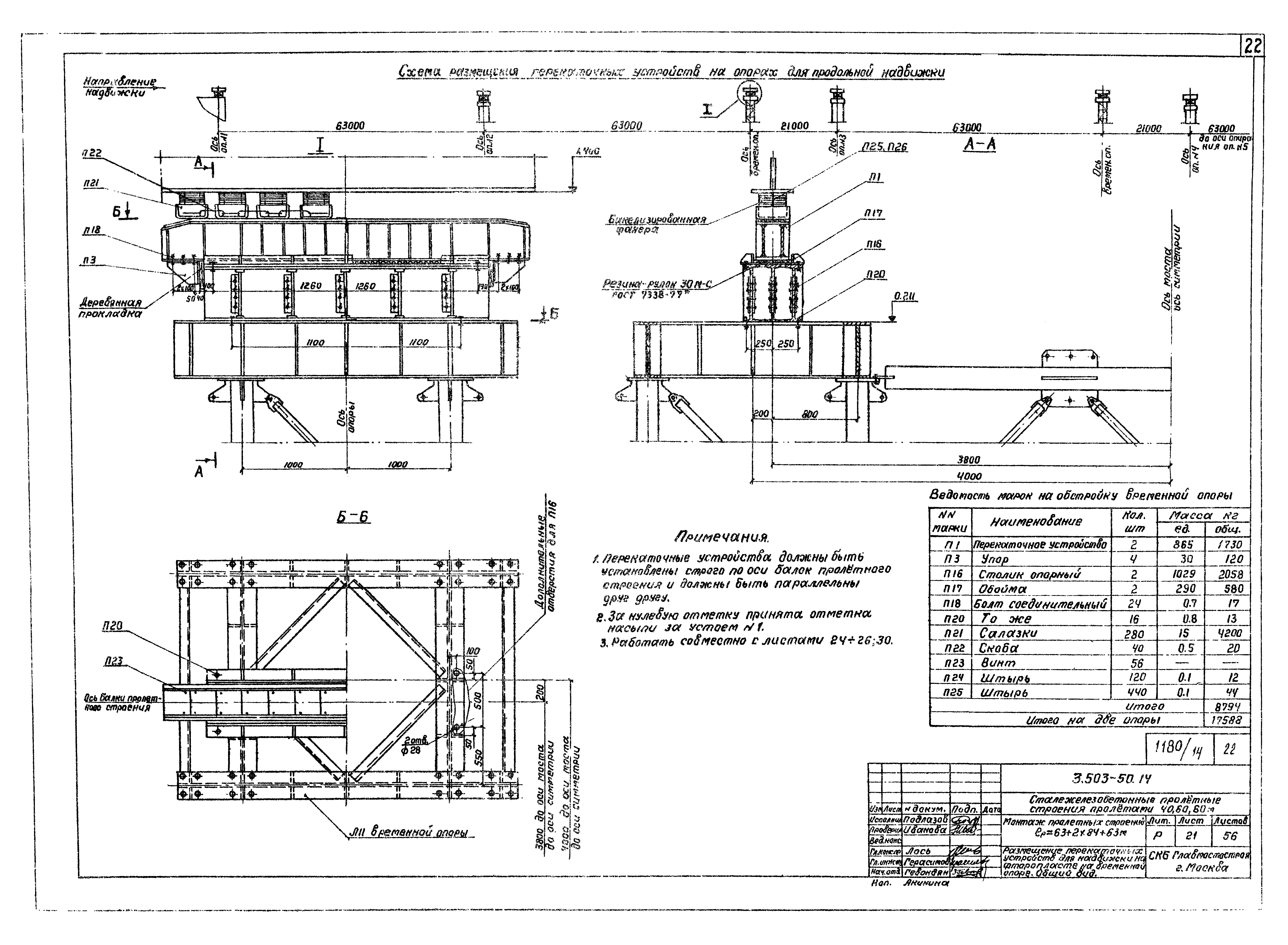
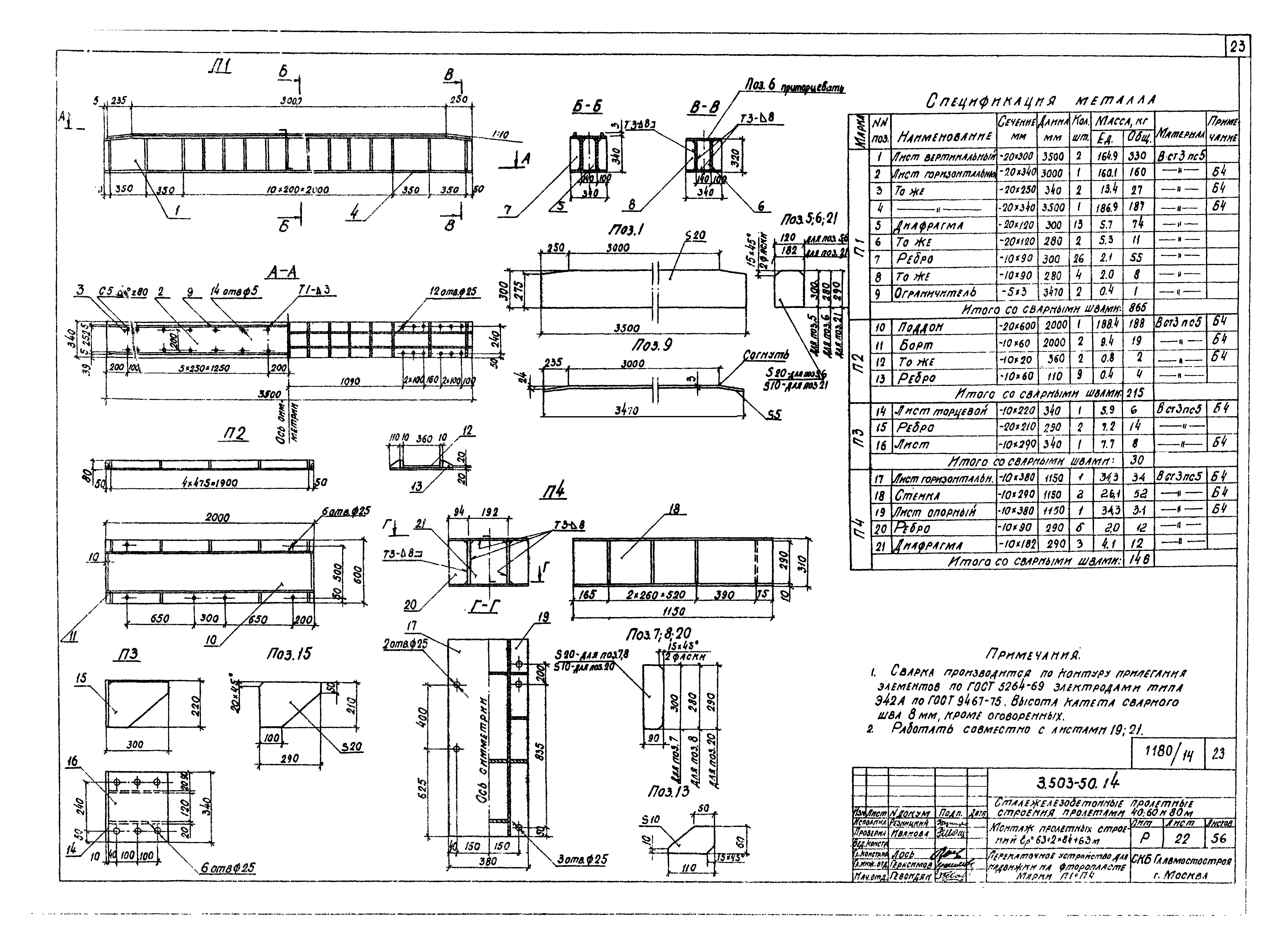
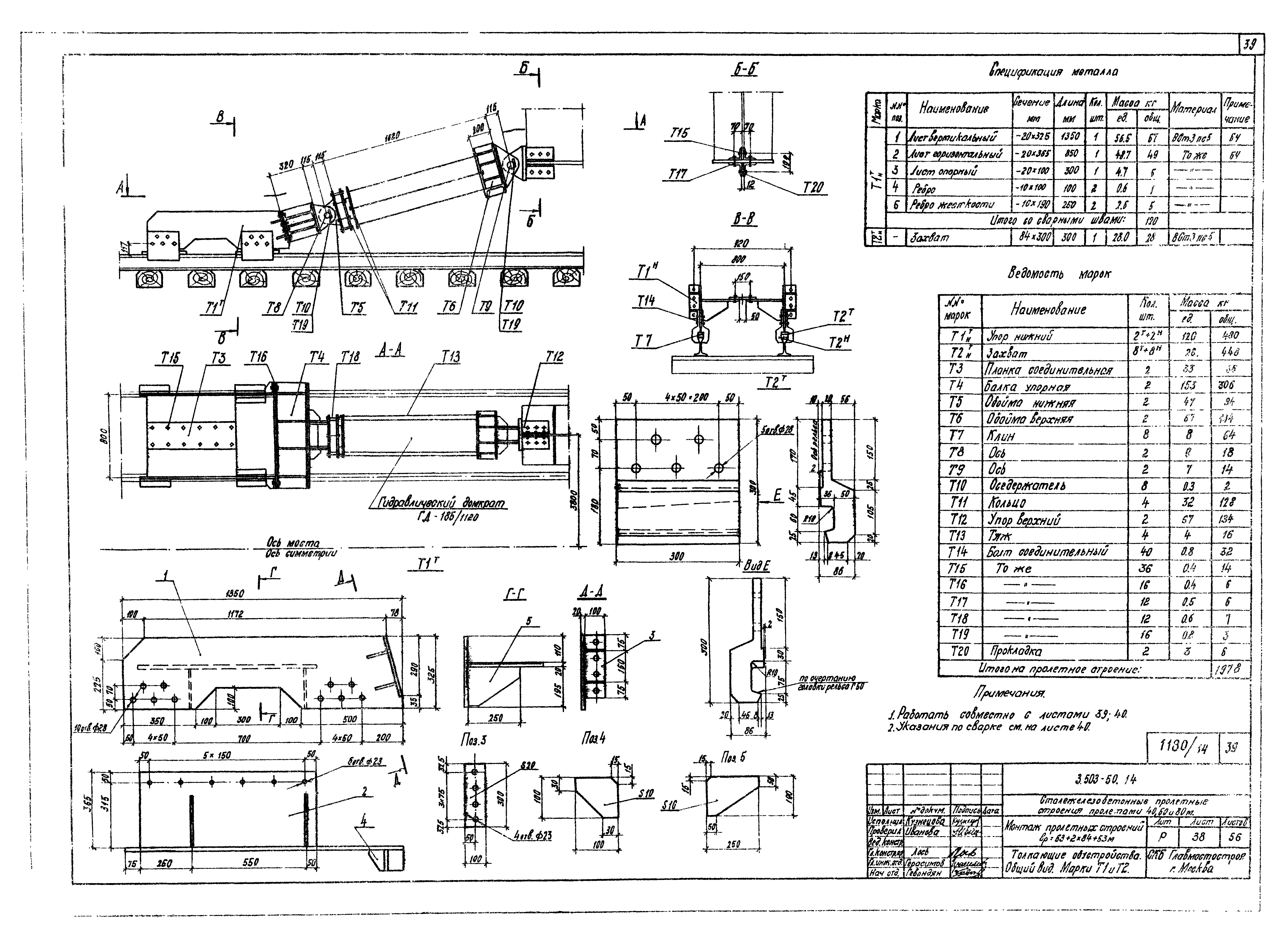
| Область применения: | Проект монтажа сталежелезобетонных пролетных строений разработаны СКБ Главмостостроя как составная часть типового проекта сталежелезобетонных пролетных строений автодорожных мостов с ездой поверху пролетами в свету 40, 60, 80 м под габариты Г-10 и Г-11,5 в обычном и северном исполнении, разработанного Ленгипротрансмостом (серия 3.503-50 выпуски 1-8) |
| Разработан: | СКБ Главмостостроя |
| Утверждён: | 31.12.1980 Минтрансстрой СССР (USSR Mintransstroy Л-1643) |
























































