Скачать Серия 3.503.1-81 Выпуск 7-1. Балки пролетного строения длиной 12, 15, 18, 21, 24 и 33 м цельноперевозимые с натяжением на упоры. Рабочие чертежиДата актуализации: 01.01.2021
|
| Обозначение: | Серия 3.503.1-81 |
| Обозначение англ: | Series 3.503.1-81 |
| Статус: | не определен законодательством |
| Название рус.: | Выпуск 7-1. Балки пролетного строения длиной 12, 15, 18, 21, 24 и 33 м цельноперевозимые с натяжением на упоры. Рабочие чертежи |
| Дата добавления в базу: | 01.09.2013 |
| Дата актуализации: | 01.01.2021 |
| Дата введения: | 01.08.1994 |
| Дата окончания срока действия: | 30.06.2003 |
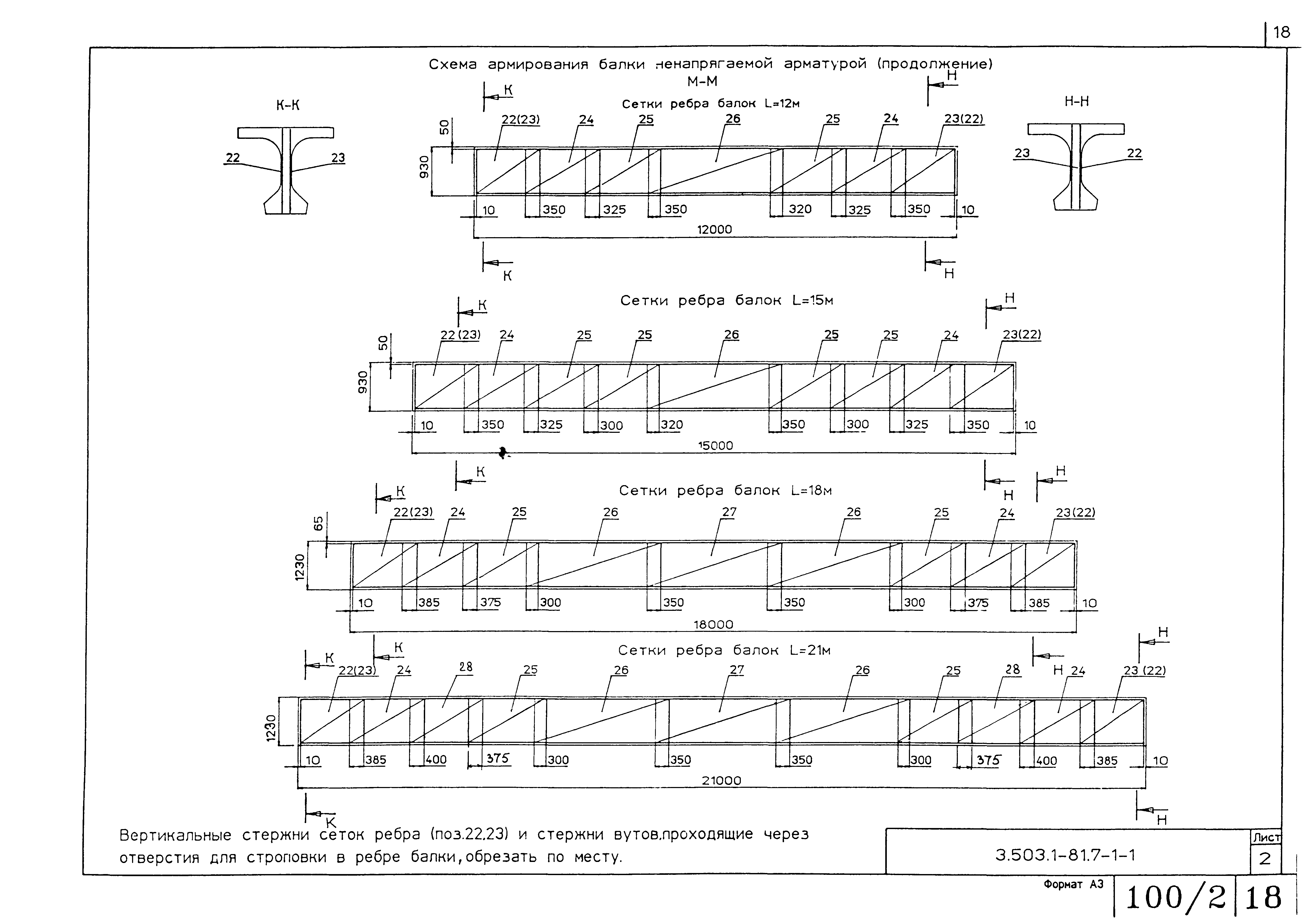
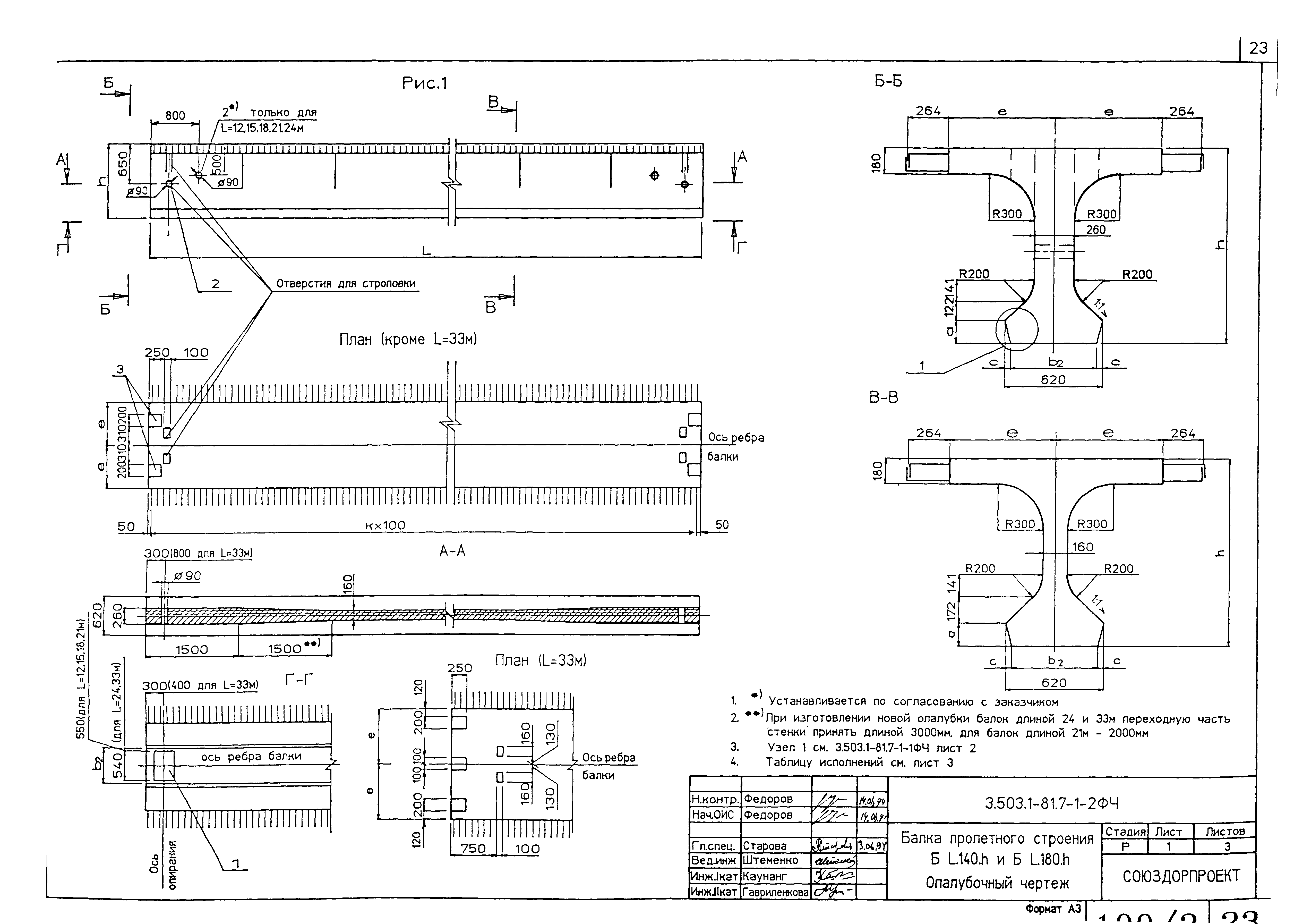
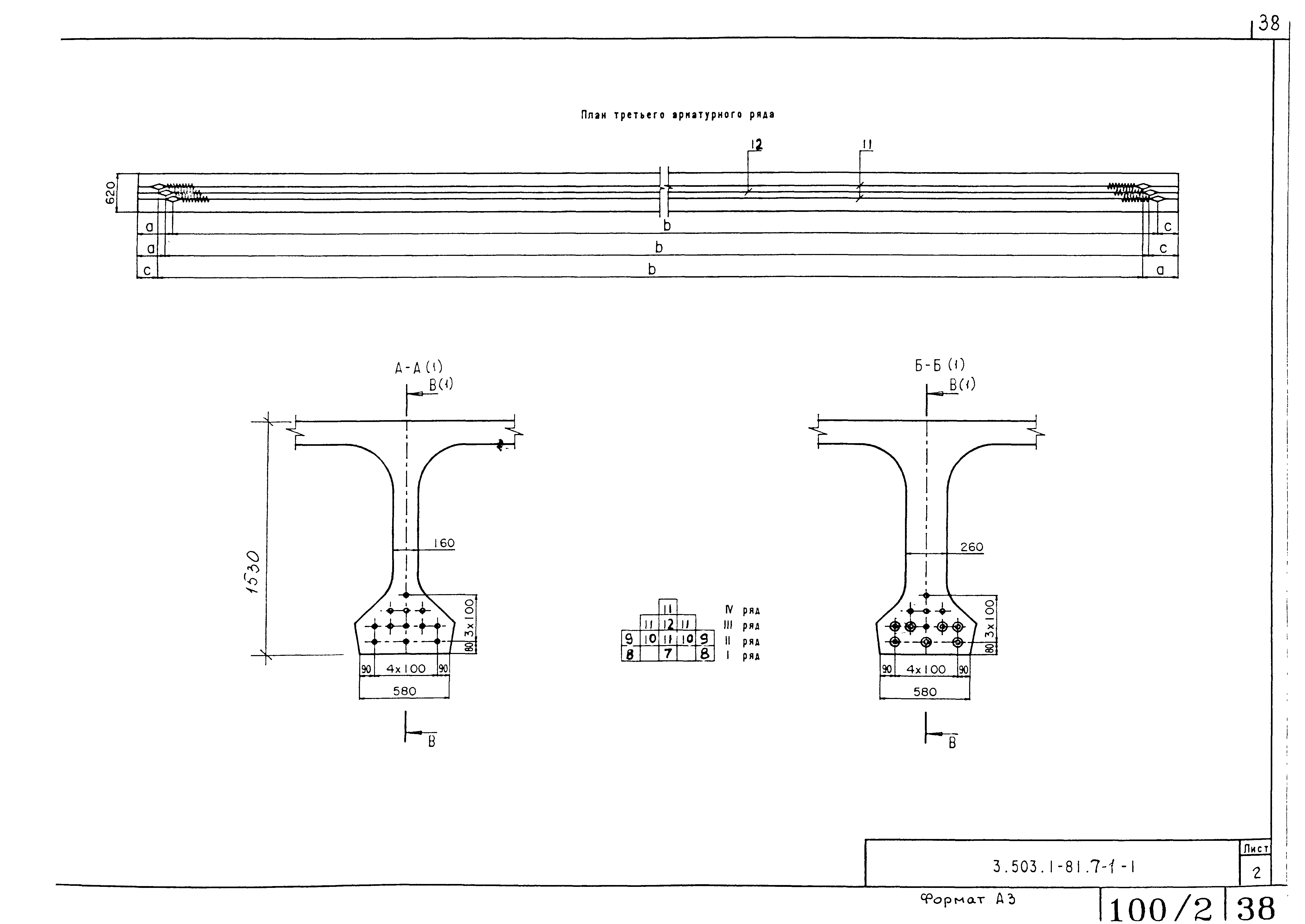
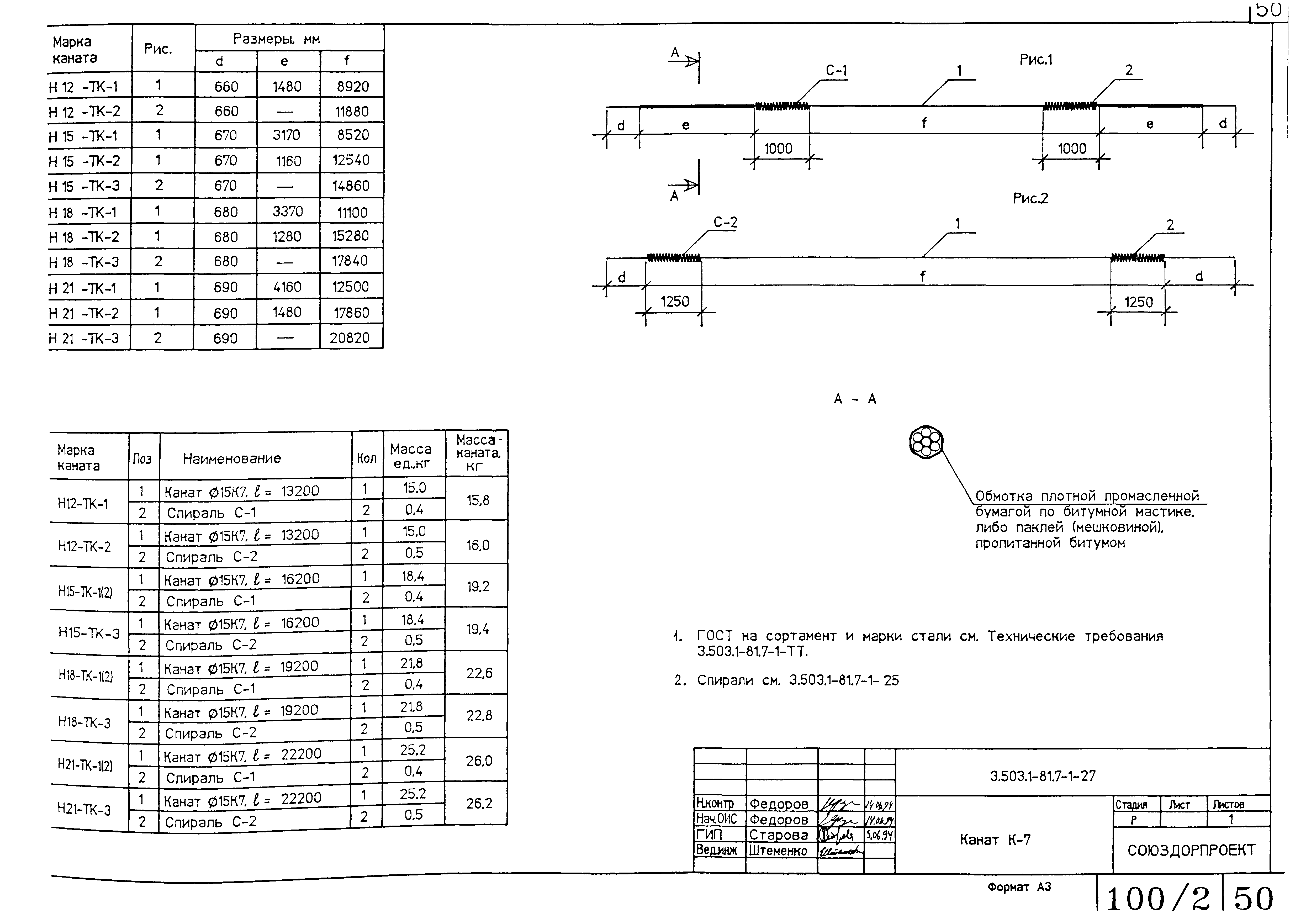
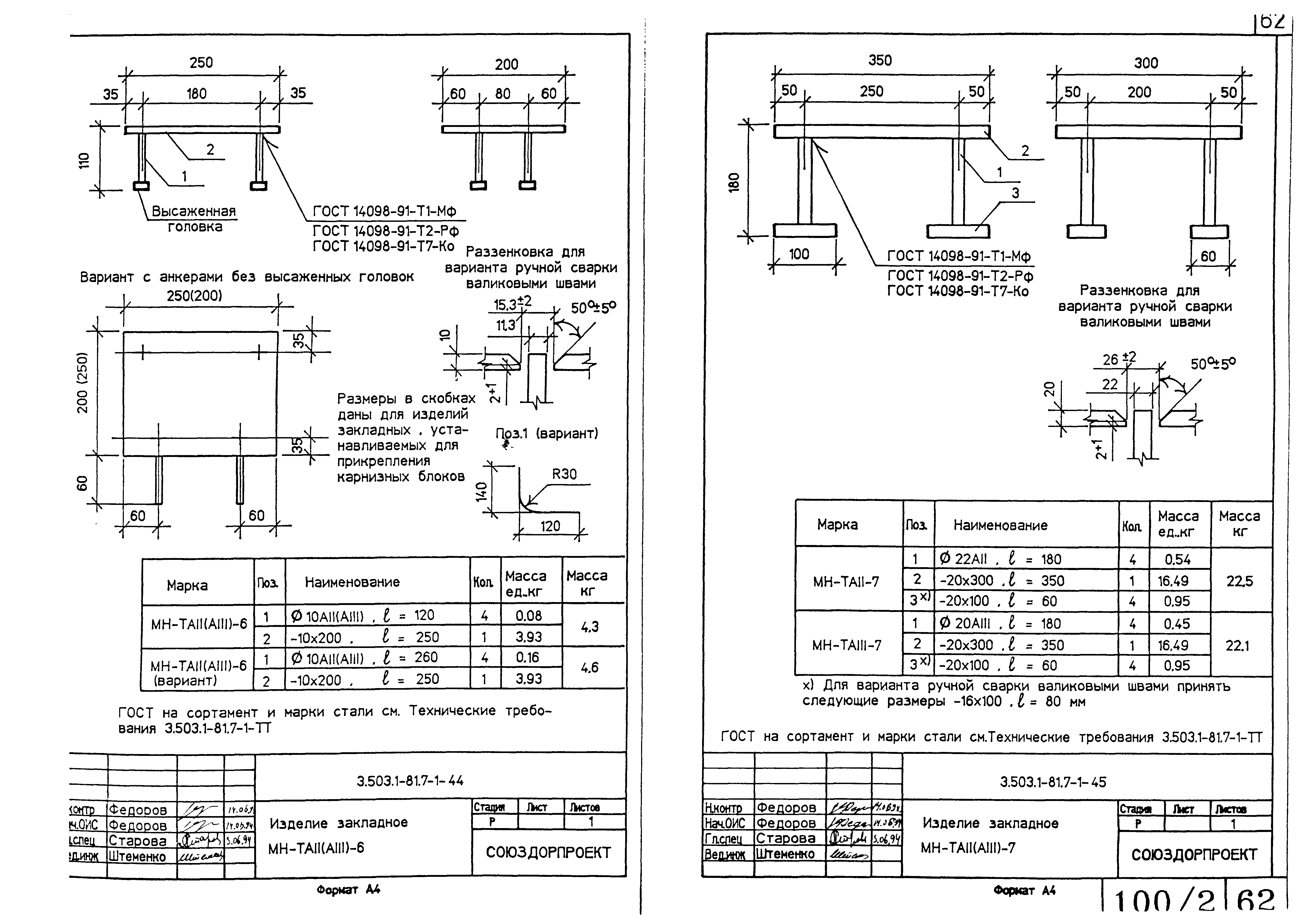
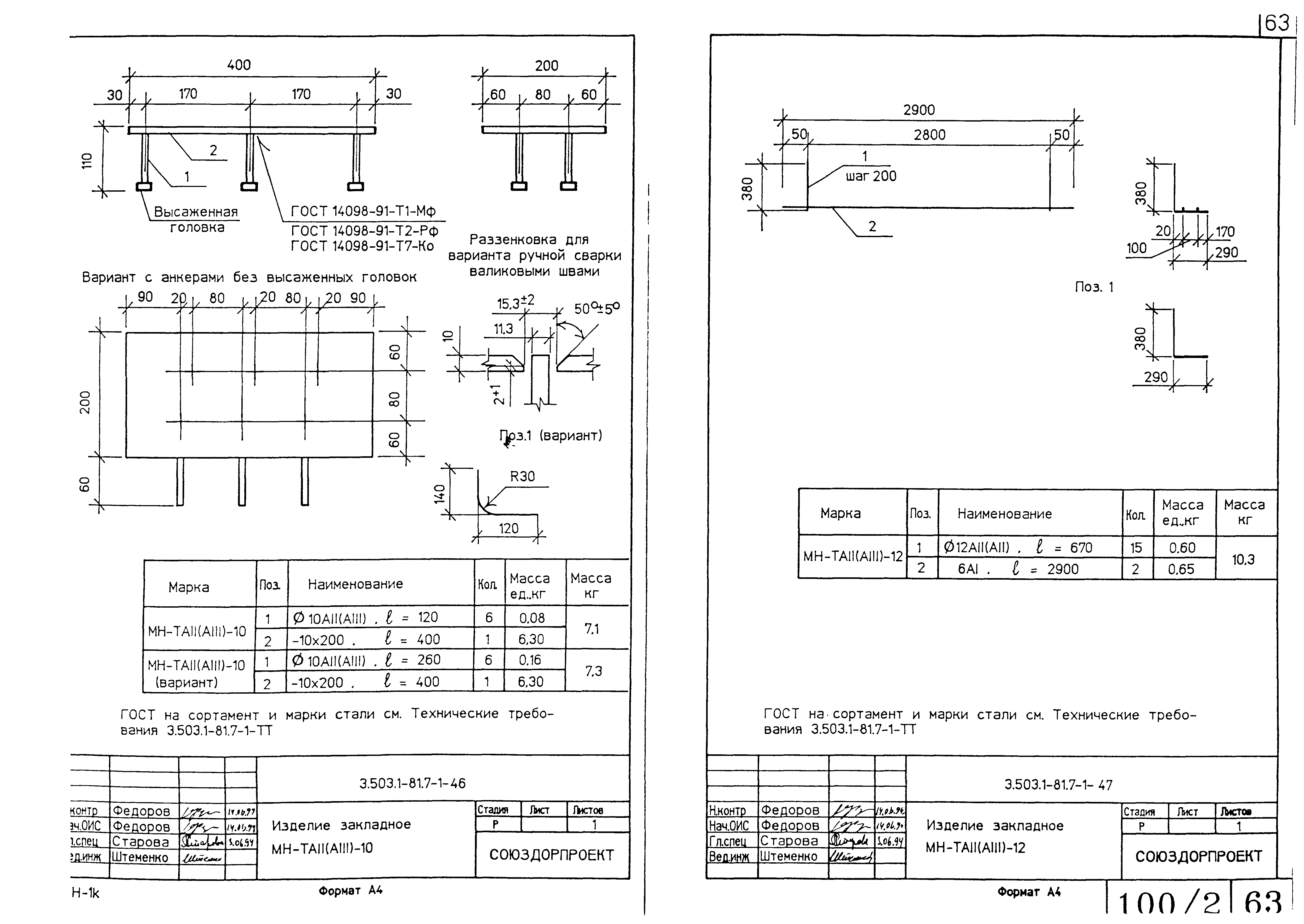
| Оглавление: | 3.503.1-81.7-1-ТТ Технические требования 3.503.1-81.7-1-1ФЧ Балка пролетного строения БL.174.h и БL.194.h. Опалубочный чертеж 3.503.1-81.7-1-1 Балка пролетного строения БL.174.h и БL.194.h. Схема армирования балок ненапрягаемой арматурой 3.503.1-81.7-1-2ФЧ Балка пролетного строения БL.140.h и БL.180.h. Опалубочный чертеж 3.503.1-81.7-1-2 Балка пролетного строения БL.140.h и БL.180.h. Схема армирования балок ненапрягаемой арматурой 3.503.1-81.7-1-3 Балка пролетного строения Б 1200.b.93-TB. Схема армирования балок напрягаемой арматурой 3.503.1-81.7-1-4 Балка пролетного строения Б 1200.b.93-TК7. Схема армирования балок напрягаемой арматурой 3.503.1-81.7-1-5 Балка пролетного строения Б 1500.b.93-TВ. Схема армирования балок напрягаемой арматурой 3.503.1-81.7-1-6 Балка пролетного строения Б 1500.b.93-TК7. Схема армирования балок напрягаемой арматурой 3.503.1-81.7-1-7 Балка пролетного строения Б 1800.b.123-TВ. Схема армирования балок напрягаемой арматурой 3.503.1-81.7-1-8 Балка пролетного строения Б 1800.b.123-TК7. Схема армирования балок напрягаемой арматурой 3.503.1-81.7-1-9 Балка пролетного строения Б 2100.b.123-TВ. Схема армирования балок напрягаемой арматурой 3.503.1-81.7-1-10 Балка пролетного строения Б 2100.b.123-TК7. Схема армирования балок напрягаемой арматурой 3.503.1-81.7-1-11 Балка пролетного строения Б 2400.b.123-TВ. Схема армирования балок напрягаемой арматурой 3.503.1-81.7-1-12 Балка пролетного строения Б 3300.b.153-TВ. Схема армирования балок напрягаемой арматурой 3.503.1-81.7-1-13 Балка пролетного строения Б 3300.b.173-TВ. Схема армирования балок напрягаемой арматурой 3.503.1-81.7-1-14 Изделие закладное. Балки длиной 12, 15 и 18 м. Спецификация 3.503.1-81.7-1-15 Изделие закладное. Балки длиной 21, 24 и 33 м. Спецификация 3.503.1-81.7-1-16 Арматура напрягаемая. Пучки из стали класса В. Спецификация 3.503.1-81.7-1-17 Арматура напрягаемая. Канаты К7. Спецификация 3.503.1-81.7-1-18 Плита балки Б L.140.h. Спецификация 3.503.1-81.7-1-19 Плита балки Б L.174.h. Спецификация 3.503.1-81.7-1-20 Плита балки Б L.180.h. Спецификация 3.503.1-81.7-1-21 Плита балки Б L.194.h. Спецификация 3.503.1-81.7-1-22 Ребро балок длиной 12 и 15 м. Спецификация 3.503.1-81.7-1-23 Ребро балок длиной 18, 21 и 24 м. Спецификация 3.503.1-81.7-1-22 Ребро балок длиной 33 м. Спецификация 3.503.1-81.7-1-25 Спираль 3.503.1-81.7-1-26 Пучок из стали класса В 3.503.1-81.7-1-27 Канат К-7 3.503.1-81.7-1-28 Сетка плиты СП140-TAII(AIII)-1, СП180-TAII(AIII)-1 3.503.1-81.7-1-29 Сетка плиты СП140-TAII(AIII)-3, СП180-TAII(AIII)-3 3.503.1-81.7-1-30 Сетка плиты СП140-TAII(AIII)-4, СП180-TAII(AIII)-4 3.503.1-81.7-1-31 Сетка плиты СП174-TAII(AIII)-1, СП174-TAII(AIII)-2, СП194-TAII(AIII)-1, СП194-TAII(AIII)-2 3.503.1-81.7-1-32 Сетка плиты СП174-TAII(AIII)-4, СП174-TAII(AIII)-5, СП194-TAII(AIII)-4, СП194-TAII(AIII)-5 3.503.1-81.7-1-33 Сетка плиты СП174-TAII(AIII)-6, СП194-TAII(AIII)-6 3.503.1-81.7-1-34 Сетка ребра СР93-TAII(AIII)-6, CP93-TAI-7, CP123-TAII(AIII)-7, CP123-TAII(AIII)-10, CP173-TAII(AIII)-6 3.503.1-81.7-1-35 Сетка ребра СР123-TAI8, CP153-TAI-8, CP173-TAII(AIII)-7, CP173-TAI8 3.503.1-81.7-1-36 Сетка ребра СР123-TAII(AIII)-9, CP153-TAII(AIII)-6, CP153-TAII(AIII)-7 3.503.1-81.7-1-37 Каркас K-TAI-1, K-TAI-2, K-TAI-3 3.503.1-81.7-1-38 Каркас К10-TAI-1 3.503.1-81.7-1-39 Каркас К10-TAI-2 3.503.1-81.7-1-40 Каркас К15-TAI-1 3.503.1-81.7-1-41 Каркас К15-TAI-2, К15-TAI-3 3.503.1-81.7-1-42 Каркас К20-TAI-1 3.503.1-81.7-1-43 Каркас К20-TAI-2, К20-TAI-3 К20-TAI- 3.503.1-81.7-1-44 Изделие закладное MH-TAII(AIII)-6 3.503.1-81.7-1-45 Изделие закладное MH-TAII(AIII)-7 3.503.1-81.7-1-46 Изделие закладное MH-TAII(AIII)-10 3.503.1-81.7-1-47 Изделие закладное MH-TAII(AIII)-12 3.503.1-81.7-1-48 РС Ведомость расхода стали на балку L=12 м. Армирование пучками из стали класса В и ненапрягаемой арматурой класса А-II 3.503.1-81.7-1-49 РС Ведомость расхода стали на балку L=12 м. Армирование пучками из стали класса В и ненапрягаемой арматурой класса А-III 3.503.1-81.7-1-50 РС Ведомость расхода стали на балку L=12 м. Армирование канатами К7 и ненапрягаемой арматурой класса А-II 3.503.1-81.7-1-51 РС Ведомость расхода стали на балку L=12 м. Армирование пучками из стали класса В и ненапрягаемой арматурой класса А-II 3.503.1-81.7-1-52 РС Ведомость расхода стали на балку L=15 м. Армирование пучками из стали класса В и ненапрягаемой арматурой класса А-II 3.503.1-81.7-1-53 РС Ведомость расхода стали на балку L=15 м. Армирование пучками из стали класса В и ненапрягаемой арматурой класса А-III 3.503.1-81.7-1-54 РС Ведомость расхода стали на балку L=15 м. Армирование канатами К7 и ненапрягаемой арматурой класса А-II 3.503.1-81.7-1-55 РС Ведомость расхода стали на балку L=15 м. Армирование канатами К7 и ненапрягаемой арматурой класса А-III 3.503.1-81.7-1-56 РС Ведомость расхода стали на балку L=18 м. Армирование пучками из стали класса В и ненапрягаемой арматурой класса А-II 3.503.1-81.7-1-57 РС Ведомость расхода стали на балку L=18 м. Армирование пучками из стали класса В и ненапрягаемой арматурой класса А-III 3.503.1-81.7-1-58 РС Ведомость расхода стали на балку L=18 м. Армирование канатами К7 и ненапрягаемой арматурой класса А-II 3.503.1-81.7-1-59 РС Ведомость расхода стали на балку L=18 м. Армирование канатами К7 и ненапрягаемой арматурой класса А-III 3.503.1-81.7-1-60 РС Ведомость расхода стали на балку L=21 м. Армирование пучками стали класса В и ненапрягаемой арматурой класса А-II 3.503.1-81.7-1-61 РС Ведомость расхода стали на балку L=21 м. Армирование пучками стали класса В и ненапрягаемой арматурой класса А-III 3.503.1-81.7-1-62 РС Ведомость расхода стали на балку L=21 м. Армирование канатами К7 и ненапрягаемой арматурой класса А-II 3.503.1-81.7-1-63 РС Ведомость расхода стали на балку L=21 м. Армирование канатами К7 и ненапрягаемой арматурой класса А-III 3.503.1-81.7-1-64 РС Ведомость расхода стали на балку L=24 м. Армирование пучками из стали класса В и ненапрягаемой арматурой класса А-II 3.503.1-81.7-1-65 РС Ведомость расхода стали на балку L=24 м. Армирование пучками из стали класса В и ненапрягаемой арматурой класса А-III 3.503.1-81.7-1-66 РС Ведомость расхода стали на балку L=33 м, h=1,53 м. Армирование пучками из стали класса В и ненапрягаемой арматурой класса А-II 3.503.1-81.7-1-67 РС Ведомость расхода стали на балку L=33 м, h=1,53 м. Армирование пучками из стали класса В и ненапрягаемой арматурой класса А-III 3.503.1-81.7-1-68 РС Ведомость расхода стали на балку L=33 м, h=1,73 м. Армирование пучками из стали класса В и ненапрягаемой арматурой класса А-II 3.503.1-81.7-1-69 РС Ведомость расхода стали на балку L=33 м, h=1,73 м. Армирование пучками из стали класса В и ненапрягаемой арматурой класса А-III |
| Разработан: | Союздорпроект Минтрансстроя |
| Утверждён: | 29.03.1994 Корпорация Трансстрой (Transstroy Corporation СВ-86) |




















































































