Скачать Серия 3.503-12 Выпуск 11с. Конструктивные решения по закреплению пролетных строений длиной от 12 до 42 м для применения в районах сейсмичностью 7, 8 и 9 балловДата актуализации: 01.01.2021
|
| Обозначение: | Серия 3.503-12 |
| Обозначение англ: | Series 3.503-12 |
| Статус: | действует |
| Название рус.: | Выпуск 11с. Конструктивные решения по закреплению пролетных строений длиной от 12 до 42 м для применения в районах сейсмичностью 7, 8 и 9 баллов |
| Дата добавления в базу: | 01.09.2013 |
| Дата актуализации: | 01.01.2021 |
| Дата введения: | 10.12.1971 |
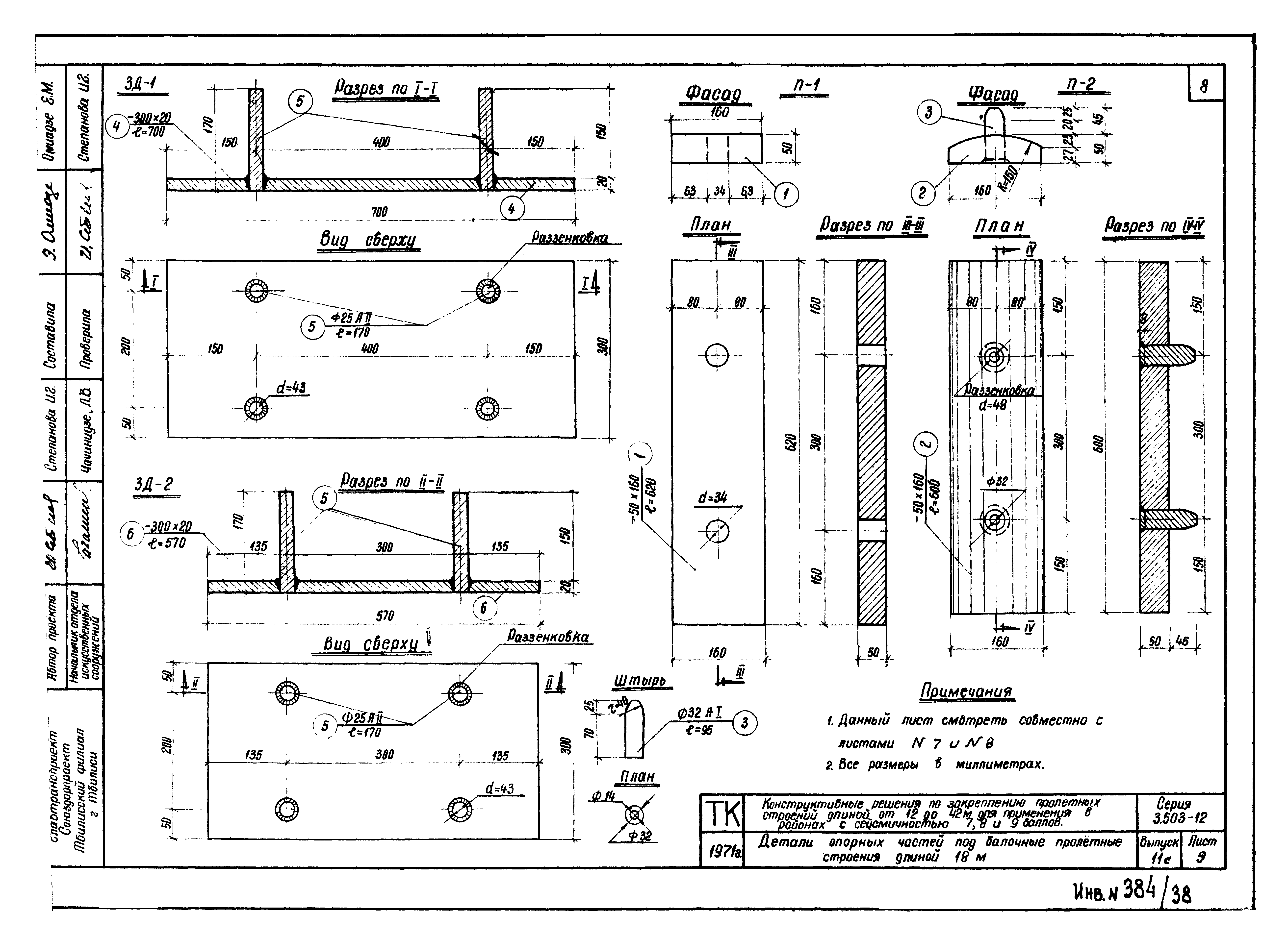
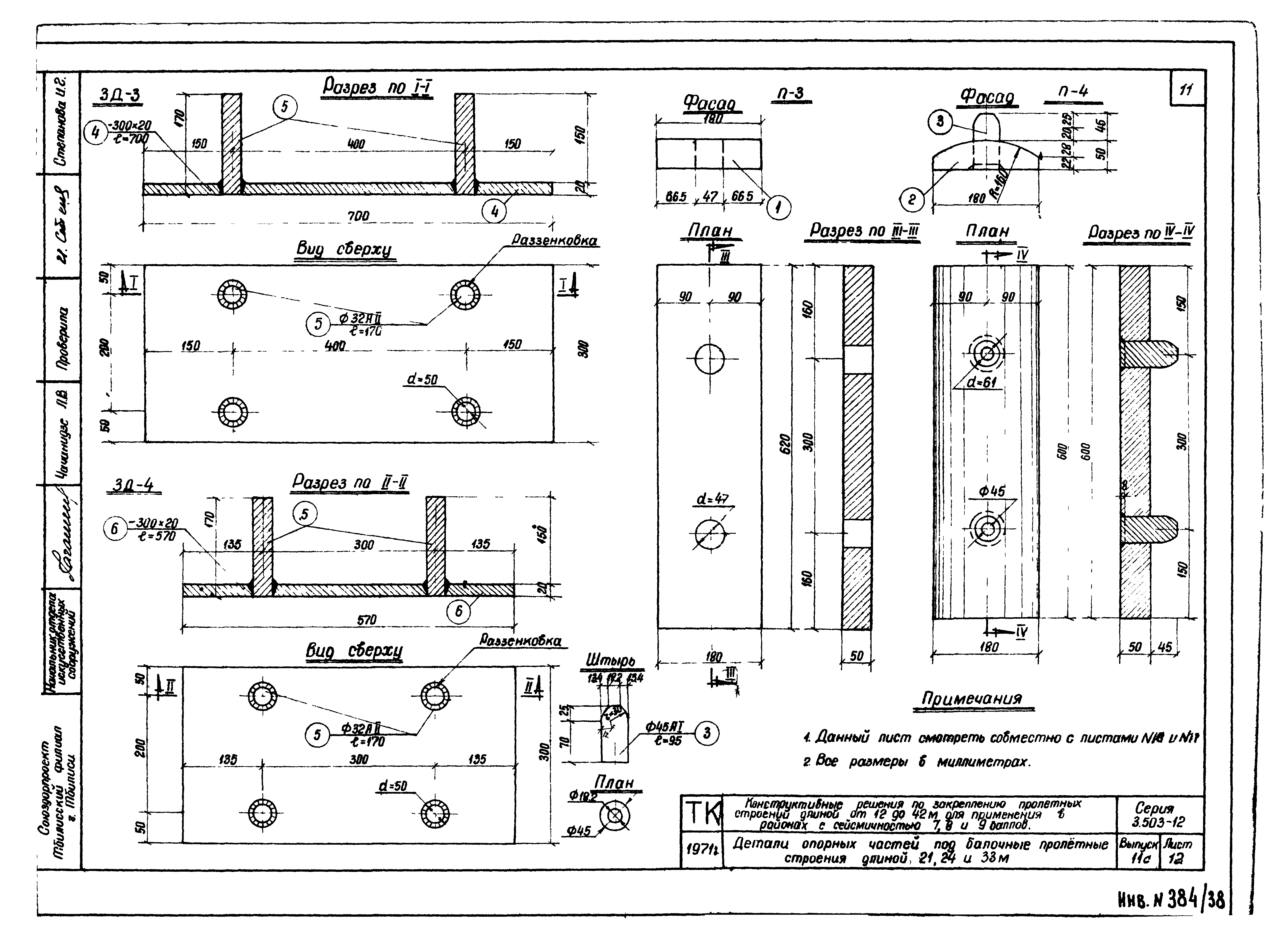
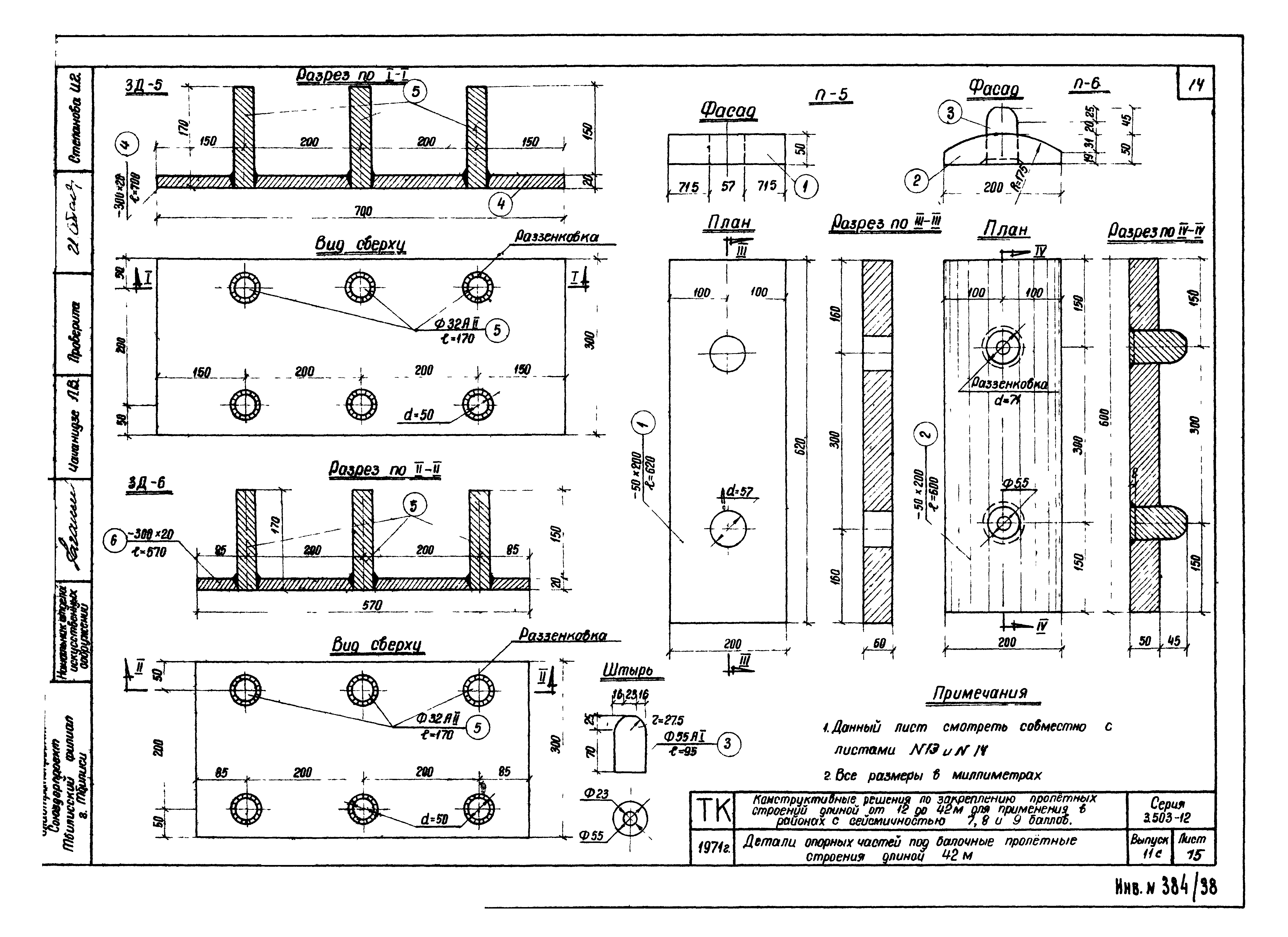
| Оглавление: | Пояснительная записка Расчетный лист Общий вид опорных частей под балочные пролетные строения длиной 18 м Детали опорных частей под балочные пролетные строения длиной 18 м Общий вид опорных частей под балочные пролетные строения длиной 21; 24 и 33 м Детали опорных частей под балочные пролетные строения длиной 21; 24 и 33 м Общий вид опорных частей под балочные пролетные строения длиной 42 м Детали опорных частей под балочные пролетные строения длиной 42 м Общий вид опорных частей под плитные пролетные строения длиной 6 м Детали опорных частей под плитные пролетные строения длиной 6 м Общий вид опорных частей под плитные пролетные строения длиной 9; 11; 36 и 12 м Детали опорных частей под плитные пролетные строения длиной 9; 11; 36 и 12 м Общий вид опорных частей под плитные пролетные строения длиной 15 и 18 м Детали опорных частей под плитные пролетные строения длиной 15 и 18 м |
| Разработан: | Тбилисский филиал Союздорпроекта |
| Утверждён: | 10.12.1971 Минтрансстрой (Mintransstroy Л-1387) |




















