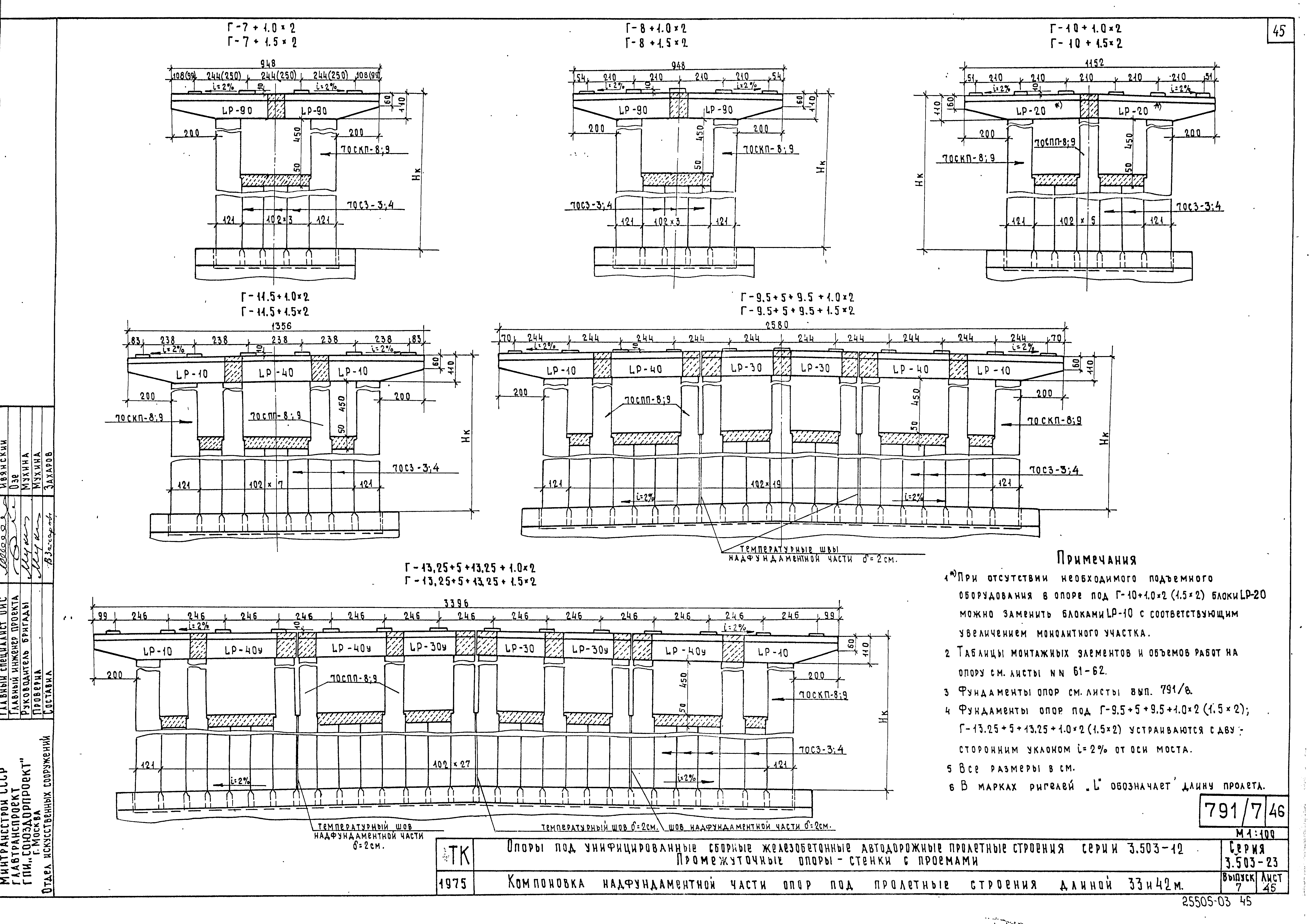
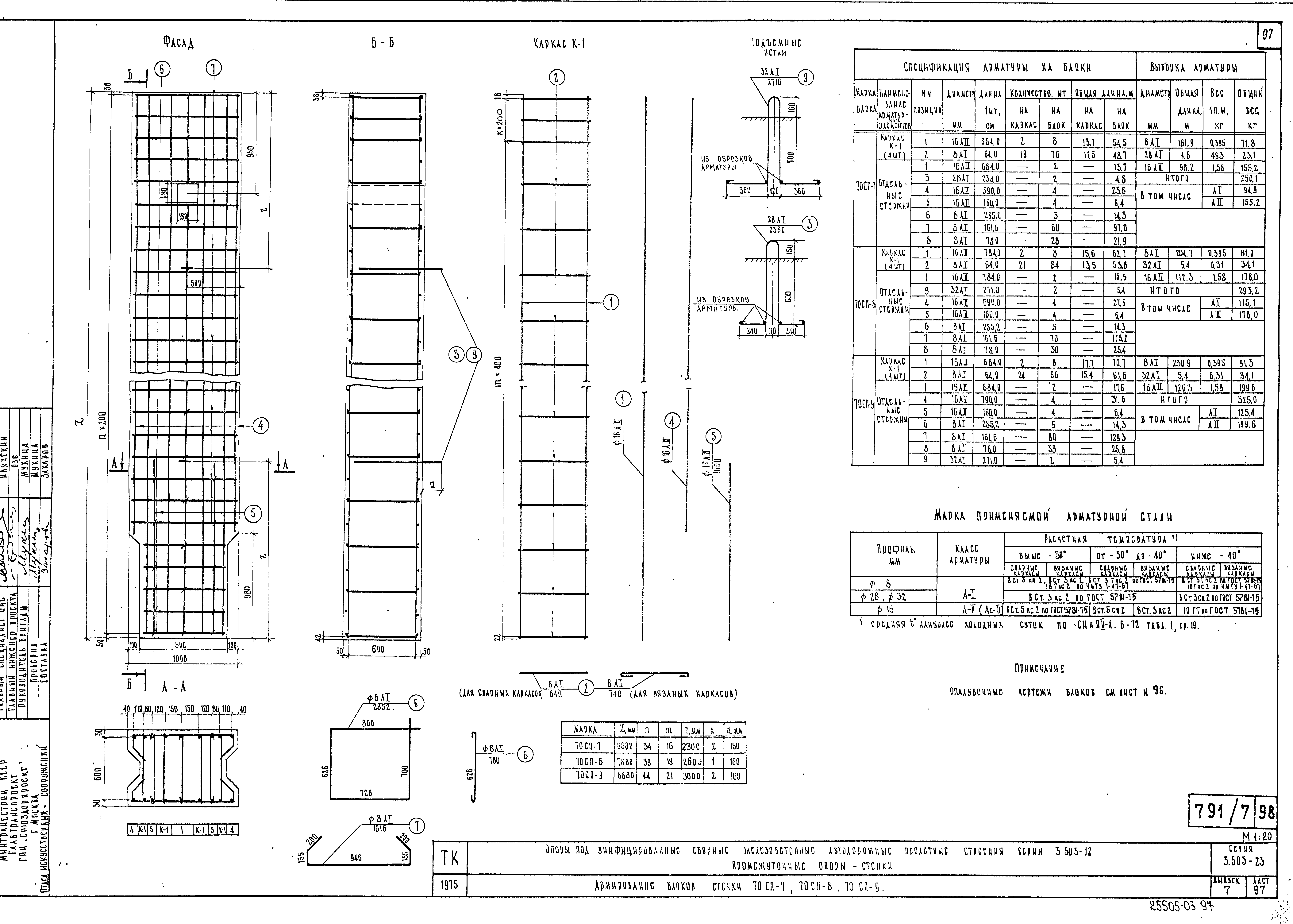
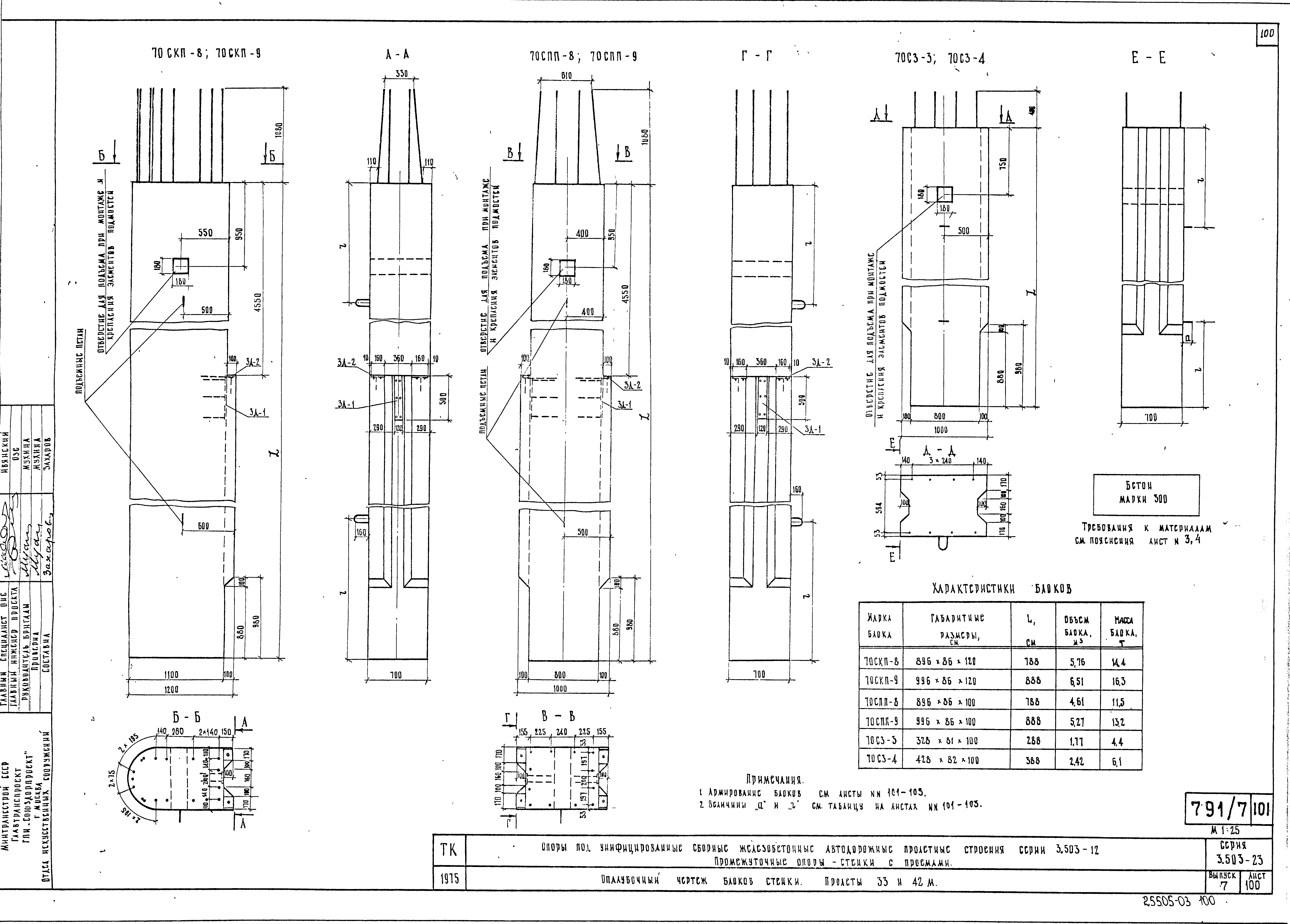
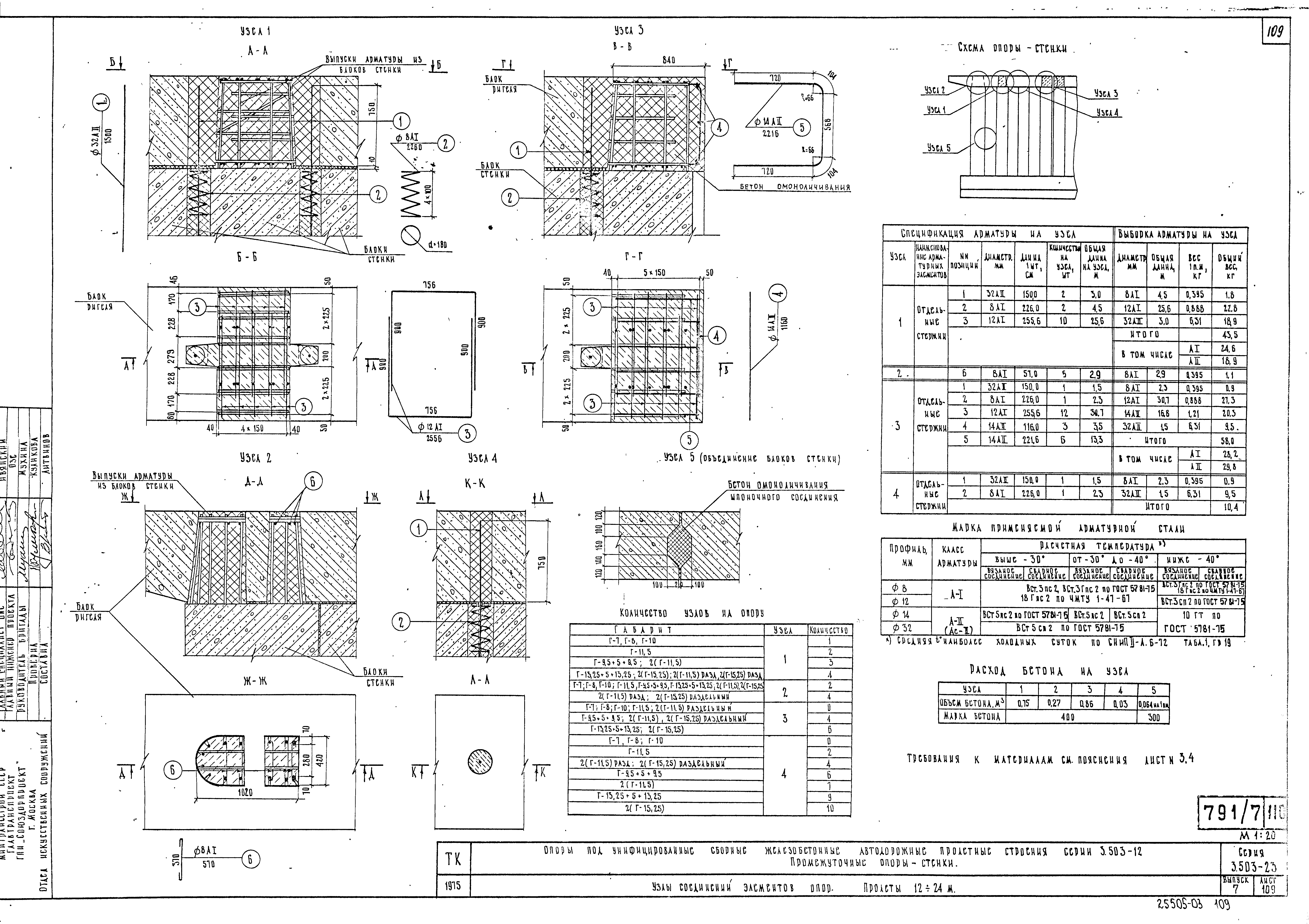
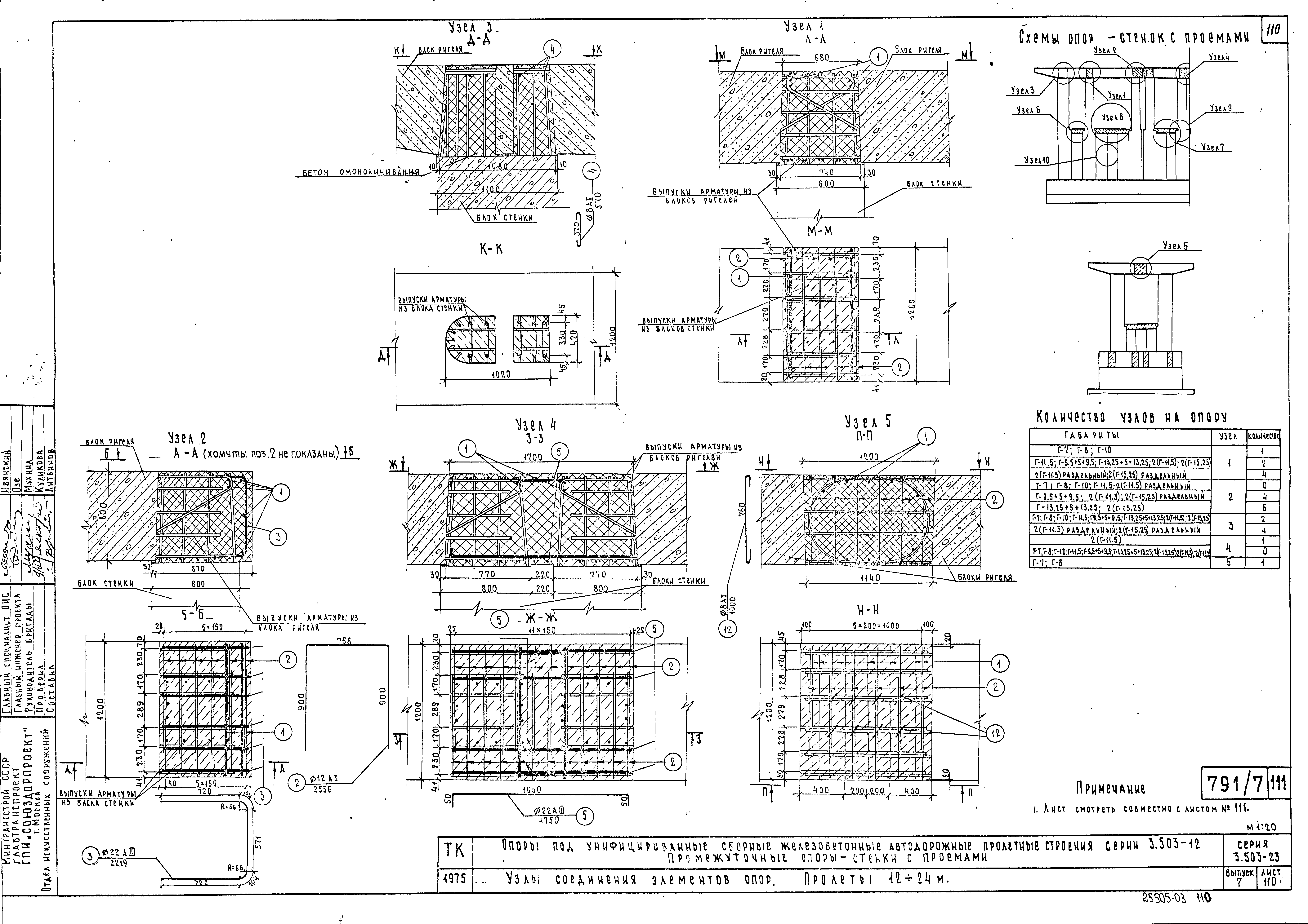
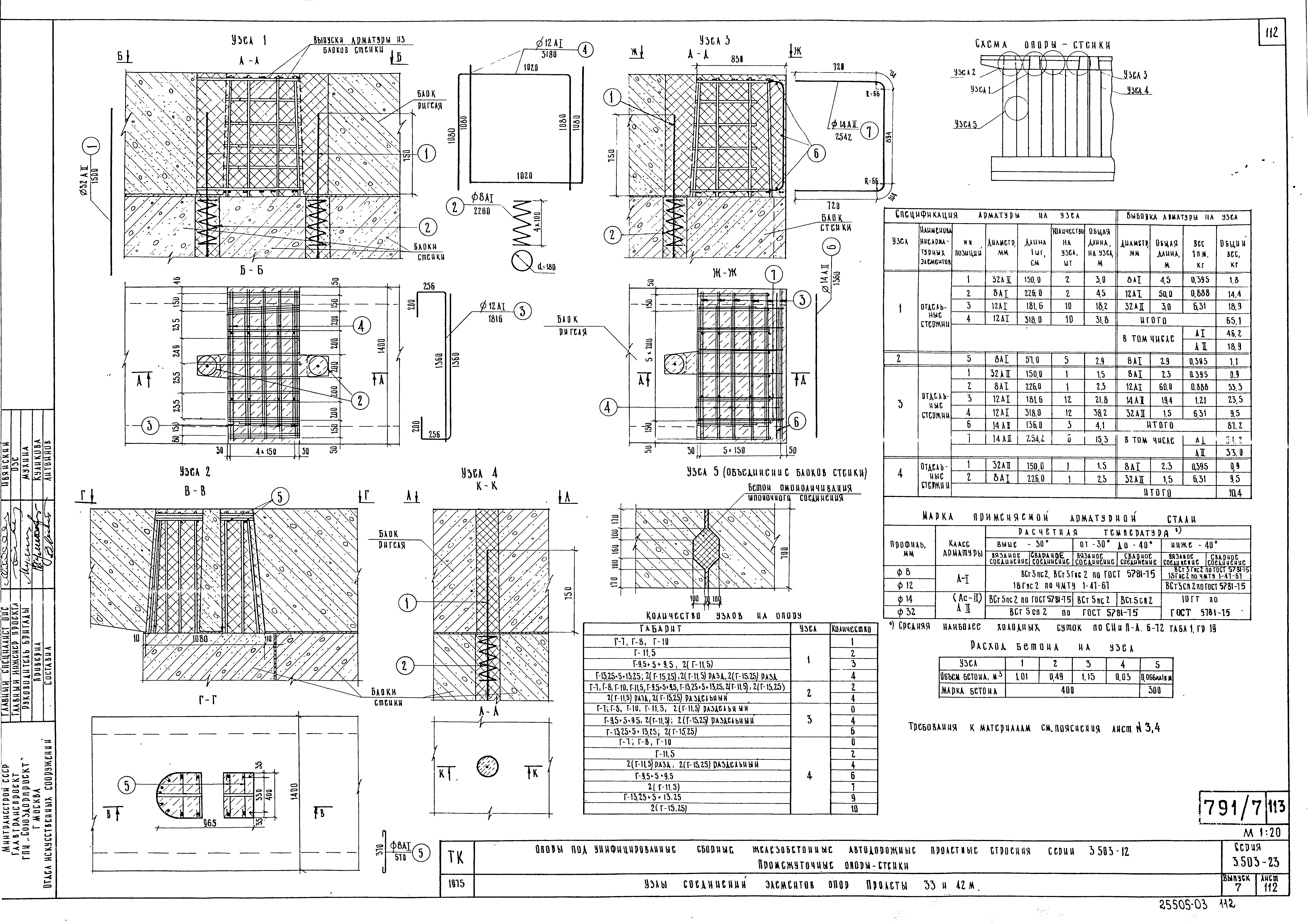
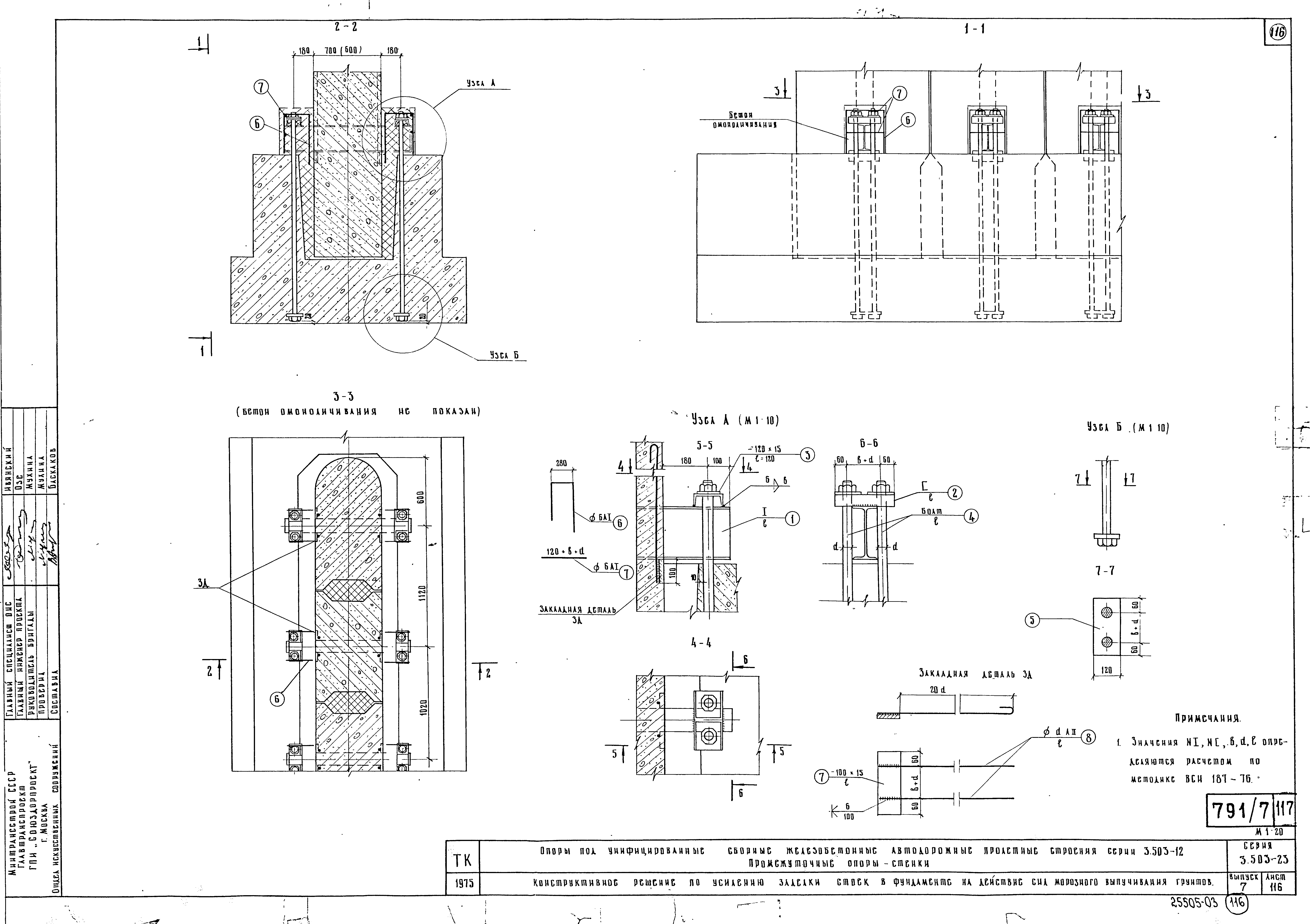
Скачать Серия 3.503-23 Выпуск 7. Промежуточные опоры-стенки под пролетные строения длиной 12 - 42 мДата актуализации: 01.01.2021 Серия 3.503-23
Выпуск 7. Промежуточные опоры-стенки под пролетные строения длиной 12 - 42 м| Обозначение: | Серия 3.503-23 | | Обозначение англ: | Series 3.503-23 | | Статус: | действует | | Название рус.: | Выпуск 7. Промежуточные опоры-стенки под пролетные строения длиной 12 - 42 м | | Дата добавления в базу: | 01.09.2013 | | Дата актуализации: | 01.01.2021 | | Дата введения: | 30.06.1977 | | Разработан: | ГПИ Союздорпроект
| | Утверждён: | 12.05.1977 Минтрансстрой СССР (USSR Mintransstroy Б-716)
|
                                                                                                                   
|