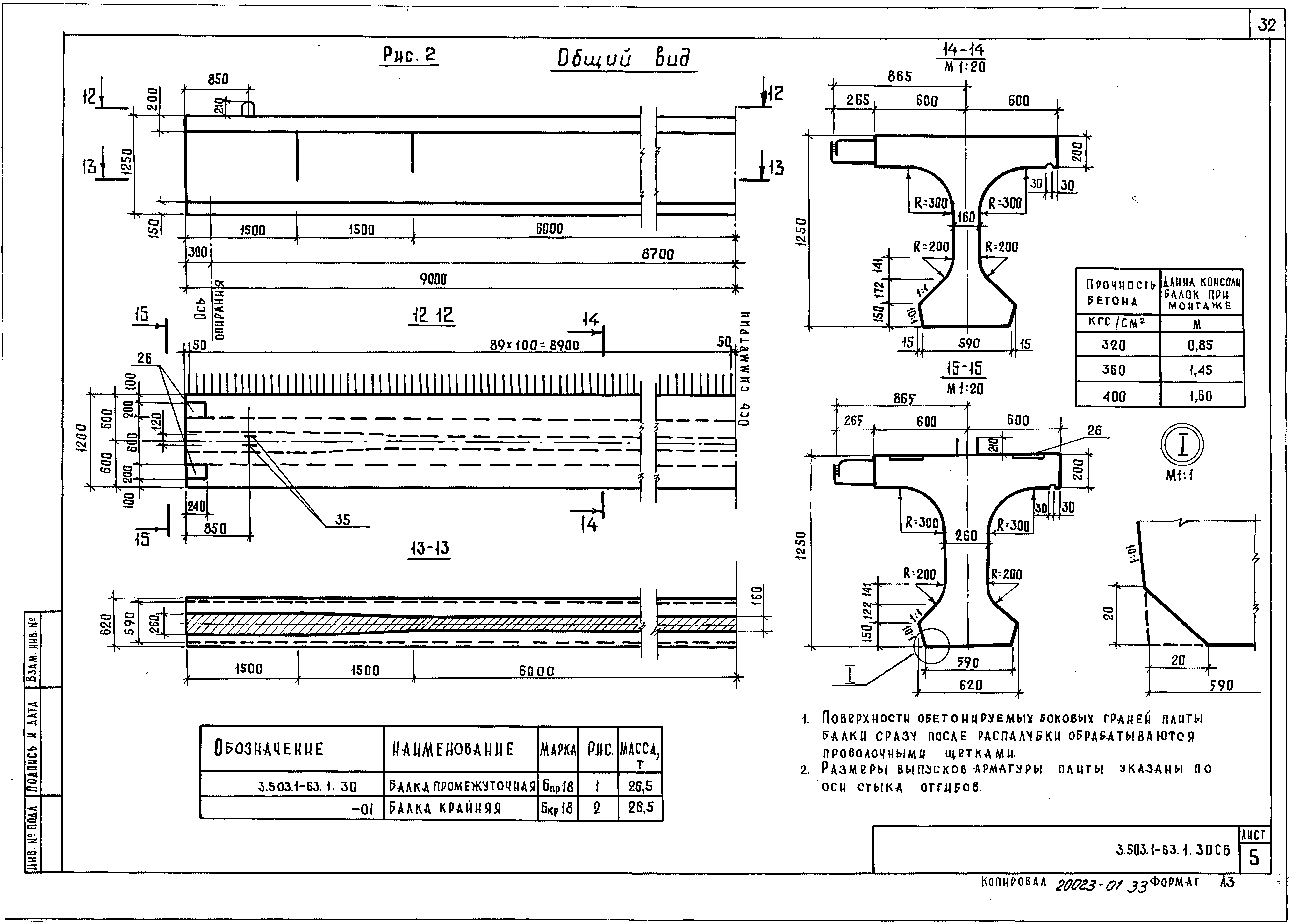
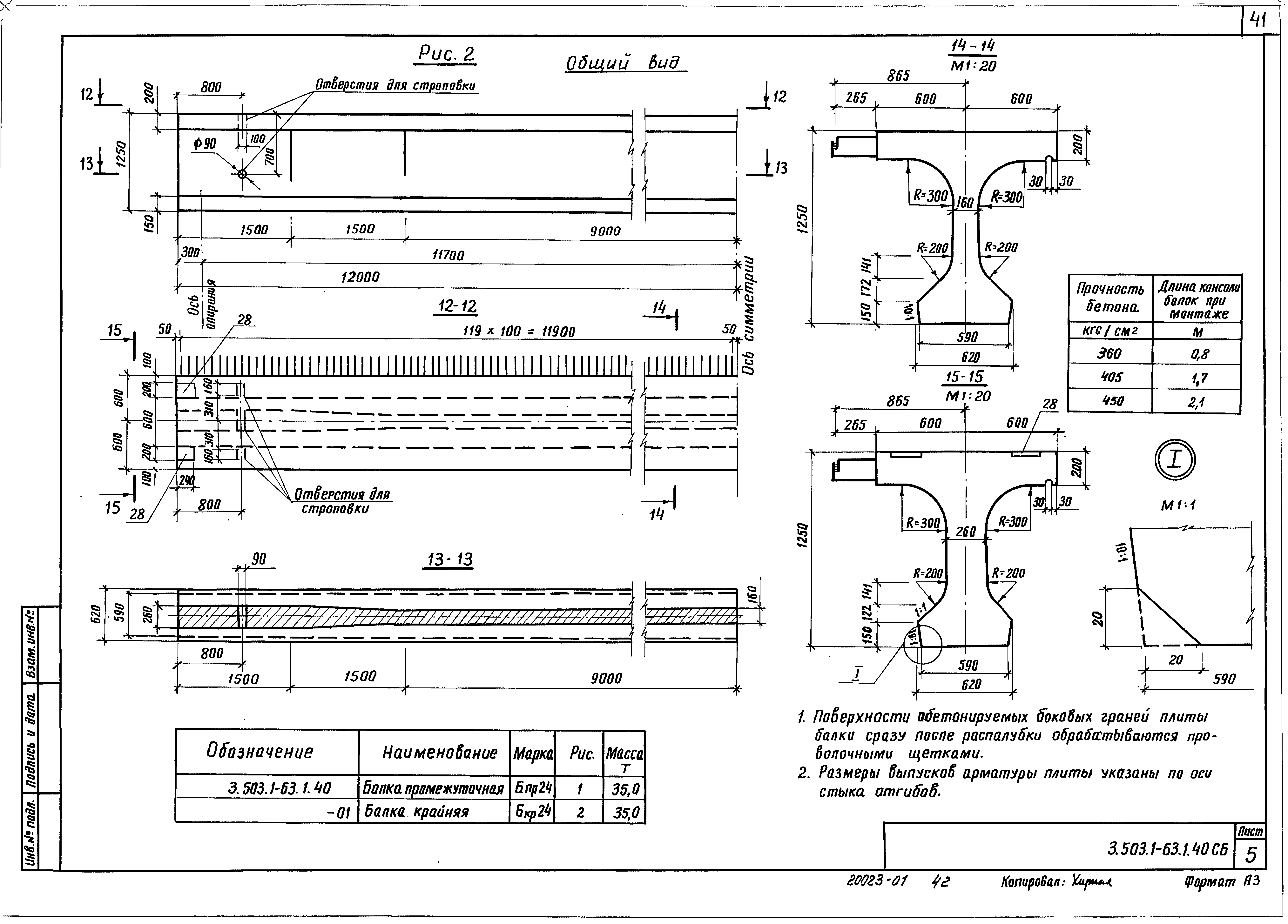
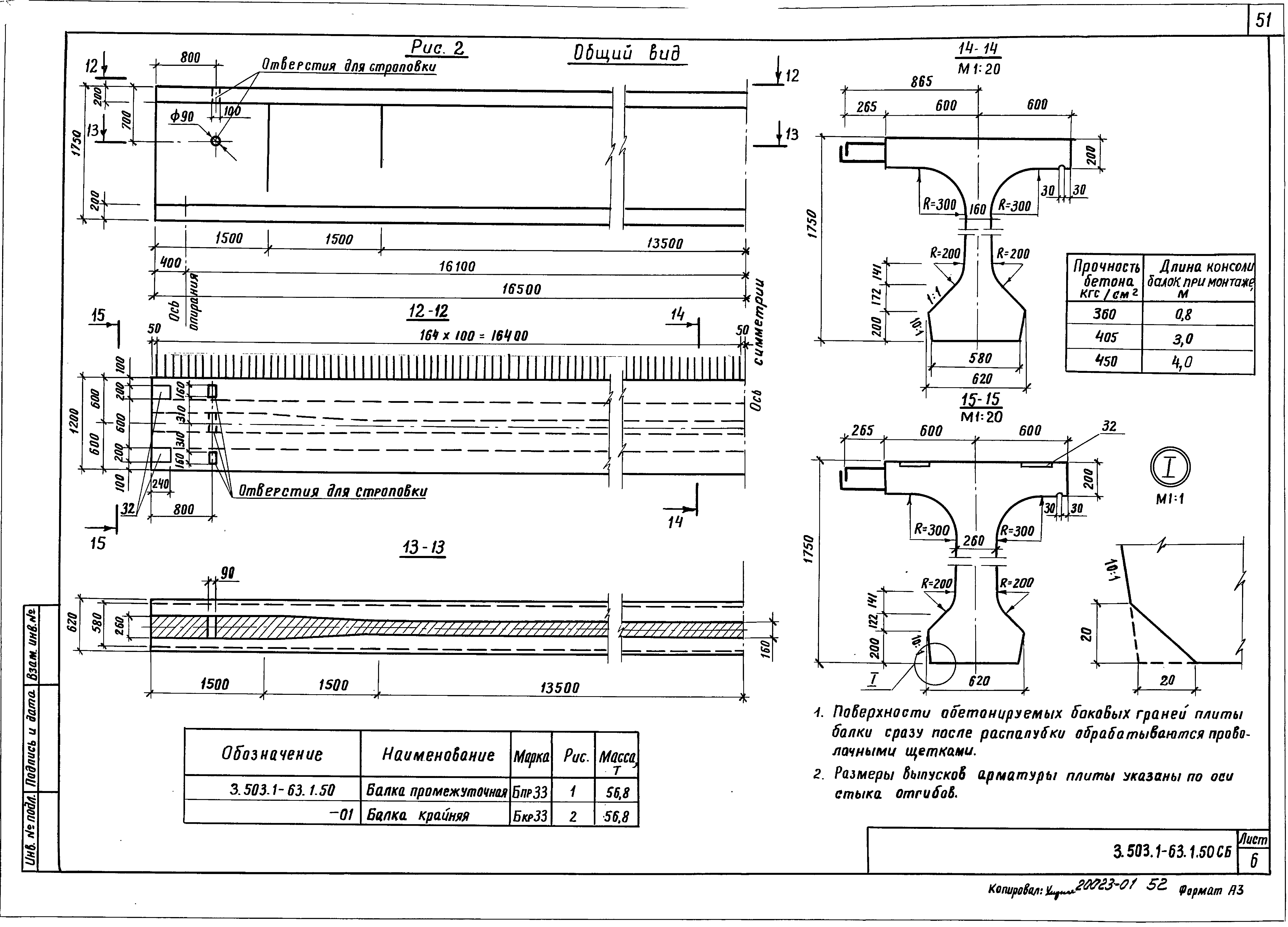
Скачать Серия 3.503.1-63 Выпуск 1. Сборные железобетонные изделия. Рабочие чертежиДата актуализации: 01.01.2021 Серия 3.503.1-63
Выпуск 1. Сборные железобетонные изделия. Рабочие чертежи| Обозначение: | Серия 3.503.1-63 | | Обозначение англ: | Series 3.503.1-63 | | Статус: | действует | | Название рус.: | Выпуск 1. Сборные железобетонные изделия. Рабочие чертежи | | Дата добавления в базу: | 01.09.2013 | | Дата актуализации: | 01.01.2021 | | Дата введения: | 01.03.1984 | | Разработан: | Промтрансниипроект
| | Утверждён: | 20.12.1983 Госстрой СССР (Государственный комитет Совета Министров СССР по делам строительства) (USSR Gosstroy ВА-80)
|
                                                              
|