Скачать Серия 3.503-48 Выпуск 1. Сборные железобетонные изделия. Рабочие чертежиДата актуализации: 01.01.2021
|
| Обозначение: | Серия 3.503-48 |
| Обозначение англ: | Series 3.503-48 |
| Статус: | справочные материалы, мп, тпр |
| Название рус.: | Выпуск 1. Сборные железобетонные изделия. Рабочие чертежи |
| Дата добавления в базу: | 01.09.2013 |
| Дата актуализации: | 01.01.2021 |
| Дата введения: | 29.06.1979 |
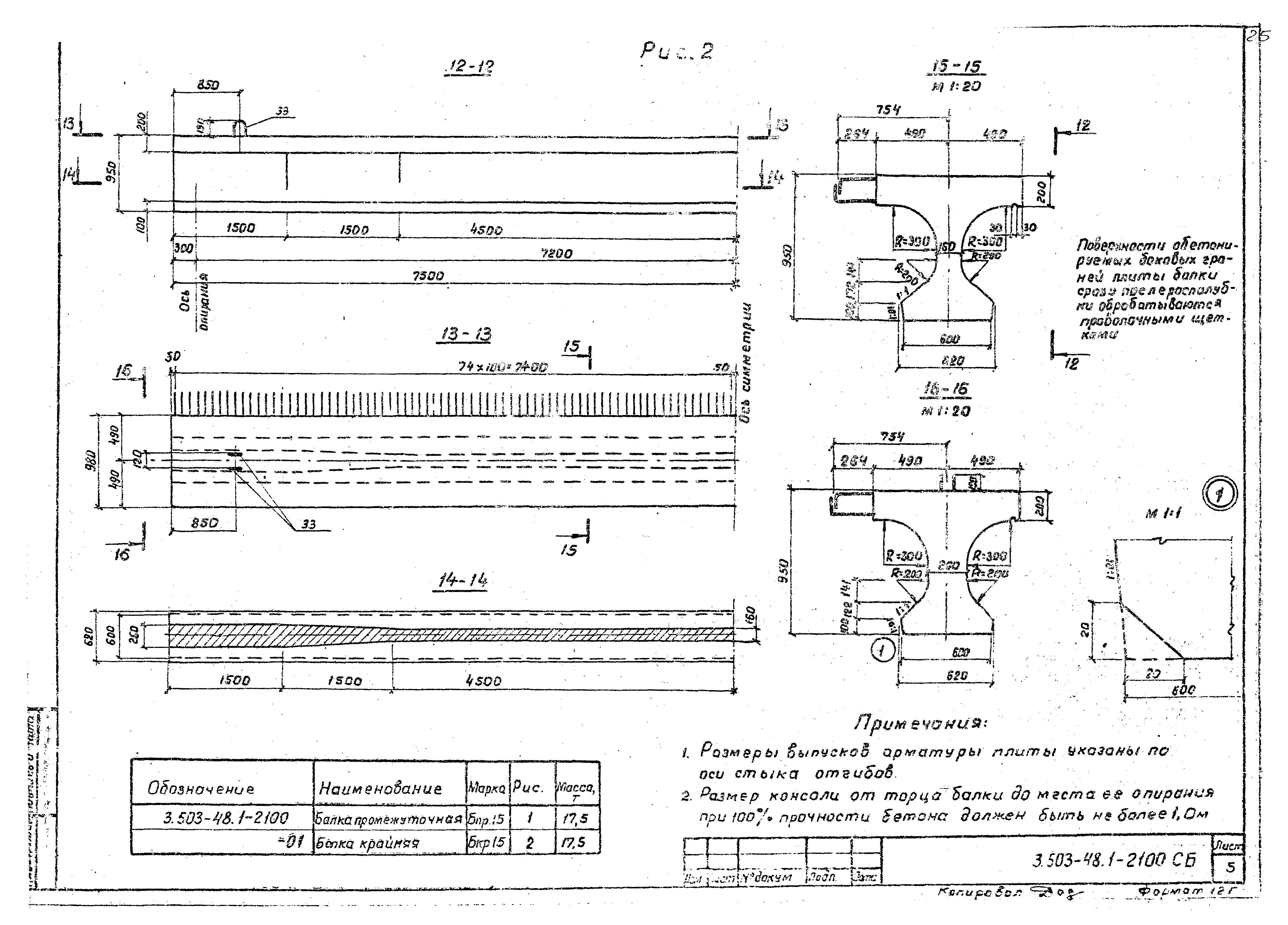
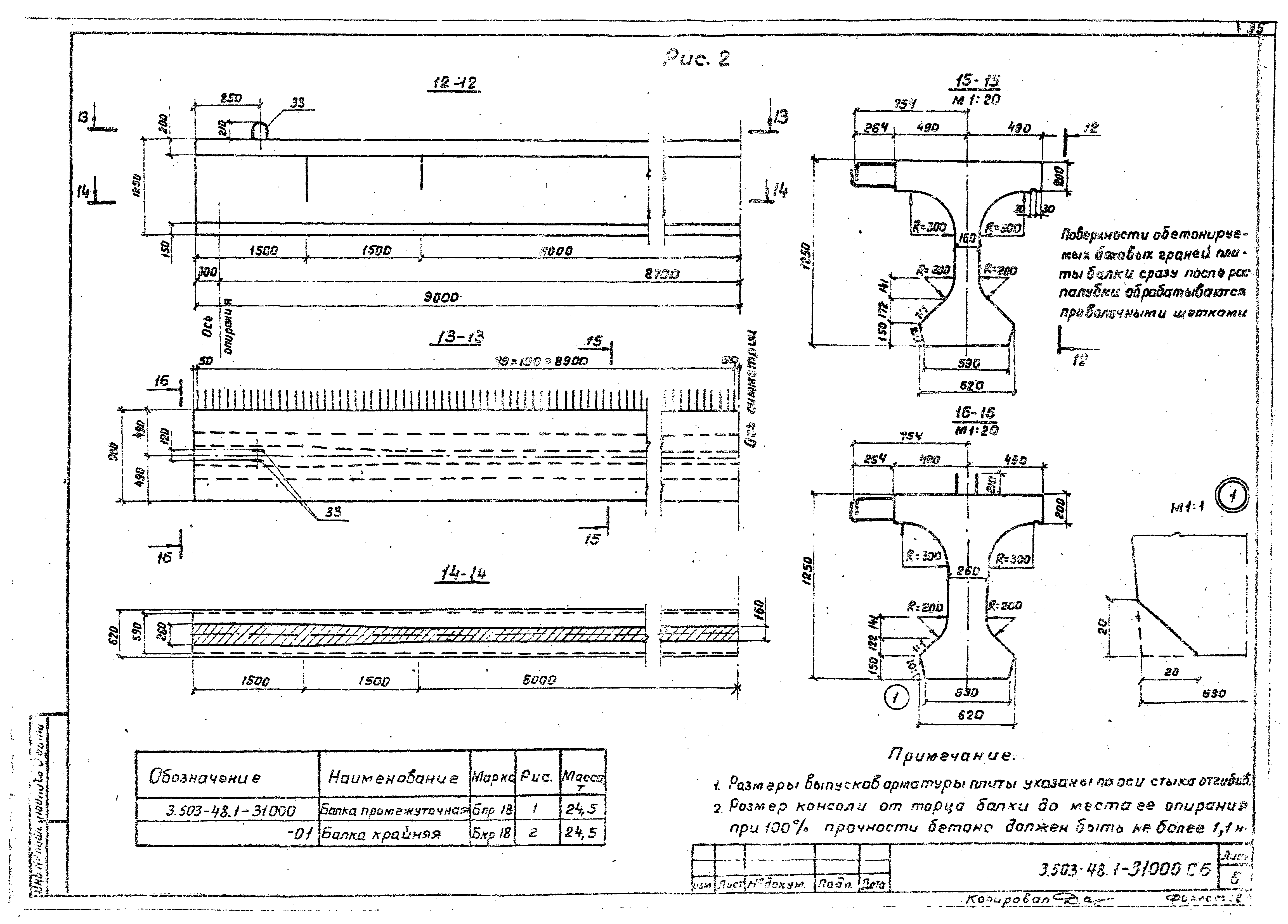
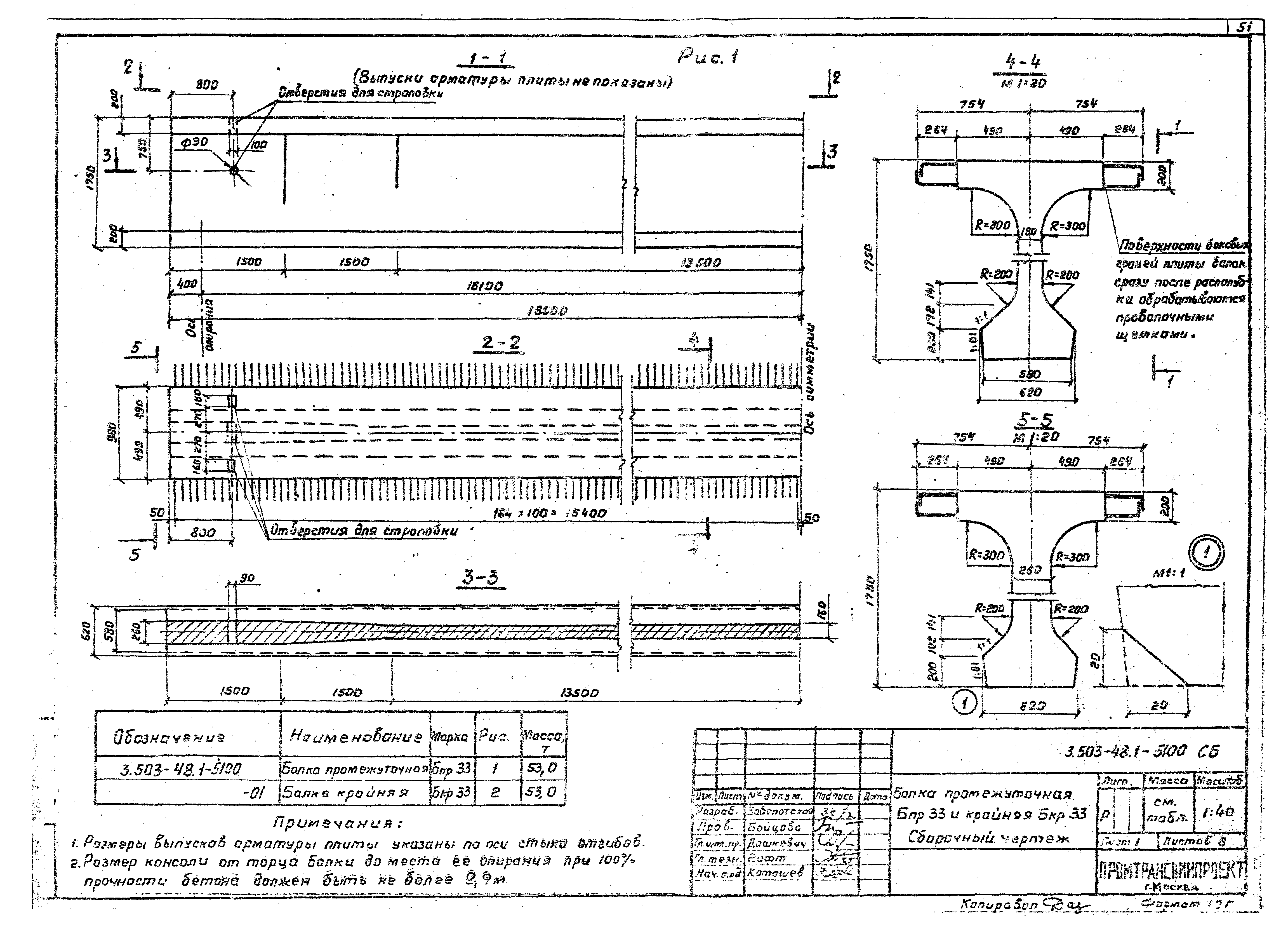
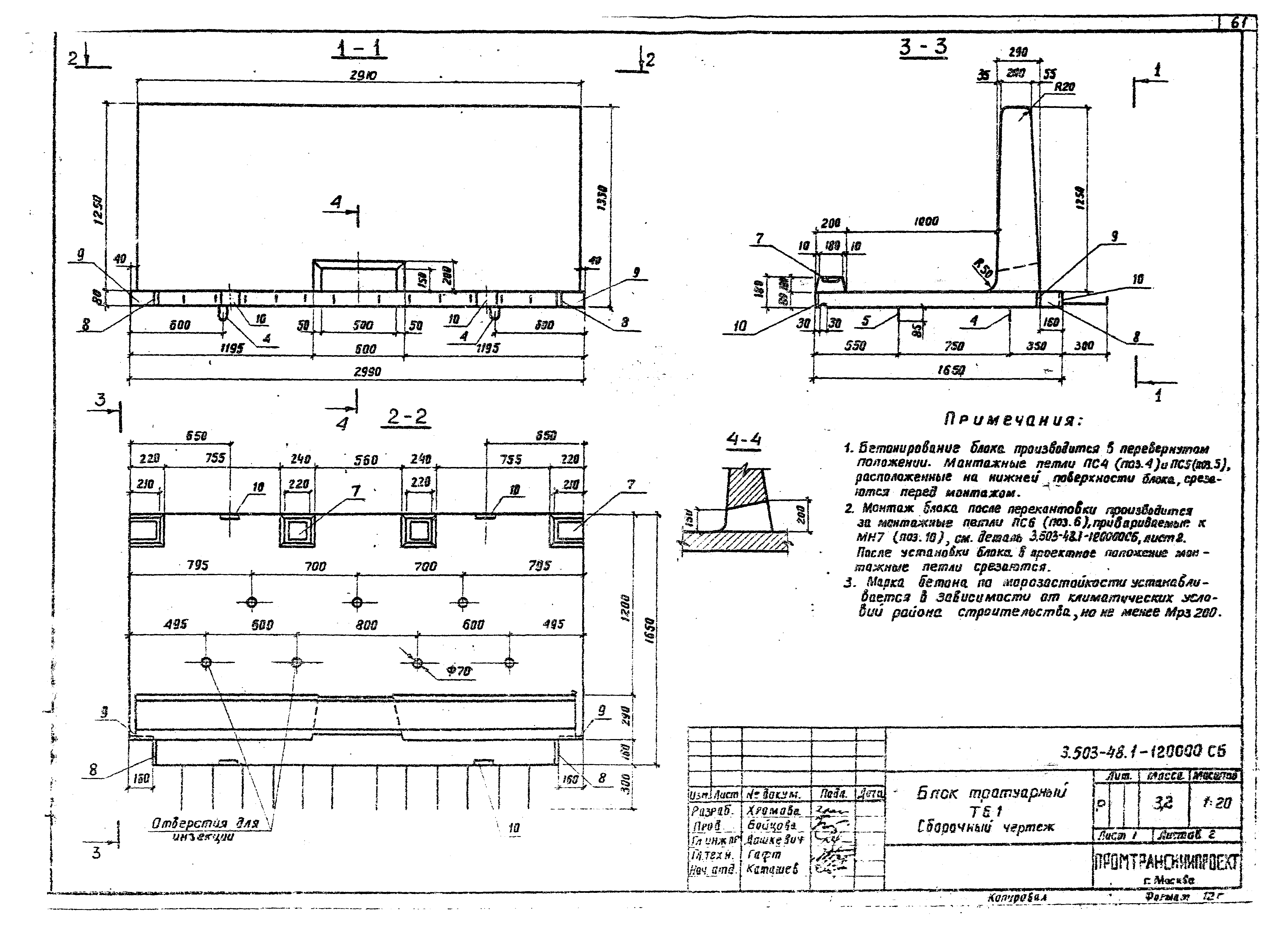
| Оглавление: | 3.503-48.1-000000ВД Ведомость ссылочных документов 3.503-48.1-000000ТО Техническое описание 3.503-48.1-110000 Балка промежуточная Бпр12 и крайняя Бкр12 3.503-48.1-110000СБ Балка промежуточная Бпр12 и крайняя Бкр12. Сборочный чертеж 3.503-48.1-110000ВС Выборка стали 3.503-48.1-2100 Балка промежуточная Бпр15 и крайняя Бкр15 3.503-48.1-2100СБ Балка промежуточная Бпр15 и крайняя Бкр15. Сборочный чертеж 3.503-48.1-2100ВС Выборка стали 3.503-48.1-31000 Балка промежуточная Бпр18 и крайняя Бкр18 3.503-48.1-31000СБ Балка промежуточная Бпр18 и крайняя Бкр18. Сборочный чертеж 3.503-48.1-31000ВС Выборка стали 3.503-48.1-4100 Балка промежуточная Бпр24 и крайняя Бкр24 3.503-48.1-4100СБ Балка промежуточная Бпр24 и крайняя Бкр24. Сборочный чертеж 3.503-48.1-4100ВС Выборка стали 3.503-48.1-5100 Балка промежуточная Бпр33 и крайняя Бкр33 3.503-48.1-5100СБ Балка промежуточная Бпр33 и крайняя Бкр33. Сборочный чертеж 3.503-48.1-5100ВС Выборка стали 3.503-48.1-120000 Блок тротуарный ТБ1 3.503-48.1-120000СБ Блок тротуарный ТБ1. Сборочный чертеж 3.503-48.1-120000ВС Выборка стали 3.503-48.1-32100 Валок 3.503-48.1-32100СБ Валок. Сборочный чертеж |
| Разработан: | Промтрансниипроект |
| Утверждён: | 30.03.1979 Госстрой СССР (Государственный комитет Совета Министров СССР по делам строительства) (USSR Gosstroy 18) |
































































