Скачать Серия 3.503.9-43/89 Выпуск 1. Металлоконструкции пролетных строений. Чертежи КМДата актуализации: 01.01.2021
|
| Обозначение: | Серия 3.503.9-43/89 |
| Обозначение англ: | Series 3.503.9-43/89 |
| Статус: | действует |
| Название рус.: | Выпуск 1. Металлоконструкции пролетных строений. Чертежи КМ |
| Дата добавления в базу: | 01.09.2013 |
| Дата актуализации: | 01.01.2021 |
| Дата введения: | 15.03.1989 |
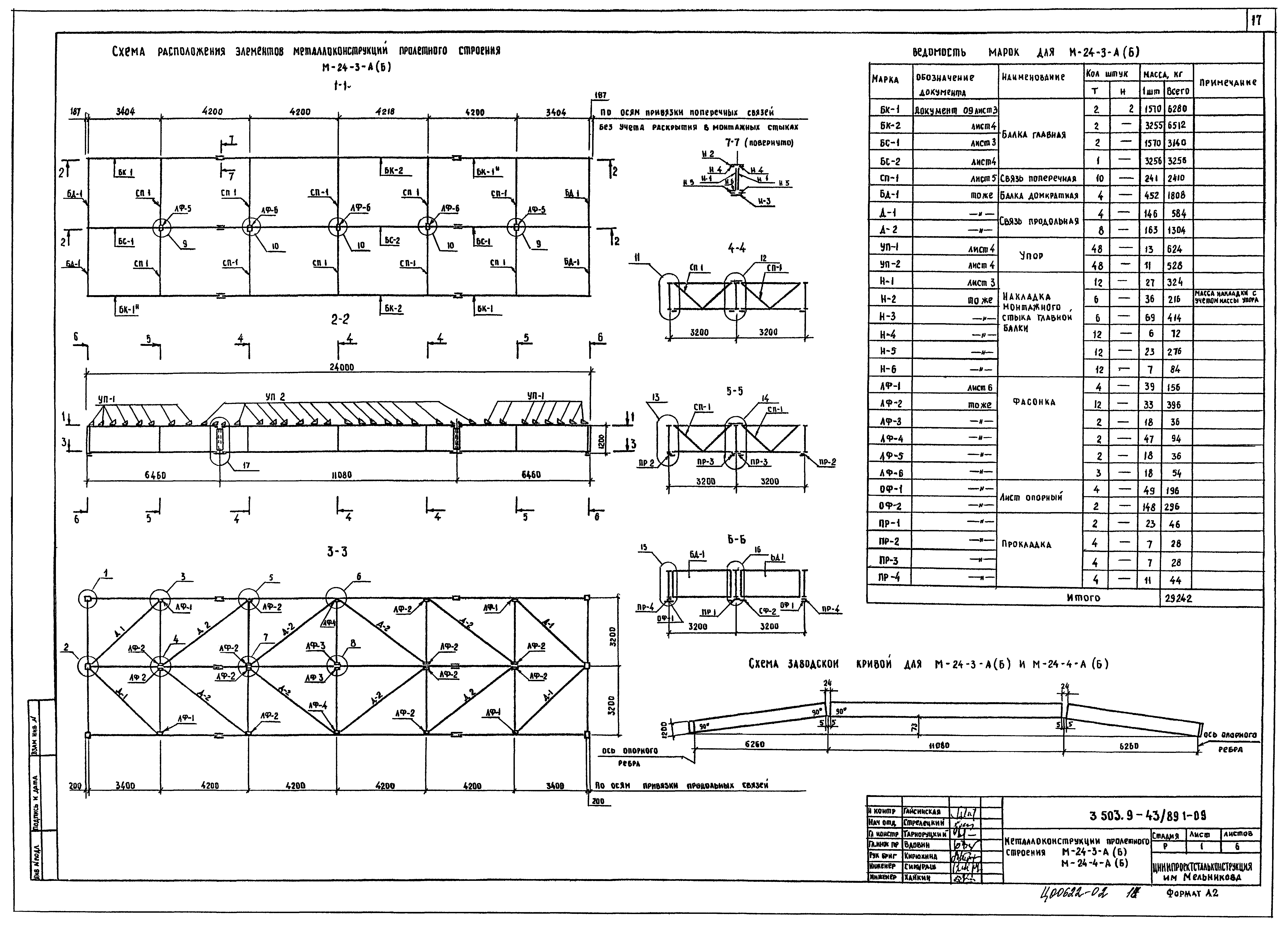
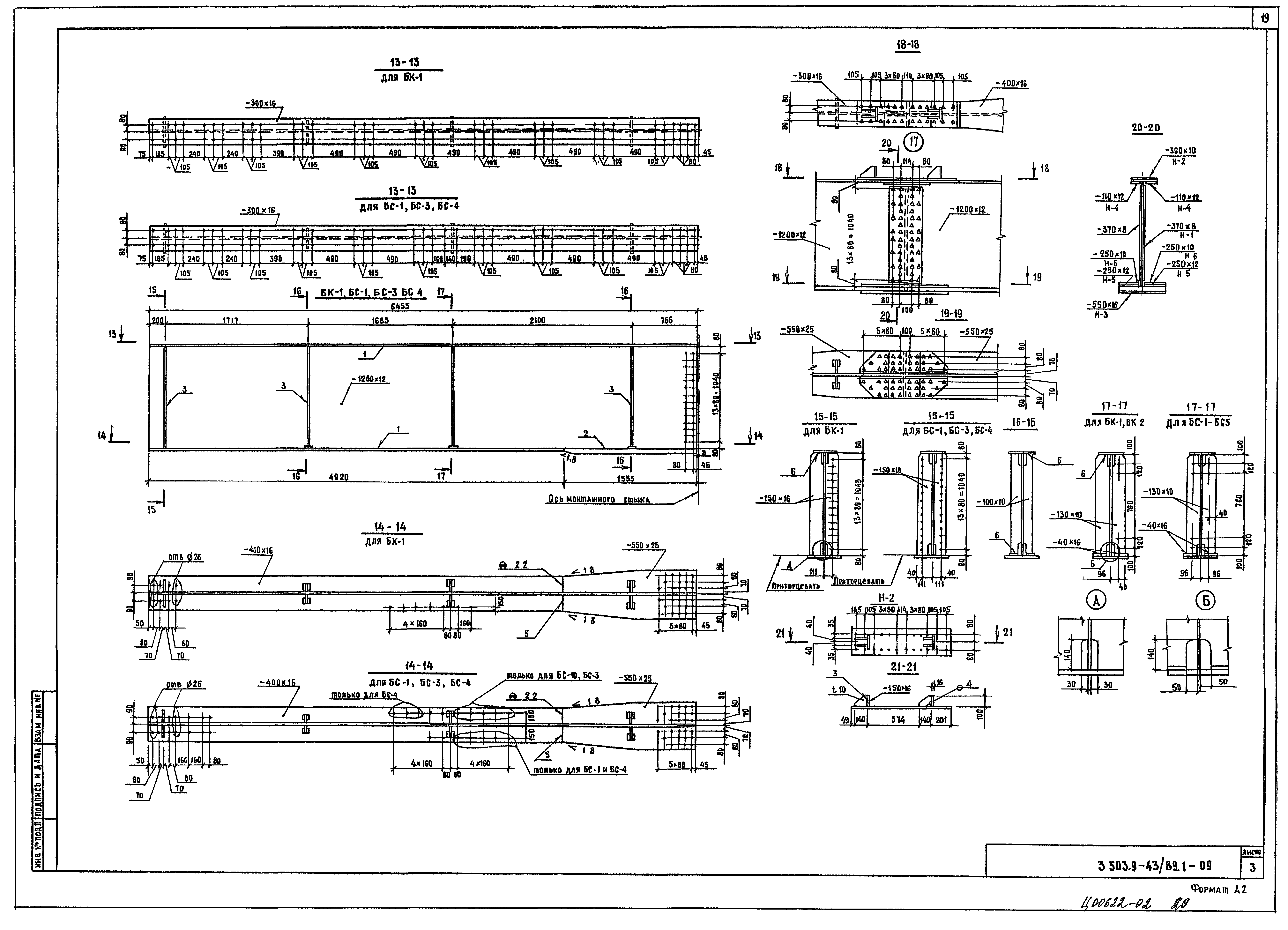
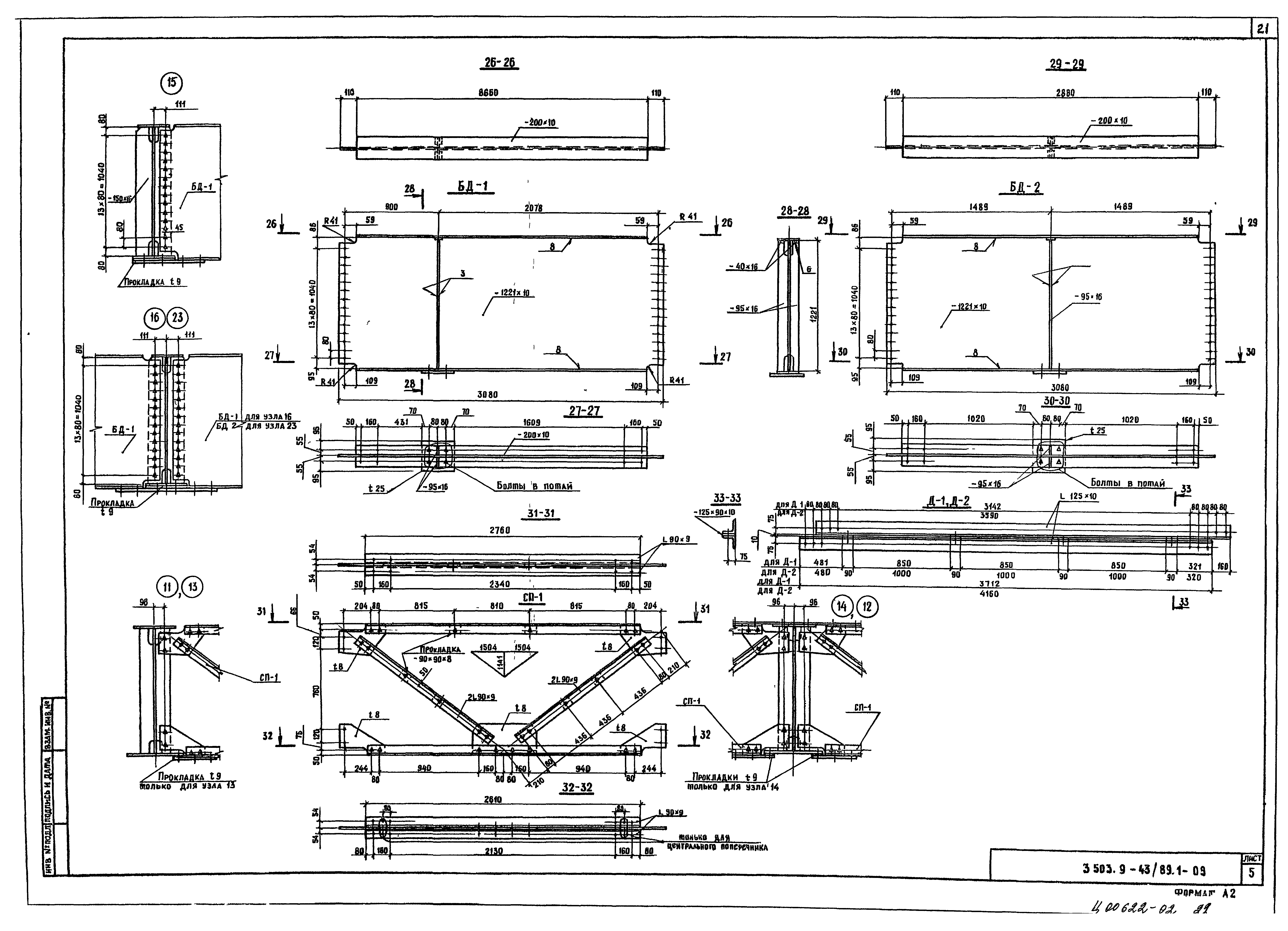
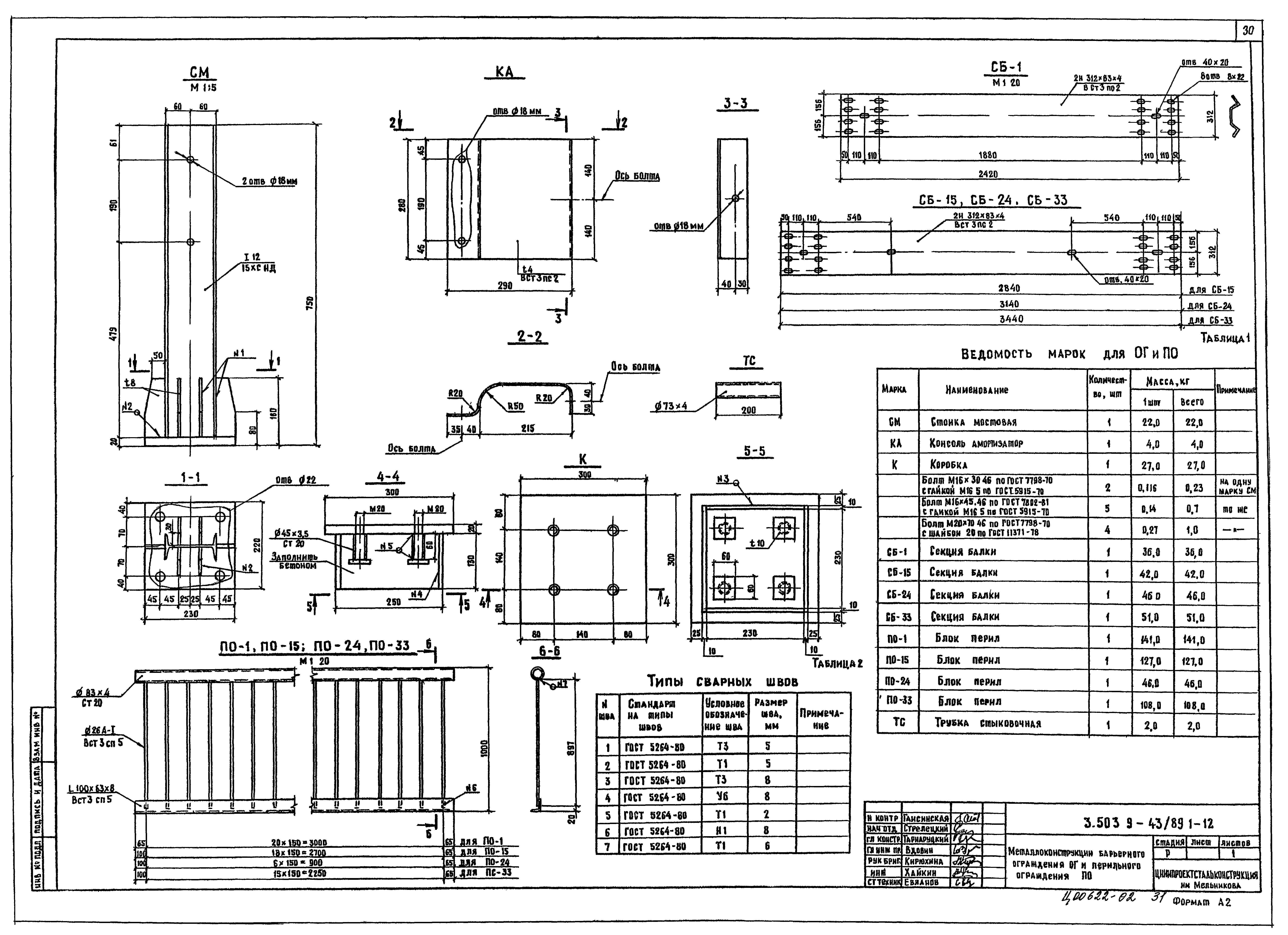
| Оглавление: | 3.503.9-43/89.1-00ТО Техническое описание 3.503.9-43/89.1-01 Техническая спецификация металла. Сводные ведомости болтов, гаек и шайб пролетного строения L=15 м, Г-8 3.503.9-43/89.1-02 Техническая спецификация металла. Сводные ведомости болтов, гаек и шайб пролетного строения L=15 м, Г-10 и Г-11,5 3.503.9-43/89.1-03 Техническая спецификация металла. Сводные ведомости болтов, гаек и шайб пролетного строения L=24 м, Г-8 3.503.9-43/89.1-04 Техническая спецификация металла. Сводные ведомости болтов, гаек и шайб пролетного строения L=24 м, Г-10 и Г-11,5 3.503.9-43/89.1-05 Техническая спецификация металла. Сводные ведомости болтов, гаек и шайб пролетного строения L=33 м, Г-8 3.503.9-43/89.1-06 Техническая спецификация металла. Сводные ведомости болтов, гаек и шайб пролетного строения L=33 м, Г-10 и Г-11,5 3.503.9-43/89.1-07 Техническая спецификация металла. Сводная ведомость болтов, гаек и шайб деформационных швов 3.503.9-43/89.1-08 Металлоконструкции пролетного строения М-15-3-А(Б), М-15-4-А(Б) 3.503.9-43/89.1-09 Металлоконструкции пролетного строения М-24-3-А(Б), М-24-4-А(Б) 3.503.9-43/89.1-10 Металлоконструкции пролетного строения М-33-3-А(Б), М-33-4-А(Б) 3.503.9-43/89.1-11 Металлоконструкции служебных ходов СХ 3.503.9-43/89.1-12 Металлоконструкции барьерного ограждения ОГ и перильного ограждения ПО 3.503.9-43/89.1-13 Металлоконструкции деформационных швов ДШ 3.503.9-43/89.1-14ТУ Проект технических условий |
| Разработан: | ЦНИИпроектстальконструкция Госстроя |
| Утверждён: | 08.12.1988 Министерство автомобильных дорог РСФСР (193) |





































