Скачать Серия 3.503.9-43/89 Выпуск 2. Железобетонные изделия. Рабочие чертежиДата актуализации: 01.01.2021
|
| Обозначение: | Серия 3.503.9-43/89 |
| Обозначение англ: | Series 3.503.9-43/89 |
| Статус: | действует |
| Название рус.: | Выпуск 2. Железобетонные изделия. Рабочие чертежи |
| Дата добавления в базу: | 01.09.2013 |
| Дата актуализации: | 01.01.2021 |
| Дата введения: | 15.03.1989 |
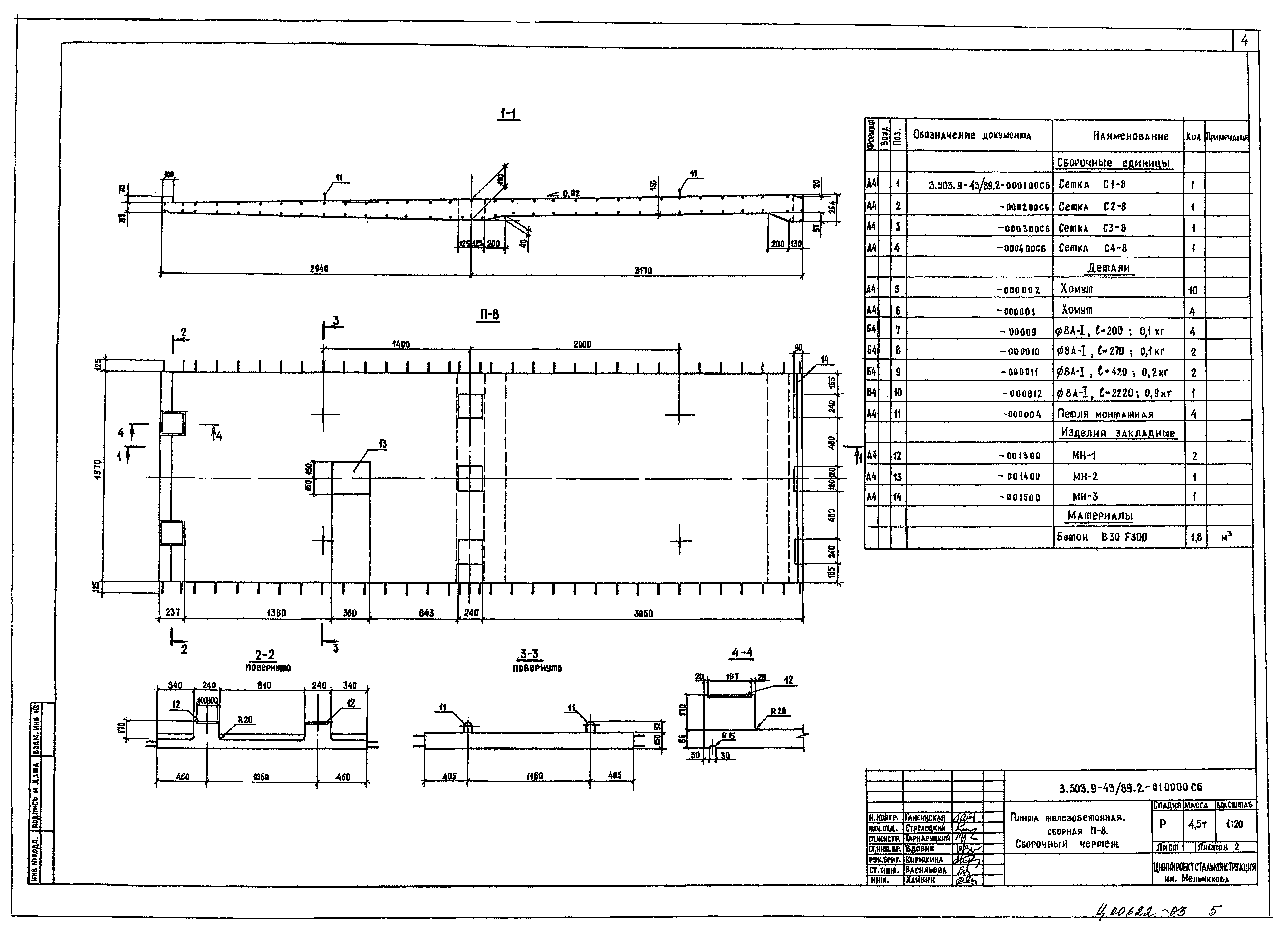
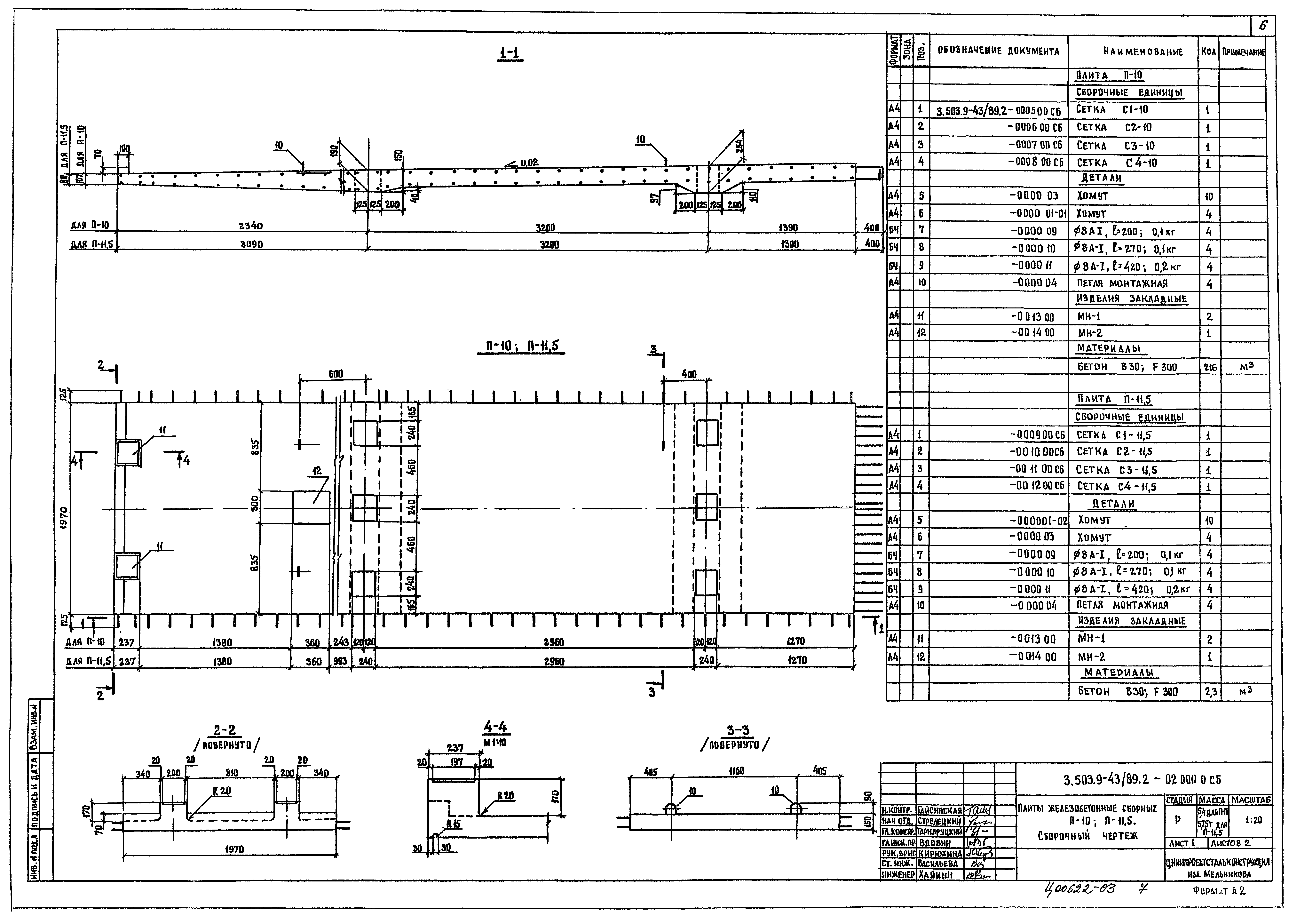
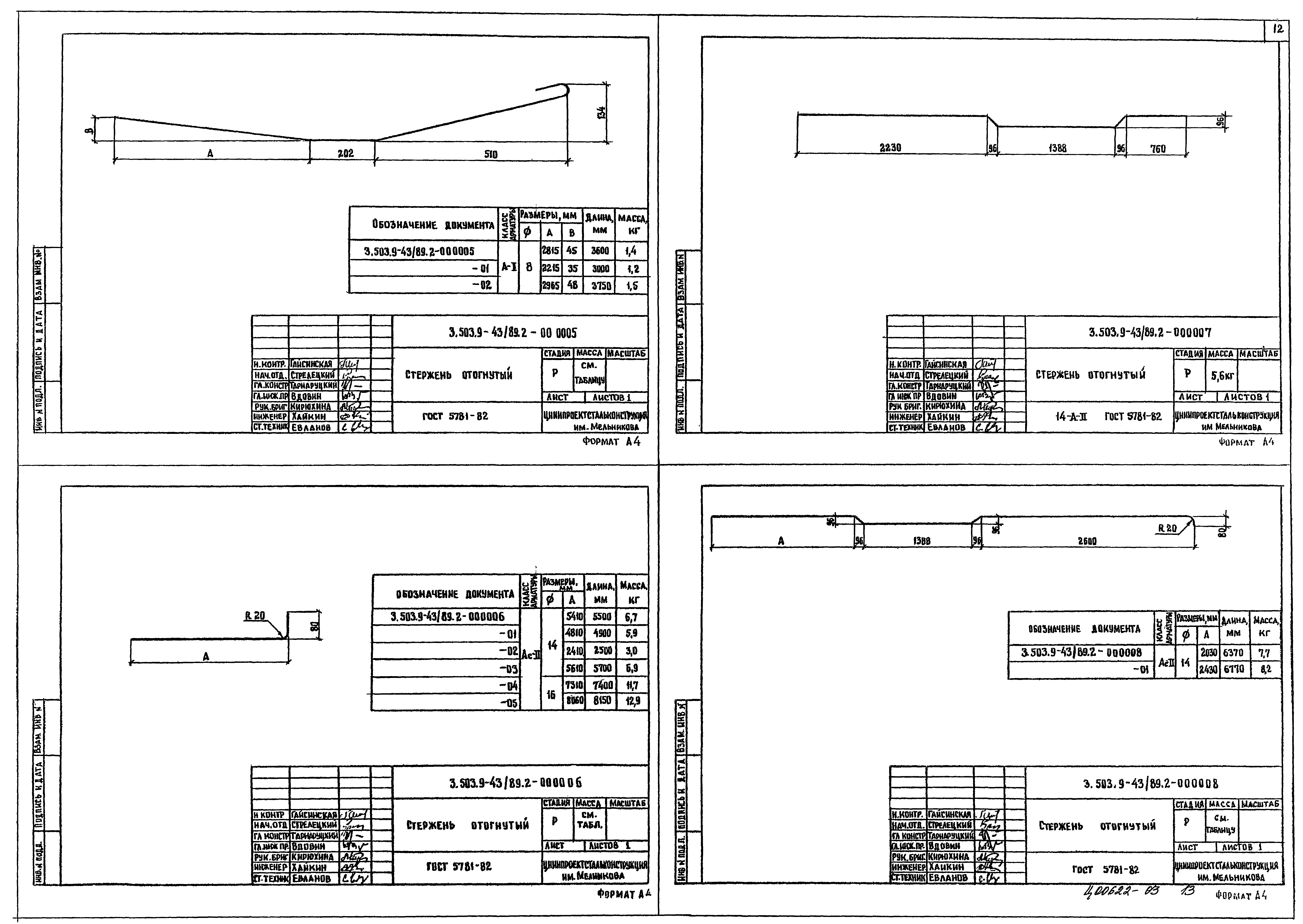
| Оглавление: | 3.503.9-43/89.2-000000ТО Техническое описание 3.503.9-43/89.2-01 0000СБ Плита железобетонная сборная П-8. Сборочный чертеж 3.503.9-43/89.2-020000СБ Плиты железобетонные сборные П-10; П-11,5. Сборочный чертеж 3.503.9-43/89.2-000100СБ Сетка С1-8. Сборочный чертеж 3.503.9-43/89.2-000200СБ Сетка С2-8. Сборочный чертеж 3.503.9-43/89.2-000300СБ Сетка С3-8. Сборочный чертеж 3.503.9-43/89.2-000400СБ Сетка С4-8. Сборочный чертеж 3.503.9-43/89.2-000500СБ Сетка С1-10. Сборочный чертеж 3.503.9-43/89.2-000600СБ Сетка С2-10. Сборочный чертеж 3.503.9-43/89.2-000700СБ Сетка С3-10. Сборочный чертеж 3.503.9-43/89.2-000800СБ Сетка С4-10. Сборочный чертеж 3.503.9-43/89.2-000900СБ Сетка С1-11,5. Сборочный чертеж 3.503.9-43/89.2-001000СБ Сетка С2-11,5. Сборочный чертеж 3.503.9-43/89.2-001100СБ Сетка С3-11,5. Сборочный чертеж 3.503.9-43/89.2-001200СБ Сетка С4-11,5. Сборочный чертеж 3.503.9-43/89.2-000001 Хомут 3.503.9-43/89.2-000002 Хомут 3.503.9-43/89.2-000003 Хомут 3.503.9-43/89.2-000004 Петля монтажная 3.503.9-43/89.2-000005 Стержень отогнутый 3.503.9-43/89.2-000006 Стержень отогнутый 3.503.9-43/89.2-000007 Стержень отогнутый 3.503.9-43/89.2-000008 Стержень отогнутый 3.503.9-43/89.2-0013.00 Изделие закладное МН-1 3.503.9-43/89.2-0014.00 Изделие закладное МН-2 3.503.9-43/89.2-0015.00 Изделие закладное МН-3 3.503.9-43/89.2-000000РС Ведомость расхода стали на плиты П-8, П-10, П-11,5 |
| Разработан: | ЦНИИпроектстальконструкция Госстроя |
| Утверждён: | 08.12.1988 Министерство автомобильных дорог РСФСР (193) |













