Скачать Серия 3.501.1-165 Выпуск 1-3. Пролетные строения длиной от 24 до 36 м металлические с железобетонной плитой. Материалы для проектирования. Рабочие чертежиДата актуализации: 01.01.2021
|
| Обозначение: | Серия 3.501.1-165 |
| Обозначение англ: | Series 3.501.1-165 |
| Статус: | не определен законодательством |
| Название рус.: | Выпуск 1-3. Пролетные строения длиной от 24 до 36 м металлические с железобетонной плитой. Материалы для проектирования. Рабочие чертежи |
| Дата добавления в базу: | 01.09.2013 |
| Дата актуализации: | 01.01.2021 |
| Дата введения: | 01.02.1992 |
| Дата окончания срока действия: | 30.06.2003 |
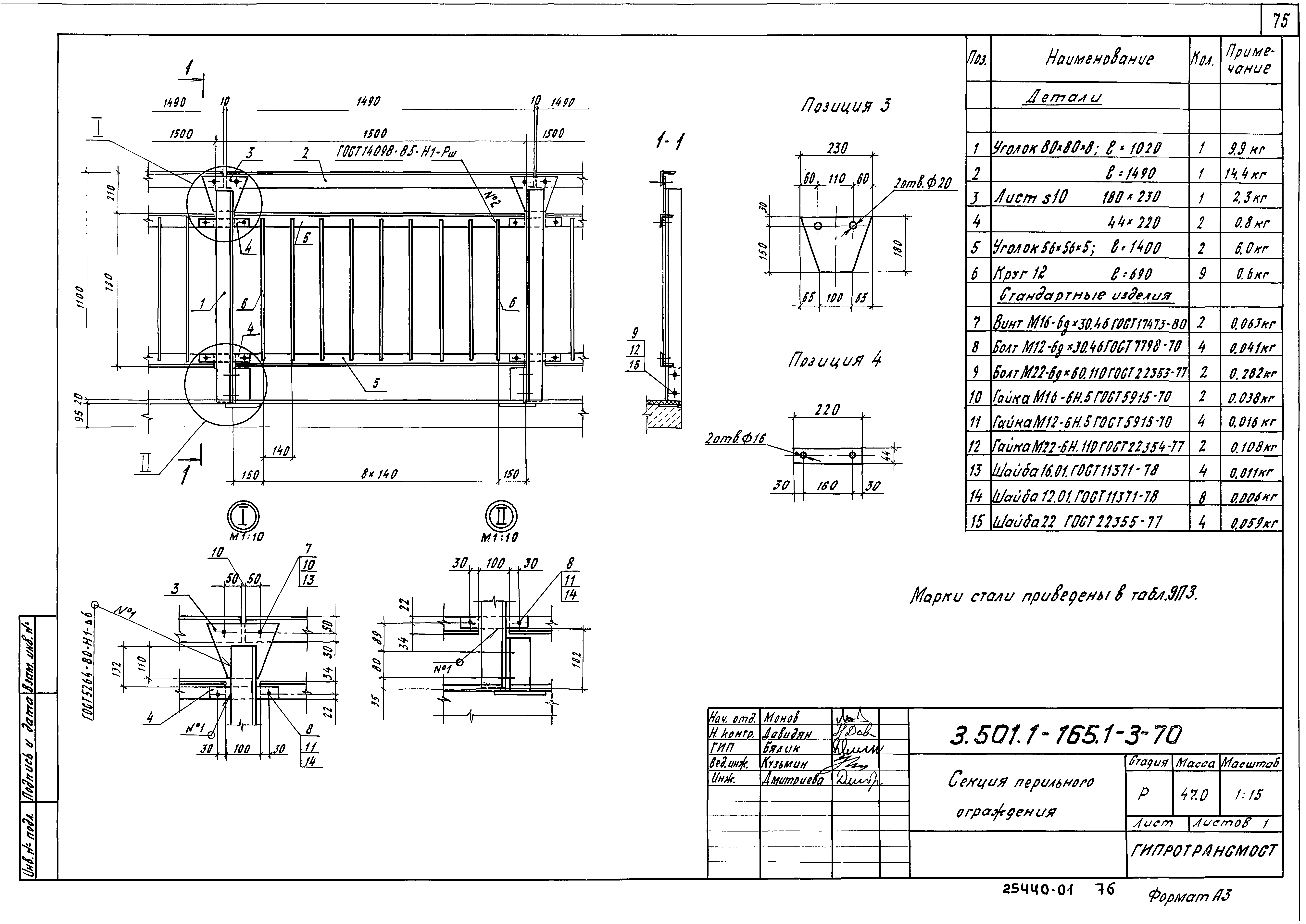
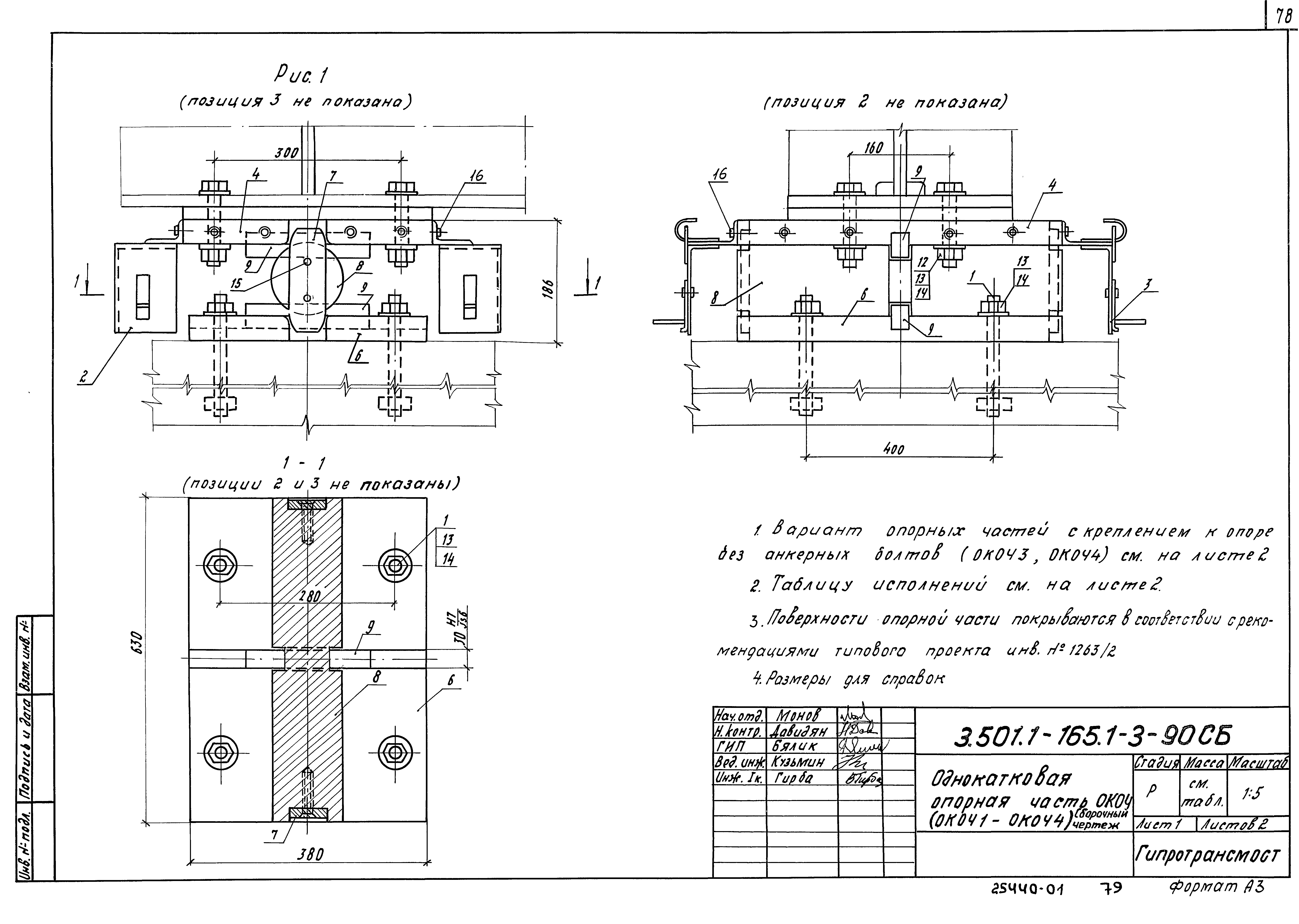
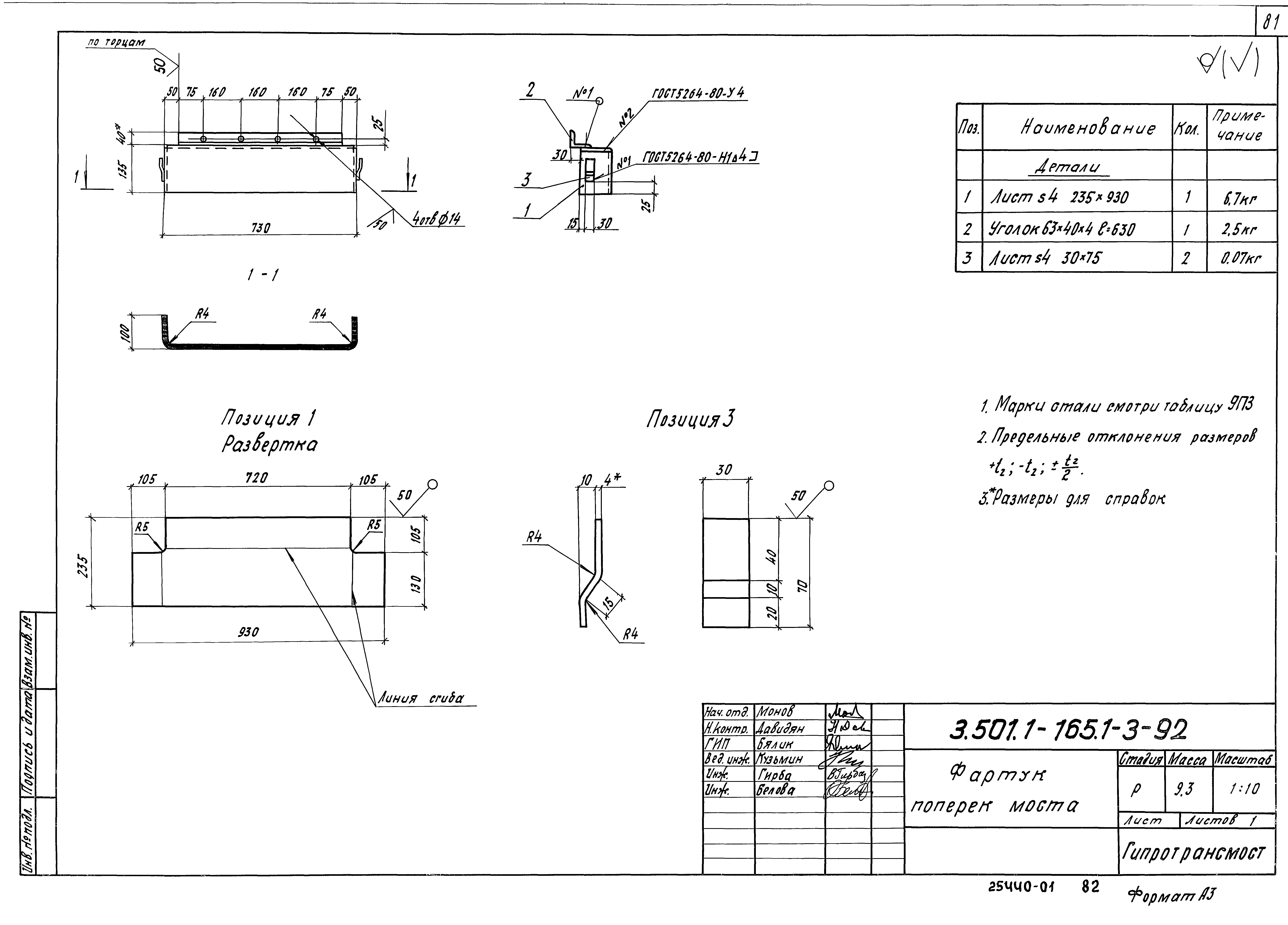
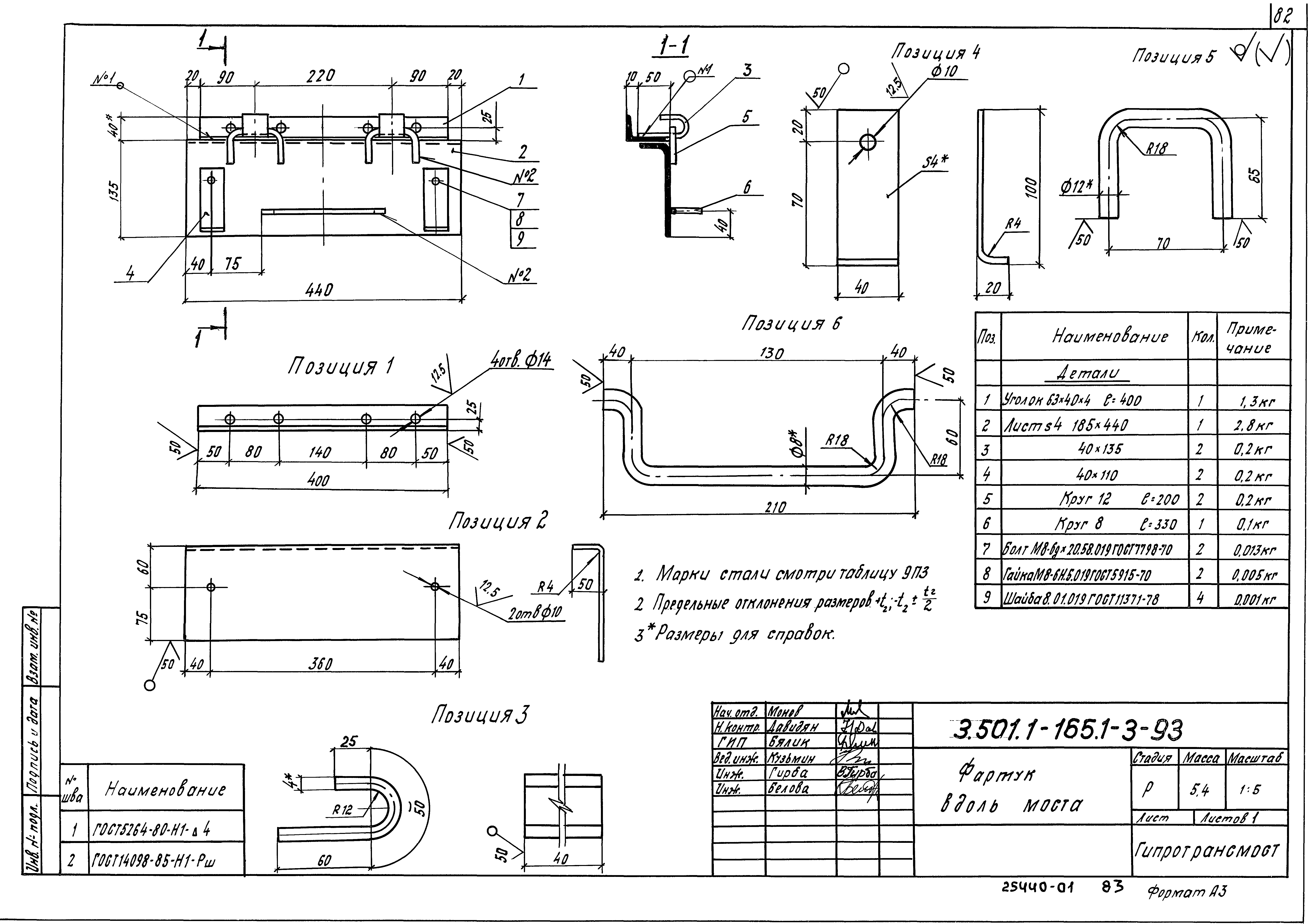
| Оглавление: | 3.501.1-165.1-3-Пз Пояснительная записка 3.501.1-165.1-3-1 Геометрические характеристики, подбор сечений 3.501.1-165.1-3-2 Строительный подъем 3.501.1-165.1-3-1 ТС Техническая спецификация металла к схеме 1 3.501.1-165.1-3-2 ТС Техническая спецификация металла к схеме 2 3.501.1-165.1-3-3 ТС Техническая спецификация металла к схеме 3 3.501.1-165.1-3-4 ТС Техническая спецификация металла к схеме 4 3.501.1-165.1-3-5 ТС Техническая спецификация металла к схеме 5 3.501.1-165.1-3-6 ТС Техническая спецификация металла к схеме 6 3.501.1-165.1-3-7 ТС Техническая спецификация металла к схеме 7 3.501.1-165.1-3-8 ТС Техническая спецификация металла к схеме 8 3.501.1-165.1-3-9 ТС Техническая спецификация металла к схеме 9 3.501.1-165.1-3-10 ТС Техническая спецификация металла к схеме 10 3.501.1-165.1-3-11 ТС Техническая спецификация металла к схеме 11 3.501.1-165.1-3-12 ТС Техническая спецификация металла к схеме 12 3.501.1-165.1-3-13 ТС Техническая спецификация металла к схеме 13 3.501.1-165.1-3-14 ТС Техническая спецификация металла к схеме 14 3.501.1-165.1-3-3 Ведомость крепежных чертежей 3.501.1-165.1-3-4 Схемы 1-3 пролетного строения 3.501.1-165.1-3-5 Схемы 4-6 пролетного строения 3.501.1-165.1-3-6 Схемы 7-9 пролетного строения 3.501.1-165.1-3-7 Схема 10 пролетного строения 3.501.1-165.1-3-8 Схемы 11, 12 пролетного строения 3.501.1-165.1-3-9 Схемы 13,14 пролетного строения 3.501.1-165.1-3-10 Блок крайний К (К6.1, К6.2, К9.3, К12.3) 3.501.1-165.1-3-11 Блок крайний К (К6.4, К6.6, К9.5, К12.5 - К12.7) 3.501.1-165.1-3-12 Блок промежуточный П (П9.3, П12.1 - П12.3) 3.501.1-165.1-3-13 Блок промежуточный П (П9.4 - П9.7, П12.5 - П12.7) 3.501.1-165.1-3-14 Блок надопорный Н12 (Н12.1 -Н12.3, Н12.30) 3.501.1-165.1-3-15 Блок надопорный Н12 (Н12.5 - Н12.7, Н12.40, Н12.60) 3.501.1-165.1-3-15СБ Блок крайний К. Блок промежуточный П. Блок надопорный Н. Сборочный чертеж 3.501.1-165.1-3-16 Ребро жесткости 3.501.1-165.1-3-17 Монтажная диагональ продольных связей 3.501.1-165.1-3-20 Вертикальный стык СВ (СВ1 - СВ11) 3.501.1-165.1-3-30 Горизонтальный стык СГ (СГ1 - СГ22) 3.501.1-165.1-3-30СБ Горизонтальный стык СГ (СГ1 - СГ22). Сборочный чертеж 3.501.1-165.1-3-40 Плита прохожей части 3.501.1-165.1-3-40СБ Плита прохожей части. Сборочный чертеж 3.501.1-165.1-3-41 Закладная деталь ЗД (ЗД1, ЗД1Н) 3.501.1-165.1-3-42 Закладная деталь ЗД2 3.501.1-165.1-3-50 Монтажное соединение плит 3.501.1-165.1-3-60 Монтажный узел крепления плит 3.501.1-165.1-3-70 Секция перильного ограждения |
| Разработан: | Гипротрансмост |
| Утверждён: | 16.05.1988 МПС (Ministry of Railroads ЦУЭП-15/44/132) |




















































































