Скачать Серия 3.402-25 Выпуск 1. Стальные конструкции пролетных строений переходов через автодороги пролетом 18,0 м; 12,0 м; 9,0 м. Чертежи КМДата актуализации: 01.01.2021
|
| Обозначение: | Серия 3.402-25 |
| Обозначение англ: | Series 3.402-25 |
| Статус: | не определен законодательством |
| Название рус.: | Выпуск 1. Стальные конструкции пролетных строений переходов через автодороги пролетом 18,0 м; 12,0 м; 9,0 м. Чертежи КМ |
| Дата добавления в базу: | 01.09.2013 |
| Дата актуализации: | 01.01.2021 |
| Дата введения: | 01.01.1980 |
| Дата окончания срока действия: | 30.06.2003 |
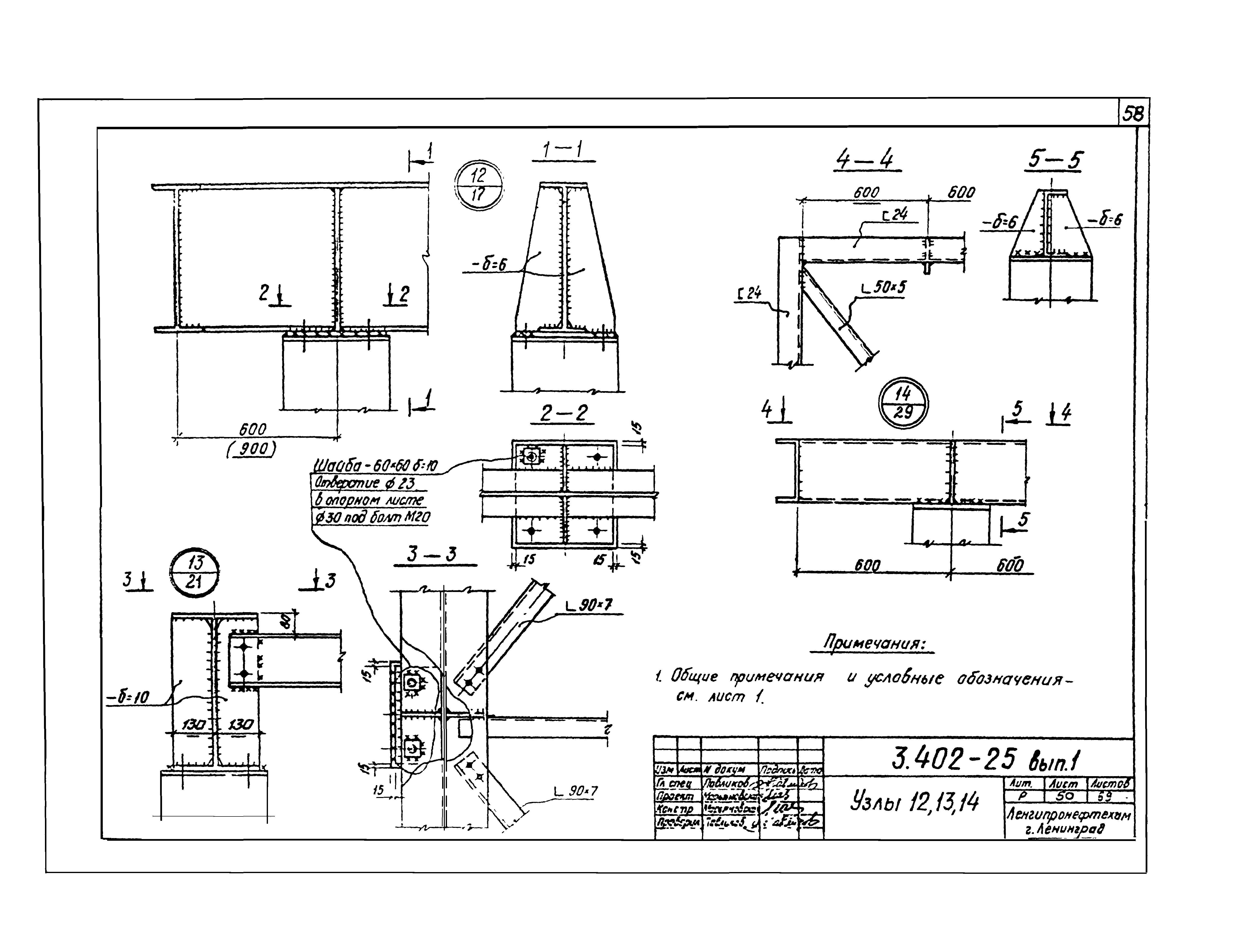
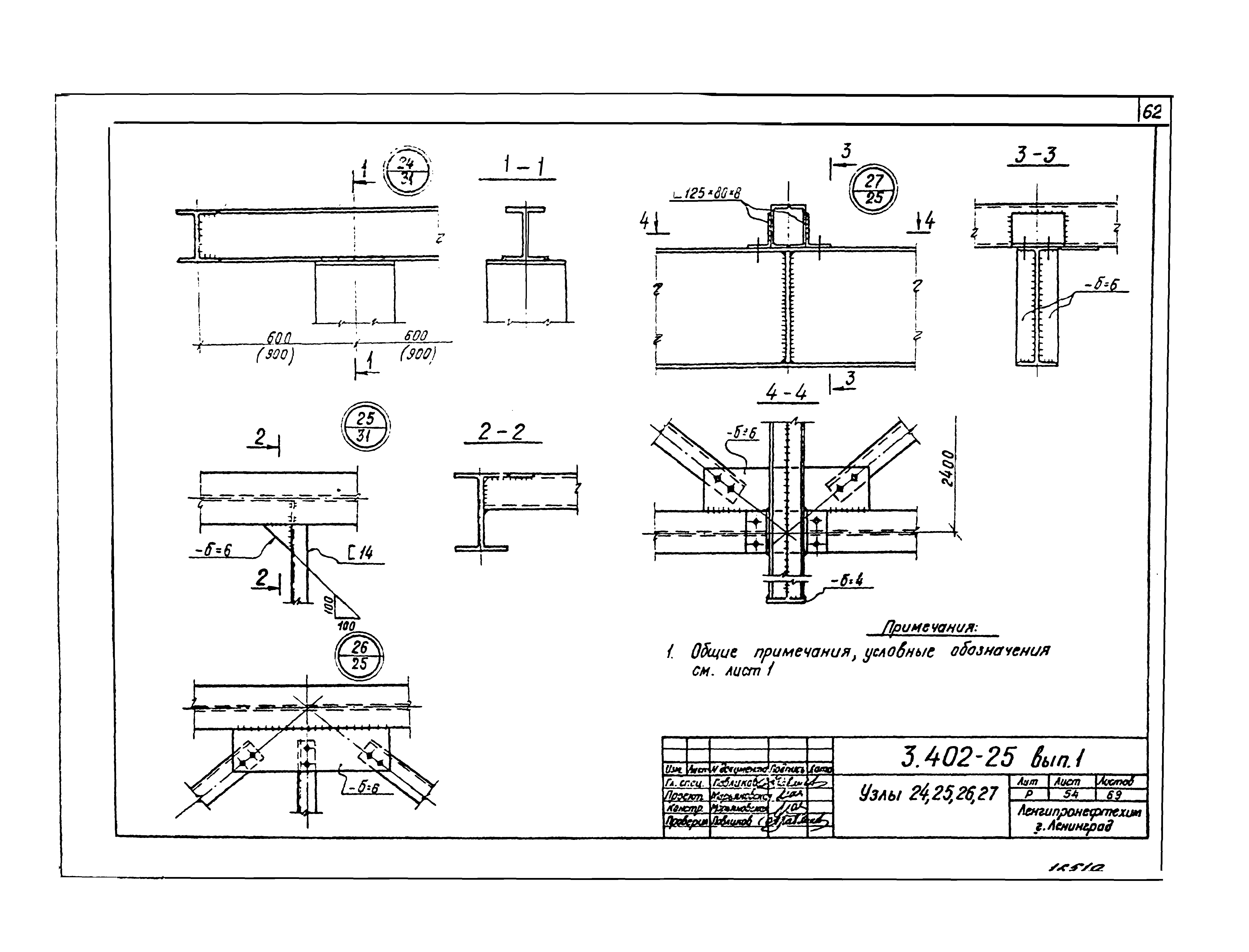
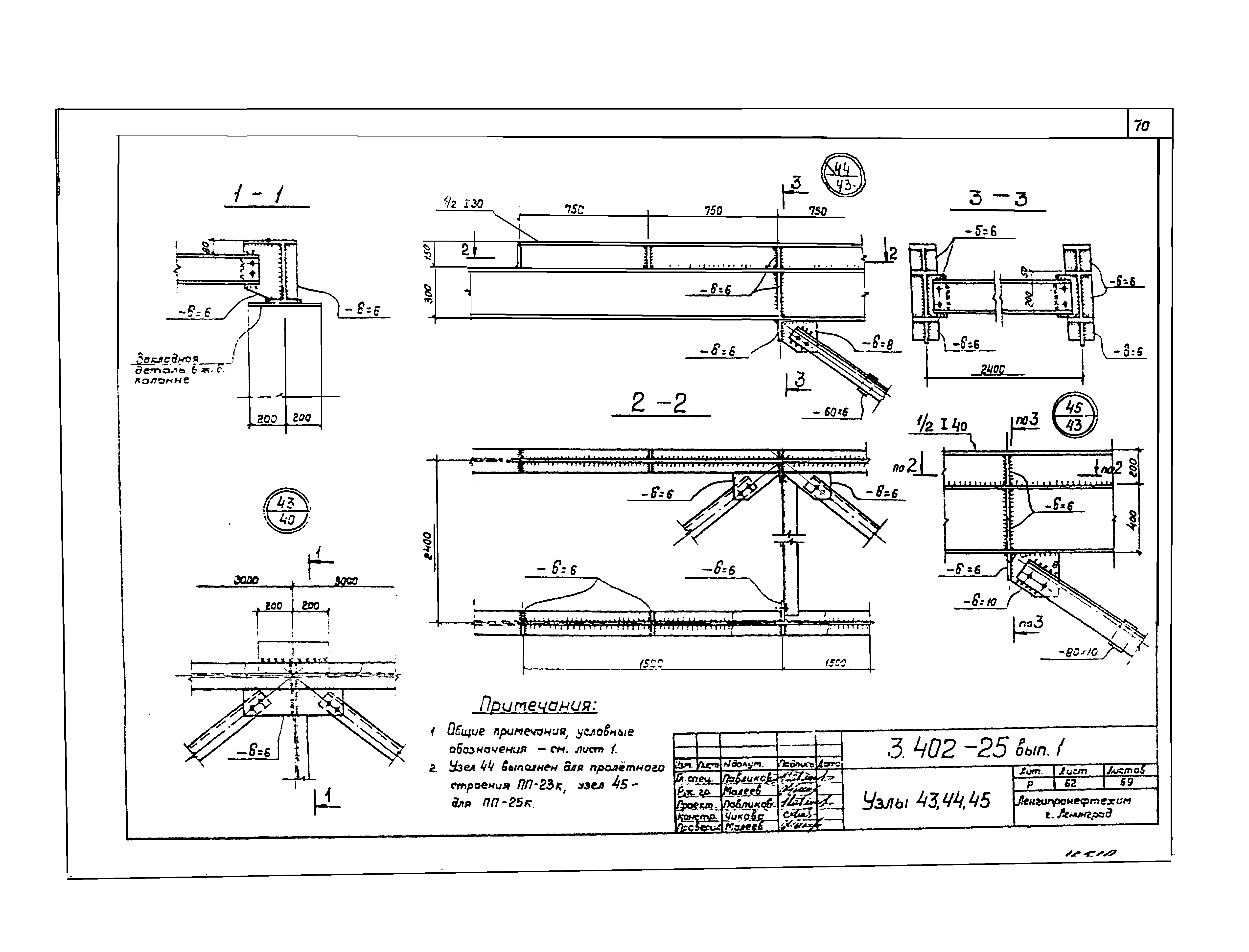
| Оглавление: | Пояснительная записка Общие примечания. Условные обозначения Номенклатура пролетных строений типа ПФ, ПШ и П-1 - П-4 Номенклатура пролетных строений П-5к - П-21к Номенклатура пролетных строений П-22 - П-39к Номенклатура пролетных строений П-40 - П-49к; ПВ-1 - ПВ-4 Номенклатура пролетных строений ПВ-5 - П7; ПП-1 - ПП-13 Номенклатура пролетных строений ПП-14 - ПП-25К4 Пролетные строения L=18,0 м ПФ-1, ПФ-2 Пролетные строения L=18,0 м ПФ-3 Пролетные строения L=18,0 м ПФ-4, ПФ-5 Пролетные строения L=18,0 м ПФ-6, ПФ-7 Сечения и усилия элементов ферм Ф-1, Ф-2, Ф-3 Сечения и усилия элементов ферм Ф-4, Ф-5, Ф-6,7 Пролетные строения L=18,0 м ПШ-1 Пролетные строения L=18,0 м ПШ-2 Пролетные строения L=18,0 м ПШ-3 Пролетные строения L=18,0 м П-1 - П-4 Пролетные строения L=18,0 м П-5к - П-8к Пролетные строения L=18,0 м П-9, П-10к Пролетные строения L=18,0 м П-11, П-12к Пролетные строения L=18,0 м П-13 - П-15к Пролетные строения L=18,0 м П-16, П-17к Пролетные строения L=12,0 м П-18 - П-20 Пролетные строения L=12,0 м П-21к - П23к Пролетные строения L=12,0 м П-24, П-25 Пролетные строения L=12,0 м П-26 - 28 Пролетные строения L=12,0 м П-29к - П-31к Пролетные строения L=12,0 м П-32, П-33к Пролетные строения L=9,0 м П-34 - П-39к Пролетные строения L=9,0 м П-40, П-41к Пролетные строения L=9,0 м П-42 - П-47к Пролетные строения L=9,0 м П-48, П-49к Пролетные строения L=12,0 м ПВ-1; ПВ-2 Пролетные строения L=12,0 м ПВ-3 - ПВ-5 Пролетные строения L=12,0 м; 9,0 м ПВ-6; ПВ-7 Пролетные строения L=18,0 м ПП-1 - ПП-4 Пролетные строения L=18,0 м ПП-5 - ПП-7 Пролетные строения L=18,0 м ПП-8; ПП-9 Пролетные строения L=18,0 м ПП-10 - ПП-13 Пролетные строения L=18,0 м ПП-14 - ПП-16 Пролетные строения L=18,0 м ПП-17; ПП-18 Пролетные строения L=18,0 м ПП-19к - ПП-22к Пролетные строения L=18,0 м ПП-23к - ПП-25к Узлы 1, 2 Узел 3 Узлы 4, 5 Узлы 6, 7, 8 Узлы 9, 10 Узлы 11 Узлы 12, 13, 14 Узлы 15, 16, 17 Узлы 18, 19, 20 Узлы 21, 22, 23 Узлы 24, 25, 26, 27 Узел 28 Узлы 29, 30 Узлы 31, 32 Узлы 33, 34, 35 Узлы 36, 37 Узлы 38, 39 Узлы 40, 41, 42 Узлы 43, 44, 45 Рекомендации по подбору типа пролетного строения Спецификация стали конструкций пролетных строений Спецификация стали конструкций пролетных строений (продолжение) |
| Разработан: | Ленгипронефтехим |
| Утверждён: | 05.09.1979 В/О Нефтехим (54) |













































































