Скачать Серия 3.503.3-83 Выпуск 1. Пролетные строения. Чертежи КМДата актуализации: 01.01.2021
|
| Обозначение: | Серия 3.503.3-83 |
| Обозначение англ: | Series 3.503.3-83 |
| Статус: | действует |
| Название рус.: | Выпуск 1. Пролетные строения. Чертежи КМ |
| Дата добавления в базу: | 01.09.2013 |
| Дата актуализации: | 01.01.2021 |
| Дата введения: | 20.11.1987 |
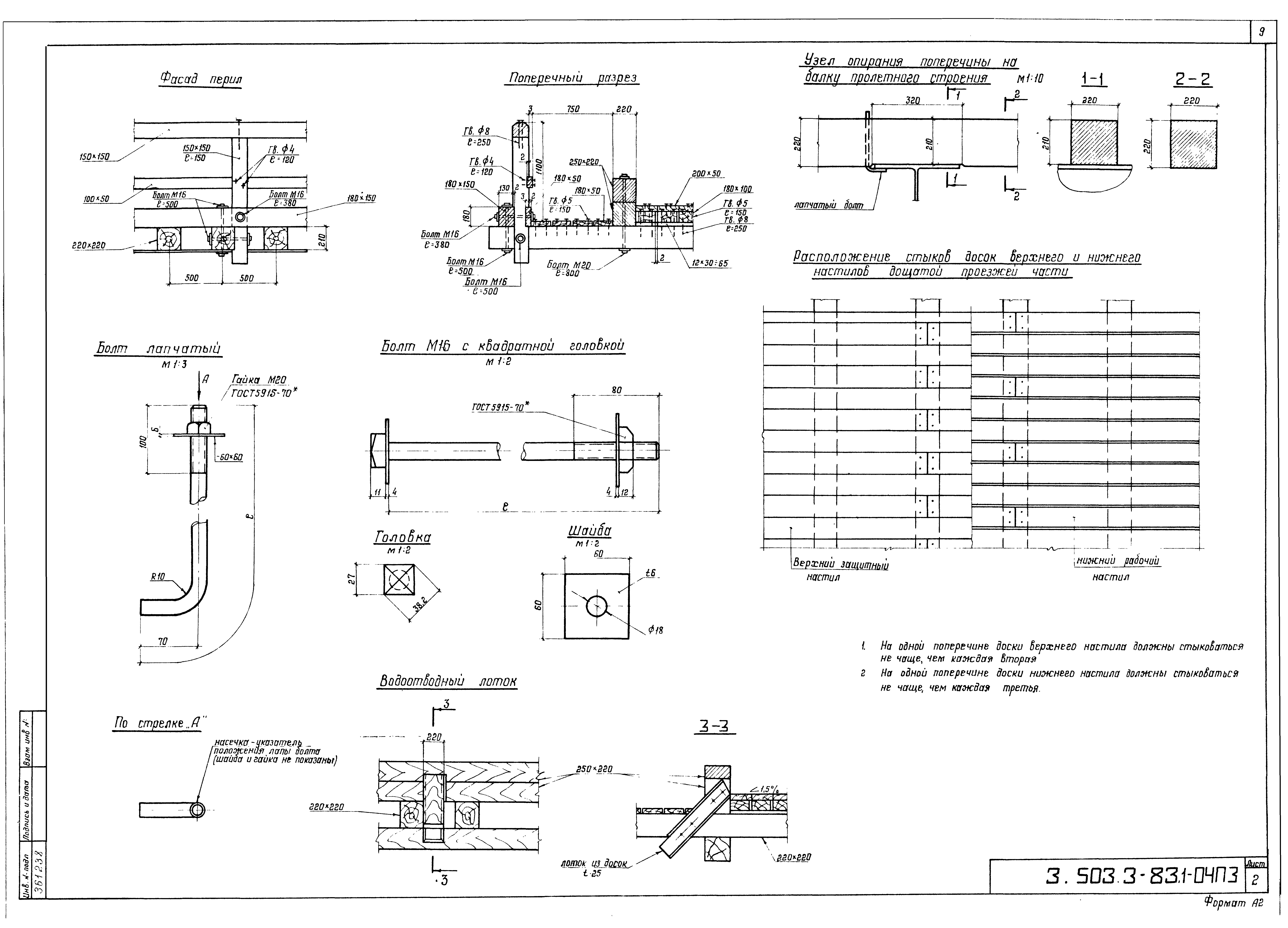
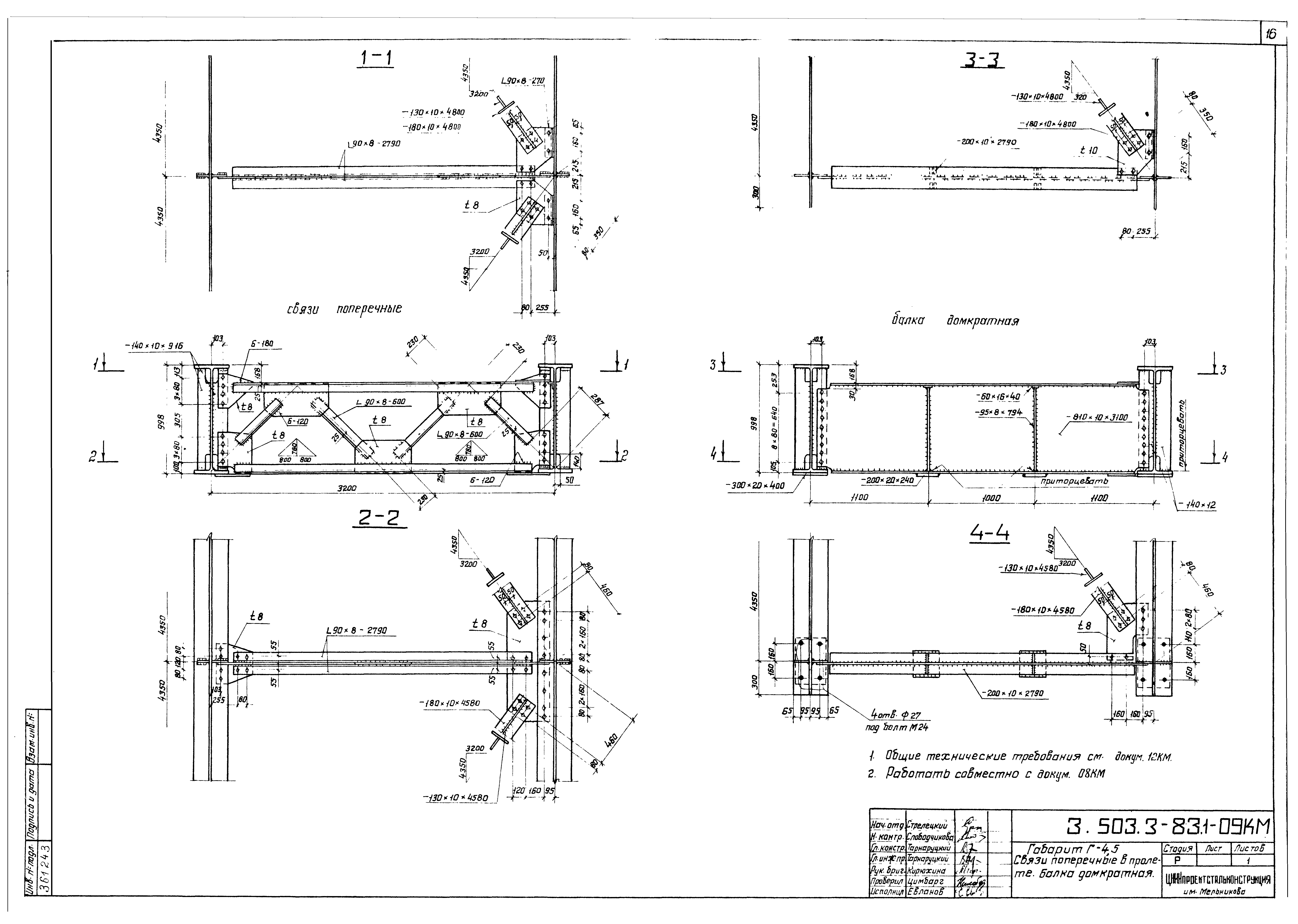
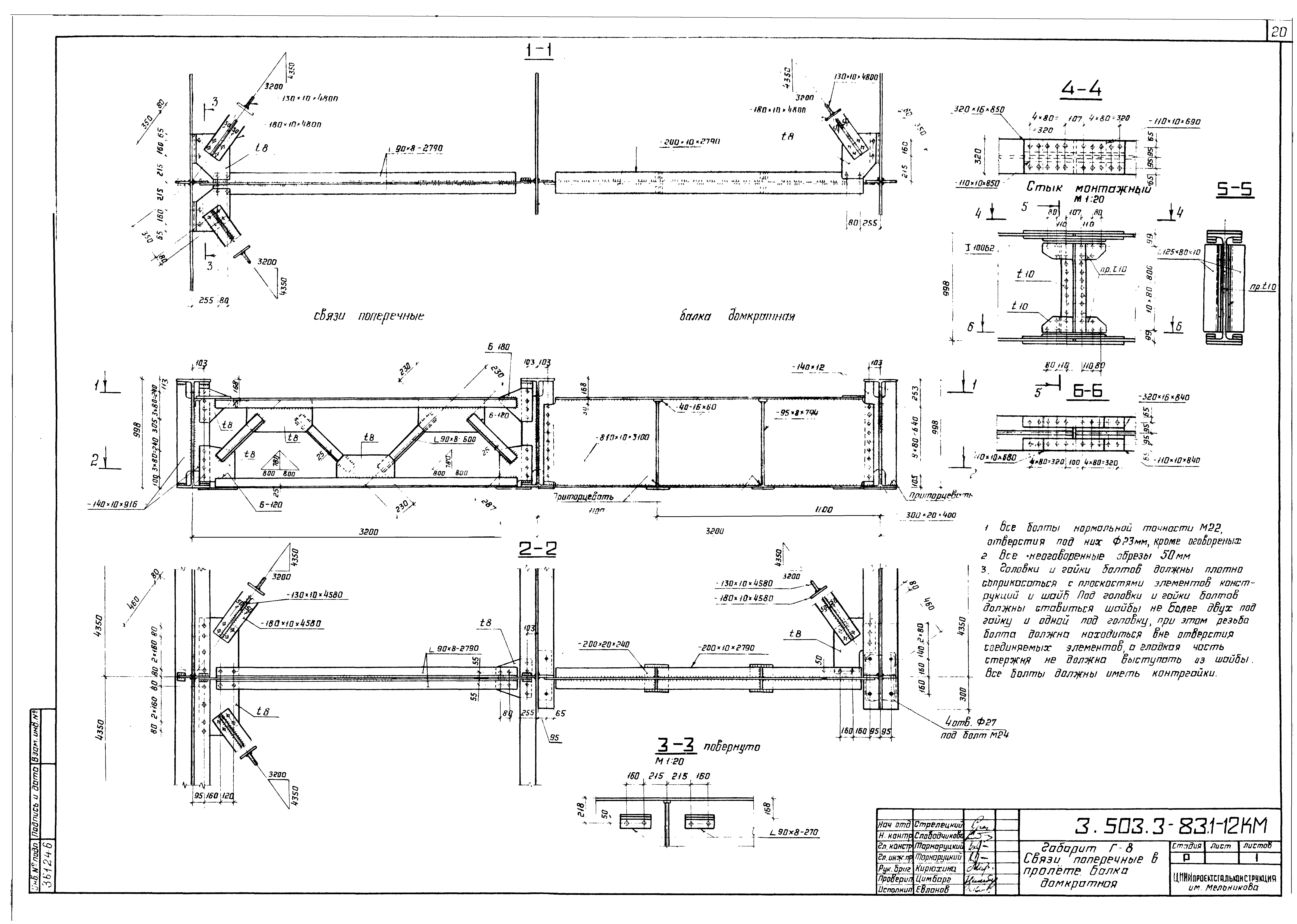
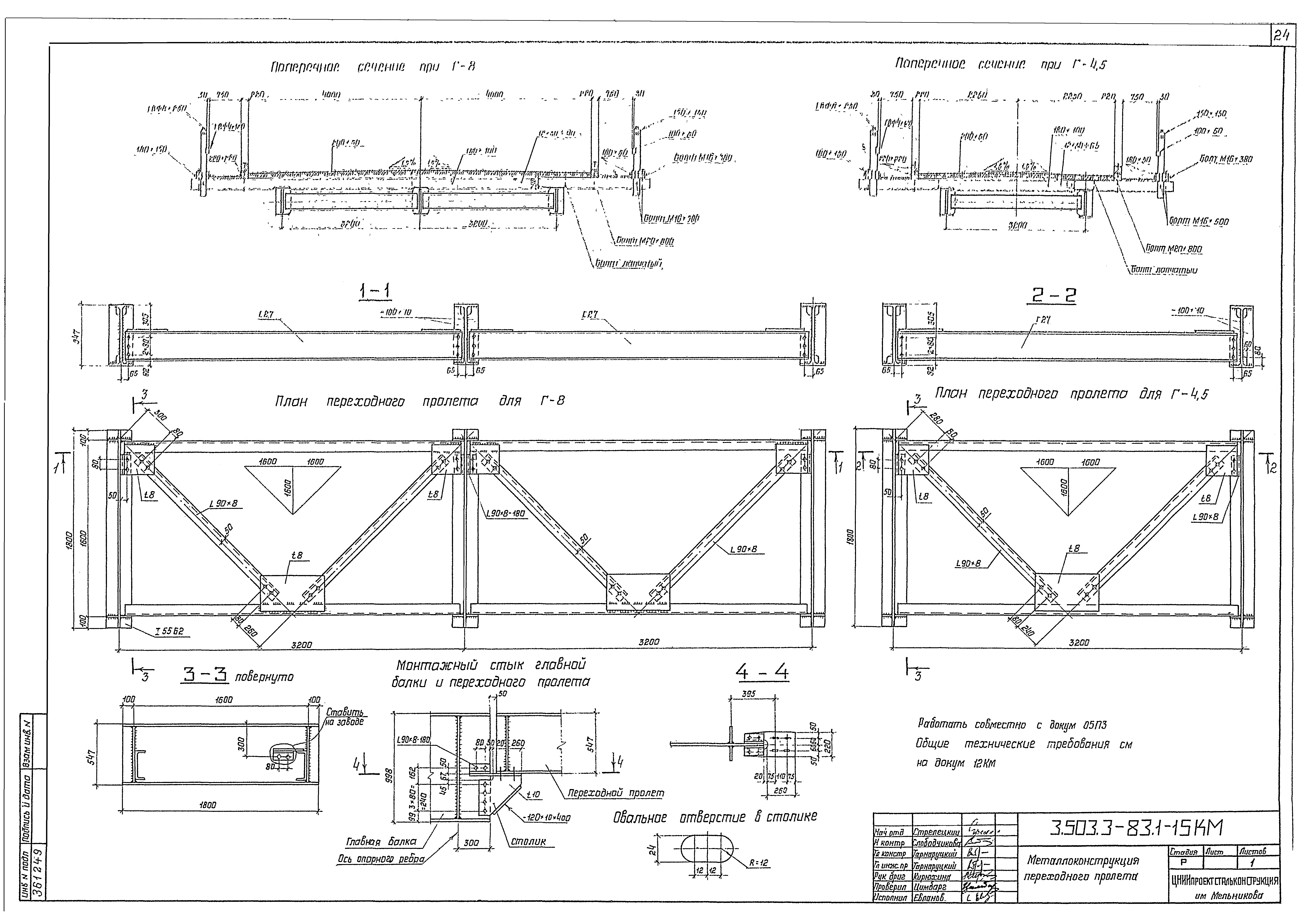
| Оглавление: | 3.503.3-83.1-01ПЗ Пояснительная записка. Общие данные 3.503.3-83.1-02ПЗ Общий вид пролетного строения. Габарит Г-4,5. Основные данные 3.503.3-83.1-03ПЗ Общий вид пролетного строения. Габарит Г-8. Основные данные 3.503.3-83.1-04ПЗ Детали мостового полотна. Спецификация лесоматериала. Спецификация металлоизделий 3.503.3-83.1-05ПЗ Мостовое полотно переходного пролета 3.503.3-83.1-06ПЗ Монтаж пролетных строений надвижкой 3.503.3-83.1-07ПЗ Расчетный лист 3.503.3-83.1-08КМ Габарит Г-4,5. Общий вид металлоконструкции 3.503.3-83.1-09КМ Габарит Г-4,5. Связи поперечные в пролете. Балка домкратная 3.503.3-83.1-10КМ Габарит Г-4,5. Техническая спецификация металла. Ведомость металлоконструкции по видам профилей. Сводная ведомость монтажных болтов , гаек и шайб 3.503.3-83.1-11КМ Габарит Г-8. Общий вид металлоконструкции 3.503.3-83.1-12КМ Габарит Г-8. Связи поперечные в пролете. Балка домкратная 3.503.3-83.1-13КМ Габарит Г-8. Техническая спецификация металла. Ведомость металлоконструкции по видам профилей. Сводная ведомость монтажных болтов, гаек и шайб 3.503.3-83.1-14КМ Временный монтажный стык при надвижке пролетных строений. Опорные части 3.503.3-83.1-15КМ Временный монтажный стык при надвижке пролетных строений. Опорные части 3.503.3-83.1-16КМ Габарит Г-4,5. Переходной пролет. Техническая спецификация металла. Ведомость металлоконструкции по видам профилей. Сводная ведомость монтажных болтов, гаек и шайб 3.503.3-83.1-17КМ Габарит Г-8. Переходной пролет. Техническая спецификация металла. Ведомость металлоконструкции по видам профилей. Сводная ведомость монтажных болтов, гаек и шайб |
| Разработан: | Гипролестранс ЦНИИпроектстальконструкция Госстроя |
| Утверждён: | 12.11.1987 Минлесбумпром СССР (USSR Minlesbumprom 182) |


























