Скачать Типовой проект 501-166 Выпуск 3. Металлические пролетные строения пролетами 44 и 55 м. Рабочие чертежиДата актуализации: 01.01.2021
|
| Обозначение: | Типовой проект 501-166 |
| Обозначение англ: | 501-166 |
| Статус: | действует |
| Название рус.: | Выпуск 3. Металлические пролетные строения пролетами 44 и 55 м. Рабочие чертежи |
| Дата добавления в базу: | 01.09.2013 |
| Дата актуализации: | 01.01.2021 |
| Дата введения: | 19.06.1974 |
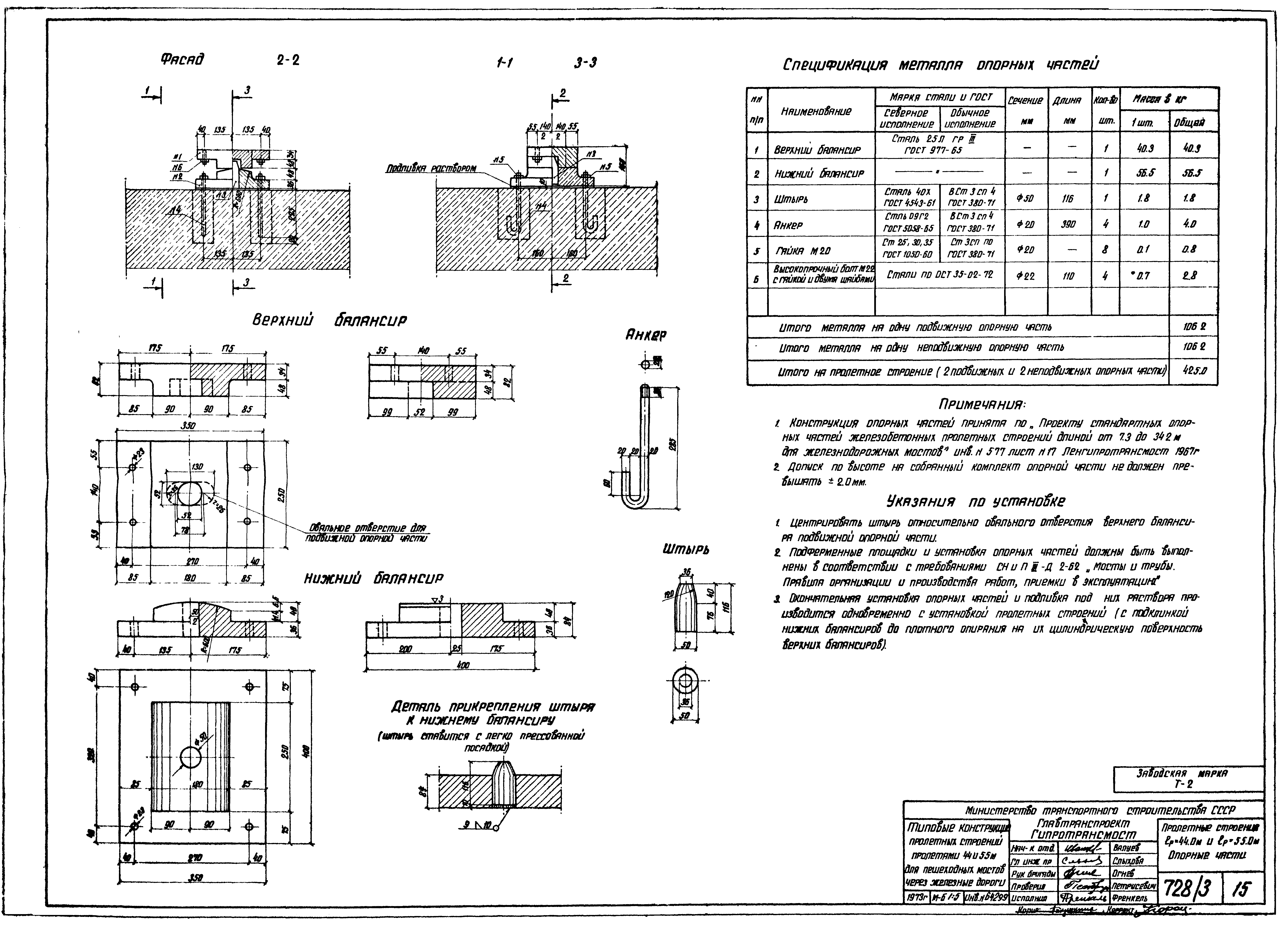
| Оглавление: | Состав проекта. Условные обозначения Пояснительная записка Паспорт пролетного строения lp=44,0 м Пролетное строение lp=44,0 м. Главные фермы. Узлы Н0; В0; Н1 Пролетное строение lp=44,0 м. Главные фермы. Узлы В1; Н2; В2 Пролетное строение lp=44,0 м. Главные фермы. Узлы Н3; В3; Н4 Паспорт пролетного строения lp=55,0 м Пролетное строения lp=55,0 м. Главные фермы. Узлы Н0; В0; Н1 Пролетное строение lp=55,0 м. Главные фермы. Узлы В1; Н2; В2 Пролетное строение lp=55,0 м. Главные фермы. Узлы Н3; В3; Н4 Пролетное строение lp=55,0 м. Главные фермы. Узлы В4; Н5; В5 Пролетные строения lp=44,0 м и lp=55,0 м. Связи главных фермы Пролетные строения lp=44,0 м и lp=55,0 м. Опорные части Пролетное строение lp=44,0 м. Перила. Маркировочная схема плит Пролетное строение lp=55,0 м. Перила. Маркировочная схема плит Пролетное строение lp=44,0 м. Спецификация металла Пролетное строение lp=55,0 м. Спецификация металла Пролетное строение lp=44,0 м. Расчетные усилия и сечения элементов главных ферм Пролетное строение lp=55,0 м. Расчетные усилия и сечения элементов главных ферм Пролетные строения lp=44,0 м и lp=55,0 м. Расчет продольных связей Пролетные строения lp=44,0 м и lp=55,0 м. Спецификация перил Деталировочные чертежи железобетонных плит прохожей части Опалубочный чертеж плит П-2 и П-3. Закладные детали Опалубочный чертеж плиты П-1 Арматурные чертежи плит П-2 и П-3 Арматурные чертеж плиты П-1 Спецификация арматуры и закладных деталей Схемы пролетных строений Варианты узлов при изменении длины панели Пролетные строения lp=44,0 м и lp=55,0 м. Опорные части. Сварной вариант |
| Разработан: | Гипротрансмост |
| Утверждён: | 19.06.1974 МПС (Ministry of Railroads П-17355) |






























