Скачать Типовой проект 501-81 Путепроводы тоннельного типа под один и два железнодорожных пути на пересечении одного и двух железнодорожных путей под углами 15-90 градусов (с разработкой проекта организации строительства). Рабочие чертежиДата актуализации: 01.01.2021
|
| Обозначение: | Типовой проект 501-81 |
| Обозначение англ: | 501-81 |
| Статус: | действует |
| Название рус.: | Путепроводы тоннельного типа под один и два железнодорожных пути на пересечении одного и двух железнодорожных путей под углами 15-90 градусов (с разработкой проекта организации строительства). Рабочие чертежи |
| Дата добавления в базу: | 01.09.2013 |
| Дата актуализации: | 01.01.2021 |
| Дата введения: | 01.03.1970 |
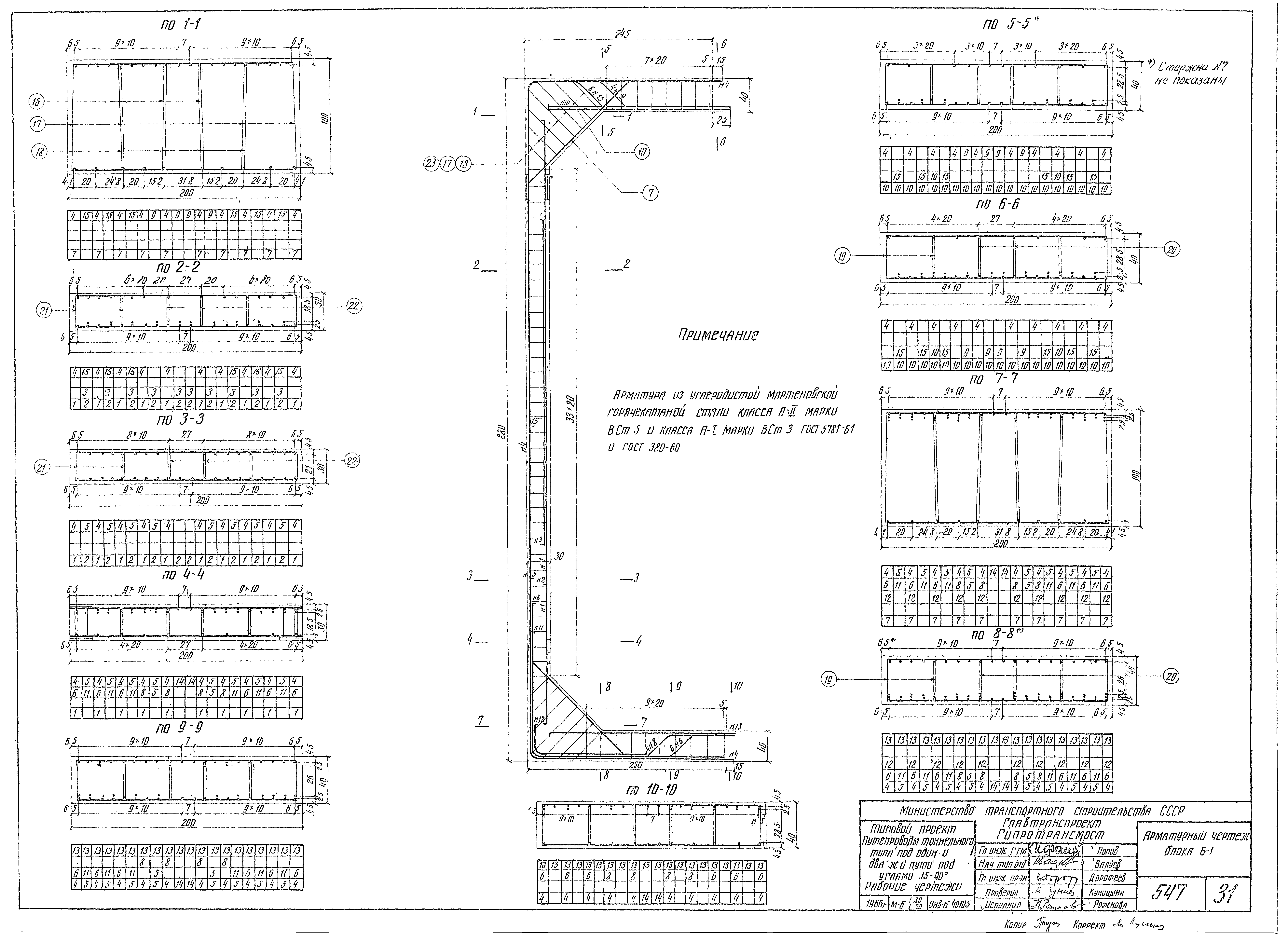
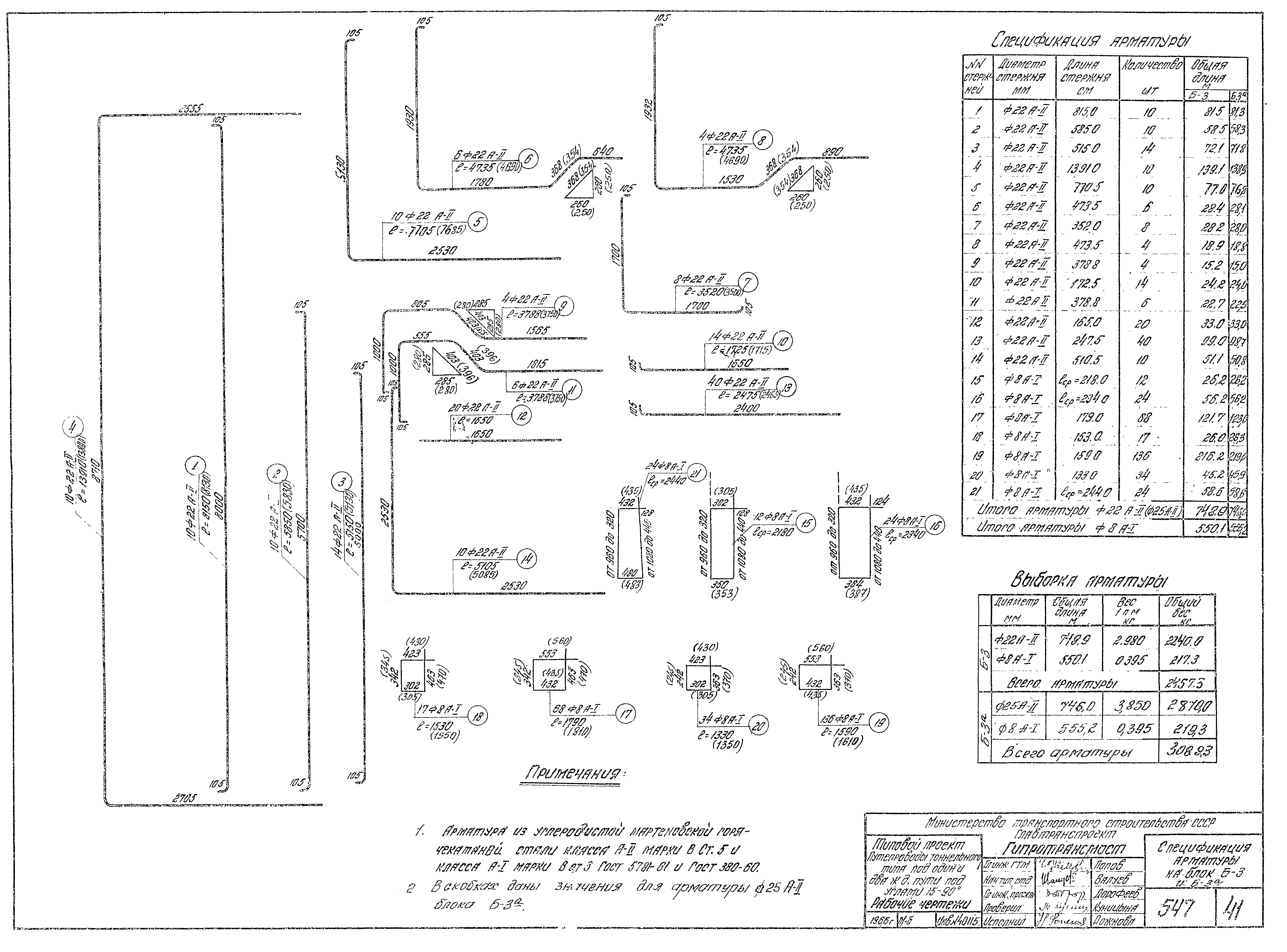
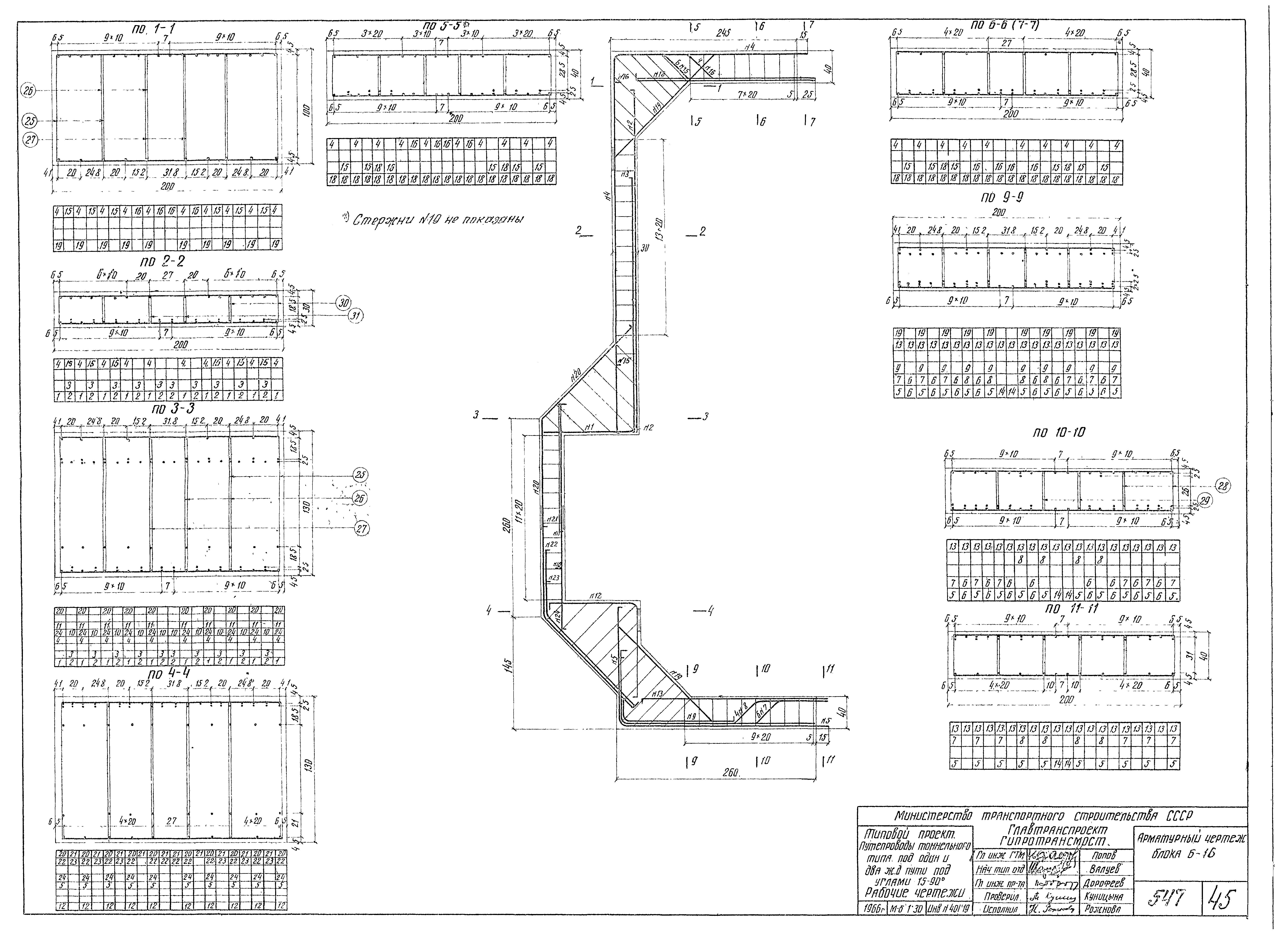
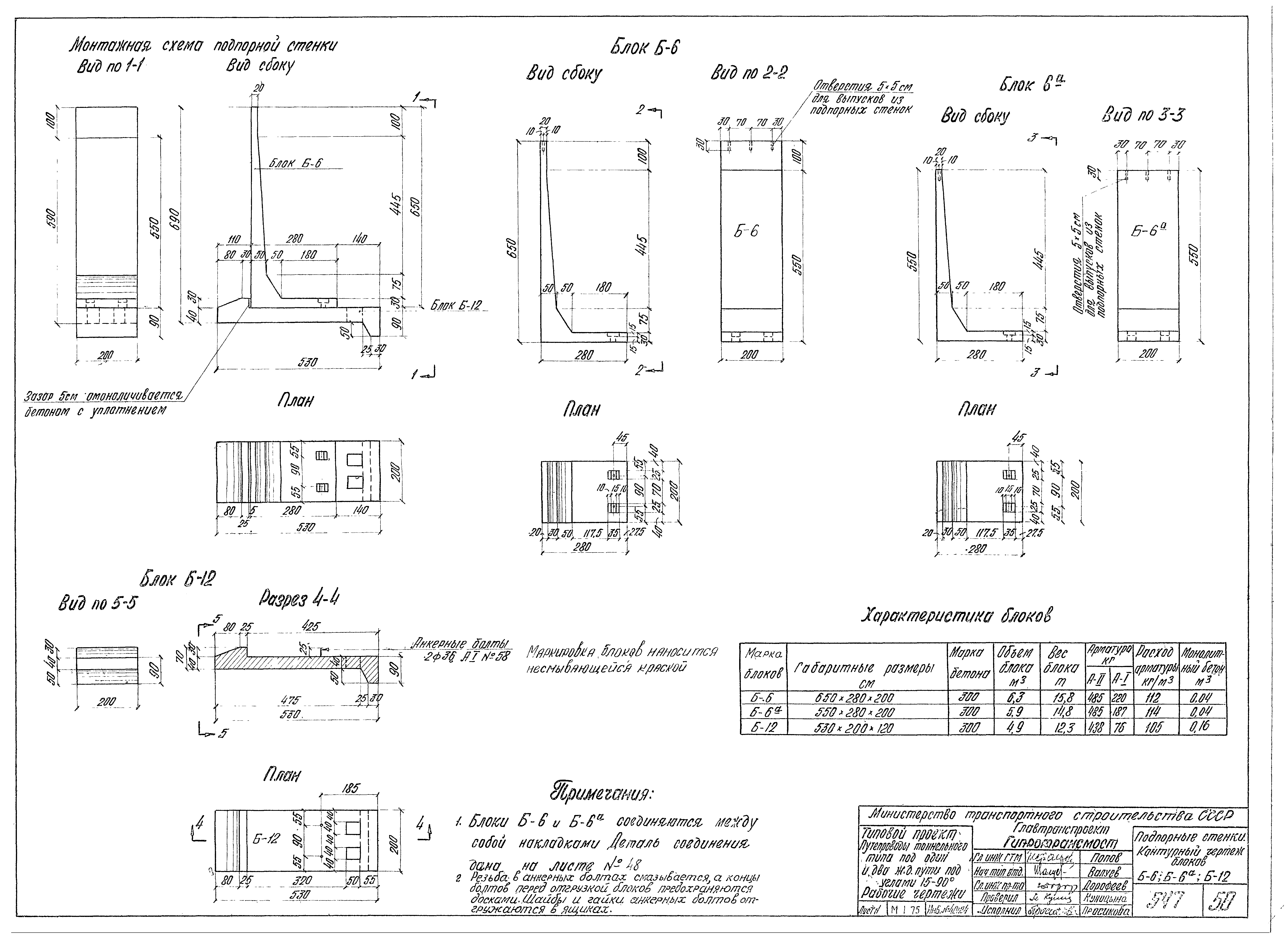
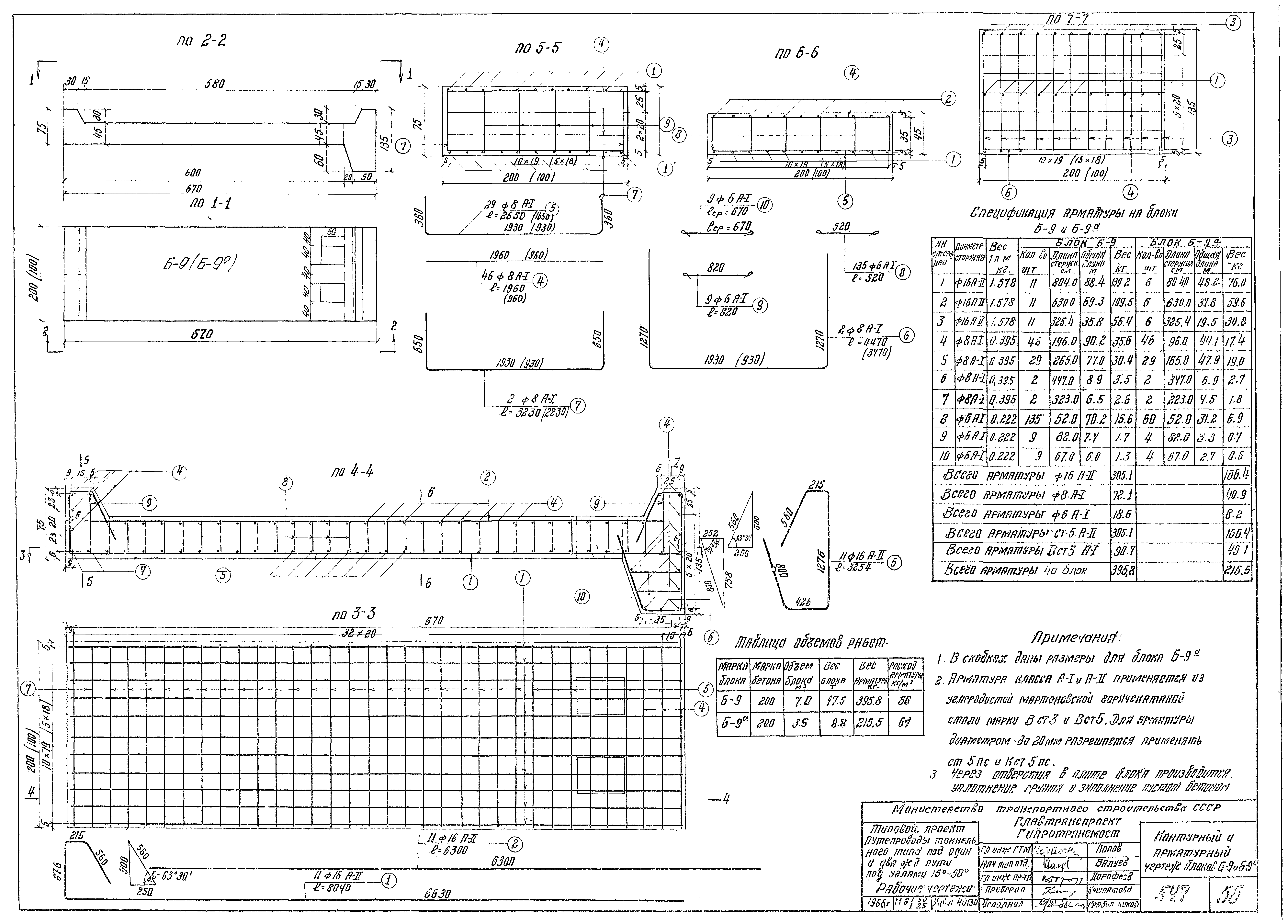
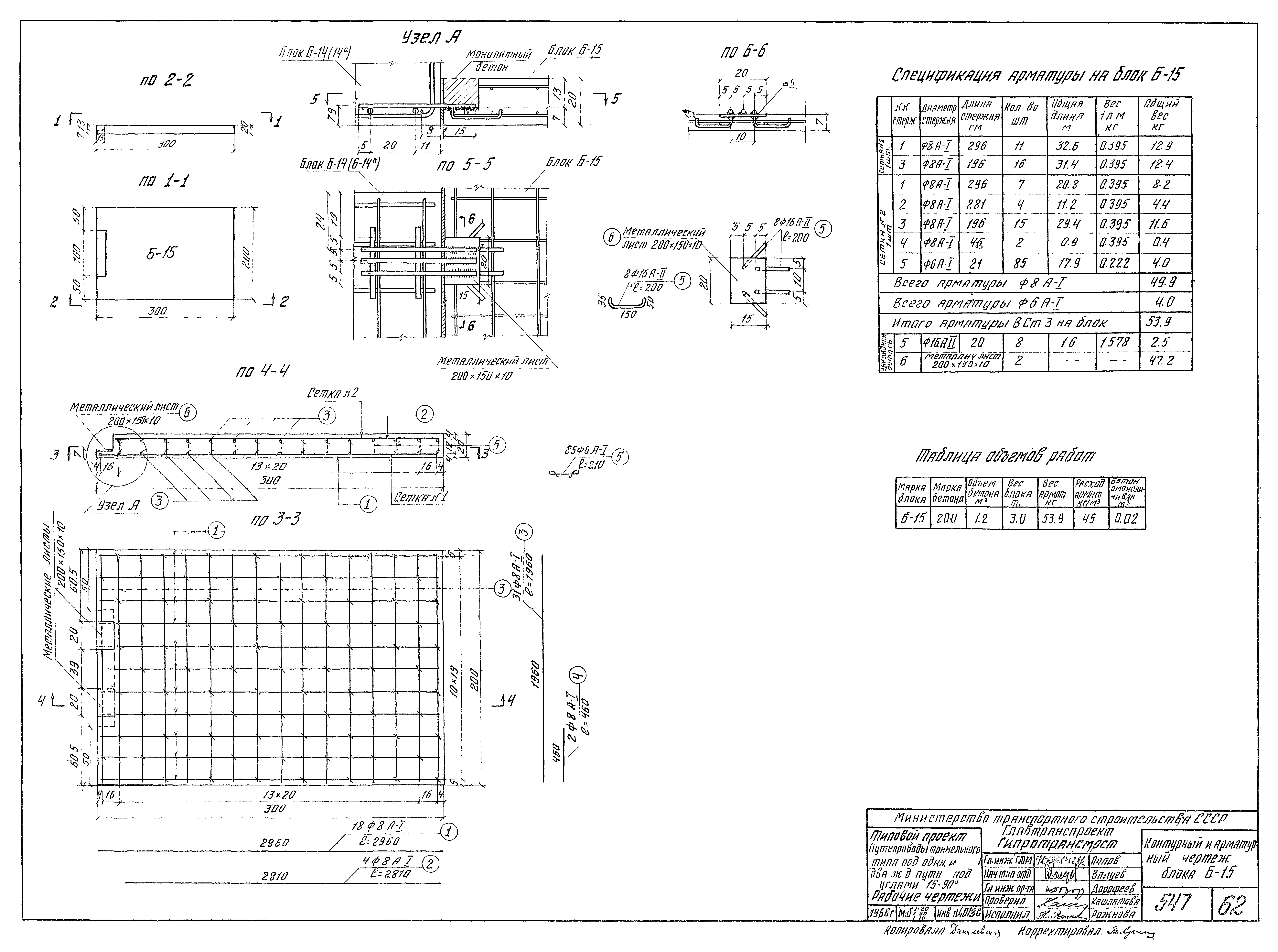
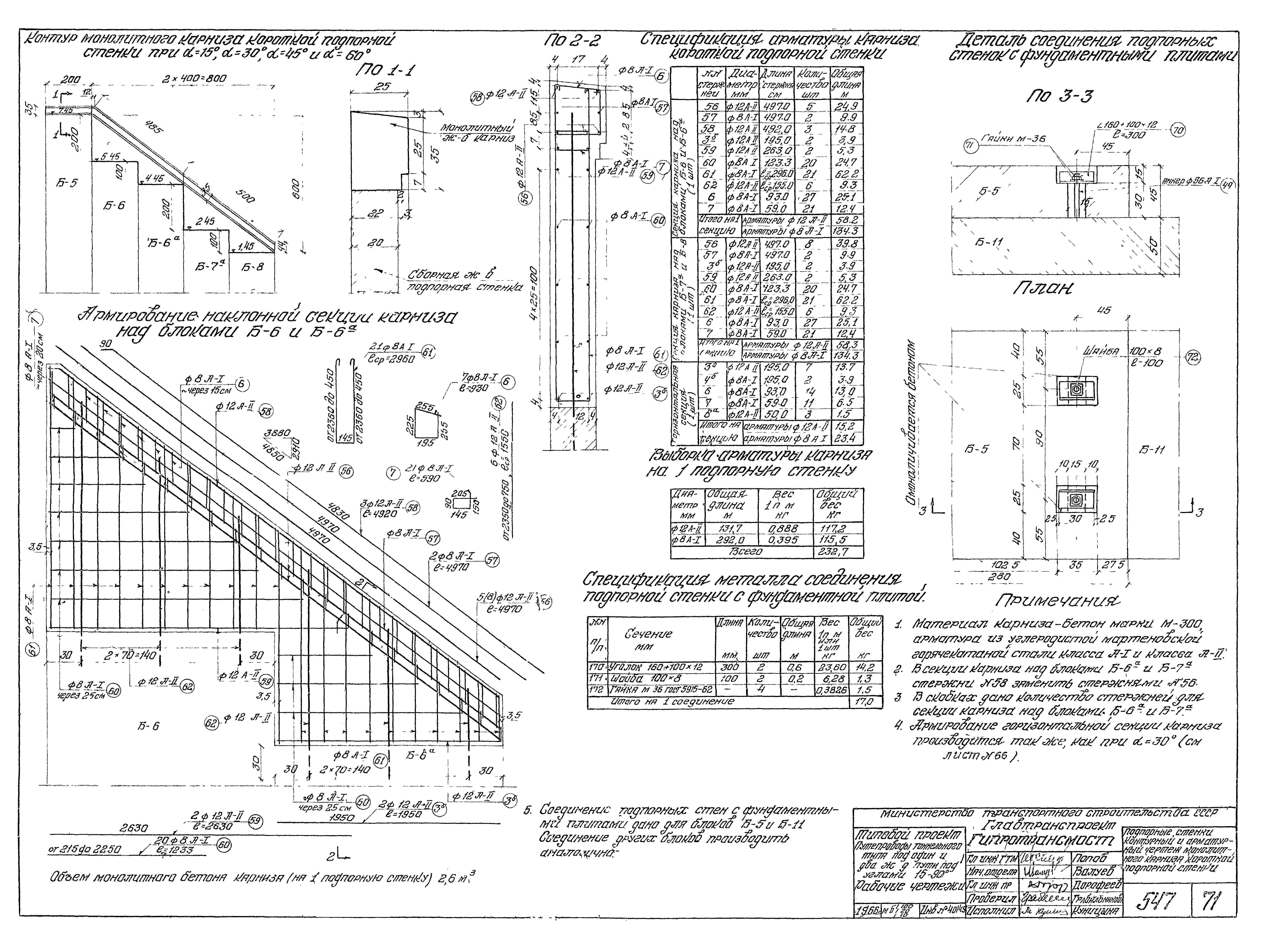
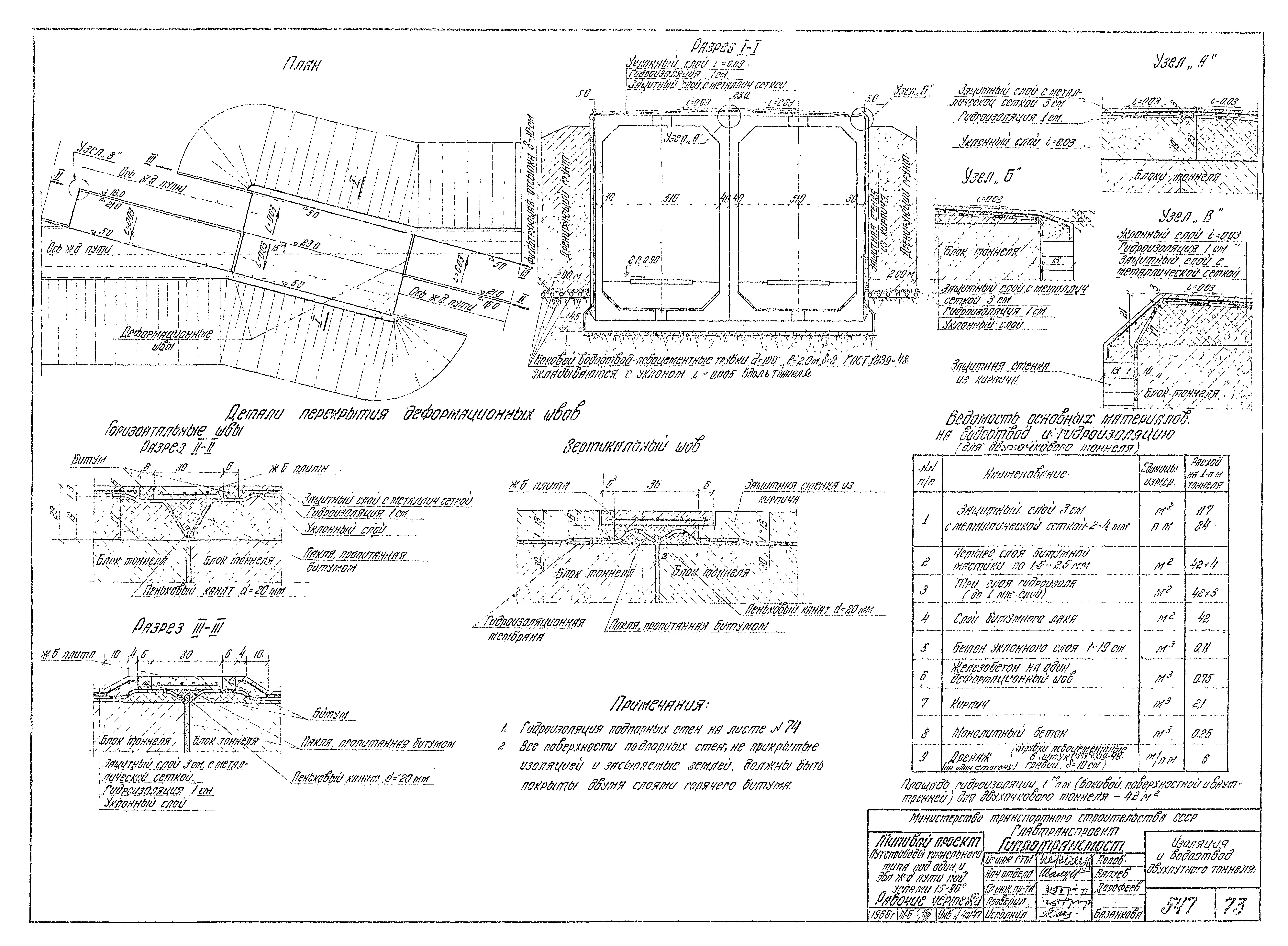
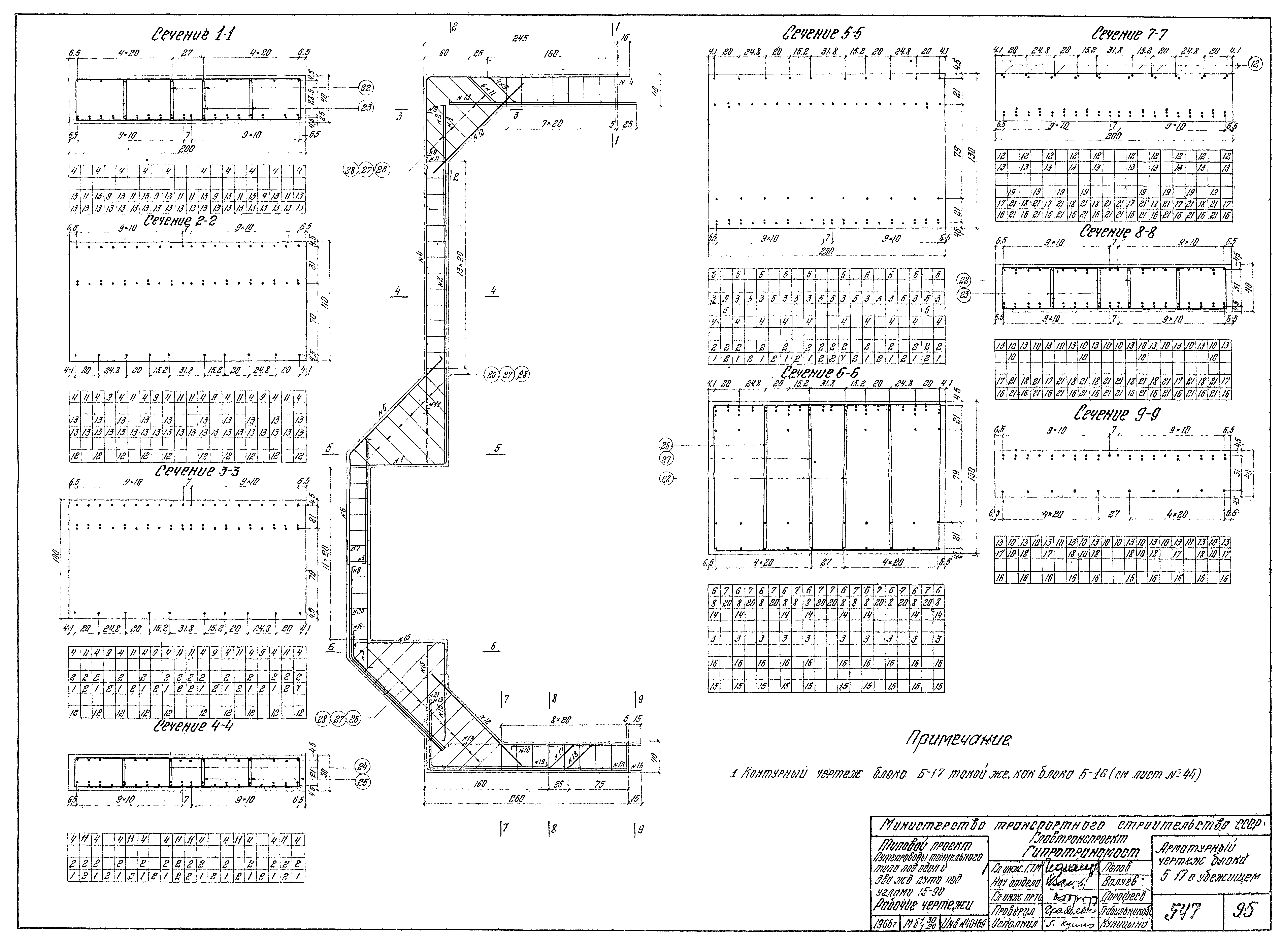
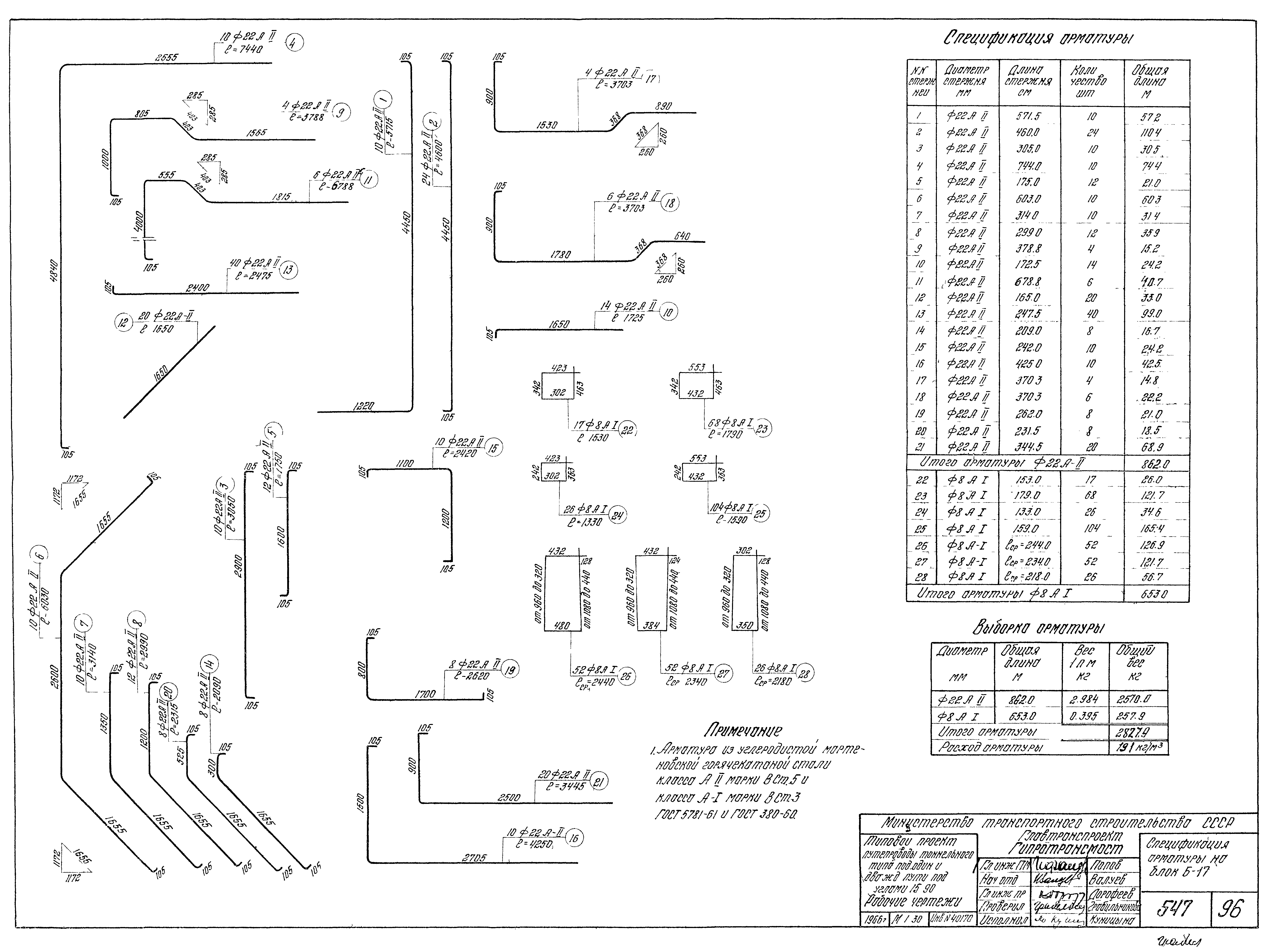
| Оглавление: | Пояснительная записка Основные данные по путепроводам по схемам 1/1 Основные данные по путепроводам по схемам 1/2 Путепровод тоннельного типа по схеме 1/1 под углом=15 градусов Путепровод тоннельного типа по схеме 1/1 под углом=30 градусов Путепровод тоннельного типа по схеме 1/1 под углом=45 градусов Путепровод тоннельного типа по схеме 1/1 под углом=60 градусов Путепровод тоннельного типа по схеме 1/1 под углом=90 градусов Путепровод тоннельного типа по схеме 2/1 под углом=15 градусов Путепровод тоннельного типа по схеме 3/1 под углом=15 град Путепровод тоннельного типа по схеме 1/1 под углом=15 градусов на кривой R=600 м Путепровод тоннельного типа по схеме 1/2 под углом=15 градусов Путепровод тоннельного типа по схеме 1/2 под углом=30 градусов Путепровод тоннельного типа по схеме 1/2 под углом=45 градусов Путепровод тоннельного типа по схеме 1/2 под углом=60 градусов Путепровод тоннельного типа по схеме 1/2 под углом=90 градусов Определение длины тоннеля Однопутный тоннель. Монтажные схемы блоков тоннеля Двухпутный тоннель. Монтажные схемы блоков тоннеля Монтажные схемы подпорных стенок при углах =15 и 30 градусов Монтажные схемы подпорных стенок при углах =45, 60 и 90 градусов Однопутные тоннели. Монтажные схемы фундаментных плит тоннелей Двухпутные тоннели. Монтажные схемы фундаментных плит тоннелей Монтажная схема блоков тоннеля на кривой при альфа=15 градусов Монтажные схемы блоков однопутных тоннелей на кривых при альфа=30 - 90 градусов Монтажные схемы блоков двухпутных тоннелей на кривых при альфа=15 -30 градусов Монтажные схемы блоков двухпутных тоннелей на кривых при альфа=45 -90 градусов Контурный чертеж блоков Б-1, Б-2 и Б-1а Арматурный чертеж блока Б-1 Спецификация арматуры на блок Б-1 Арматурный чертеж блока Б-2 Спецификация арматуры на блок Б-2 Контурный чертеж блоков Б-1 и Б-2 на кривой Арматурный чертеж блока Б-1а Спецификация арматуры на блок Б-1а Контурный чертеж двухпролетной рамы Контурный чертеж блоков Б-3, Б-4, Б-3а, Б-4а и Б-2а Арматурный чертеж блока Б-3 и Б-3а Спецификация арматуры на блок Б-3 и Б-3а Арматурный чертеж блока Б-4 и Б-4а Спецификация арматуры на блок Б-4 и Б-4а Контурный чертеж блока Б-16 с убежищем Арматурный чертеж блока Б-16 с убежищем Спецификация арматуры на блок Б-16 Стыки ригелей блоков Б-1, Б-2, Б-3 и Б-4 Соединение блоков рам вдоль и поперек тоннеля и подпорных стенок Подпорные стенки. Контурный чертеж блоков Б-5, Б-5а и Б-11 Подпорные стенки. Контурный чертеж блоков Б-6, Б-6а и Б-12 Подпорные стенки. Контурный чертеж блоков Б-7, Б-7а, Б-8 и Б-8а Арматурный чертеж блоков Б-5 и Б-5а Арматурный чертеж блоков Б-6 и Б-6а Арматурный чертеж блоков Б-7 и Б-7а Арматурный чертеж блоков Б-8 и Б-8а Контурный и арматурный чертеж блоков Б-9 и Б-9а Контурный и арматурный чертеж блоков Б-10 и Б-10а на кривой Арматурный чертеж блока Б-11 Арматурный чертеж блока Б-12 Контурный и арматурный чертеж блоков Б-13 и Б-13а Контурный и арматурный чертеж блоков Б-14 и Б-14а Контурный и арматурный чертеж блока Б-15 Контурный чертеж блоков Б-6у с убежищем Арматурный чертеж блоков Б-6у с убежищем Подпорные стенки. Контурный и арматурный чертеж монолитного карниза при альфа=15 градусов Подпорные стенки. Контурный и арматурный чертеж монолитного карниза при альфа=30 градусов Подпорные стенки. Контурный и арматурный чертеж монолитного карниза при альфа=45 градусов Подпорные стенки. Контурный и арматурный чертеж монолитного карниза при альфа=60 градусов Подпорные стенки. Контурный и арматурный чертеж монолитного карниза при альфа=90 градусов Подпорные стенки. Контурный и арматурный чертеж монолитного карниза при альфа=90 градусов (продолжение) Подпорные стенки. Контурный и арматурный чертеж монолитного карниза короткой стенки Изоляция и водоотвод однопутного тоннеля Изоляция и водоотвод двухпутного тоннеля Портал тоннелей и изоляция подпорных стенок Строповочные устройства в блоках тоннелей, подпорных стенок и фундаментных плитах Арматурный чертеж блока Б-2а Спецификация арматуры на блок Б-2а Подвеска проводов контактной сети под путепроводом Примерные схемы расстановки опор контактной сети в однопутных путепроводах Примерные схемы расстановки опор контактной сети в двухпутных путепроводах Монтаж блоков тоннелей, сооружаемых на пересечениях ж/д путей в нулевых отметках Временные обходы при сооружении тоннелей пересечений по схеме 1/1 под углами альфа=15 градусов, 30 градусов, 45 градусов и 60 градусов Временные обходы при сооружении тоннелей пересечений по схеме 1/1 под углом альфа=90 градусов Технологические правила и график сооружения однопутного путепровода Технологические правила и график сооружения двухпутного путепровода Изготовление и монтаж блоков тоннелей на строительной площадке (вариант) Монтаж блоков тоннелей, сооружаемых на пересечениях ж/д путей, расположенных на насыпи Монтаж блоков тоннелей, сооружаемых на пересечениях ж/д путей, расположенных на насыпи (продолжение) Временный обходной путь при сооружении путепровода на пересечении ж/д путей, расположенных на насыпи Временный двухпутный обход при сооружении путепровода на пересечении ж/д путей, расположенных на насыпи Порядок укладки блоков на ж/д платформы Выборка арматуры Расчетный лист подпорных стенок Расчетный лист блоков тоннеля Арматурный чертеж блока Б-17 с убежищем Спецификация арматуры на блок Б-17 Дренирующий грунт за путепроводом. Поперечные профили при альфа=15 - 30 градусов Дренирующий грунт за путепроводом. Поперечные профили при альфа=45 - 90 градусов Стыки ригелей блоков Б-3а и Б-4а. Технология сварки стержней арматуры ванным способом Электроосвещение путепроводов под один путь Электроосвещение путепроводов под два пути |
| Разработан: | Гипротрансмост |
| Утверждён: | 17.08.1967 Министерство путей сообщения СССР (USSR Ministry of Railroads П-21341) |




































































































