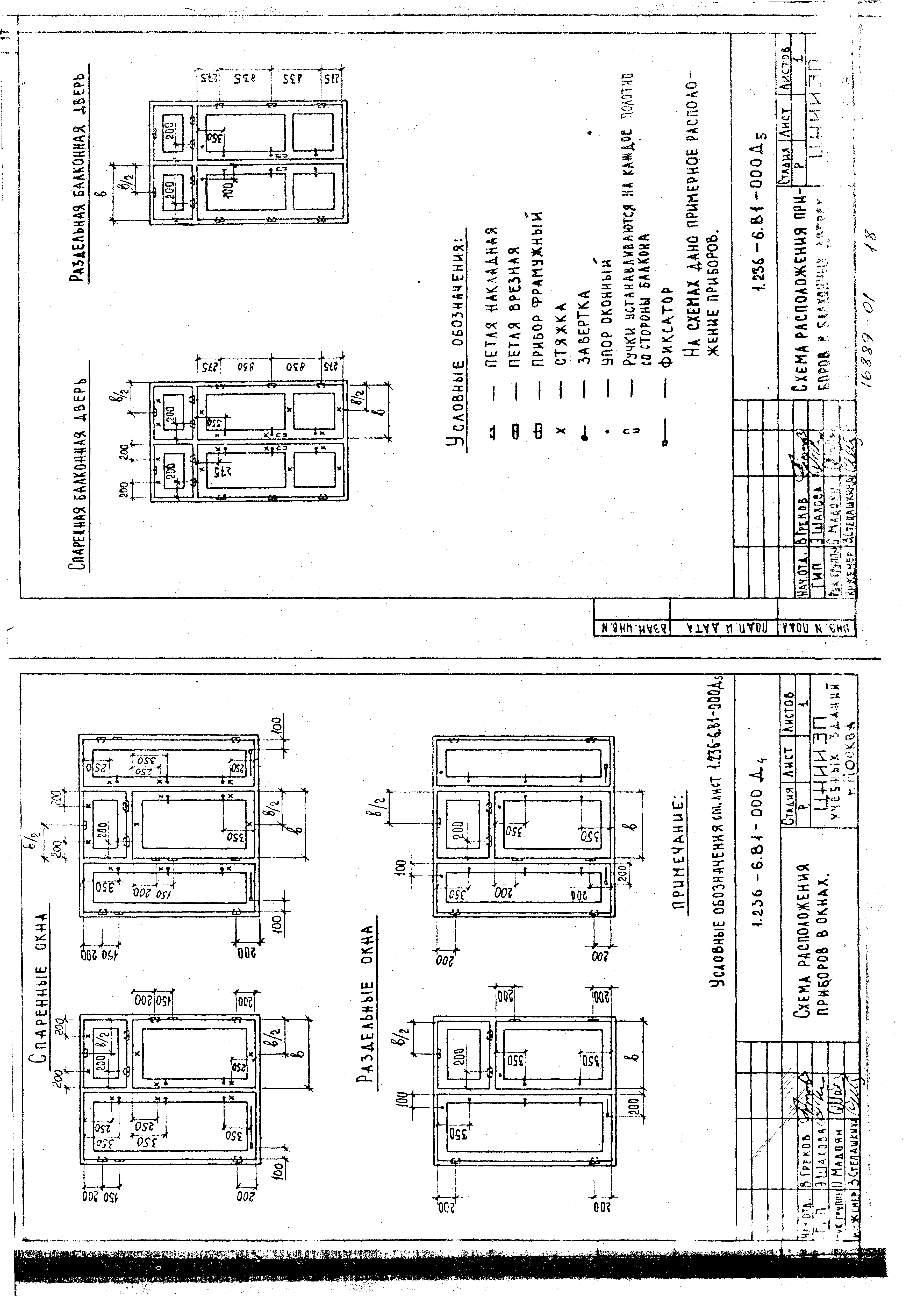
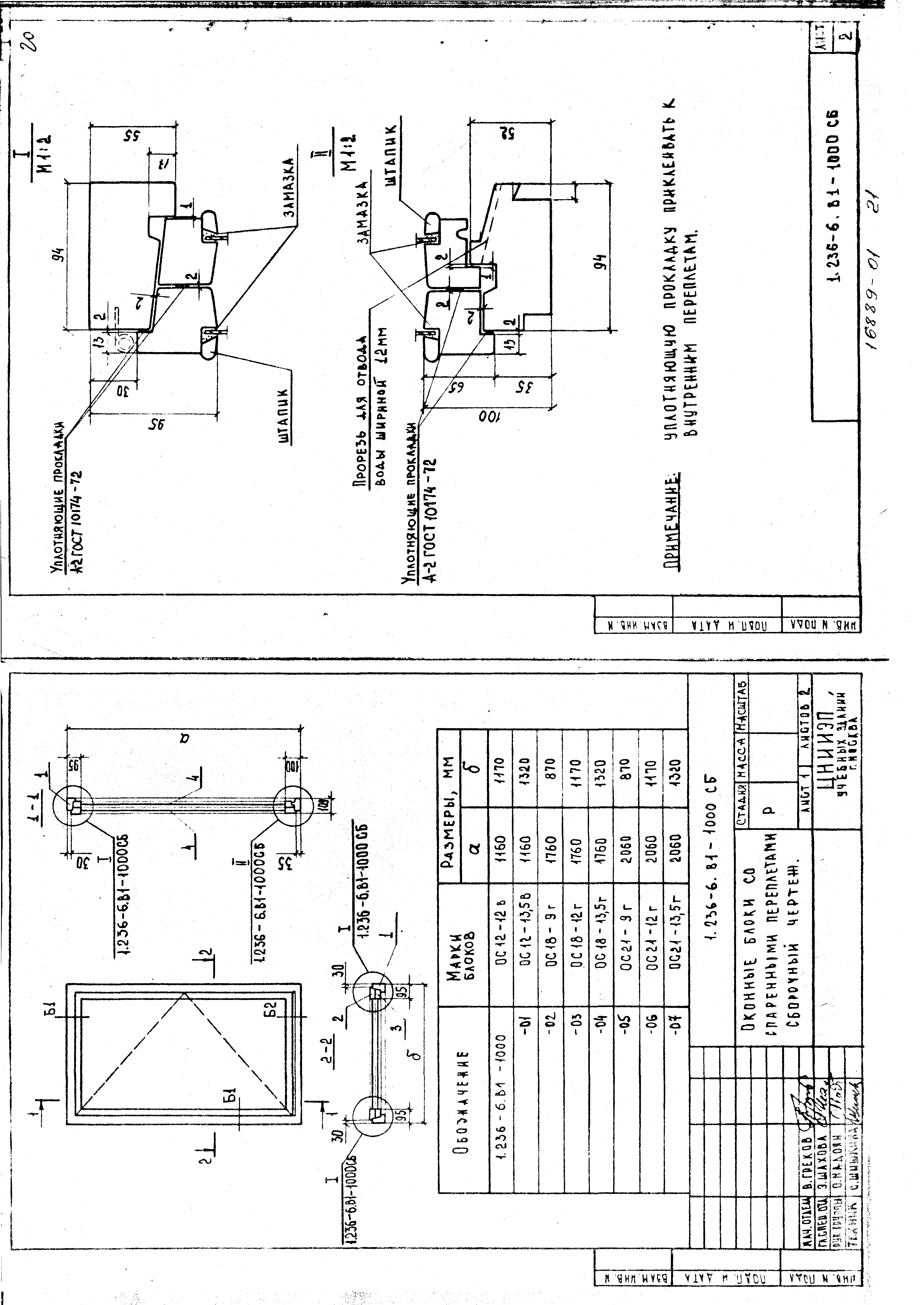
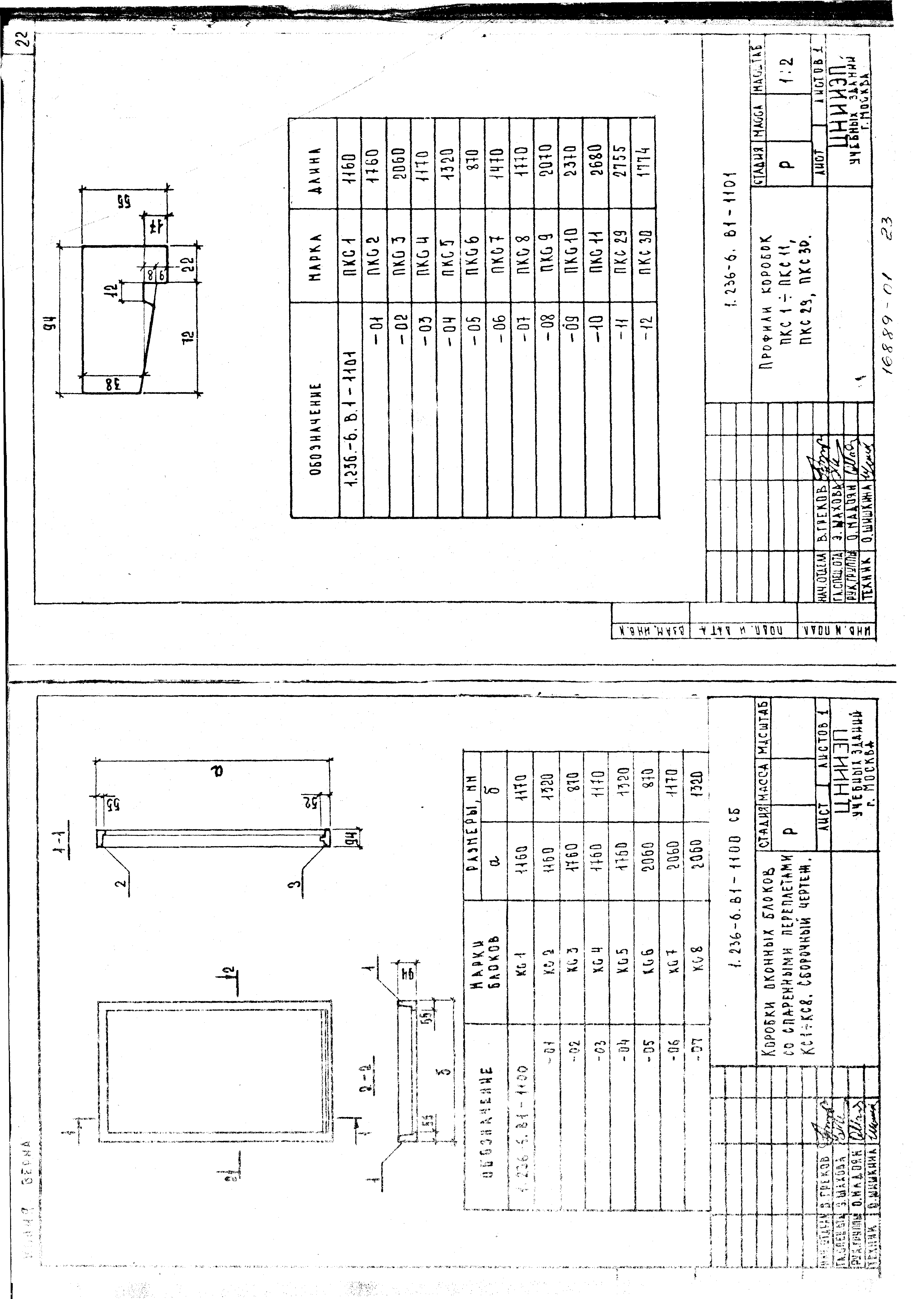
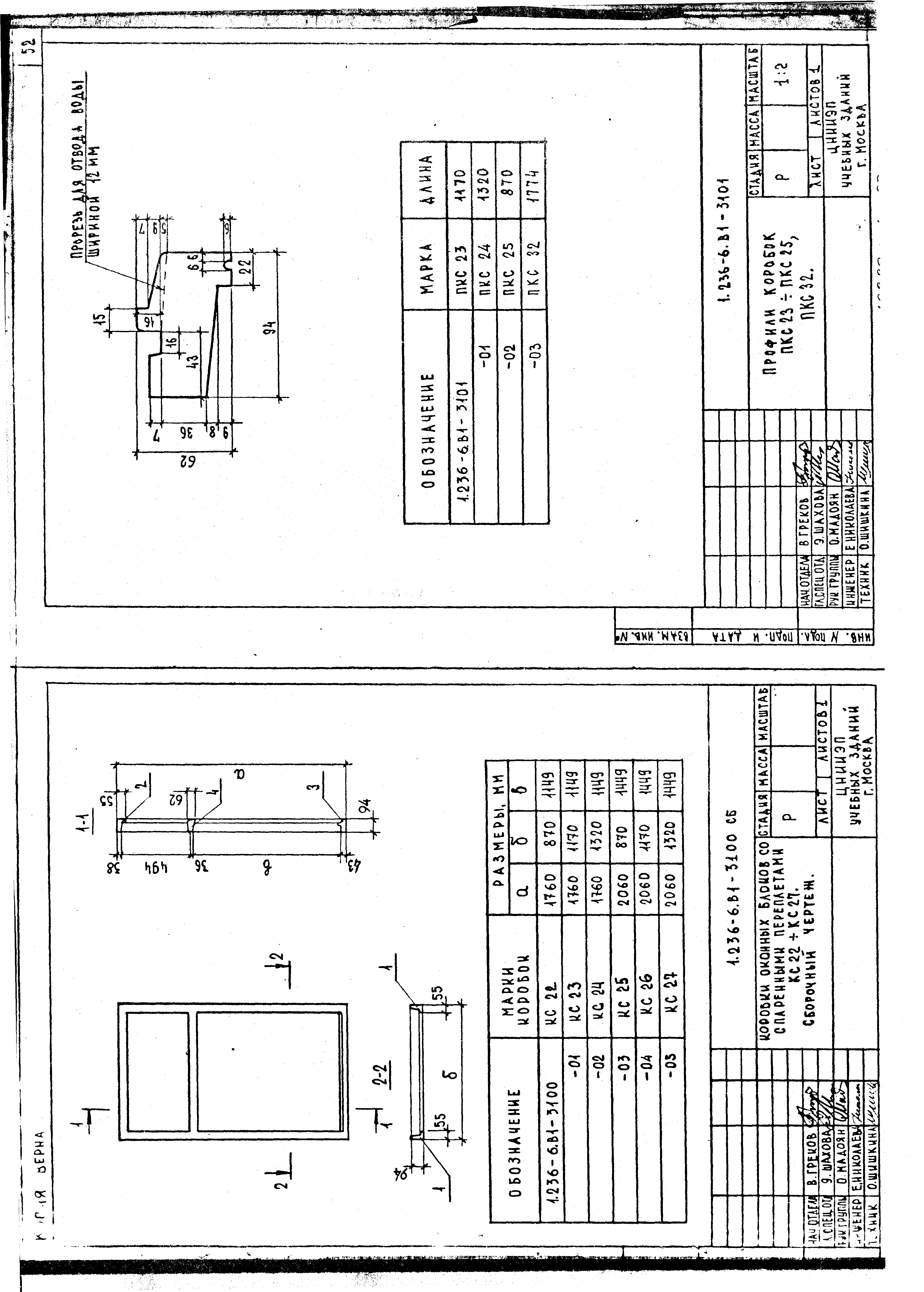
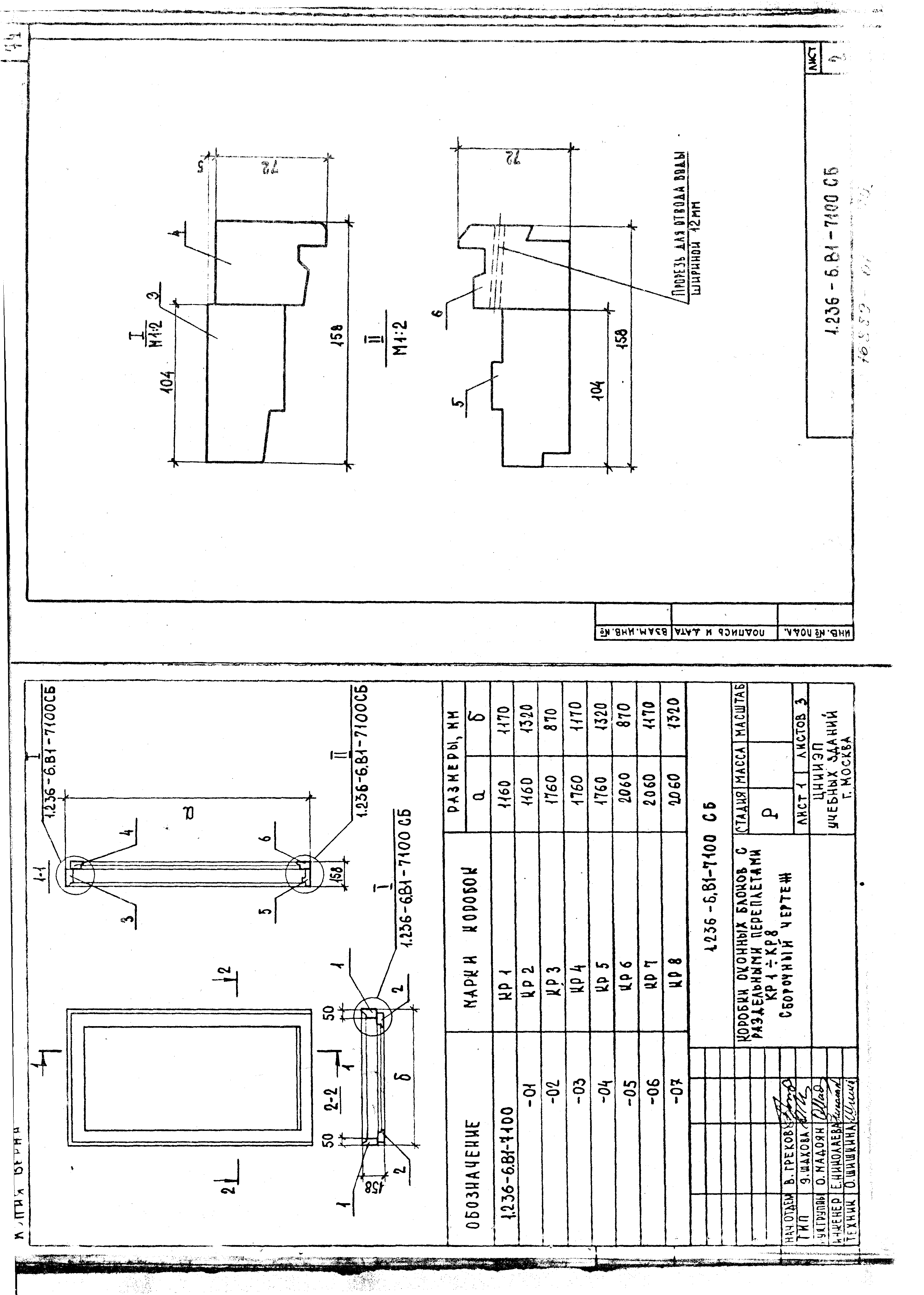
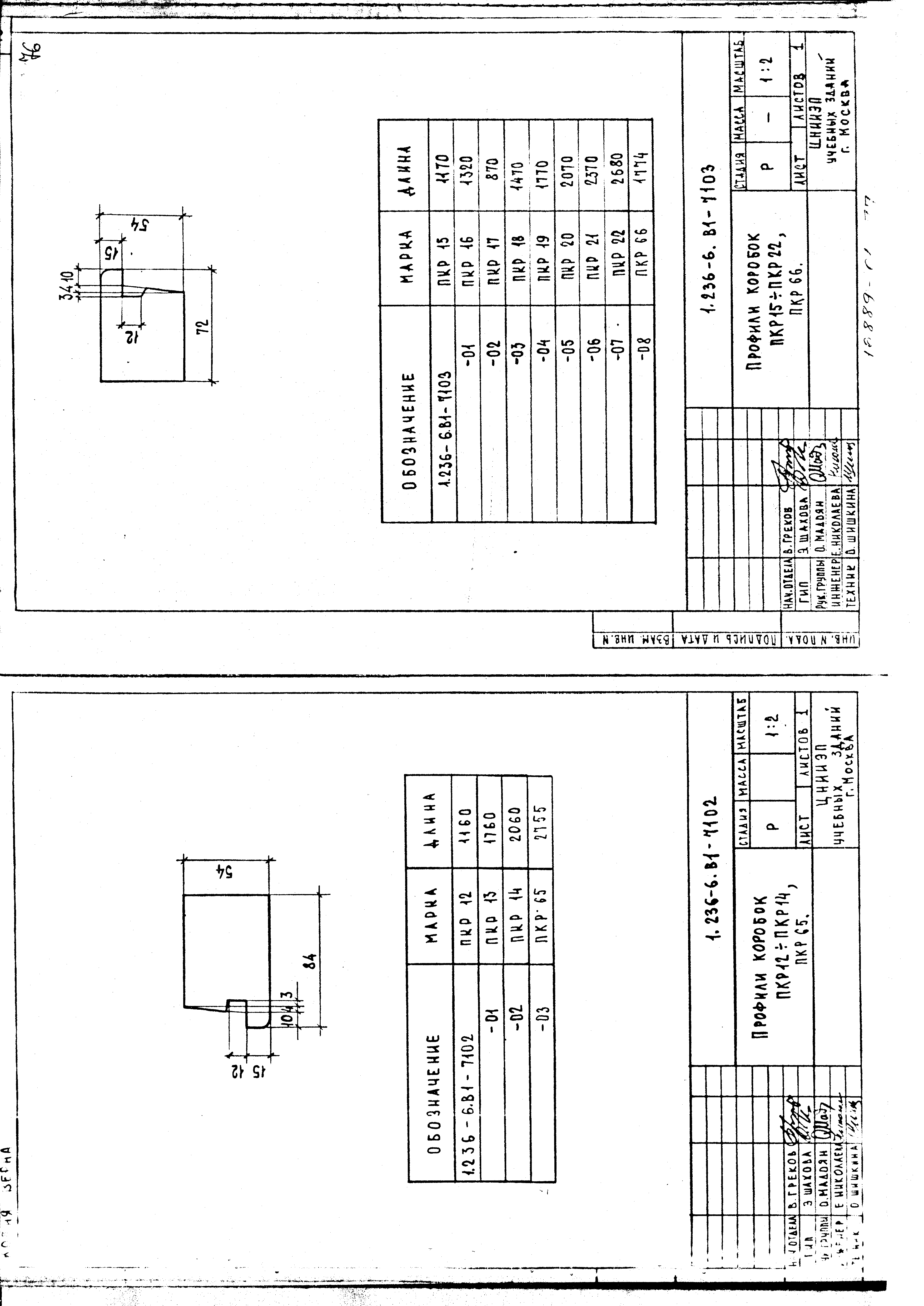
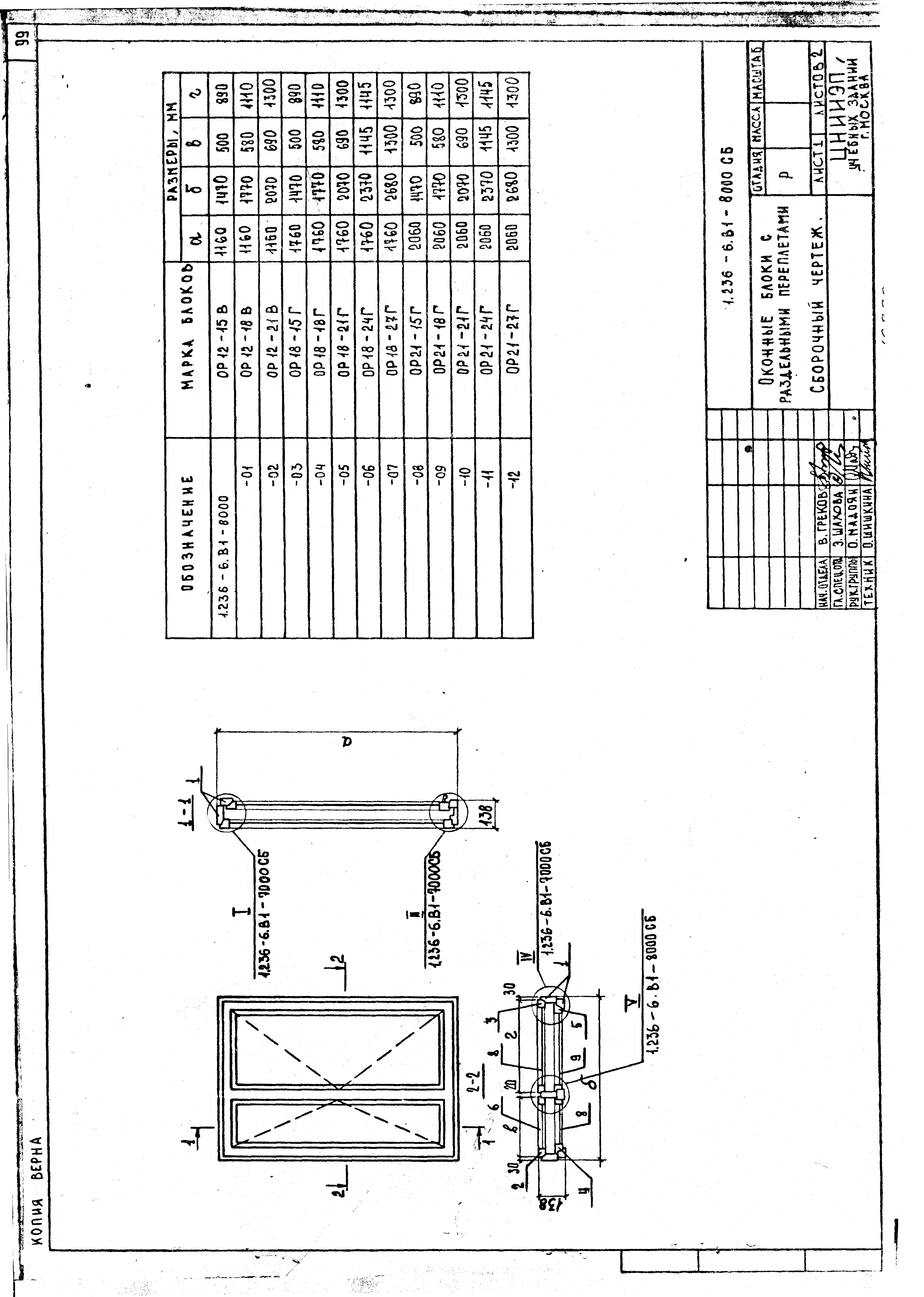
Скачать Серия 1.236-6 Выпуск 1. Часть 1. Окна и балконные двери со спаренными и раздельными переплетами и полотнами по ГОСТ 11214-78Дата актуализации: 01.01.2021
|
| Обозначение: | Серия 1.236-6 |
| Обозначение англ: | Series 1.236-6 |
| Статус: | не действует |
| Название рус.: | Выпуск 1. Часть 1. Окна и балконные двери со спаренными и раздельными переплетами и полотнами по ГОСТ 11214-78 |
| Дата добавления в базу: | 01.09.2013 |
| Дата актуализации: | 01.01.2021 |
| Дата введения: | 15.01.1981 |
| Дата окончания срока действия: | 01.06.1988 |
| Разработан: | ЦНИИЭП учебных зданий Госгражданстроя |
| Утверждён: | 05.12.1980 Государственный комитет по гражданскому строительству (341) |
| Чем заменён: |






































































































