Скачать Серия 1.236.4-7 Выпуск 5. Витражи и витрины с тройным остеклениемДата актуализации: 01.01.2021
|
| Обозначение: | Серия 1.236.4-7 |
| Обозначение англ: | Series 1.236.4-7 |
| Статус: | не действует |
| Название рус.: | Выпуск 5. Витражи и витрины с тройным остеклением |
| Дата добавления в базу: | 01.09.2013 |
| Дата актуализации: | 01.01.2021 |
| Дата введения: | 01.09.1982 |
| Дата окончания срока действия: | 01.12.1984 |
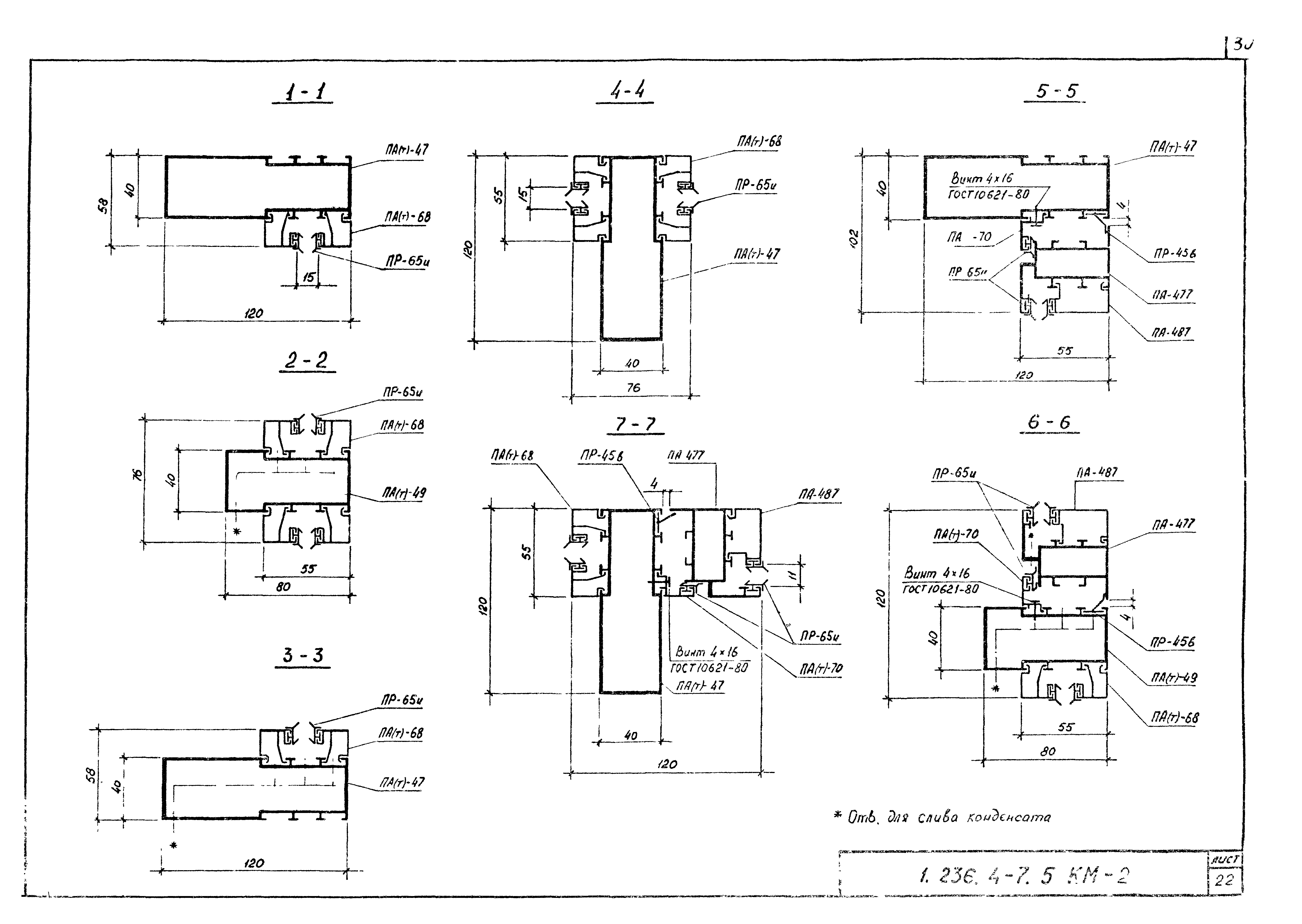
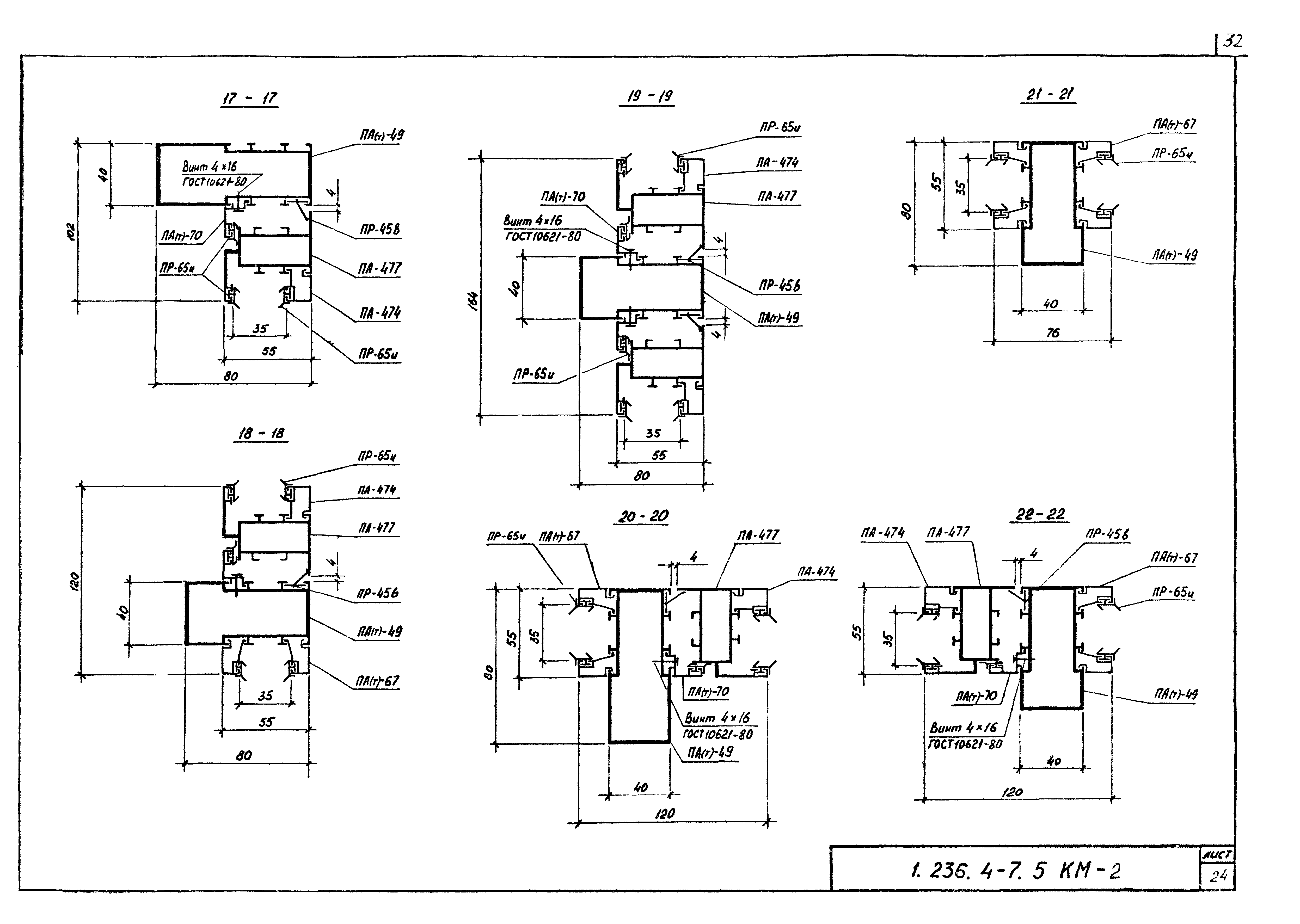
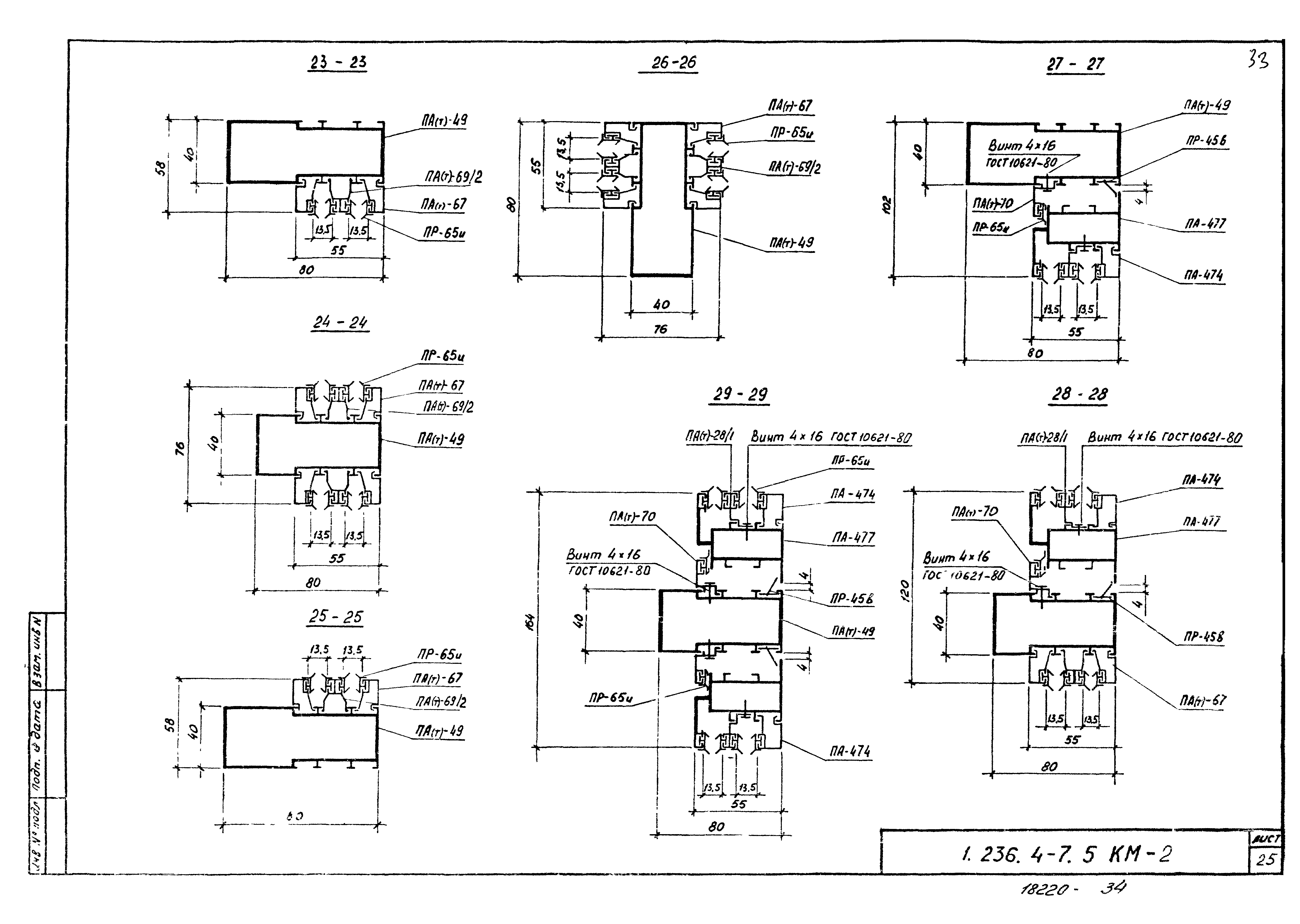
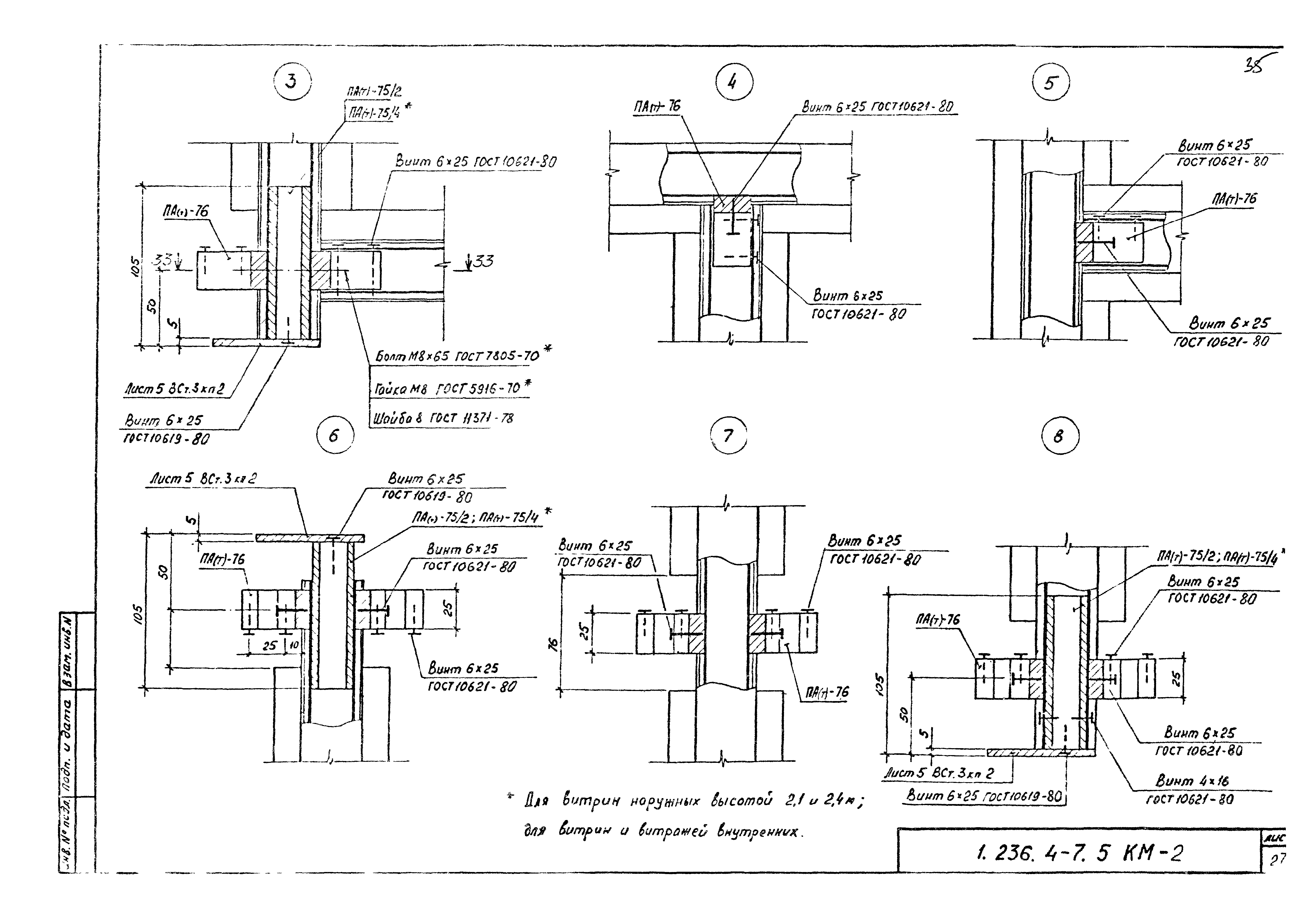
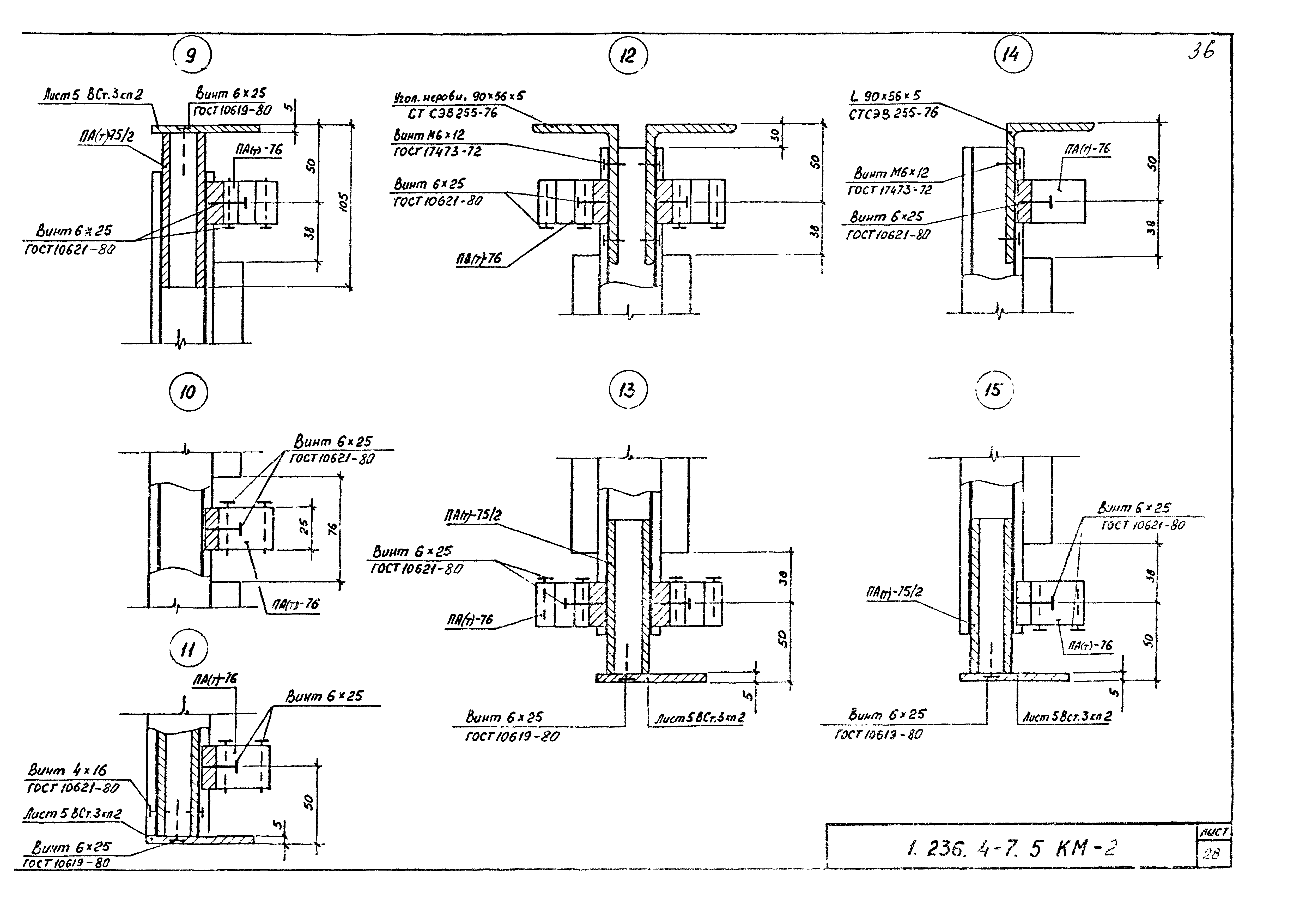
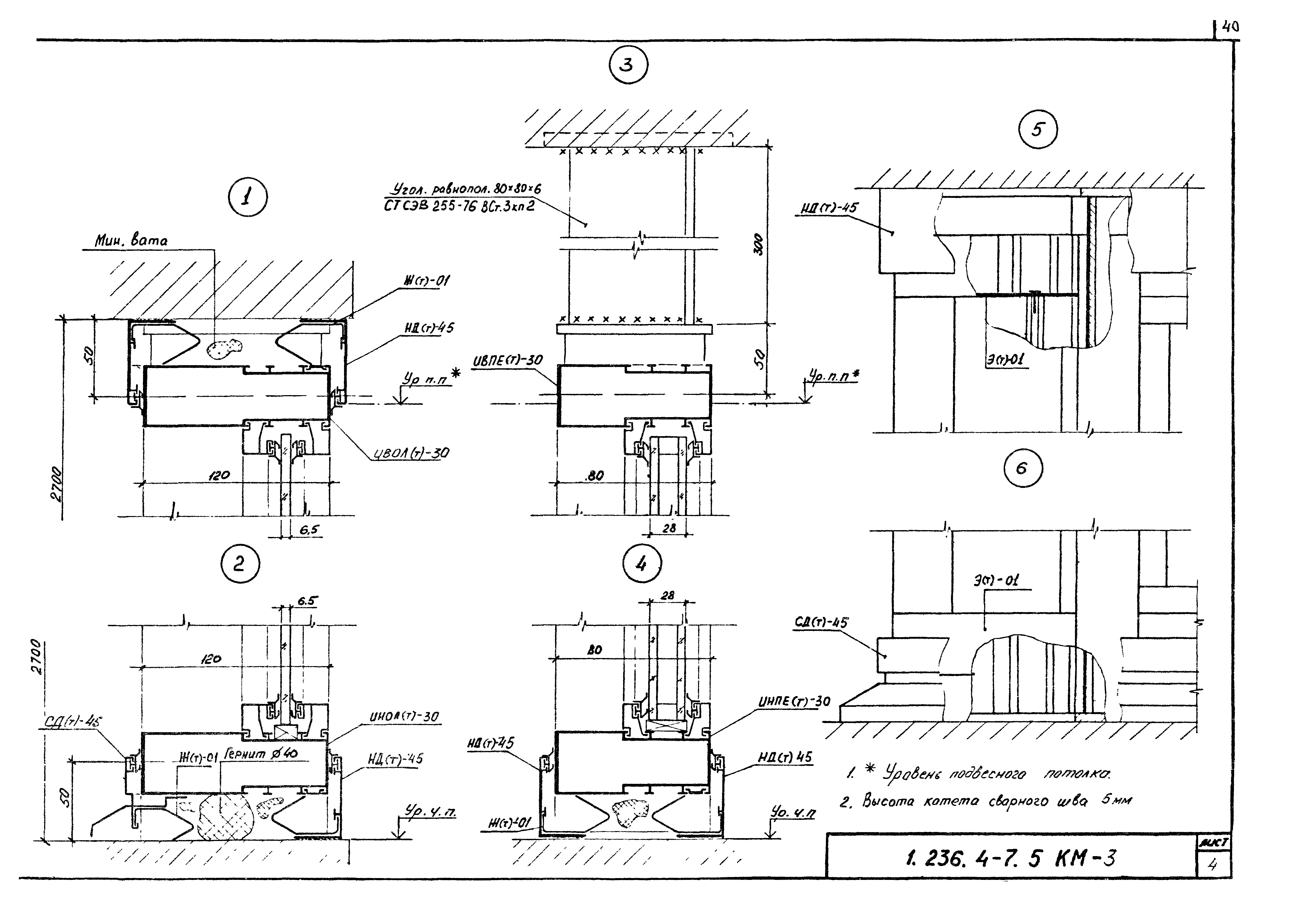
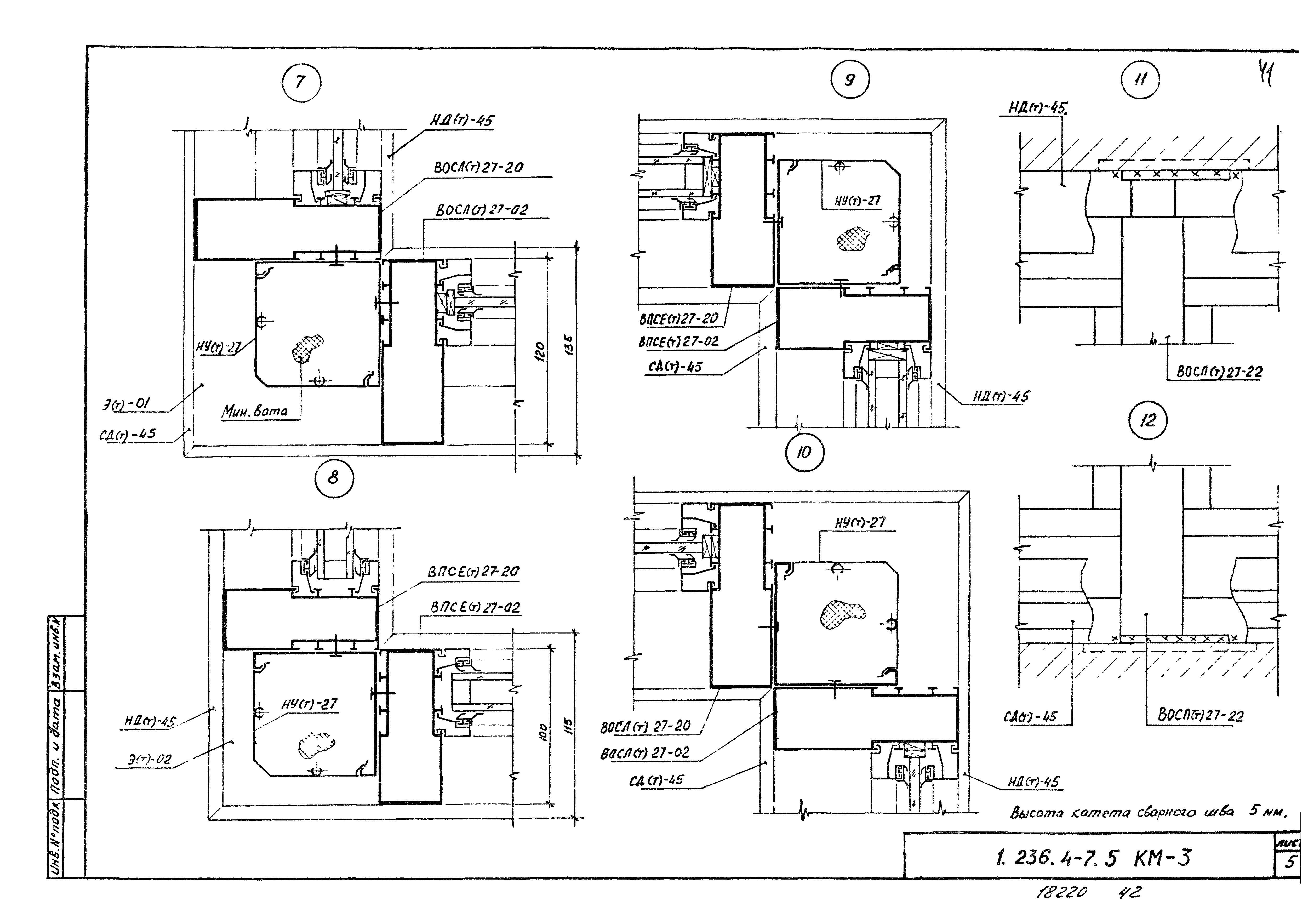
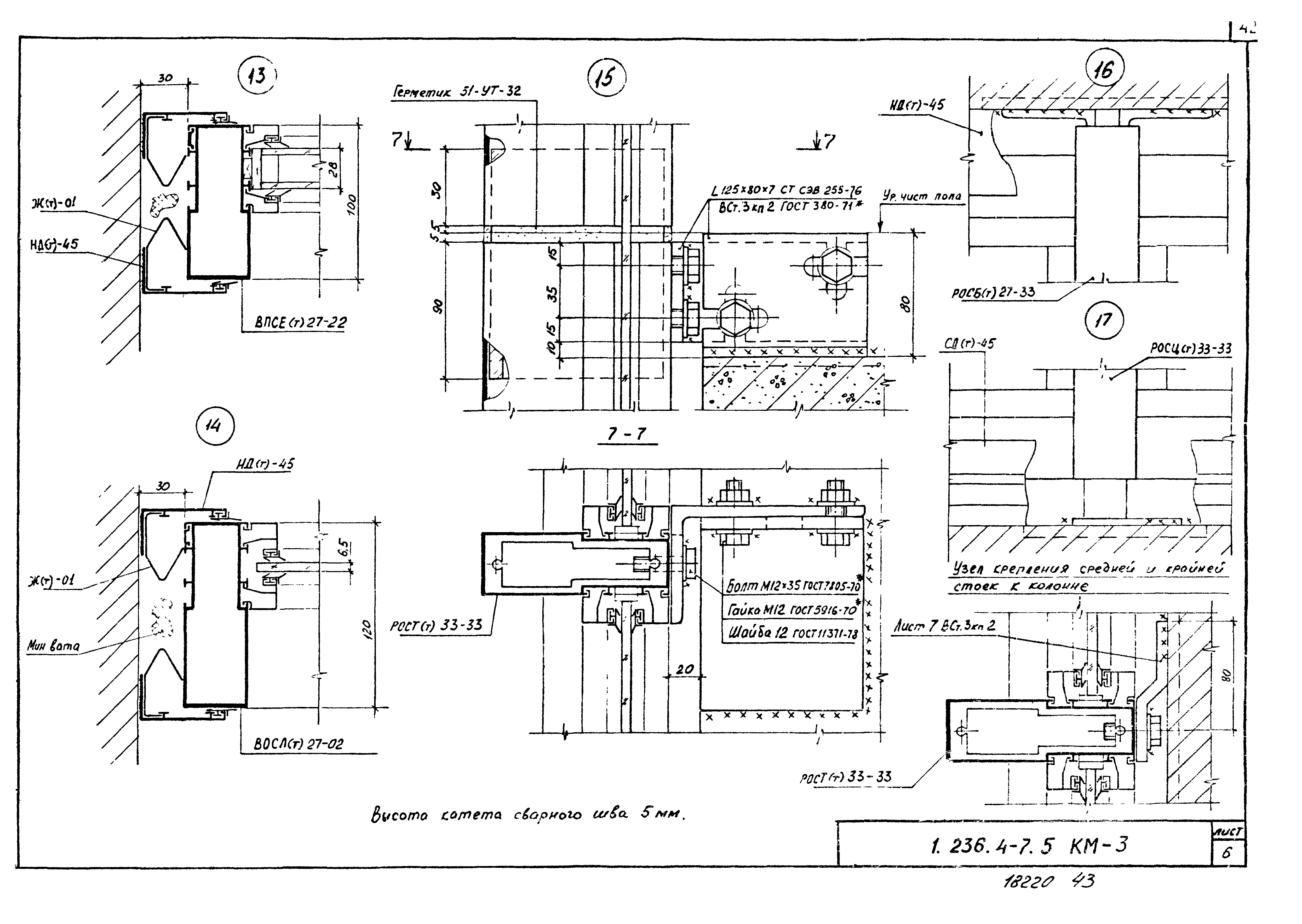
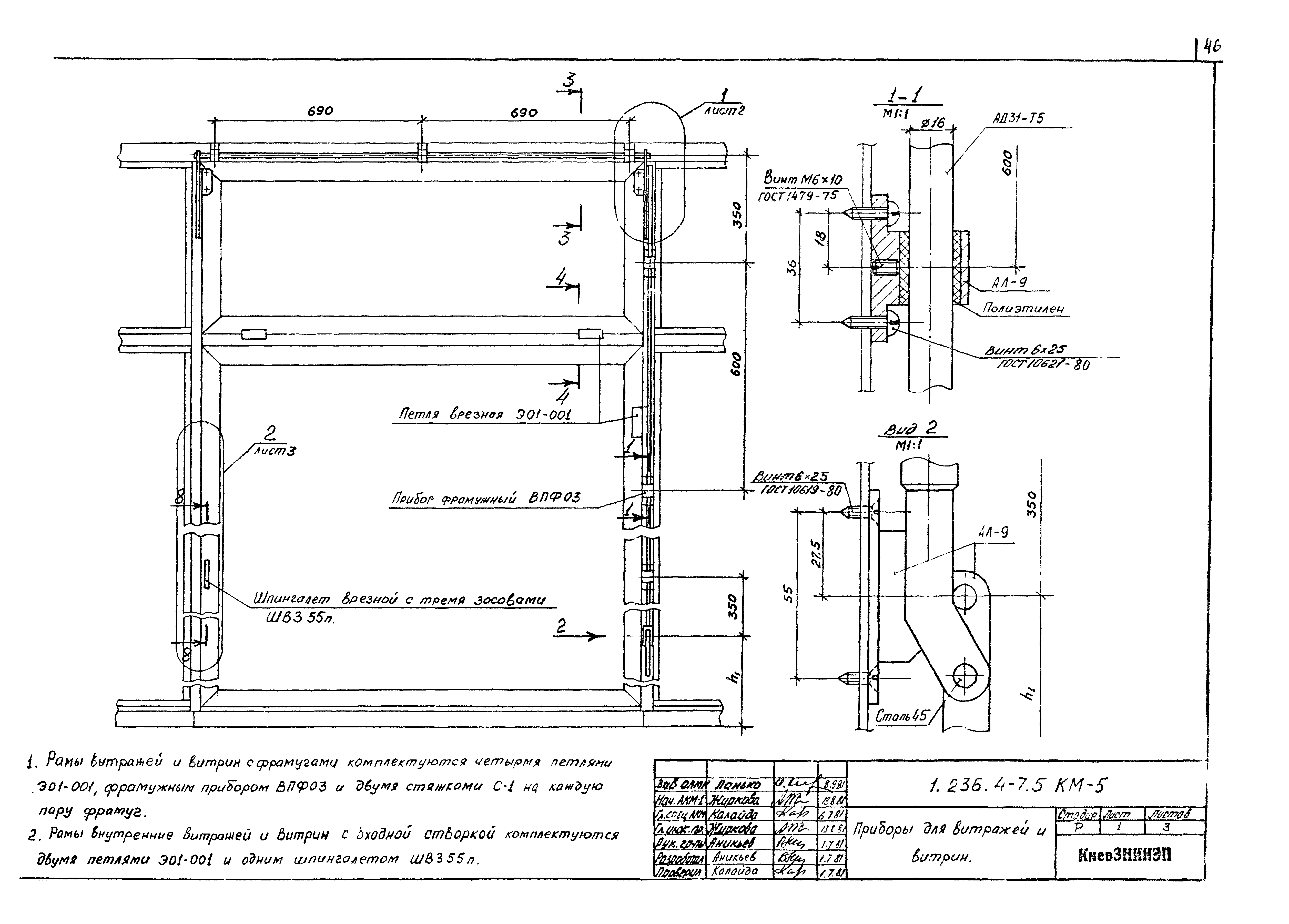
| Оглавление: | 1.236.1-7.5 КМ-1 Техническое описание 1.236.4-7.5 КМ-2 Номенклатура изделий и основные показатели 1.236.4-7.5 КМ-3 Примеры монтажных схем 1.236.4-7.5 КМ-4 Схемы остекления 1.236.4-7.5 КМ-5 Приборы для витражей и витрин 1.236.4-7.5 КМ-6 Нормали профилей 1.236.4-7.5 КМ-7 Спецификация материалов и крепежных изделий |
| Разработан: | КиевЗНИИЭП |
| Утверждён: | 29.07.1982 Государственный комитет по гражданскому строительству и архитектуре при Госстрое СССР (199) |






























































