Скачать Серия 3.503.1-101 Выпуск 1. Изделия. Рабочие чертежиДата актуализации: 01.01.2021
|
| Обозначение: | Серия 3.503.1-101 |
| Обозначение англ: | Series 3.503.1-101 |
| Статус: | не определен законодательством |
| Название рус.: | Выпуск 1. Изделия. Рабочие чертежи |
| Дата добавления в базу: | 01.09.2013 |
| Дата актуализации: | 01.01.2021 |
| Дата введения: | 01.01.1992 |
| Дата окончания срока действия: | 30.06.2003 |
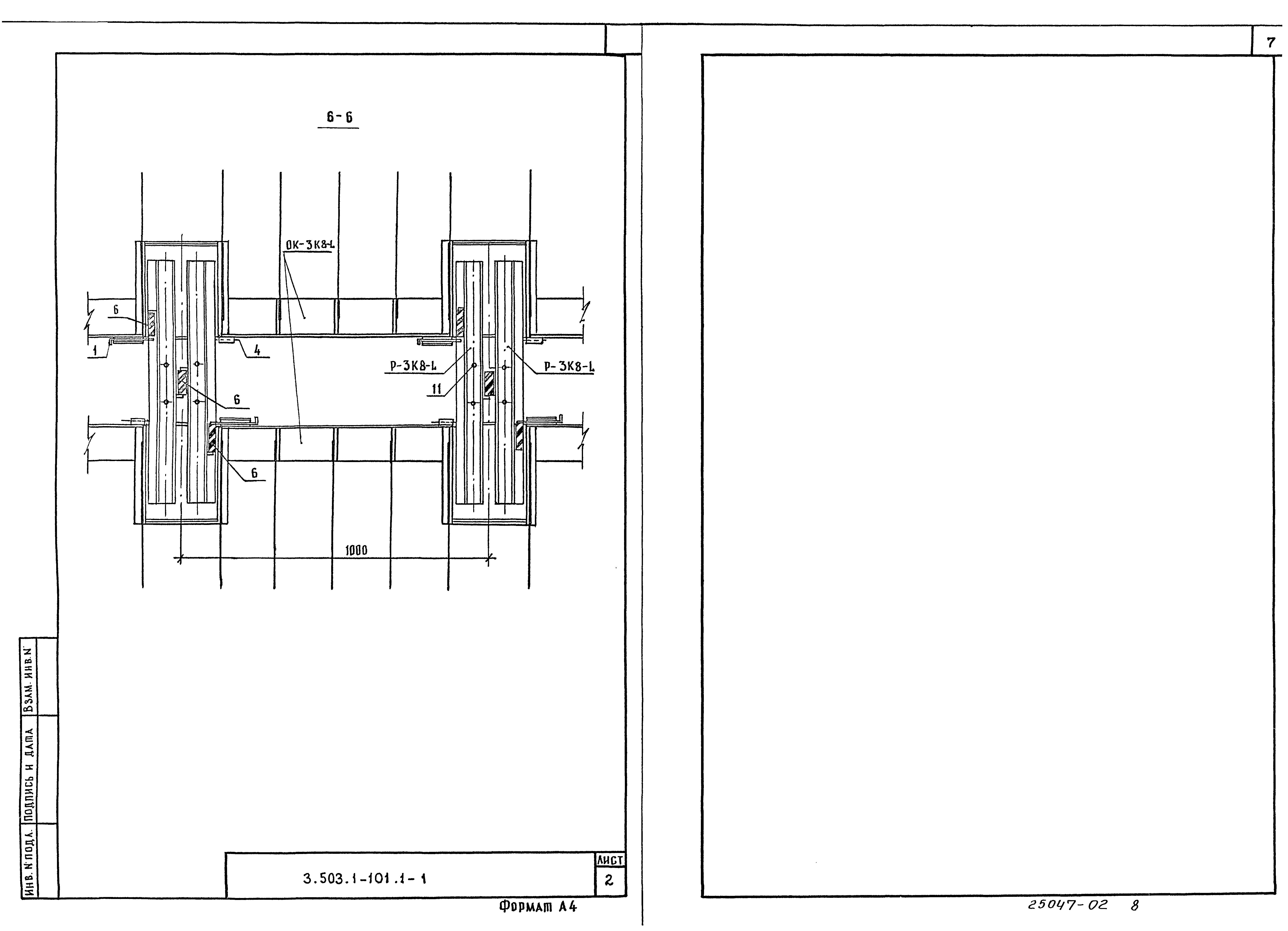
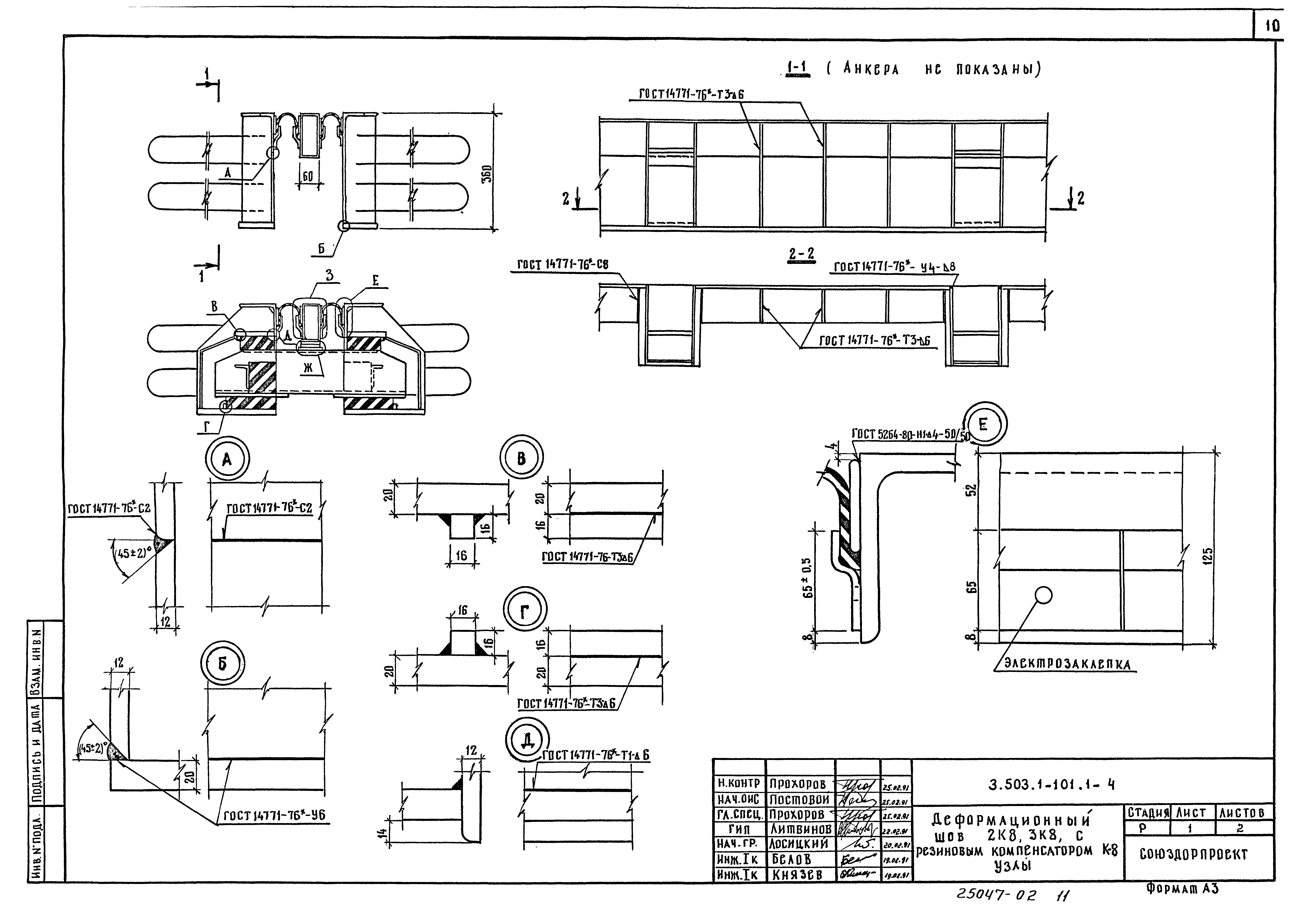
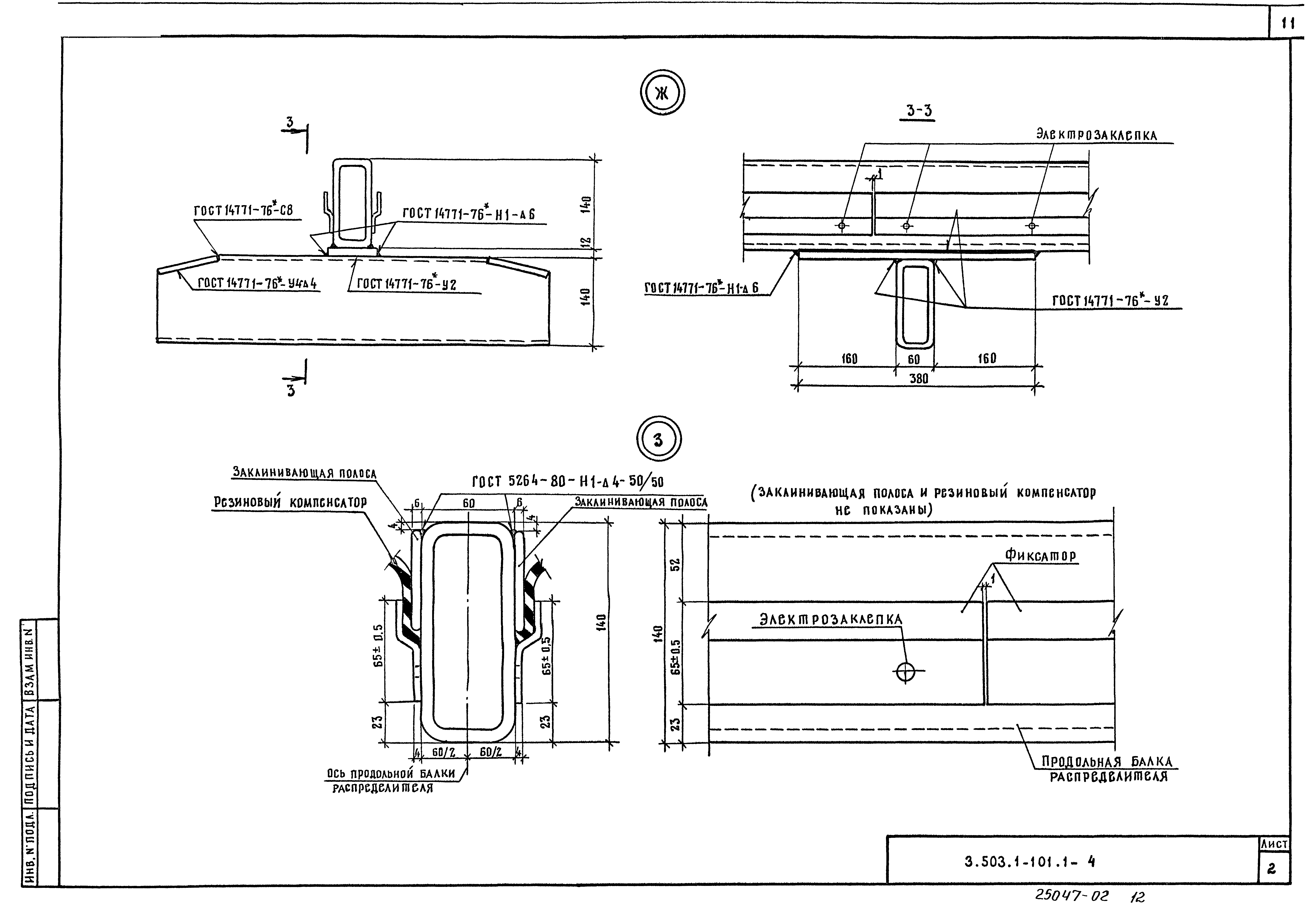
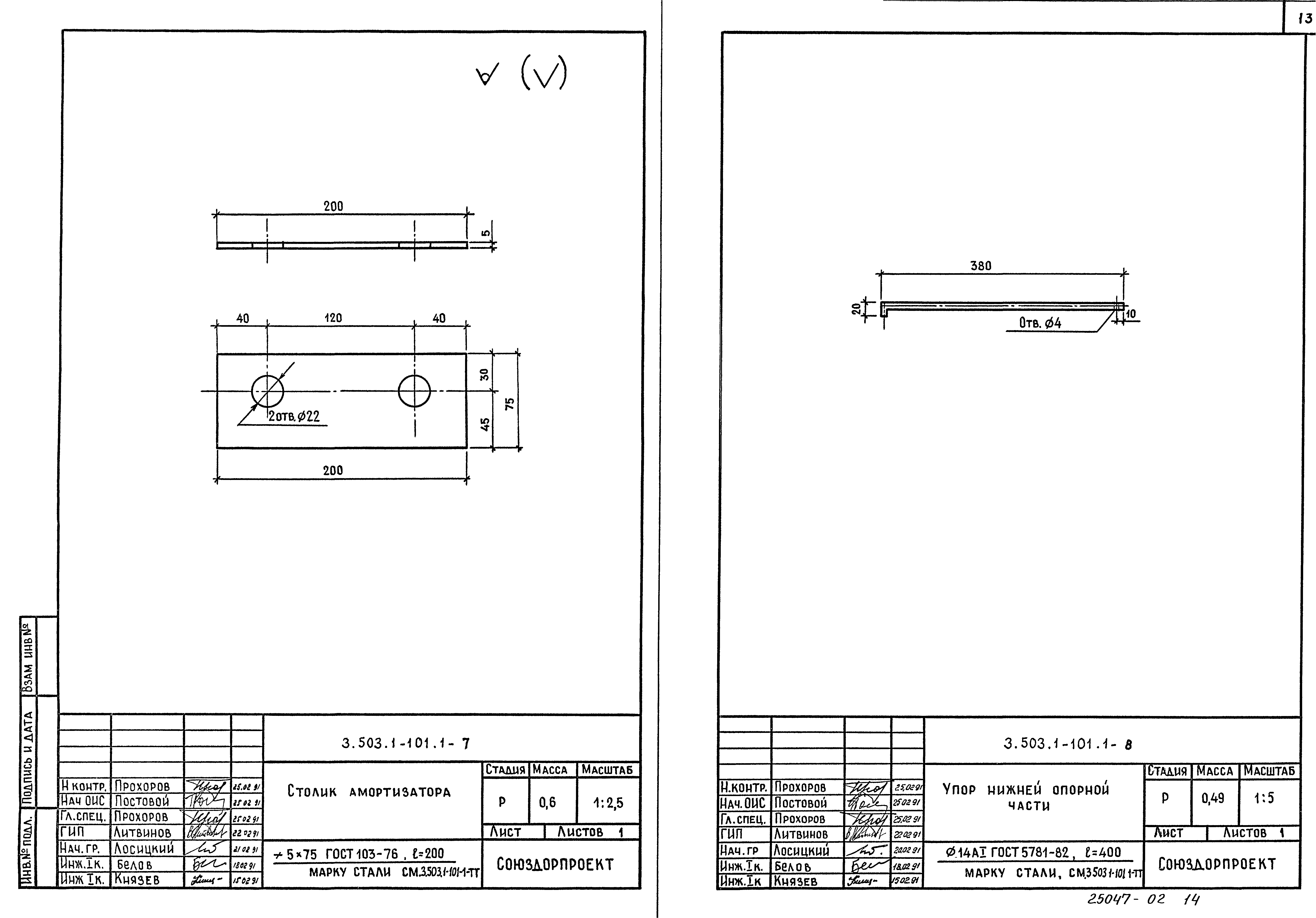
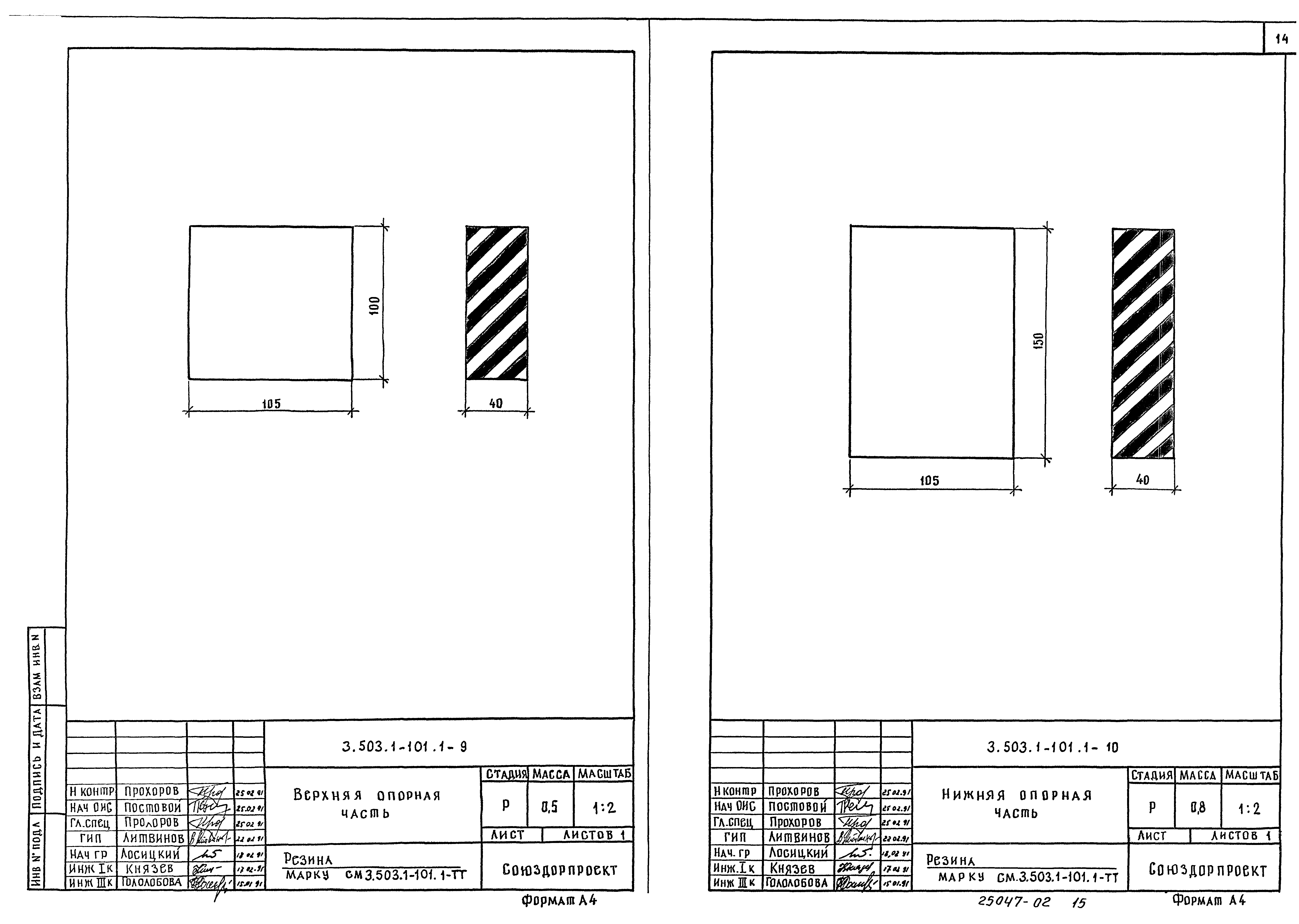
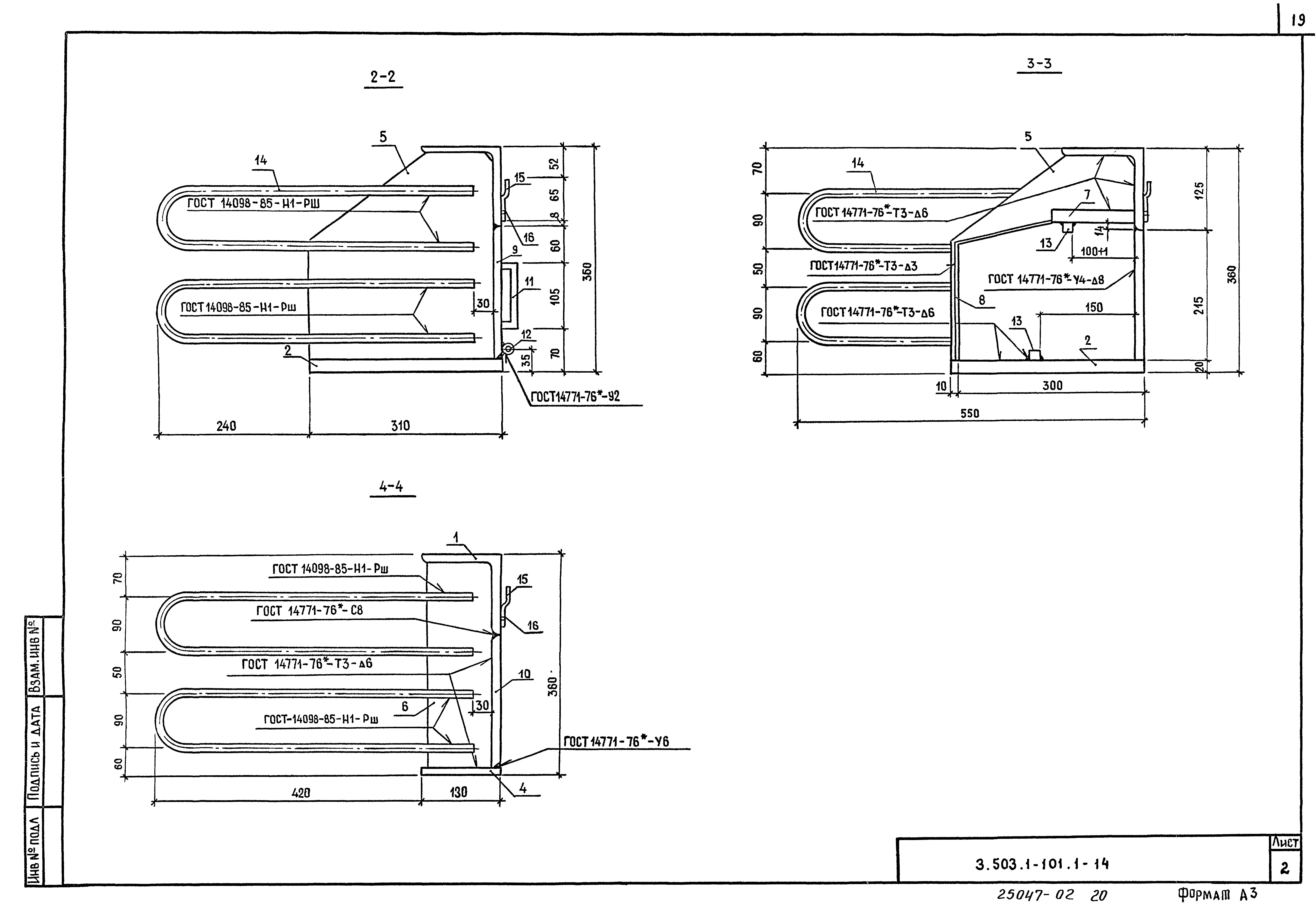
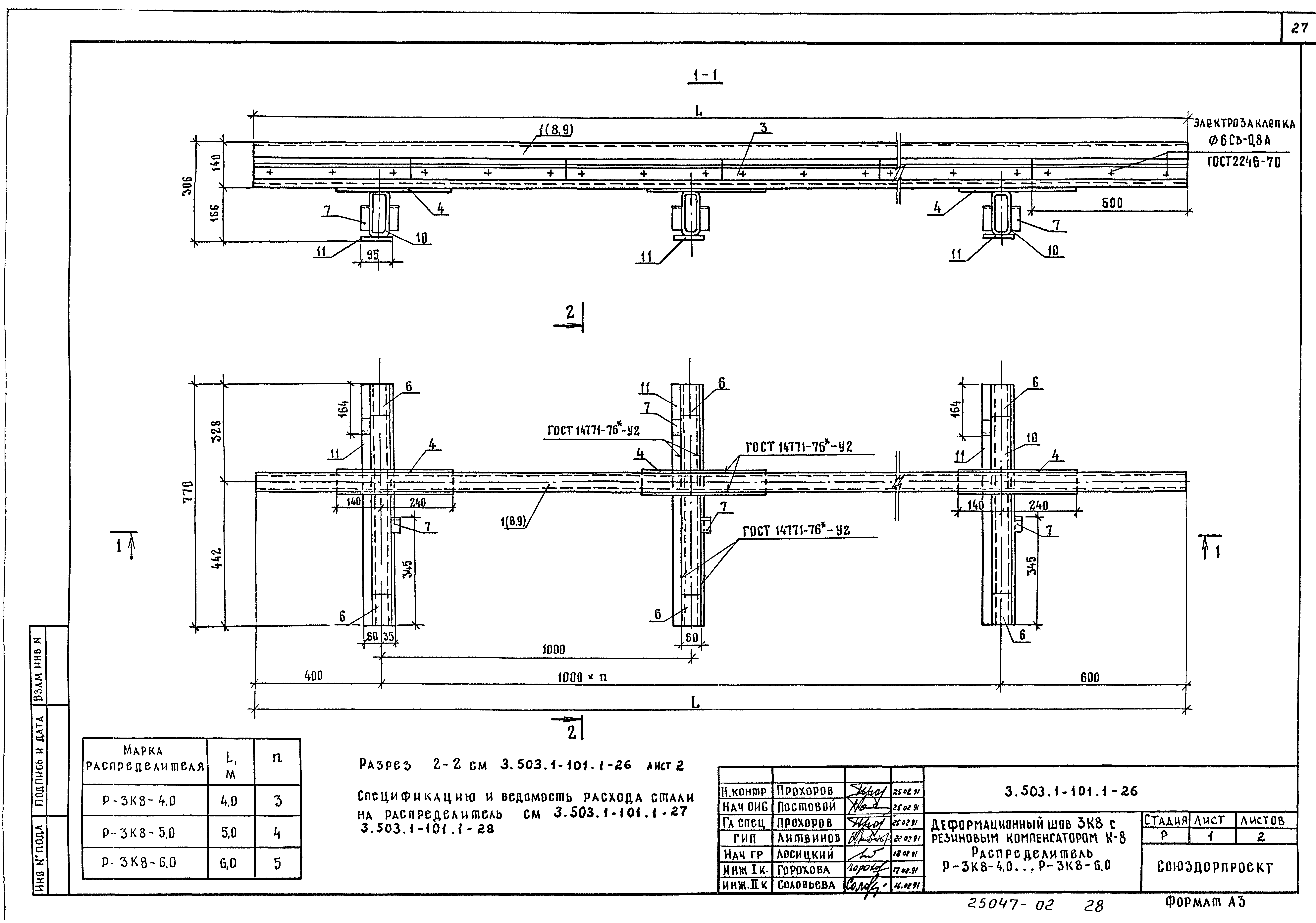
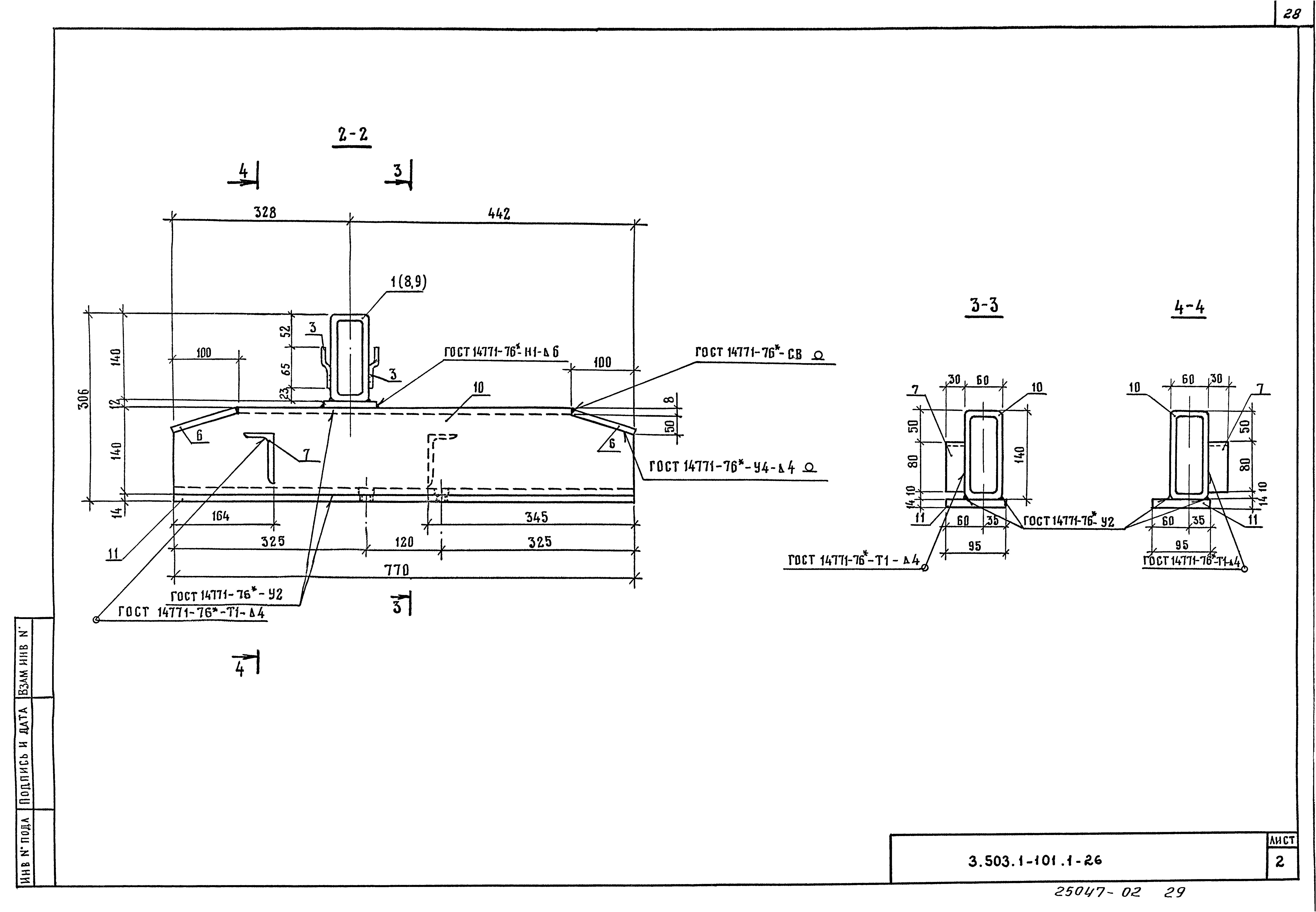
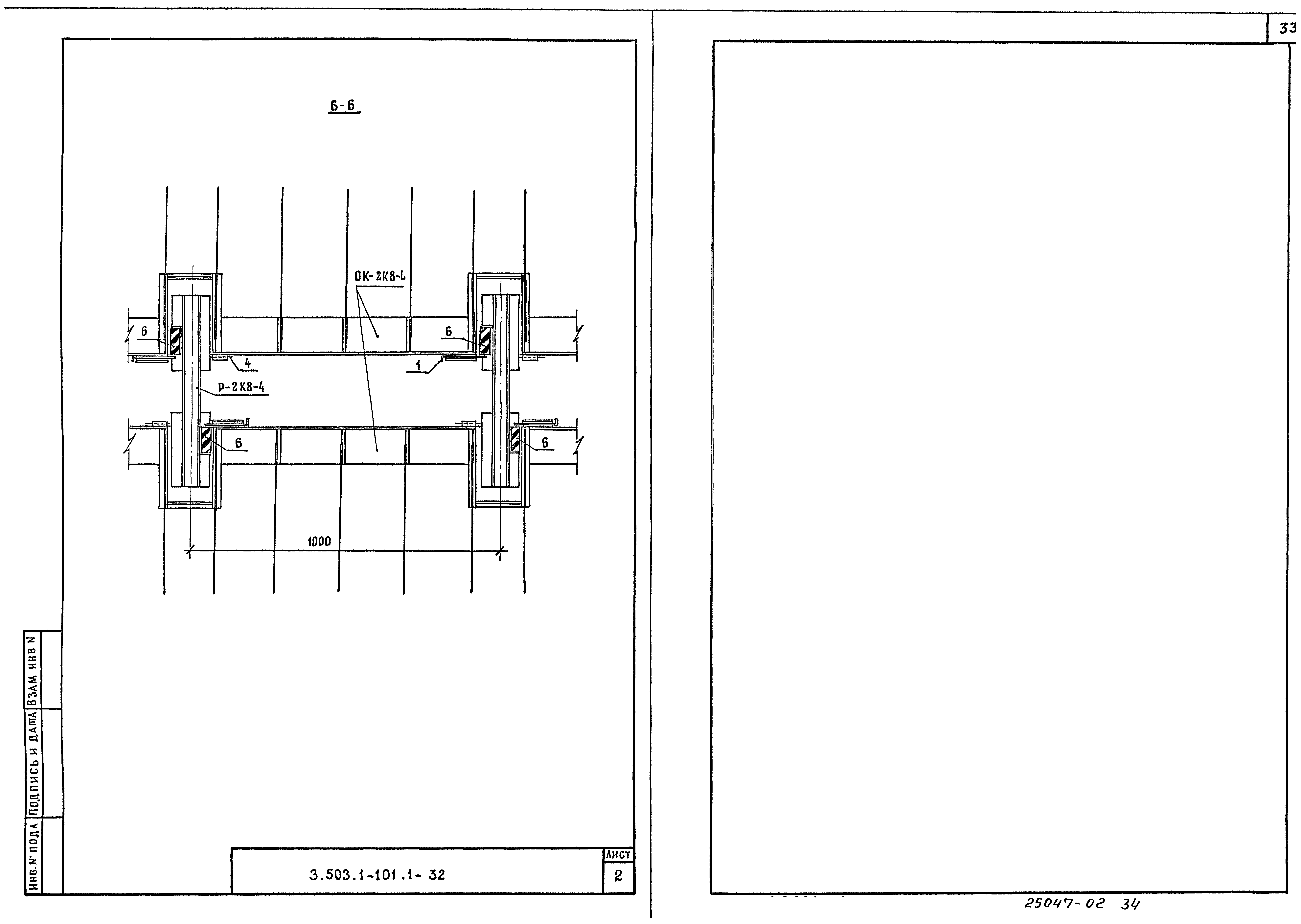
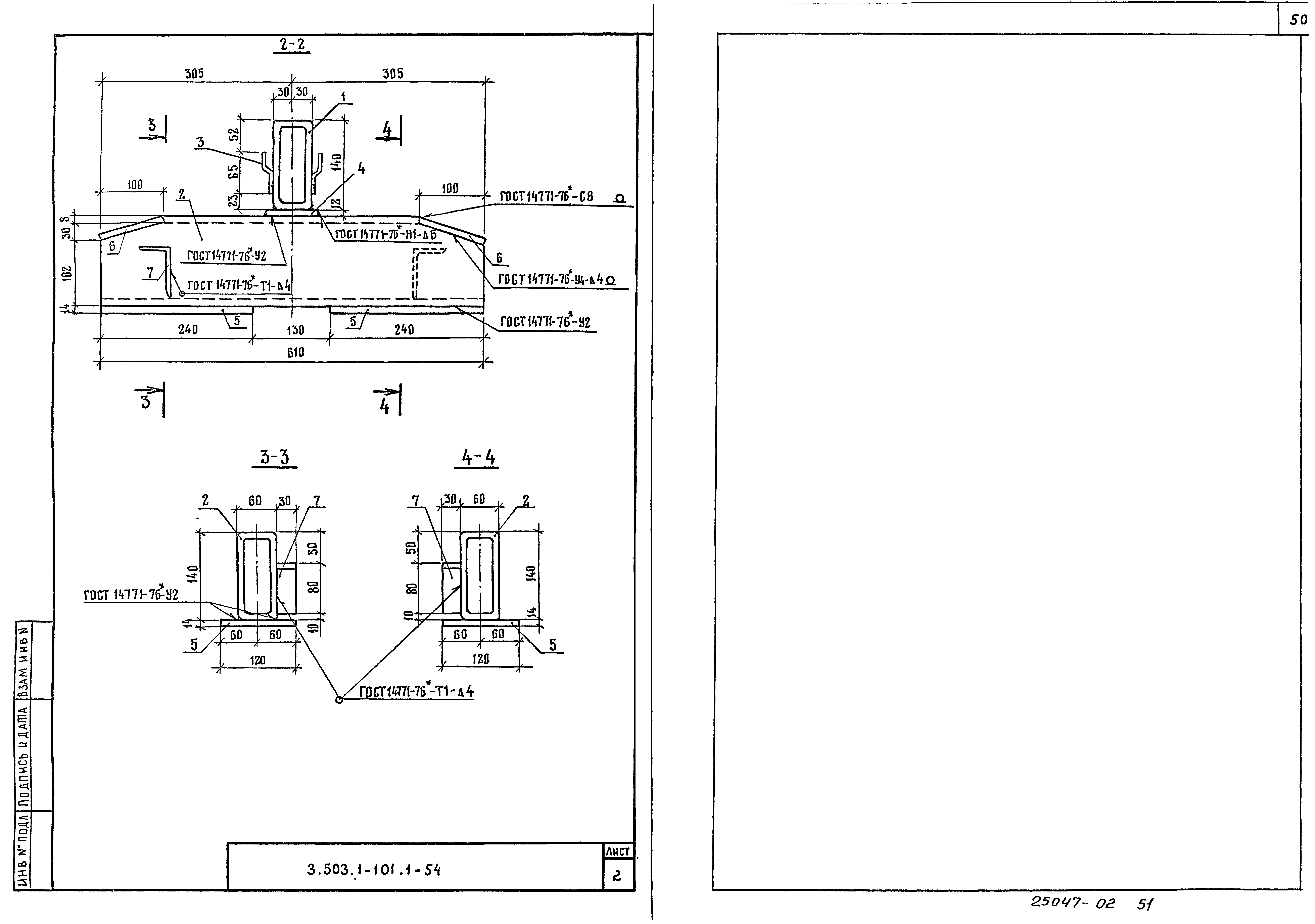
| Оглавление: | 3.503.1-101.1-ТТ Технические требования 3.503.1-101.1-1 Деформационный шов 3К8 с резиновым компенсатором К-8. Монтажный пакет МП-3К8-4,0 … МП-3К8-6,0 3.503.1-101.1-2 Монтажный пакет МП-3К8-4,0 … МП-3К8-6,0. Спецификация 3.503.1-101.1-3 Деформационный шов 2К8, 3К8 с резиновым компенсатором К-8. Стык монтажных пакетов 3.503.1-101.1-4 Деформационный шов 2К8, 3К8 с резиновым компенсатором К-8. Узлы 3.503.1-101.1-5 Накладка 3.503.1-101.1-6 Буш 3.503.1-101.1-7 Столик амортизатора 3.503.1-101.1-8 Упор нижней опорной части 3.503.1-101.1-9 Верхняя опорная часть 3.503.1-101.1-10 Нижняя опорная часть 3.503.1-101.1-11 Амортизатор 3.503.1-101.1-12 Деформационный шов 3К8 с резиновым компенсатором К-8. Окаймление ОК-3К8-4,0 3.503.1-101.1-13 Деформационный шов 3К8 с резиновым компенсатором К-8. Окаймление ОК-3К8-5,0 3.503.1-101.1-14 Деформационный шов 3К8 с резиновым компенсатором К-8. Окаймление ОК-3К8-6,0 3.503.1-101.1-15 Окаймление "ОК-3К8-4,0" … ОК-3К8-6,0. Спецификация 3.503.1-101.1-16 Днище ниши 3.503.1-101.1-17 Ребро жесткости 3.503.1-101.1-18 Нижний лист 3.503.1-101.1-19 Нижний лист 3.503.1-101.1-20 Крышка ниши 3.503.1-101.1-21 Кожух ниши 3.503.1-101.1-22 Лист окаймления 3.503.1-101.1-23 Лист окаймления 3.503.1-101.1-24 Упор опорной части 3.503.1-101.1-25РС Окаймление ОК-3К8-4,0 … ОК-3К8-6,0. Ведомость расхода стали 3.503.1-101.1-26 Деформационный шов 3К8 с резиновым компенсатором К-8. Распределитель Р-3К8-4,0 … Р-3К8-6.0 3.503.1-101.1-27 Распределитель Р-3К8-4,0 … Р-3К8-6.0. Спецификация 3.503.1-101.1-28РС Распределитель Р-3К8-4,0 … Р-3К8-6.0. Ведомость расхода стали 3.503.1-101.1-29 Поперечная балка 3.503.1-101.1-30 Опорная пластина поперечной балки 3.503.1-101.1-31 Монтажный пакет МП-3К8-4,0 … МП-3К8-6,0. Ведомость расхода материалов 3.503.1-101.1-32 Деформационный шов 2К8 с резиновым компенсатором К-8. Монтажный пакет МП-2К8-4,0 … МП-2К8-6,0 3.503.1-101.1-33 Монтажный пакет МП-2К8-4,0 … МП-2К8-6,0. Спецификация 3.503.1-101.1-34 Упор амортизатора 3.503.1-101.1-35 Упор нижней опорной части 3.503.1-101.1-36 Деформационный шов 2К8 с резиновым компенсатором К-8. Окаймление ОК-2К8-4,0 3.503.1-101.1-37 Деформационный шов 2К8 с резиновым компенсатором К-8. Окаймление ОК-2К8-5,0 3.503.1-101.1-38 Деформационный шов 2К8 с резиновым компенсатором К-8. Окаймление ОК-2К8-6,0 3.503.1-101.1-39 Окаймление ОК-2К8-4,0 … ОК-2К8-6,0. Спецификация 3.503.1-101.1-40 Днище ниши 3.503.1-101.1-41 Ребро жесткости 3.503.1-101.1-42 Нижний лист 3.503.1-101.1-43 Нижний лист 3.503.1-101.1-44 Кожух ниши 3.503.1-101.1-45 Лист окаймления 3.503.1-101.1-46 Лист окаймления 3.503.1-101.1-47 Скоба упора амортизатора 3.503.1-101.1-48 Анкер 3.503.1-101.1-49 Ребро жесткости 3.503.1-101.1-50 Крышка ниши 3.503.1-101.1-51 Направляющая 3.503.1-101.1-52 Упор опорной части 3.503.1-101.1-53РС Окаймление ОК-2К8-4,0 … ОК-2К8-6,0. Ведомость расхода стали 3.503.1-101.4-54 Деформационный шов 2К8 с резиновым компенсатором К-8. Распределитель Р-2К8-4.0 … Р-2К8-6,0 3.503.1-101.4-55 Распределитель Р-2К8-4,0 … Р-2К8-6,0. Спецификация 3.503.1-101.4-56 РС Распределитель Р-2К8-4,0 … Р-2К8-6,0. Ведомость расхода стали 3.503.1-101.4-57 Продольная балка 3.503.1-101.4-58 Поперечная балка 3.503.1-101.4-59 Направляющая пластина поперечной балки 3.503.1-101.4-60 Упор амортизатора 3.503.1-101.4-61 Лист усиления продольной балки 3.503.1-101.4-62 Опорная пластина поперечной балки 3.503.1-101.4-63 Монтажный пакет МП-2К8-4,0 … МП-2К8-6,0. Ведомость расхода материалов 3.503.1-101.4-64 Деформационный шов с резиновым компенсатором К-8. Окаймление ОК1-1К8-4,0 3.503.1-101.4-65 Деформационный шов с резиновым компенсатором К-8. Окаймление ОК1-1К8-5,0 3.503.1-101.4-66 Деформационный шов с резиновым компенсатором К-8. Окаймление ОК1-1К8-6,0 3.503.1-101.4-67 Окаймление ОК1-1К8-4,0 … ОК1-1К8-6,0. Спецификация 3.503.1-101.4-68РС Окаймление ОК1-1К8-4,0 … ОК1-1К8-6,0. Ведомость расхода стали 3.503.1-101.4-69 Окаймление ОК2-1К8-4,0 … ОК2-1К8-6,0. Спецификация 3.503.1-101.4-70РС Окаймление ОК2-1К8-4,0 … ОК2-1К8-6,0.Ведомость расхода стали 3.503.1-101.4-71 Уголок УГ-1 … УГ-3 3.503.1-101.4-72 Диафрагма Д-1 3.503.1-101.1-73 Анкер А-1 3.503.1-101.1-74 Фиксатор компенсатора 3.503.1-101.1-75 Заклинивающая полоса 3.503.1-101.1-76 Резиновый компенсатор К-8-70м 3.503.1-101.1-77 Компенсатор К-1 |
| Разработан: | Союздорпроект Минтрансстроя |
| Утверждён: | 06.05.1991 Минтрансстрой СССР (USSR Mintransstroy АВ-83) |
| Издан: | АПП ЦИТП (1991 г. ) |
































































