Скачать Серия 3.503.9-80 Выпуск 2. Опоры рамные металлические для установки дорожных информационно-указательных знаков над проезжей частью. Материалы для проектирования и рабочие чертежиДата актуализации: 01.01.2021
|
| Обозначение: | Серия 3.503.9-80 |
| Обозначение англ: | Series 3.503.9-80 |
| Статус: | не определен законодательством |
| Название рус.: | Выпуск 2. Опоры рамные металлические для установки дорожных информационно-указательных знаков над проезжей частью. Материалы для проектирования и рабочие чертежи |
| Дата добавления в базу: | 01.09.2013 |
| Дата актуализации: | 01.01.2021 |
| Дата введения: | 01.09.1989 |
| Дата окончания срока действия: | 30.06.2003 |
| Область применения: | Типовые строительные конструкции опор дорожных знаков предназначены для применения при проектировании и строительстве автомобильных дорог |
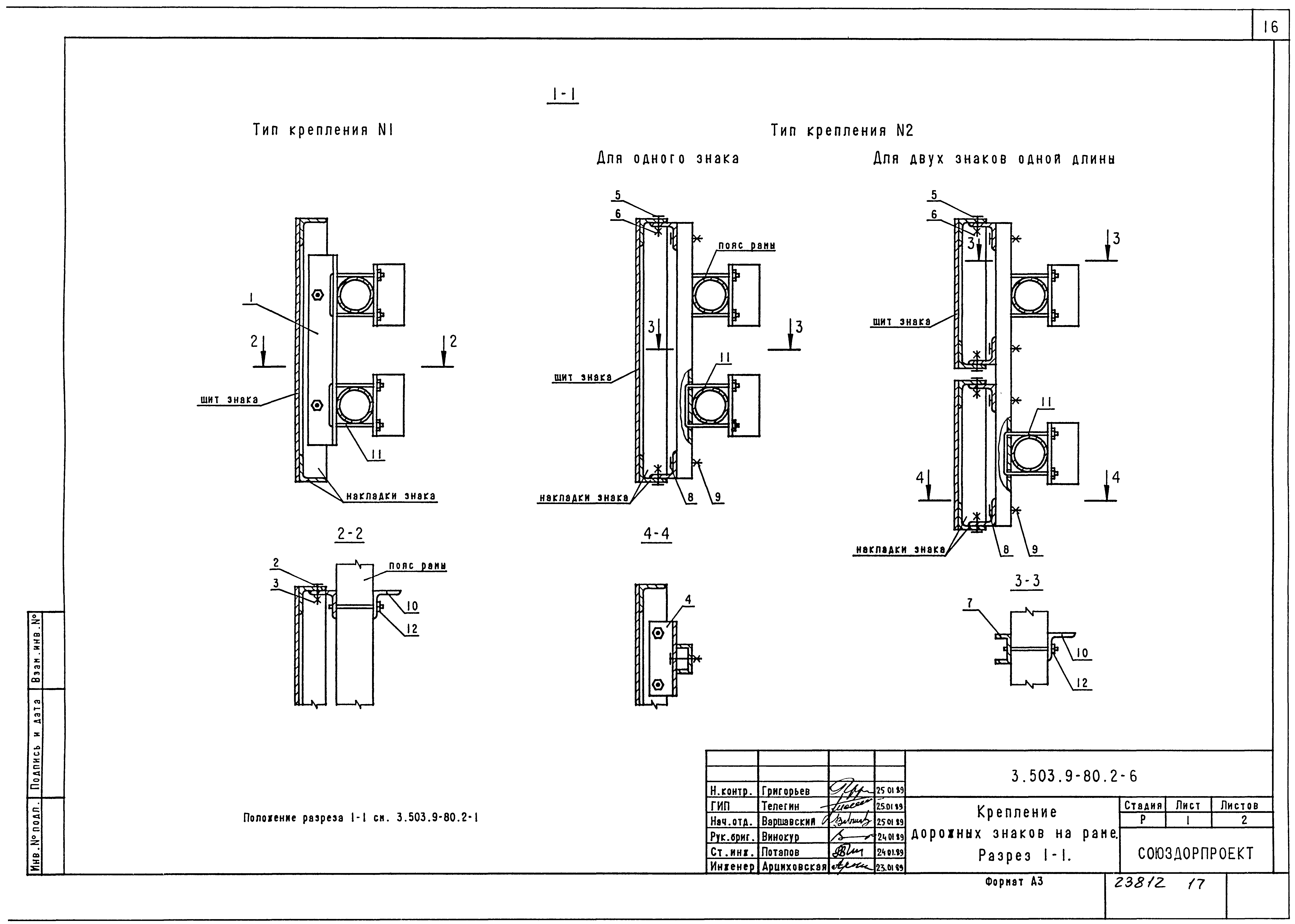
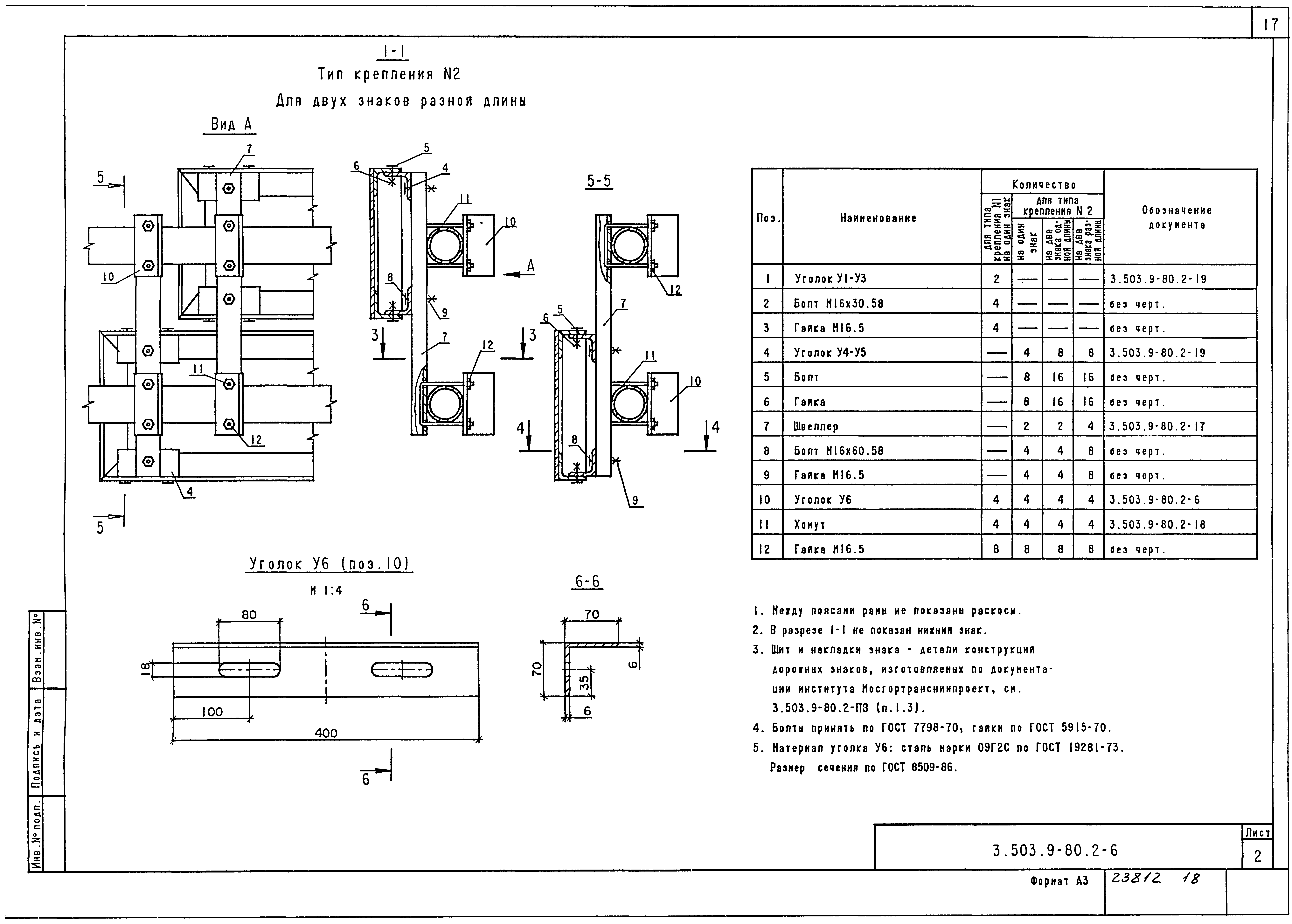
| Оглавление: | 3.503.9-80.2-ПЗ Пояснительная записка 3.503.9-80.2-1 Схемы размещения рамных опор на автомобильной дороге 3.503.9-80.2-2НИ Рамы металлические. Номенклатура 3.503.9-80.2-3НИ Фундаменты. Номенклатура 3.503.9-80.2-4 Рама металлическая РМП1-РМП22 3.503.9-80.2-5 Рама металлическая РМТ1-РМТ4, РМГ1-РМГ-4 3.503.9-80.2-6 Крепление дорожных знаков на раме. Разрез 1-1 3.503.9-80.2-7 Таблица подбора рам и фундаментов 3.503.9-80.2-8 Таблица подбора крепежных изделий для установки знаков 3.503.9-80.2-9ФЧ Фундамент ФМ1-ФМ7 3.503.9-80.2-10 Фундамент ФМ1-ФМ7. Схема армирования 3.503.9-80.2-11 Анкер А1-А5 3.503.9-80.2-12 Сетка С5-С16 3.503.9-80.2-13 Плита ПЛ1-ПЛ4 3.503.9-80.2-14 Косынка К1-К7 3.503.9-80.2-15 Ребро Р1-Р8 3.503.9-80.2-16 Стяжка верхняя СВ1-СВ7 3.503.9-80.2-17 Швеллер Ш1-Ш27 3.503.9-80.2-18 Хомут Х9-Х13 3.503.9-80.2-19 Уголок У1-У5 3.503.9-80.2-20РС Фундамент ФМ1-ФМ7. Ведомость расхода стали |
| Разработан: | Союздорпроект Минтрансстроя |
| Утверждён: | 22.03.1989 Минтрансстрой СССР (USSR Mintransstroy АВ-134) |





























