Скачать Серия 3.507-1 Выпуск I. Материалы для проектированияДата актуализации: 01.01.2021
|
| Обозначение: | Серия 3.507-1 |
| Обозначение англ: | Series 3.507-1 |
| Статус: | справочные материалы, мп, тпр |
| Название рус.: | Выпуск I. Материалы для проектирования |
| Дата добавления в базу: | 01.10.2014 |
| Дата актуализации: | 01.01.2021 |
| Дата введения: | 11.12.1967 |
| Дата окончания срока действия: | 17.03.1999 |
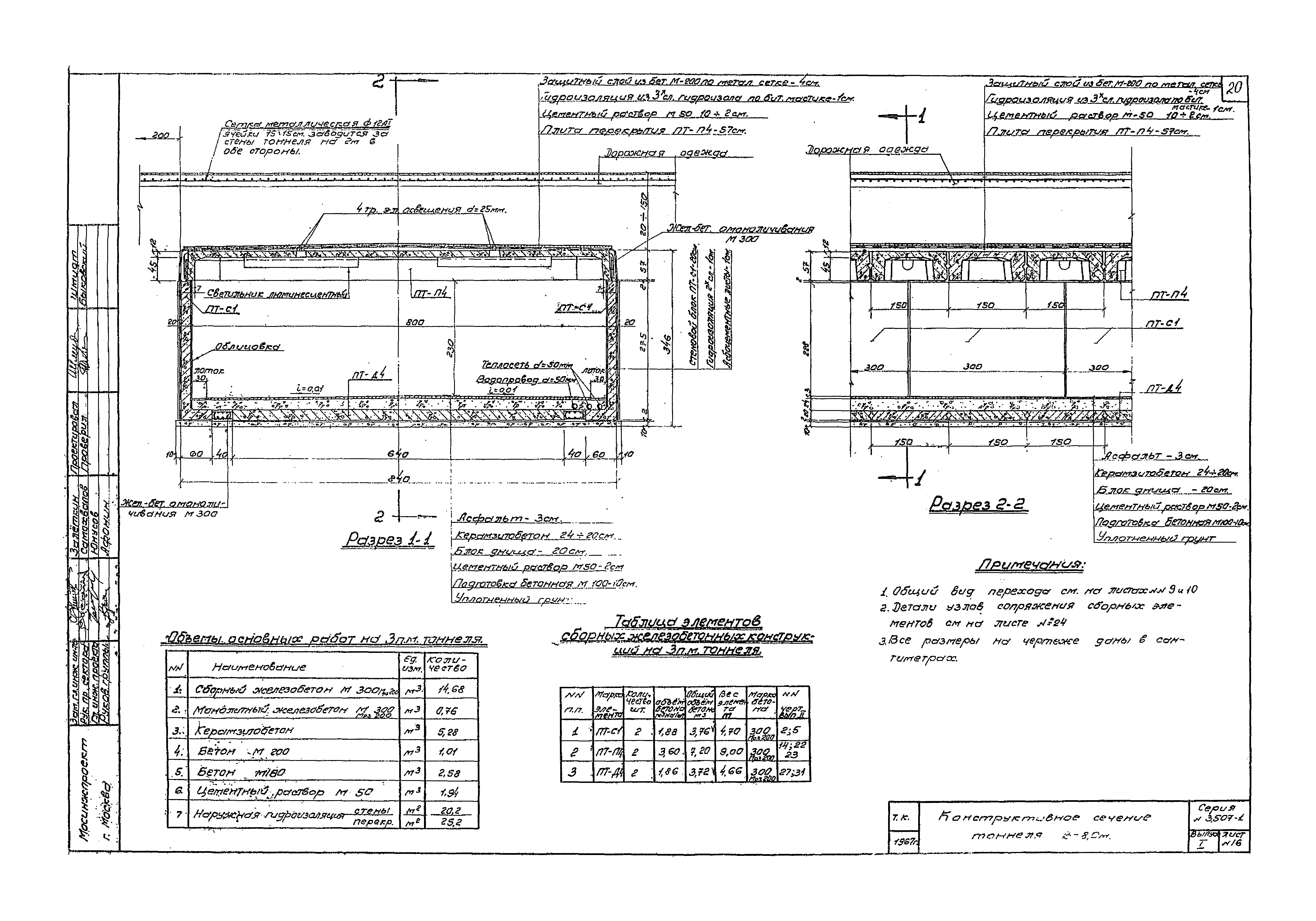
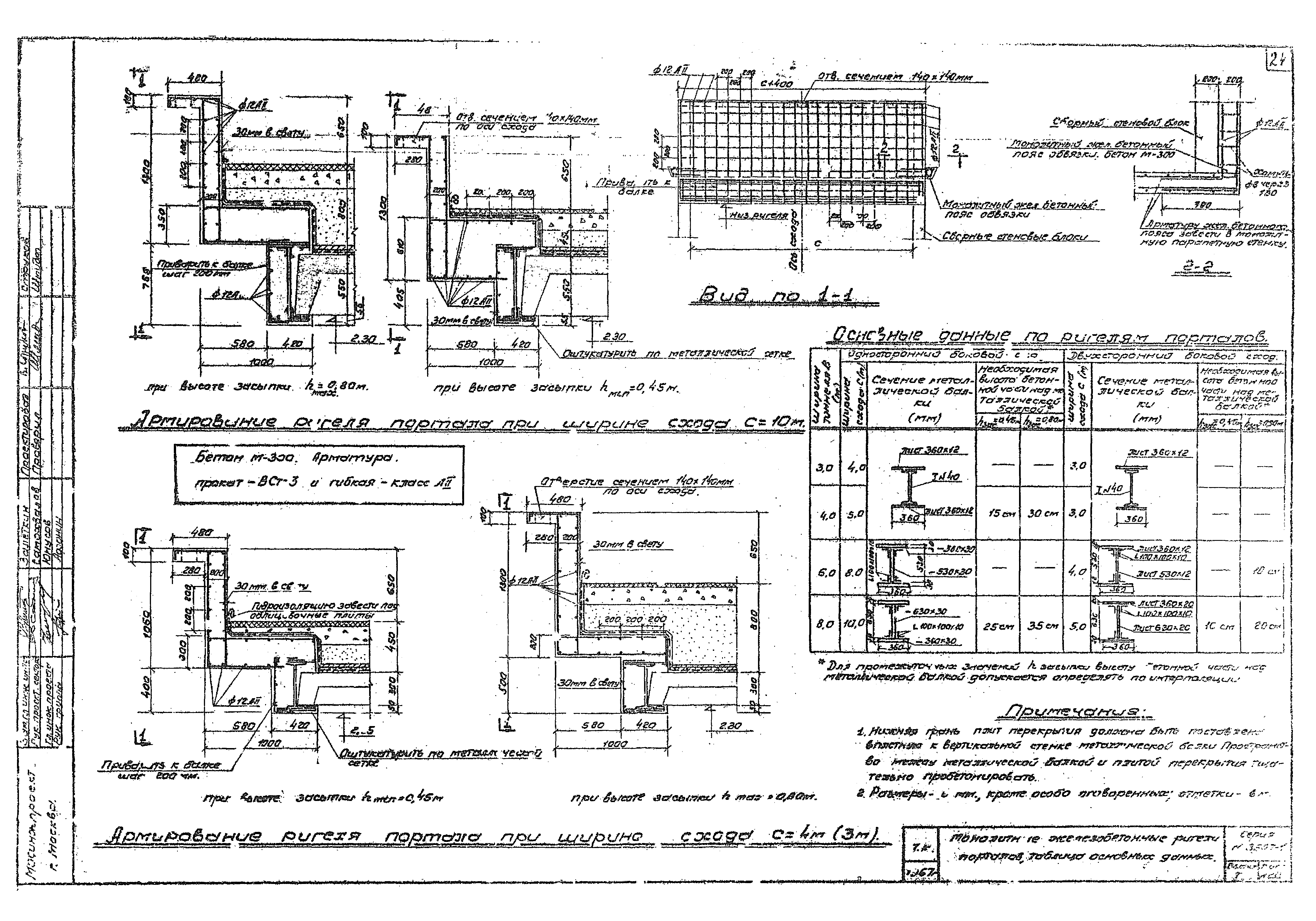
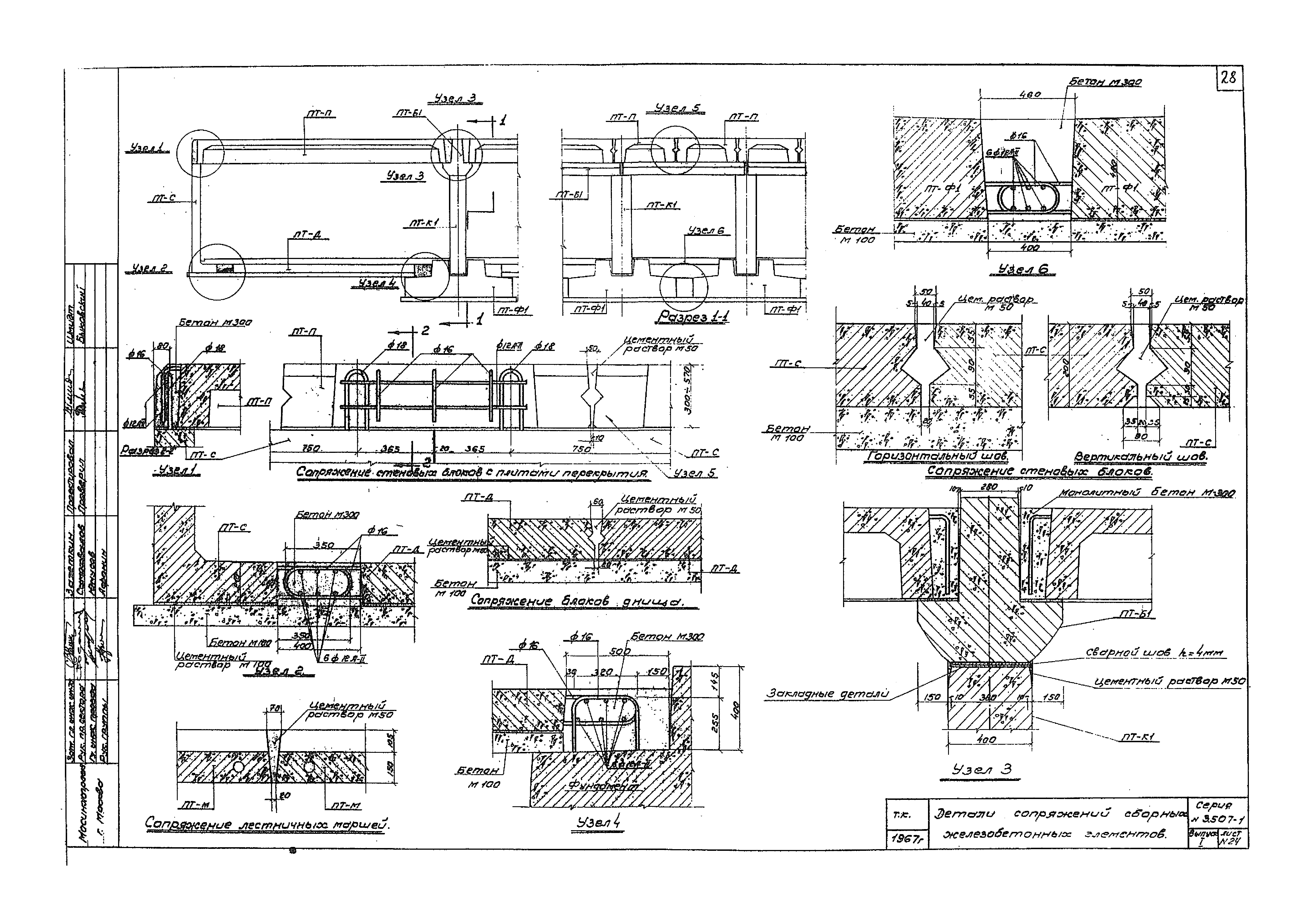
| Оглавление: | Пояснительная записка Основные показатели сборных железобетонных элементов пешеходных переходов Расчетные схемы и нагрузки Переход с шириной тоннельной части В = 3,0 м. План и разрезы Переход с шириной тоннельной части В = 4,0 м. План Переход с шириной тоннельной части В = 4,0 м. Разрезы Переход с шириной тоннельной части В = 6,0 м. План Переход с шириной тоннельной части В = 6,0 м. Разрезы Переход с шириной тоннельной части В = 8,0 м. План Переход с шириной тоннельной части В = 8,0 м. Разрезы Общий вид перехода. План Продольный разрез 1-1 и разрез 2-2 Конструктивное сечение тоннеля В = 3,0 м Конструктивное сечение тоннеля В = 4,0 м Конструктивное сечение тоннеля В = 6,0 м Конструктивное сечение тоннеля В = 8,0 м Конструктивное сечение тоннеля В = 2х6,0 м Конструктивное сечение тоннеля В = 2х8,0 м Конструктивное сечение тоннеля В = 4,0 м из объемных элементов Монолитные железобетонные ригели порталов, таблица основных данных Поперечные разрезы по лестничным сходам Узлы опирания лестничных маршей при количестве ступеней 23, 24, 27, 28, 31, 32, 34 Узлы опирания лестничных маршей при количестве ступеней 25, 26, 29, 30, 33 Детали сопряжений сборных железобетонных элементов Детали устройства деформационных швов |
| Разработан: | Мосинжпроект |
| Утверждён: | 11.12.1967 Мосинжпроект (Mosinzhproject 194) |





























