Скачать Серия 3.503.1-85 Выпуск 1. Блоки. Рабочие чертежиДата актуализации: 01.01.2021
|
| Обозначение: | Серия 3.503.1-85 |
| Обозначение англ: | Series 3.503.1-85 |
| Статус: | не определен законодательством |
| Название рус.: | Выпуск 1. Блоки. Рабочие чертежи |
| Дата добавления в базу: | 01.09.2013 |
| Дата актуализации: | 01.01.2021 |
| Дата введения: | 01.07.1988 |
| Дата окончания срока действия: | 30.06.2003 |
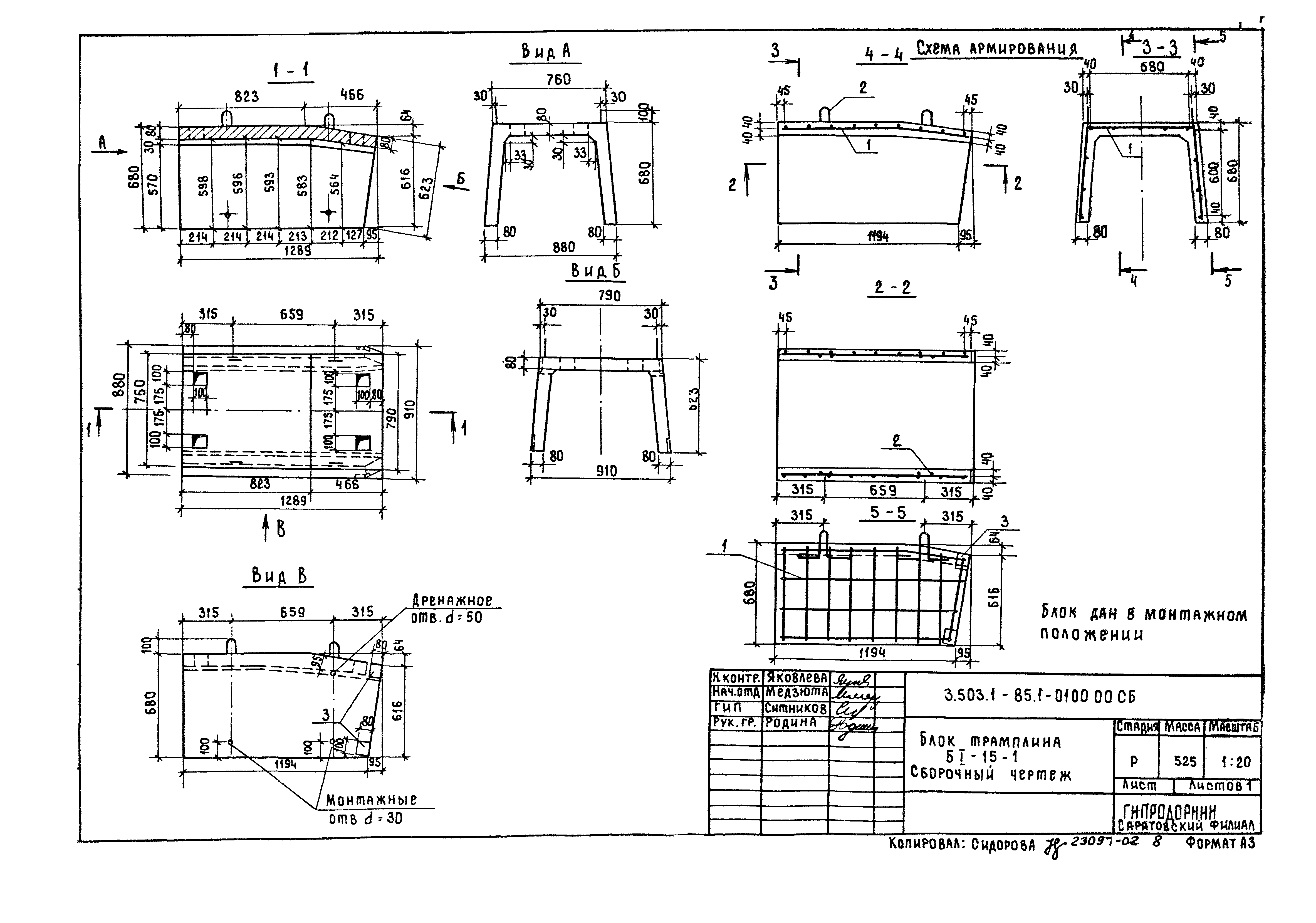
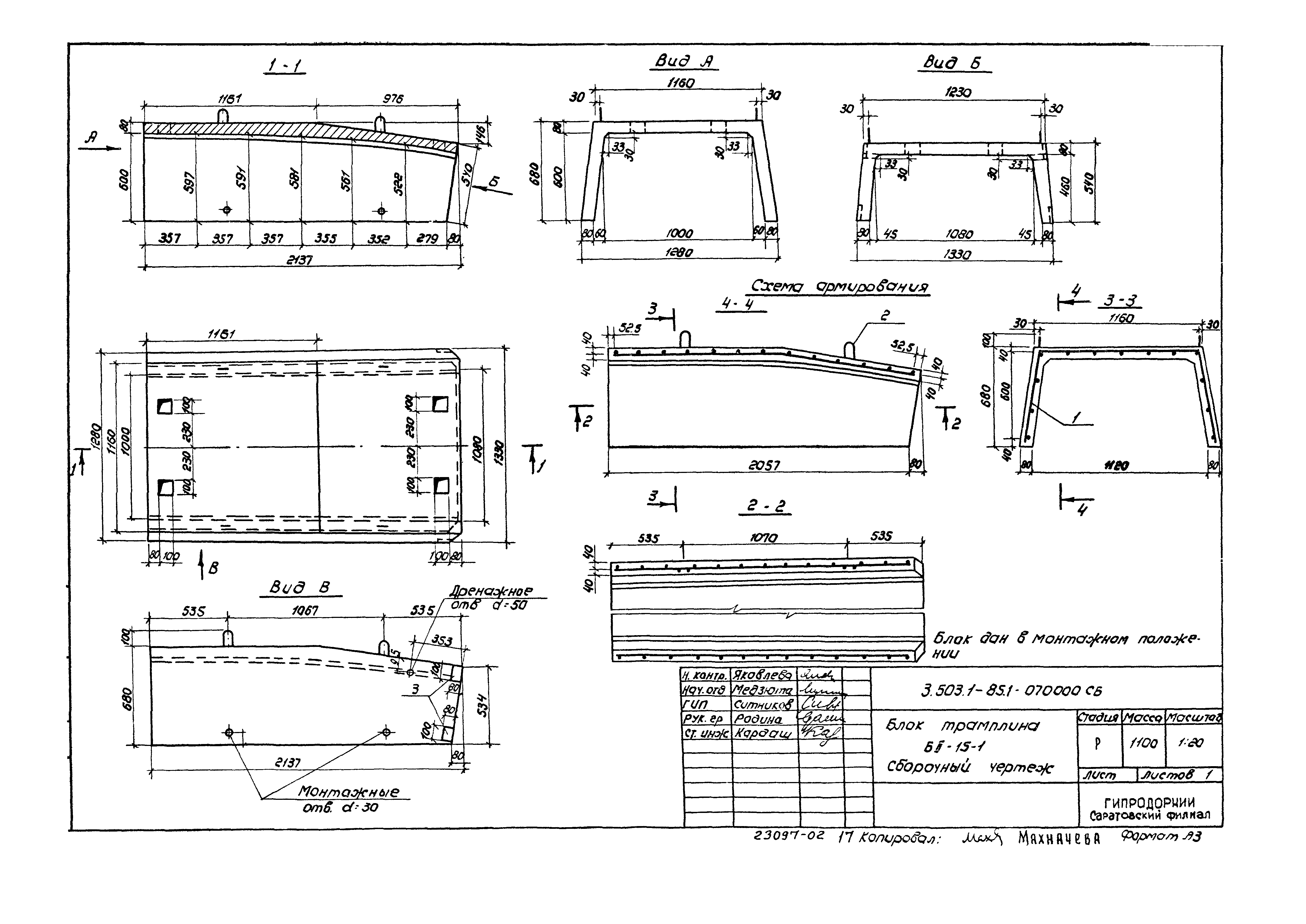
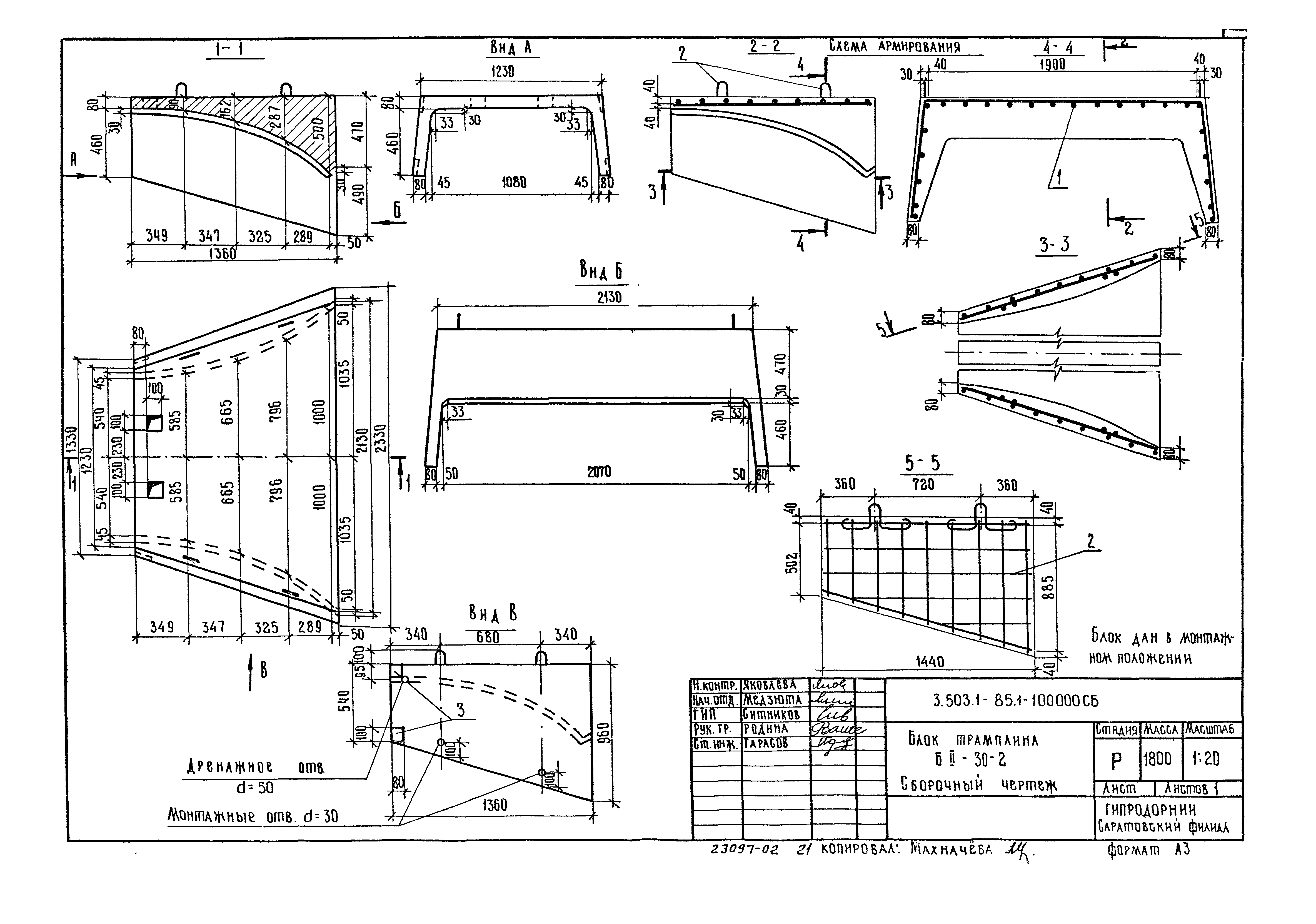
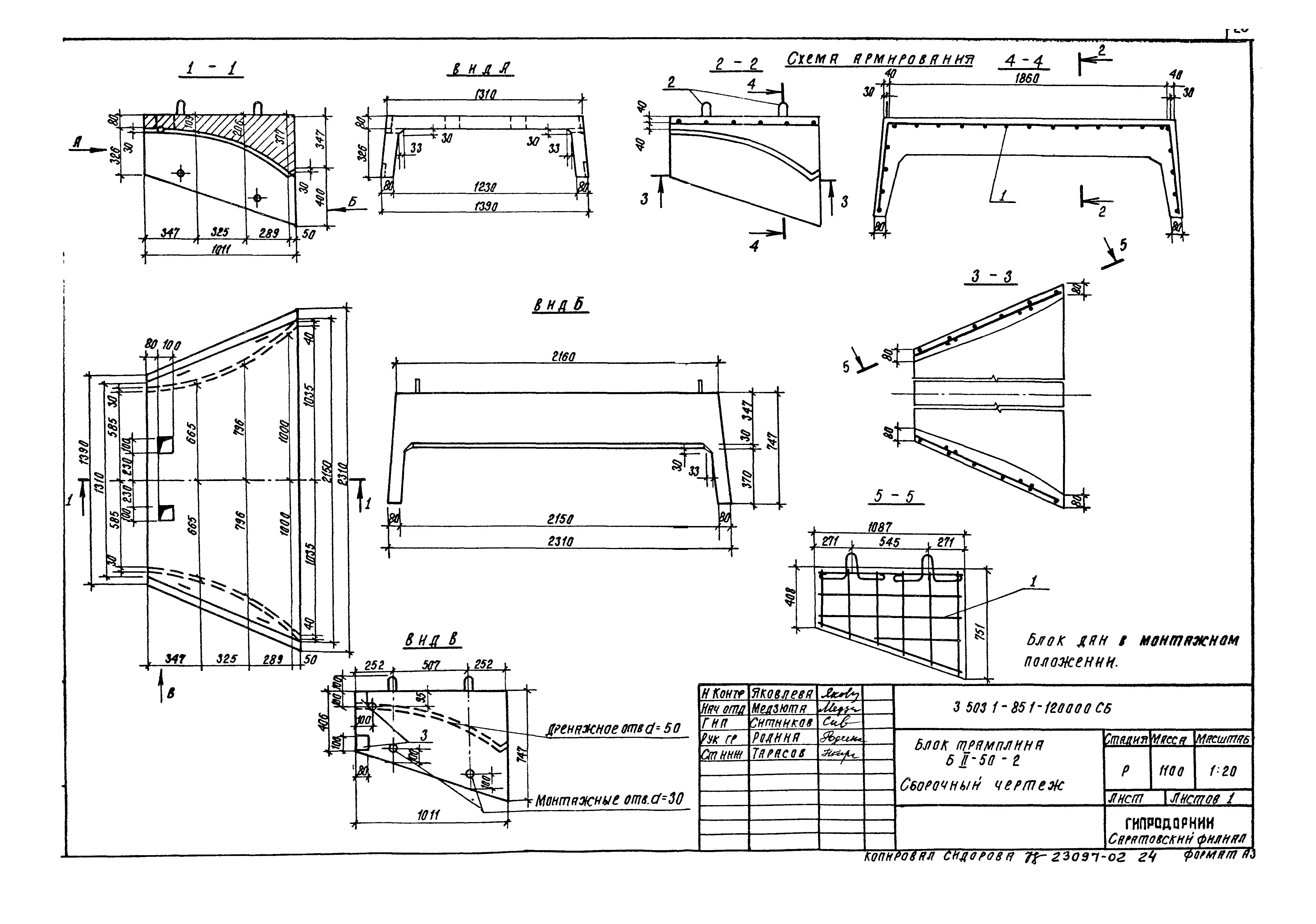
| Оглавление: | 3.503.1-85.1-000000ТТ Технические требования 3.503.1-85.1-000000НИ Номенклатура блоков 3.503.1-85.1-000000РМ Ведомость расхода материалов 3.503.1-85.1-000000РС Ведомость расхода стали 3.503.1-85.1-010000 Блок трамплина БI-15-1 3.503.1-85.1-010000СБ Блок трамплина БI-15-1. Сборочный чертеж 3.503.1-85.1-020000 Блок трамплина БI-15-2 3.503.1-85.1-020000СБ Блок трамплина БI-15-2. Сборочный чертеж 3.503.1-85.1-030000 Блок трамплина БI-30-1 3.503.1-85.1-030000СБ Блок трамплина БI-30-1. Сборочный чертеж 3.503.1-85.1-040000 Блок трамплина БI-30-2 3.503.1-85.1-040000СБ Блок трамплина БI-30-2. Сборочный чертеж 3.503.1-85.1-050000 Блок трамплина БI-50-1 3.503.1-85.1-050000СБ Блок трамплина БI-50-1. Сборочный чертеж 3.503.1-85.1-060000 Блок трамплина БI-50-2 3.503.1-85.1-060000СБ Блок трамплина БI-50-2. Сборочный чертеж 3.503.1-85.1-070000 Блок трамплина БII-15-1 3.503.1-85.1-070000СБ Блок трамплина БII-15-1. Сборочный чертеж 3.503.1-85.1-080000СБ Блок трамплина БII-15-2. Сборочный чертеж 3.503.1-85.1-080000 Блок трамплина БII-15-2 3.503.1-85.1-090000 Блок трамплина БII-30-1 3.503.1-85.1-090000СБ Блок трамплина БII-30-1. Сборочный чертеж 3.503.1-85.1-100000СБ Блок трамплина БII-30-2. Сборочный чертеж 3.503.1-85.1-100000 Блок трамплина БII-30-2 3.503.1-85.1-110000 Блок трамплина БII-50-1 3.503.1-85.1-110000СБ Блок трамплина БII-50-1. Сборочный чертеж 3.503.1-85.1-120000СБ Блок трамплина БII-50-2. Сборочный чертеж 3.503.1-85.1-120000 Блок трамплина БII-50-2 3.503.1-85.1-000100 Каркас арматурный К-1 3.503.1-85.1-000200 Каркас арматурный К-2 3.503.1-85.1-000300 Каркас арматурный К-3 3.503.1-85.1-000400 Каркас арматурный К-4 3.503.1-85.1-000500 Каркас арматурный К-5 3.503.1-85.1-000600 Каркас арматурный К-6 3.503.1-85.1-000700 Каркас арматурный К-7 3.503.1-85.1-000900 Каркас арматурный К-9 3.503.1-85.1-001000 Каркас арматурный К-10 3.503.1-85.1-000800 Каркас арматурный К-8 3.503.1-85.1-001100 Изделие закладное ЗД-1 3.503.1-85.1-000001 Петля строповочная ПС-1 3.503.1-85.1-000002 Отогнутый стержень 3.503.1-85.1-000003 Отогнутый стержень 3.503.1-85.1-000004 Отогнутый стержень 3.503.1-85.1-000005 Отогнутый стержень 3.503.1-85.1-000006 Отогнутый стержень 3.503.1-85.1-000007 Отогнутый стержень 3.503.1-85.1-000008 Отогнутый стержень |
| Разработан: | Саратовский филиал Гипродорнии |
| Утверждён: | 01.06.1987 Министерство автомобильных дорог РСФСР (14) |
| Издан: | ЦИТП Госстроя СССР (CITP, Gosstroy (USSR) 1988 г. ) |



































