Скачать Серия 3.504.1-23 Выпуск 0. Материалы для проектированияДата актуализации: 01.01.2021
|
| Обозначение: | Серия 3.504.1-23 |
| Обозначение англ: | Series 3.504.1-23 |
| Статус: | действует |
| Название рус.: | Выпуск 0. Материалы для проектирования |
| Дата добавления в базу: | 01.09.2013 |
| Дата актуализации: | 01.01.2021 |
| Дата введения: | 01.04.1987 |
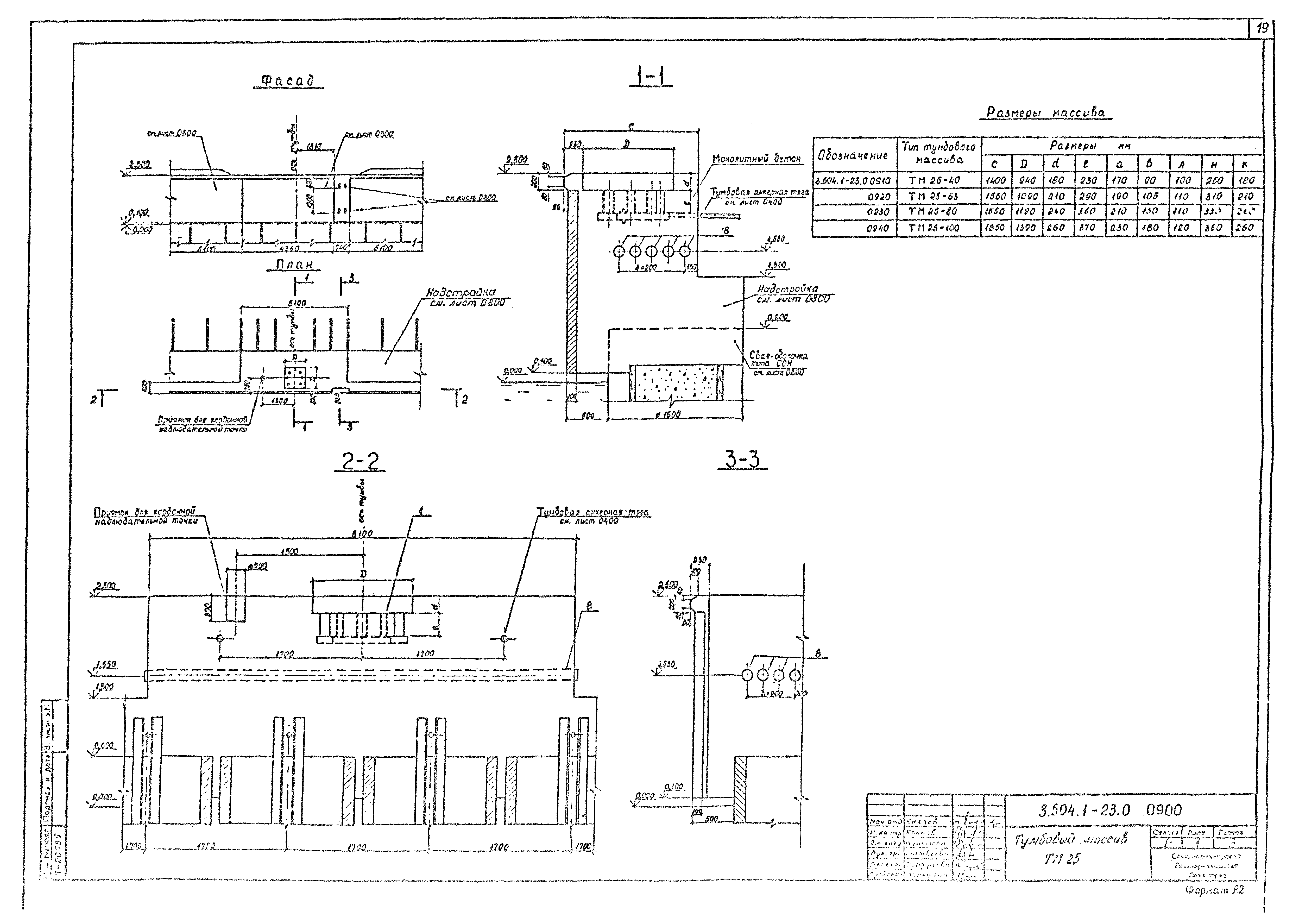
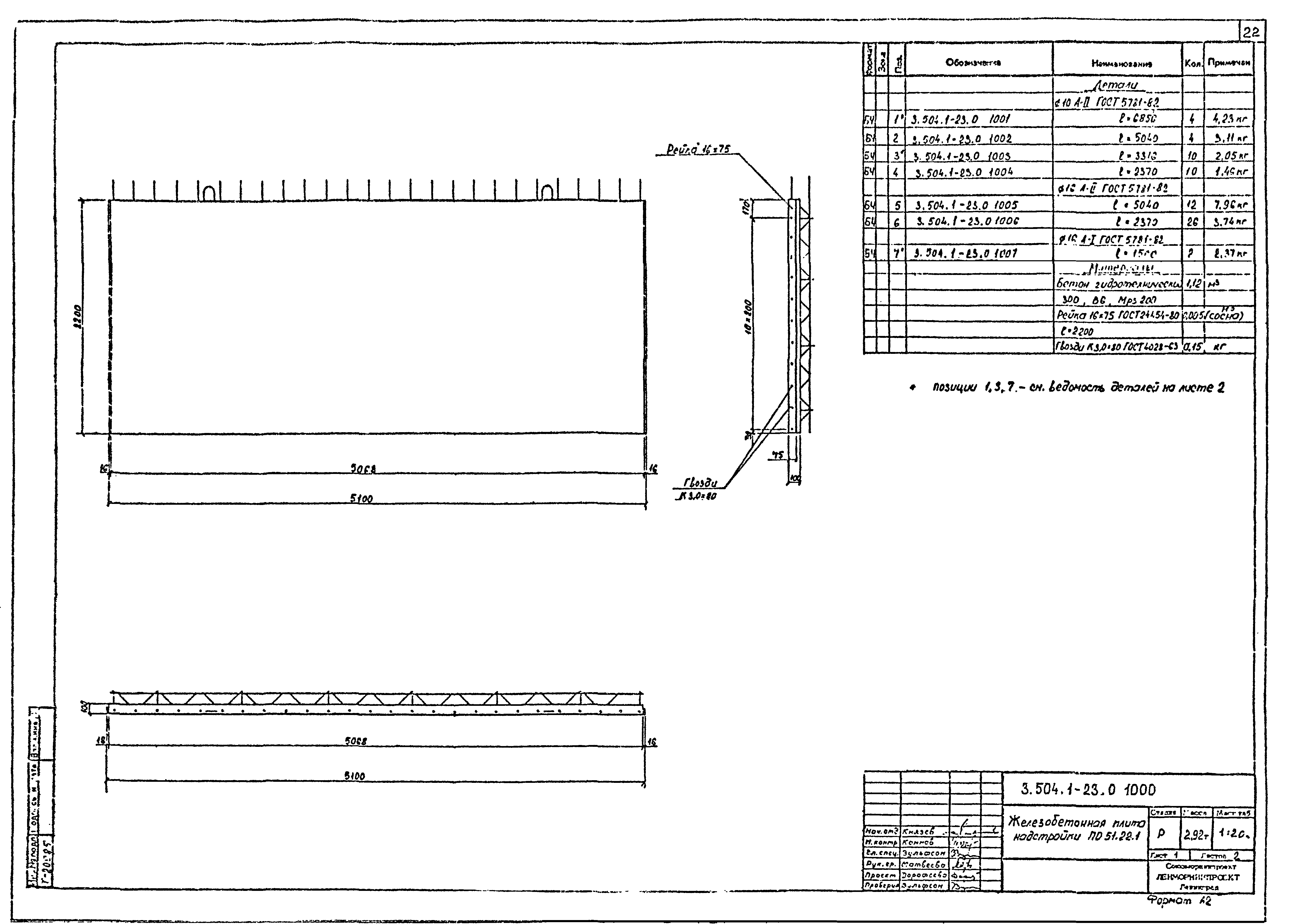
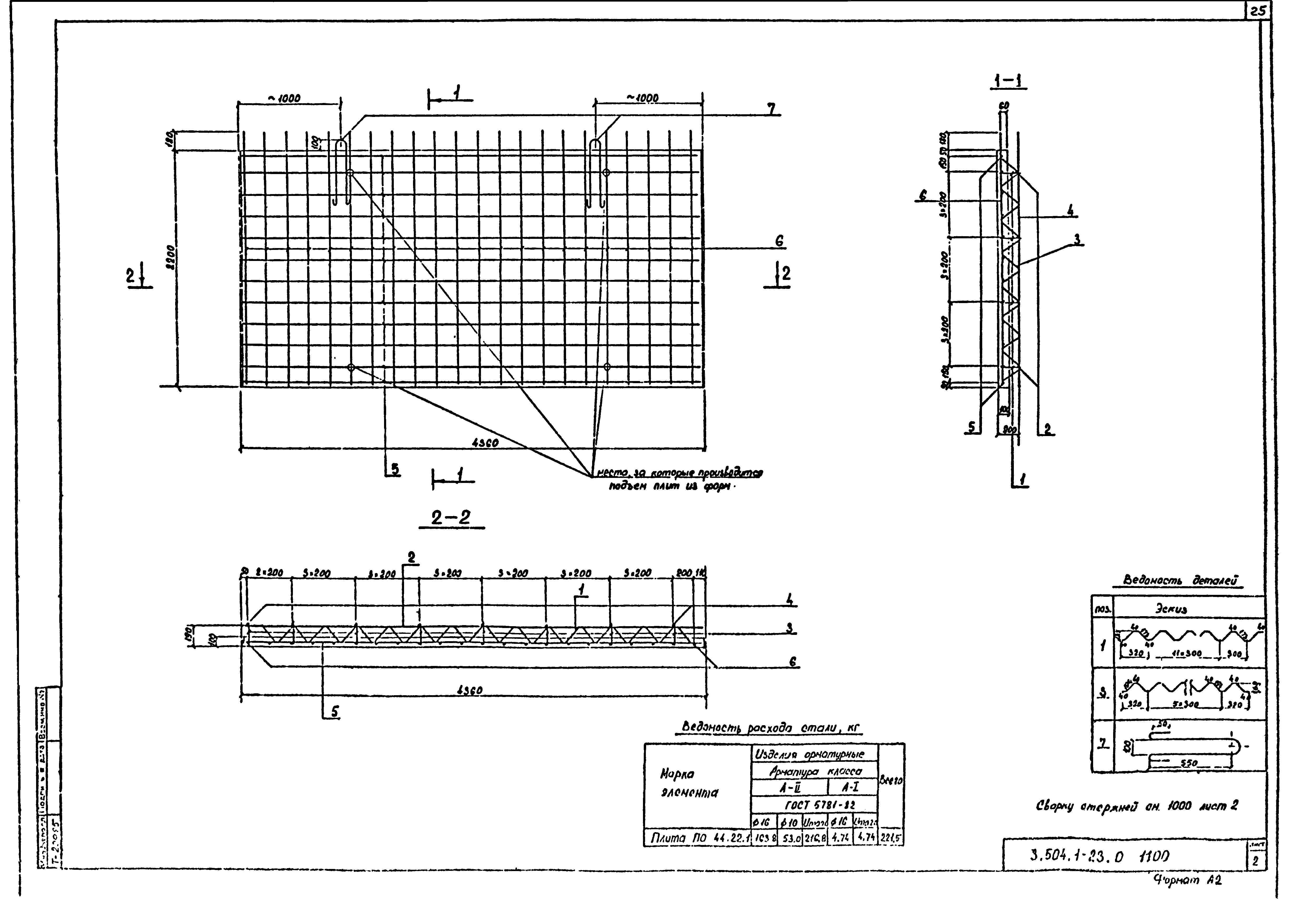
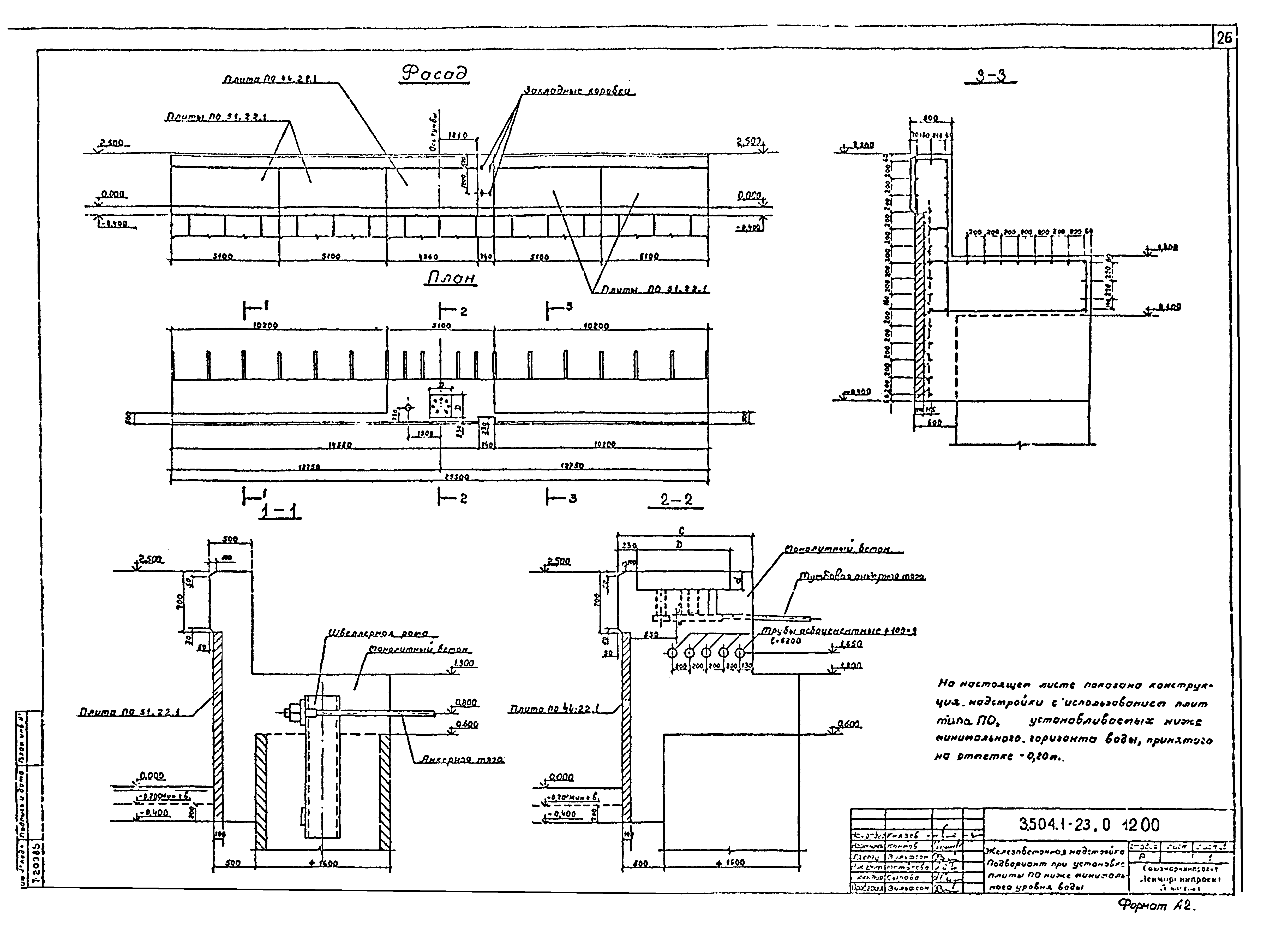
| Оглавление: | 3.504.1-23.0.0000ПЗ Пояснительная записка 3.504.1-23.0.0100 План, разрез I-I; узлы 3.504.1-23.0.0200 Свая-оболочка. Стык звеньев 3.504.1-23.0.0300 Заполнение швов между сваями-ободочками. Пример решения 3.504.1-23.0.0400 Монтажные схемы анкерных тяг 3.504.1-23.0.0500 Швеллерная рама ШР 3.504.1-23.0.0600 Распределительный пояс. Пример решения 3.504.1-23.0.0700 Дренажное устройство. Пример решения 3.504.1-23.0.0800 Железобетонная надстройка Н25.255 3.504.1-23.0.0900 Тумбовый массив ТМ25 3.504.1-23.0.1000 Железобетонная плита надстройки ПО 51.22.1 3.504.1-23.0.1100 Железобетонная плита надстройки ПО 44.22.2 3.504.1-23.0.1200 Железобетонная надстройка. Подвариант при установке плиты ПО ниже минимального уровня воды 3.504.1-23.0.1300 Стык анкерных тяг на накладках |
| Разработан: | Ленморниипроект |
| Утверждён: | 26.06.1985 Министерство морского флота СССР (USSR Ministry of the Merchant Marine ) |



























