Скачать Серия 3.504.1-24 Выпуск 2. Анкерные сваи АСШ и анкерные плиты АПШ. Рабочие чертежиДата актуализации: 01.01.2021
|
| Обозначение: | Серия 3.504.1-24 |
| Обозначение англ: | Series 3.504.1-24 |
| Статус: | не определен законодательством |
| Название рус.: | Выпуск 2. Анкерные сваи АСШ и анкерные плиты АПШ. Рабочие чертежи |
| Дата добавления в базу: | 01.09.2013 |
| Дата актуализации: | 01.01.2021 |
| Дата введения: | 06.03.1987 |
| Дата окончания срока действия: | 30.06.2003 |
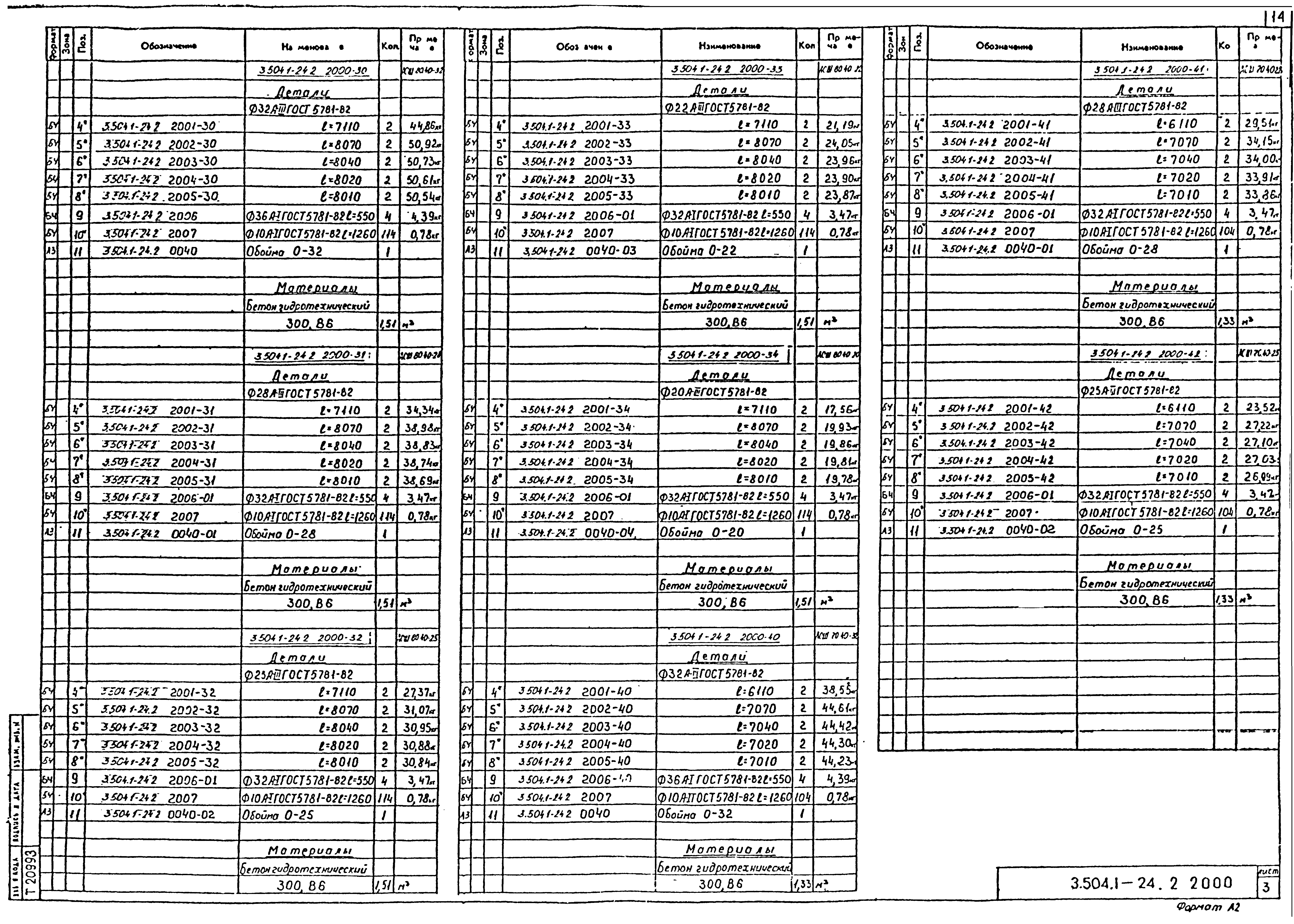
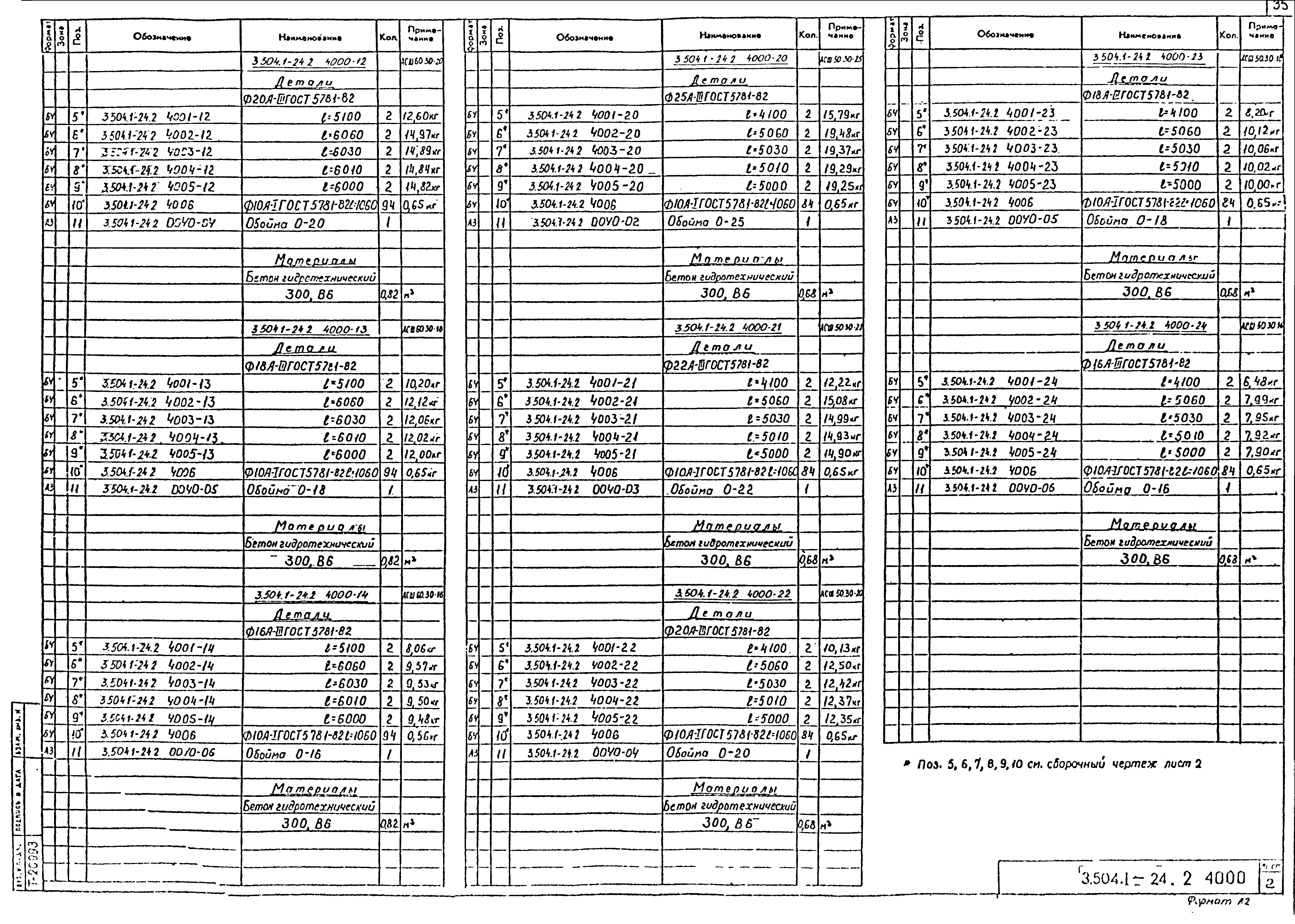
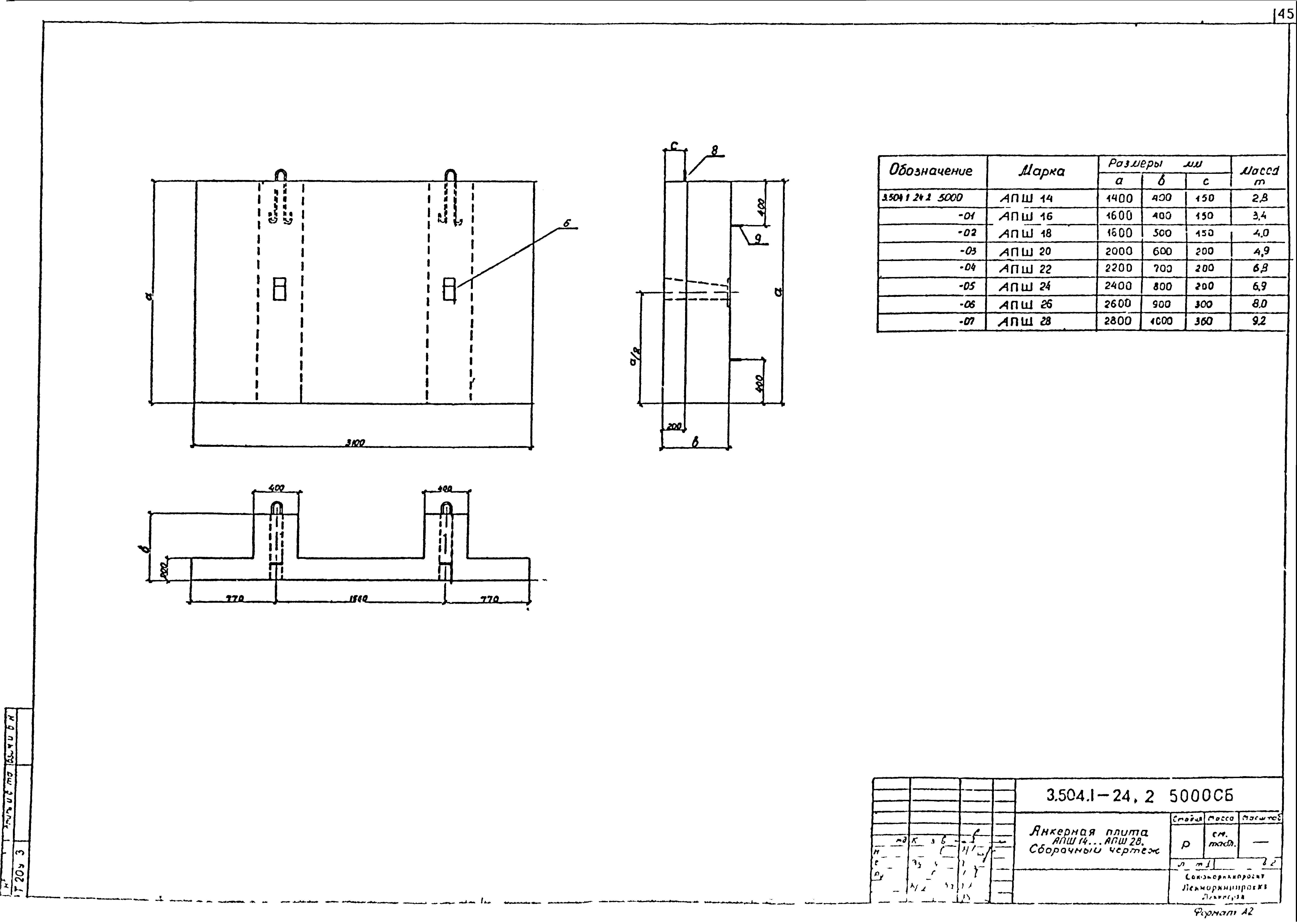
| Оглавление: | 3.504.1-24.2 0000ПЗ Пояснительная записка 3.504.1-24.2 0000Н Номенклатура свай и плит 3.504.1-24.2 1000 Анкерная свая АСШ 80.45…АСШ 110.45 3.504.1-24.2 1000 СБ Анкерная свая АСШ 80.45…АСШ 110.45. Сборочный чертеж 3.504.1-24.2 1100 Анкерная свая АСШ 80.45…АСШ 110.45-с 3.504.1-24.2 1100 СБ Анкерная свая АСШ 80.45…АСШ 110.45-с. Сборочный чертеж 3.504.1-24.2 2000 Анкерная свая АСШ 70.40…АСШ 110.40 3.504.1-24.2 2000 СБ Анкерная свая АСШ 70.40…АСШ 110.40. Сборочный чертеж 3.504.1-24.2 2100 Анкерная свая АСШ 70.40…АСШ 110.40-с 3.504.1-24.2 2100 СБ Анкерная свая АСШ 70.40…АСШ 110.40-с. Сборочный чертеж 3.504.1-24.2 3000 Анкерная свая АСШ 60.35…АСШ 90.35 3.504.1-24.2 3000 СБ Анкерная свая АСШ 60.35…АСШ 90.35. Сборочный чертеж 3.504.1-24.2 3100 Анкерная свая АСШ 60.35…АСШ 90.35-с 3.504.1-24.2 3100 СБ Анкерная свая АСШ 60.35…АСШ 90.35-с. Сборочный чертеж 3.504.1-24.2 4000 Анкерная свая АСШ 50.30…АСШ 70.30 3.504.1-24.2 4000 СБ Анкерная свая АСШ 50.30…АСШ 70.30. Сборочный чертеж 3.504.1-24.2 4100 Анкерная свая АСШ 50.30…АСШ 70.30-с 3.504.1-24.2 4100 СБ Анкерная свая АСШ 50.30…АСШ 70.30-с. Сборочный чертеж 3.504.1-24.2 0010 Сетка С 3.504.1-24.2 0020 Сетка С-с 3.504.1-24.2 0030 Петля 3.504.1-24.2 0040 Обойма 3.504.1-24.2 5000 Анкерная плита АПШ 14…АПШ 28 3.504.1-24.2 5000 СБ Анкерная плита АПШ 14…АПШ 28. Сборочный чертеж 3.504.1-24.2 5010 Каркас К-1 3.504.1-24.2 5050 Сетка С-3 3.504.1-24.2 5030 Сетка С-1 3.504.1-24.2 5040 Сетка С-2 3.504.1-24.2 5020 Каркас К-2 3.504.1-24.2 5070 Петля 3.504.1-24.2 5060 Закладное изделие М1 3.504.1-24.2 5061 Щека 3.504.1-24.2 5062 Подкладка 3.504.1-24.2 0000РС Ведомость расхода стали 3.504.1-24.2 0000РМ Ведомость расхода материалов |
| Разработан: | Ленморниипроект |
| Утверждён: | 26.06.1985 Министерство морского флота СССР (USSR Ministry of the Merchant Marine ) |

























































