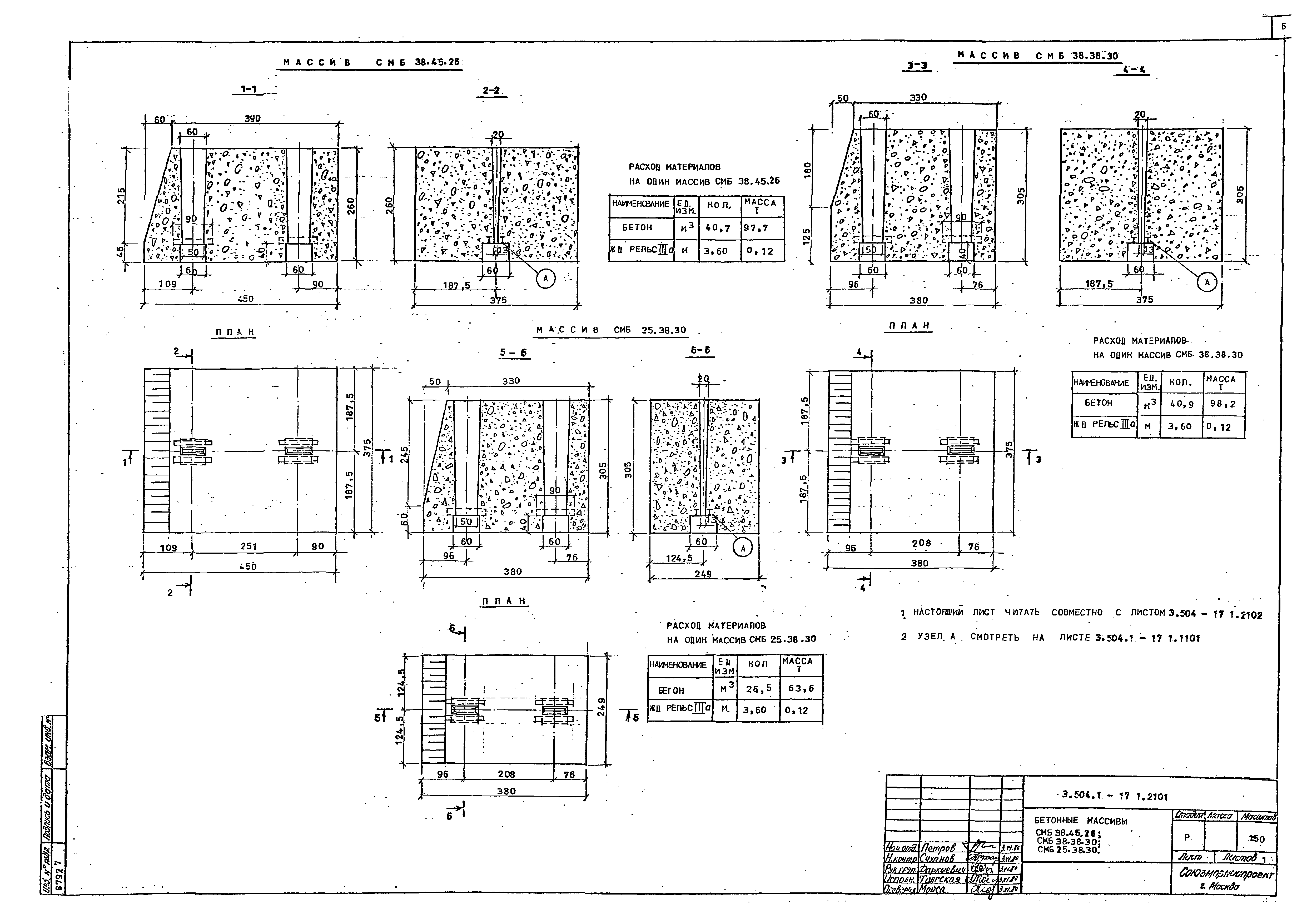
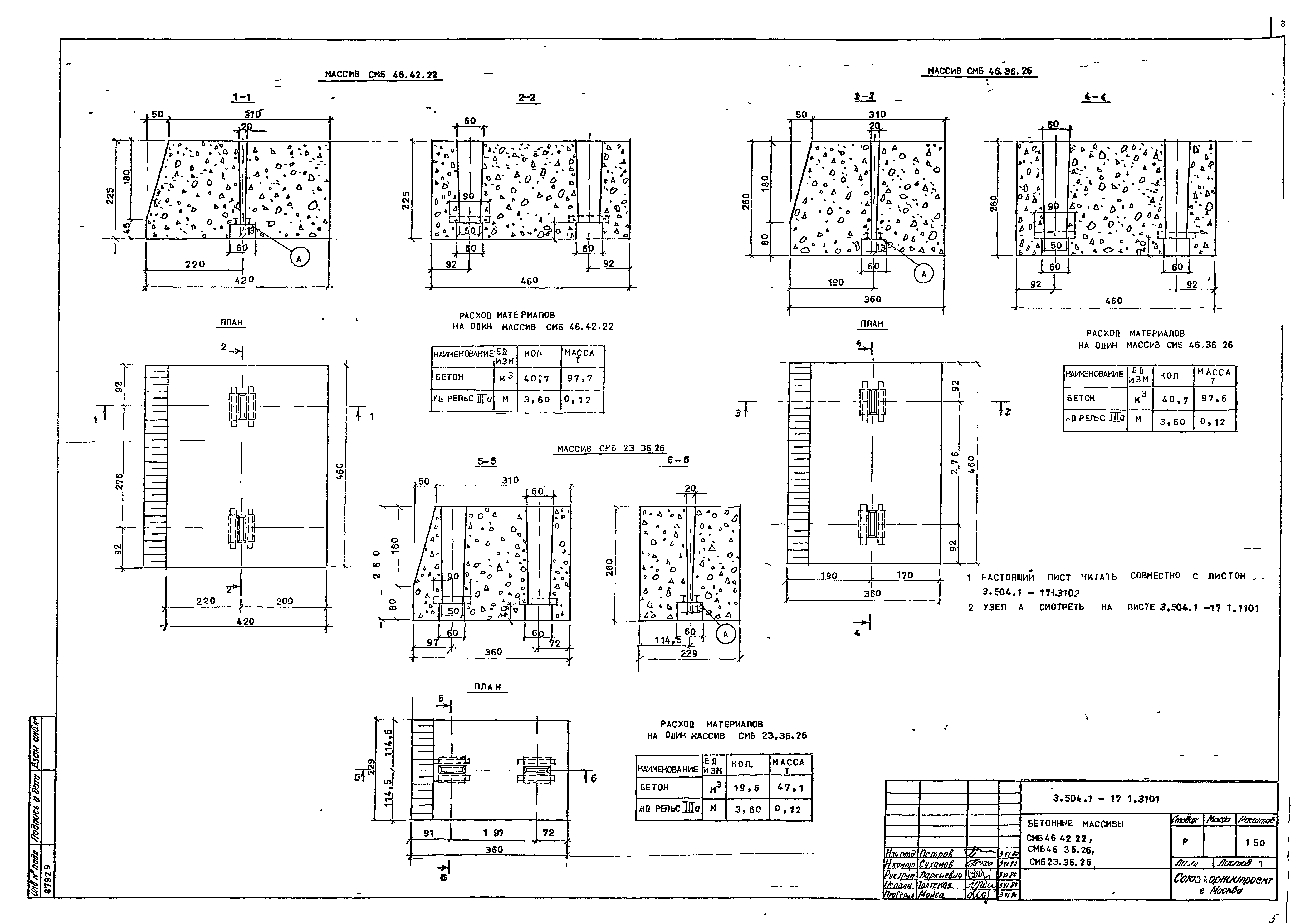
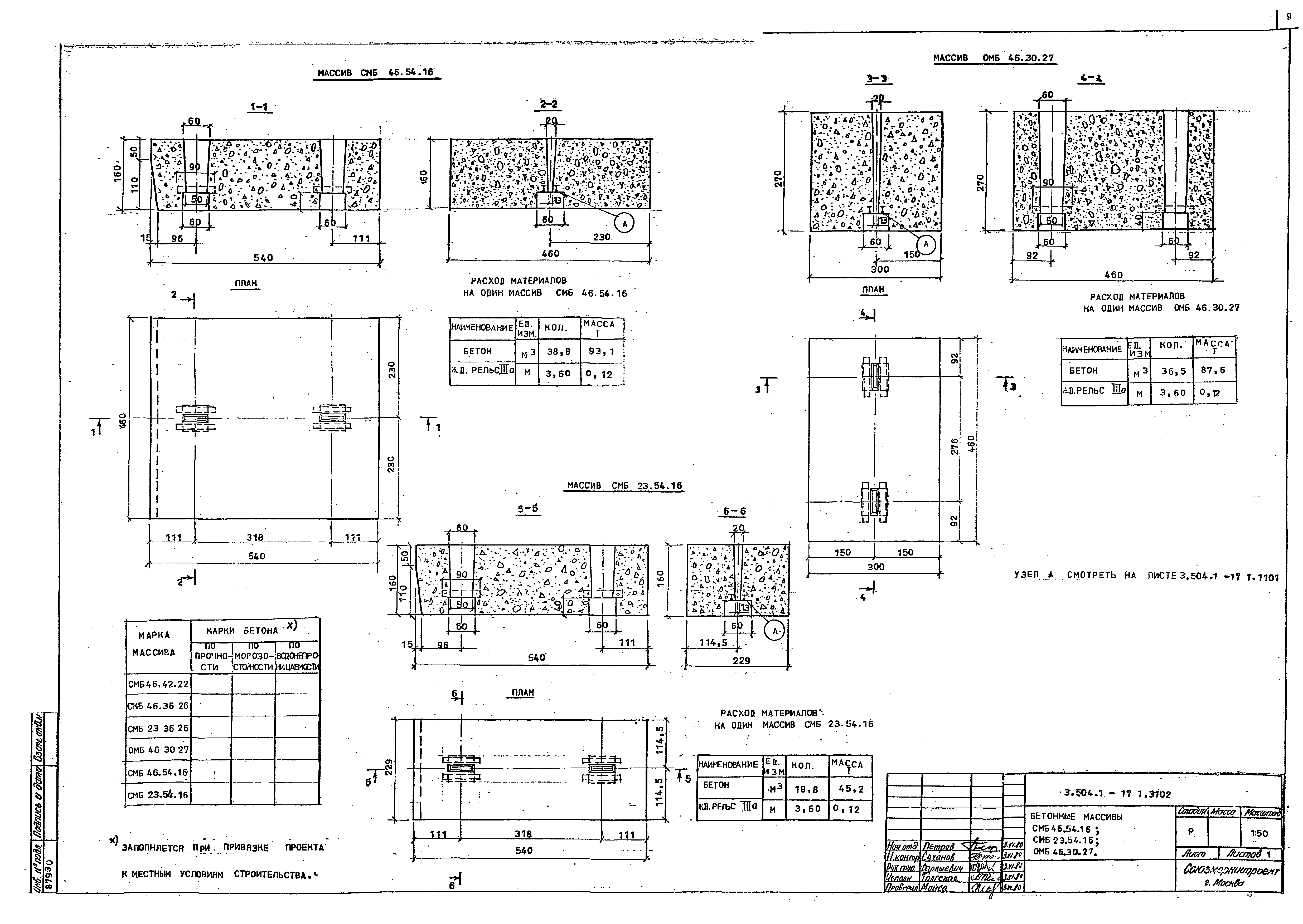
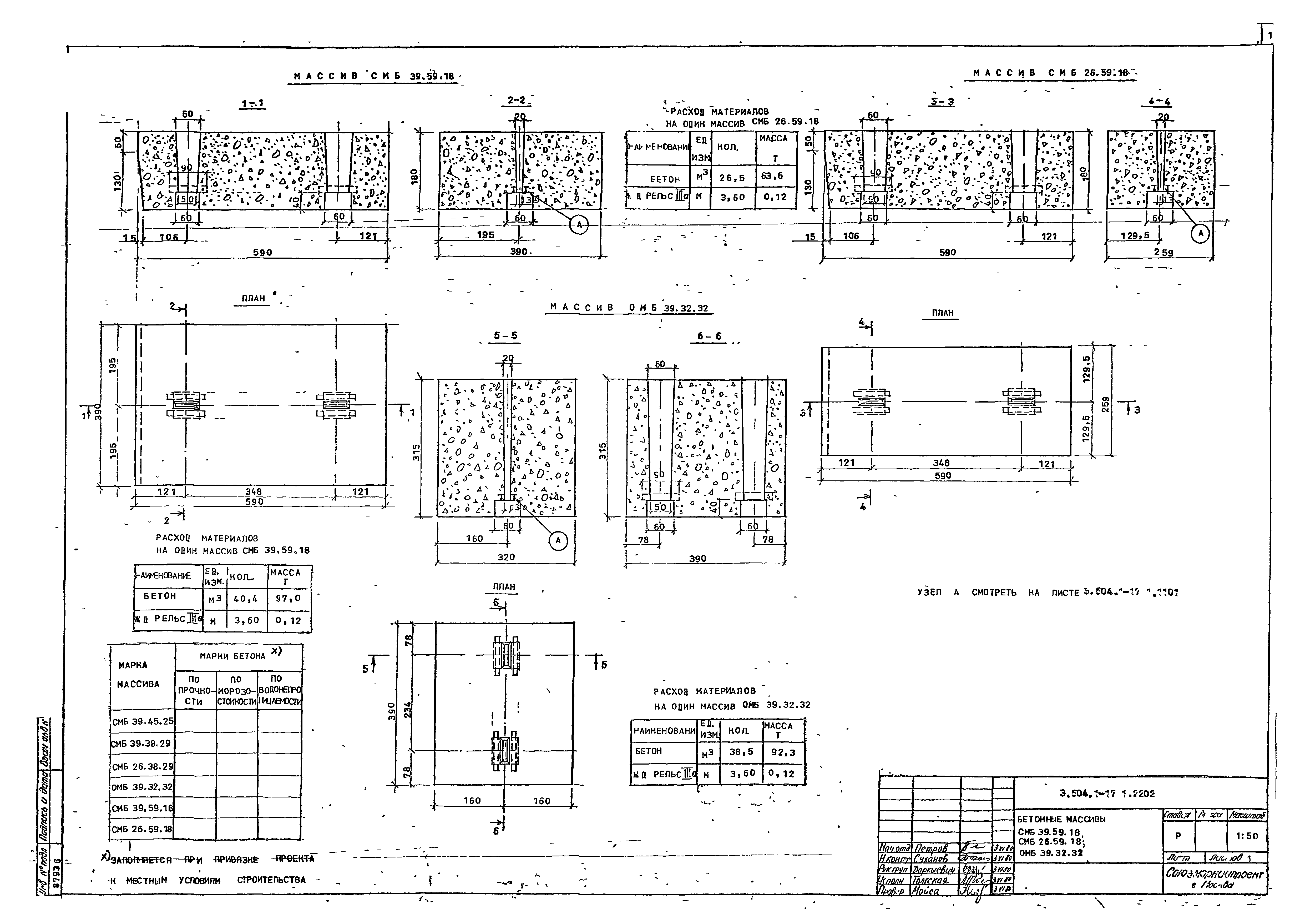
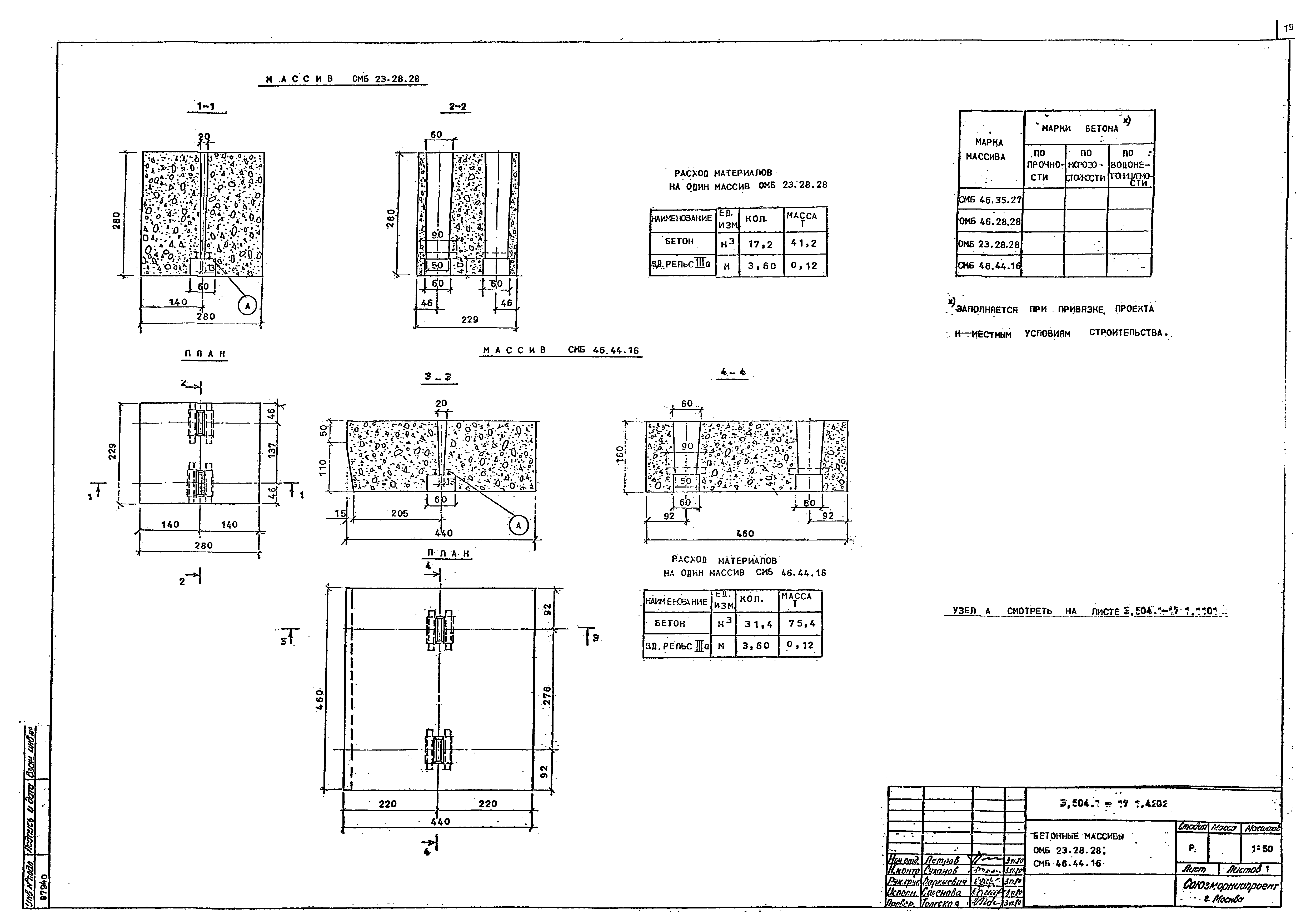
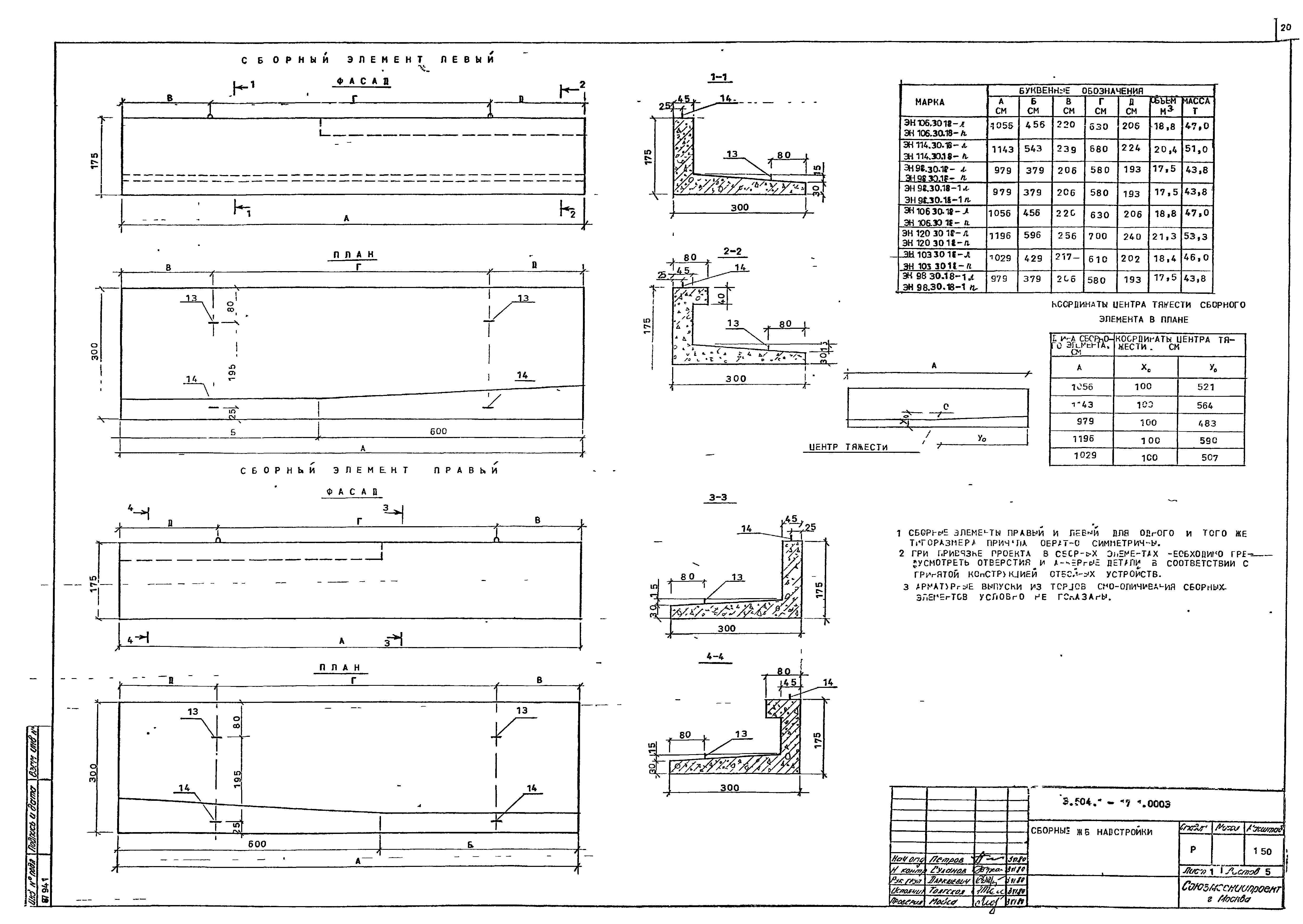
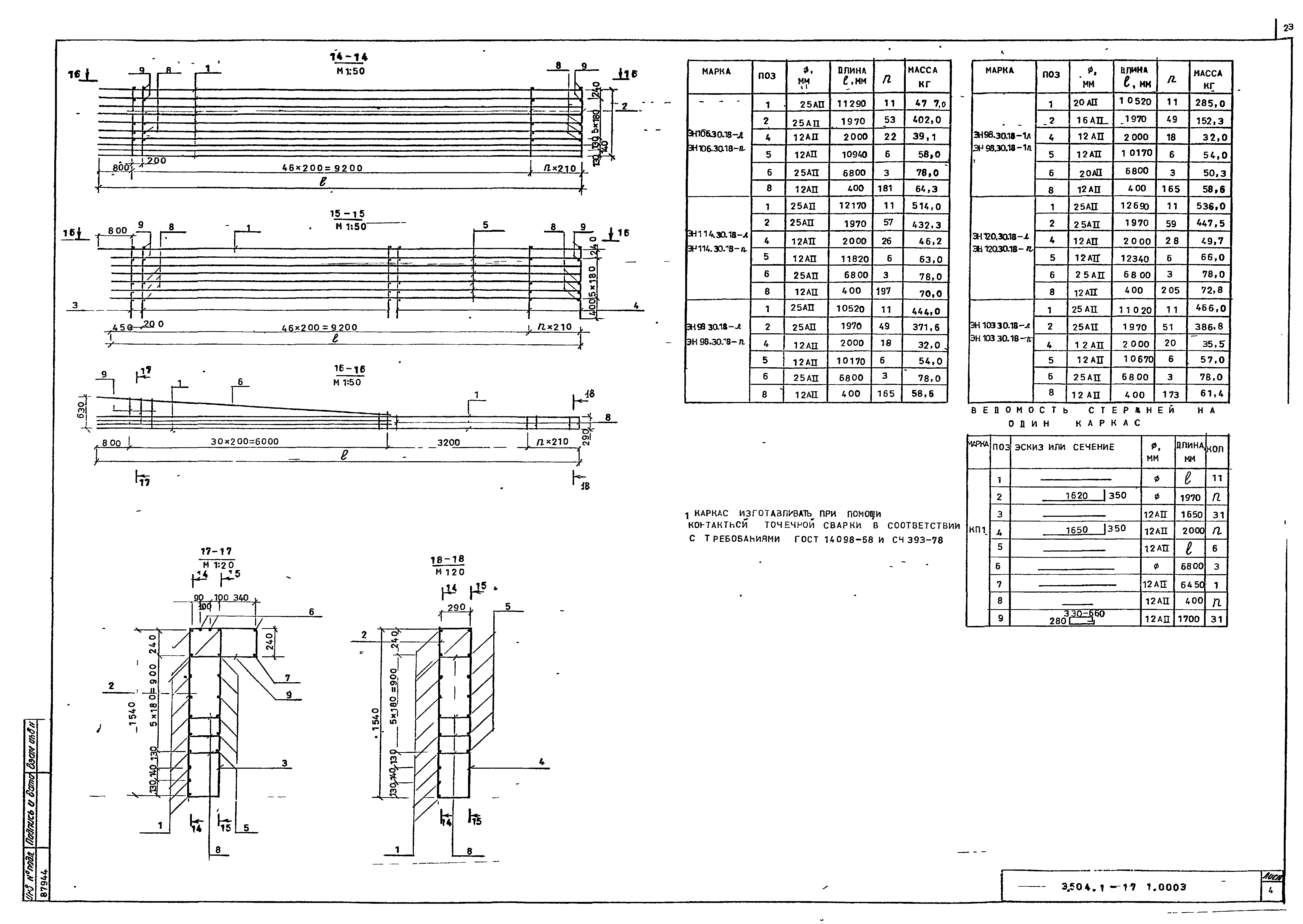
Скачать Серия 3.504.1-17 Выпуск 1. Бетонные массивы, железобетонные надстройкиДата актуализации: 01.01.2021 Серия 3.504.1-17
Выпуск 1. Бетонные массивы, железобетонные надстройки| Обозначение: | Серия 3.504.1-17 | | Обозначение англ: | Series 3.504.1-17 | | Статус: | не определен законодательством | | Название рус.: | Выпуск 1. Бетонные массивы, железобетонные надстройки | | Дата добавления в базу: | 01.09.2013 | | Дата актуализации: | 01.01.2021 | | Дата введения: | 01.10.1980 | | Дата окончания срока действия: | 30.06.2003 | | Разработан: | СоюзморНИИпроект
| | Утверждён: | 26.06.1980 Минморфлот СССР (USSR Minmorflot )
|
                      
|