Скачать Серия 7.504.9-1 Отбойные устройства из резиновых труб диаметром 400 мм. Рабочие чертежиДата актуализации: 01.01.2021
|
| Обозначение: | Серия 7.504.9-1 |
| Обозначение англ: | Series 7.504.9-1 |
| Статус: | не определен законодательством |
| Название рус.: | Отбойные устройства из резиновых труб диаметром 400 мм. Рабочие чертежи |
| Дата добавления в базу: | 01.09.2013 |
| Дата актуализации: | 01.01.2021 |
| Дата введения: | 30.03.1984 |
| Дата окончания срока действия: | 30.06.2003 |
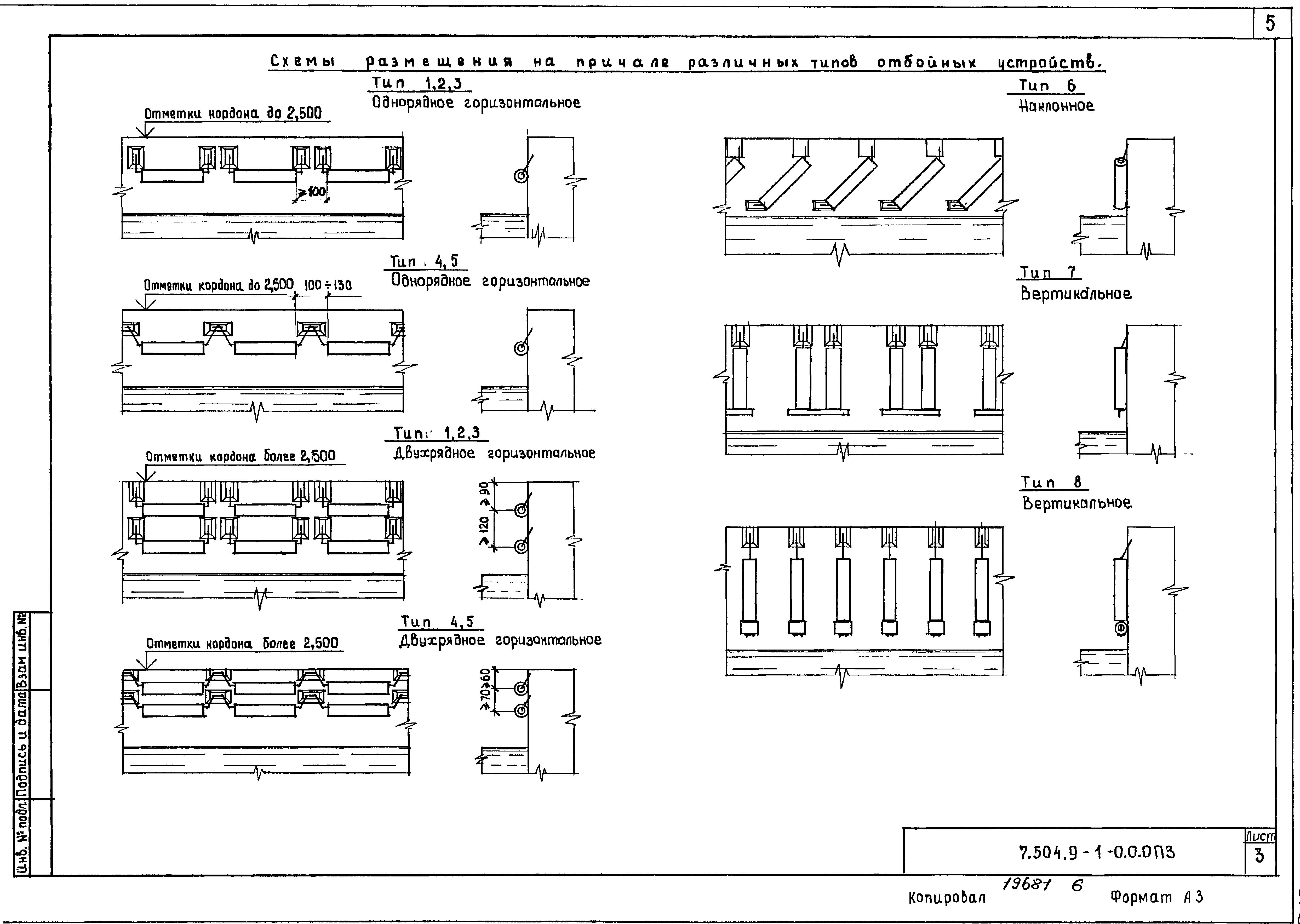
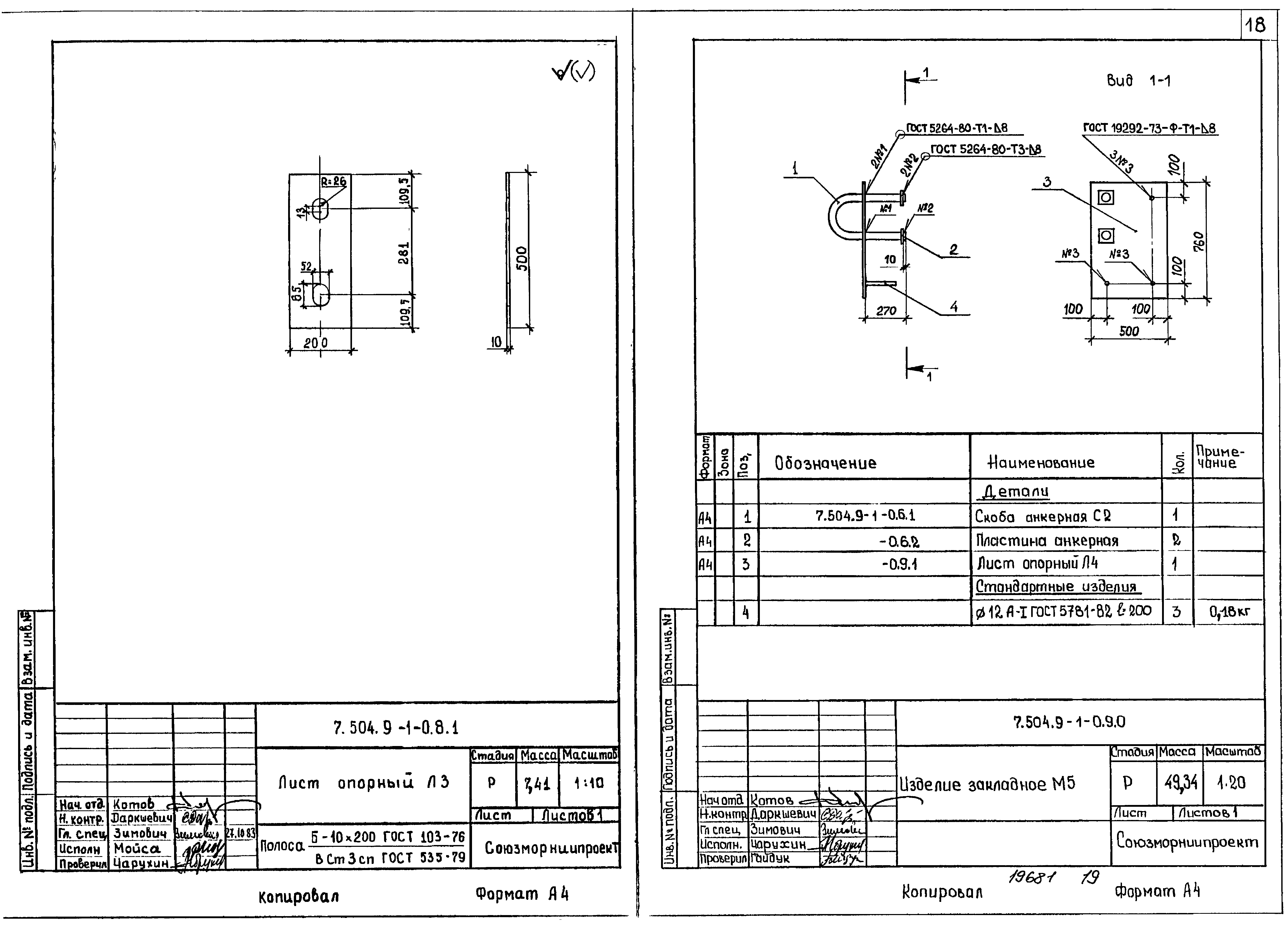
| Оглавление: | 7.504.9-1-0.0.0 ПЗ Пояснительная записка 7.504.9-1-1.0.0 Отбойное устройство. Тип 1. 7.504.9-1-2.0.0 Отбойное устройство. Тип 2. 7.504.9-1-3.0.0 Отбойное устройство. Тип 3. 7.504.9-1-4.0.0 Отбойное устройство. Тип 4. 7.504.9-1-5.0.0 Отбойное устройство. Тип 5. 7.504.9-1-6.0.0 Отбойное устройство. Тип 6. 7.504.9-1-7.0.0 Отбойное устройство. Тип 7. 7.504.9-1-8.0.0 Отбойное устройство. Тип 8. 7.504.9-1-0.1.0 Цепь Ц1 7.504.9-1-0.2.0 Цепь Ц2 7.504.9-1-0.3.0 Цепь Ц3 7.504.9-1-0.4.0 Цепь Ц4 7.504.9-1-0.5.0 Изделие закладное М1 7.504.9-1-0.5.1 Лист опорный Л1 7.504.9-1-0.0.1 Скоба анкерная С1 7.504.9-1-0.6.0 Изделие закладное М2 7.504.9-1-0.6.1 Скоба анкерная С2 7.504.9-1-0.6.2 Пластина анкерная 7.504.9-1-0.7.0 Изделие закладное М3 7.504.9-1-0.7.1 Крюк анкерный 7.504.9-1-0.7.2 Лист опорный Л2 7.504.9-1-0.8.0 Изделие закладное М4 7.504.9-1-0.8.1 Лист опорный Л3 7.504.9-1-0.9.0 Изделие закладное М5 7.504.9-1-0.9.1 Лист опорный Л4 7.504.9-1-0.0.2 Штанга 7.504.9-1-0.0.3 Скоба С3 7.504.9-1-0.0.4 Уголок 7.504.9-1-0.0.5 Скоба С4 7.504.9-1-0.0.6 Подкладка 7.504.9-1-0.0.7 Труба резиновая ТР1 |
| Разработан: | СоюзморНИИпроект |
| Утверждён: | 30.03.1984 Минморфлот СССР (USSR Minmorflot ) |
| Издан: | ЦИТП Госстроя СССР (CITP, Gosstroy (USSR) 1985 г. ) |






















