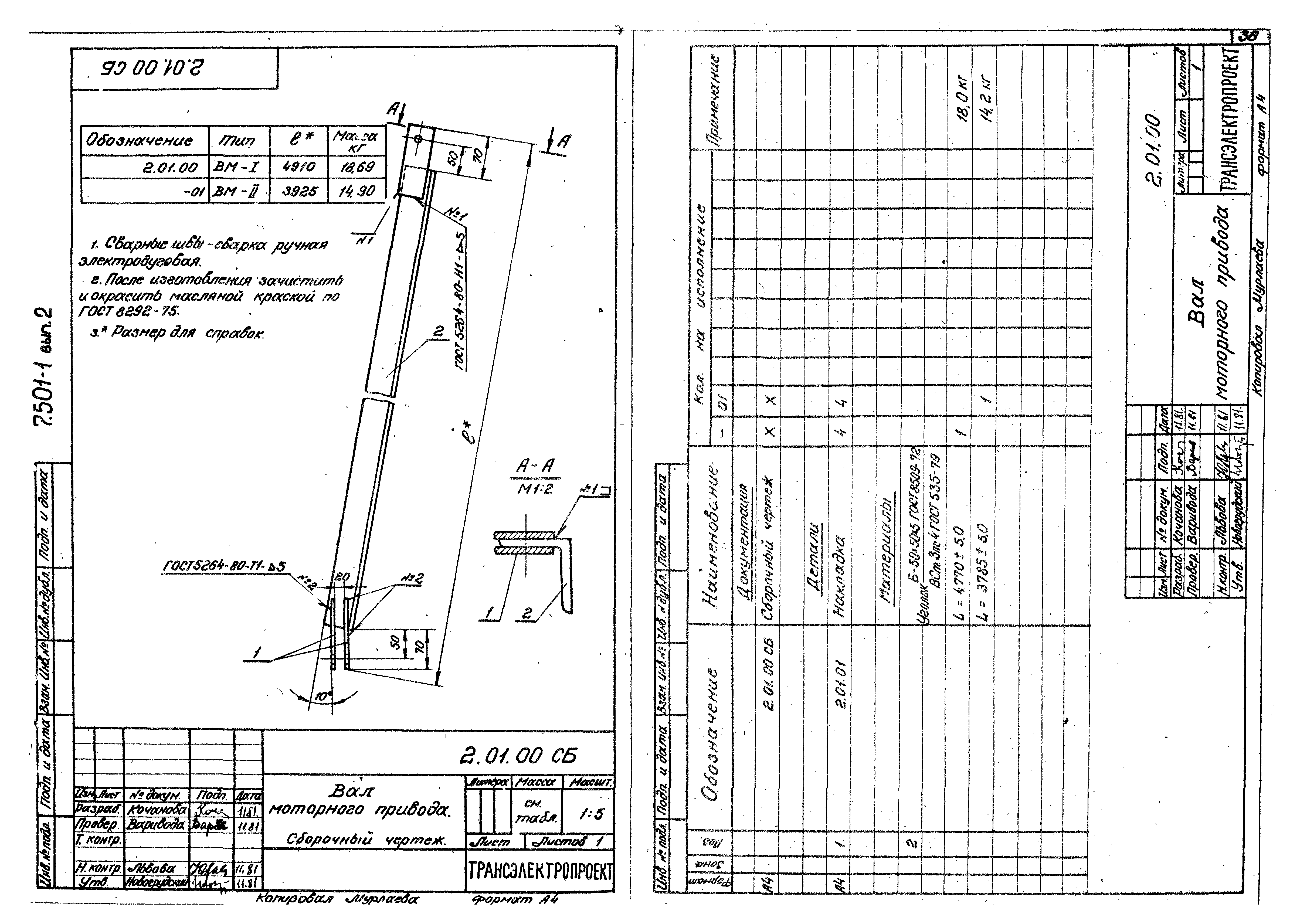
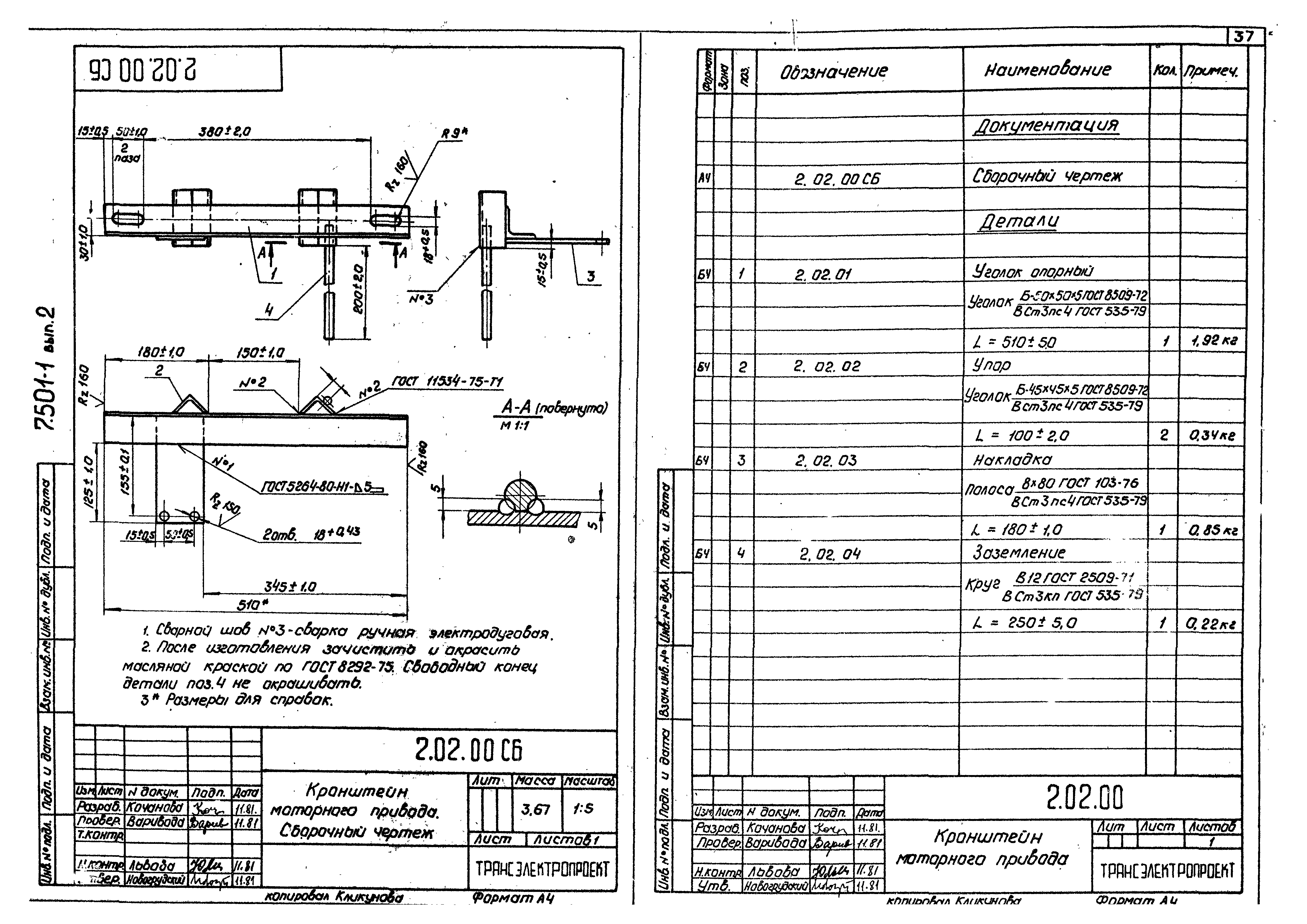
Скачать Серия 7.501-1 Выпуск 2. Установка разъединителей контактной сети постоянного тока. Рабочие чертежиДата актуализации: 01.01.2021 Серия 7.501-1
Выпуск 2. Установка разъединителей контактной сети постоянного тока. Рабочие чертежи| Обозначение: | Серия 7.501-1 | | Обозначение англ: | Series 7.501-1 | | Статус: | действует | | Название рус.: | Выпуск 2. Установка разъединителей контактной сети постоянного тока. Рабочие чертежи | | Дата добавления в базу: | 01.09.2013 | | Дата актуализации: | 01.01.2021 | | Дата введения: | 09.03.1982 | | Разработан: | Трансэлектропроект МПС
| | Утверждён: | 09.03.1982 МПС (Ministry of Railroads 7)
|
                                                           
|