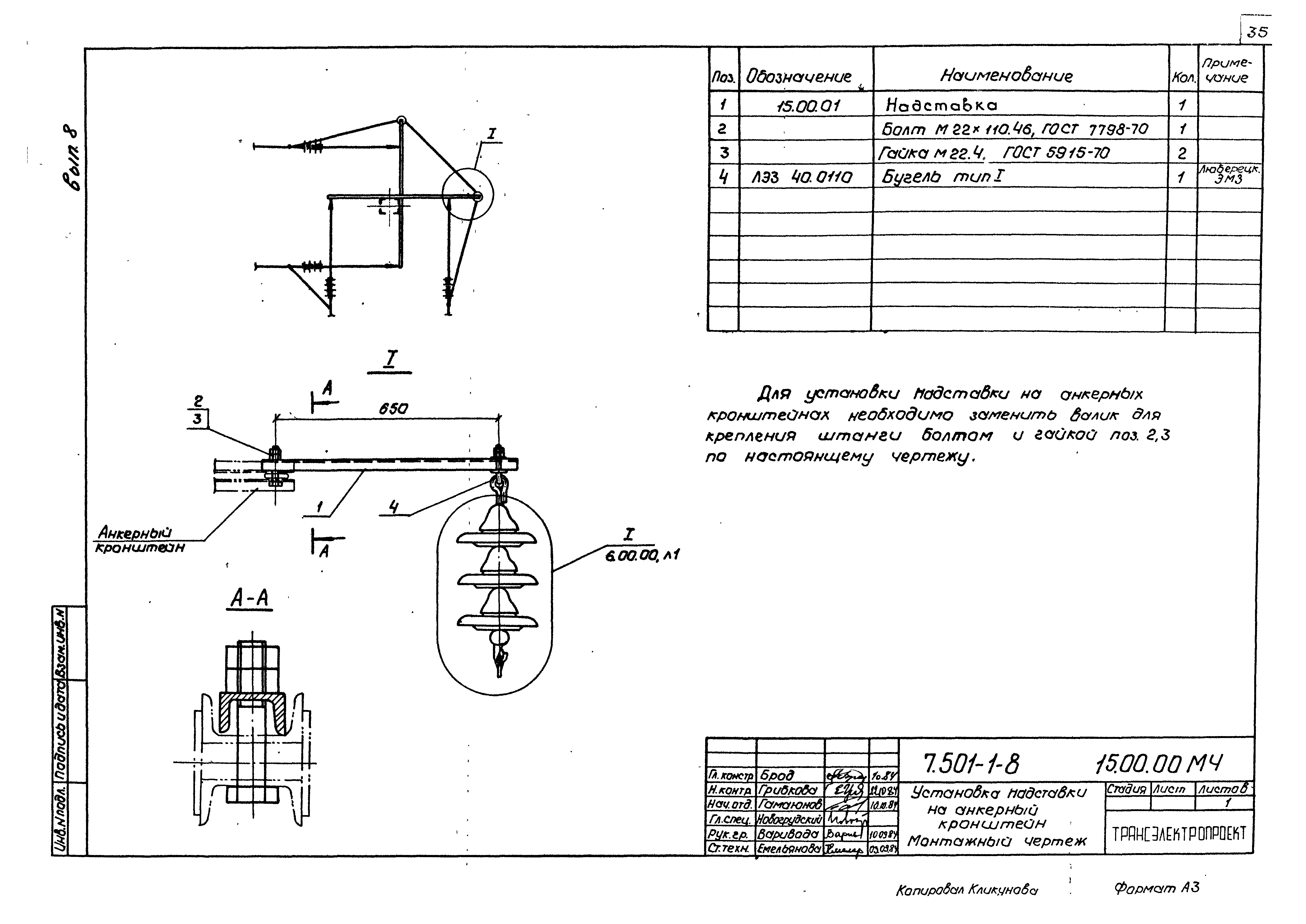
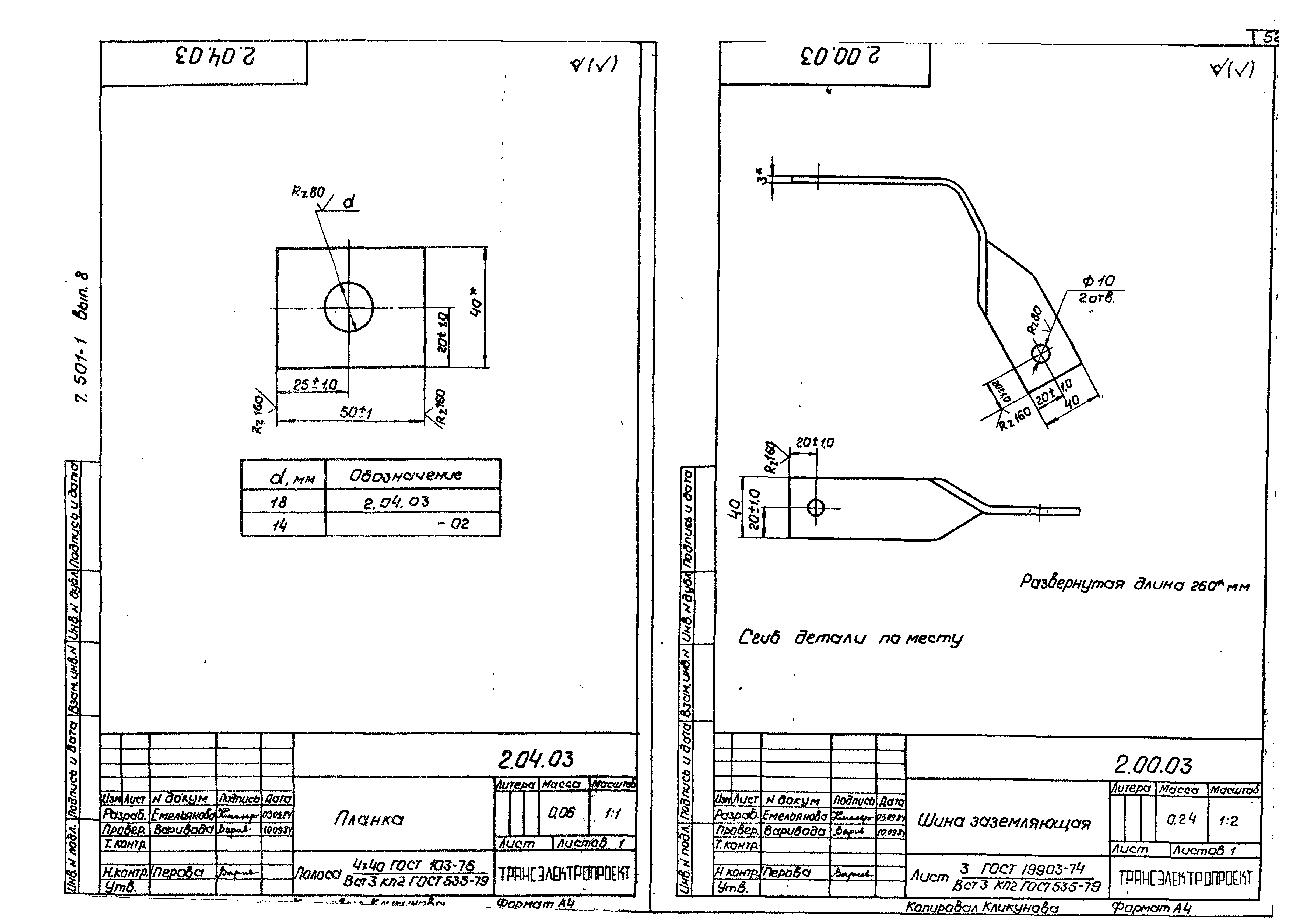
Скачать Серия 7.501-1 Выпуск 8. Питающие и отсасывающие линии. Рабочие чертежиДата актуализации: 01.01.2021
|
| Обозначение: | Серия 7.501-1 |
| Обозначение англ: | Series 7.501-1 |
| Статус: | действует |
| Название рус.: | Выпуск 8. Питающие и отсасывающие линии. Рабочие чертежи |
| Дата добавления в базу: | 01.09.2013 |
| Дата актуализации: | 01.01.2021 |
| Дата введения: | 11.10.1984 |
| Разработан: | Трансэлектропроект МПС |
| Утверждён: | 11.10.1984 МПС (Ministry of Railroads 37) |









































































