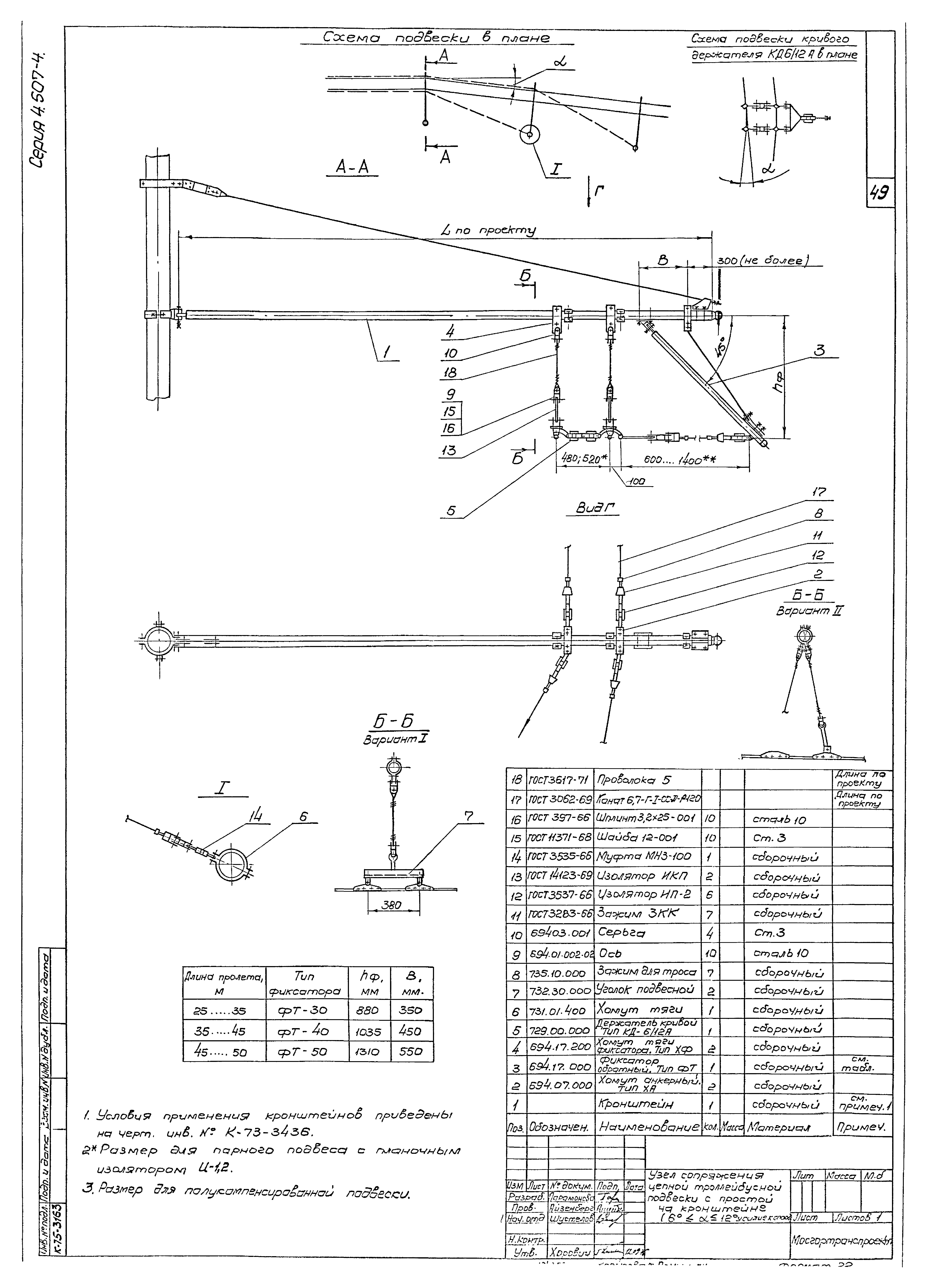
Скачать Серия 4.507-4 Подвеска контактной сети троллейбуса на городских площадях и поворотных кольцахДата актуализации: 01.01.2021 Серия 4.507-4
Подвеска контактной сети троллейбуса на городских площадях и поворотных кольцах| Обозначение: | Серия 4.507-4 | | Обозначение англ: | Series 4.507-4 | | Статус: | не определен законодательством | | Название рус.: | Подвеска контактной сети троллейбуса на городских площадях и поворотных кольцах | | Дата добавления в базу: | 01.01.2019 | | Дата актуализации: | 01.01.2021 | | Дата введения: | 15.04.1976 | | Дата окончания срока действия: | 30.06.2003 | | Разработан: | Мосгортрансниипроект
| | Утверждён: | 10.03.1976 Мосгорисполком (Mosgorispolkom 562)
|
                                                                
|