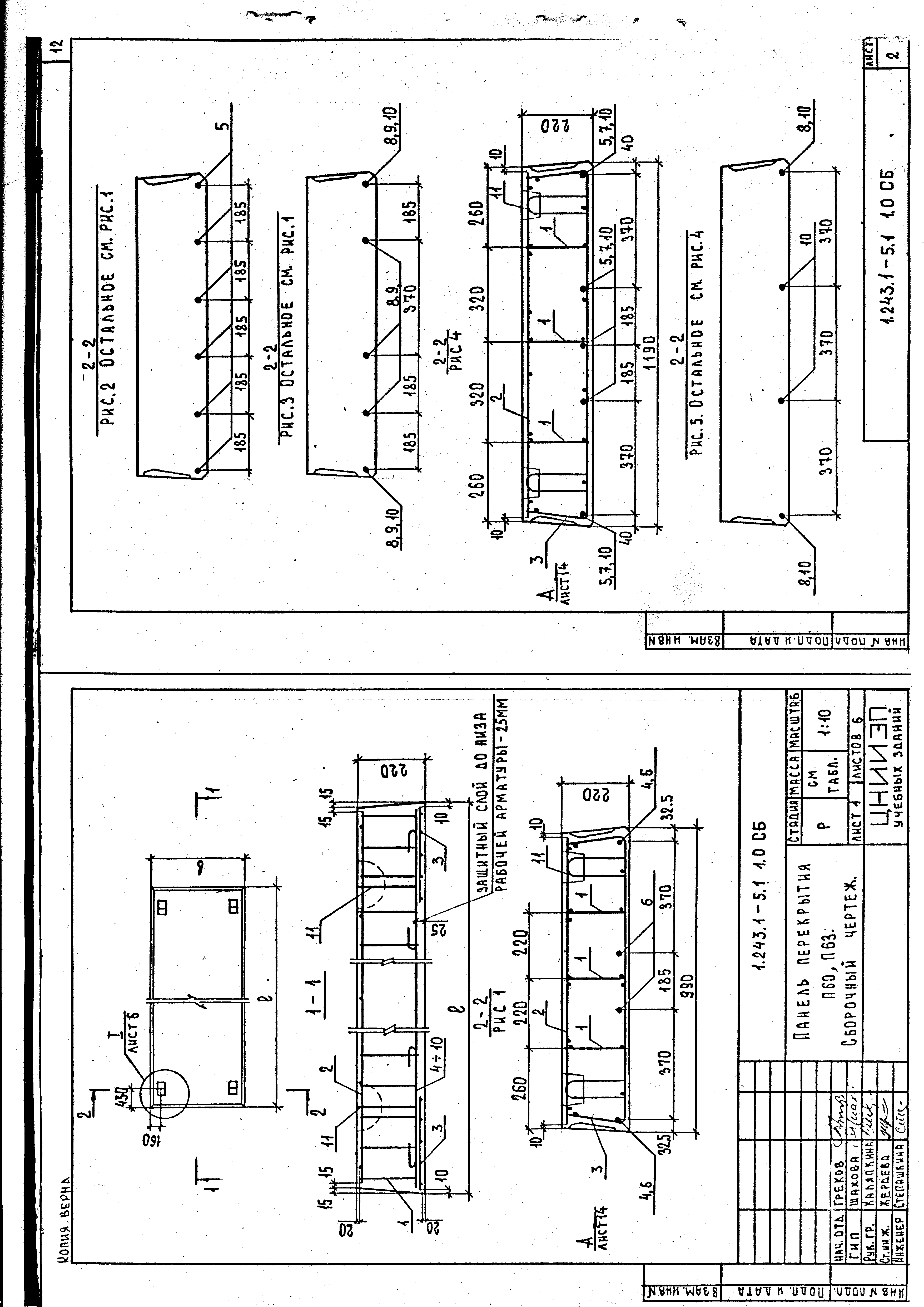
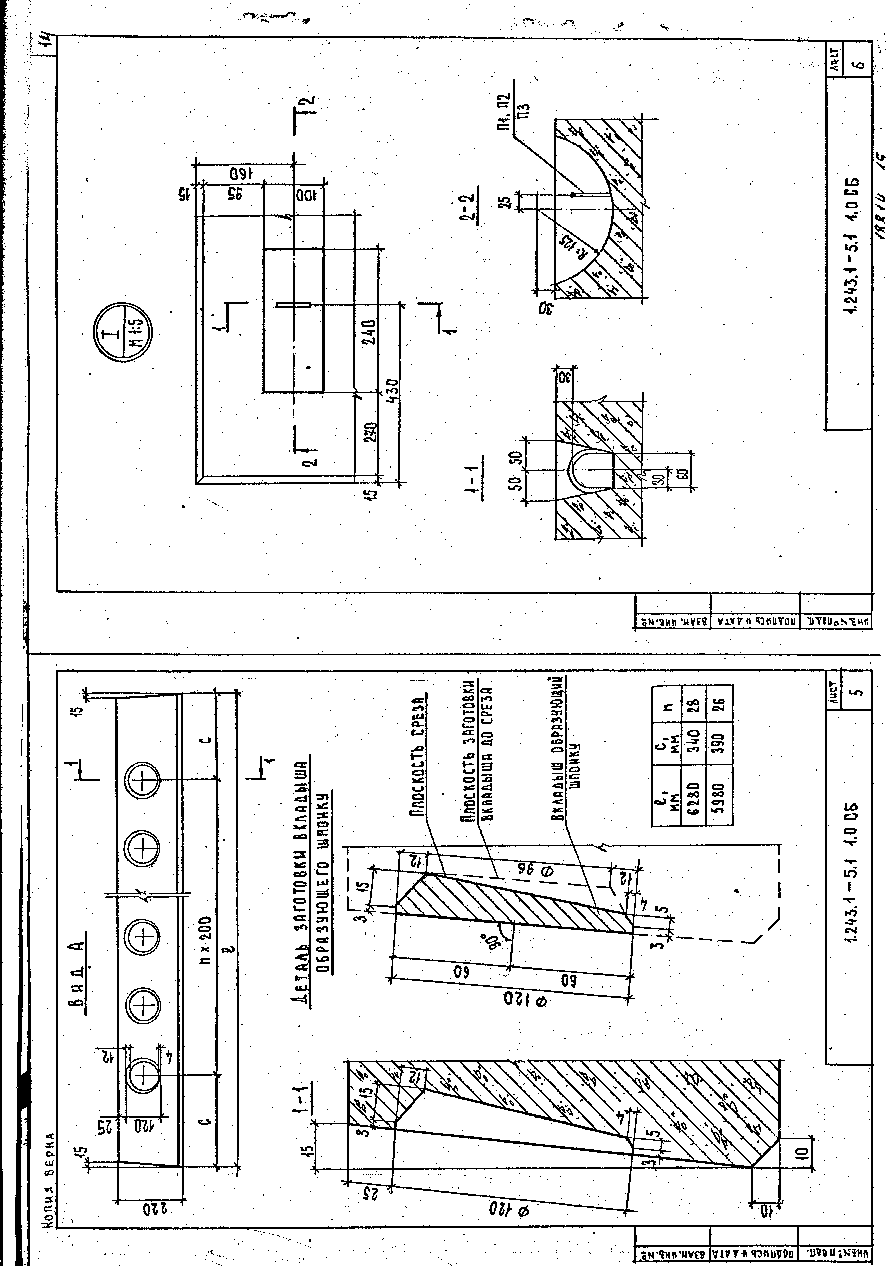
Скачать Серия 1.243.1-5 Выпуск 1. Предварительно напряженные панели длиной 628 и 598 см, шириной 99, 119 и 149 см, армированные стержнями из стали класса Ат-VСК. Метод натяжения - электротермическийДата актуализации: 01.01.2021 Серия 1.243.1-5
Выпуск 1. Предварительно напряженные панели длиной 628 и 598 см, шириной 99, 119 и 149 см, армированные стержнями из стали класса Ат-VСК. Метод натяжения - электротермический| Обозначение: | Серия 1.243.1-5 | | Обозначение англ: | Series 1.243.1-5 | | Статус: | не действует | | Название рус.: | Выпуск 1. Предварительно напряженные панели длиной 628 и 598 см, шириной 99, 119 и 149 см, армированные стержнями из стали класса Ат-VСК. Метод натяжения - электротермический | | Дата добавления в базу: | 01.09.2013 | | Дата актуализации: | 01.01.2021 | | Дата введения: | 01.08.1983 | | Дата окончания срока действия: | 01.07.1992 | | Разработан: | НИИЖБ Госстроя СССР ЦНИИЭП учебных зданий Госгражданстроя
| | Утверждён: | 26.05.1983 Госгражданстрой (Gosgrazhdanstroy 162)
|
                  
|