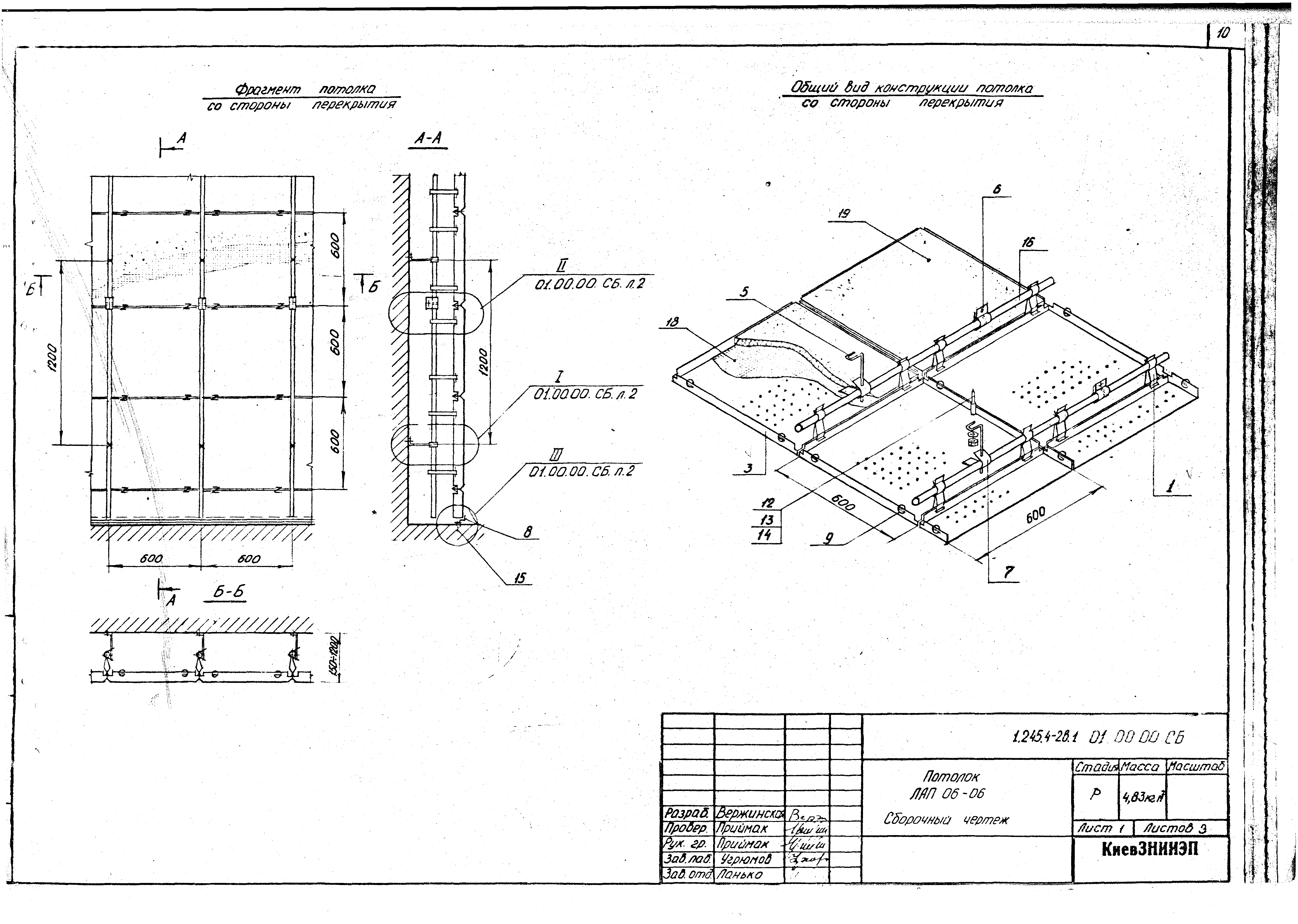
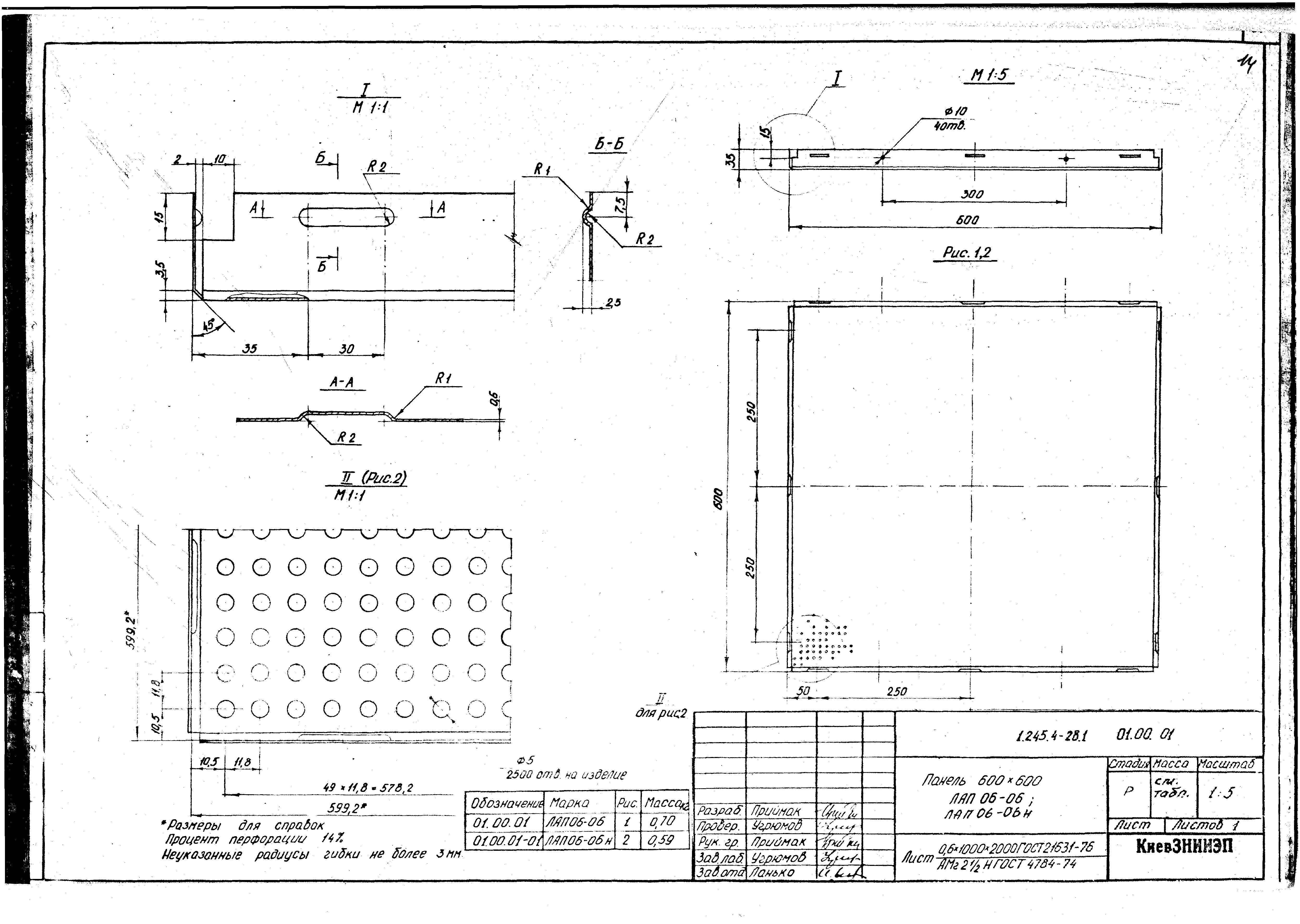
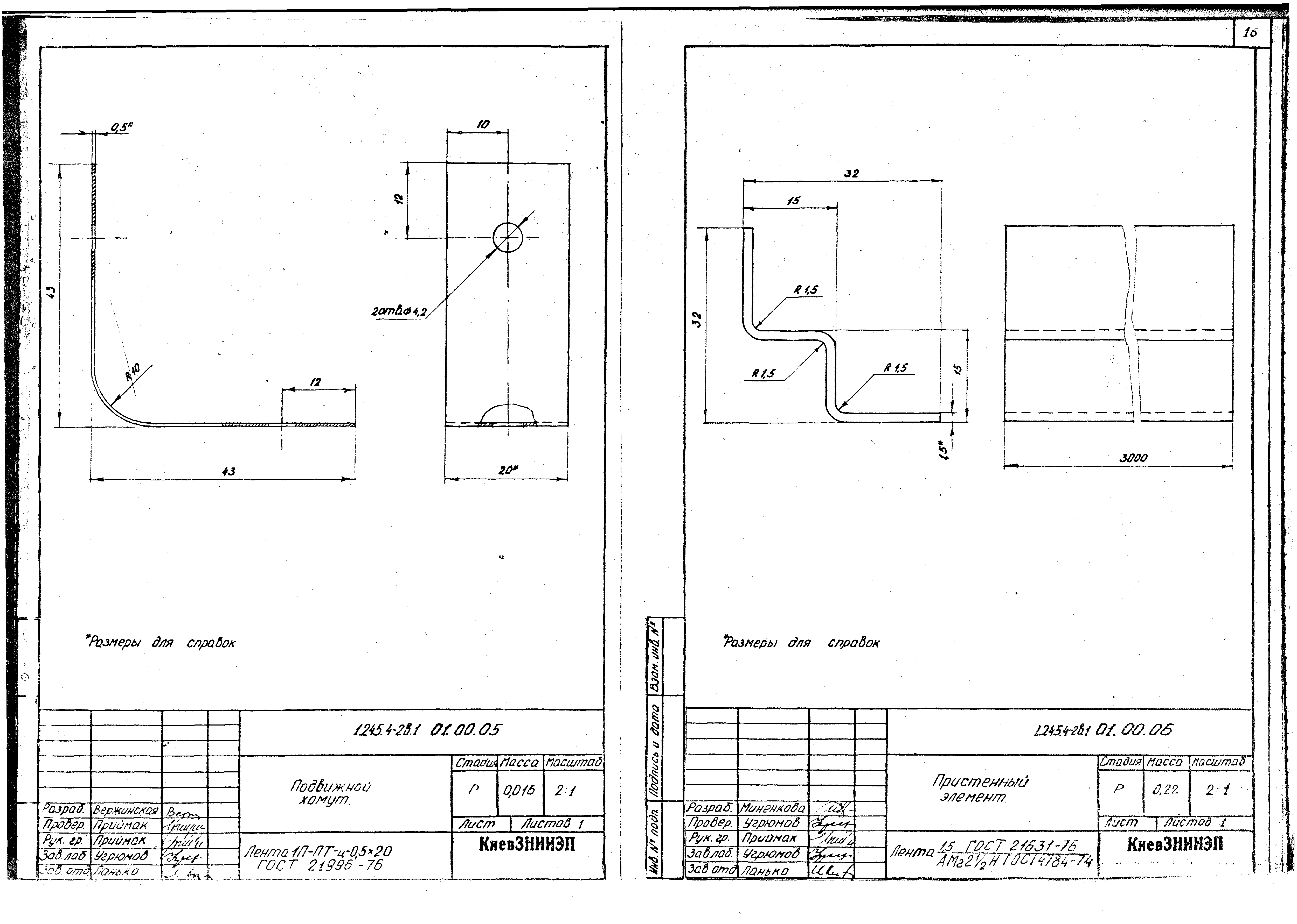
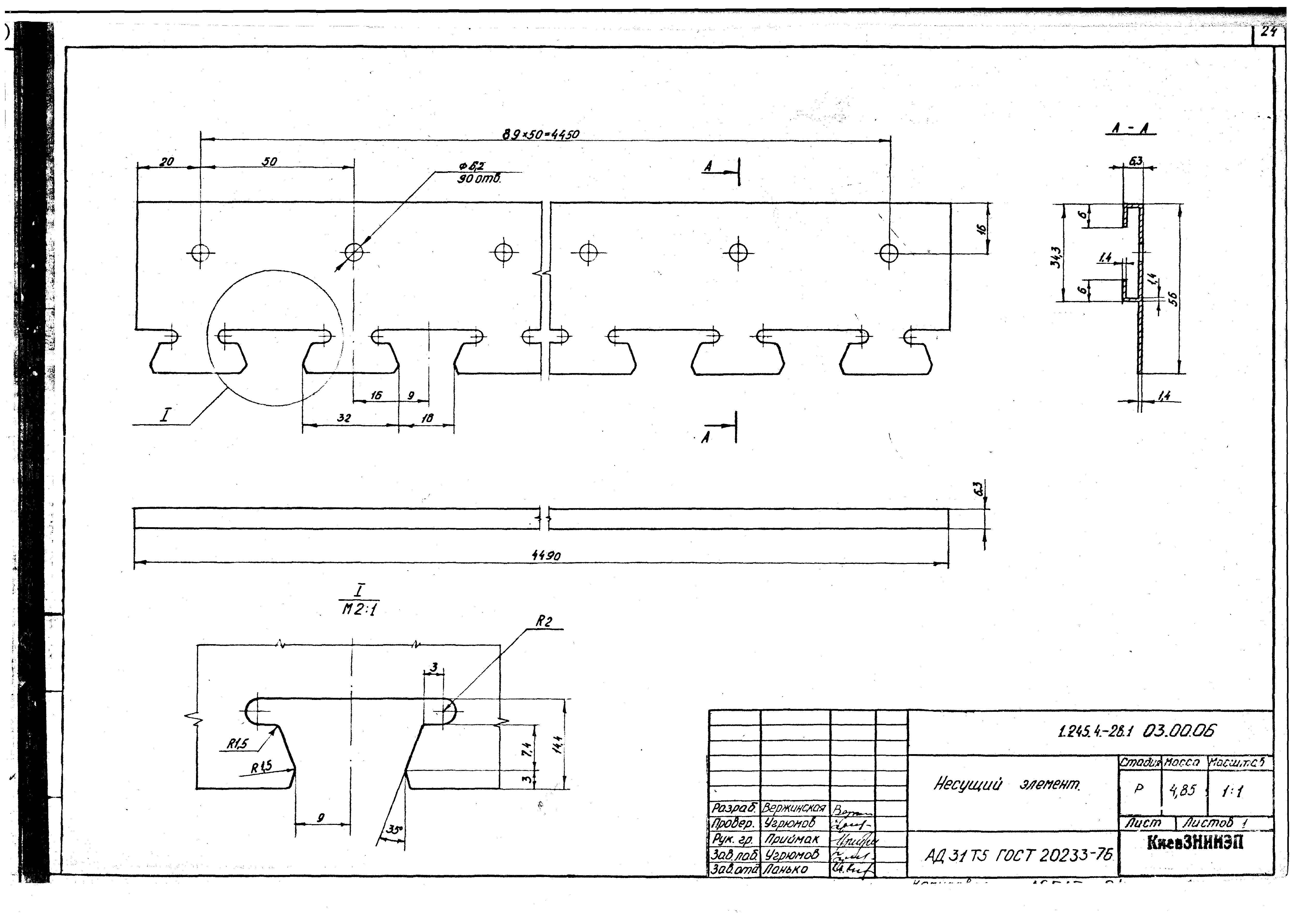
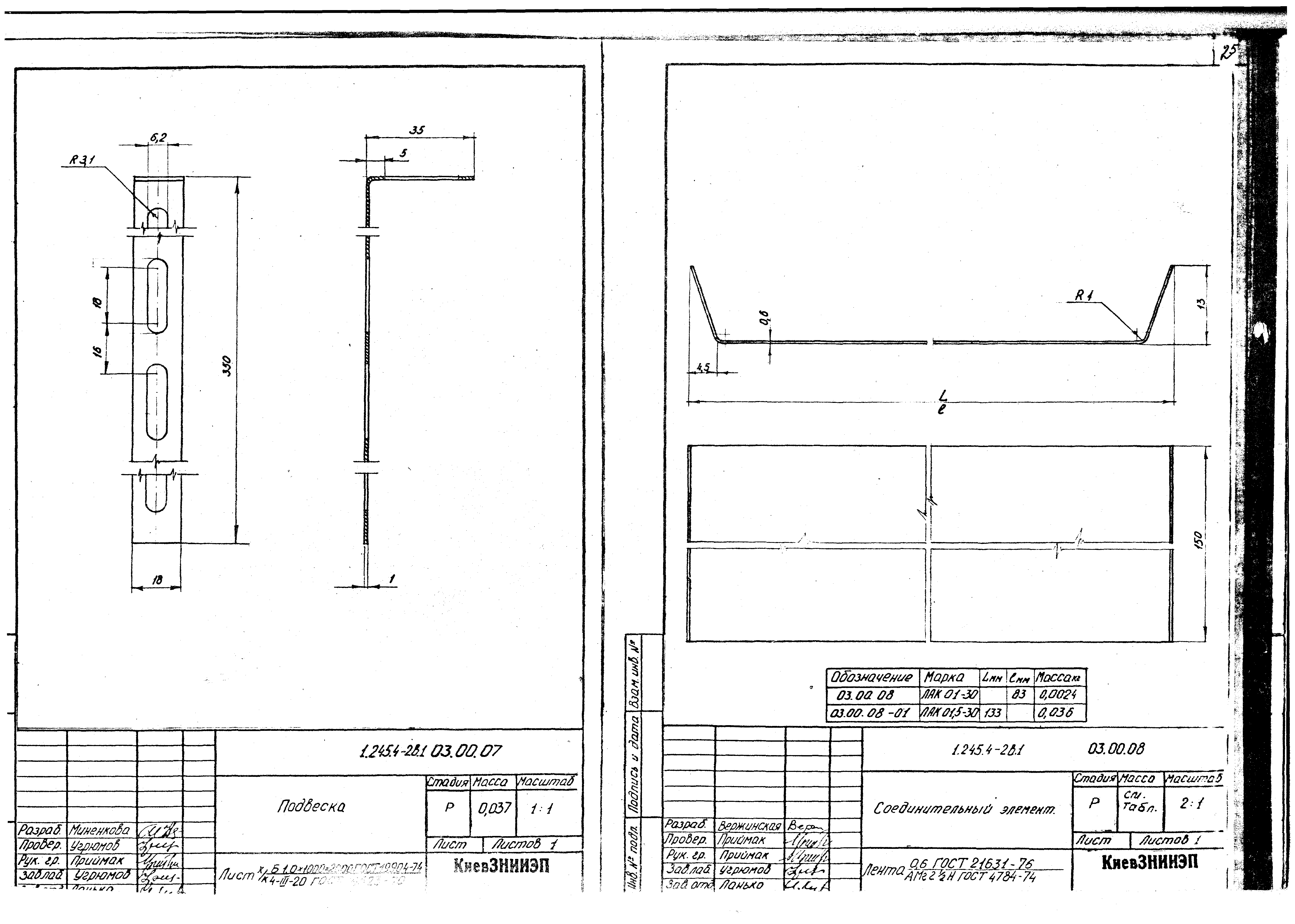
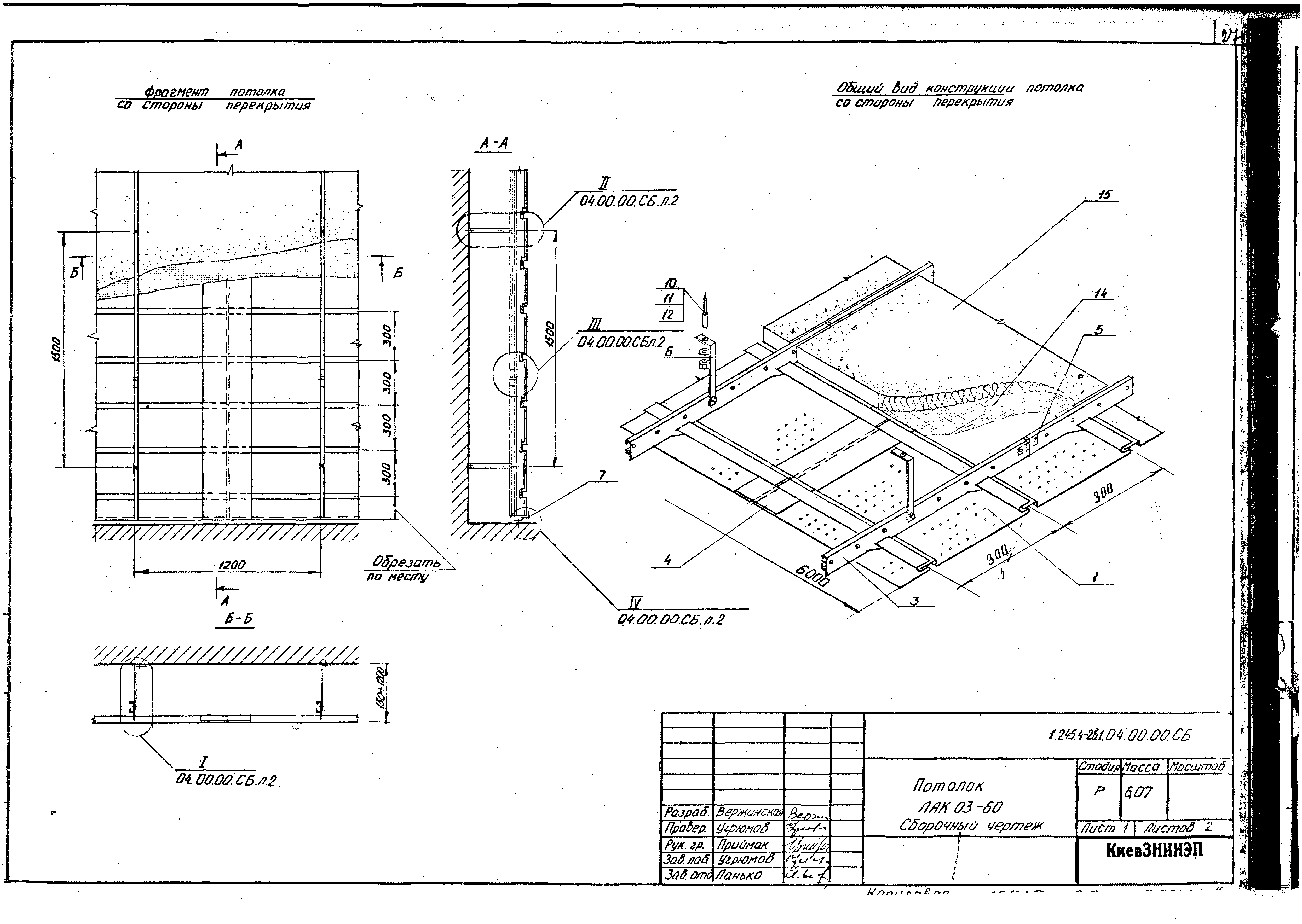
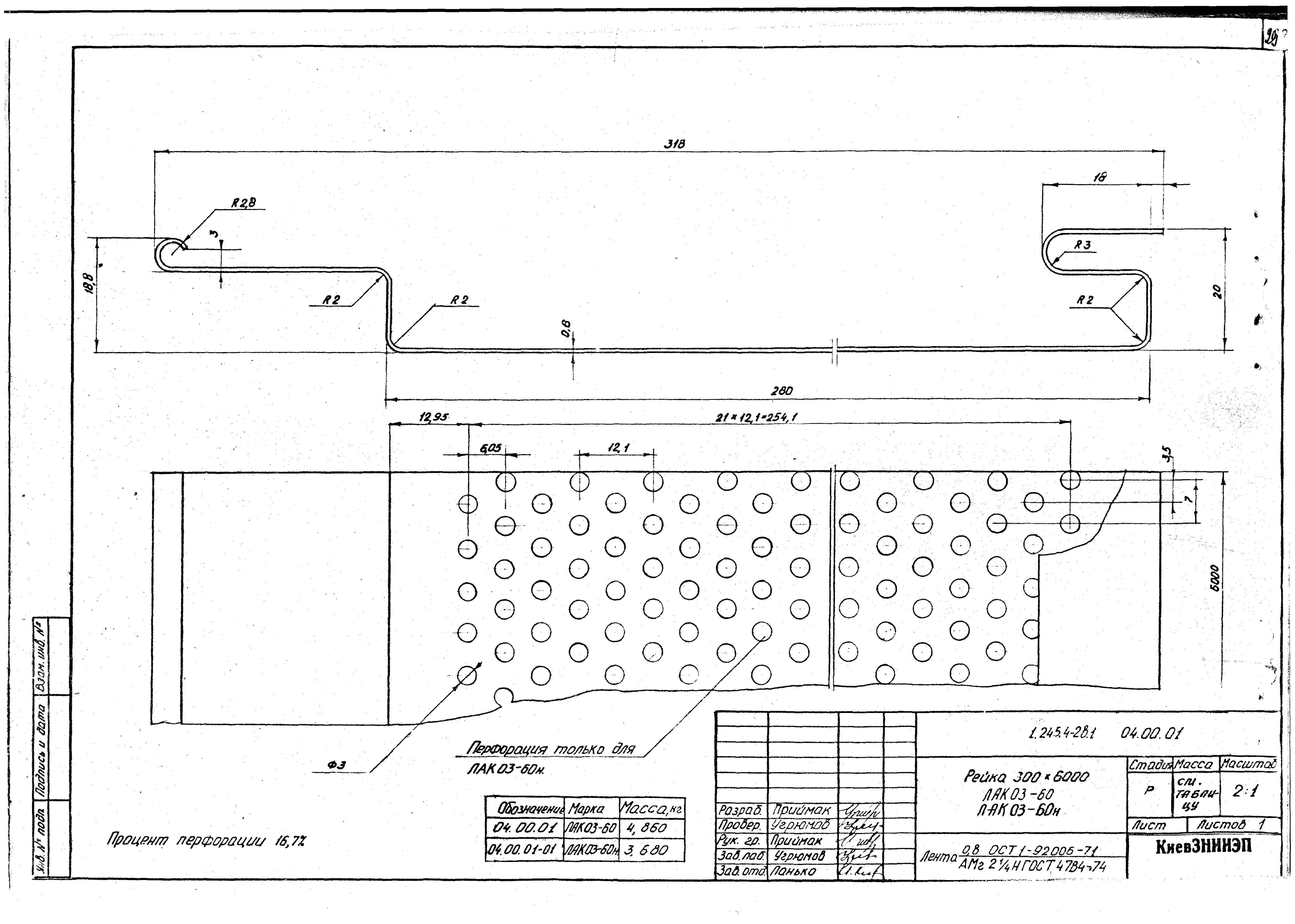
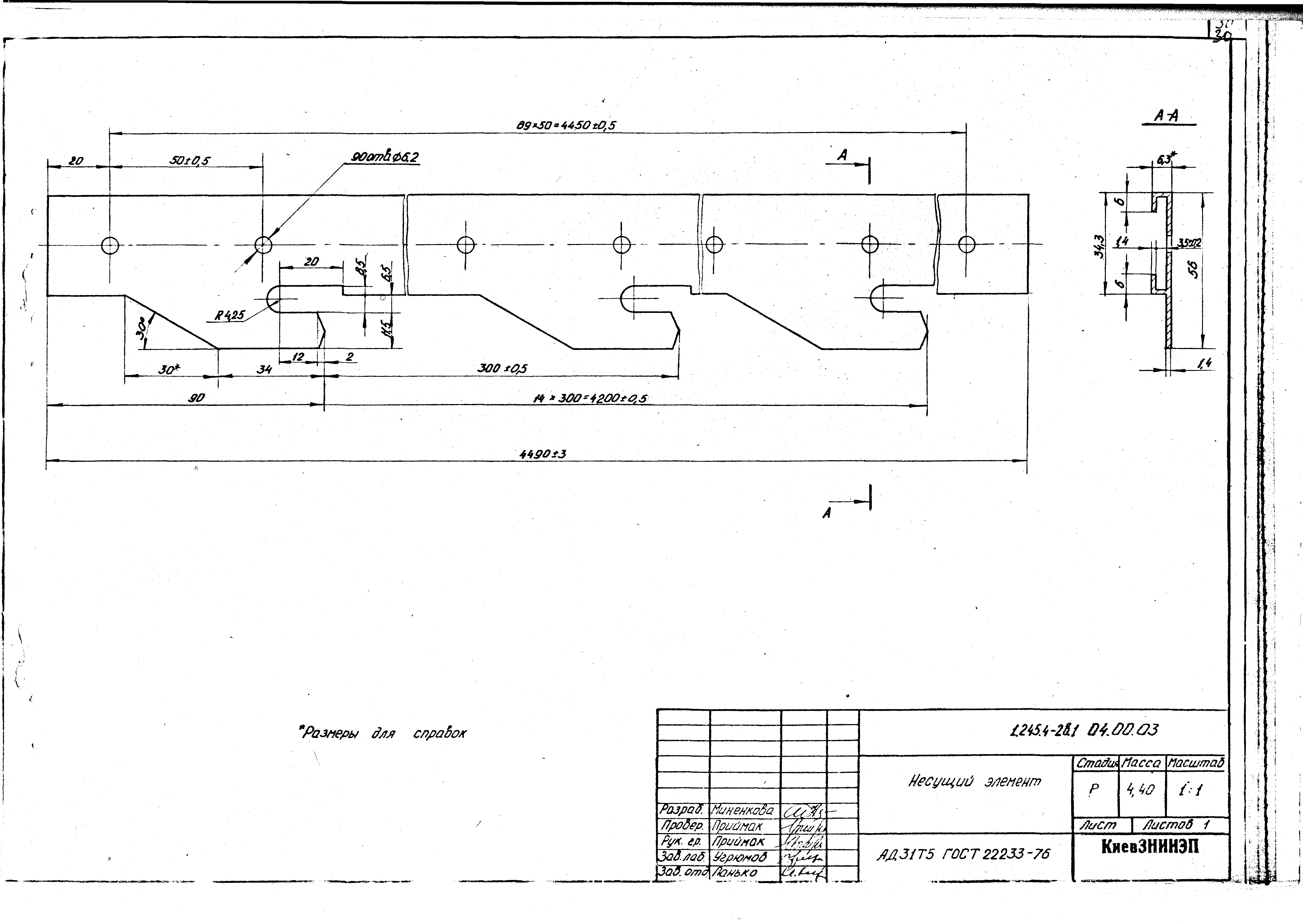
Скачать Серия 1.245.4-2 Выпуск 1. Потолки подвесные (реечные и панельные). Рабочие чертежиДата актуализации: 01.01.2021
|
| Обозначение: | Серия 1.245.4-2 |
| Обозначение англ: | Series 1.245.4-2 |
| Статус: | не действует |
| Название рус.: | Выпуск 1. Потолки подвесные (реечные и панельные). Рабочие чертежи |
| Дата добавления в базу: | 01.09.2013 |
| Дата актуализации: | 01.01.2021 |
| Дата введения: | 01.02.1980 |
| Дата окончания срока действия: | 01.02.1986 |
| Разработан: | ЦНИИЭП зрелищных зданий и спортивных сооружений Госгражданстроя КиевЗНИИЭП |
| Утверждён: | 02.01.1980 Государственный комитет по гражданскому строительству и архитектуре при Госстрое СССР (1) |





























