Скачать Серия 3.820.2-37 Выпуск 5. Рабочие чертежи затвора 1,5х1,25Дата актуализации: 01.01.2021
|
| Обозначение: | Серия 3.820.2-37 |
| Обозначение англ: | Series 3.820.2-37 |
| Статус: | не определен законодательством |
| Название рус.: | Выпуск 5. Рабочие чертежи затвора 1,5х1,25 |
| Дата добавления в базу: | 01.09.2013 |
| Дата актуализации: | 01.01.2021 |
| Дата введения: | 01.04.1983 |
| Дата окончания срока действия: | 30.06.2003 |
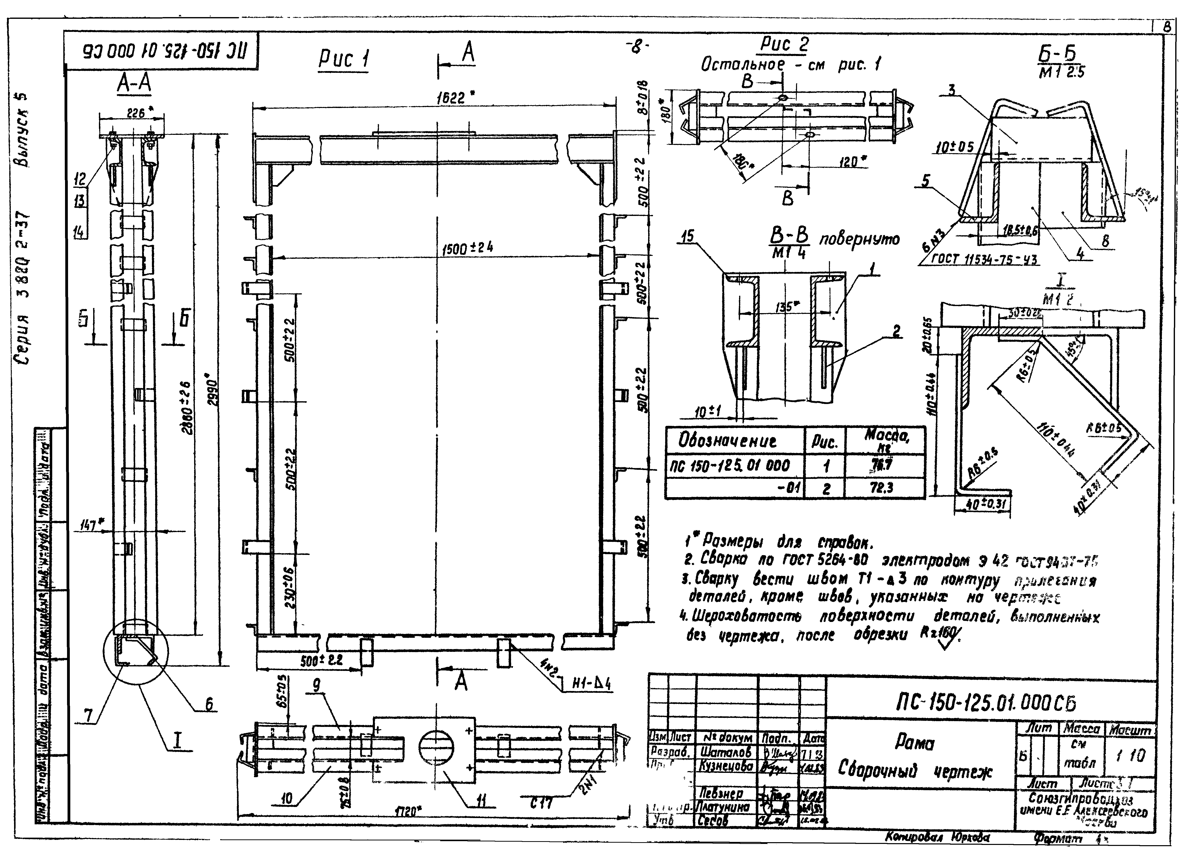
| Оглавление: | ПС150-125.00.000 Затвор поверхностный скользящий для отверстий 1,5х1,25 м ПС150-125.00.000 СБ Затвор поверхностный скользящий для отверстий 1,5х1,25 м. Сборочный чертеж ПС150-125.00.000 ВС Затвор поверхностный скользящий для отверстий 1,5х1,25 м. Ведомость спецификаций ПС150-125.00.000 ВП Затвор поверхностный скользящий для отверстий 1,5х1,25 м. Ведомость покупных изделий ПС150-125.01.000 Рама ПС150-125.01.000 СБ Рама. Сборочный чертеж ПС150-100.01.001 Косынка ПС150-100.01.002 Ребро ПС150-100.01.003 Ригель ПС150-100.01.004 Лист монтажный ПС150-125.02.000 Затвор ПС150-125.02.001 Накладка ПС150-125.02.000 СБ Затвор. Сборочный чертеж ПС150-125.02.100 Металлоконструкция ПС150-125.02.100 СБ Металлоконструкция. Сборочный чертеж ПС150-125.02.110 Проушина ПС150-125.02.101 Обшивка ПС150-125.02.102 Ребро ПС150-125.02.103 Ребро ПС150-125.02.104 Ригель ПС150-125.02.105 Стойка ПС150-100.02.200 Упор ПС150-100.02.200 СБ Упор. Сборочный чертеж ПС 150-125.03.000 ГЧ Подъемник винтовой 1ЭВ. Габаритный чертеж ПС 150-125.04.000 ГЧ Подъемник винтовой 1В. Габаритный чертеж ПС 150-100.02.201 Упор |
| Разработан: | Союзгипроводхоз Минводхоза СССР |
| Утверждён: | 16.04.1982 Минводхоз СССР (USSR Minvodkhoz 473) |






















