Скачать Серия 3.820.2-37 Выпуск 8. Рабочие чертежи затвора 2,0х2,0Дата актуализации: 01.01.2021
|
| Обозначение: | Серия 3.820.2-37 |
| Обозначение англ: | Series 3.820.2-37 |
| Статус: | не определен законодательством |
| Название рус.: | Выпуск 8. Рабочие чертежи затвора 2,0х2,0 |
| Дата добавления в базу: | 01.09.2013 |
| Дата актуализации: | 01.01.2021 |
| Дата введения: | 01.04.1983 |
| Дата окончания срока действия: | 30.06.2003 |
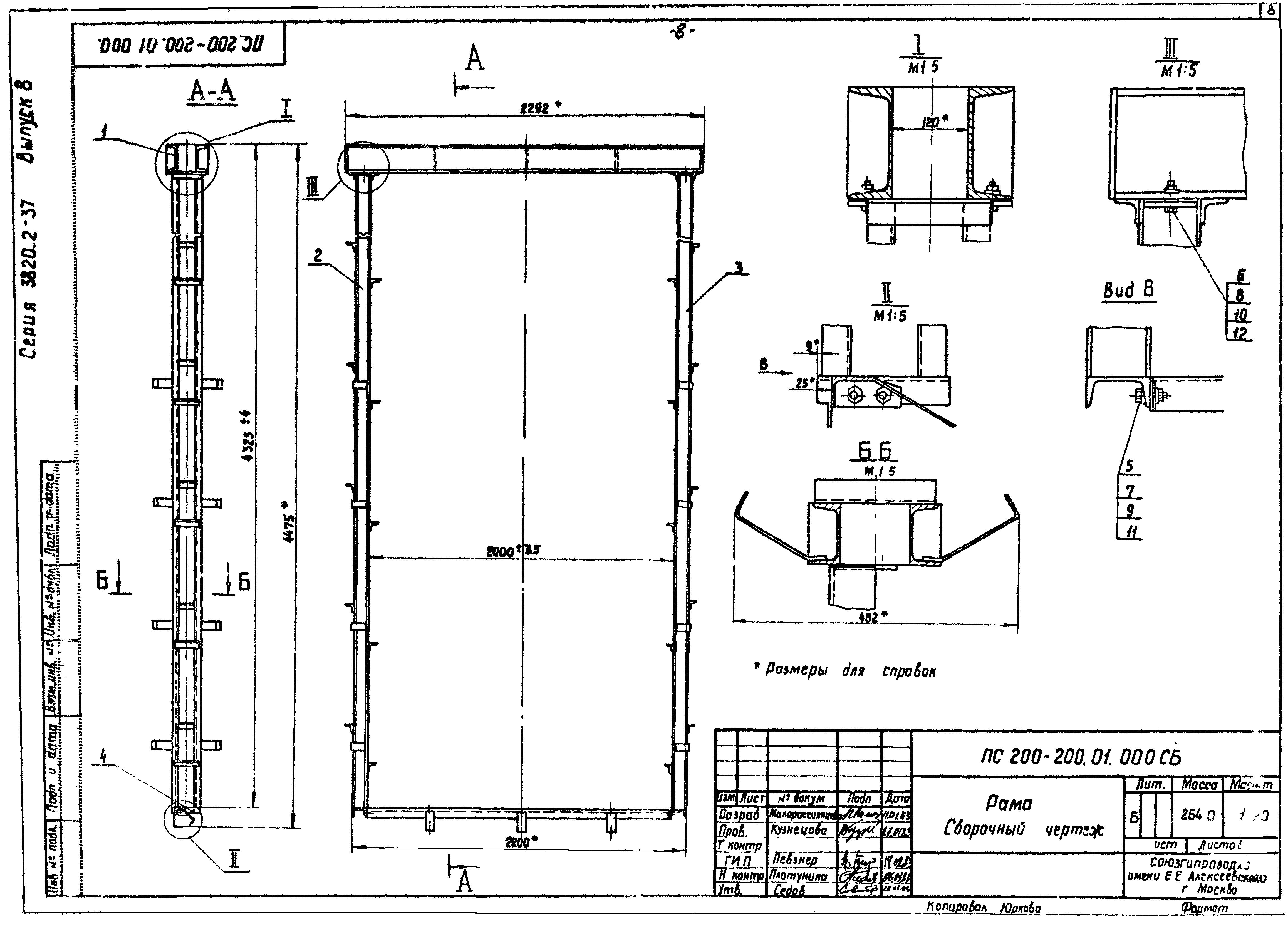
| Оглавление: | ПС200-200.00.000 Затвор поверхностный скользящий для отверстий 2,0х2,0 м ПС200-200.00.000 СБ Затвор поверхностный скользящий для отверстий 2,0х2,0 м. Сборочный чертеж ПС200-200.00.000 ВС Затвор поверхностный скользящий для отверстий 2,0х2,0 м. Ведомость спецификаций ПС200-200.00.000 ВП Затвор поверхностный скользящий для отверстий 2,0х2,0 м. Ведомость покупных изделий ПС200-200.01.000 Рама ПС200-200.01.100 Марка верхняя ПС200-200.01.000 СБ Рама. Сборочный чертеж ПС200-200.01.100 СБ Марка верхняя. Сборочный чертеж ПС200-200.01.101 Ребро ПС200-200.01.200 Стойка ПС200-200.01.200 Стойка. Сборочный чертеж ПС200-200.01.201 Косынка ПС200-200.01.202 Швеллер ПС200-200.01.300 Балка пороговая ПС200-200.01.300 СБ Балка пороговая. Сборочный чертеж ПС200-200.02.000 Затвор ПС200-200.02.000 СБ Затвор. Сборочный чертеж ПС200-200.02.001 Накладка ПС200-200.02.002 Накладка ПС200-200.02.100 Металлоконструкция ПС150-100.02.200 Упор ПС200-200.02.100 СБ Металлоконструкция. Сборочный чертеж ПС200-200.02.101 Обшивка ПС200-200.02.102 Ребро ПС200-200.02.103 Подвеска ПС200-200.02.104 Ребро ПС200-200.02.105 Уголок ПС200-200.02.106 Накладка ПС200-200.02.107 Ригель ПС200-200.01.301 Косынка ПС150-150.02.200 СБ Упор. Сборочный чертеж ПС150-100.02.201 Упор ПС200-200.03.000 Колонна ПС200-200.03.000 СБ Колонна. Сборочный чертеж ПС200-200.04.000 ГЧ Подъемник винтовой 5 ЭВ. Габаритный чертеж ПС200-200.05.000 ГЧ Подъемник винтовой 5 В. Габаритный чертеж ПС 200-200.03.001 Основание |
| Разработан: | Союзгипроводхоз Минводхоза СССР |
| Утверждён: | 16.04.1982 Минводхоз СССР (USSR Minvodkhoz 473) |




























