Скачать Серия 3.820.2-37 Выпуск 13. Рабочие чертежи затвора 3,0х2,5Дата актуализации: 01.01.2021
|
| Обозначение: | Серия 3.820.2-37 |
| Обозначение англ: | Series 3.820.2-37 |
| Статус: | не определен законодательством |
| Название рус.: | Выпуск 13. Рабочие чертежи затвора 3,0х2,5 |
| Дата добавления в базу: | 01.09.2013 |
| Дата актуализации: | 01.01.2021 |
| Дата введения: | 01.04.1983 |
| Дата окончания срока действия: | 30.06.2003 |
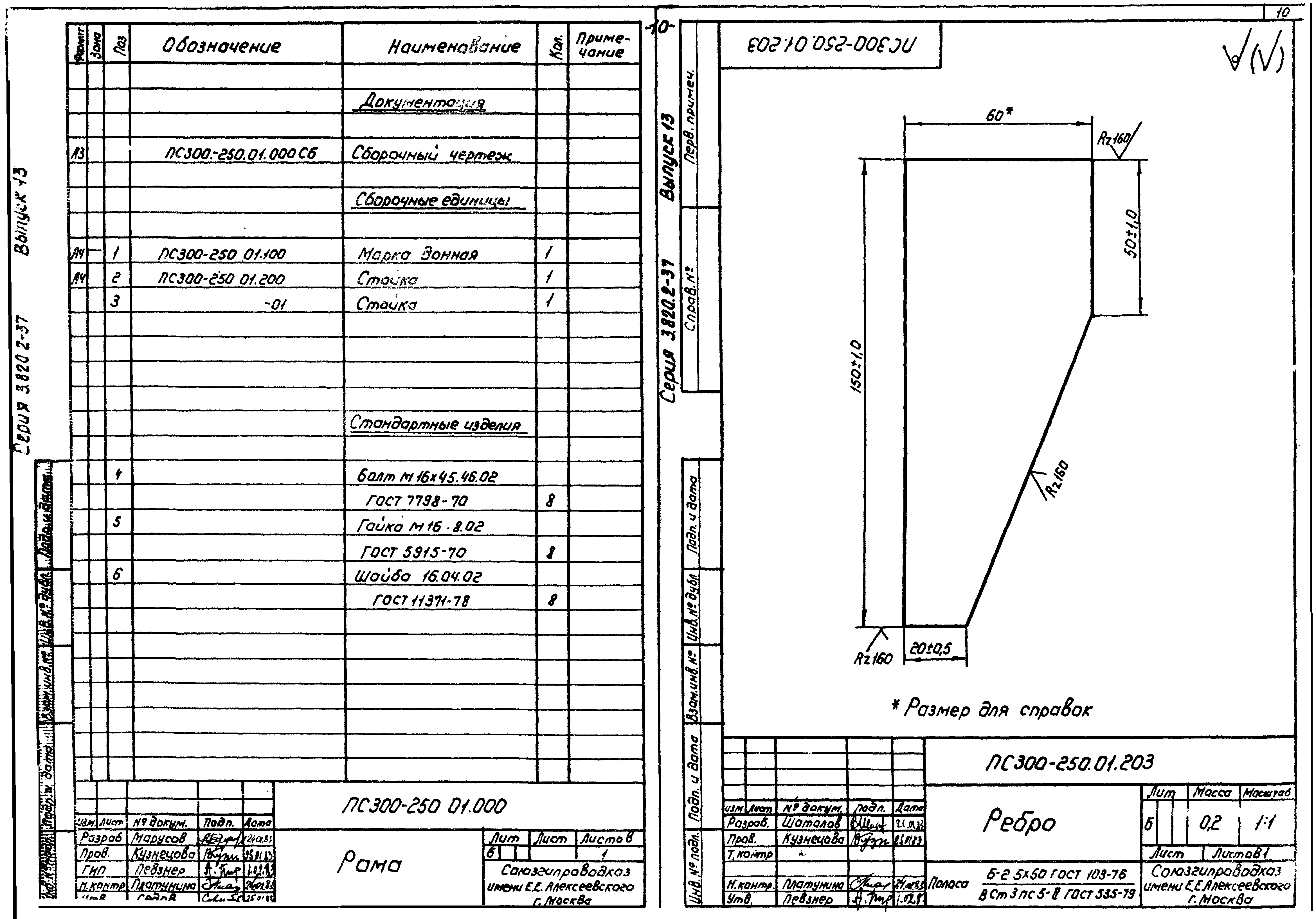
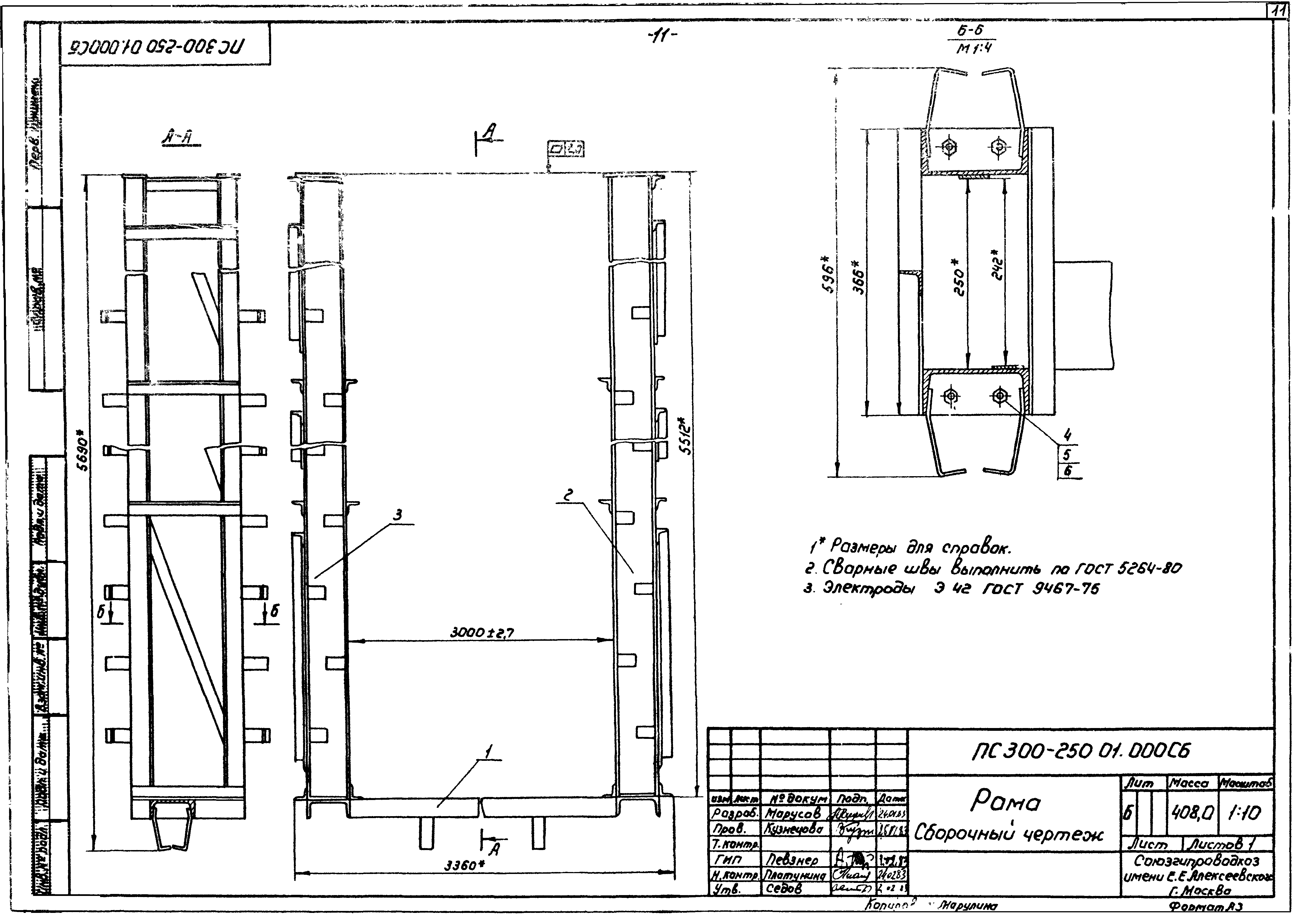
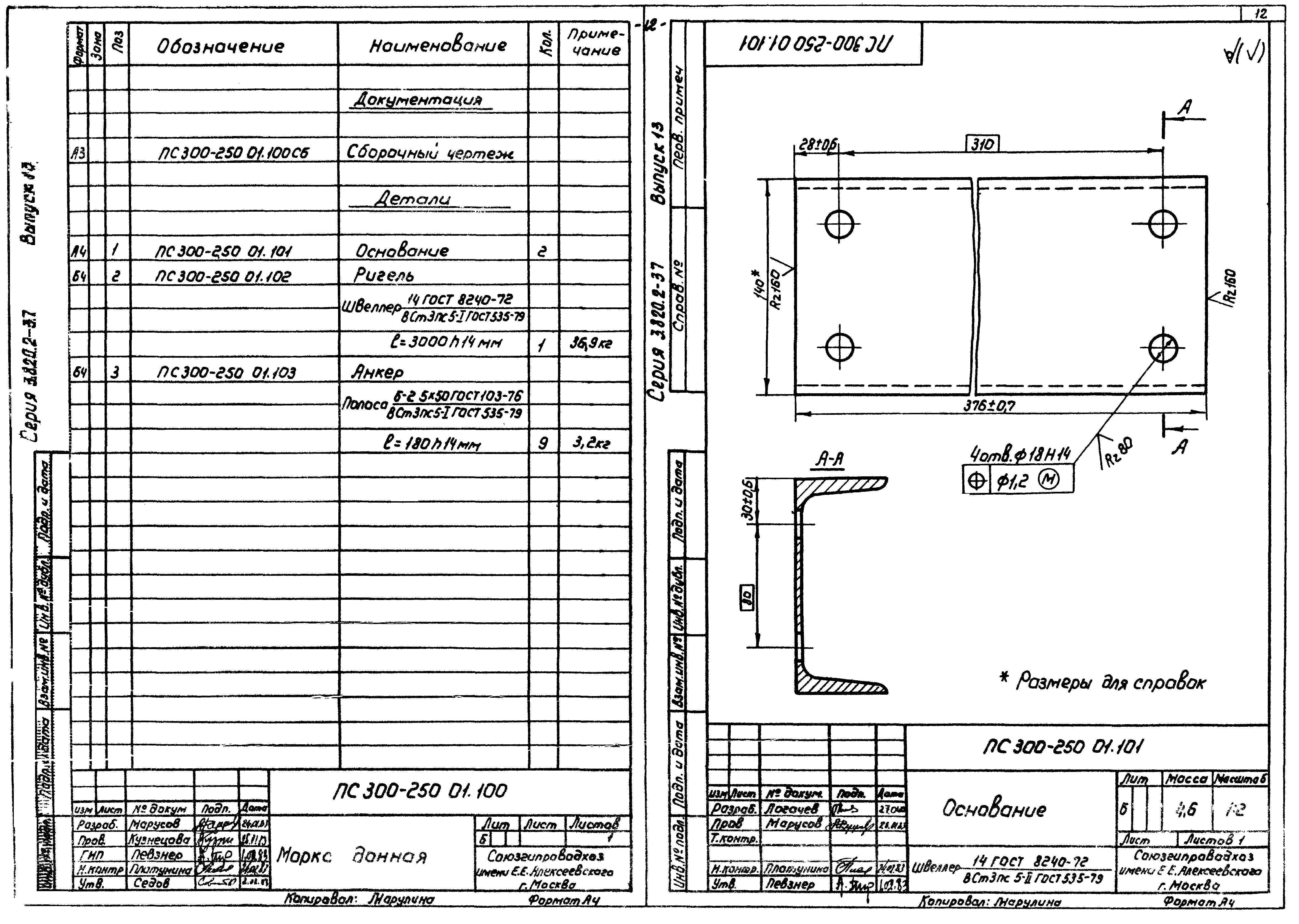
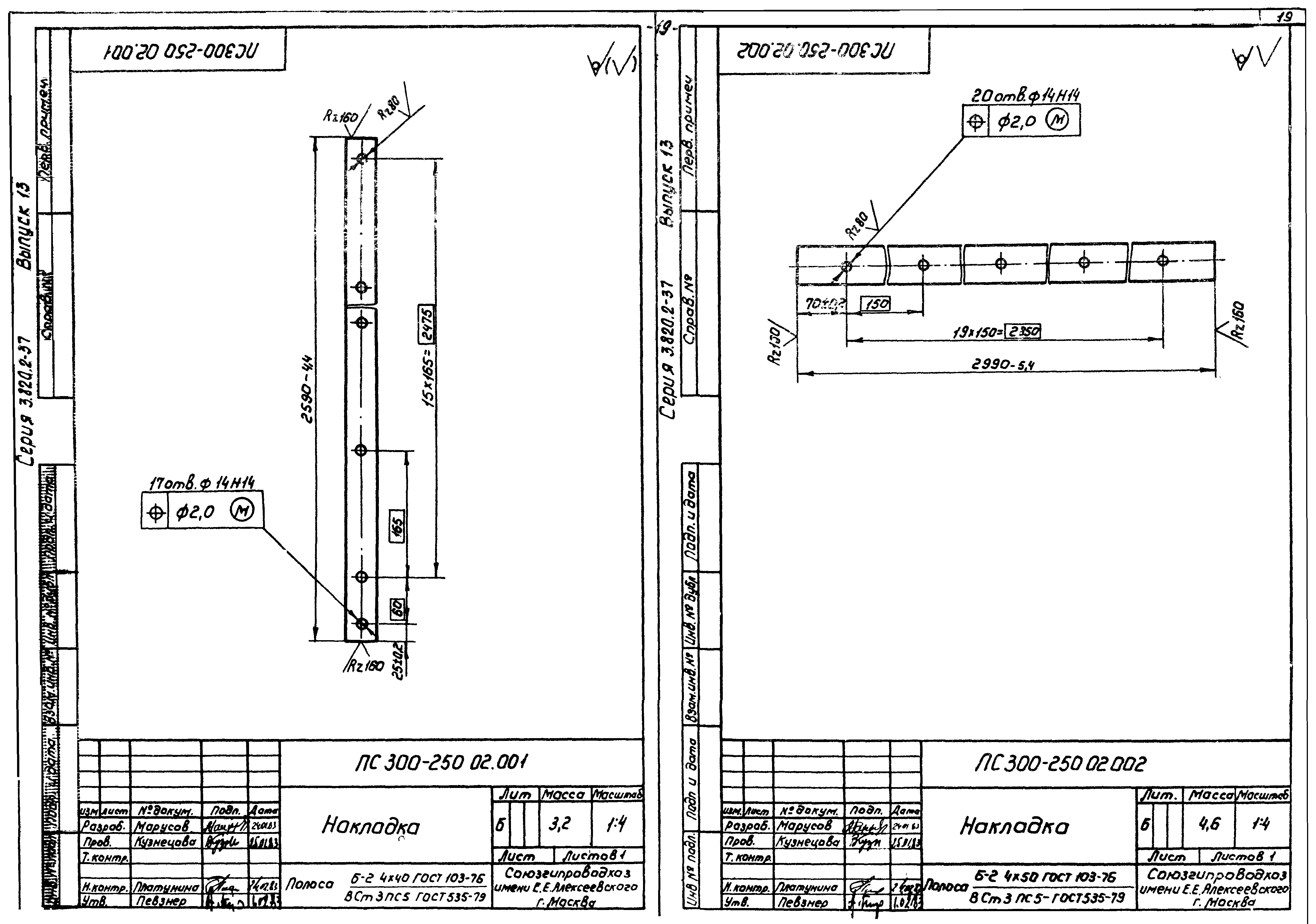
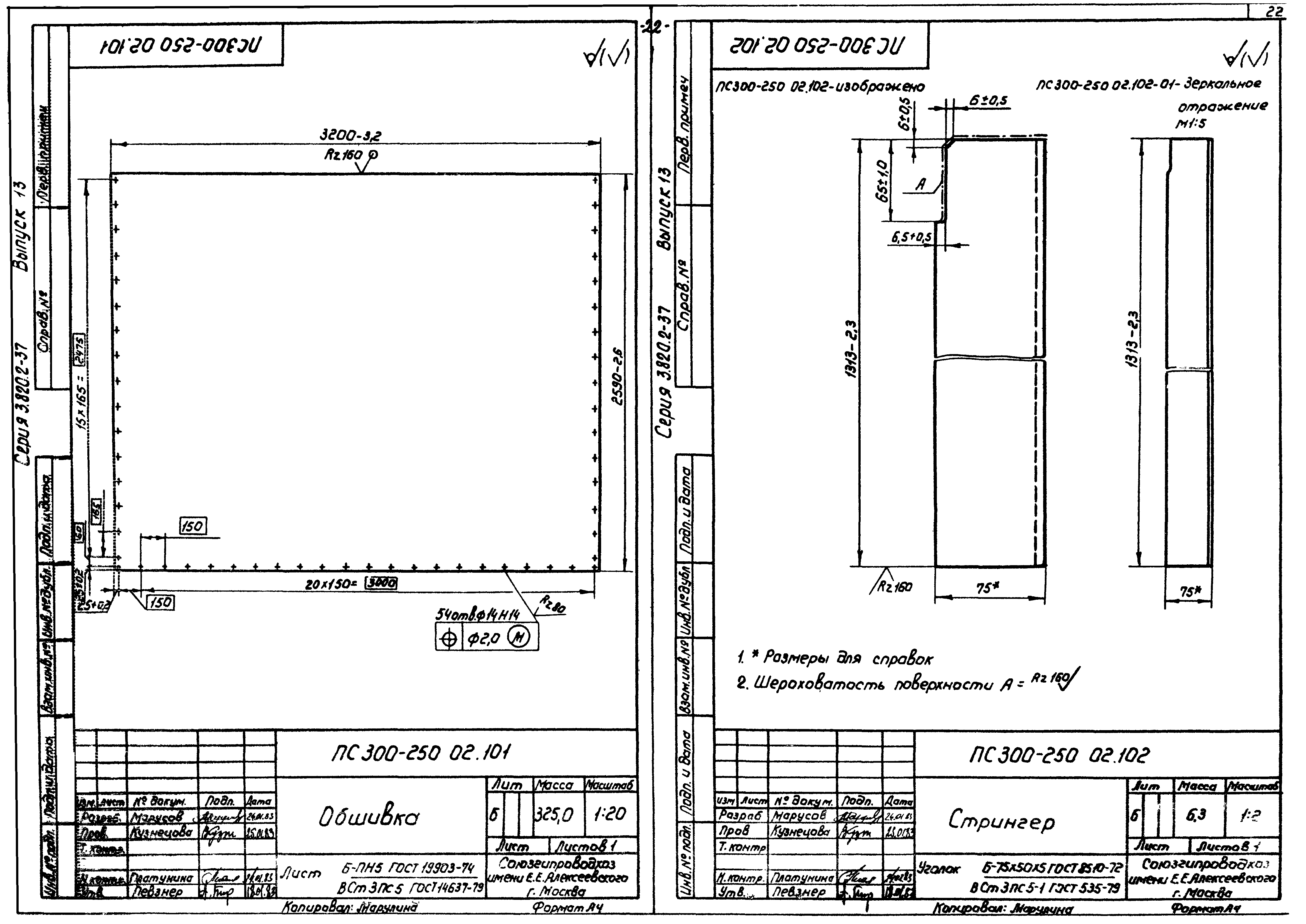
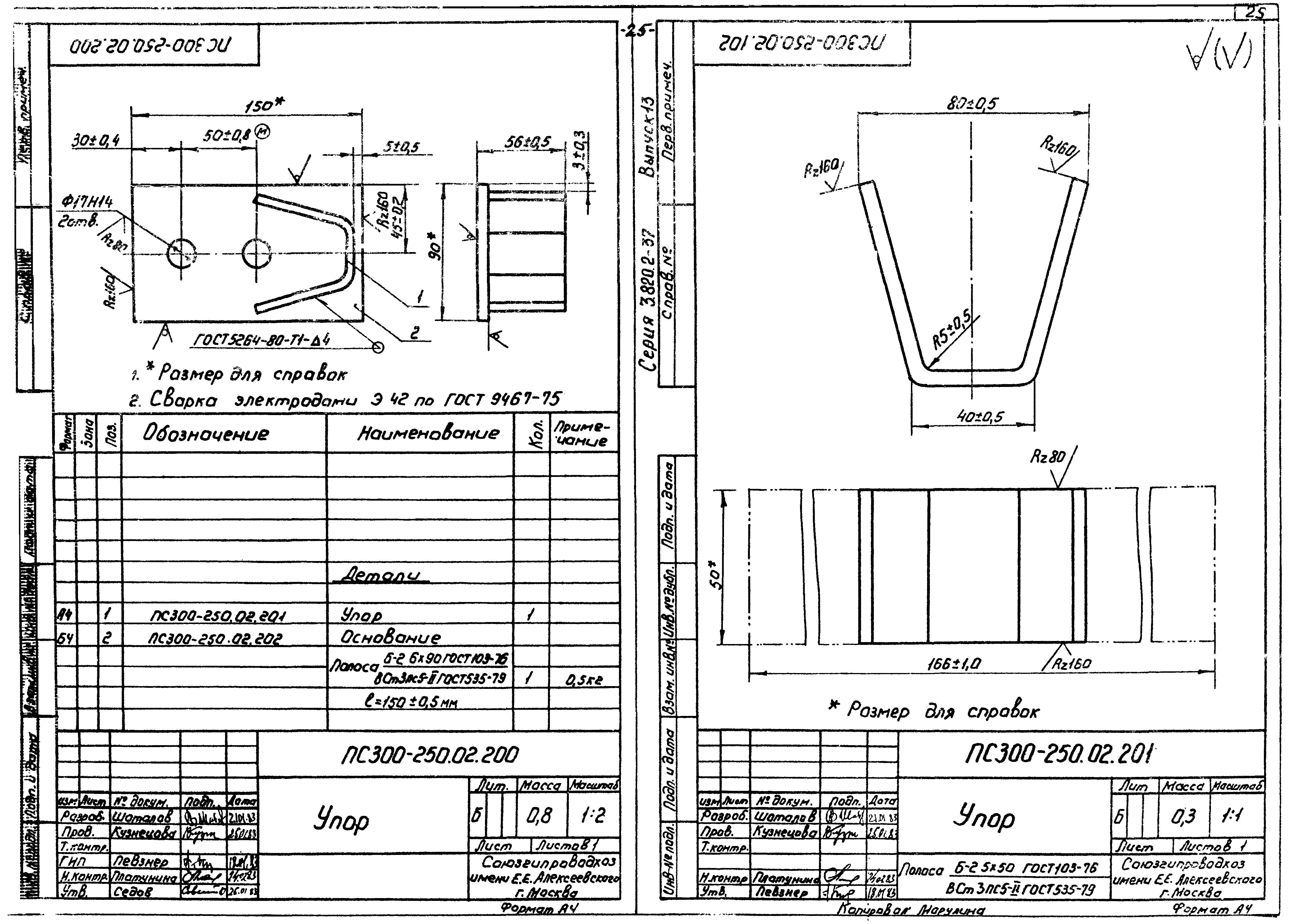
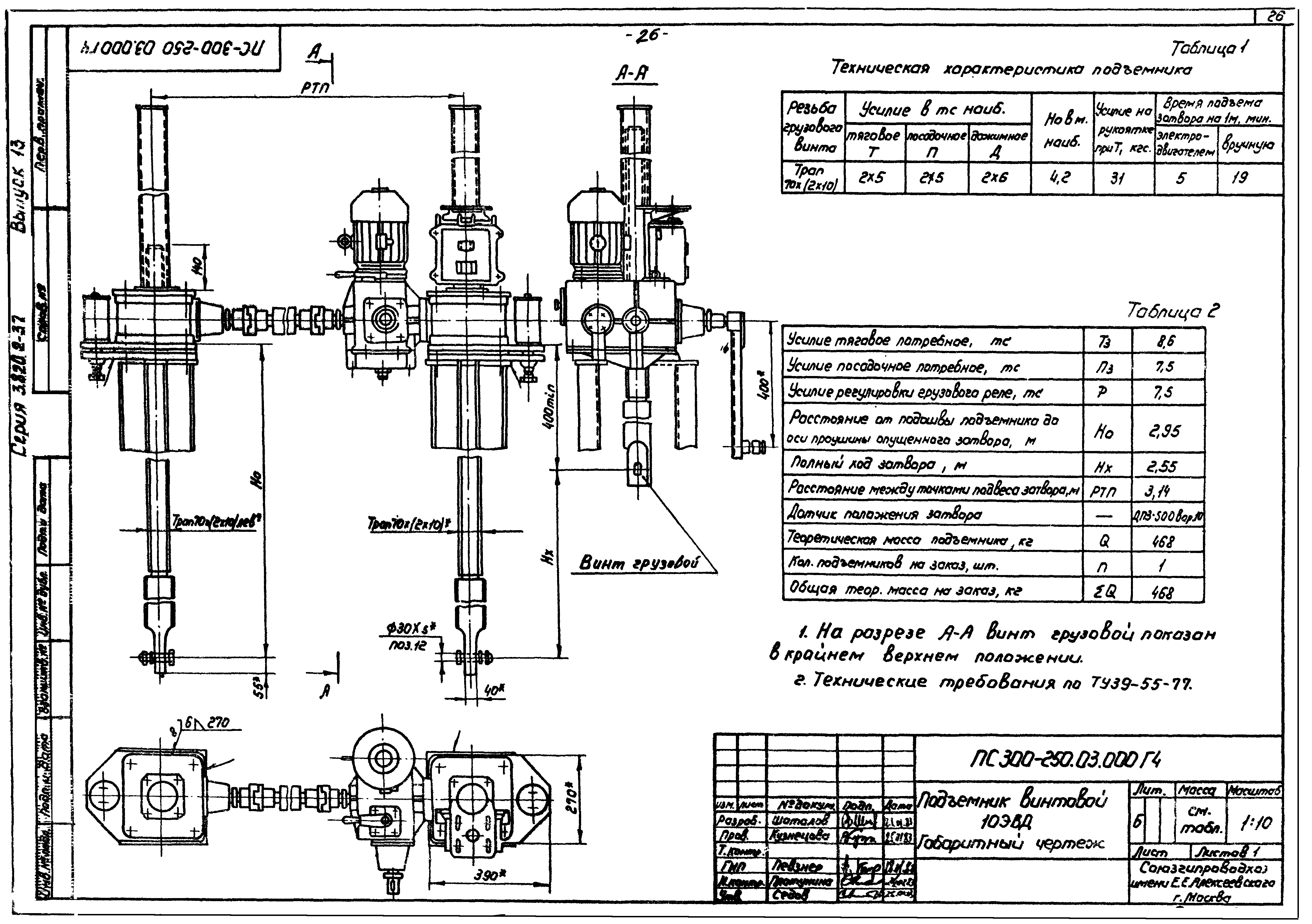
| Оглавление: | ПС 300-250.00.000 Затвор поверхностный скользящий для отверстий 3,0х2,5 м ПС 300-250.00.000 СБ Затвор поверхностный скользящий для отверстий 3,0х2,5 м. Сборочный чертеж ПС 300-250.00.000 ВС Затвор поверхностный скользящий для отверстий 3,0х2,5 м. Ведомость спецификаций ПС 300-250.00.000 ВП Затвор поверхностный скользящий для отверстий 3,0х2,5 м. Ведомость покупных изделий ПС 300-250.00.100 Колонка ПС 300-250.00.100 СБ Колонка. Сборочный чертеж ПС 300-250.00.101 Лист монтажный ПС 300-250.00.102 Ребро ПС 300-250.01.000 Рама ПС 300-250.01.203 Ребро ПС 300-250.01.000 СБ Рама. Сборочный чертеж ПС 300-250.01.100 Марка донная ПС 300-250.01.100 СБ Марка донная. Сборочный чертеж ПС 300-250.01.101 Основание ПС 300-250.01.200 Стойка ПС 300-250.01.200 СБ Стойка. Сборочный чертеж ПС 300-250.01.201 Накладка ПС 300-250.01.202 Ребро ПС 300-250.02.000 Затвор ПС 300-250.02.000 СБ Затвор. Сборочный чертеж ПС 300-250.02.001 Накладка ПС 300-250.02.002 Накладка ПС 300-250.02.100 Металлоконструкция ПС 300-250.02.100 СБ Металлоконструкция. Сборочный чертеж ПС 300-250.02.101 Обшивка ПС 300-250.02.102 Стрингер ПС 300-250.02.103 Вертикаль ПС 300-250.02.104 Проушина ПС 300-250.02.105 Ребро ПС 300-250.02.106 Ригель ПС 300-250.02.200 Упор ПС 300-250.02.201 Упор ПС 300-250.03.000 ГЧ Подъемник винтовой 10 ЭВД. Габаритный чертеж ПС 300-250.04.000 ГЧ Подъемник винтовой 10 ВД. Габаритный чертеж |
| Разработан: | Союзгипроводхоз Минводхоза СССР |
| Утверждён: | 16.04.1982 Минводхоз СССР (USSR Minvodkhoz 473) |



























