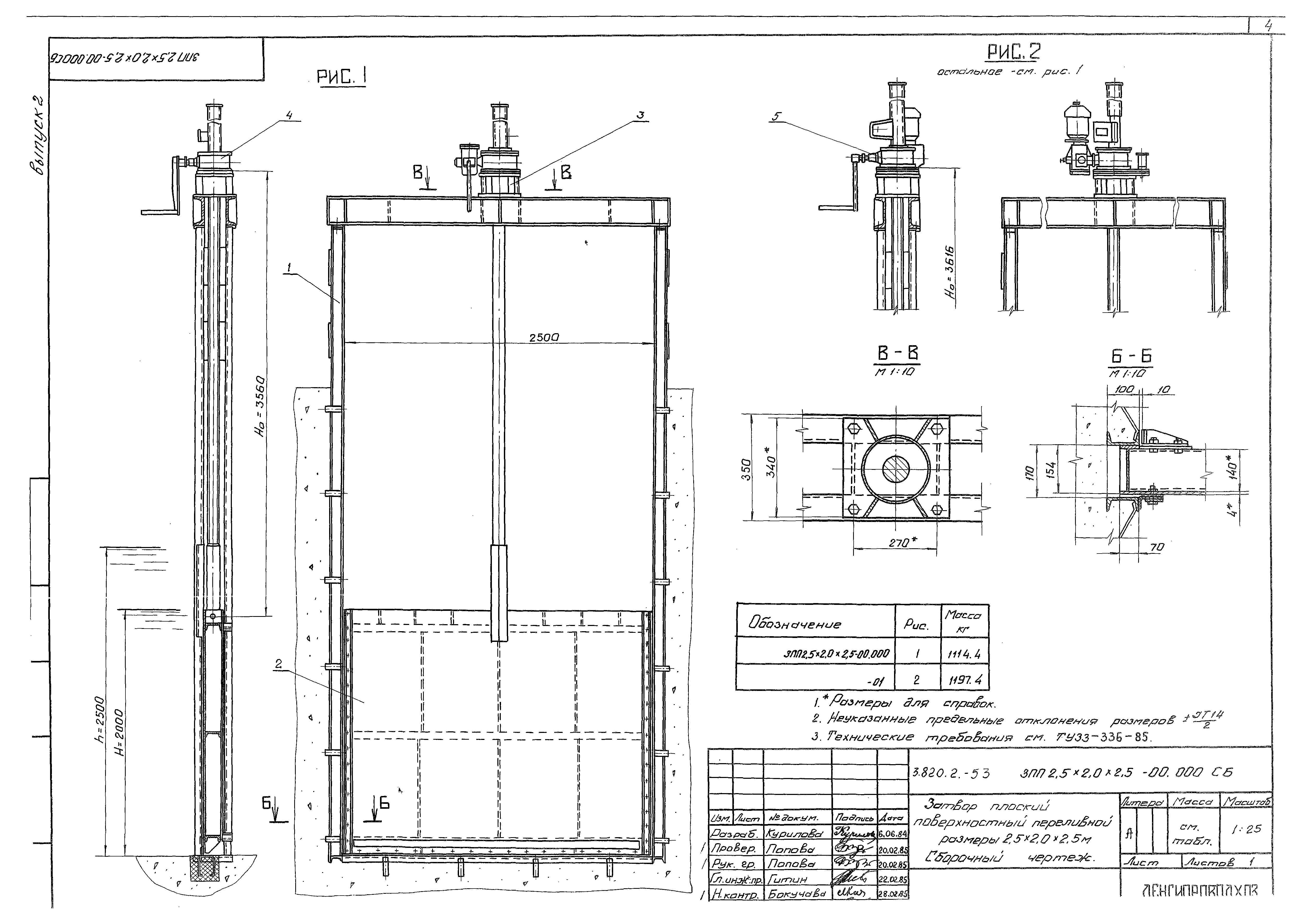
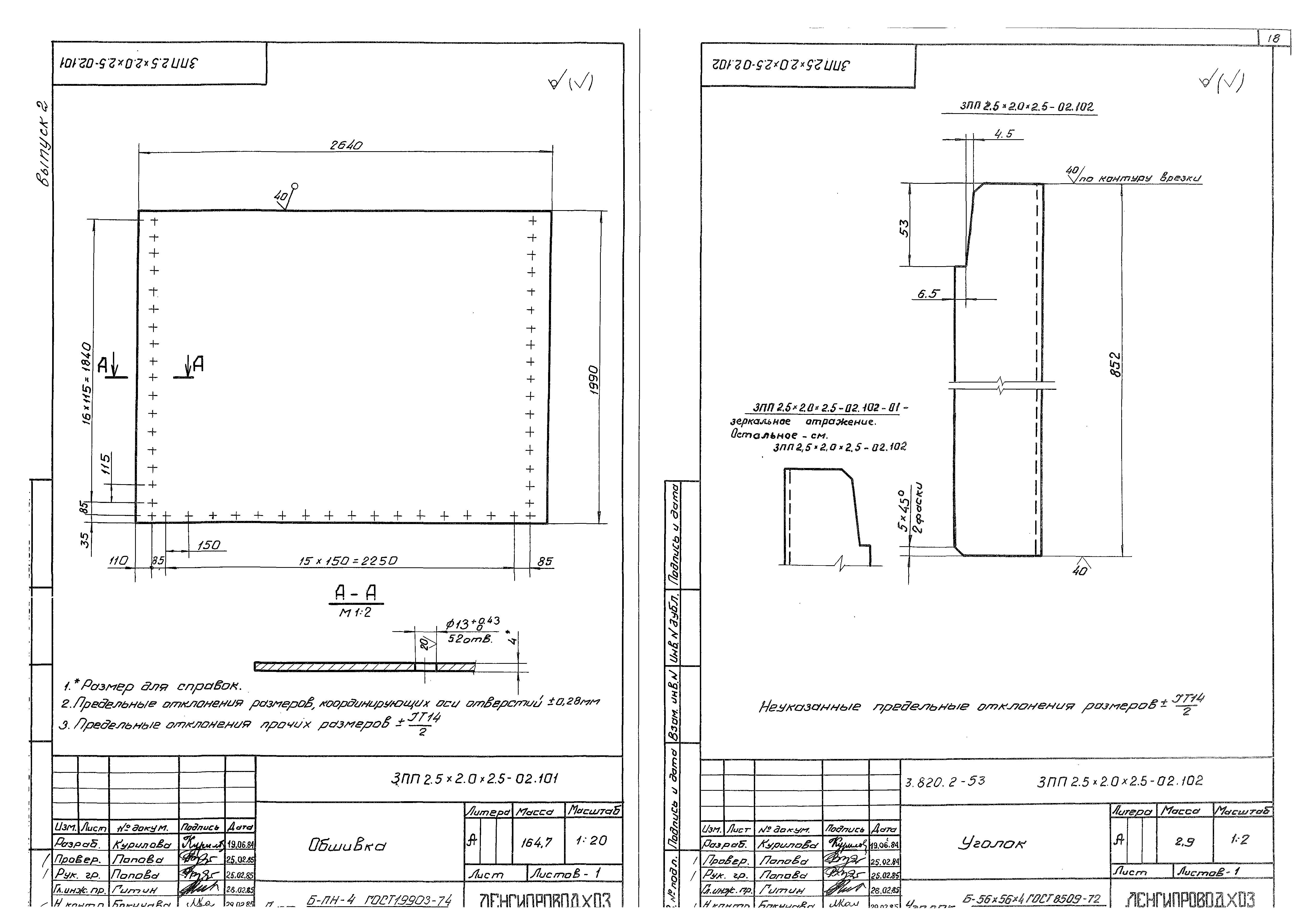
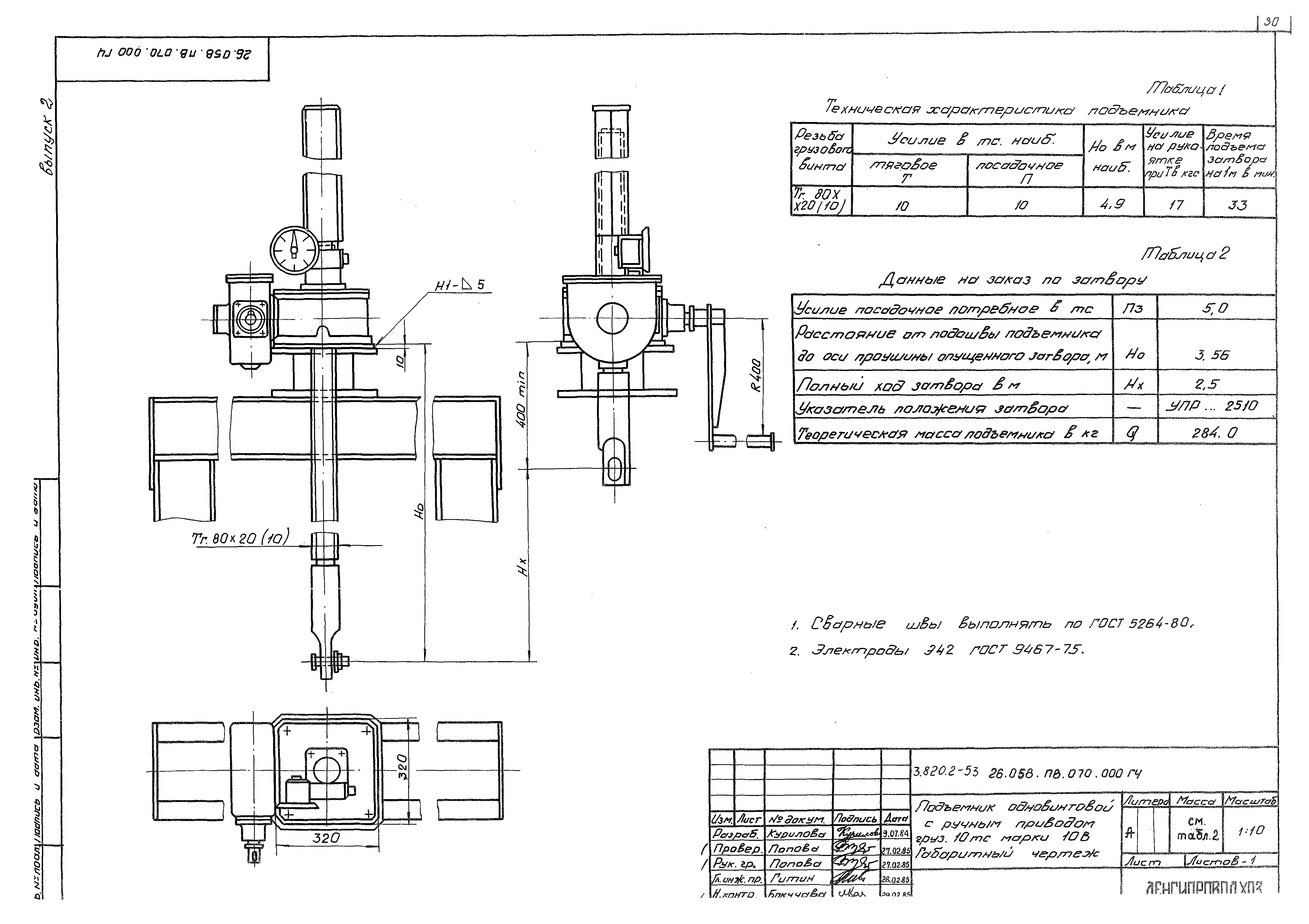
Скачать Серия 3.820.2-53 Выпуск 2. Затворы плоские поверхностные переливные размером 2,5х2,0х2,5 мДата актуализации: 01.01.2021 Серия 3.820.2-53
Выпуск 2. Затворы плоские поверхностные переливные размером 2,5х2,0х2,5 м| Обозначение: | Серия 3.820.2-53 | | Обозначение англ: | Series 3.820.2-53 | | Статус: | не определен законодательством | | Название рус.: | Выпуск 2. Затворы плоские поверхностные переливные размером 2,5х2,0х2,5 м | | Дата добавления в базу: | 01.09.2013 | | Дата актуализации: | 01.01.2021 | | Дата введения: | 01.05.1985 | | Дата окончания срока действия: | 30.06.2003 | | Разработан: | Ленгипроводхоз Минводхоза СССР
| | Утверждён: | 01.11.1984 Минводхоз СССР (USSR Minvodkhoz 603)
|
                              
|