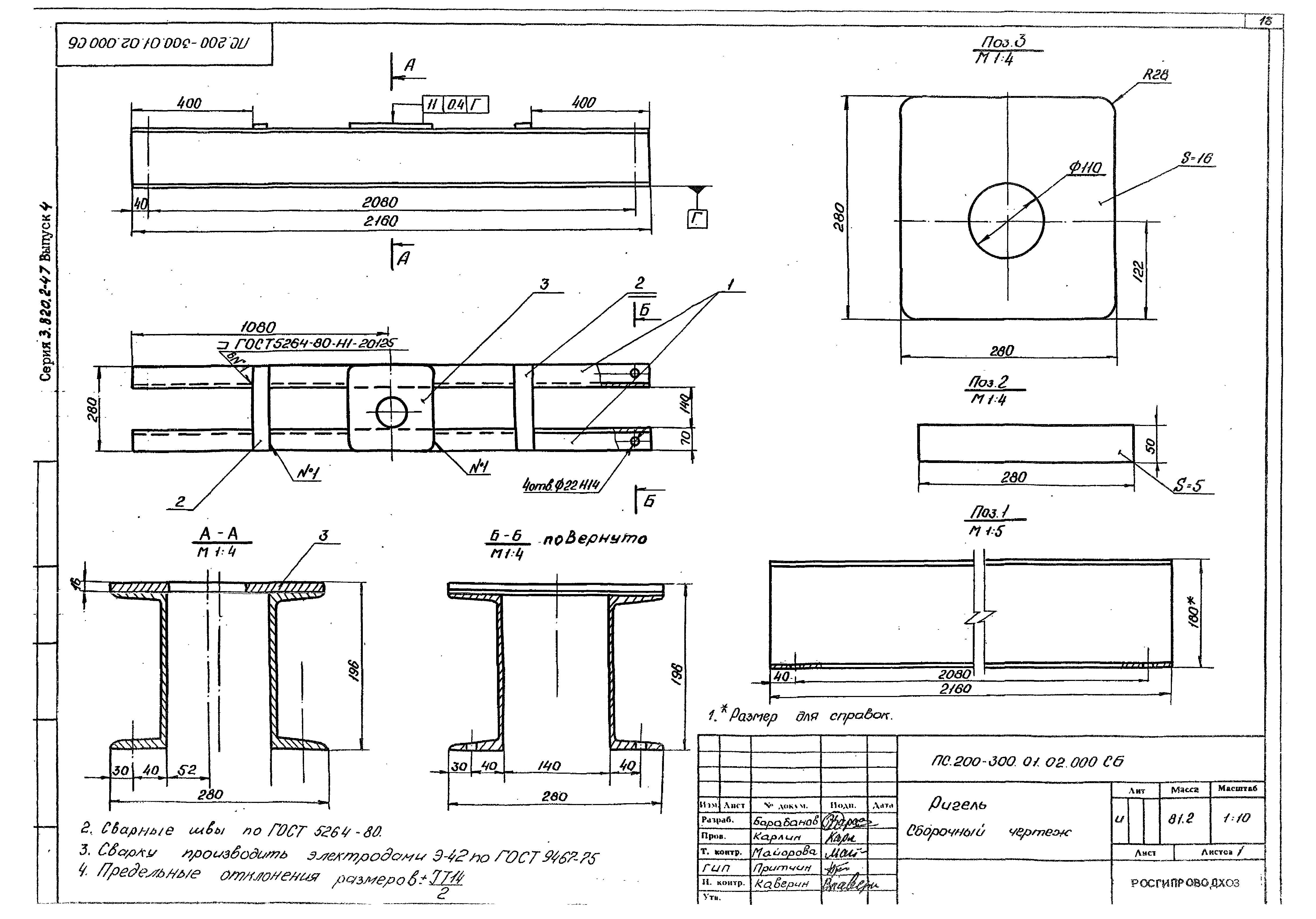
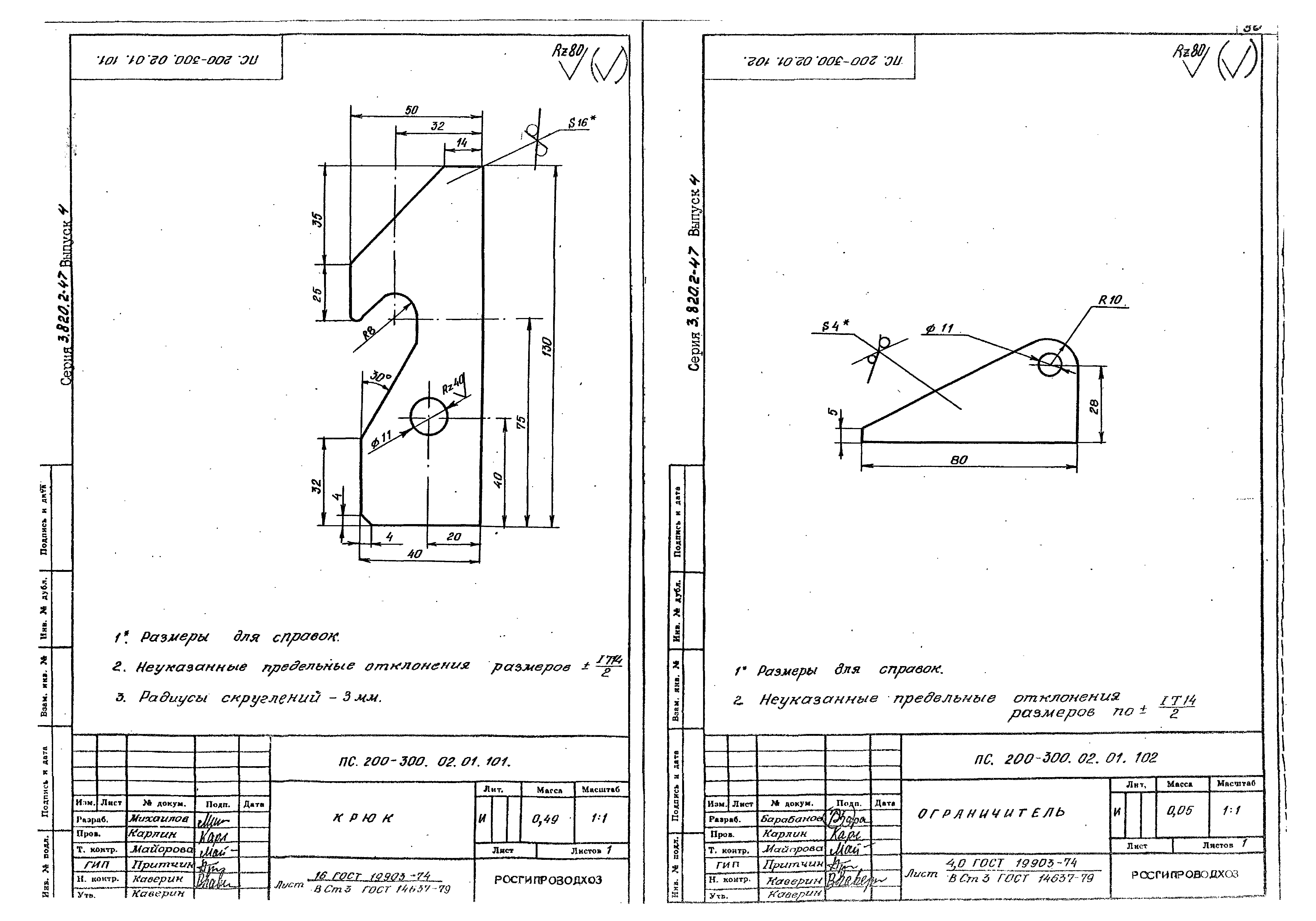
Скачать Серия 3.820.2-47 Выпуск 4. Затвор плоский сдвоенный ВхН = 2,0х3,0 (ПС 2,0х3,0)Дата актуализации: 01.01.2021 Серия 3.820.2-47
Выпуск 4. Затвор плоский сдвоенный ВхН = 2,0х3,0 (ПС 2,0х3,0)| Обозначение: | Серия 3.820.2-47 | | Обозначение англ: | Series 3.820.2-47 | | Статус: | не определен законодательством | | Название рус.: | Выпуск 4. Затвор плоский сдвоенный ВхН = 2,0х3,0 (ПС 2,0х3,0) | | Дата добавления в базу: | 01.09.2013 | | Дата актуализации: | 01.01.2021 | | Дата введения: | 01.09.1984 | | Дата окончания срока действия: | 30.06.2003 | | Разработан: | Росгипроводхоз
| | Утверждён: | 15.06.1984 Минводхоз СССР (USSR Minvodkhoz 561)
|
                                    
|