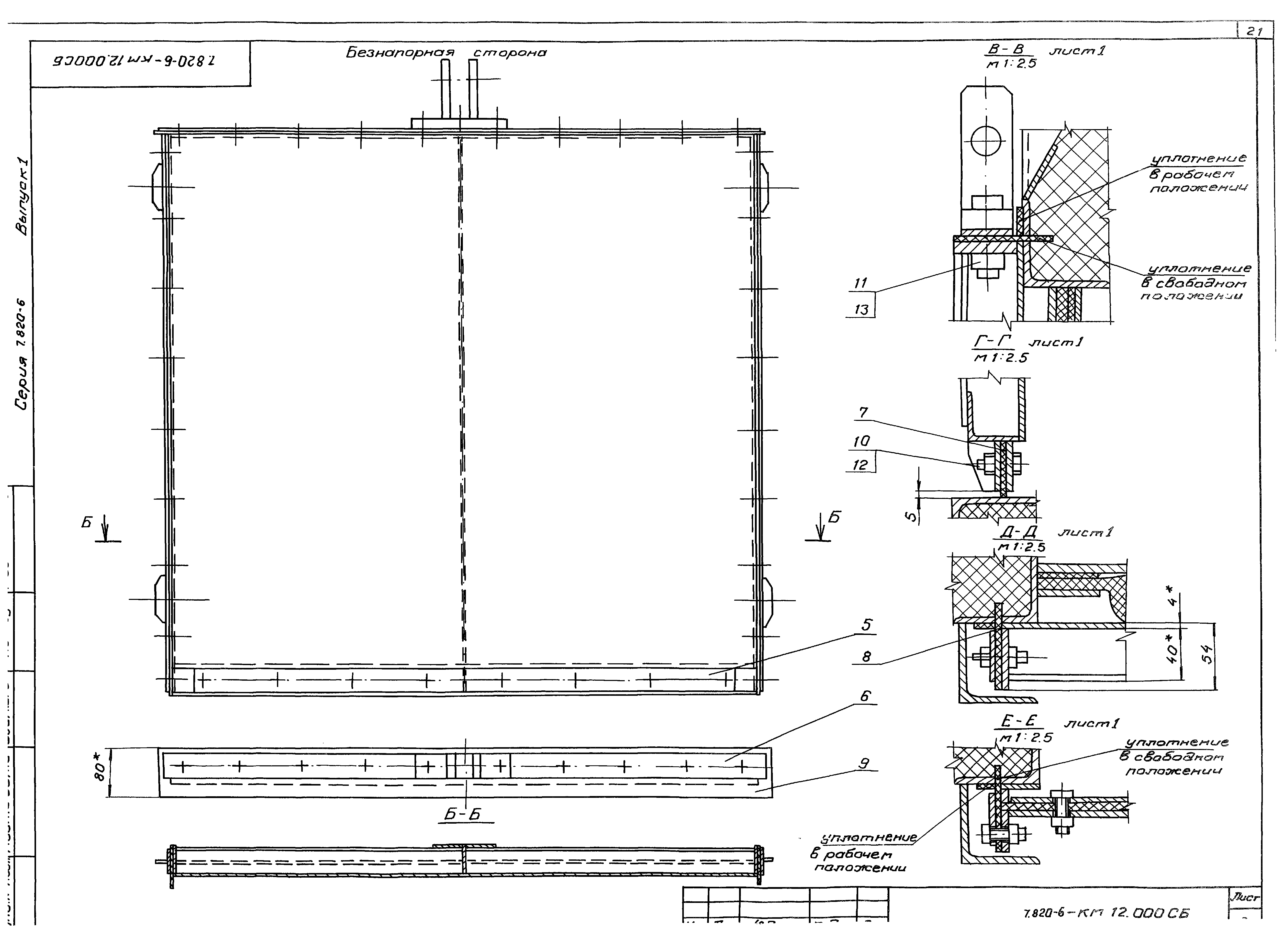
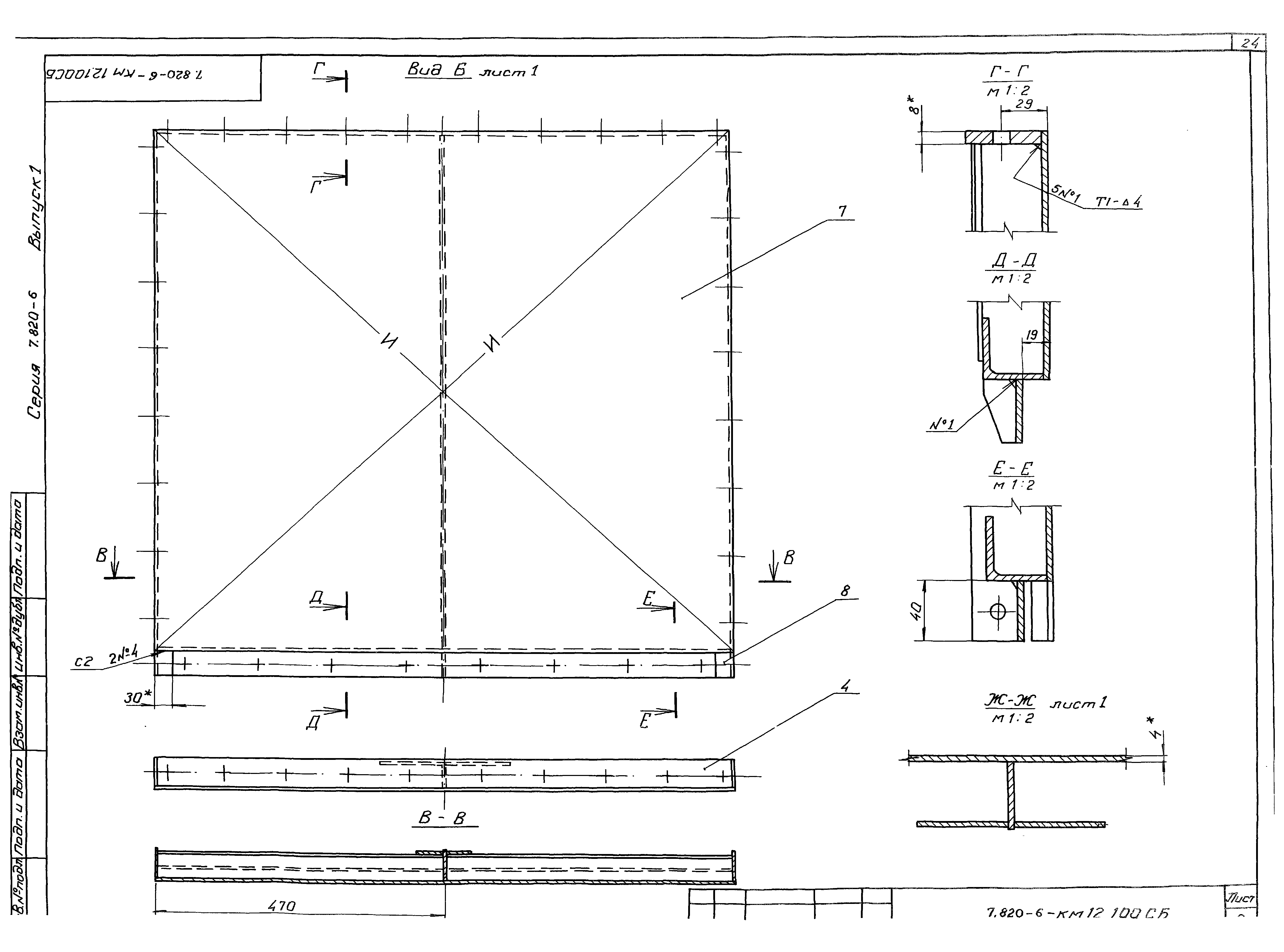
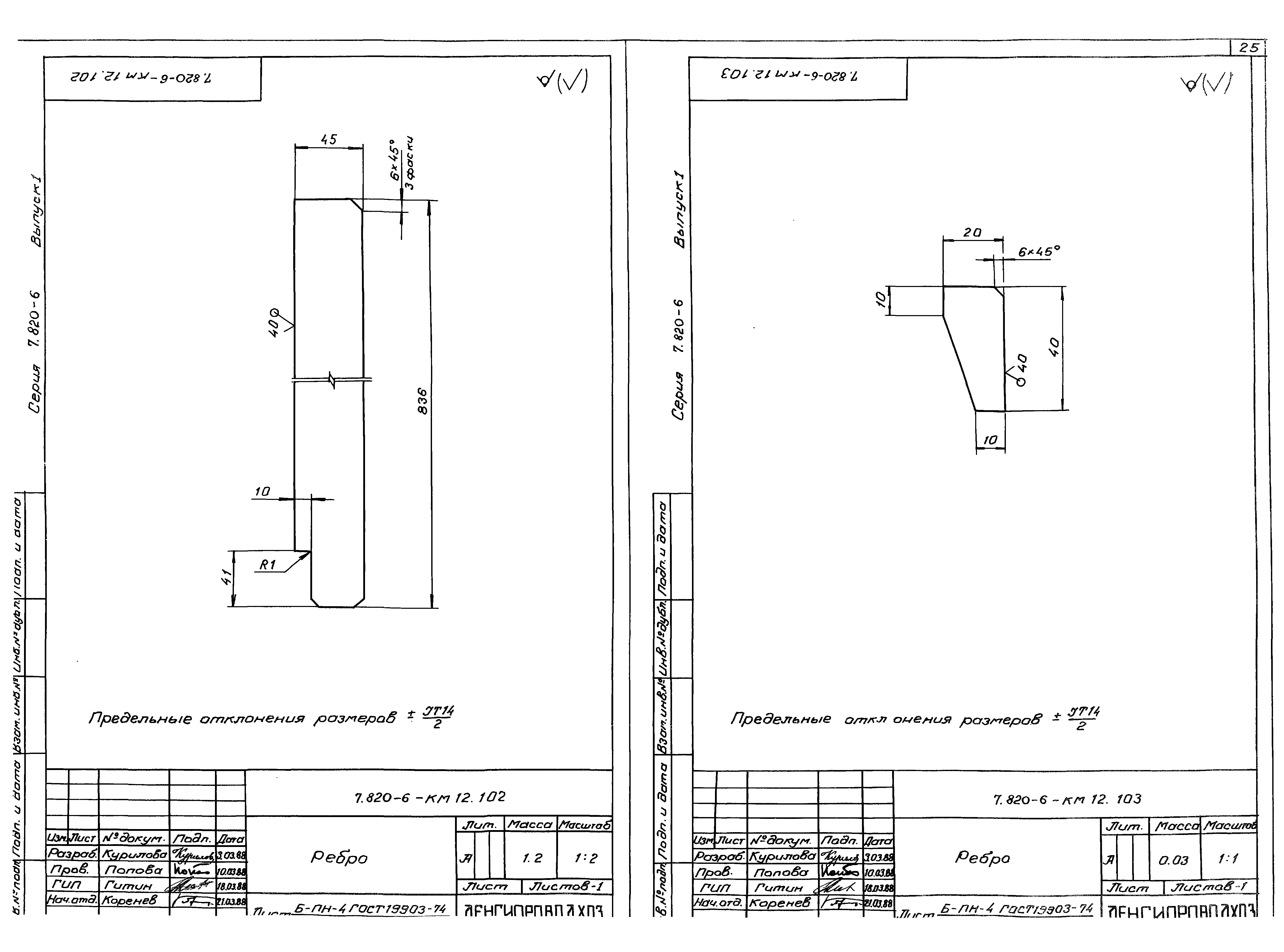
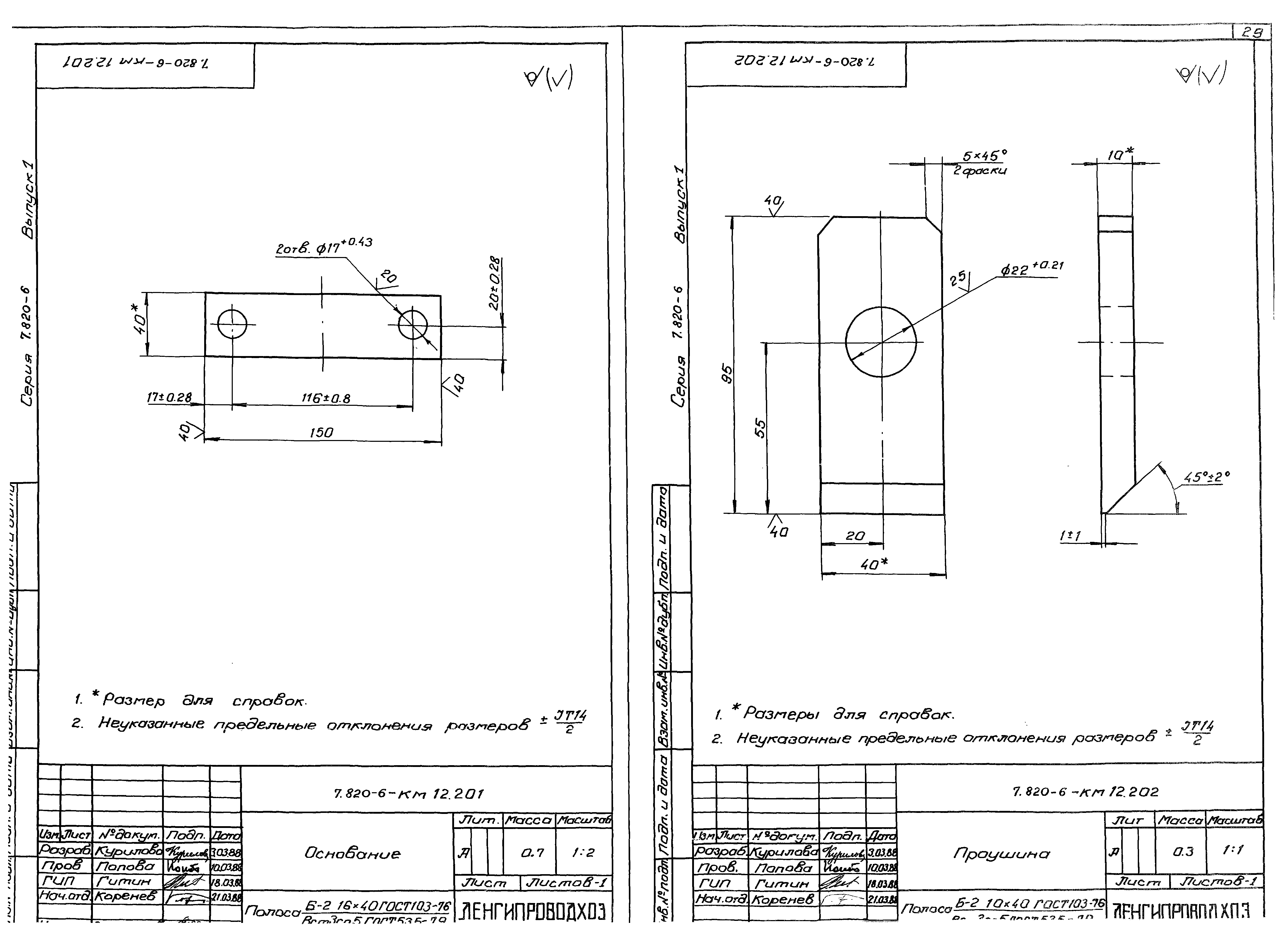
Скачать Серия 7.820-6 Выпуск 1. Затворы для перекрытия отверстий водовыпусков в дамбах подводящего канала диаметром 0,8 м при напоре от 1,3 до 1,7 мДата актуализации: 01.01.2021 Серия 7.820-6
Выпуск 1. Затворы для перекрытия отверстий водовыпусков в дамбах подводящего канала диаметром 0,8 м при напоре от 1,3 до 1,7 м| Обозначение: | Серия 7.820-6 | | Обозначение англ: | Series 7.820-6 | | Статус: | не определен законодательством | | Название рус.: | Выпуск 1. Затворы для перекрытия отверстий водовыпусков в дамбах подводящего канала диаметром 0,8 м при напоре от 1,3 до 1,7 м | | Дата добавления в базу: | 01.09.2013 | | Дата актуализации: | 01.01.2021 | | Дата введения: | 01.01.1989 | | Дата окончания срока действия: | 30.06.2003 | | Разработан: | Ленгипроводхоз Минводхоза СССР
| | Утверждён: | 06.05.1988 Минводхоз СССР (USSR Minvodkhoz 775)
|
                                  
|