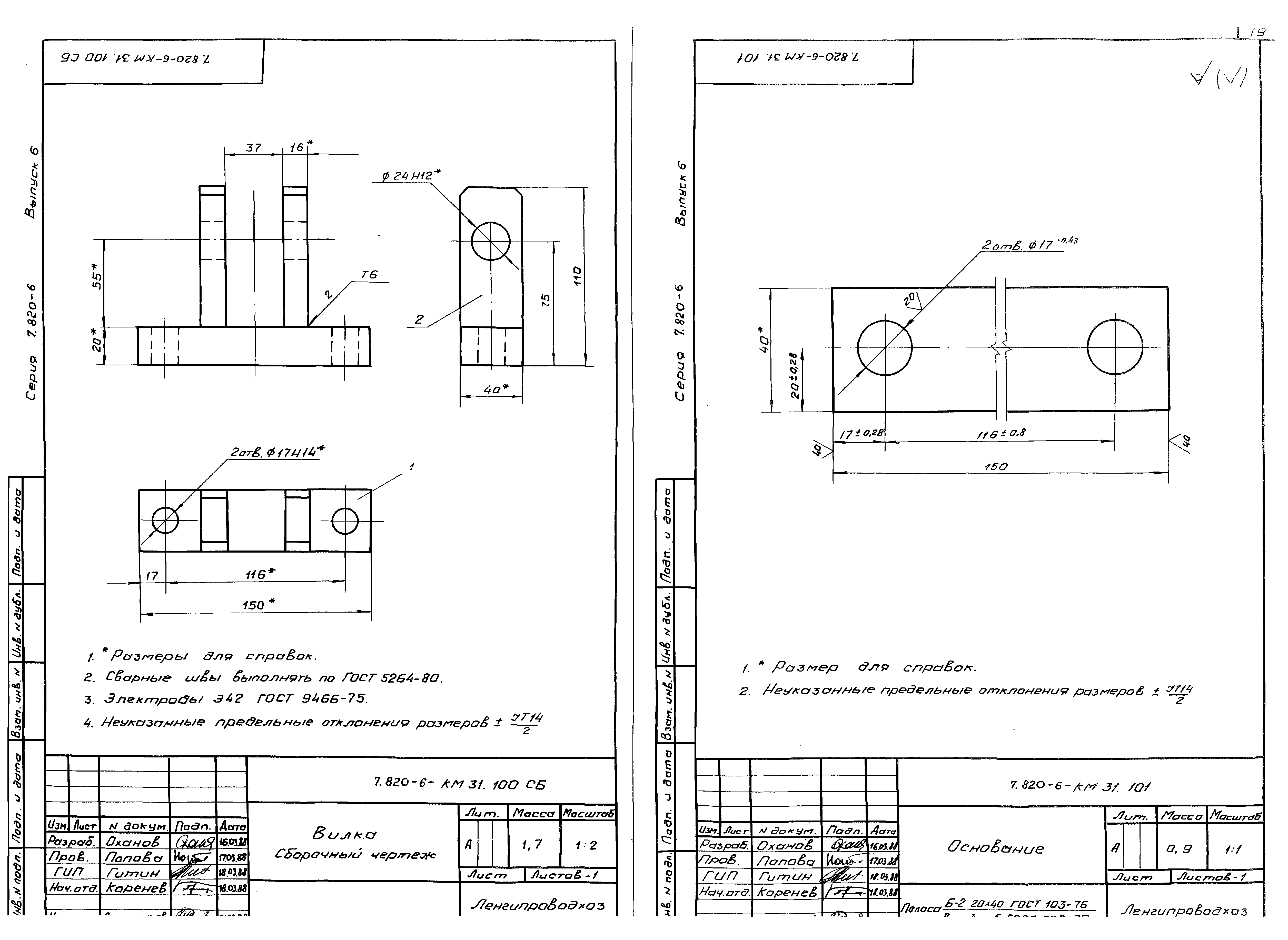
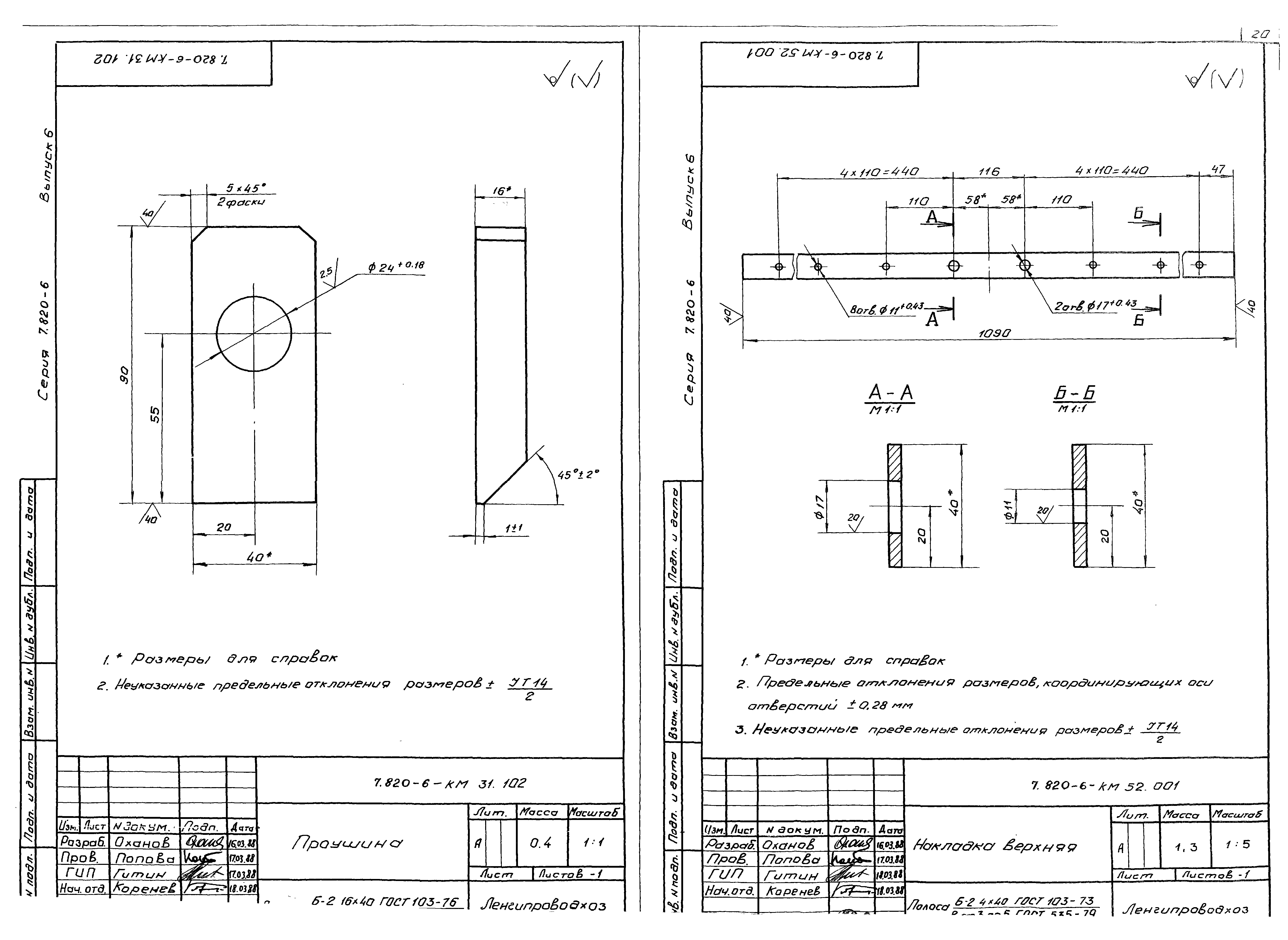
Скачать Серия 7.820-6 Выпуск 6. Затворы для перекрытия отверстий водовыпусков в оградительных дамбах лиманов диаметром 1,0 м при напоре от 2,4 до 2,9 мДата актуализации: 01.01.2021 Серия 7.820-6
Выпуск 6. Затворы для перекрытия отверстий водовыпусков в оградительных дамбах лиманов диаметром 1,0 м при напоре от 2,4 до 2,9 м| Обозначение: | Серия 7.820-6 | | Обозначение англ: | Series 7.820-6 | | Статус: | не определен законодательством | | Название рус.: | Выпуск 6. Затворы для перекрытия отверстий водовыпусков в оградительных дамбах лиманов диаметром 1,0 м при напоре от 2,4 до 2,9 м | | Дата добавления в базу: | 01.09.2013 | | Дата актуализации: | 01.01.2021 | | Дата введения: | 01.01.1989 | | Дата окончания срока действия: | 30.06.2003 | | Разработан: | Ленгипроводхоз Минводхоза СССР
| | Утверждён: | 06.05.1988 Минводхоз СССР (USSR Minvodkhoz 775)
|
                             
|