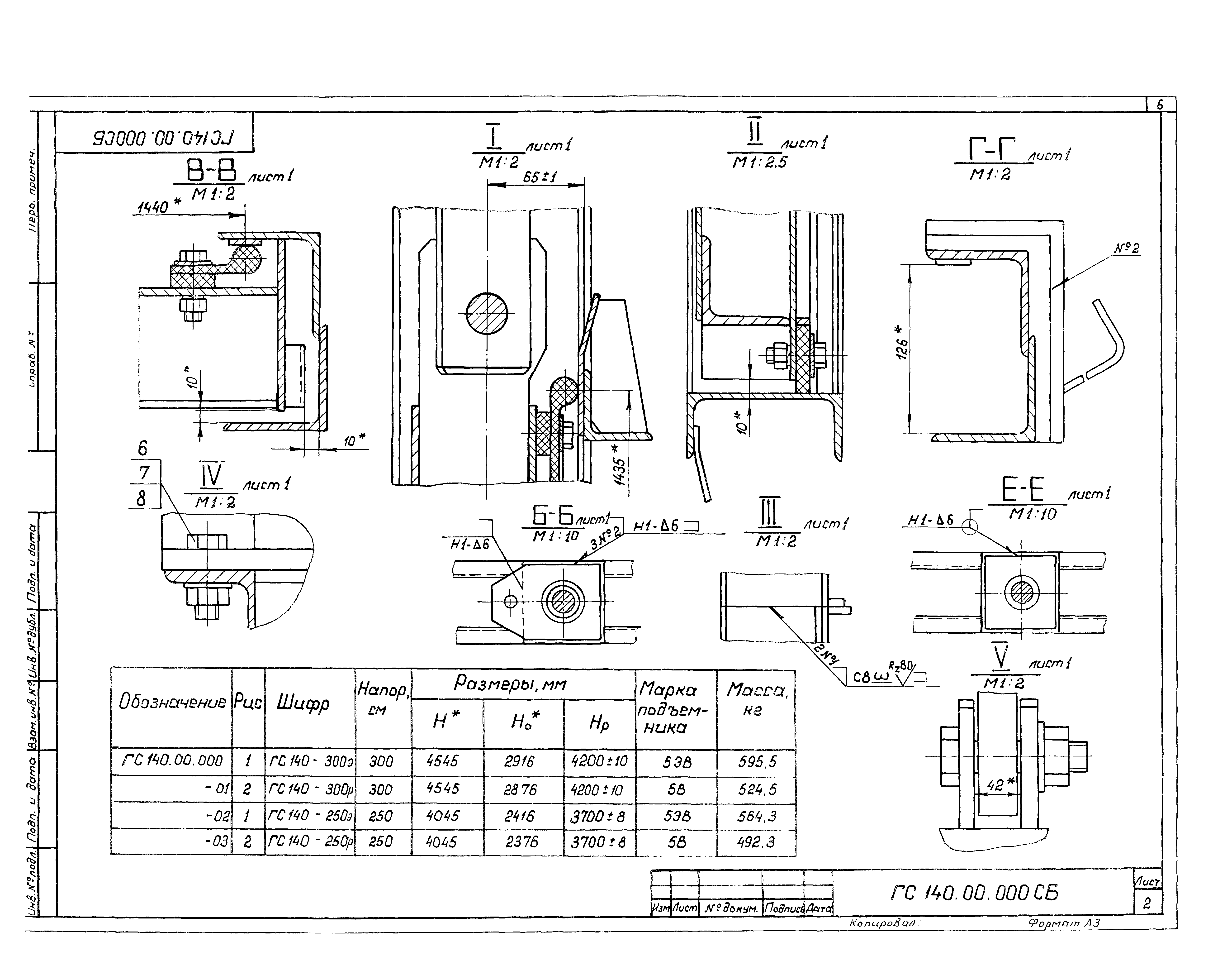
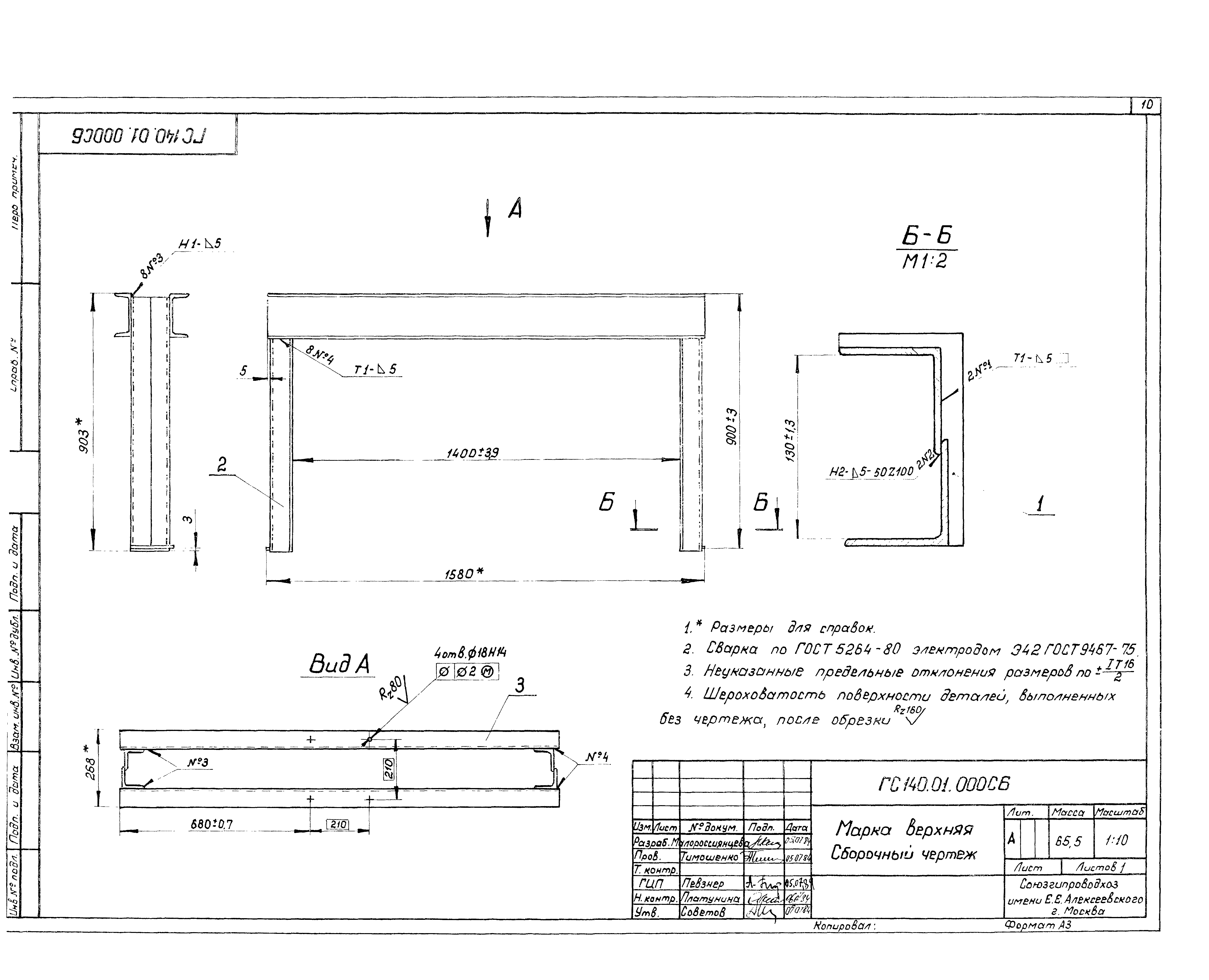
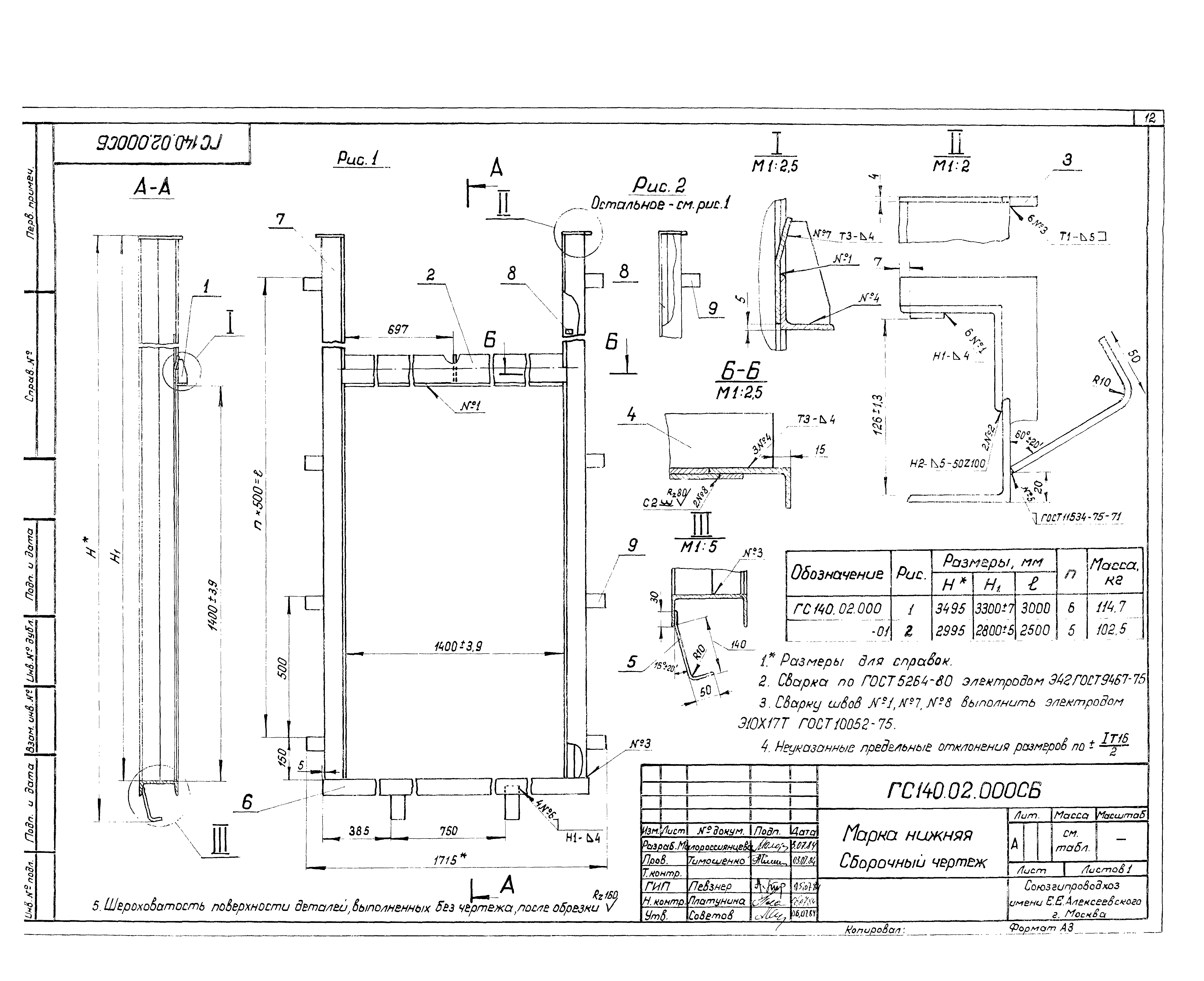
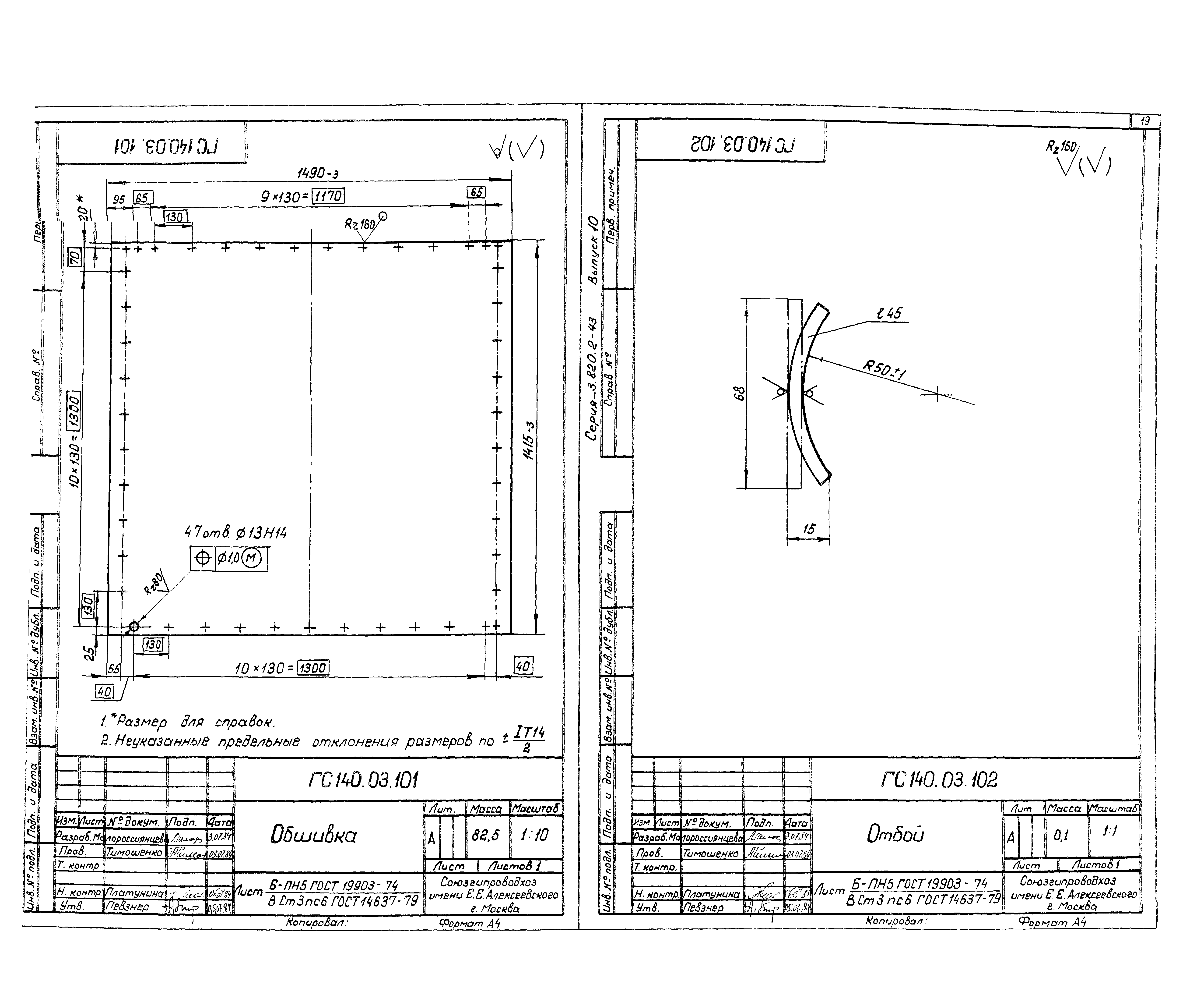
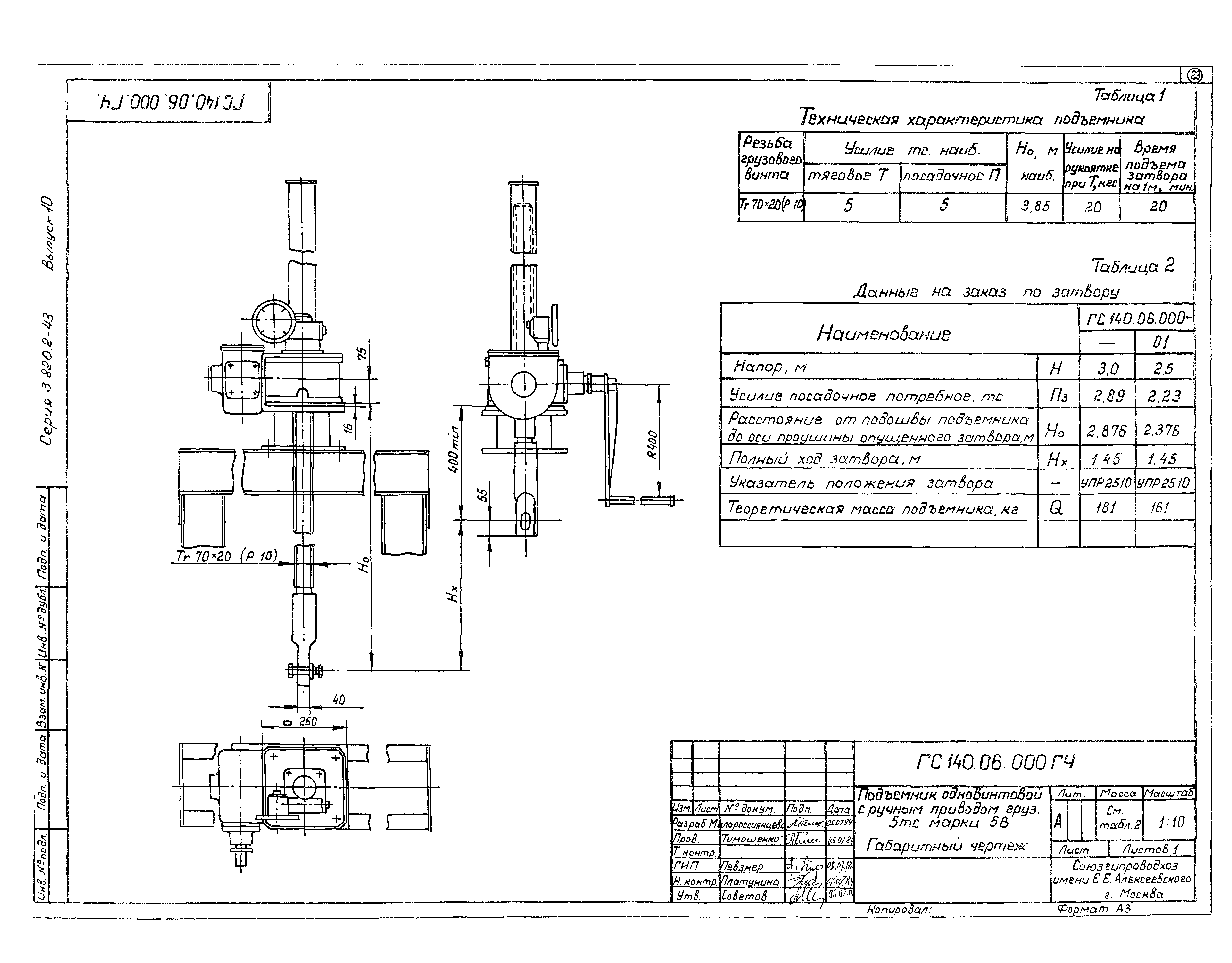
Скачать Серия 3.820.2-43 Выпуск 10. Рабочие чертежи затвора ГС 140-250, ГС 140-300Дата актуализации: 01.01.2021 Серия 3.820.2-43
Выпуск 10. Рабочие чертежи затвора ГС 140-250, ГС 140-300| Обозначение: | Серия 3.820.2-43 | | Обозначение англ: | Series 3.820.2-43 | | Статус: | не определен законодательством | | Название рус.: | Выпуск 10. Рабочие чертежи затвора ГС 140-250, ГС 140-300 | | Дата добавления в базу: | 01.09.2013 | | Дата актуализации: | 01.01.2021 | | Дата введения: | 01.01.1985 | | Дата окончания срока действия: | 30.06.2003 | | Разработан: | Союзгипроводхоз Минводхоза СССР
| | Утверждён: | 19.03.1984 Минводхоз СССР (USSR Minvodkhoz 558)
|
                      
|