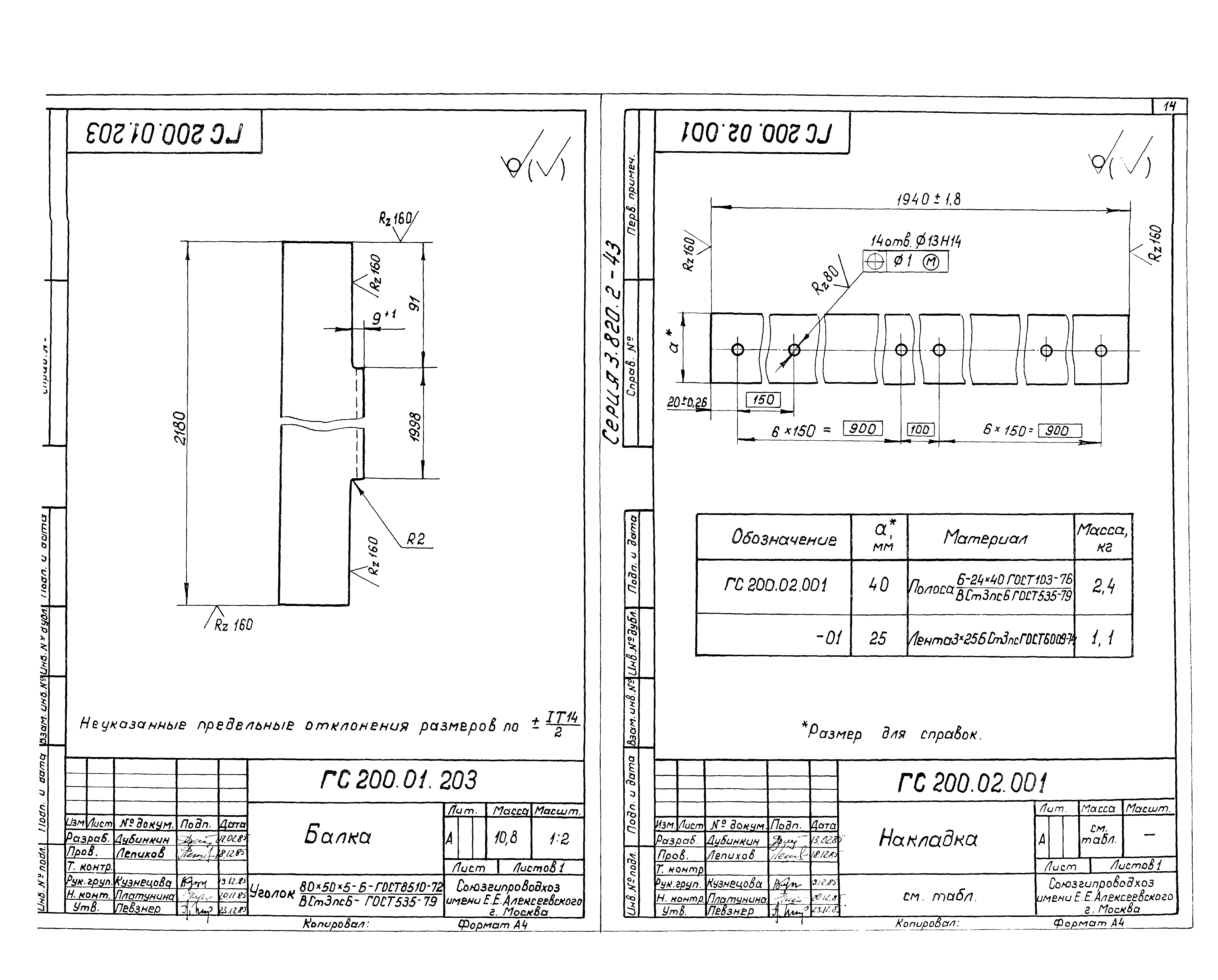
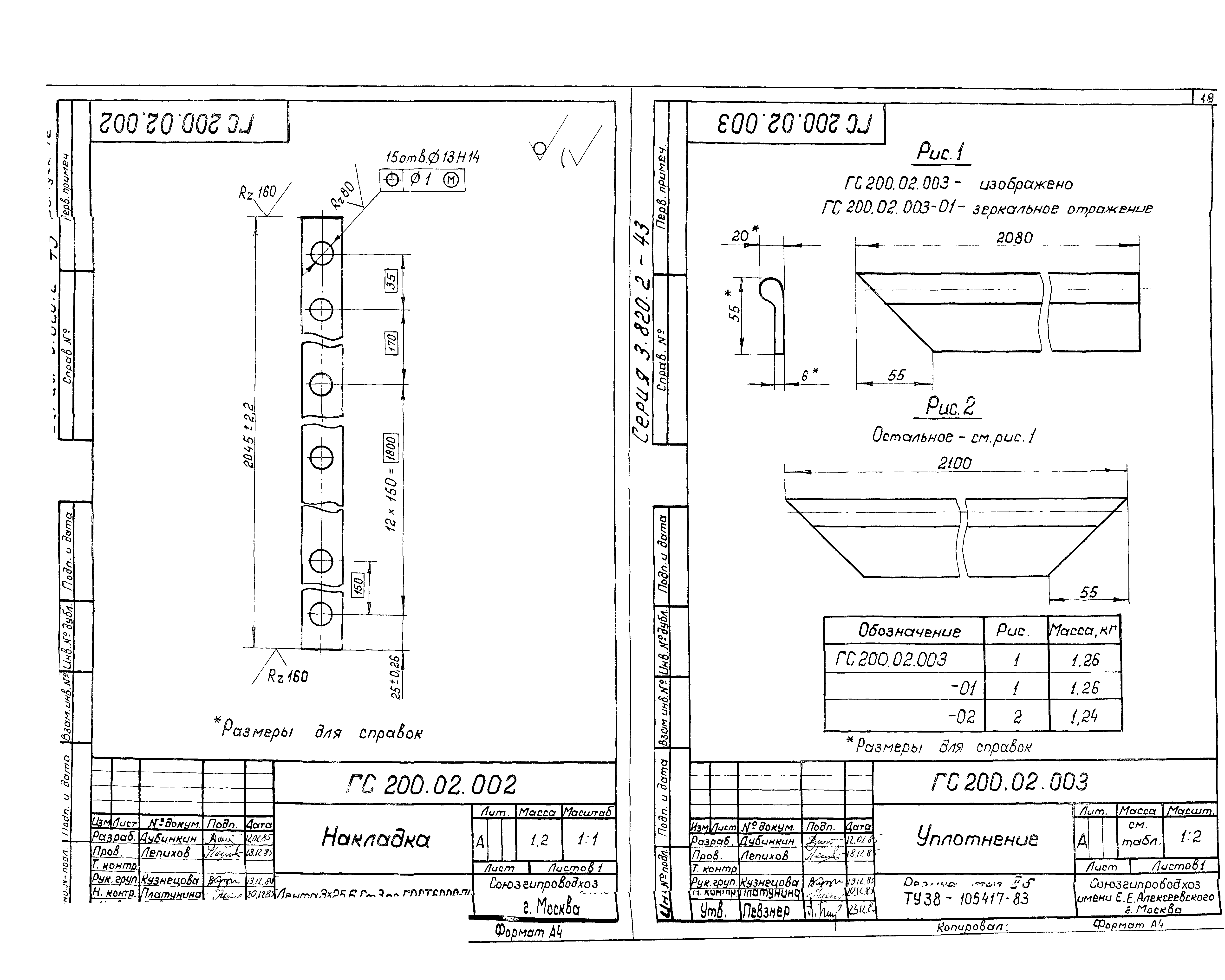
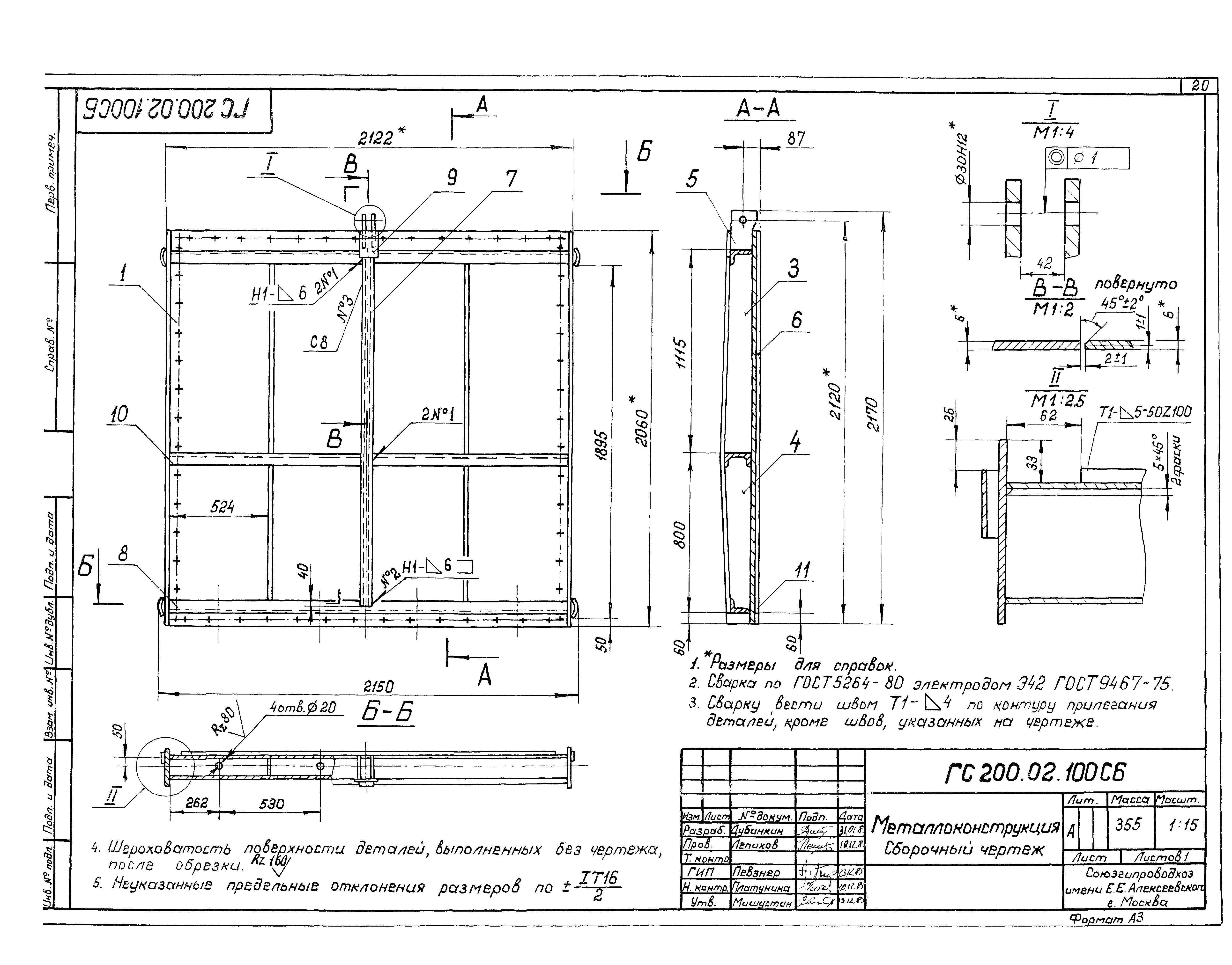
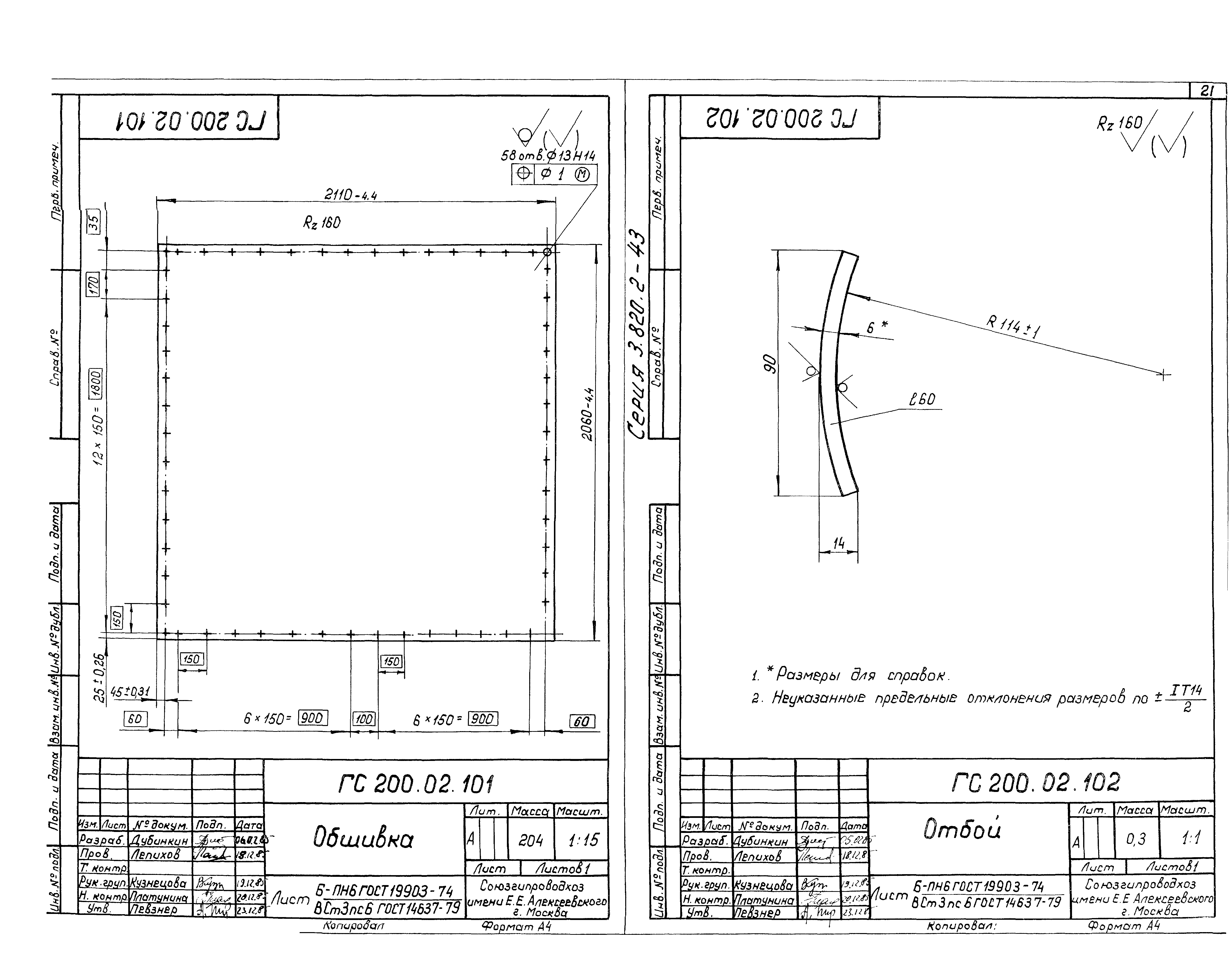
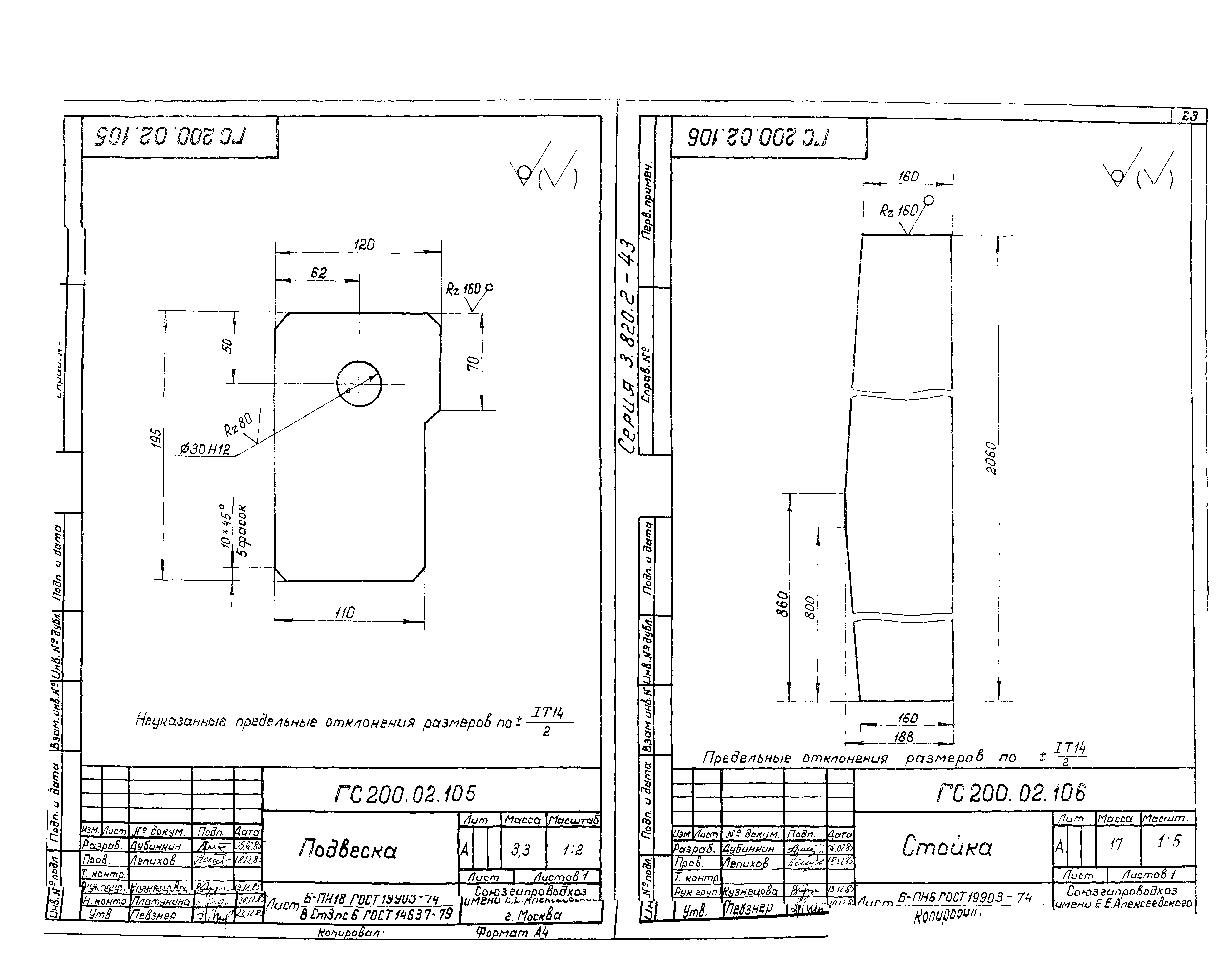
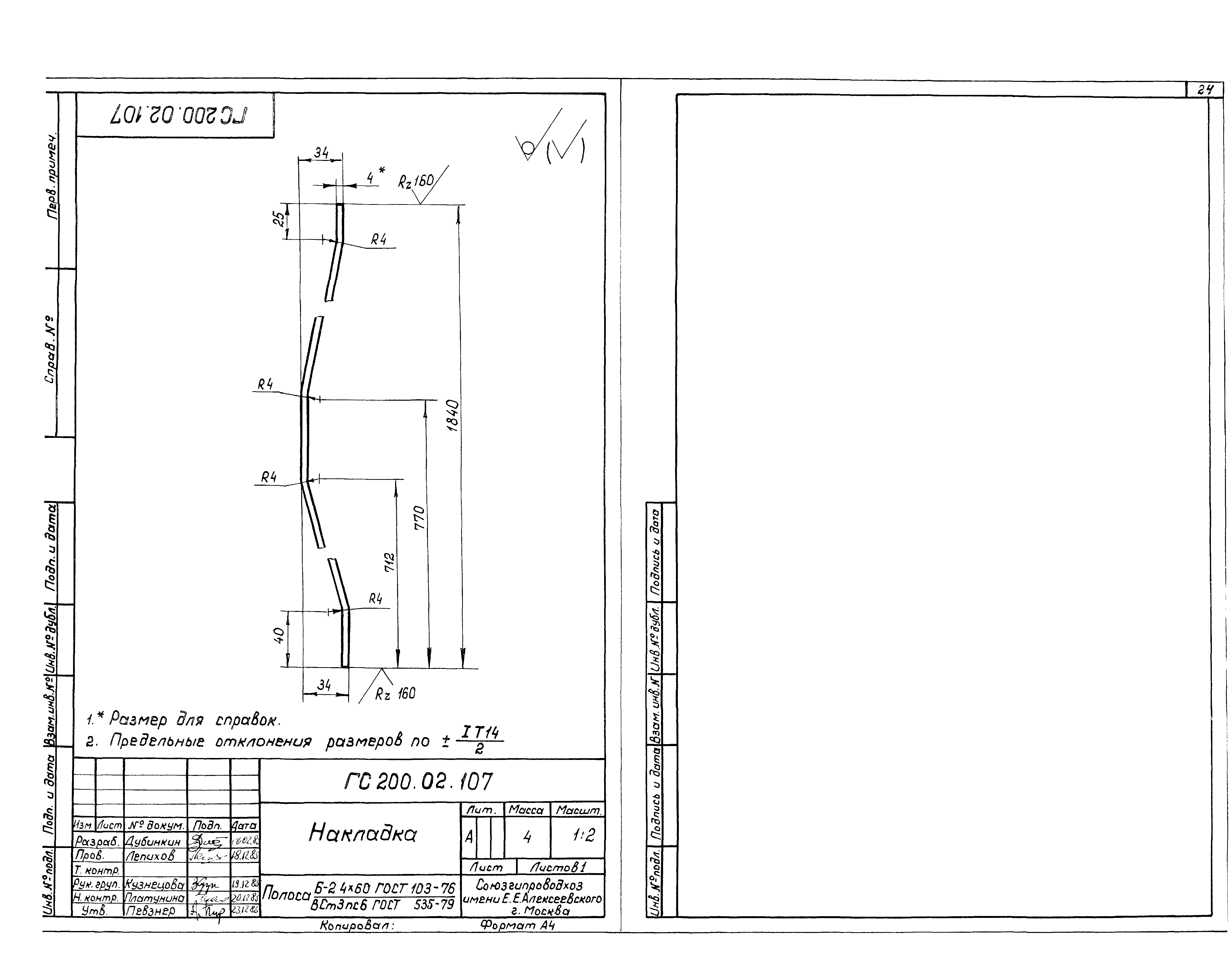
Скачать Серия 3.820.2-43 Выпуск 12. Рабочие чертежи затвора ГС 200-300Дата актуализации: 01.01.2021
|
| Обозначение: | Серия 3.820.2-43 |
| Обозначение англ: | Series 3.820.2-43 |
| Статус: | не определен законодательством |
| Название рус.: | Выпуск 12. Рабочие чертежи затвора ГС 200-300 |
| Дата добавления в базу: | 01.09.2013 |
| Дата актуализации: | 01.01.2021 |
| Дата введения: | 30.08.1986 |
| Дата окончания срока действия: | 30.06.2003 |
| Разработан: | Союзгипроводхоз Минводхоза СССР |
| Утверждён: | 19.03.1986 Минводхоз СССР (USSR Minvodkhoz 478) |



























