Скачать Серия 3.402-24 Выпуск 4. Строительные конструкции кабельных отдельно стоящих эстакад. Рабочие чертежиДата актуализации: 01.01.2021
|
| Обозначение: | Серия 3.402-24 |
| Обозначение англ: | Series 3.402-24 |
| Статус: | не определен законодательством |
| Название рус.: | Выпуск 4. Строительные конструкции кабельных отдельно стоящих эстакад. Рабочие чертежи |
| Дата добавления в базу: | 01.09.2013 |
| Дата актуализации: | 01.01.2021 |
| Дата введения: | 01.05.1978 |
| Дата окончания срока действия: | 30.06.2003 |
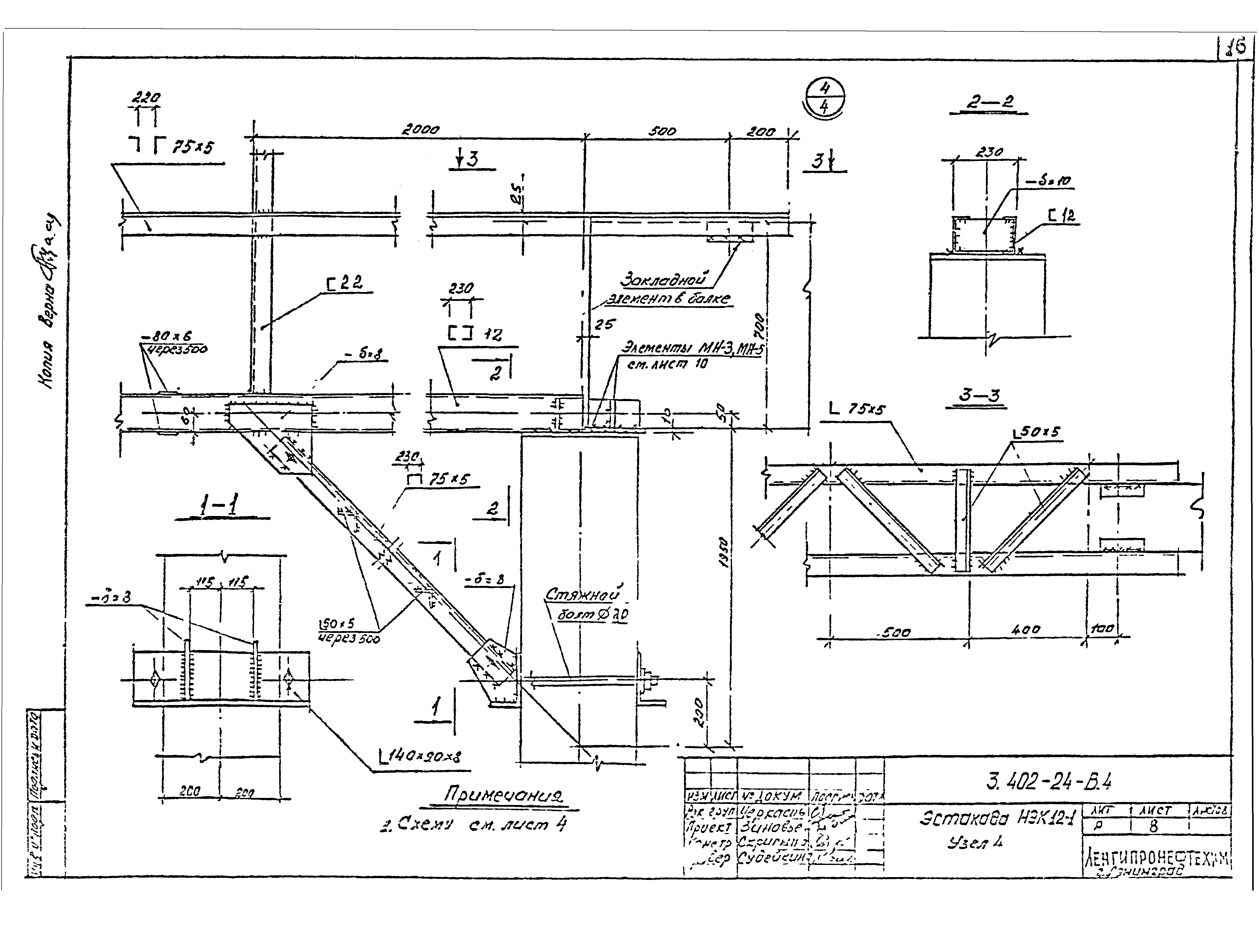
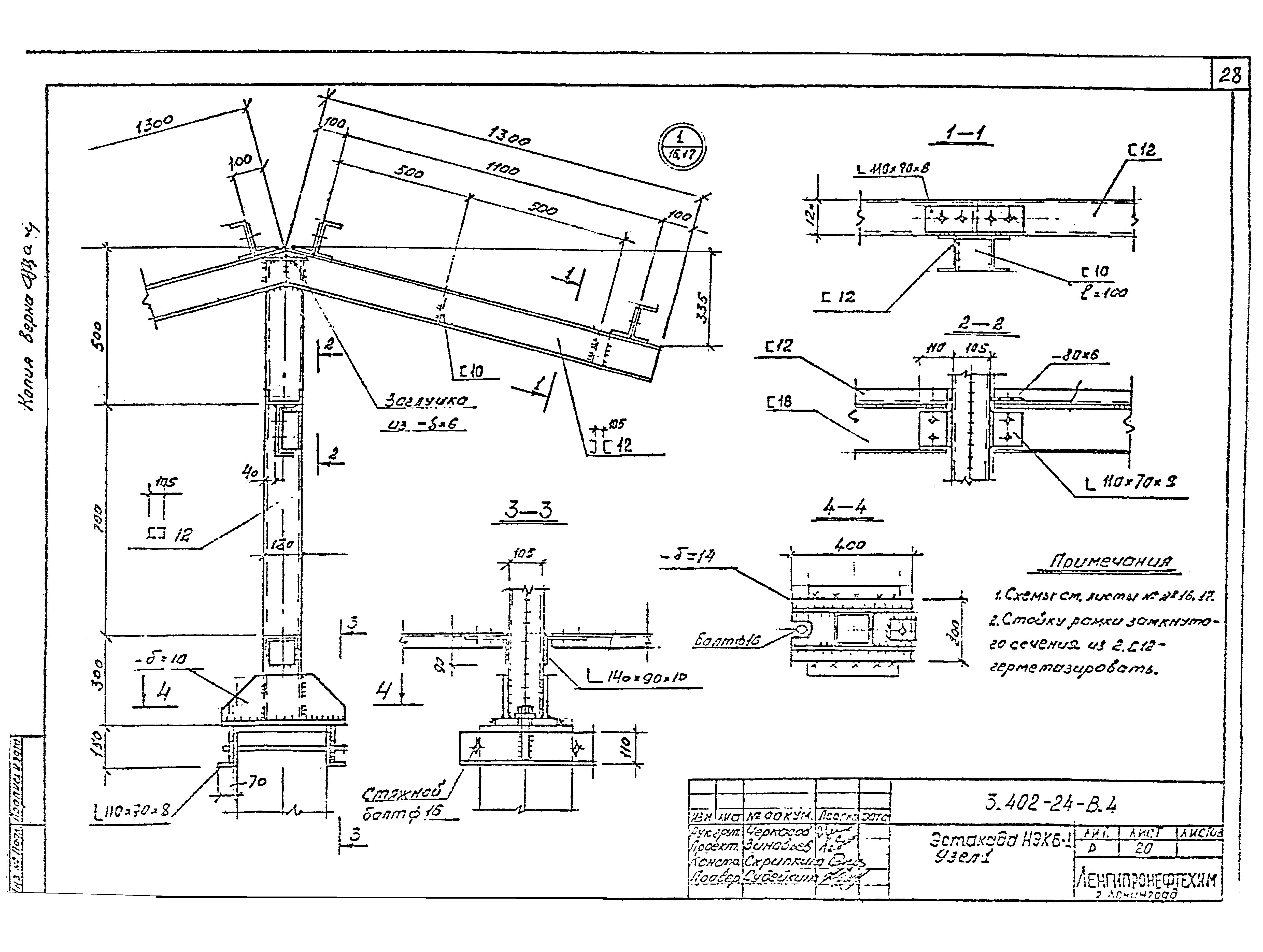
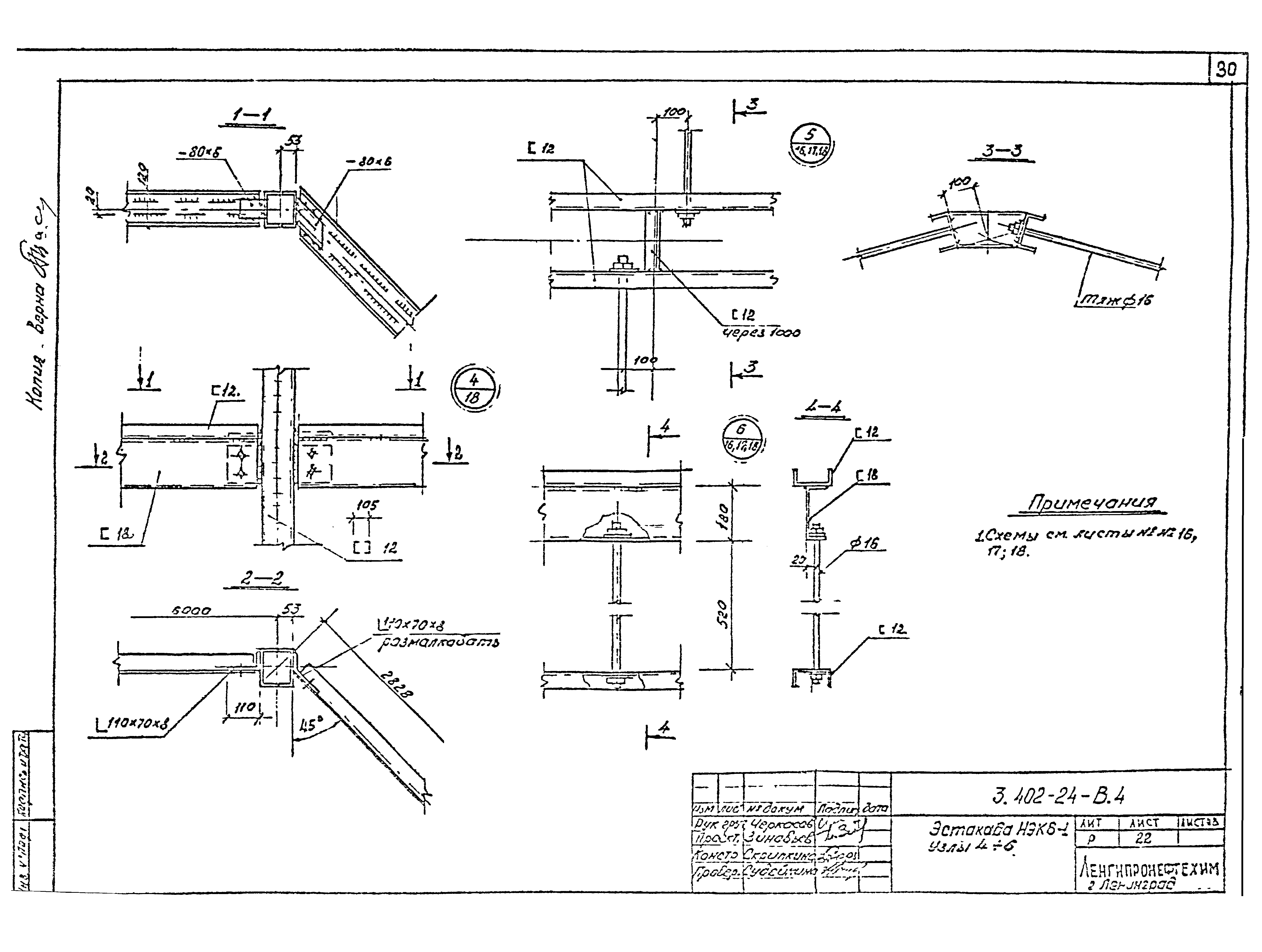
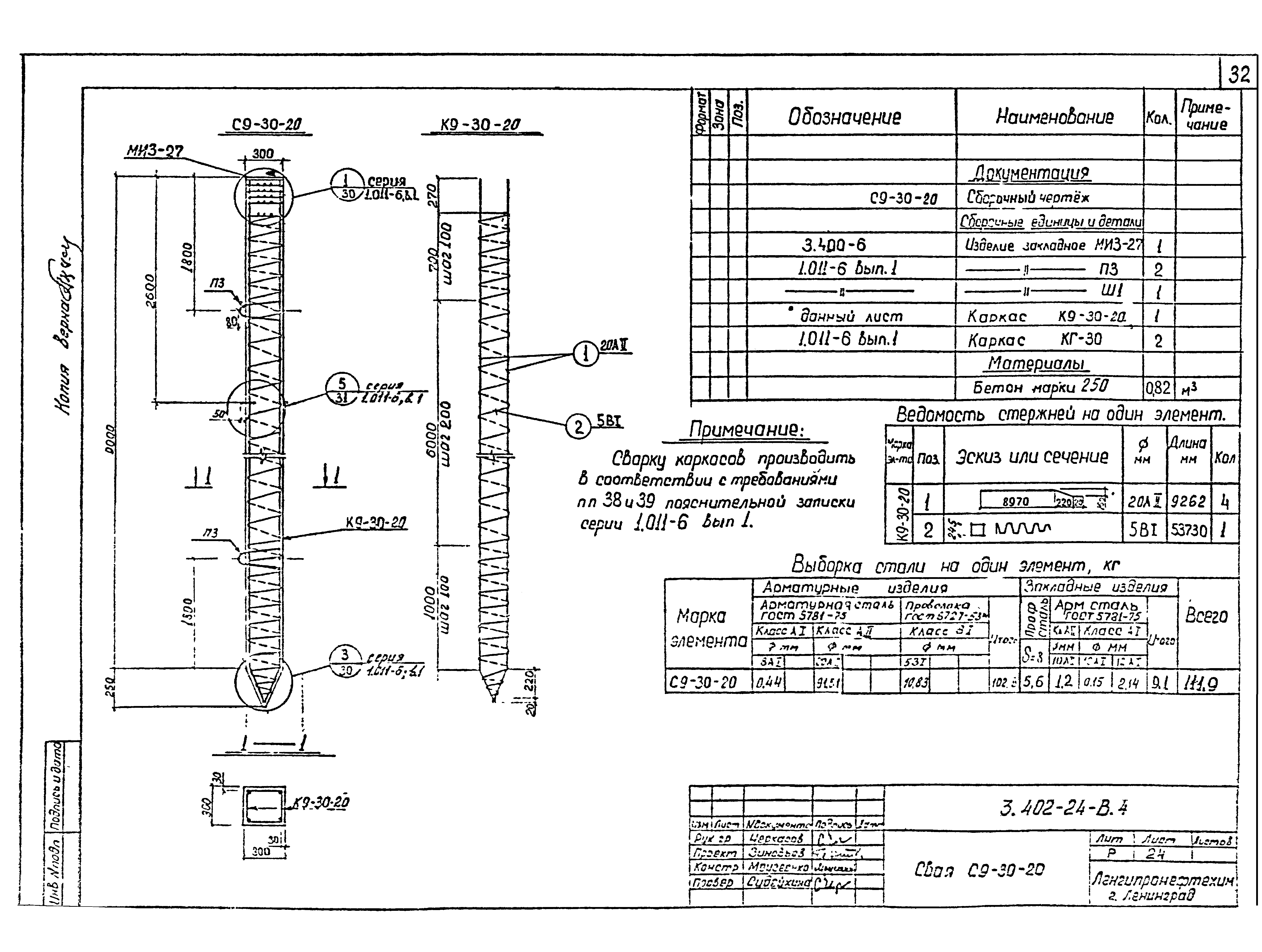
| Оглавление: | Перечень примененных типовых материалов Пояснительная записка Эстакада НЭК12-1. Фрагмент эстакады Эстакада НЭК12-1. Пример схемы эстакады Блоки БЭ1; БЭ2. План. Разрезы Блоки БЭ3. Примыкание к зданию. Решение температурного шва. Блок БЭ4 для угла поворота эстакады на 90 град. Схема. Разрезы Эстакада НЭК 12-1. Таблица элементов. Выборка металла по профилям Эстакада НЭК 12-1. Узлы 1, 2, 3 Эстакада НЭК 12-1. Узел 4 Эстакада НЭК 12-1. Узел 5 Узел "А" Балка Б-2г Закладные элементы МД1 и МД2 Эстакада НЭК12-1. Схемы нагрузок Эстакада НЭ 6-1. Фрагмент эстакады Эстакада НЭК6-1. Пример схемы эстакады Блоки БЭ5 и БЭ7. Рамка Р3. Схемы. Разрезы Блок БЭ6. Примыкание к зданию. Решение температурного шва Блок БЭ8 поворота эстакады на 90 град. Схема. Разрезы Эстакада НЭК6-1. Таблица элементов и усилий. Выборка металла по профилям Эстакада НЭК6-1. Узел 1. Эстакада НЭК6-1. Узлы 2, 3. Эстакада НЭК6-1. Узлы 4 - 6. Свая С7-30-18 Свая С9-30-20 Эстакада НЭК6-1. Схемы нагрузок. |
| Разработан: | Ленгипронефтехим |
| Утверждён: | 22.02.1978 В/О Нефтехим (8) |

































