Скачать Серия 3.018.2-1 Выпуск 1. Площадки светофорные, балконы. Чертежи КМДата актуализации: 01.01.2021
|
| Обозначение: | Серия 3.018.2-1 |
| Обозначение англ: | Series 3.018.2-1 |
| Статус: | не определен законодательством |
| Название рус.: | Выпуск 1. Площадки светофорные, балконы. Чертежи КМ |
| Дата добавления в базу: | 01.09.2013 |
| Дата актуализации: | 01.01.2021 |
| Дата введения: | 30.12.1985 |
| Дата окончания срока действия: | 30.06.2003 |
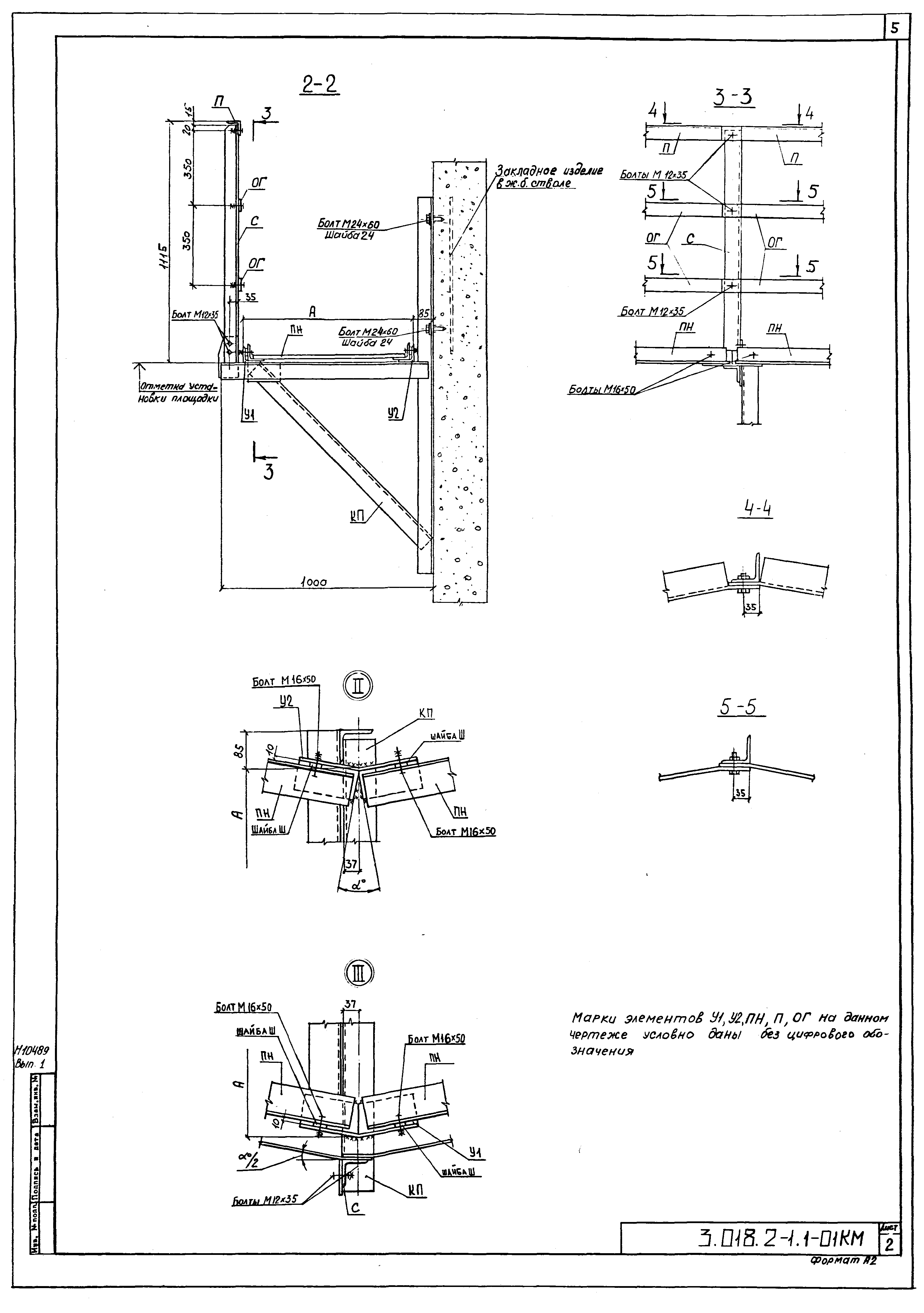
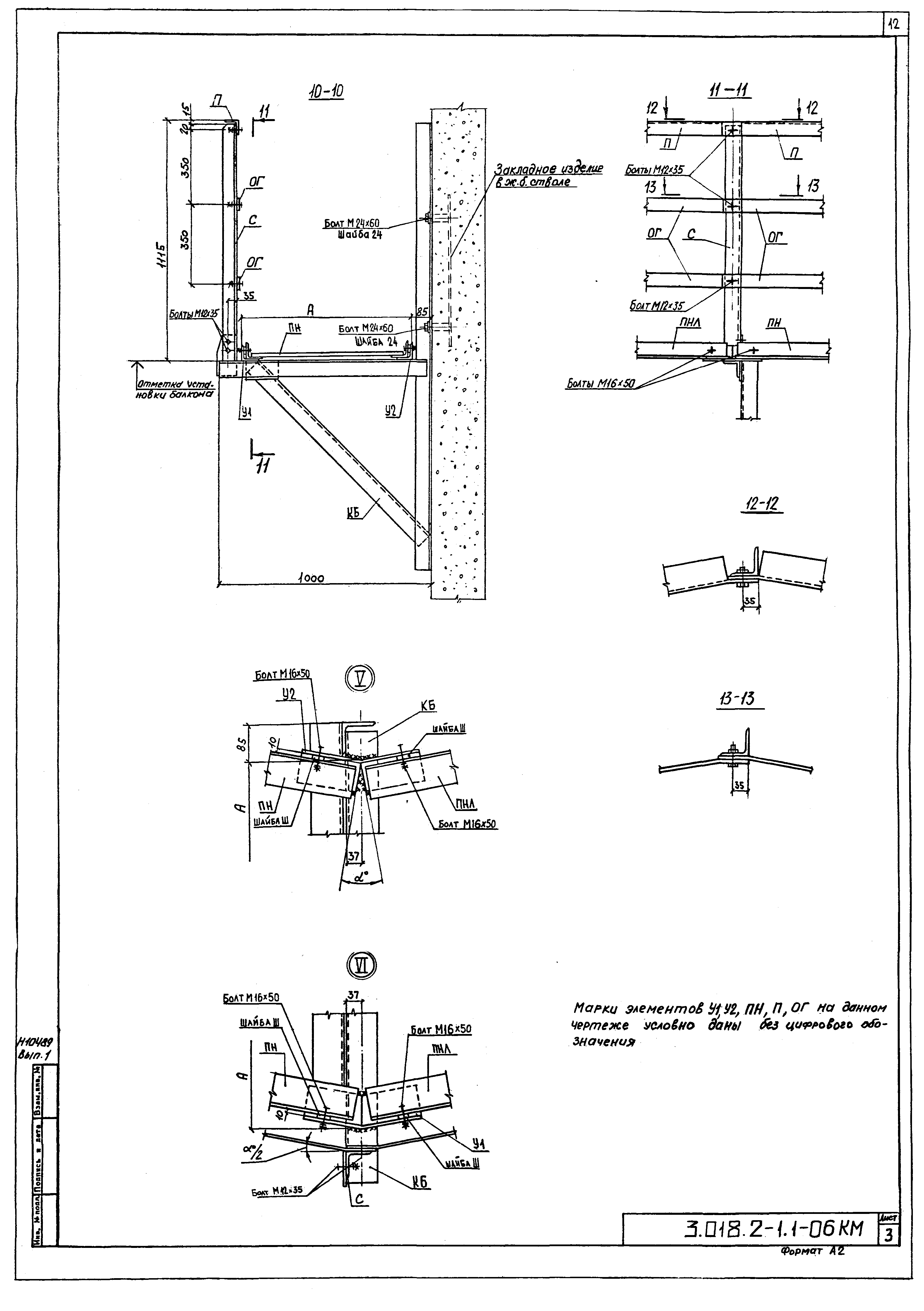
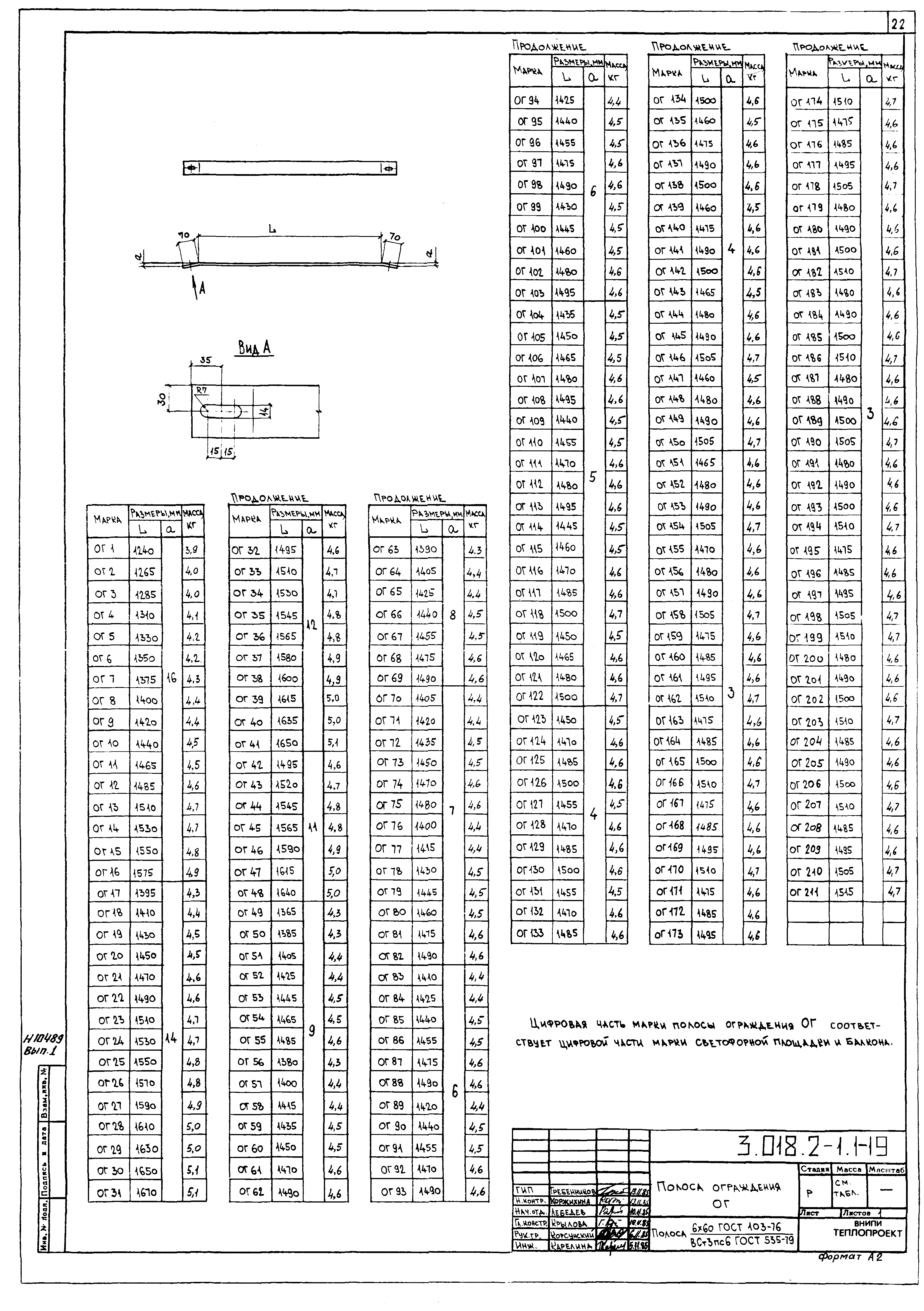
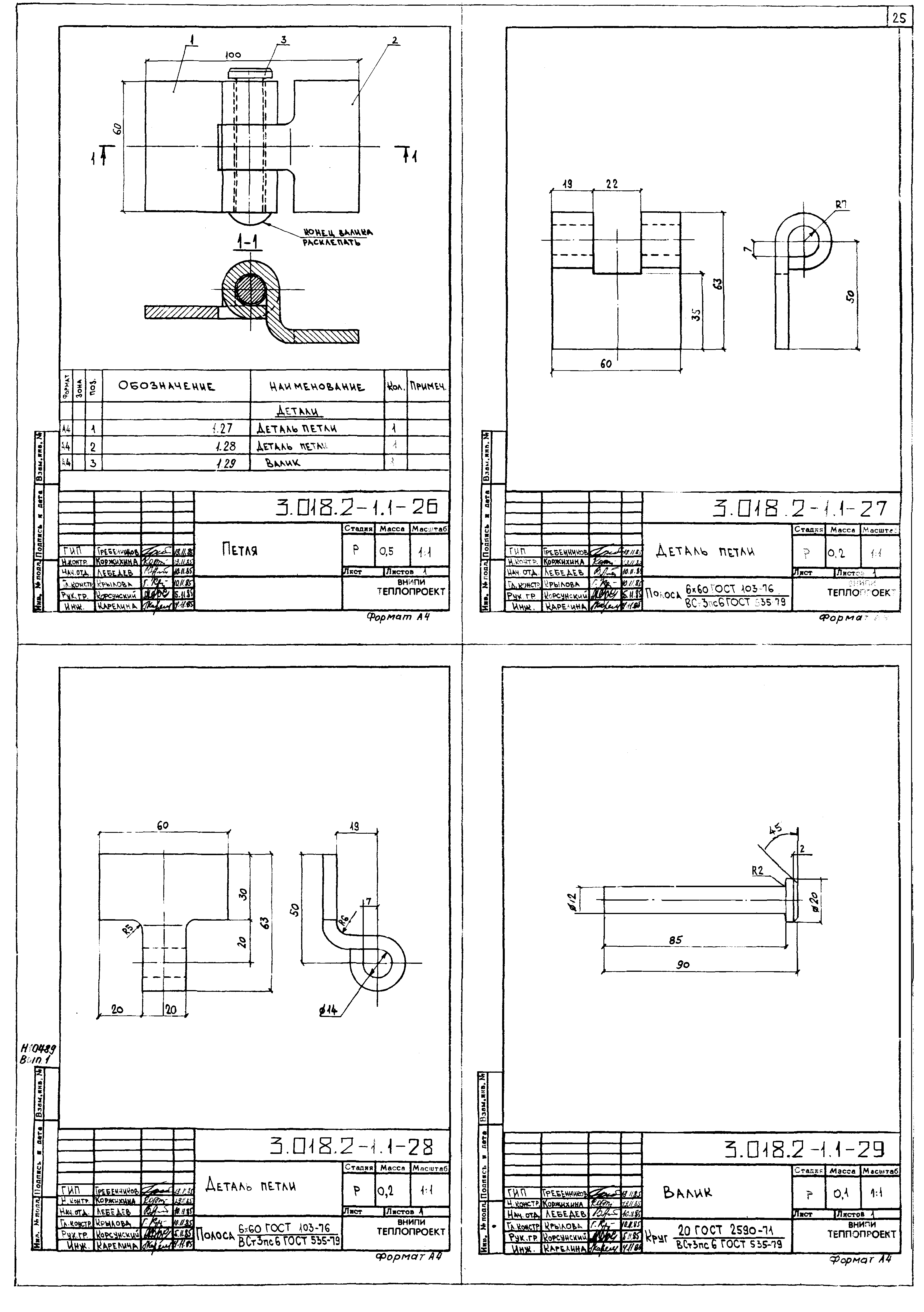
| Оглавление: | 3.018.2-1.1-00 ПЗКМ Пояснительная записка 3.018.2-1.1-01КМ Схема расположения элементов площадки светофорной 3.018.2-1.1-02КМ Таблица для выбора площадок светофорных марок ПС1 … ПС55 3.018.2-1.1-03КМ Таблица для выбора площадок светофорных марок ПС56 … ПС108 3.018.2-1.1-04КМ Таблица для выбора площадок светофорных марок ПС109 … ПС162 3.018.2-1.1-05КМ Таблица для выбора площадок светофорных марок ПС163 … ПС211 3.018.2-1.1-06КМ Схема расположения элементов балкона 3.018.2-1.1-07КМ Таблица для выбора балконов марки БН1 … БН108 3.018.2-1.1-08КМ Таблица для выбора балконов марки БН109 … БН211 3.018.2-1.1-09КМ Панель настила ПН 3.018.2-1.1-10КМ Панель настила с люком ПНЛ 3.018.2-1.1-11КМ Таблица размеров панелей настила ПН и ПНЛ 3.018.2-1.1-12КМ Кронштейн площадки КП 3.018.2-1.1-13КМ Кронштейн балкона КБ 3.018.2-1.1-14КМ Спецификация стали для площадок светофорных марок ПС1 … ПС93 3.018.2-1.1-15КМ Спецификация стали для площадок светофорных марок ПС94 … ПС184 3.018.2-1.1-16КМ Спецификация стали для площадок светофорных марок ПС185 … ПС211 3.018.2-1.1-17КМ Спецификация стали для балкона марок БН1 … БН211 3.018.2-1.1-18 Перила П 3.018.2-1.1-19 Полоса ограждения ОГ 3.018.2-1.1-20 Стойка С 3.018.2-1.1-21 Полоса ограждения ОБ 3.018.2-1.1-22 Перила ПБ1 3.018.2-1.1-23 Перила ПБ2 3.018.2-1.1-24 Уголок опорный У1 3.018.2-1.1-25 Уголок опорный У2 3.018.2-1.1-26 Петля 3.018.2-1.1-27 Деталь петли 3.018.2-1.1-28 Деталь петли 3.018.2-1.1-29 Валик 3.018.2-1.1-30 Уголок опорный У3 3.018.2-1.1-31 Уголок опорный У4 3.018.2-1.1-32 Шайба Ш |
| Разработан: | ВНИПИтеплопроект Минмонтажспецстроя СССР |
| Утверждён: | 30.12.1985 Минмонтажспецстрой СССР (USSR Minmontazhspetsstroy ) |
| Издан: | ВНИПИТеплопроект (1986 г. ) |


























