Скачать Серия 5.900-7 Выпуск 2. Опорные конструкции и средства крепления изолированных трубопроводов к железобетонным колоннам. Рабочие чертежиДата актуализации: 01.01.2021
|
| Обозначение: | Серия 5.900-7 |
| Обозначение англ: | Series 5.900-7 |
| Статус: | не определен законодательством |
| Название рус.: | Выпуск 2. Опорные конструкции и средства крепления изолированных трубопроводов к железобетонным колоннам. Рабочие чертежи |
| Дата добавления в базу: | 01.09.2013 |
| Дата актуализации: | 01.01.2021 |
| Дата введения: | 01.03.1992 |
| Дата окончания срока действия: | 30.06.2003 |
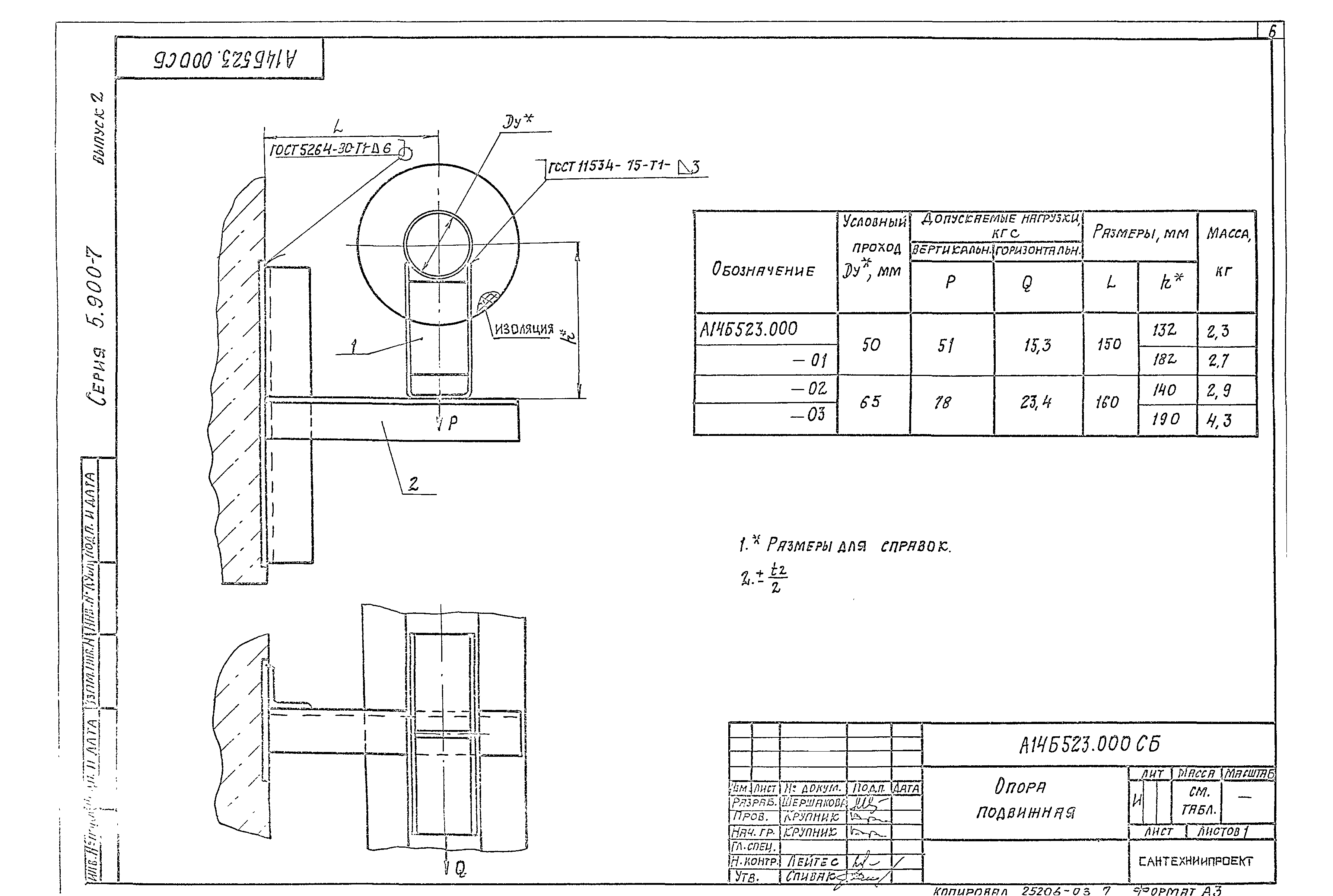
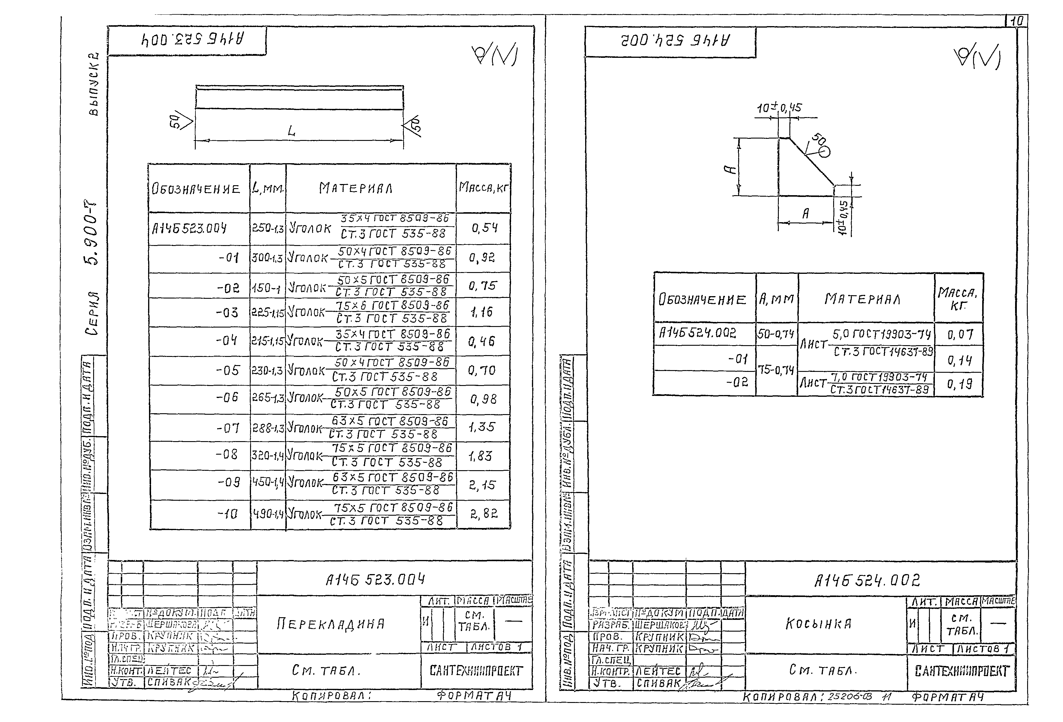
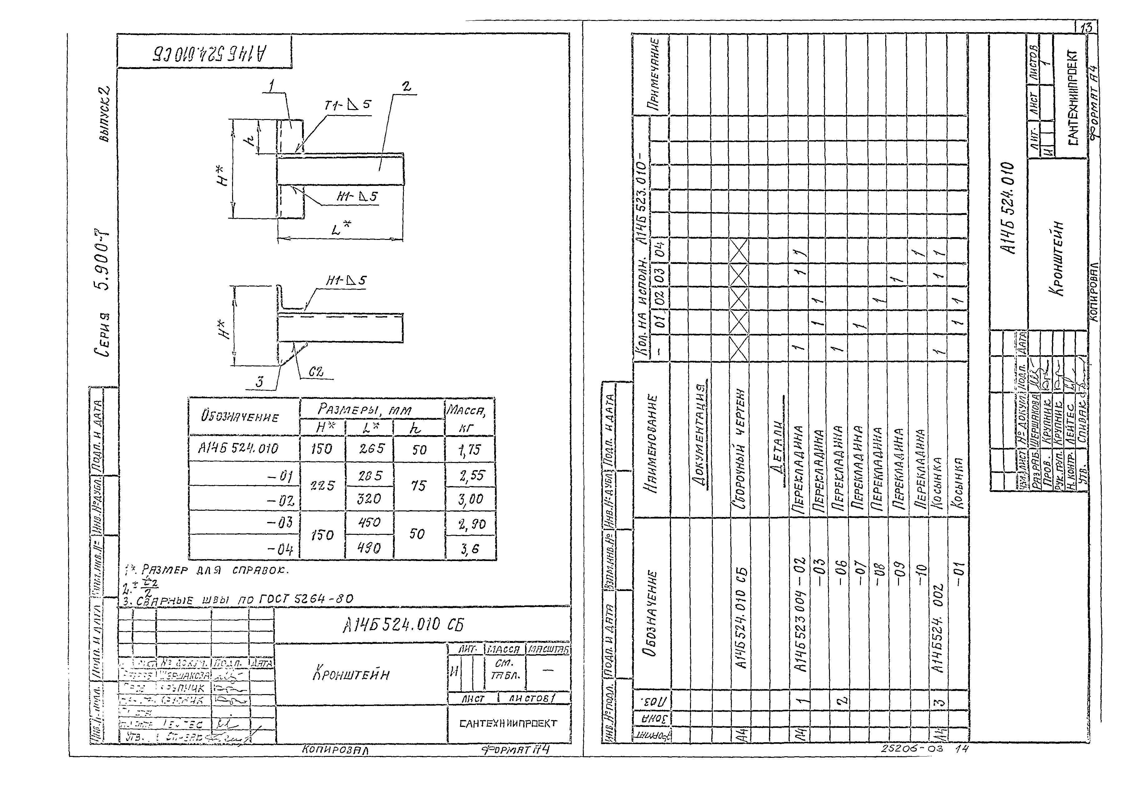
| Оглавление: | А14Б523.000 Опора подвижная А14Б523.010 Опора А14Б523.000 СБ Опора подвижная А14Б523.010 СБ Опора А14Б523.001 Корпус А14Б523.020 Кронштейн А14Б523.020 СБ Кронштейн А14Б523.004 Перекладина А14Б523.002 Косынка А14Б524.000 Опора подвижная А14Б523.003 Ребро А14Б524.000 СБ Опора подвижная А14Б524.010 Кронштейн А14Б524.010 СБ Кронштейн А14Б525.000 Опора подвижная А14Б525.002 Упор А14Б525.000 СБ Опора подвижная А14Б525.010 Кронштейн А14Б538.006 Плита А14Б525.010 СБ Кронштейн А14Б525.001 Перекладина А14Б526.000 Опора подвижная А14Б538.003 Накладка А14Б526.000 СБ Опора подвижная А14Б526.010 Кронштейн А14Б526.010 СБ Кронштейн А14Б526.001 Перекладина А14Б527.000 Опора подвижная двухрядная А14Б530.001 Перекладина А14Б527.000 СБ Опора подвижная двухрядная А14Б528.000 Опора подвижная двухрядная А14Б530.002 Косынка А14Б528.000 СБ Опора подвижная двухрядная А14Б529.000 Опора подвижная двухрядная А14Б530.006 Серьга А14Б529.000 СБ Опора подвижная двухрядная А14Б530.000 Опора подвижная двухрядная А14Б530.000 СБ Опора подвижная двухрядная А14Б530.010 Кронштейн А14Б530.010 СБ Кронштейн А14Б530.020 Подвеска А14Б530.005 Ушко А14Б530.020 СБ Подвеска А14Б530.004 Тяга А14Б530.007 Полухомут А14Б531.000 Опора подвижная двухрядная А14Б531.000 СБ Опора подвижная двухрядная А14Б531.010 Кронштейн А14Б531.010 СБ Кронштейн А14Б531.001 Перекладина А14Б532.000 Опора подвижная двухрядная А14Б538.001 Стяжка А14Б532.000 СБ Опора подвижная двухрядная А14Б533.000 Опора подвижная трехрядная А14Б538.004 Перекладина А14Б533.000 СБ Опора подвижная трехрядная А14Б534.000 Опора подвижная трехрядная А14Б534.000 СБ Опора подвижная трехрядная А14Б535.000 Опора подвижная трехрядная А14Б535.000 СБ Опора подвижная трехрядная А14Б536.000 Опора подвижная трехрядная А14Б536.000 СБ Опора подвижная трехрядная А14Б537.000 Опора подвижная четырехрядная А14Б537.000 СБ Опора подвижная четырехрядная А14Б537.001 Перекладина А14Б537.010 Кронштейн А14Б537.010 СБ Кронштейн А14Б538.000 Опора подвижная А14Б538.010 Кронштейн А14Б538.020 Плита А14Б538.000 СБ Опора подвижная А14Б538.010 СБ Кронштейн А14Б538.020 СБ Плита А14Б539.000 Опора подвижная двухрядная А14Б539.010 Кронштейн А14Б539.000 СБ Опора подвижная двухрядная А14Б539.010 СБ Кронштейн А14Б539.001 Перекладина |
| Разработан: | Сантехниипроект Госстроя России |
| Утверждён: | 31.10.1991 ГПКНИИ Сантехниипроект Госстроя СССР (50) |
| Издан: | ГП ЦПП (1995 г. ) |














































































































