Скачать Серия 1.291-1 Выпуск 1. Железобетонные виброизолирующие фундаменты под холодильные агрегаты. Виброизолирующие средства для бесфундаментной установки холодильных агрегатов. Рабочие чертежиДата актуализации: 01.01.2021
|
| Обозначение: | Серия 1.291-1 |
| Обозначение англ: | Series 1.291-1 |
| Статус: | не определен законодательством |
| Название рус.: | Выпуск 1. Железобетонные виброизолирующие фундаменты под холодильные агрегаты. Виброизолирующие средства для бесфундаментной установки холодильных агрегатов. Рабочие чертежи |
| Дата добавления в базу: | 01.09.2013 |
| Дата актуализации: | 01.01.2021 |
| Дата введения: | 01.11.1991 |
| Дата окончания срока действия: | 30.06.2003 |
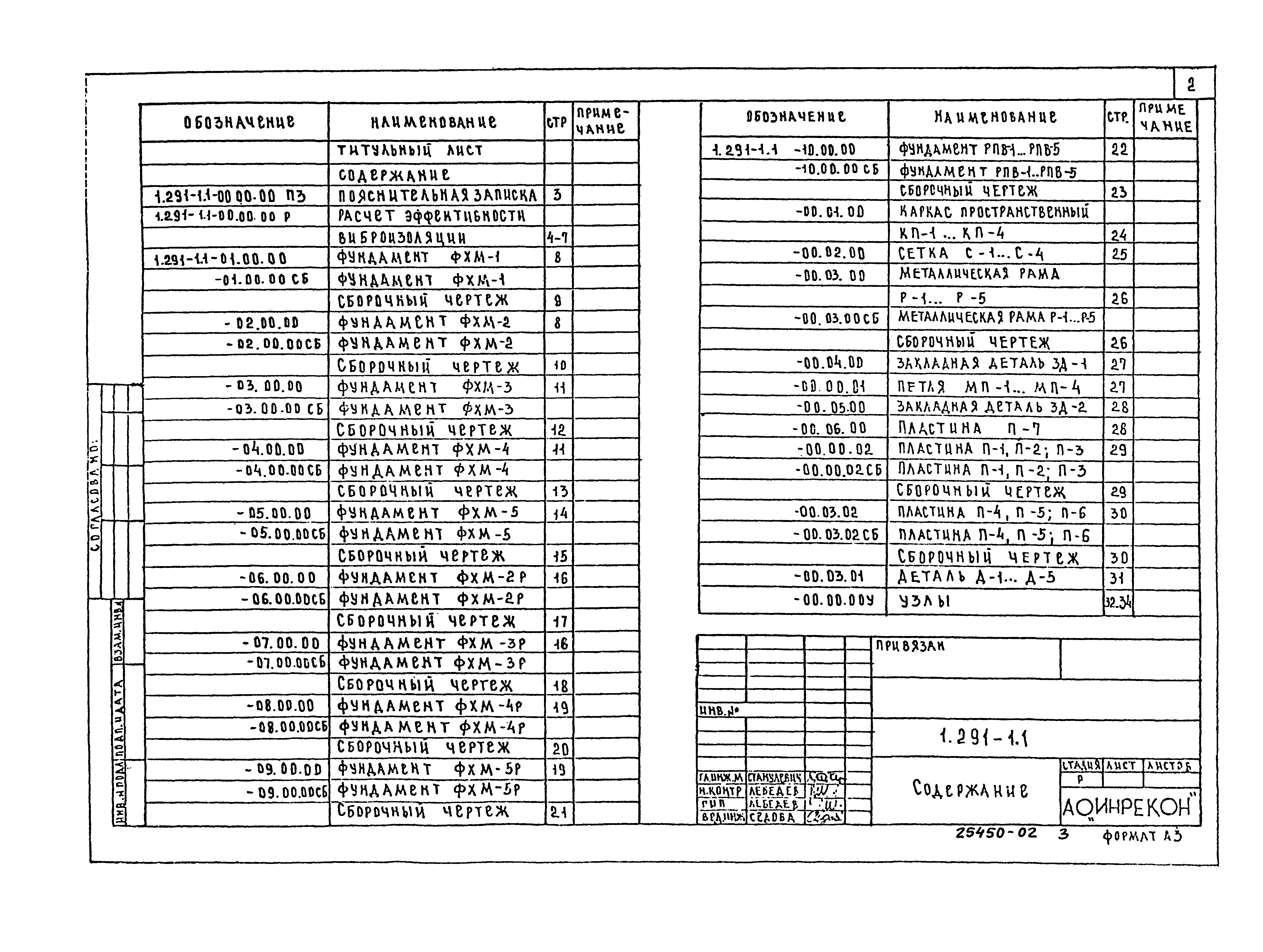
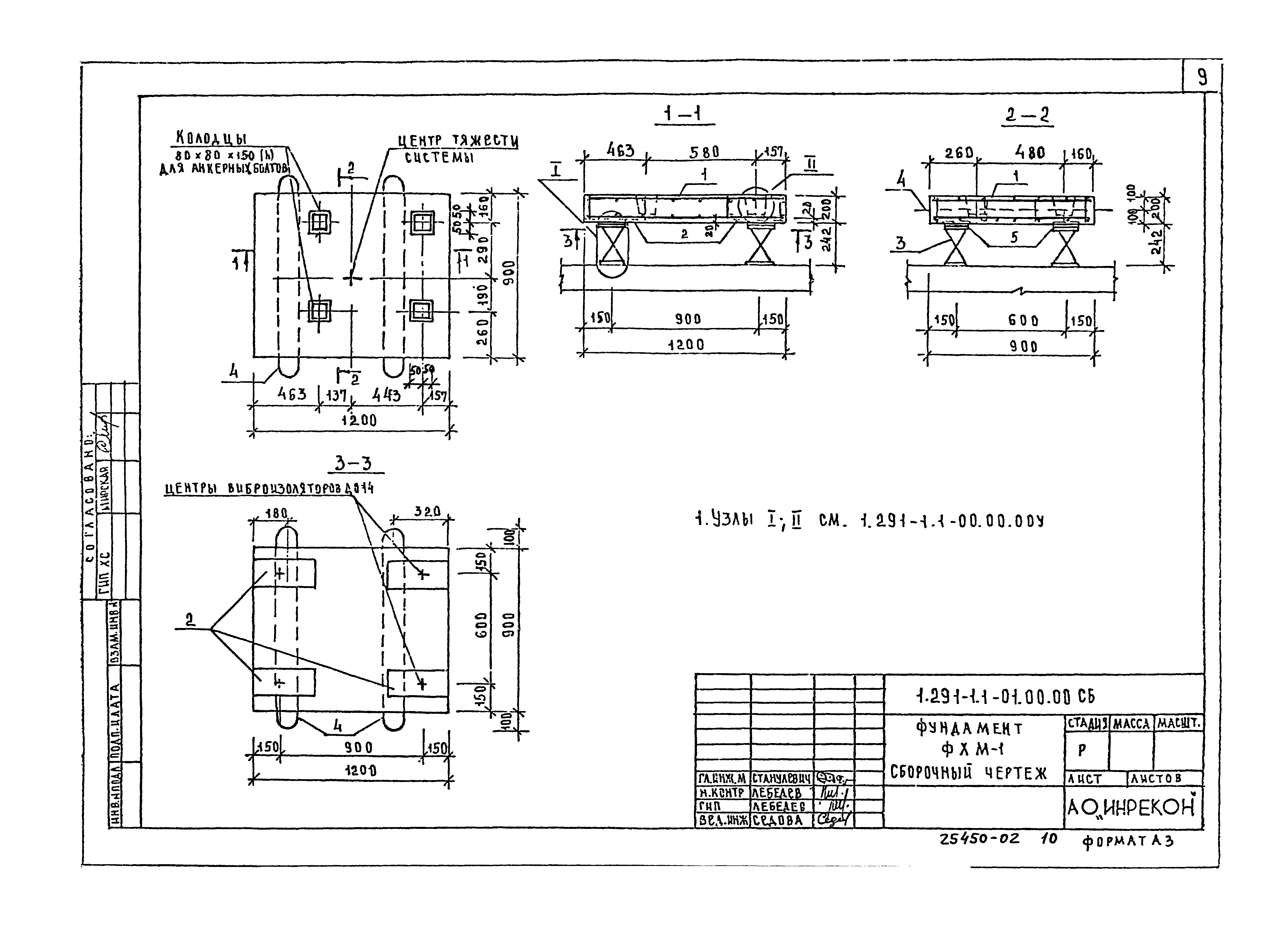
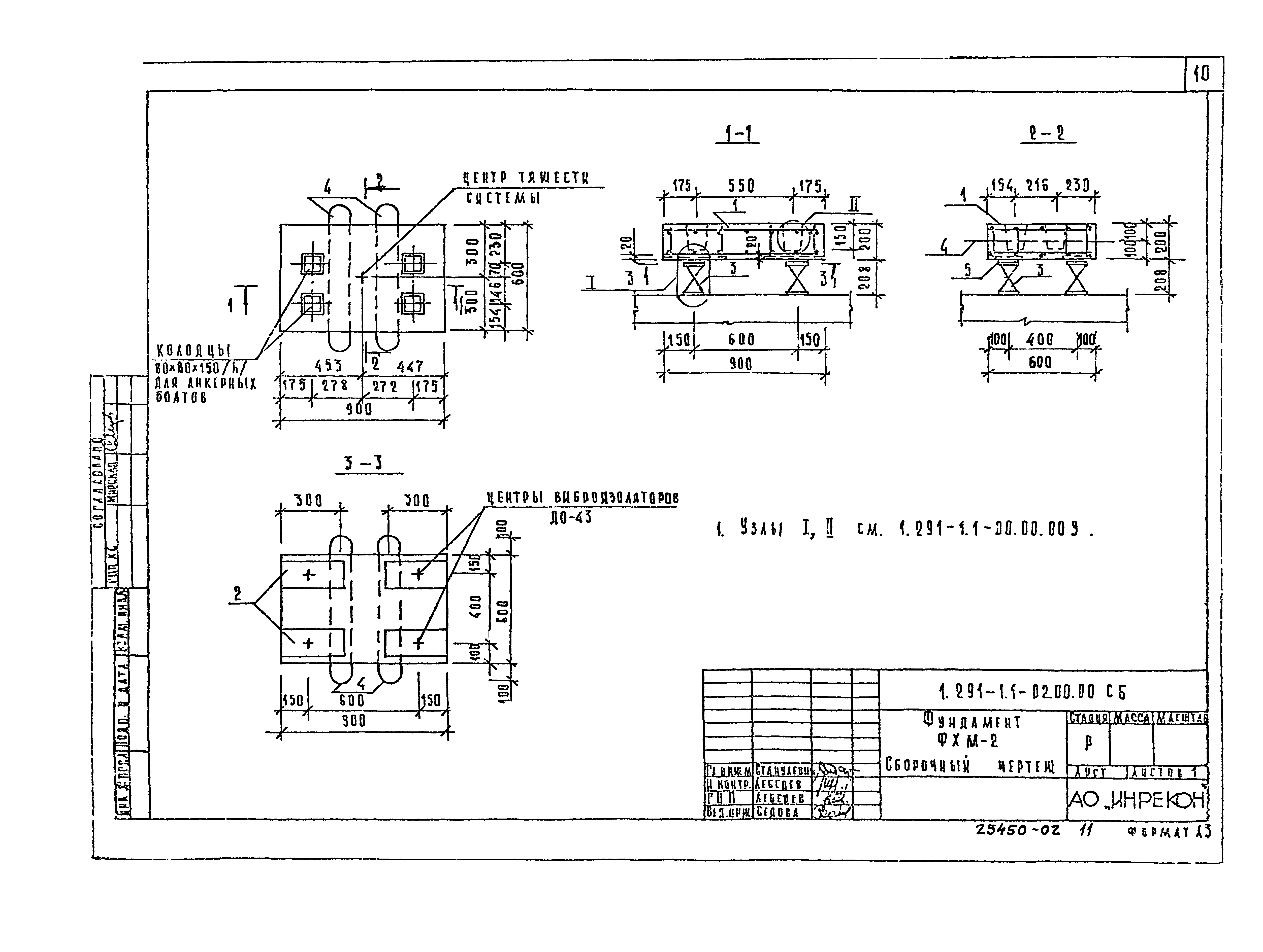
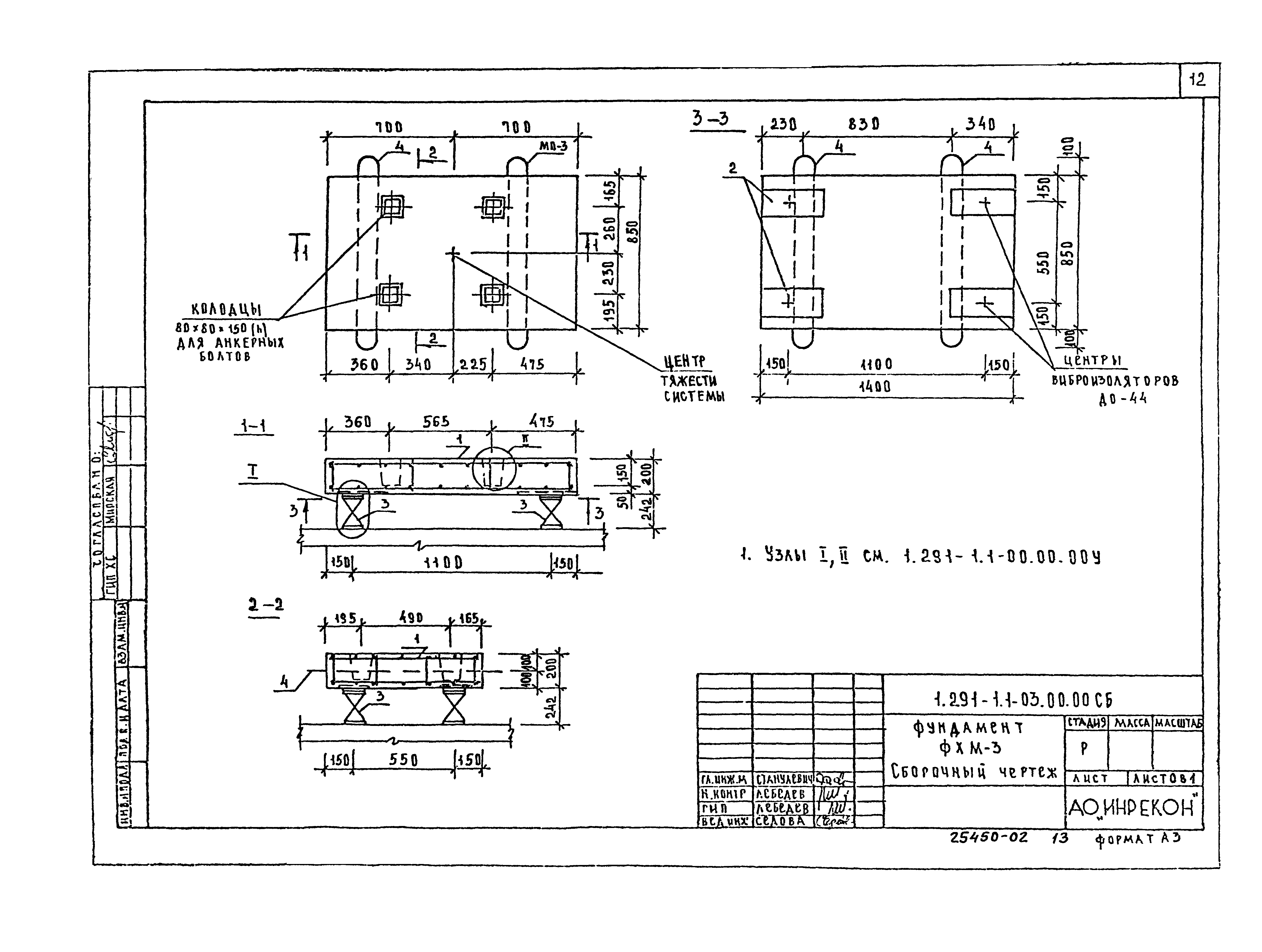
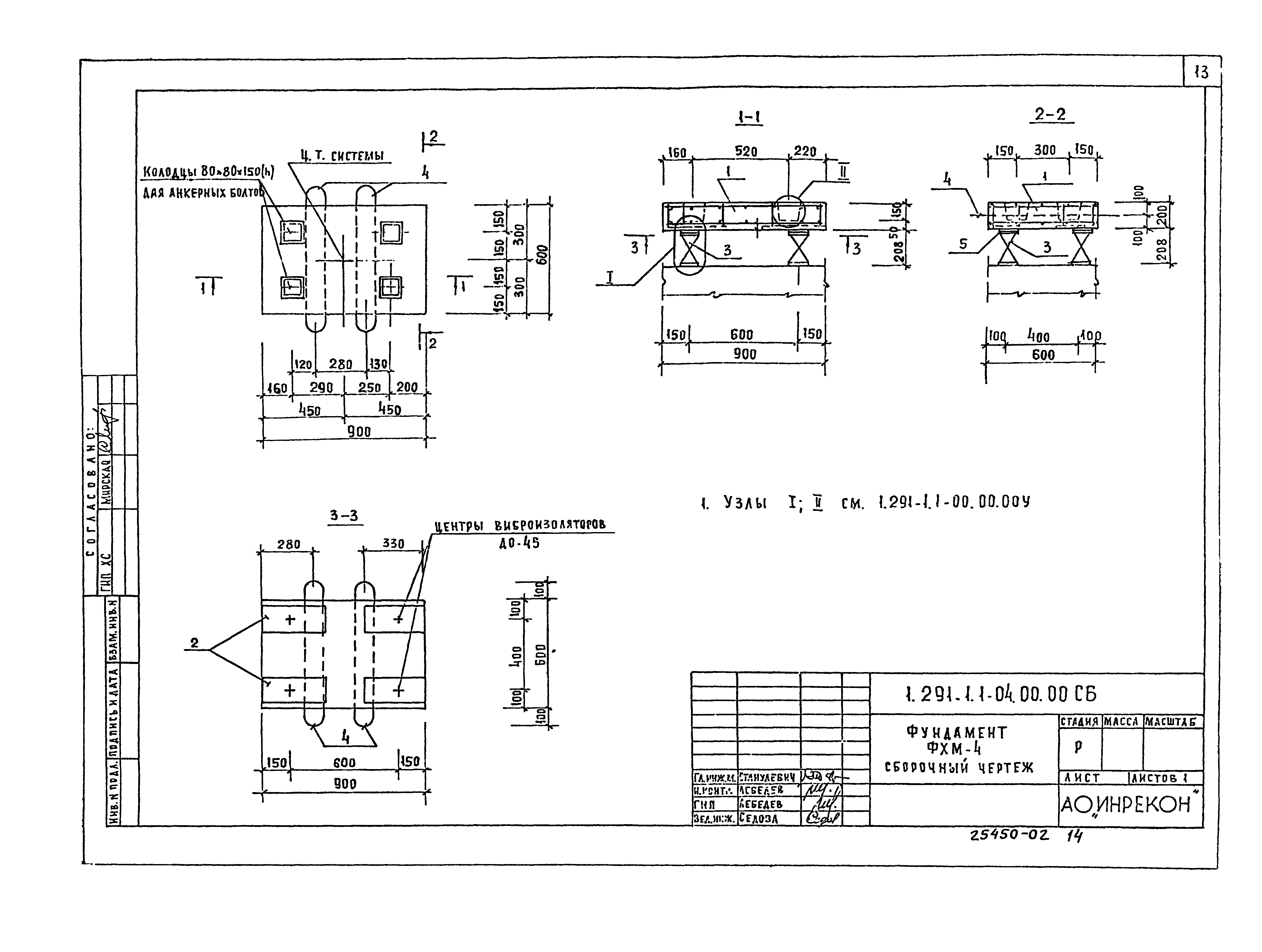
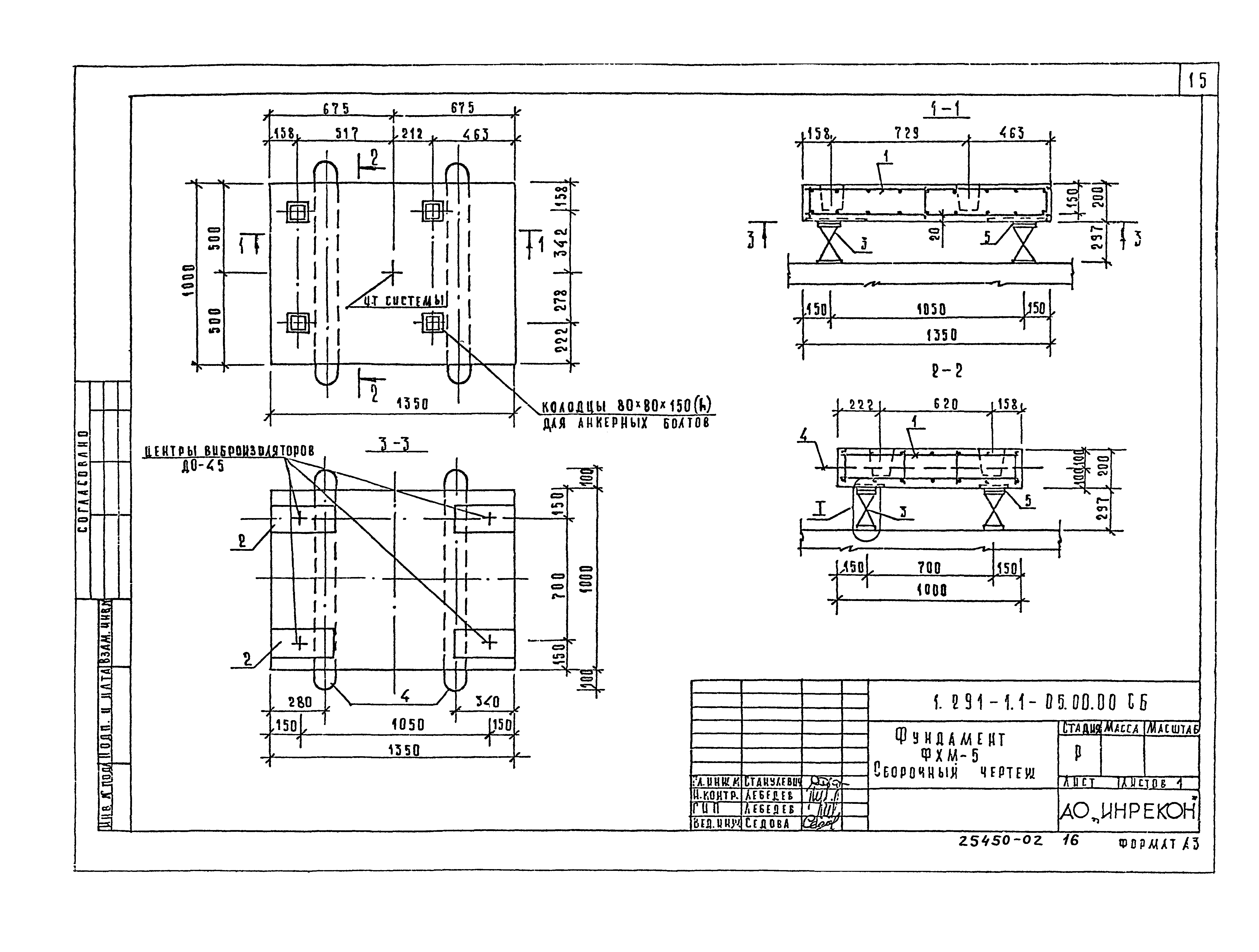
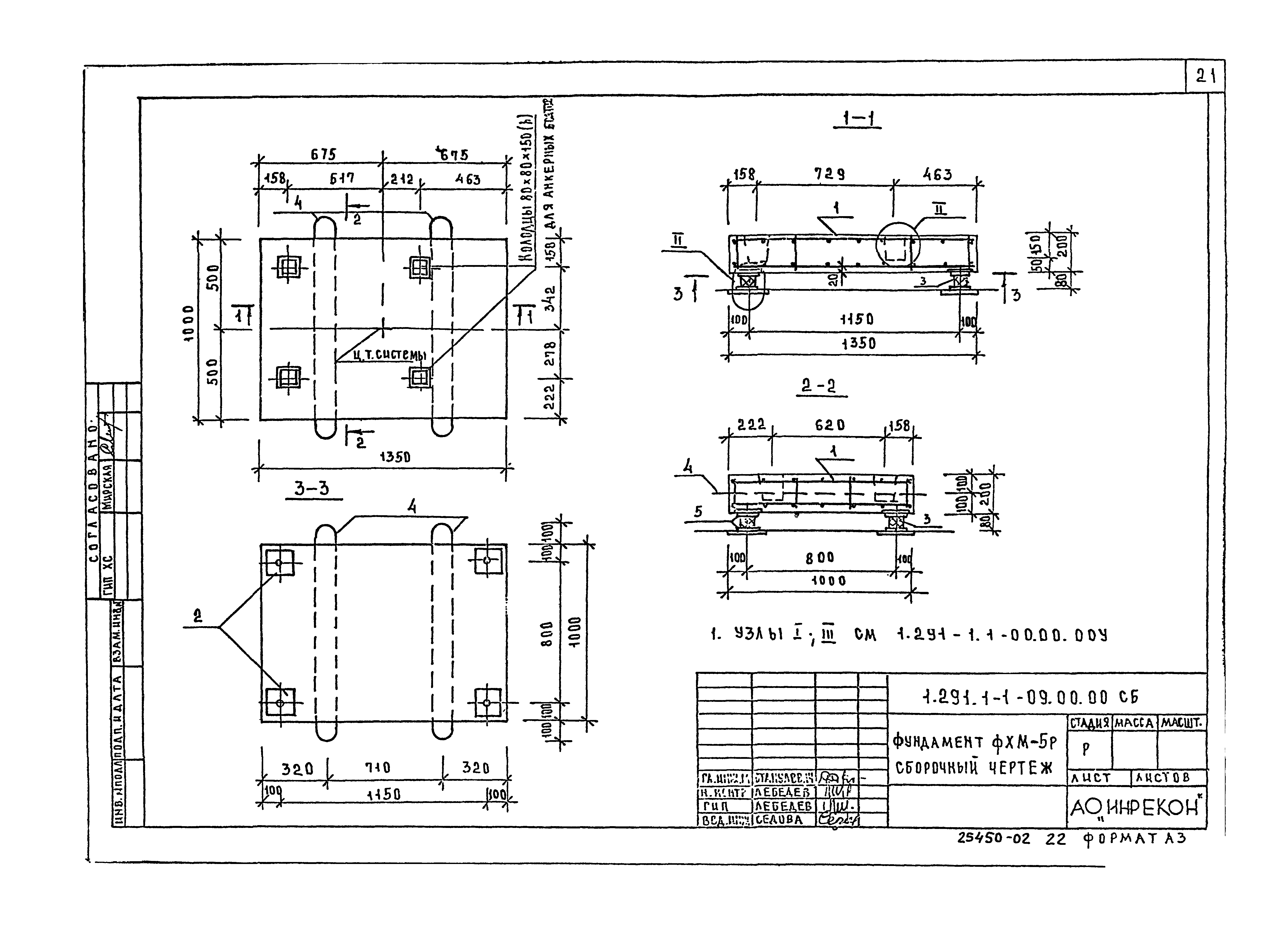
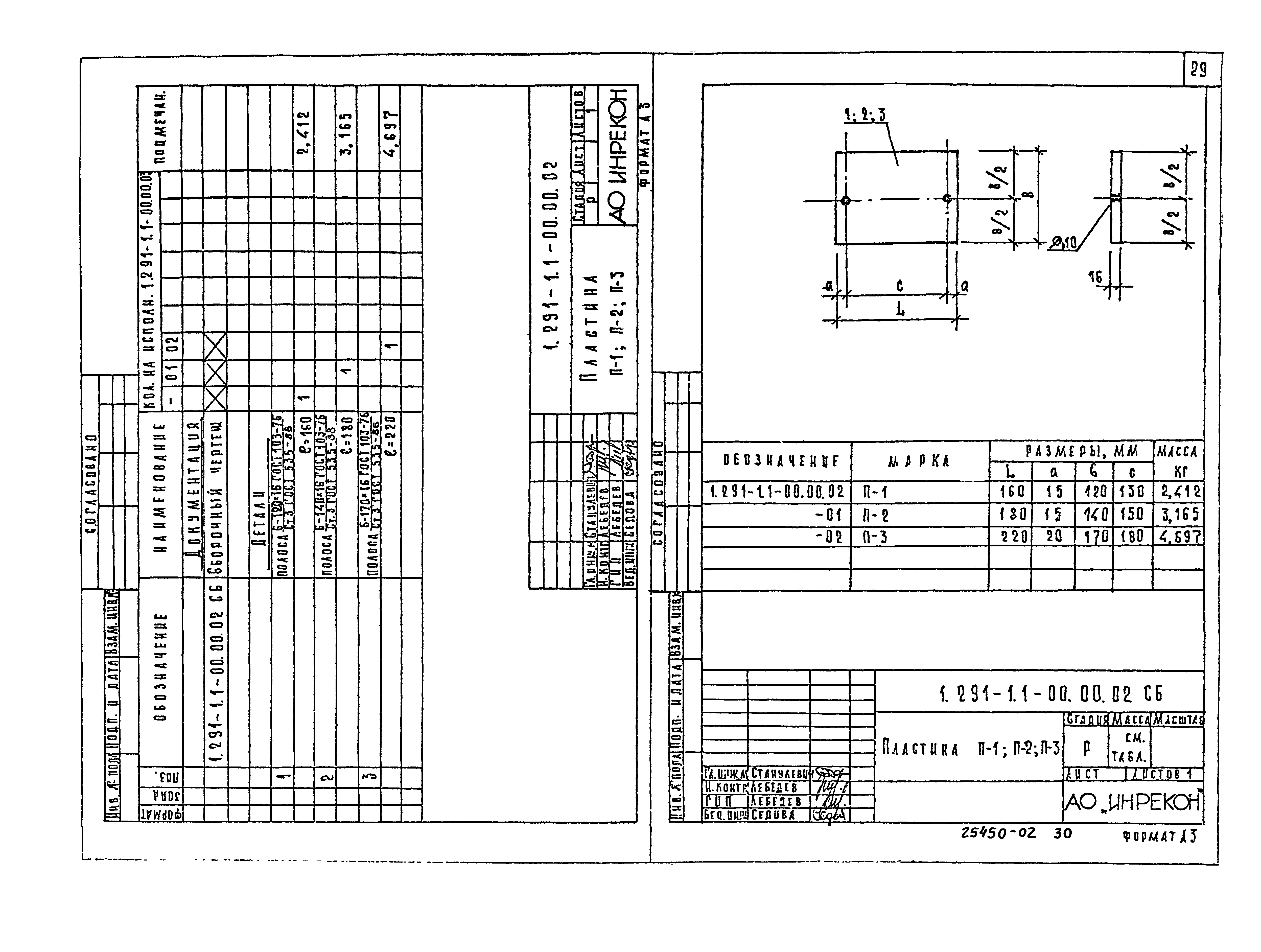
| Оглавление: | 1.291-1.1-00.00.00 ПЗ Пояснительная записка 1.291-1.1.-00.00.00 Р Расчет эффективности виброизоляции 1.291-1.1-01.00.00 Фундамент ФХМ-1 1.291-1.1-01.00.00 СБ Фундамент ФХМ-1. Сборочный чертеж 1.291-1.1-02.00.00 Фундамент ФХМ-2 1.291-1.1-02.00.00 СБ Фундамент ФХМ-2. Сборочный чертеж 1.291-1.1-03.00.00 Фундамент ФХМ-3 1.291-1.1-03.00.00 СБ Фундамент ФХМ-3. Сборочный чертеж 1.291-1.1-04.00.00 Фундамент ФХМ-4 1.291-1.1-04.00.00 СБ Фундамент ФХМ-4. Сборочный чертеж 1.291-1.1-05.00.00 Фундамент ФХМ-5 1.291-1.1-05.00.00 СБ Фундамент ФХМ-5. Сборочный чертеж 1.291-1.1-06.00.00 Фундамент ФХМ-2Р 1.291-1.1-06.00.00 СБ Фундамент ФХМ-2Р. Сборочный чертеж 1.291-1.1-07.00.00 Фундамент ФХМ-3Р 1.291-1.1-07.00.00 СБ Фундамент ФХМ-3Р. Сборочный чертеж 1.291-1.1-08.00.00 Фундамент ФХМ-4Р 1.291-1.1-08.00.00 СБ Фундамент ФХМ-4Р. Сборочный чертеж 1.291-1.1-09.00.00 Фундамент ФХМ-5Р 1.291-1.1-09.00.00 СБ Фундамент ФХМ-5Р. Сборочный чертеж 1.291-1.1-10.00.00 Фундамент РПВ-1 … РПВ-5 1.291-1.1-10.00.00 СБ Фундамент РПВ-1 … РПВ-5. Сборочный чертеж 1.291-1.1-00.01.00 Каркас пространственный КП-1 … КП-4 1.291-1.1-00.02.00 Сетка С-1 … С-4 1.291-1.1-00.03.00 Металлическая рама Р-1 … Р-5 1.291-1.1-00.03.00 СБ Металлическая рама Р-1 … Р-5. Сборочный чертеж 1.291-1.1-00.04.00 Закладная деталь ЗД-1 1.291-1.1-00.00.01 Петля МП-1 … МП-4 1.291-1.1-00.05.00 Закладная деталь ЗД-2 1.291-1.1-00.06.00 Пластина П-7 1.291-1.1-00.00.02 Пластина П-1; П-2; П-3 1.291-1.1-00.00.02 СБ Пластина П-1; П-2; П-3. Сборочный чертеж 1.291-1.1-00.03.02 Пластина П-4; П-5; П-6 1.291-1.1-00.03.02 СБ Пластина П-4; П-5; П-6. Сборочный чертеж 1.291-1.1-00.03.01 Деталь Д-1 … Д-5 1.291-1.1-00.00.00У Узлы |
| Разработан: | АО ИНРЕКОН |
| Утверждён: | 22.10.1991 Госкомархитектура (146) |
| Заменяет собой: |


































