Скачать Серия 1.193-1 Альбом 1. Часть 2. Рабочие чертежиДата актуализации: 01.01.2021
|
| Обозначение: | Серия 1.193-1 |
| Обозначение англ: | Series 1.193-1 |
| Статус: | не определен законодательством |
| Название рус.: | Альбом 1. Часть 2. Рабочие чертежи |
| Дата добавления в базу: | 01.09.2013 |
| Дата актуализации: | 01.01.2021 |
| Дата введения: | 09.10.1970 |
| Дата окончания срока действия: | 30.06.2003 |
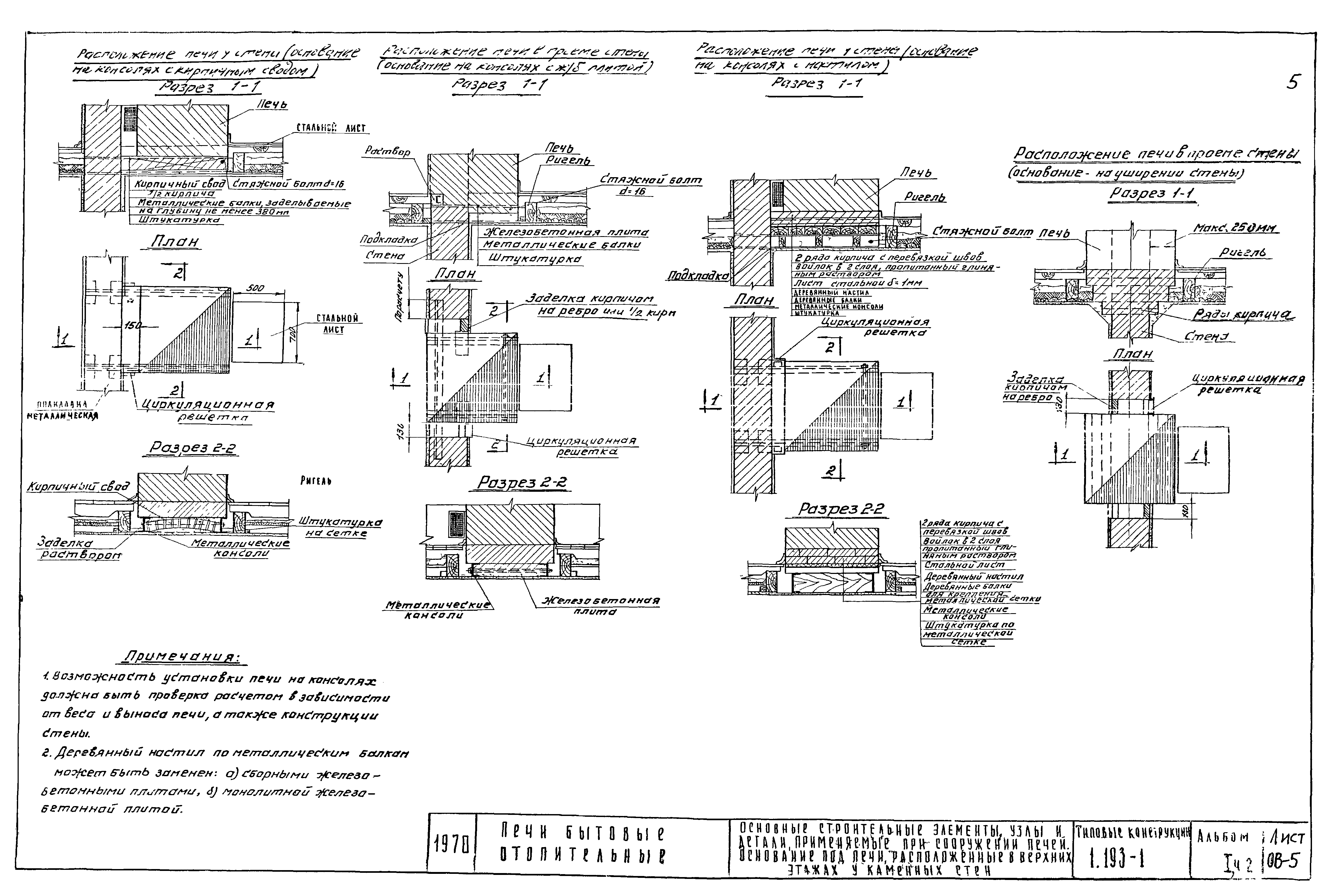
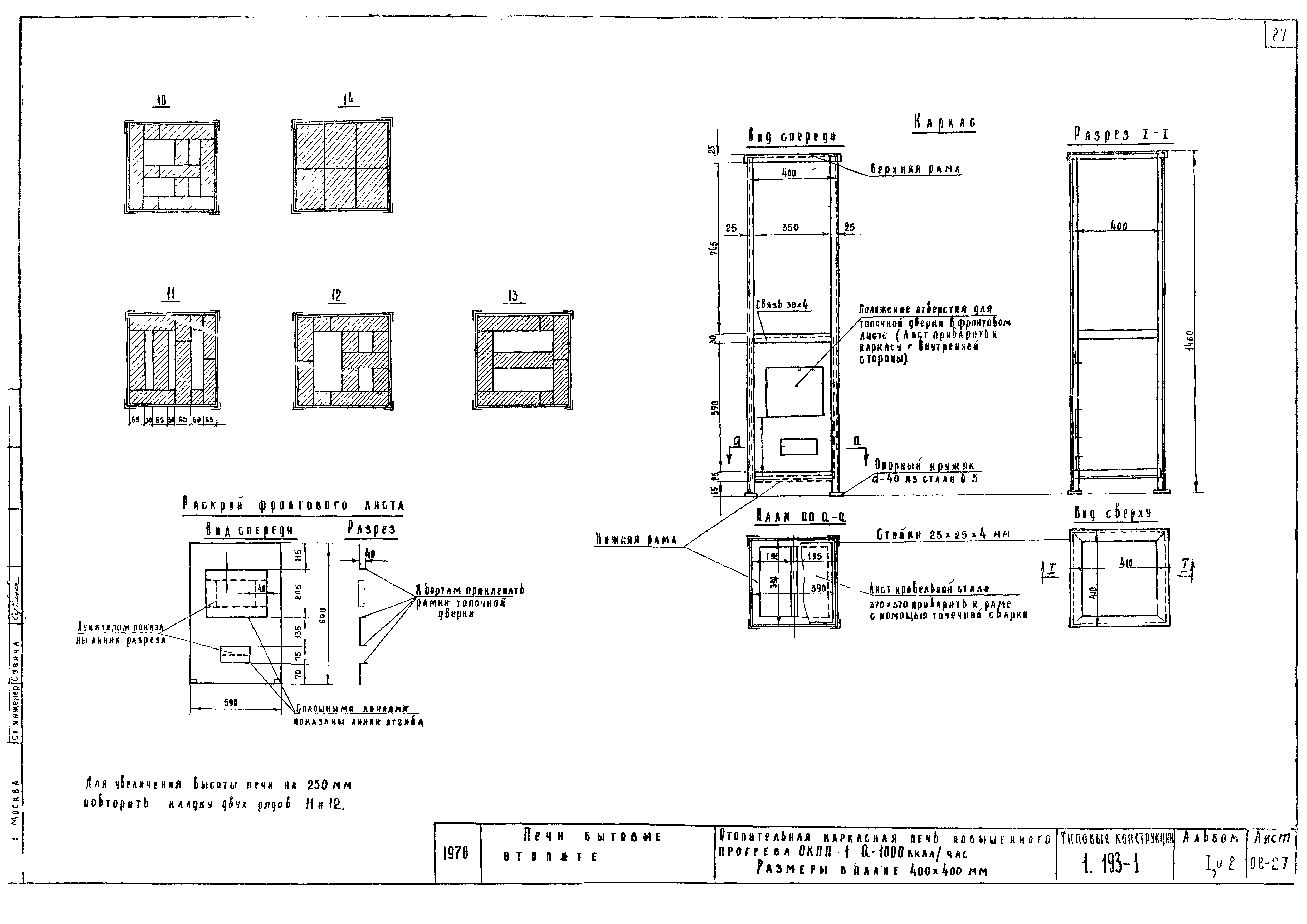
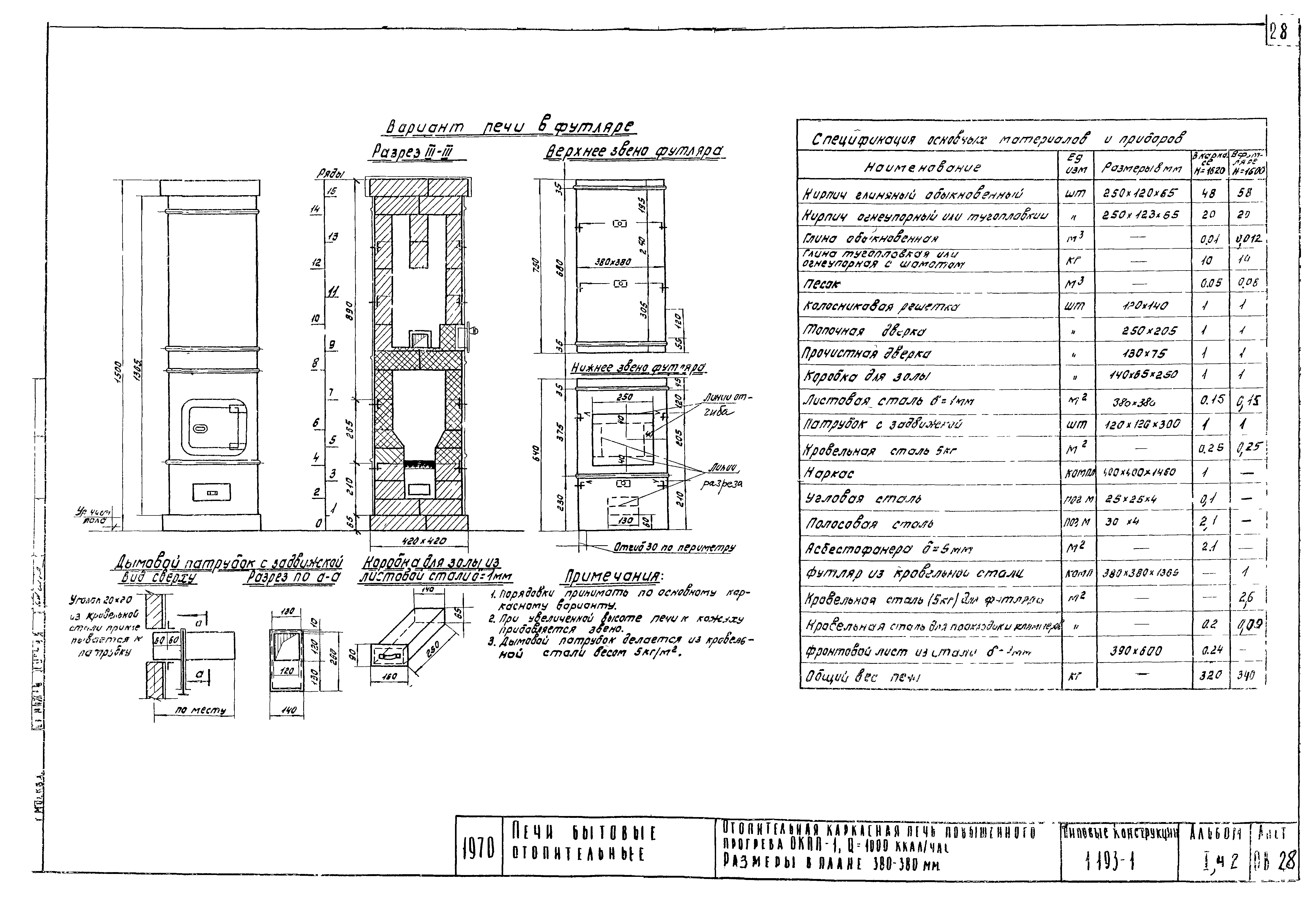
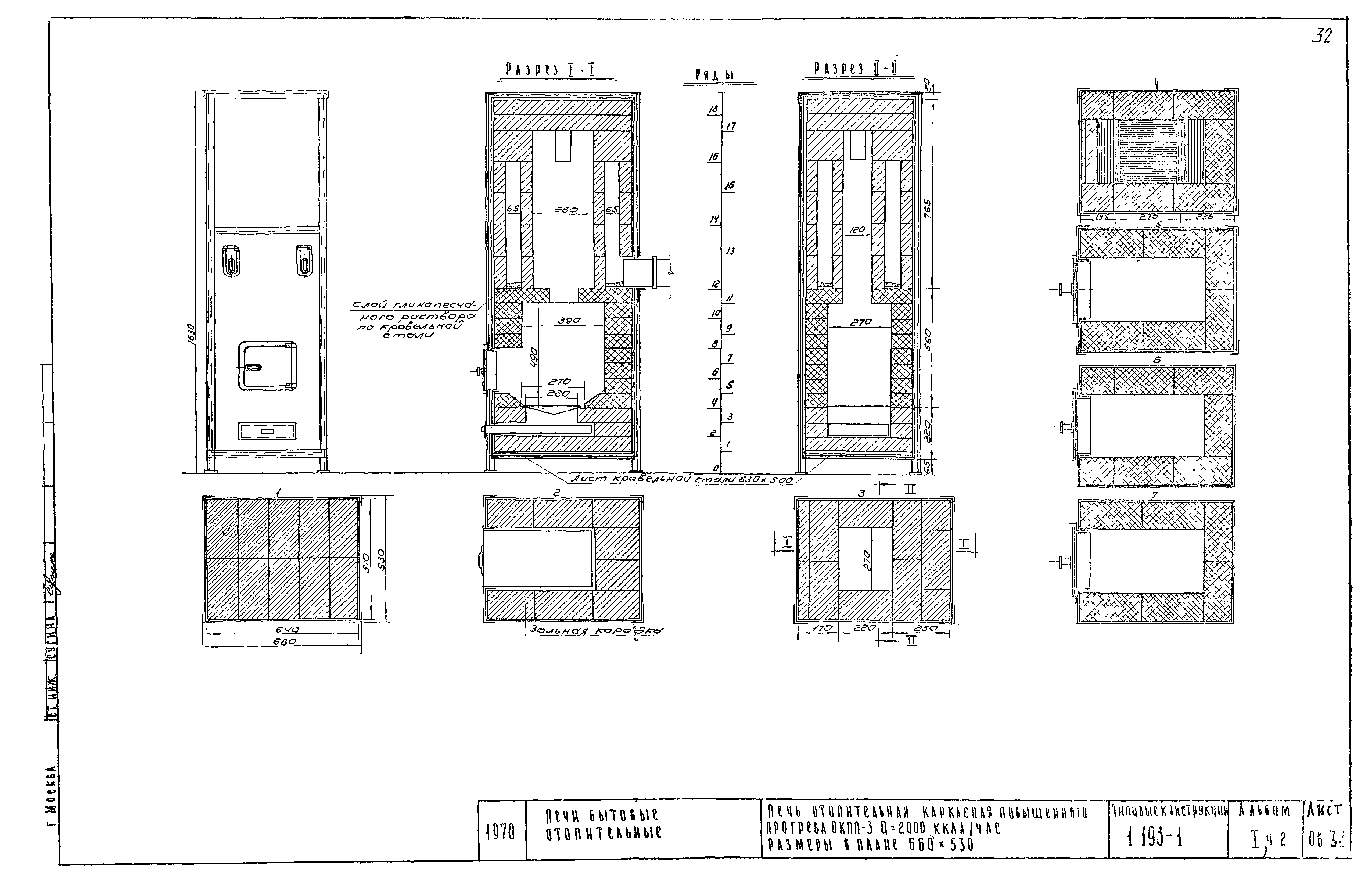
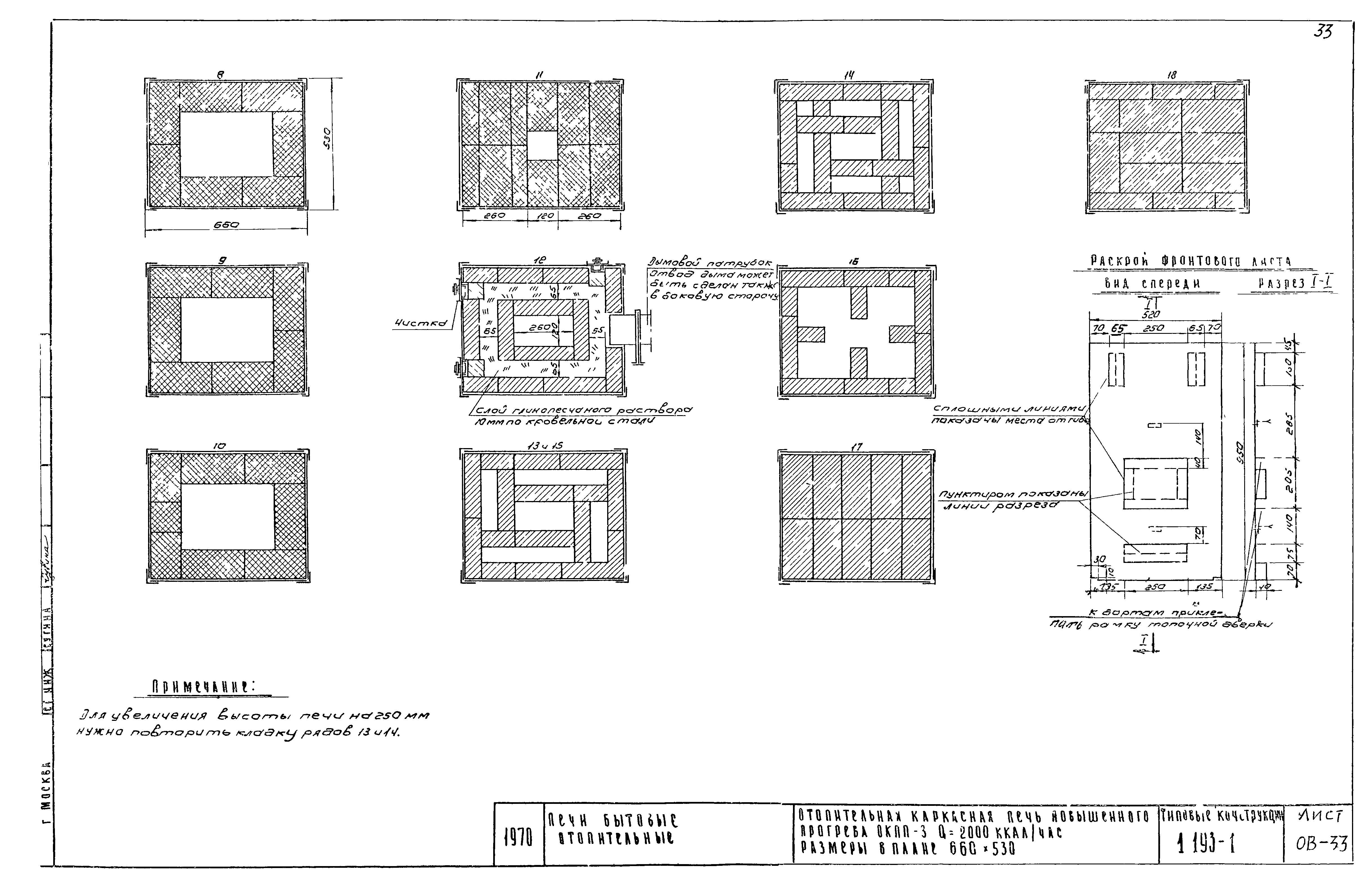
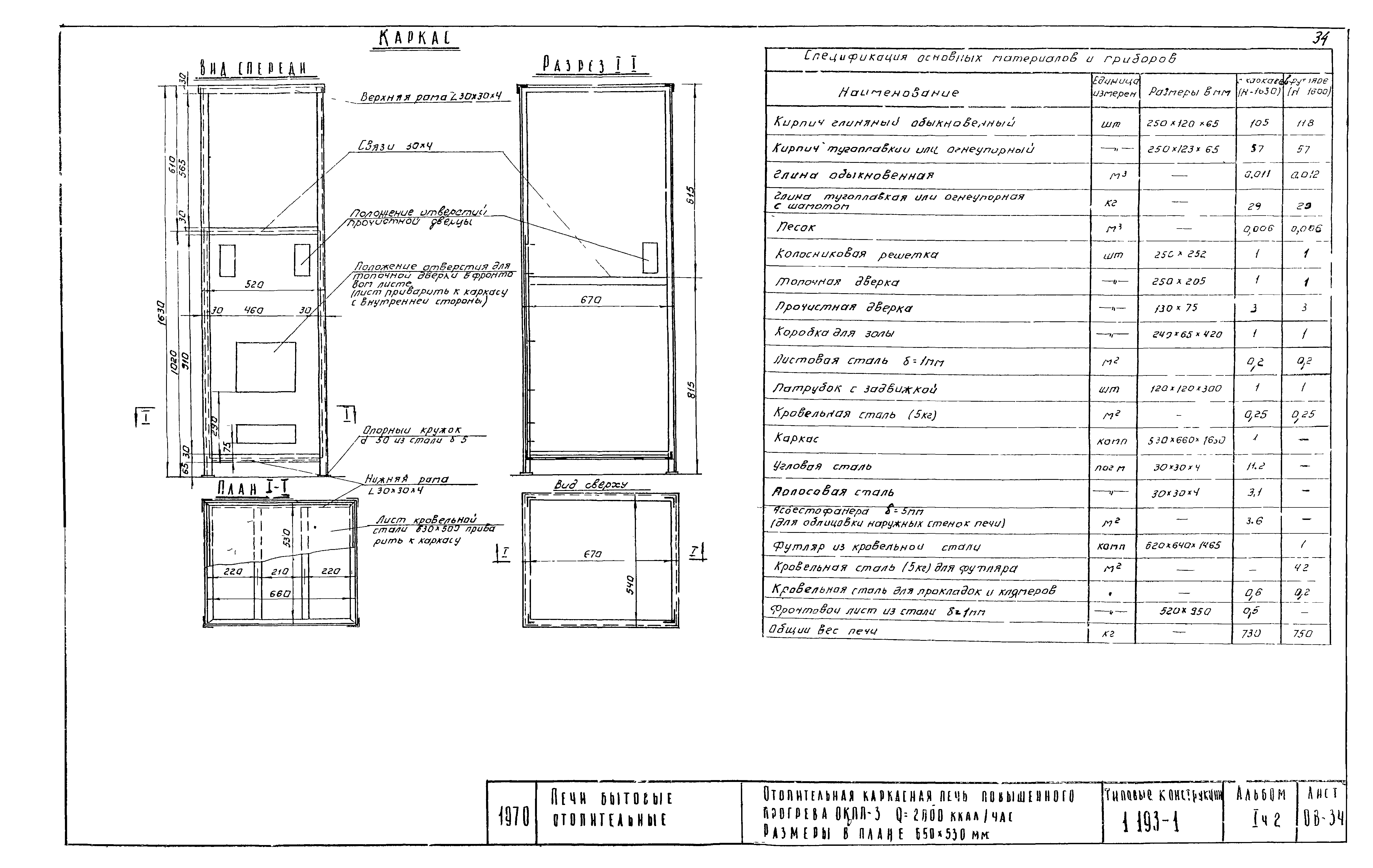
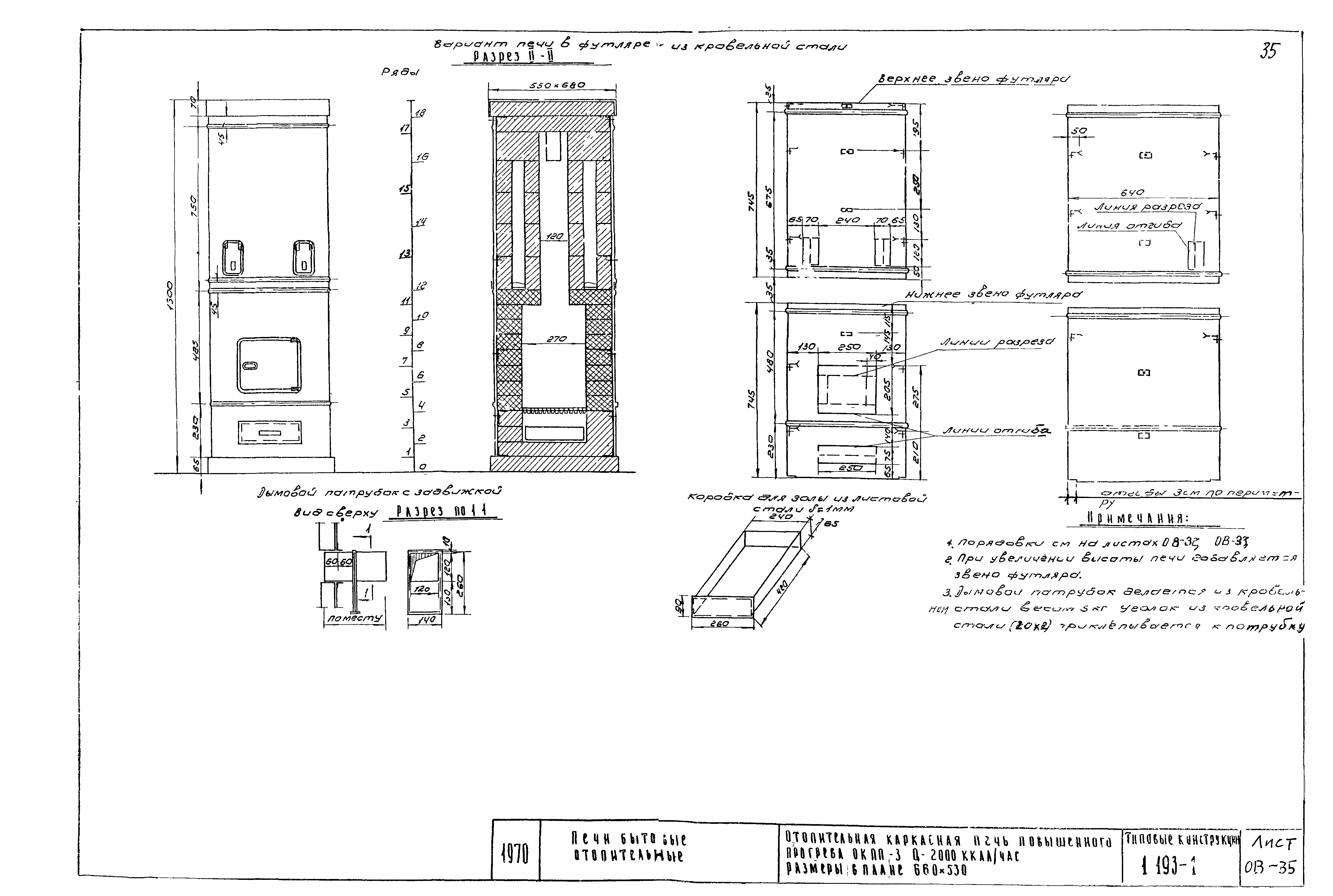
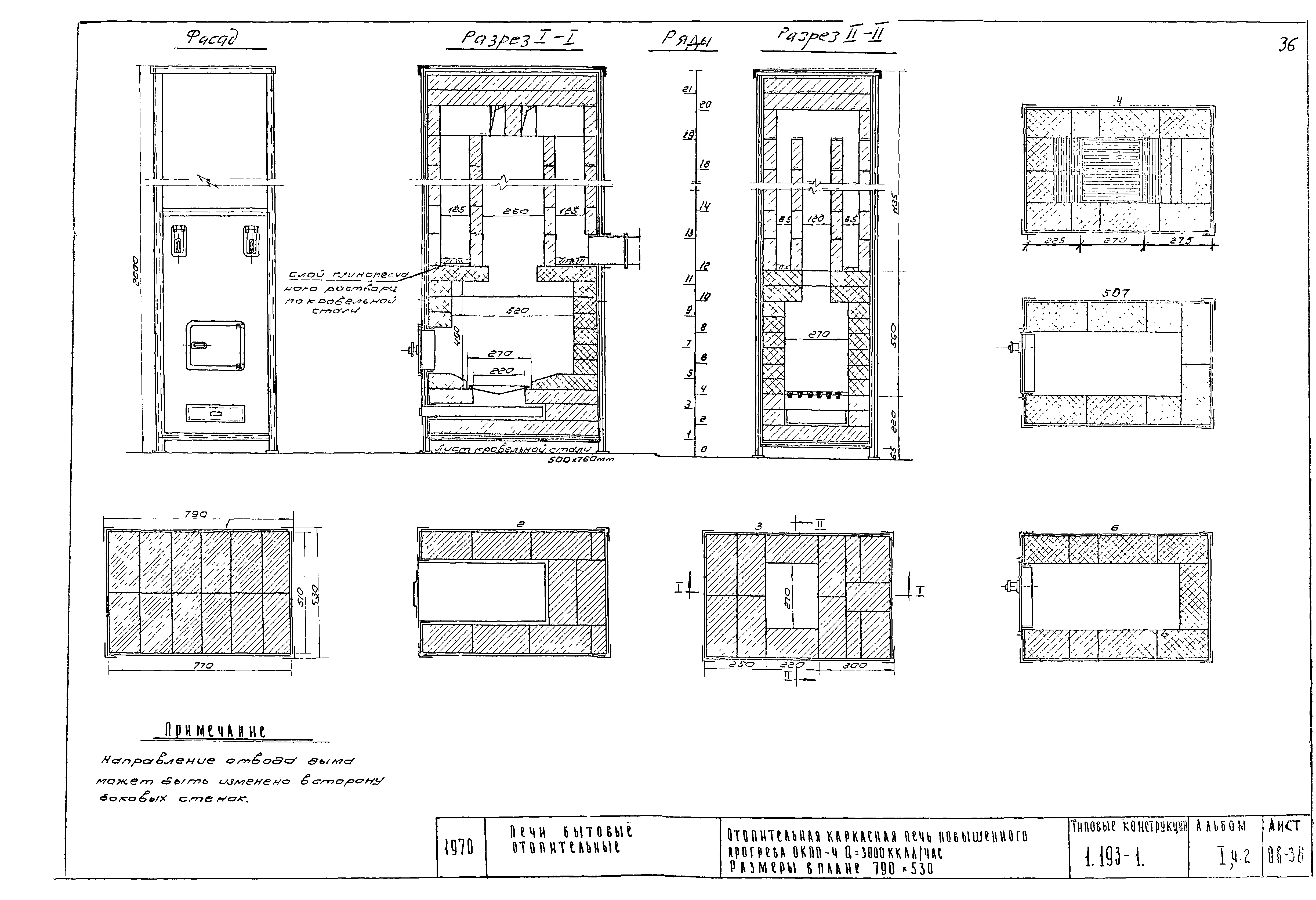
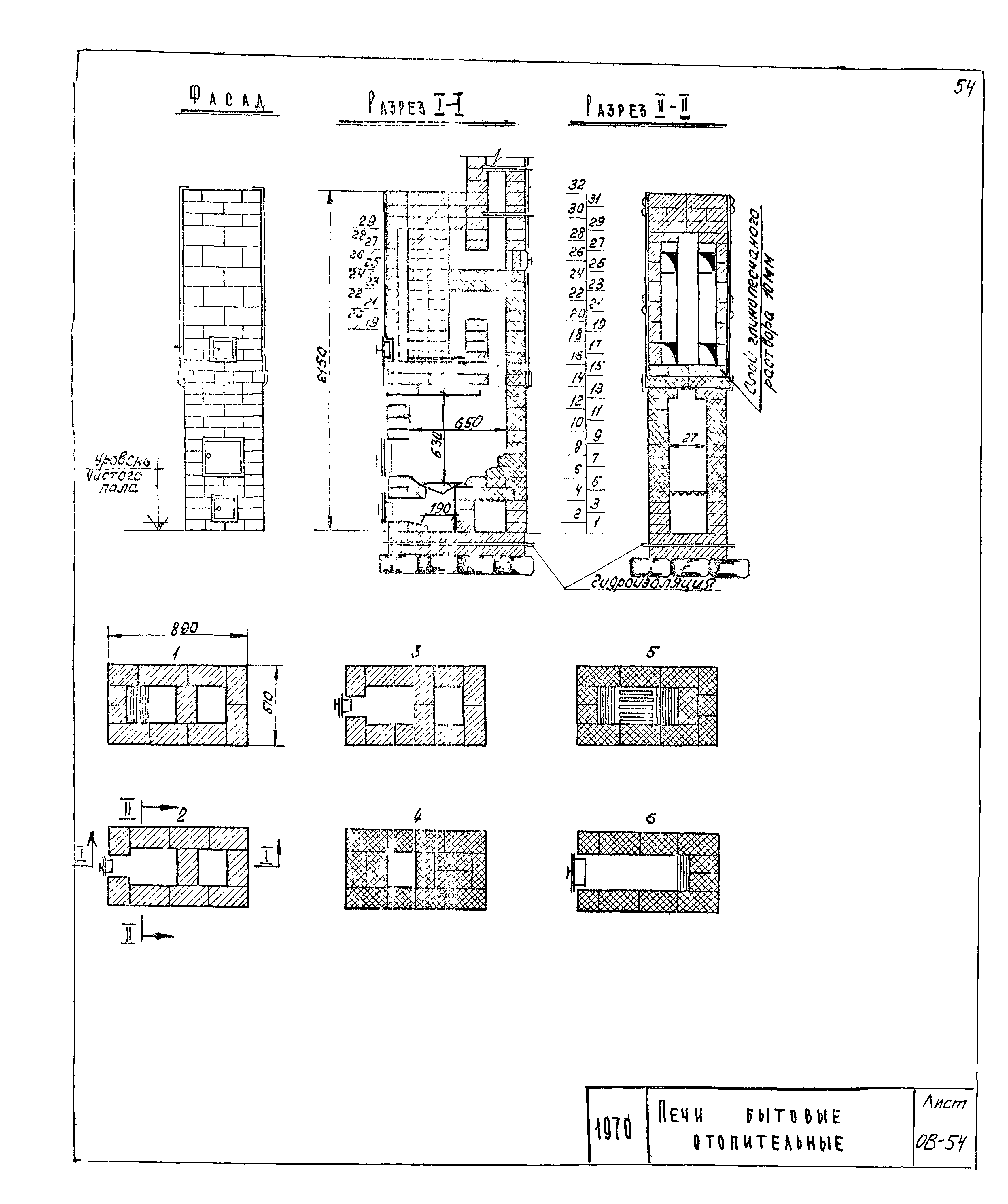
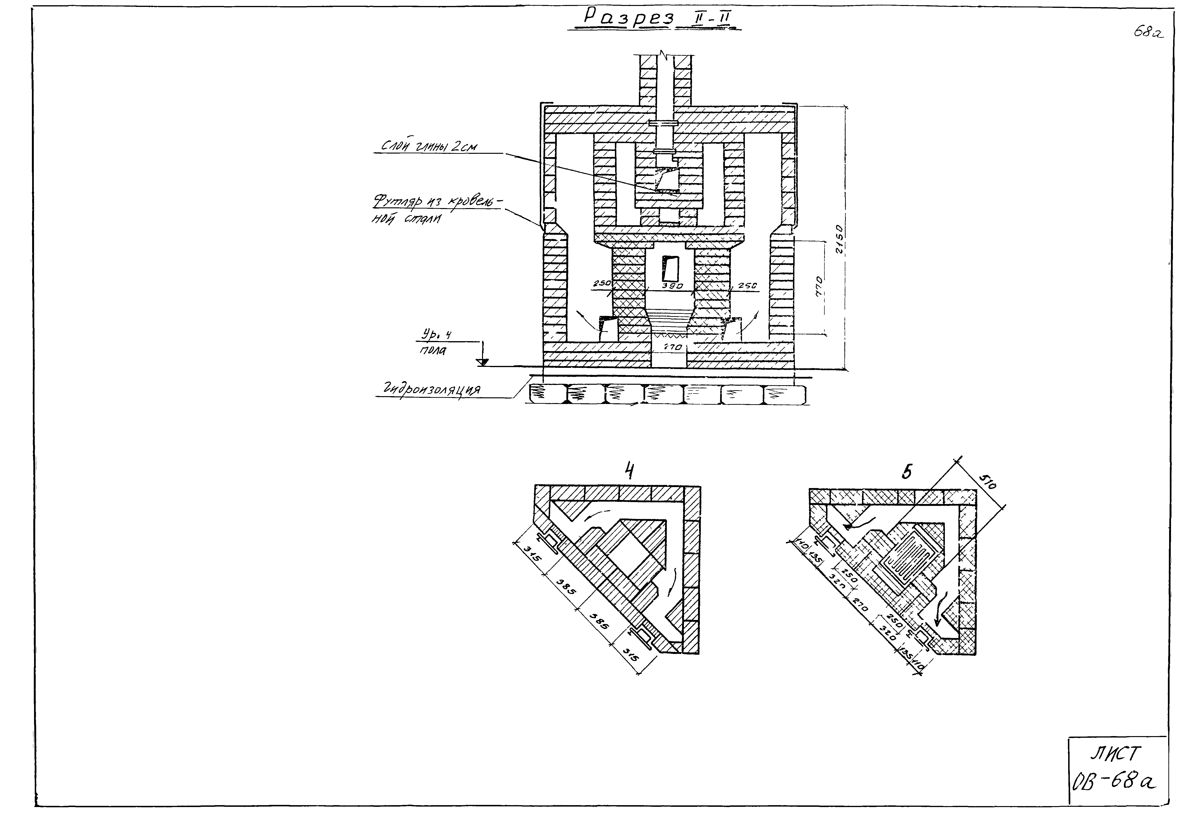
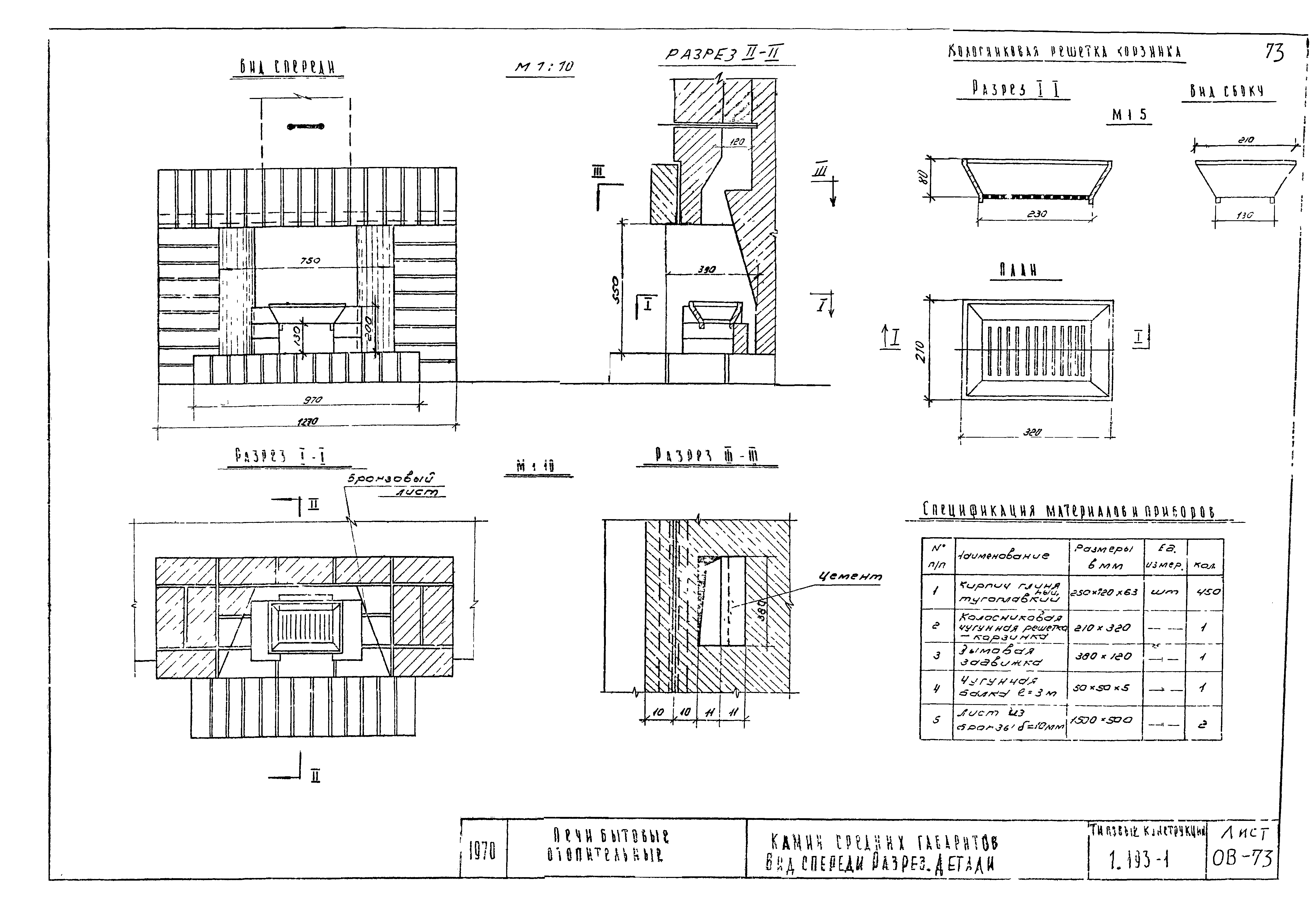
| Оглавление: | 08-3 Основные строительные элементы, узлы и детали применяемые при сооружении печей. Фундаменты под печи располагаемые у каменных стен 08-4 Расположение фундаментов и устройства разделок при установке печей и деревянных стен 08-5 Основание под печи, расположенные в верхних этажах у каменных стен 08-6 Примыкание дымовых каналов к перекрытиям и расположение каналов в кирпичных стенах 08-7 Теплоизоляция деревянных перекрытий в местах примыкания к дымоходам 08-8 Расположение домовых каналов от печей во внутренних кирпичных стенах 08-9 Схема установки печей на деревянных перекрытиях. Перекидной рукав. Циркуляционная решетка в отступке 08-10 Устройство дымовых труб выше кровли 08-11 Перечень печей. Основные показатели 08-12 Перечень печей. Основные показатели 08-13 Отопительная печь бетоноблочная унифицированная ББУ-2. Теплоотдача печи - 2000 ккал/час 08-14 Отопительная печь бетоноблочная унифицированная ББУ-3. Теплоотдача печи - 3000 ккал/час 08-15 Отопительная печь бетоноблочная унифицированная ББУ-4. Теплоотдача печи - 4000 ккал/час 08-16 Отопительные печи унифицированные ББУ 2, 3, 4. Поперечные сечения печей 08-17 Отопительные печи унифицированные ББУ 2, 3, 4. Футеровка топливника 08-18 Бетоноблочная коренная дымовая труба на два "дыма" для одноэтажных зданий. Общий вид и разрезы 08-19 Бетоноблочная коренная дымовая труба на два "дыма" для одноэтажных зданий. Разрезы 08-20 Отопительная печь бетоноблочная на жидком топливе Q=2500 ккал/час. Общий вид и разрезы 08-21 Отопительная печь бетоноблочная на жидком топливе Q=2500 ккал/час. Печные блоки 08-22 Отопительная печь бетоноблочная на жидком топливе Q=2500 ккал/час. Печные блоки 08-23 Безнапорная горелка для сжигания жидкого топлива. Общий вид и детали 08-24 Безнапорная горелка для сжигания жидкого топлива. Детали 08-25 Регулирующее устройство для подачи жидкого топлива 08-26 Отопительная каркасная печь повышенного прогрева ОКПП 1. Размеры в плане 400х400 мм 08-27 Отопительная каркасная печь повышенного прогрева ОКПП 1. Размеры в плане 400х400 мм 08-28 Отопительная каркасная печь повышенного прогрева ОКПП 1 Q=1000 ккал/час. Размеры в плане 380х380 мм 08-29 Отопительная каркасная печь повышенного прогрева ОКПП-2 Q=1500 ккал/час. Размеры в плане 530х530 мм 08-30 Отопительная каркасная печь повышенного прогрева ОКПП-2 Q=1500 ккал/час. Размеры в плане 530х530 мм 08-31 Отопительная каркасная печь повышенного прогрева ОКПП-2 Q=1500 ккал/час. Размеры в плане 530х530 мм 08-32 Отопительная каркасная печь повышенного прогрева ОКПП-3 Q=2000 ккал/час. Размеры в плане 660х530 мм 08-33 Отопительная каркасная печь повышенного прогрева ОКПП-3 Q=2000 ккал/час. Размеры в плане 660х530 мм 08-34 Отопительная каркасная печь повышенного прогрева ОКПП-3 Q=2000 ккал/час. Размеры в плане 660х530 мм 08-35 Отопительная каркасная печь повышенного прогрева ОКПП-3 Q=2000 ккал/час. Размеры в плане 660х530 мм 08-36 Отопительная каркасная печь повышенного прогрева ОКПП-4 Q=3000 ккал/час. Размеры в плане 790х530 мм 08-37 Отопительная каркасная печь повышенного прогрева ОКПП-4 Q=3000 ккал/час. Размеры в плане 790х530 мм 08-38 Отопительная каркасная печь повышенного прогрева ОКПП-4 Q=3000 ккал/час. Размеры в плане 790х530 мм 08-39 Отопительная каркасная печь повышенного прогрева ОКПП-4 Q=3000 ккал/час. Размеры в плане 790х530 мм 08-40 Отопительная газовая кирпичная печь длительного горения АКХ-14 Q=3000 ккал/час. Размеры 770х510 08-41 Отопительная газовая изразцово-каркасная печь длительного горения АКХ-15 Q=1500 ккал/час. Размеры 510х450 мм 08-42 Отопительная газовая изразцово-каркасная печь длительного горения АКХ-15 Q=1500 ккал/час. Размеры 510х450 мм 08-43 Отопительная газовая изразцово-каркасная печь длительного горения АКХ-15 Q=1500 ккал/час. Размеры 510х450 мм 08-44 Отопительная газовая изразцово-каркасная печь длительного горения АКХ-15 Q=1500 ккал/час. Размеры 510х450 мм. Газогорелочное устройство 08-45 Сборная бетоноблочная печь длительного горения на твердом топливе ИБД-1, ИБД-2. Q1=1650 ккал/час, Q2=2000 ккал/час. Размеры 750х300 08-46 Отопительная круглая печь ОЦФ-1 в металлическом футляре. Теплоотдача Q=1500 ккал/час d=650 мм 08-47 Отопительная круглая печь ОЦФ-1 в металлическом футляре. Теплоотдача Q=1500 ккал/час d=650 мм 08-48 Отопительная прямоугольная печь в металлическом футляре ОПФ-1. Q=3920 ккал/час Размер 1140х890 мм 08-49 Отопительная прямоугольная печь в металлическом футляре ОПФ-1. Q=3920 ккал/час Размер 1140х890 мм 08-50 Отопительная прямоугольная печь в металлическом футляре ОПФ-1. Q=3920 ккал/час Размер 1140х890 мм 08-51 Отопительная печь изразцовая квадратная ОПТЦ-1 Q=4150 ккал/час. Размеры 1020х1020 мм 08-52 Отопительная печь изразцовая квадратная ОПТЦ-1 Q=4150 ккал/час. Размеры 1020х1020 мм 08-53 Отопительная печь изразцовая квадратная ОПТЦ-1 Q=4150 ккал/час. Размеры 1020х1020 мм 08-54 Отопительная прямоугольная толстостенная печь оштукатуренная ОПТ-2, Q=1940 ккал/час. Размеры 510х890 мм 08-54а Отопительная прямоугольная толстостенная печь оштукатуренная ОПТ-2, Q=1940 ккал/час. Размеры 510х890 мм 08-55 Отопительная прямоугольная толстостенная печь оштукатуренная ОПТ-2, Q=1940 ккал/час. Размеры 510х890 мм 08-56 Отопительная прямоугольная кирпичная печь оштукатуренная ОПТ-3, Q=2500 ккал/час. Размеры 510х1150 08-57 Отопительная прямоугольная кирпичная печь оштукатуренная ОПТ-3, Q=2500 ккал/час. Размеры 510х1150 08-58 Отопительная прямоугольная толстостенная печь оштукатуренная ОПТ-4, Q=2480 ккал/час. Размеры 510х1270 мм 08-59 Отопительная прямоугольная толстостенная печь оштукатуренная ОПТ-4, Q=2480 ккал/час. Размеры 510х1270 мм 08-60 Отопительная кирпичная печь 2000 х/380х510/ h=1610 с выносным топливником, оштукатуренная ОВТ-1, Q=3570 ккал/час 08-61 Отопительная кирпичная печь 2000 х/380х510/ h=1610 с выносным топливником, оштукатуренная ОВТ-1, Q=3570 ккал/час 08-62 Отопительная прямоугольная кирпичная печь оштукатуренная ОПМ-9, Q=3520 ккал/час. Размеры 1020х890 мм 08-63 Отопительная прямоугольная кирпичная печь оштукатуренная ОПМ-9, Q=3520 ккал/час. Размеры 1020х890 мм 08-64 Отопительная прямоугольная кирпичная печь оштукатуренная ОПМ-9, Q=3520 ккал/час. Размеры 1020х890 мм 08-65 Отопительная прямоугольная кирпичная печь оштукатуренная ОПМ-9, Q=3520 ккал/час. Размеры 1020х890 мм 08-66 Отопительная прямоугольная толстенная печь, оштукатуренная ОПТ-11, Q=3850 ккал/час. Размеры 1660х640 мм 08-67 Отопительная прямоугольная толстенная печь, оштукатуренная ОПТ-11, Q=3850 ккал/час. Размеры в плане 1660х640 мм 08-68 Печь угловая кирпичная оштукатуренная ОУТ, Q=3500 ккал/час 08-69 Печь угловая кирпичная оштукатуренная ОУТ, Q=5500 ккал/час 08-70 Печь угловая кирпичная оштукатуренная ОУТ, Q=5500 ккал/час 08-71 Печь нетеплоемкая в металлическом футляре Q=1800ккал/час 08-72 Камин средних габаритов 08-73 Камин средних габаритов 08-74 Отопительная печь с водяным аккумулирующим массивом. ОВАМ 08-75 Отопительная двухъярусная прямоугольная толстостенная печь, оштукатуренная ОПТД-10. Q1=2400 ккал/час, Q2=2000 ккал/час. Размеры в плане 640х770 мм 08-76 Отопительная двухъярусная прямоугольная толстостенная печь, оштукатуренная ОПТД-10. Q1=2400 ккал/час, Q2=2000 ккал/час. Размеры в плане 640х770 мм 08-77 Отопительная двухъярусная прямоугольная толстостенная печь, оштукатуренная ОПТД-10. Q1=2400 ккал/час, Q2=2000 ккал/час. Размеры в плане 640х770 мм 08-78 Отопительная двухъярусная прямоугольная толстостенная печь, оштукатуренная ОПТД-10. Q1=2400 ккал/час, Q2=2000 ккал/час. Размеры в плане 640х770 мм |
| Разработан: | ЦНИИЭП инженерного оборудования |
| Утверждён: | 09.10.1970 ЦНИИЭП инженерного оборудования (TsNIIEP of Building Service Equipment 134) |
| Издан: | ЦИТП Госстроя СССР (CITP, Gosstroy (USSR) 1970 г. ) |


























































































