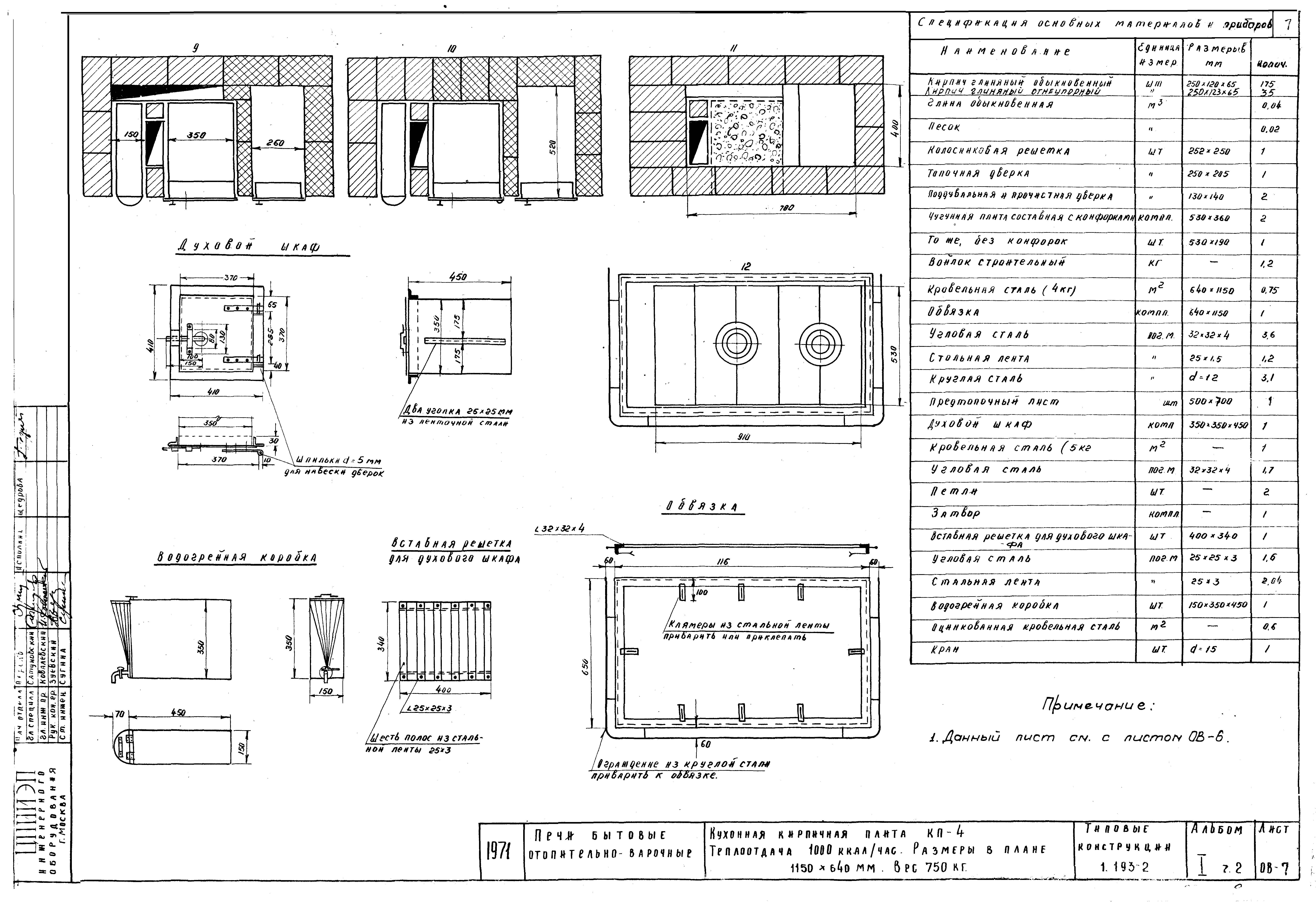
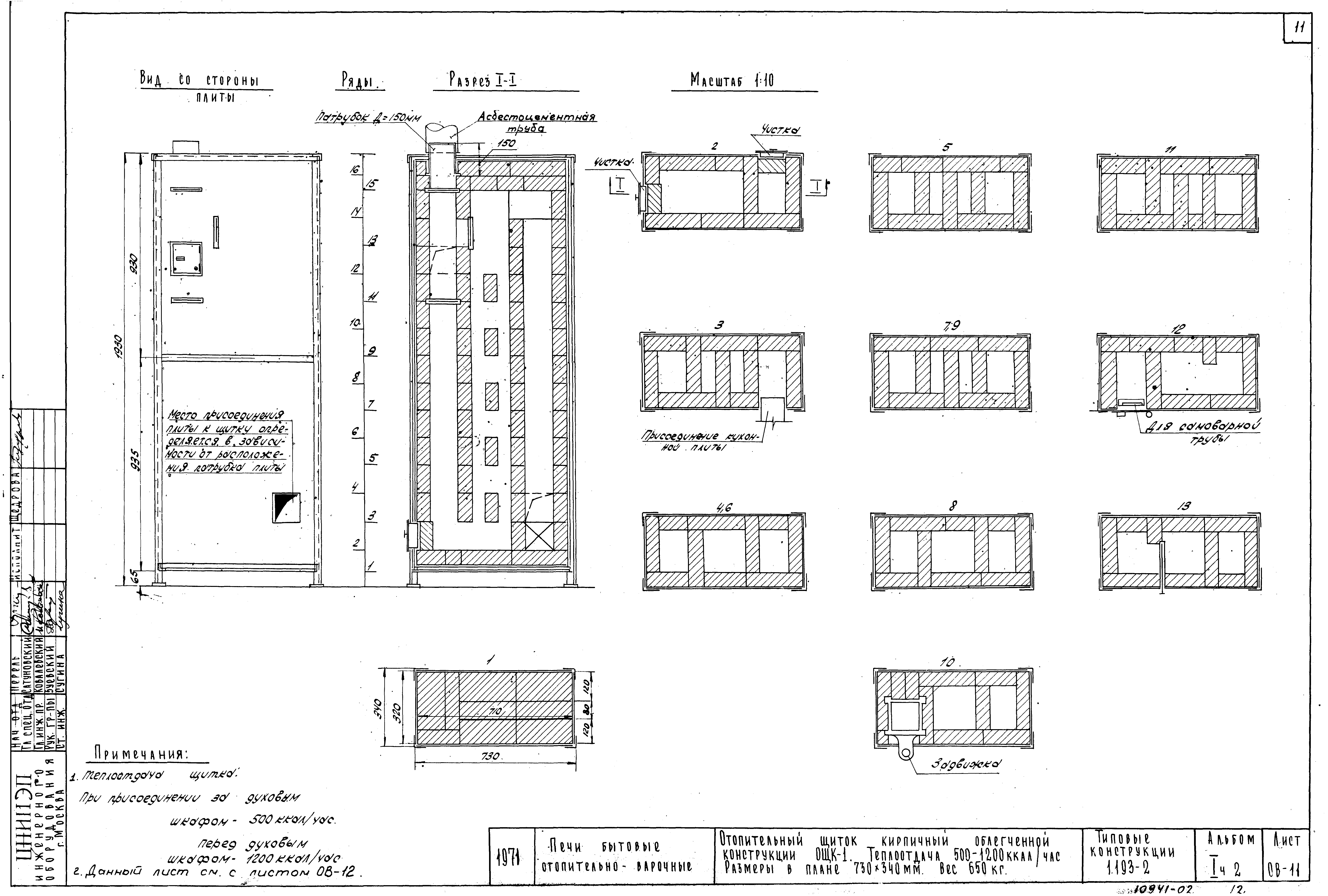
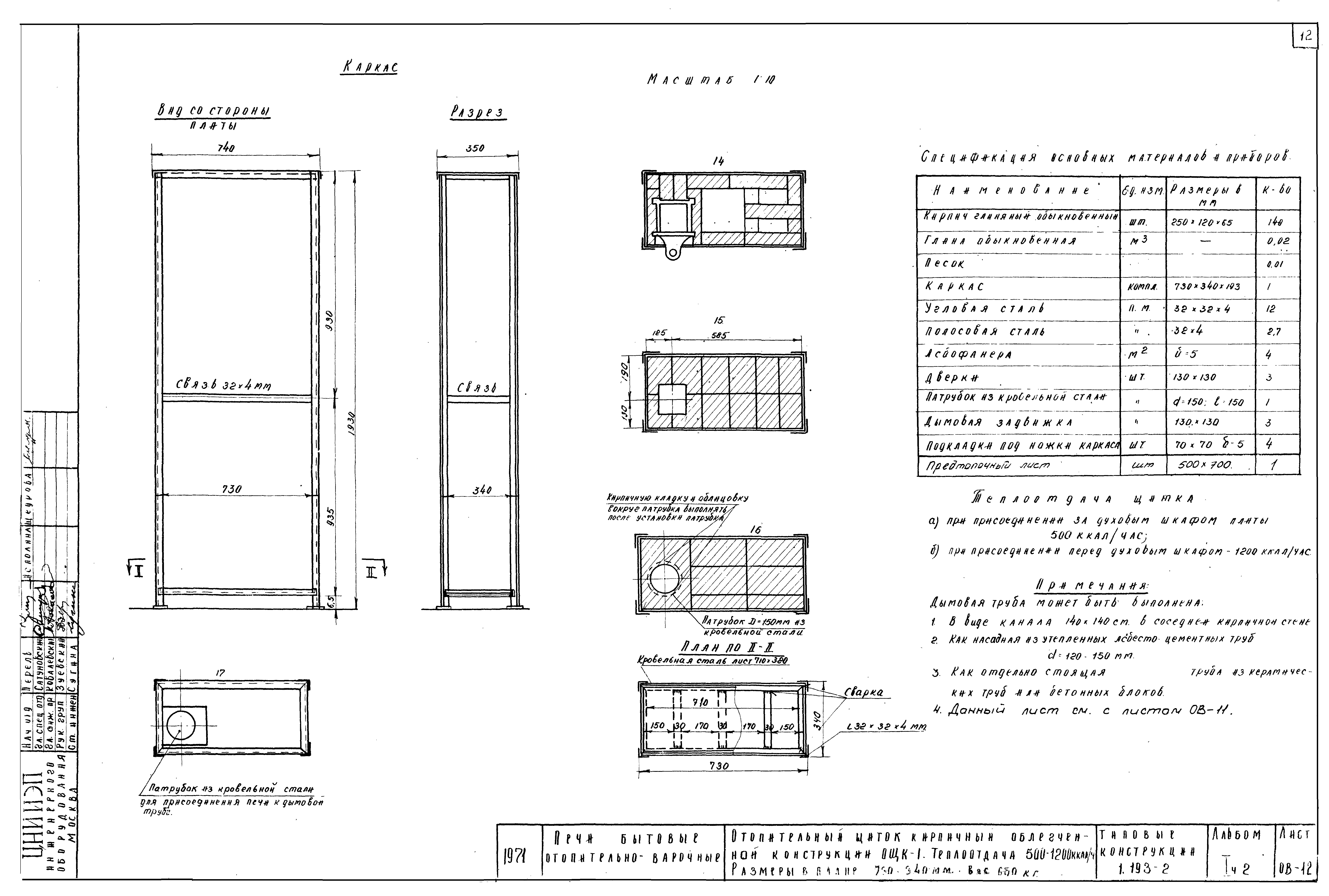
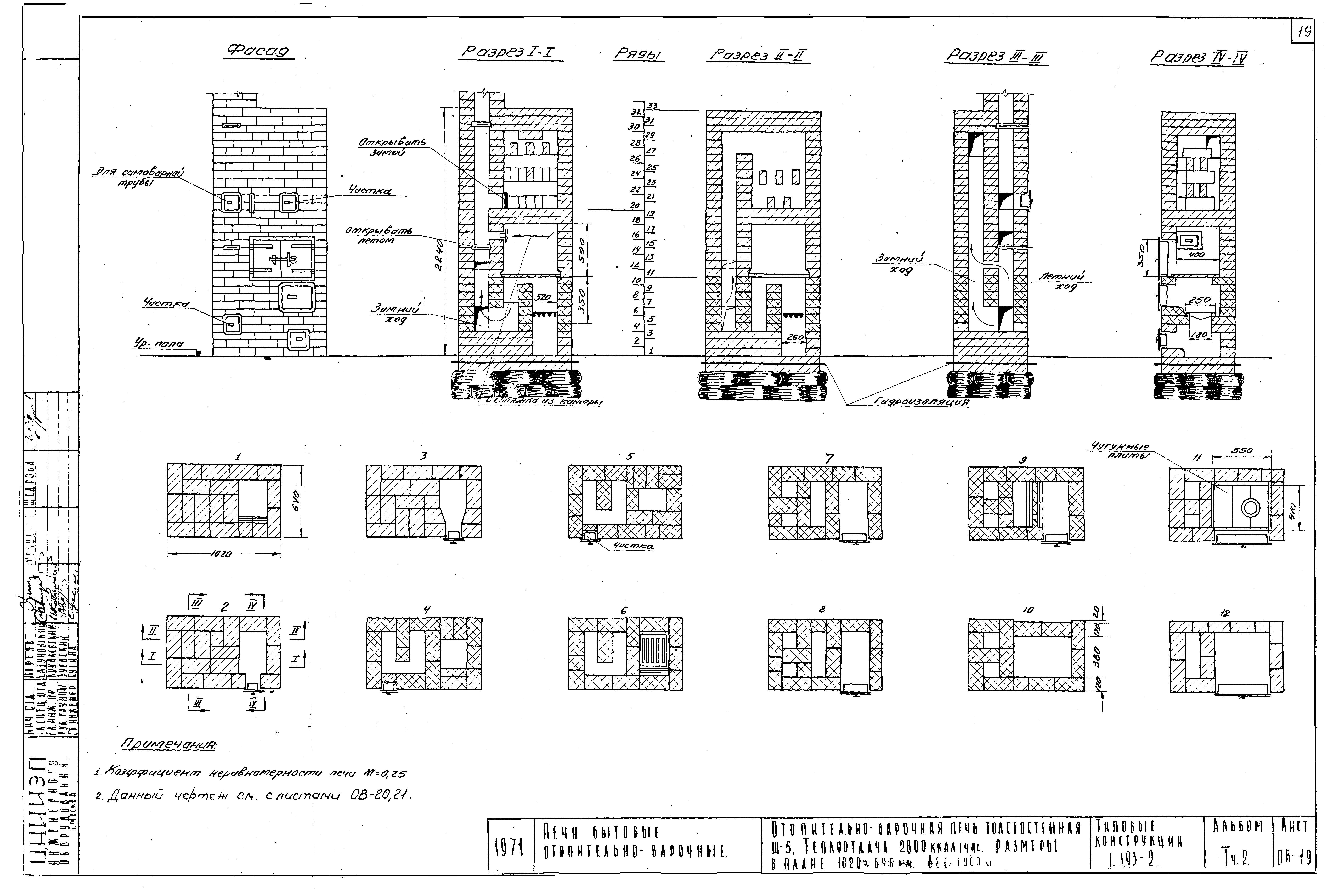
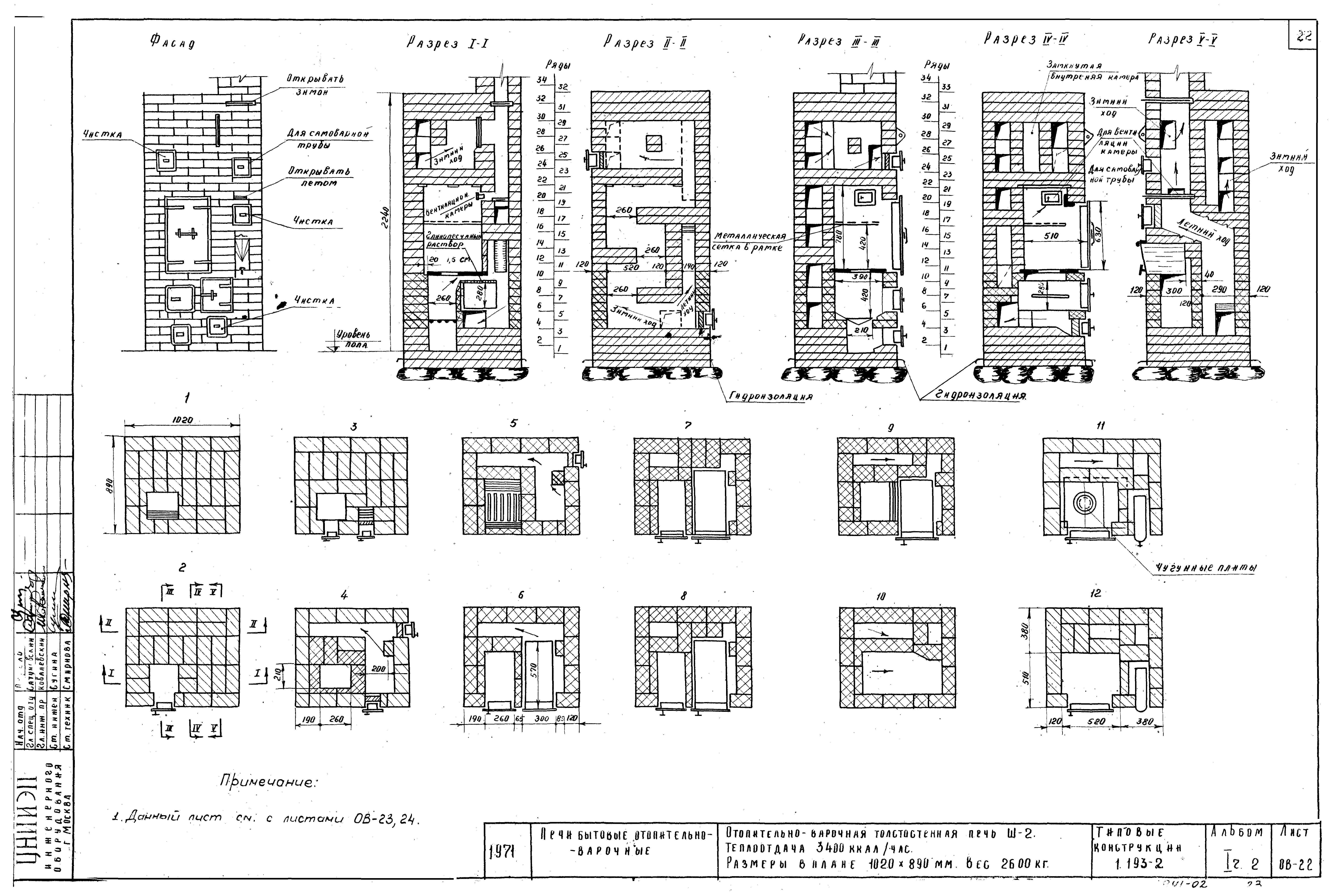
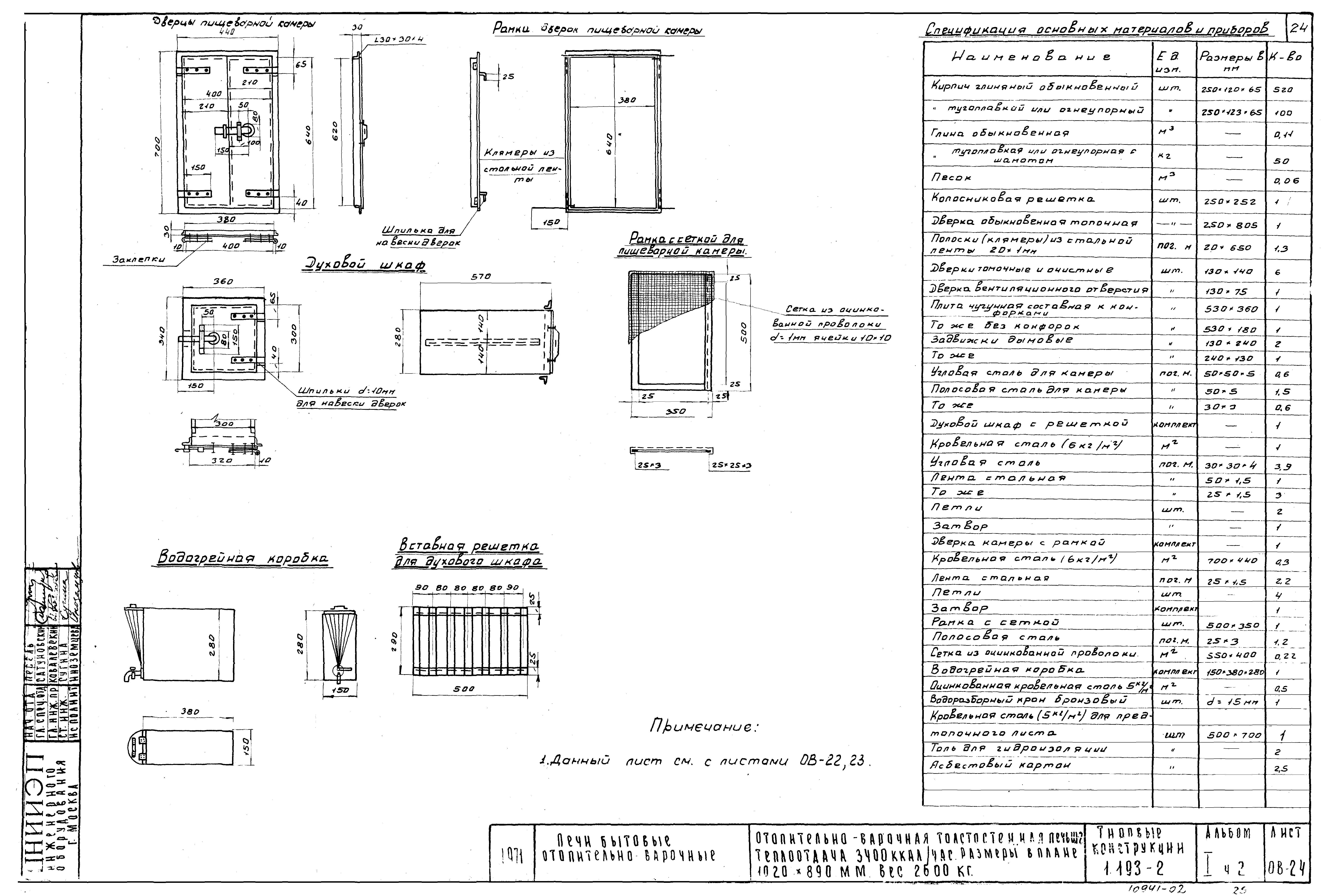
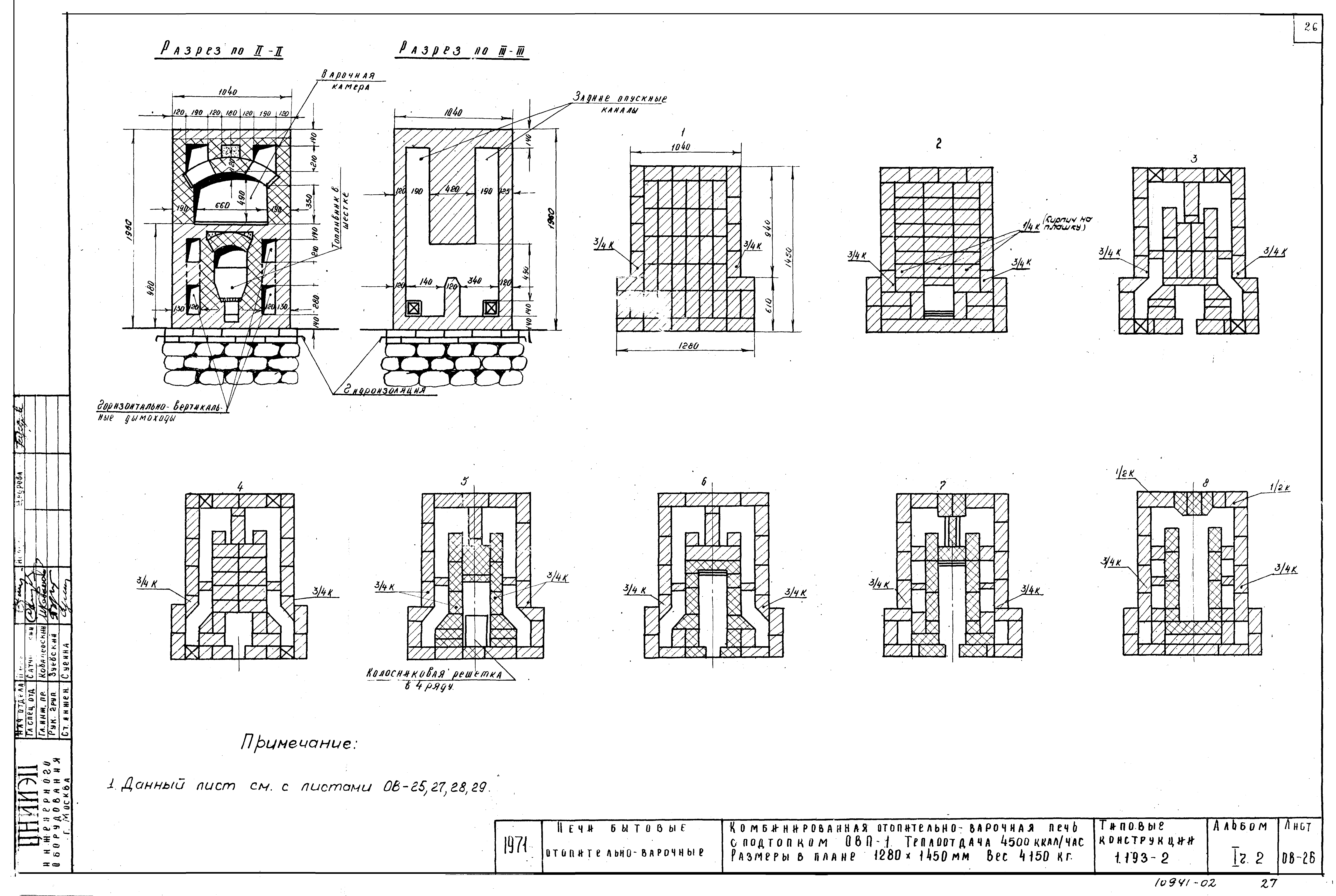
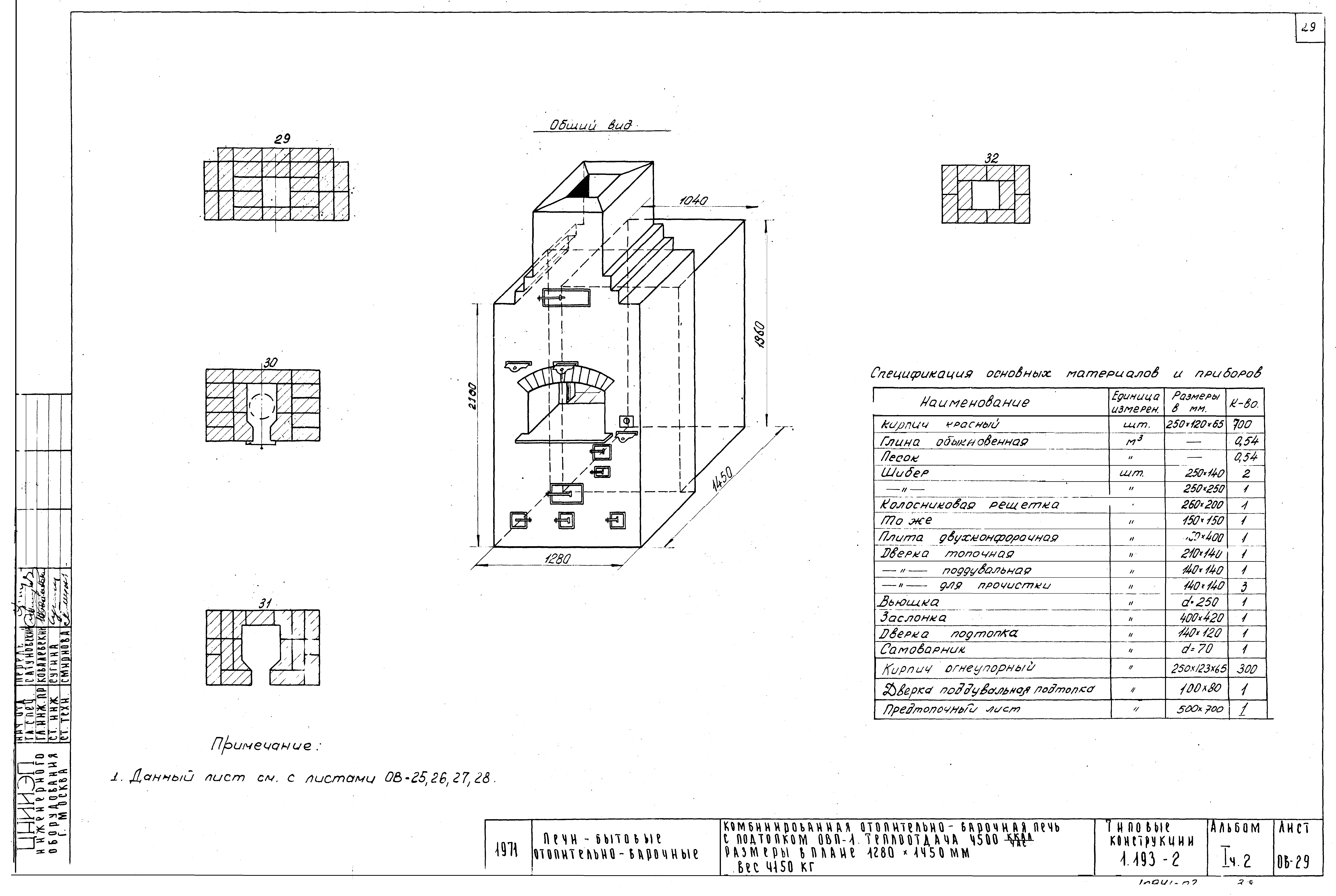
Скачать Серия 1.193-2 Альбом 1. Часть 2. Рабочие чертежи печейДата актуализации: 01.01.2021
|
| Обозначение: | Серия 1.193-2 |
| Обозначение англ: | Series 1.193-2 |
| Статус: | не определен законодательством |
| Название рус.: | Альбом 1. Часть 2. Рабочие чертежи печей |
| Дата добавления в базу: | 01.09.2013 |
| Дата актуализации: | 01.01.2021 |
| Дата введения: | 25.02.1971 |
| Дата окончания срока действия: | 30.06.2003 |
| Разработан: | ЦНИИЭП инженерного оборудования Госгражданстроя |
| Утверждён: | 25.02.1971 ЦНИИЭП инженерного оборудования (TsNIIEP of Building Service Equipment 21) |






































