Скачать Серия 7.406-1 Выпуск 7-8. Вставки гибкие для вентиляторов и дымососов. Рабочие чертежиДата актуализации: 01.01.2021
|
| Обозначение: | Серия 7.406-1 |
| Обозначение англ: | Series 7.406-1 |
| Статус: | не определен законодательством |
| Название рус.: | Выпуск 7-8. Вставки гибкие для вентиляторов и дымососов. Рабочие чертежи |
| Дата добавления в базу: | 01.10.2014 |
| Дата актуализации: | 01.01.2021 |
| Дата введения: | 01.03.1985 |
| Дата окончания срока действия: | 30.06.2003 |
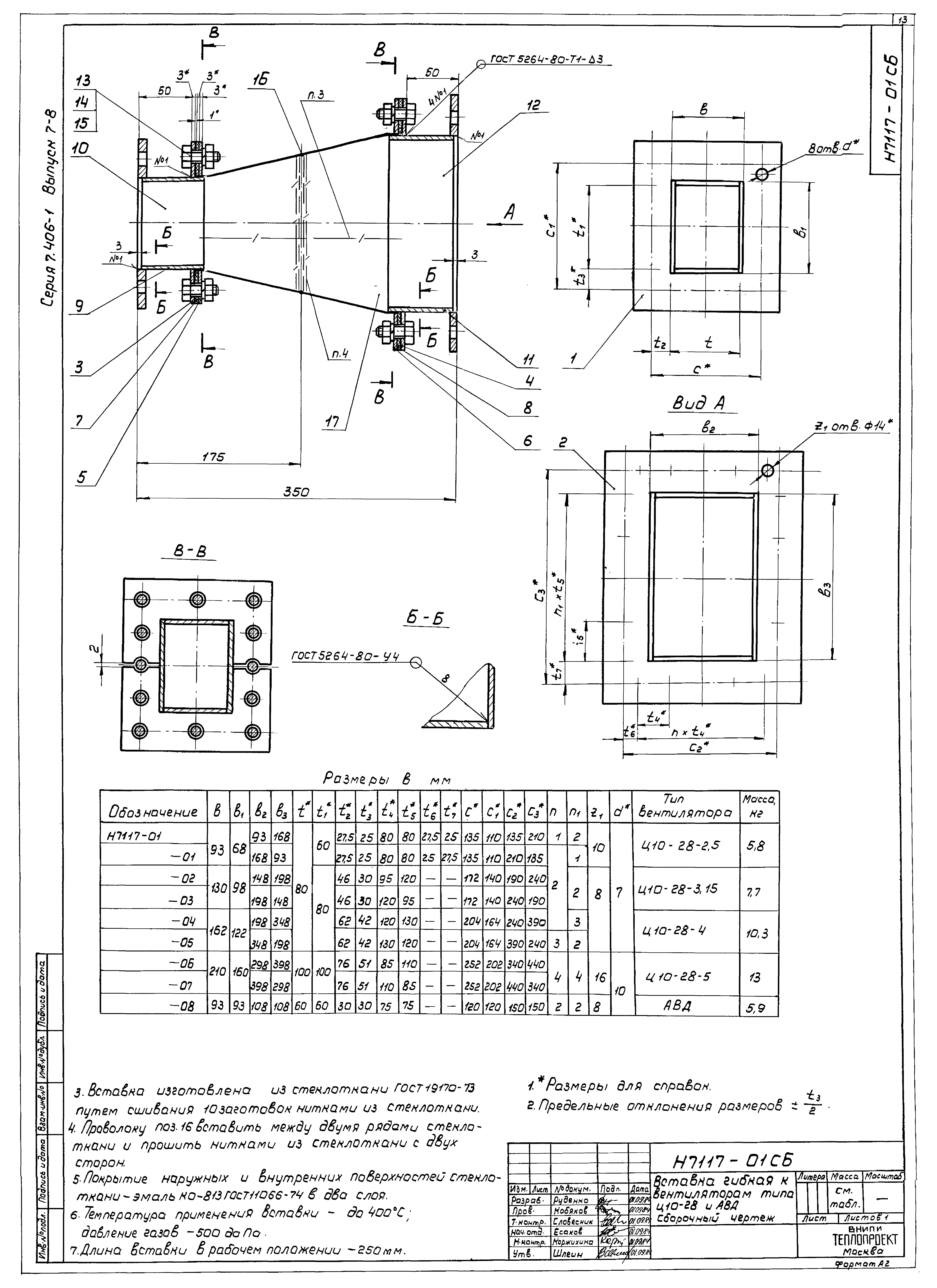
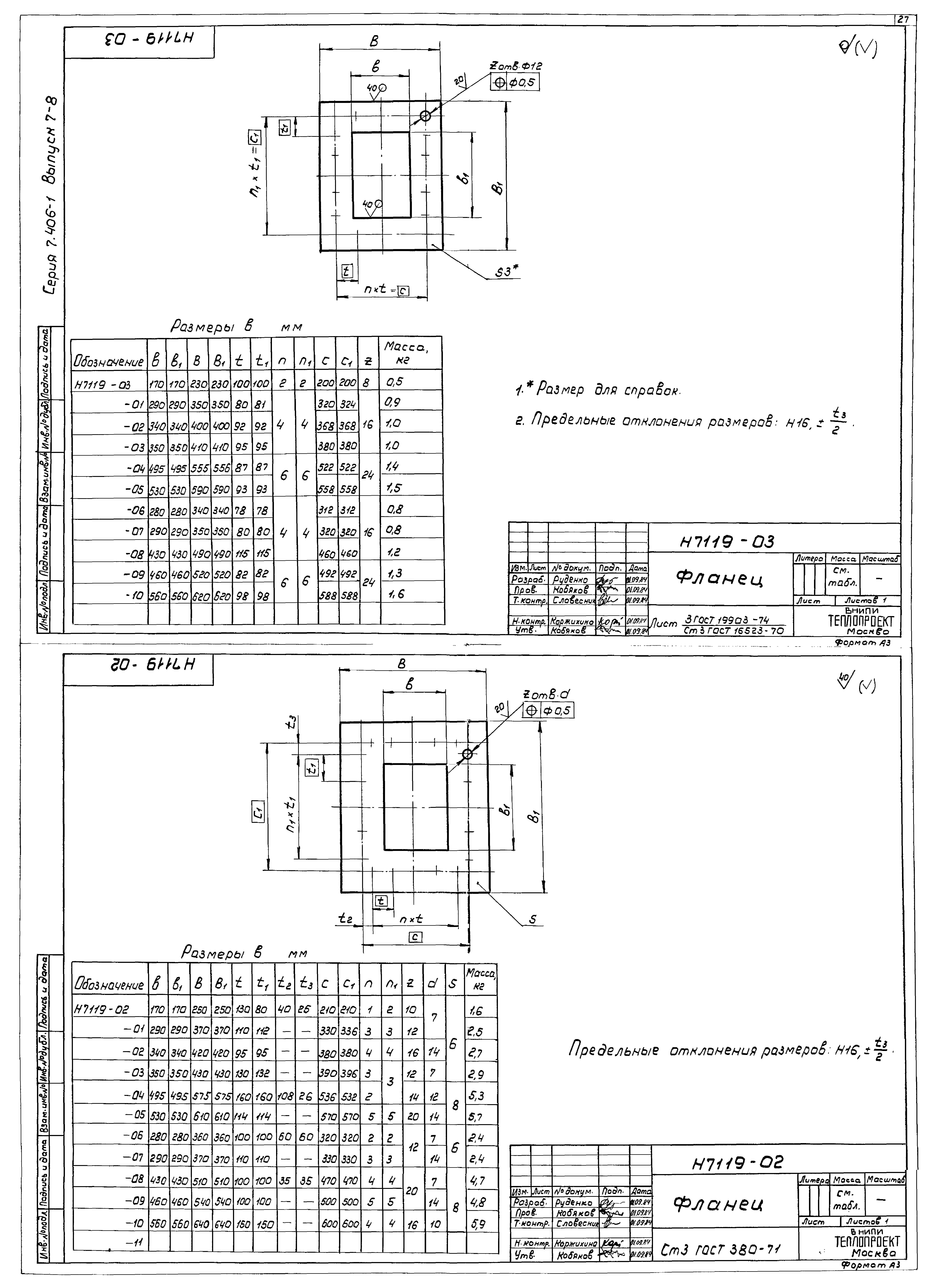
| Оглавление: | Содержание Н7116-01 Вставка гибкая к вентиляторам типа ВВД и ЦВ-18 Н7116-01СБ Вставка гибкая к вентиляторам типа ВВД и ЦВ-18. Сборочный чертеж Н7116-02 Фланец Н7116-03 Фланец Н7116-04 Скоба Н7116-05 Прокладка Н7117-01 Вставка гибкая к вентиляторам типа Ц10-28 и АВД Н7117-01СБ Вставка гибкая к вентиляторам типа Ц10-28 и АВД. Сборочный чертеж Н7117-02 Фланец Н7117-03 Фланец Н7117-04 Скоба Н7117-05 Прокладка Н7118-01 Вставка гибкая к вентиляторам типа В-ЦП7-40; В-ЦП6-45 и дымососам ДН-9; ДН-10; ДН-11,2; ДН-12,5 Н7118-01СБ Вставка гибкая к вентиляторам типа В-ЦП7-40; В-ЦП6-45 и дымососам ДН-9; ДН-10; ДН-11,2; ДН-12,5. Сборочный чертеж Н7118-02 Фланец Н7118-03 Фланец Н7118-04 Скоба Н7118-05 Прокладка Н7119-01 Вставка гибкая к вентиляторам типа ВЦП и В-Ц4-70 Н7119-01СБ Вставка гибкая к вентиляторам типа ВЦП и В-Ц4-70. Сборочный чертеж Н7119-02 Фланец Н7119-03 Фланец Н7119-04 Скоба Н7119-05 Прокладка Н7120-01 Вставка гибкая к вентиляторам типа ВВД и ЦВ-18 Н7120-01СБ Вставка гибкая к вентиляторам типа ВВД и ЦВ-18. Сборочный чертеж Н7120-02 Фланец Н7120-03 Скоба Н7120-04 Прокладка Н7121-01 Вставка гибкая к вентиляторам типа Ц10-28 и АВД Н7121-01СБ Вставка гибкая к вентиляторам типа Ц10-28 и АВД. Сборочный чертеж Н7121-02 Фланец Н7121-03 Скоба Н7121-04 Прокладка Н7122-01 Вставка гибкая к вентиляторам типа В-ЦП7-40; В-ЦП6-45 и дымососам ДН-9; ДН-10; ДН-11,2; ДН-12,5 Н7122-01СБ Вставка гибкая к вентиляторам типа В-ЦП7-40; В-ЦП6-45 и дымососам ДН-9; ДН-10; ДН-11,2; ДН-12,5. Сборочный чертеж Н7122-02 Фланец Н7122-03 Скоба Н7122-04 Прокладка Н7123-01 Вставка гибкая к вентиляторам типа ВЦП и В-Ц4-70 Н7123-01СБ Вставка гибкая к вентиляторам типа ВЦП и В-Ц4-70. Сборочный чертеж Н7123-02 Фланец Н7123-03 Скоба Н7123-04 Прокладка Н7124-01 Вставка гибкая к вентиляторам типа ВВД и ЦВ-18 Н7124-01СБ Вставка гибкая к вентиляторам типа ВВД и ЦВ-18. Сборочный чертеж Н7124-02 Фланец Н7124-03 Фланец Н7124-04 Скоба Н7124-05 Прокладка Н7127-01 Вставка гибкая к вентиляторам типа Ц10-28 и АВД Н7127-01СБ Вставка гибкая к вентиляторам типа Ц10-28 и АВД. Сборочный чертеж Н7127-02 Фланец Н7127-03 Скоба Н7127-04 Прокладка Н7128-01 Вставка гибкая к вентиляторам типа В-ЦП7-40; В-ЦП6-45 и дымососам ДН-9; ДН-10; ДН-11,2; ДН-12,5 Н7128-01СБ Вставка гибкая к вентиляторам типа В-ЦП7-40; В-ЦП6-45 и дымососам ДН-9; ДН-10; ДН-11,2; ДН-12,5. Сборочный чертеж Н7128-02 Фланец Н7128-03 Скоба Н7128-04 Прокладка Н7129-01 Вставка гибкая к вентиляторам типа ВЦП и В-Ц4-70 Н7129-01СБ Вставка гибкая к вентиляторам типа ВЦП и В-Ц4-70. Сборочный чертеж Н7129-02 Фланец Н7129-03 Фланец Н7129-04 Скоба Н7129-05 Прокладка |
| Разработан: | ВНИПИтеплопроект Минмонтажспецстроя СССР |
| Утверждён: | 24.12.1984 Минмонтажспецстрой СССР (USSR Minmontazhspetsstroy ) |
































































