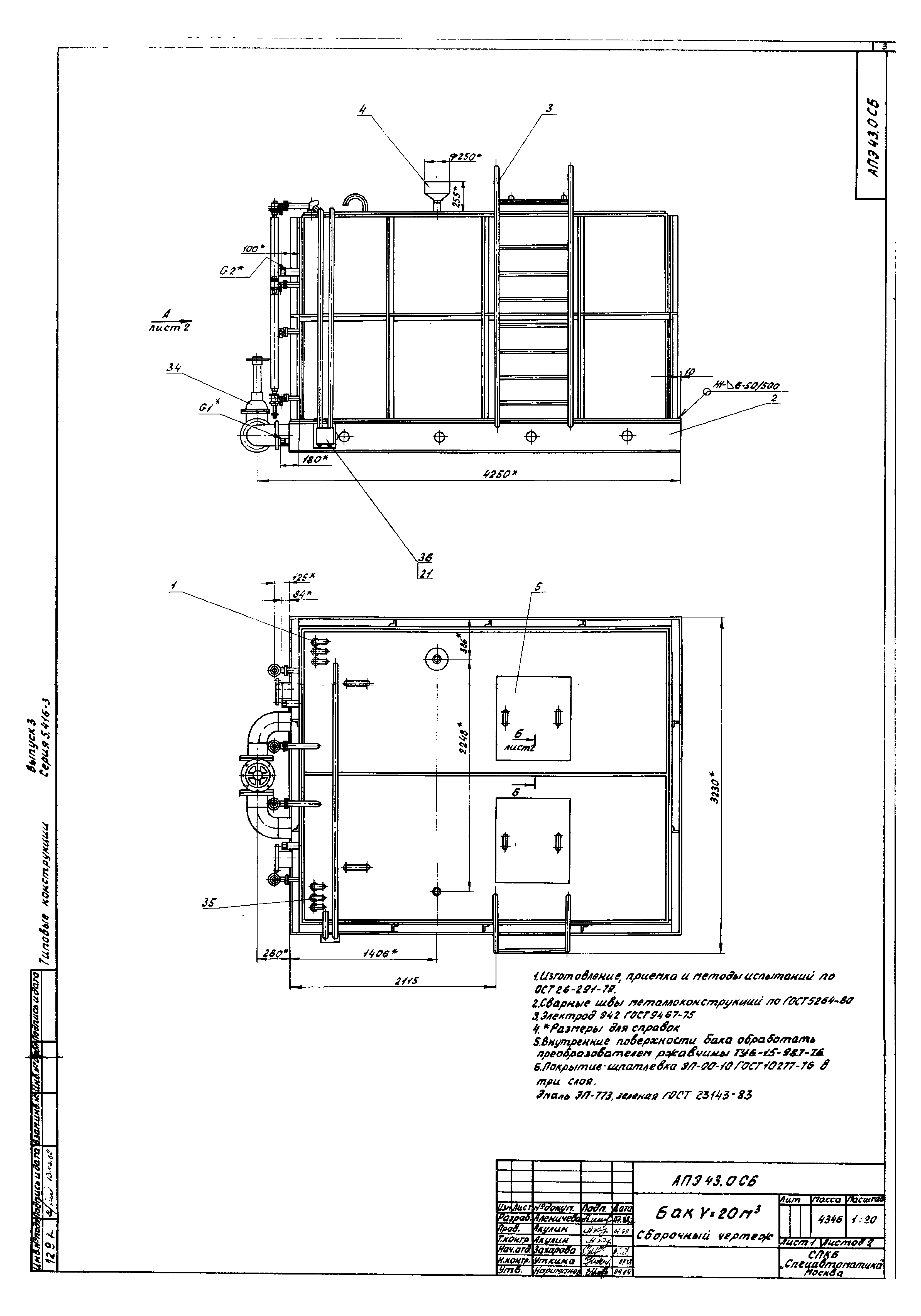
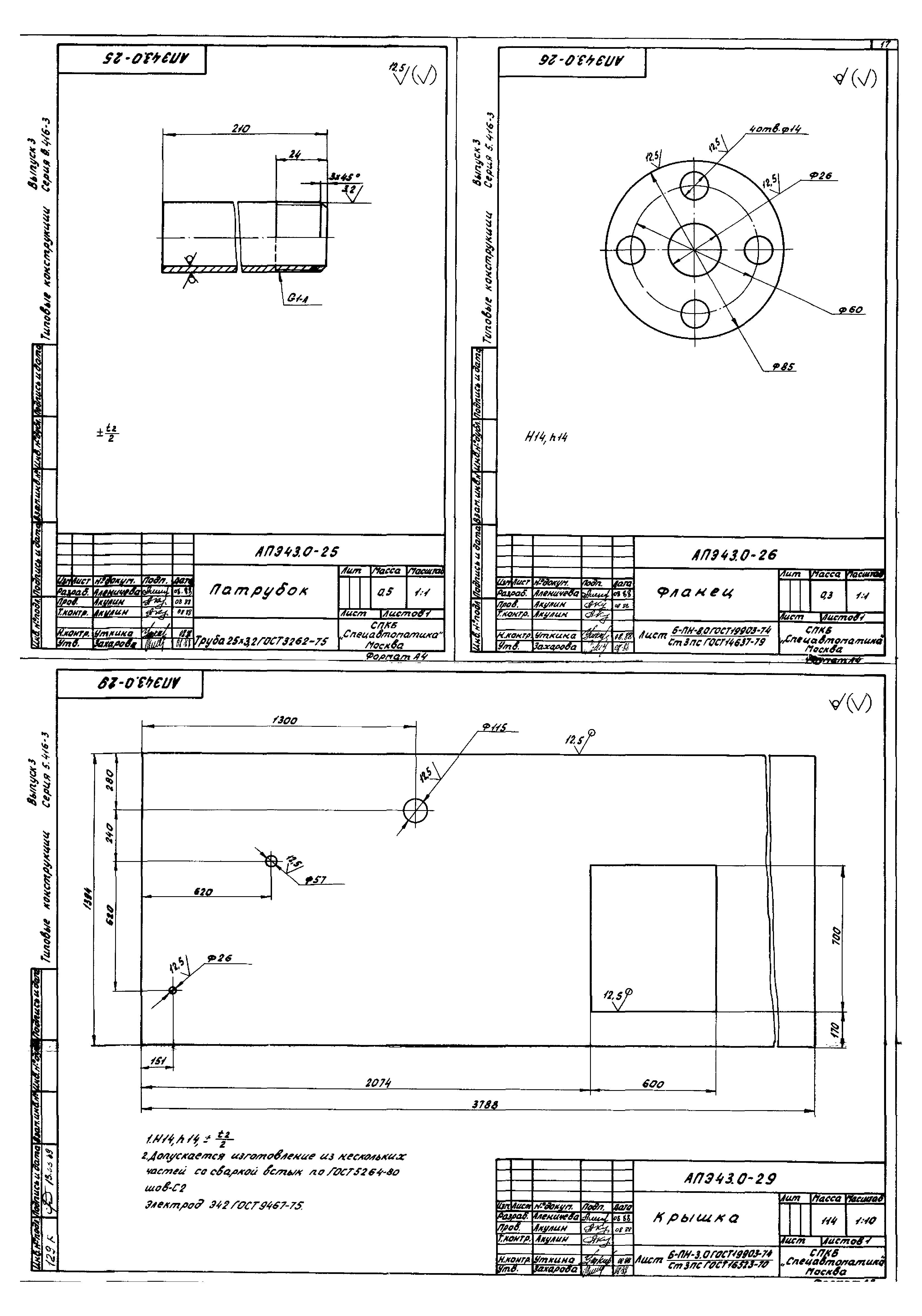
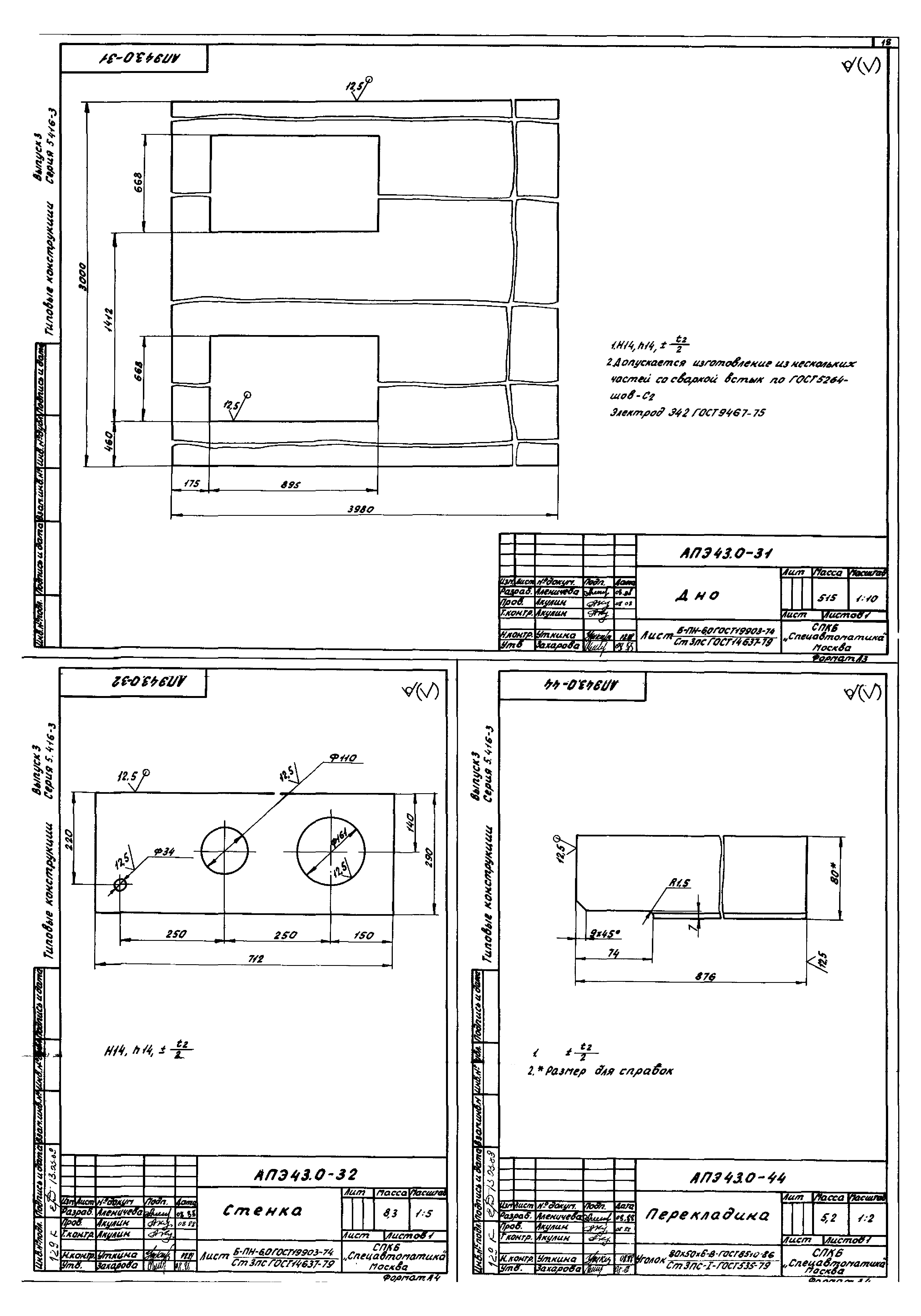
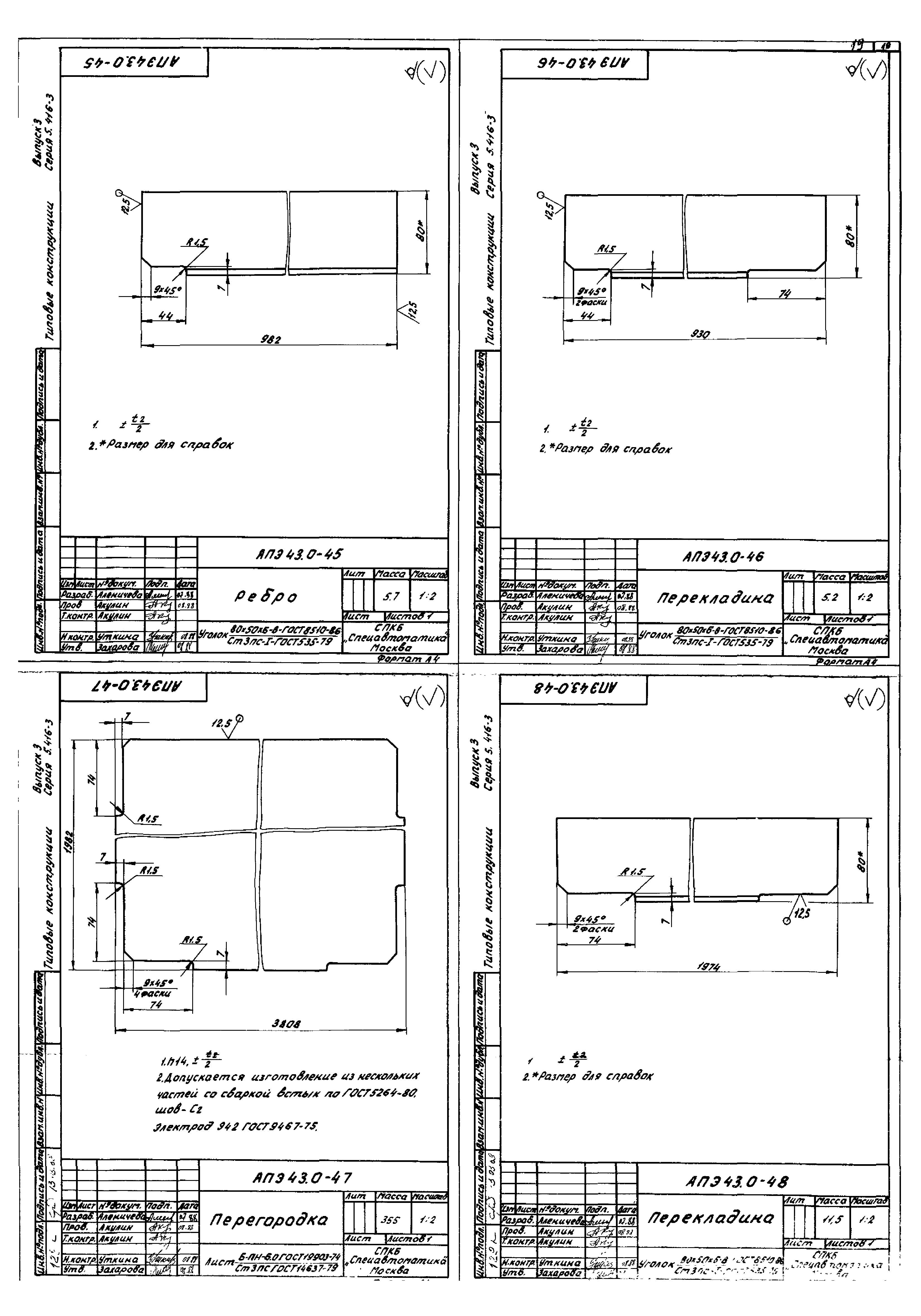
Скачать Серия 5.416-3 Выпуск 3. Бак V = 20 куб. м. Рабочие чертежиДата актуализации: 01.01.2021
|
| Обозначение: | Серия 5.416-3 |
| Обозначение англ: | Series 5.416-3 |
| Статус: | не определен законодательством |
| Название рус.: | Выпуск 3. Бак V = 20 куб. м. Рабочие чертежи |
| Дата добавления в базу: | 01.09.2013 |
| Дата актуализации: | 01.01.2021 |
| Дата введения: | 01.04.1989 |
| Дата окончания срока действия: | 30.06.2003 |
| Разработан: | Специальное проектно-конструкторское бюро Спецавтоматика |
| Утверждён: | 24.08.1988 Минприбор СССР (USSR Minpribor 55) |



































