Скачать Серия 5.407-119 Выпуск 1. Рабочие чертежиДата актуализации: 01.01.2021
|
| Обозначение: | Серия 5.407-119 |
| Обозначение англ: | Series 5.407-119 |
| Статус: | не определен законодательством |
| Название рус.: | Выпуск 1. Рабочие чертежи |
| Дата добавления в базу: | 01.09.2013 |
| Дата актуализации: | 01.01.2021 |
| Дата введения: | 01.07.1990 |
| Дата окончания срока действия: | 30.06.2003 |
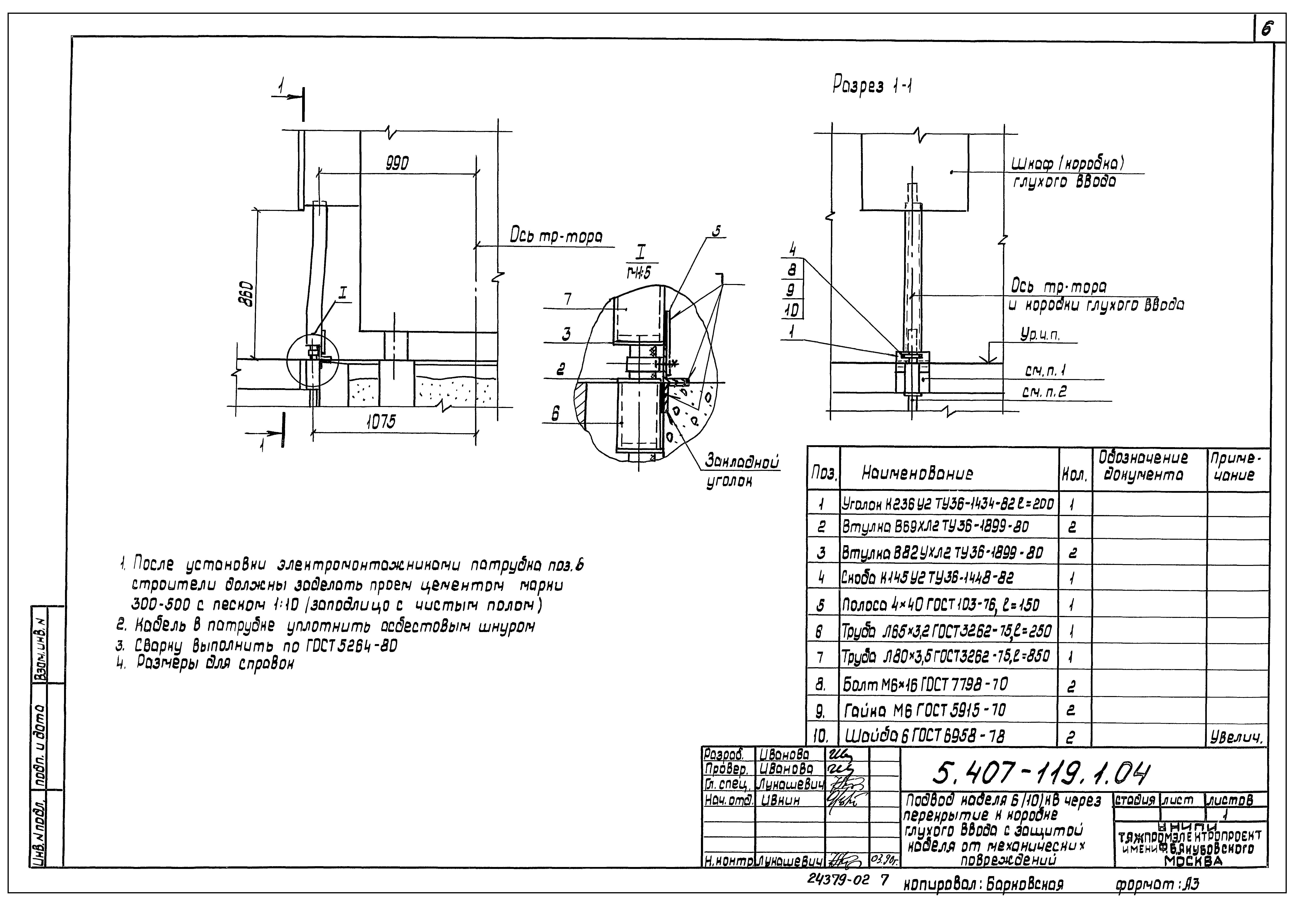
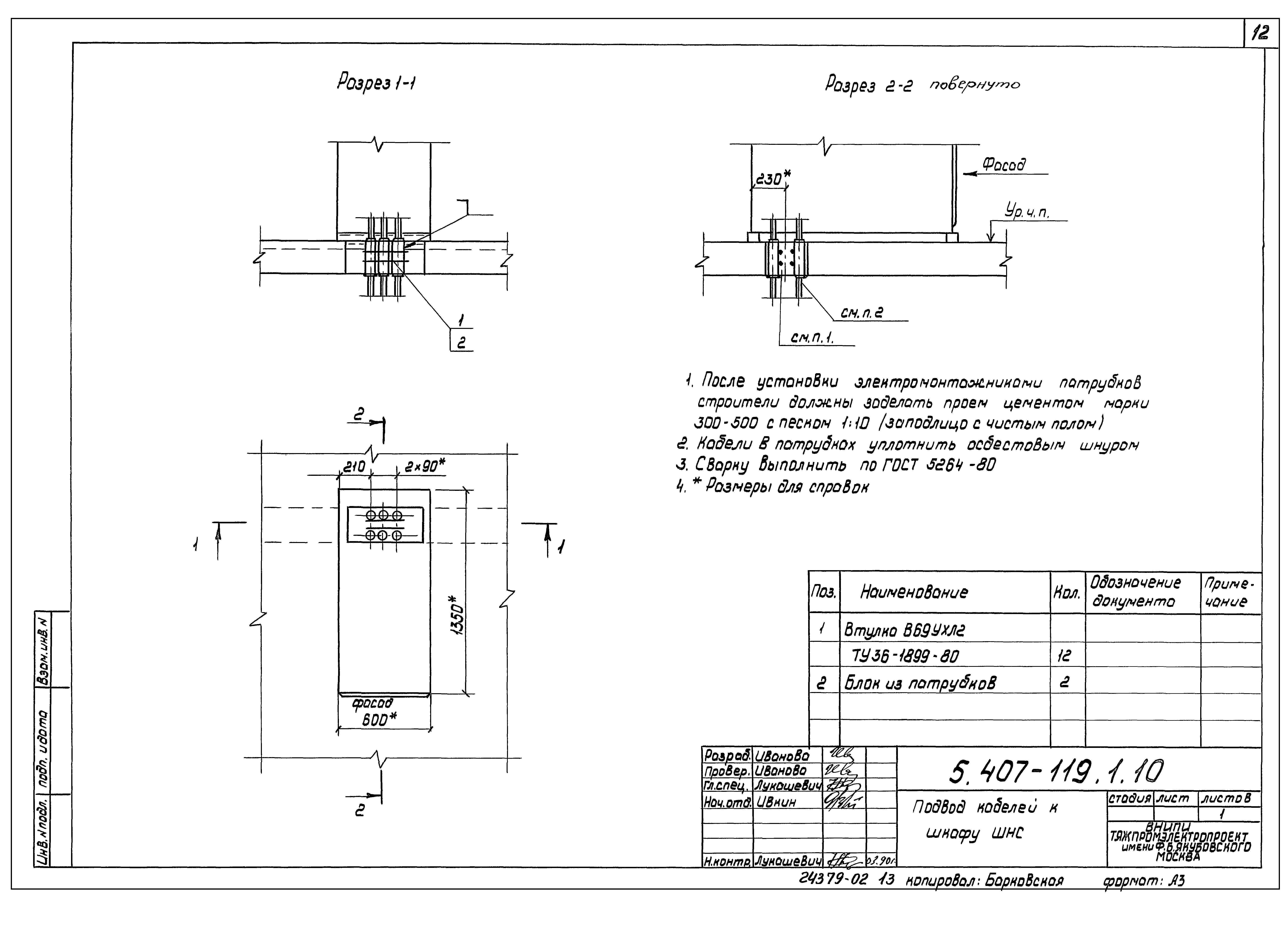
| Оглавление: | 5.407-119.1.01 Подвод кабеля 6(10) кВ из канала к коробке глухого ввода 5.407-119.1.02 Подвод кабеля 6(10) кВ через перекрытие к коробке глухого ввода 5.407-119.1.03 Подвод кабеля 6(10) кВ из канала к коробке глухого ввода с защитой кабеля от механических повреждений 5.407-119.1.04 Подвод кабеля 6(10) кВ через перекрытие к коробке глухого ввода с защитой кабеля от механических повреждений 5.407-119.1.05 Подвод кабелей к шкафу ШВВ-2 5.407-119.1.06 Подвод кабелей к шкафу ШВВ-3Л (5Л) 5.407-119.1.07 Подвод кабелей к шкафу ШВВ-3П (5П) 5.407-119.1.08 Подвод кабелей к шкафу ШНВ 5.407-119.1.09 Подвод кабелей к шкафу ШНЛ 5.407-119.1.10 Подвод кабелей к шкафу ШНС 5.407-119.1.11 Блок из двух патрубков 5.407-119.1.12 Блок из трех патрубков 5.407-119.1.13 Блок из пяти патрубков |
| Разработан: | ВНИПИ Тяжпромэлектропроект им. Ф.Б. Якубовского |
| Утверждён: | 20.06.1989 НПО Электромонтаж ММСС СССР |















