Скачать Серия 5.407-121 Выпуск 1. Материалы для проектирования и рабочие чертежиДата актуализации: 01.01.2021
|
| Обозначение: | Серия 5.407-121 |
| Обозначение англ: | Series 5.407-121 |
| Статус: | не определен законодательством |
| Название рус.: | Выпуск 1. Материалы для проектирования и рабочие чертежи |
| Дата добавления в базу: | 01.09.2013 |
| Дата актуализации: | 01.01.2021 |
| Дата введения: | 01.01.1991 |
| Дата окончания срока действия: | 30.06.2003 |
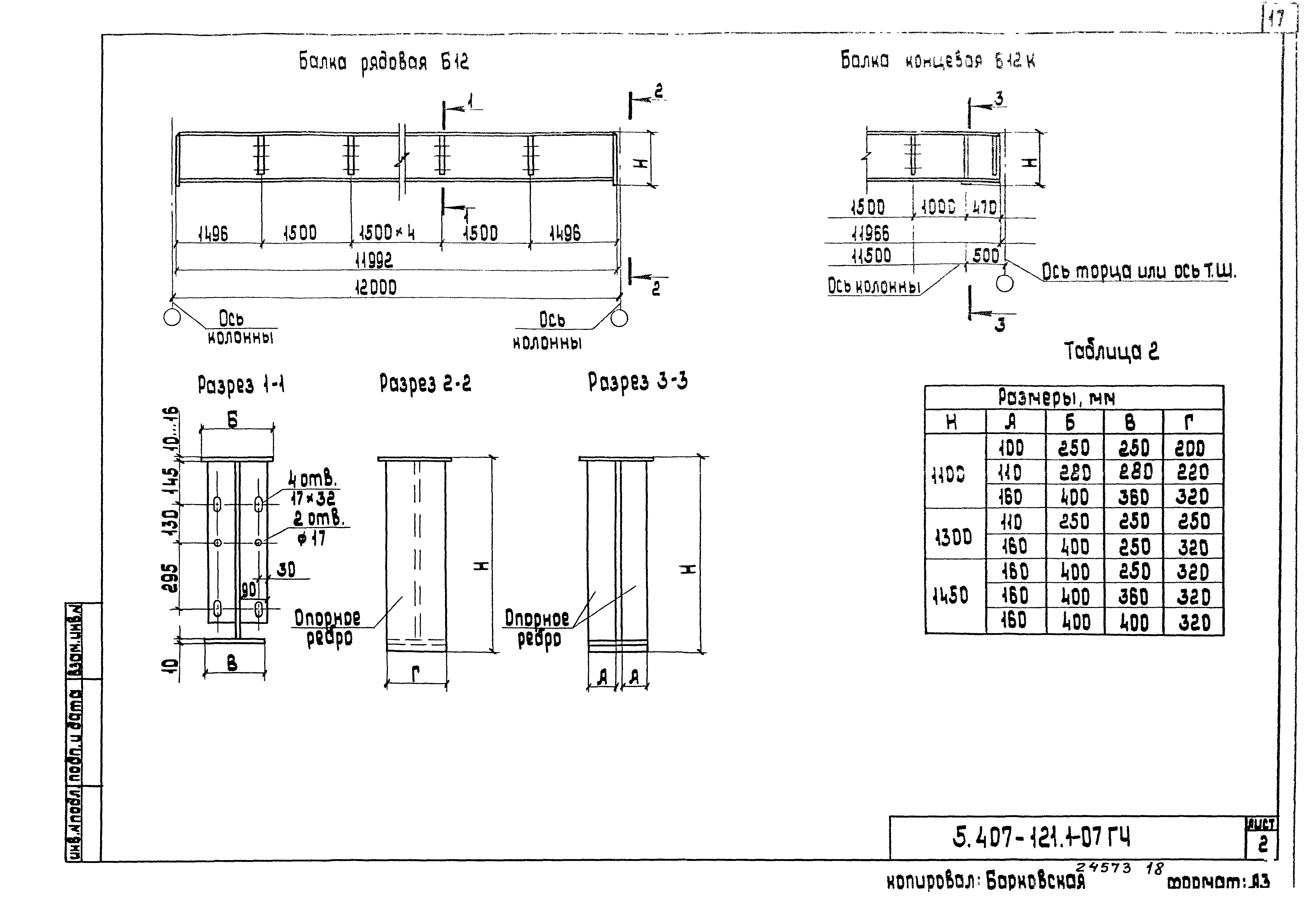
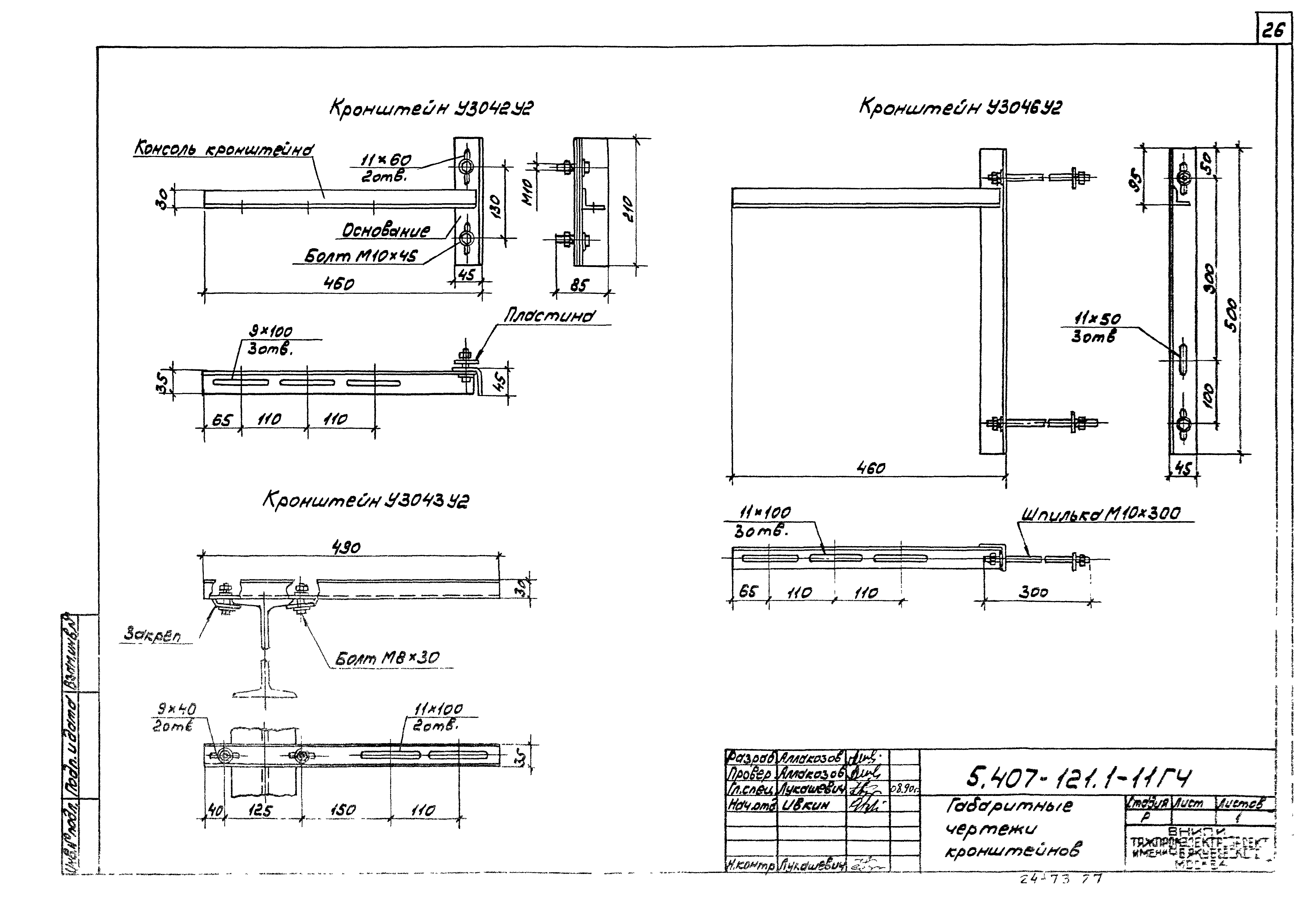
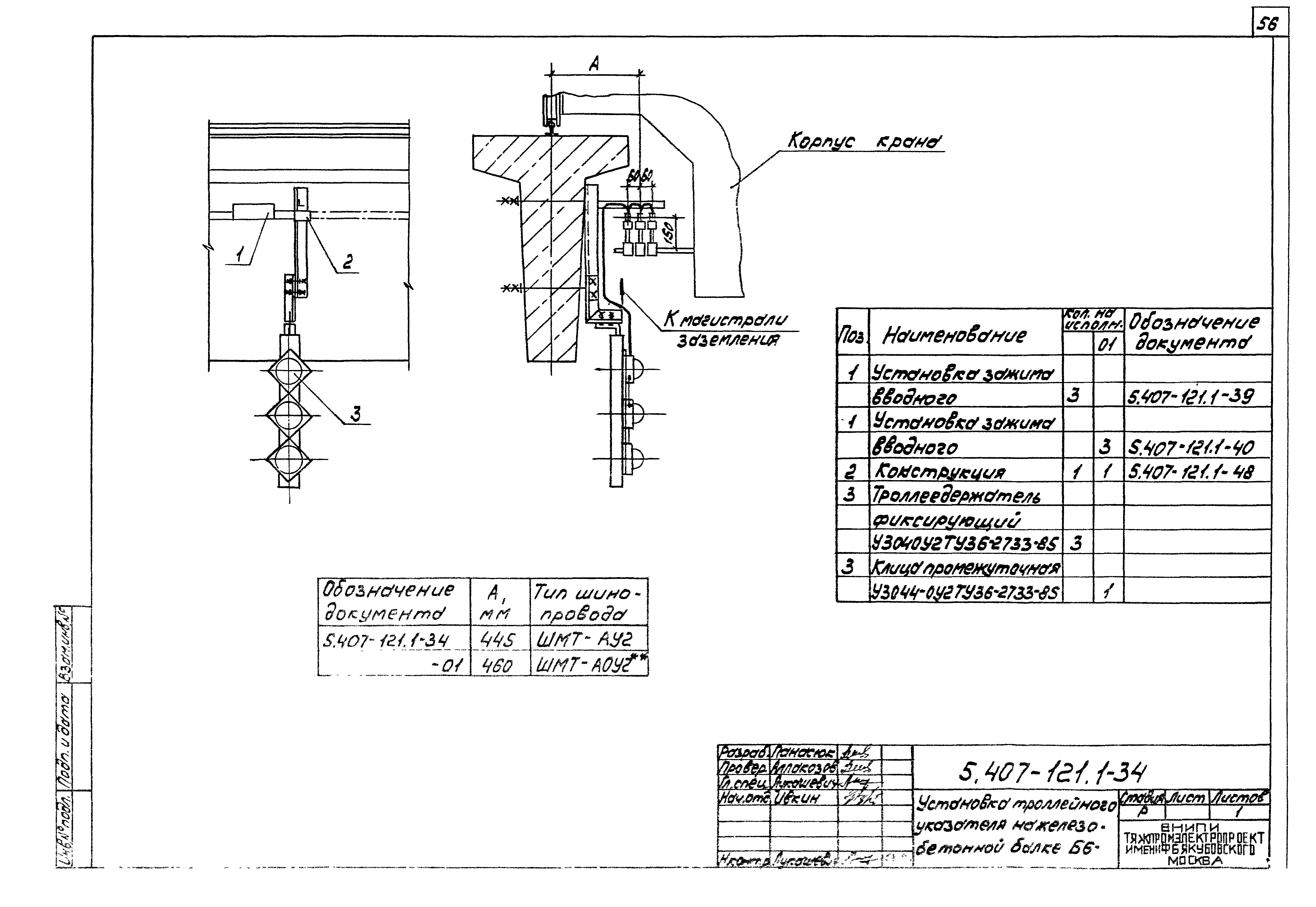
| Оглавление: | 5.407-121.1-01 ПЗ Пояснительная записка 5.407-121.1-02 ВМ Ведомость потребности в оборудовании и материалах 5.407-121.1-03 ТБ Таблицы выбора чертежей узлов установки элементов шинопроводов 5.407-121.1-04 ТБ Номенклатура элементов шинопровода ШМТ-АУ2 5.407-121.1-05 ТБ Номенклатура элементов шинопровода ШМТ-АОУ2** 5.407-121.1-06 ТБ Номенклатура общих элементов шинопровода ШМТ-АУ2 и ШМТ-АОУ2** 5.407-121.1-07 ГЧ Габаритные чертежи стальных подкрановых балок 5.407-121.1-08 ГЧ Габаритные чертежи железобетонных подкрановых балок 5.407-121.1-09 ГЧ Габаритные чертежи элементов монотроллейного шинопровода ШМТ-АУ2 5.407-121.1-10 ГЧ Габаритные чертежи элементов монотроллейного шинопровода ШМТ-АОУ2** 5.407-121.1-11 ГЧ габаритные чертежи кронштейнов 5.407-121.1-12 Габаритные чертежи токосъемников, траверсы 5.407-121.1-13 ГЧ Габаритный чертеж троллейного указателя 5.407-121.1-14 Д Прокладка шинопровода ШМТ-АУ2. План. Пример 5.407-121.1-15 Д Прокладка шинопровода ШМТ-АУ2 на металлической подкрановой балке. Пример 5.407-121.1-16 Д Прокладка шинопровода ШМТ-АУ2 на железобетонной подкрановой балке типа БК6. Пример 5.407-121.1-17 Д Прокладка шинопровода ШМТ-АУ2 на железобетонной подкрановой балке типа БК12. Пример 5.407-121.1-18 Установка кронштейна для крепления ШМТ-АУ2. Вариант 1 5.407-121.1-19 Установка кронштейна для крепления ШМТ-АУ2. Вариант 2 5.407-121.1-20 Установка кронштейна для крепления ШМТ-АУ2. Вариант 3 5.407-121.1-21 Установка кронштейна для крепления ШМТ-АУ2. Вариант 4 5.407-121.1-22 Установка кронштейна для крепления ШМТ-АУ2. Вариант 5 5.407-121.1-23 Установка кронштейна для крепления ШМТ-АОУ2**. Вариант 6 5.407-121.1-24 Установка кронштейна для крепления ШМТ-АОУ2**. Вариант 7 5.407-121.1-25 Установка кронштейна для крепления ШМТ-АОУ2**. Вариант 8 5.407-121.1-26 Установка кронштейна для крепления ШМТ-АОУ2**. Вариант 9 5.407-121.1-27 Установка кронштейна для крепления ШМТ-АОУ2**. Вариант 10 5.407-121.1-28 Установка кронштейна для крепления ШМТ-АОУ2**. Вариант 11 5.407-121.1-29 Установка кронштейна для крепления ШМТ-АОУ2**. Вариант 12 5.407-121.1-30 Установка кронштейна для крепления ШМТ-АОУ2**. Вариант 13 5.407-121.1-31 Установка кронштейна для крепления ШМТ-АОУ2**. Вариант 14 5.407-121.1-32 Установка кронштейна для крепления ШМТ-АОУ2**. Вариант 15 5.407-121.1-33 Установка указателя троллейного на металлической подкрановой балке 5.407-121.1-34 Установка троллейного указателя на железобетонной подкрановой балке типа БК6 5.407-121.1-35 Установка троллейного указателя на железобетонной подкрановой балке типа БК12 5.407-121.1-36 Установка указателя троллейного на монорельсе 5.407-121.1-37 Установка соединителя на шинопроводе ШМТ-АУ2 5.407-121.1-38 Установка соединителя на шинопроводе ШМТ-АОУ2** 5.407-121.1-39 Установка зажима вводного на шинопроводе ШМТ-АУ2 5.407-121.1-40 Установка зажима вводного на шинопроводе ШМТ-АОУ2** 5.407-121.1-41 Установка разделителя на шинопроводе ШМТ-АУ2 5.407-121.1-42 Установка разделителя на шинопроводе ШМТ-АОУ2** 5.407-121.1-43 Установка компенсатора на шинопроводе ШМТ-АУ2 5.407-121.1-44 Установка компенсатора на шинопроводе ШМТ-АОУ2** 5.407-121.1-45 Установка планок с компенсаторами на шинопроводе ШМТ-АУ2 5.407-121.1-46 Установка планок с компенсаторами на шинопроводе ШМТ-АОУ2** 5.407-121.1-47 Конструкция 5.407-121.1-48 Конструкция 5.407-121.1-49 Конструкция 5.407-121.1-50 Кронштейн 5.407-121.1-51 Кронштейн 5.407-121.1-52 Кронштейн 5.407-121.1-53 Шпилька 5.407-121.1-54 Пластина 5.407-121.1-55 Шайба косая 5.407-121.1-56 Шайба |
| Разработан: | ВНИПИ Тяжпромэлектропроект им. Ф.Б. Якубовского |
| Утверждён: | 16.10.1990 ВНИПИ Тяжпромэлектропроект (91) |
| Издан: | ГУП ЦПП (CPP GUP 2001 г. ) |







































































