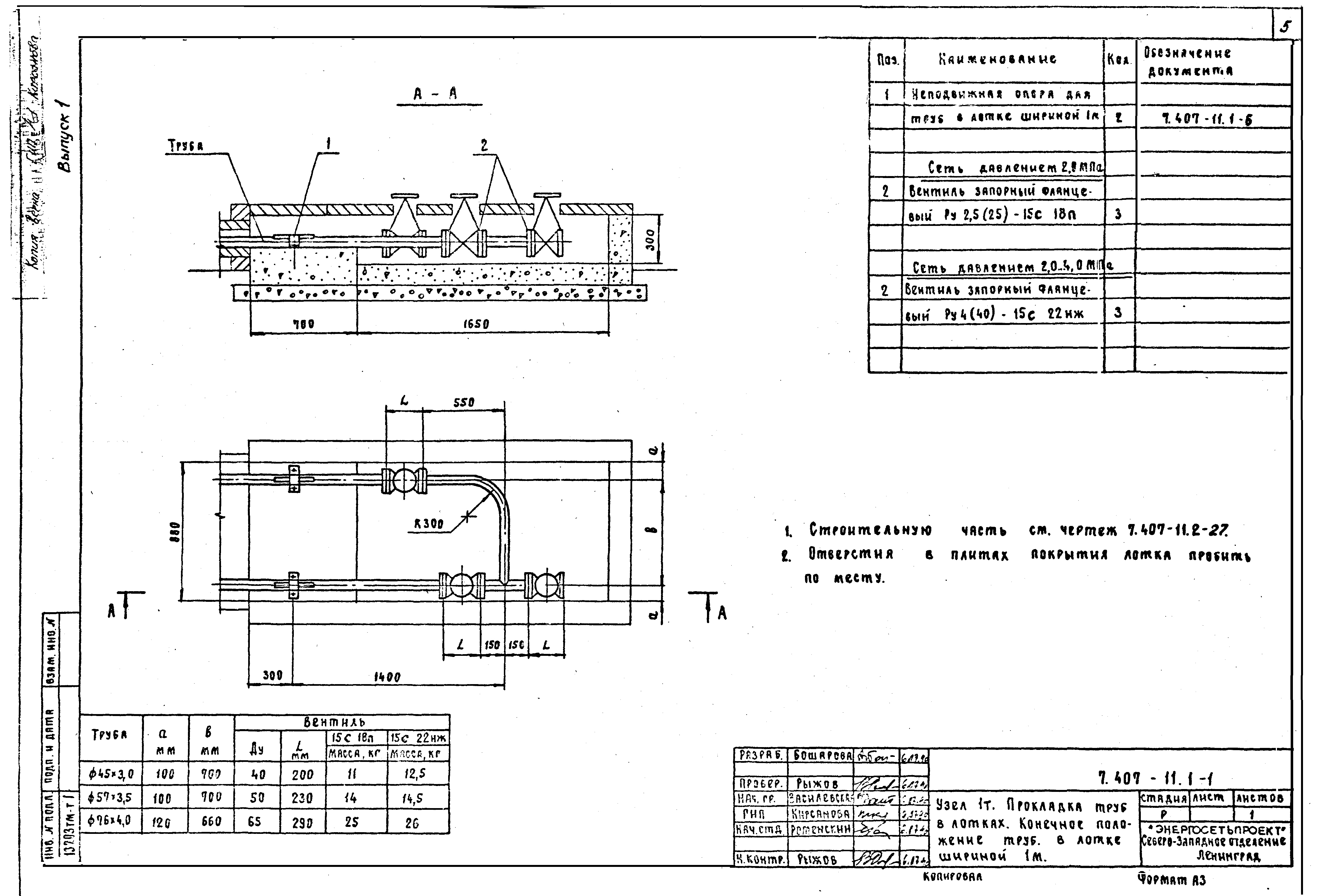
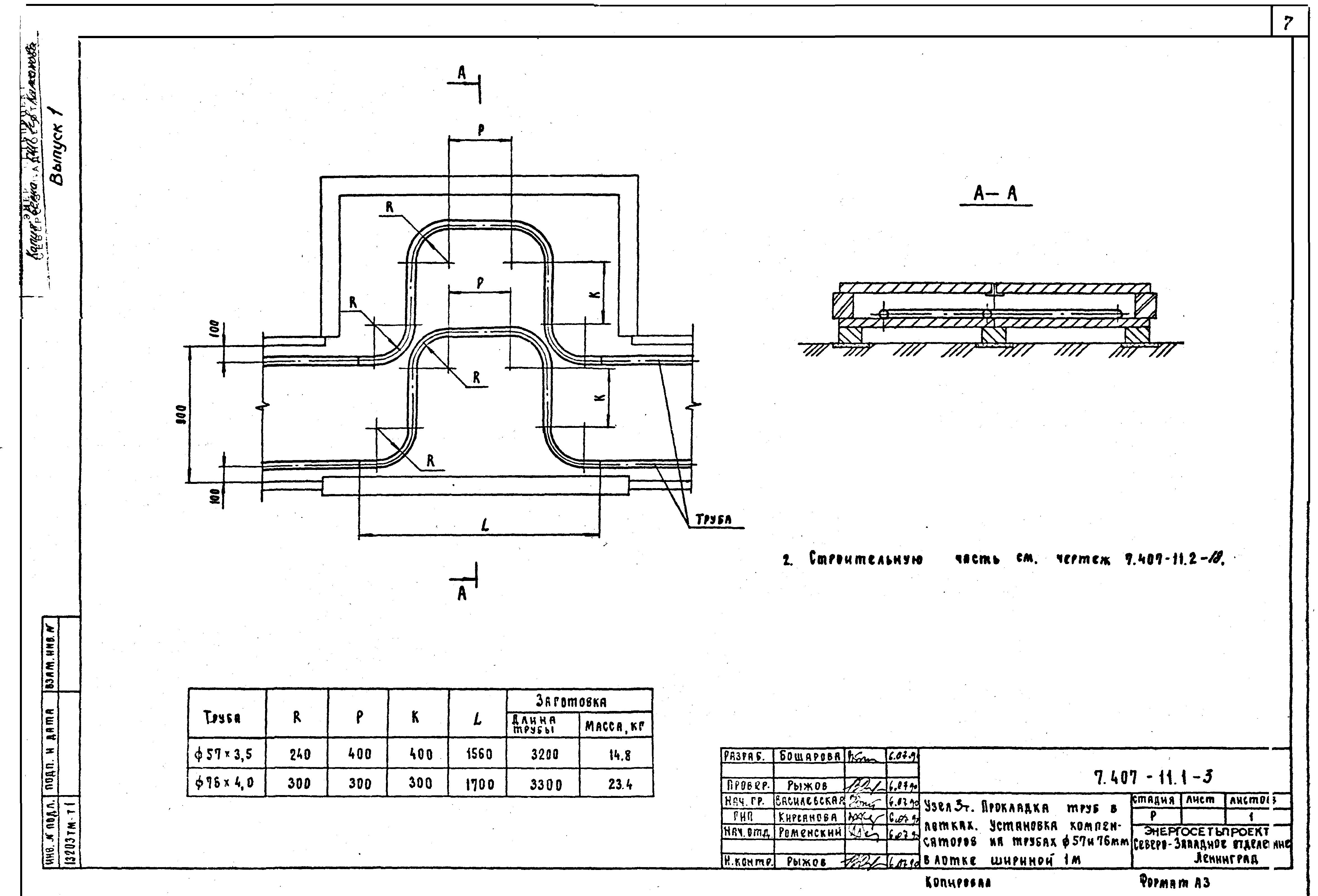
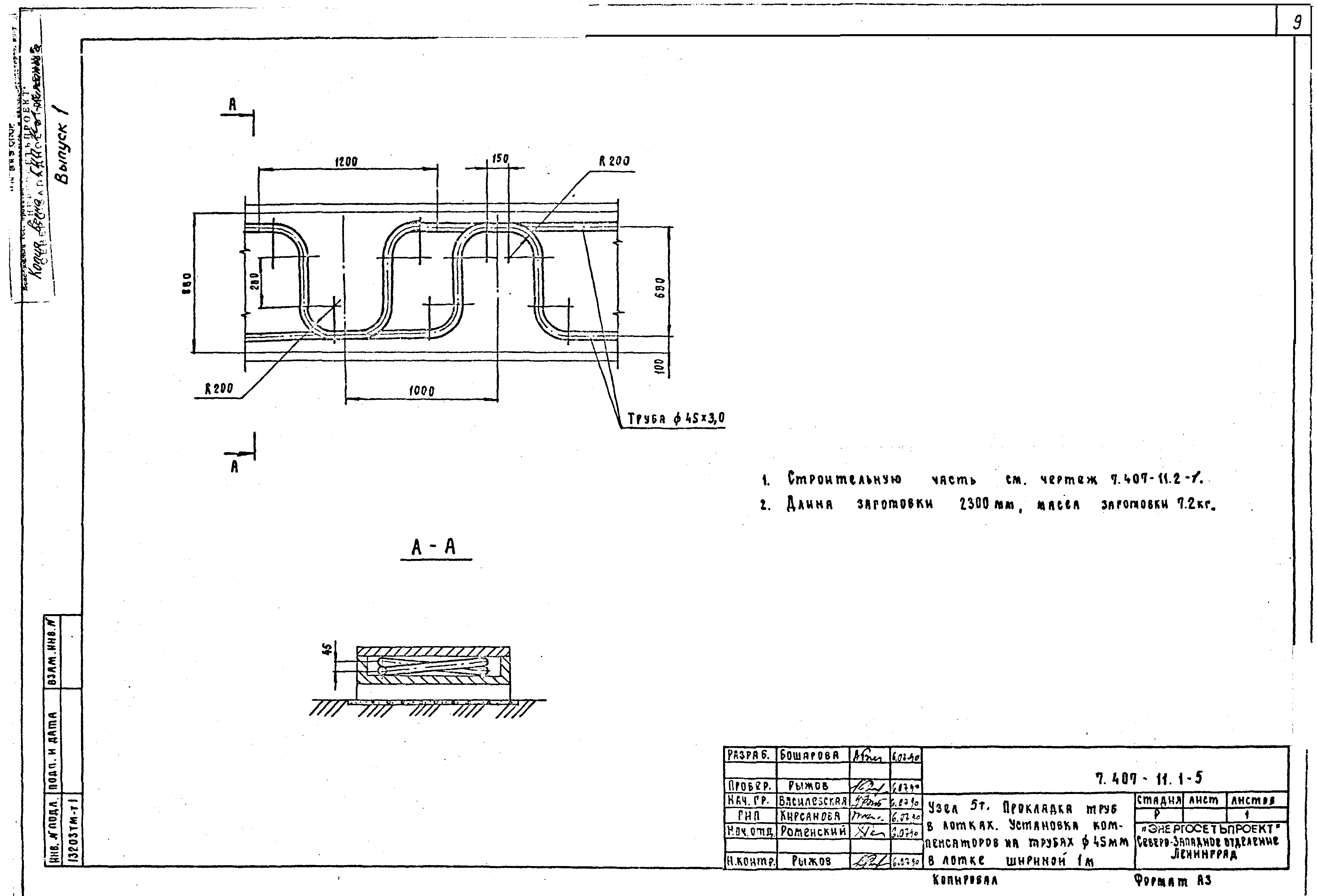
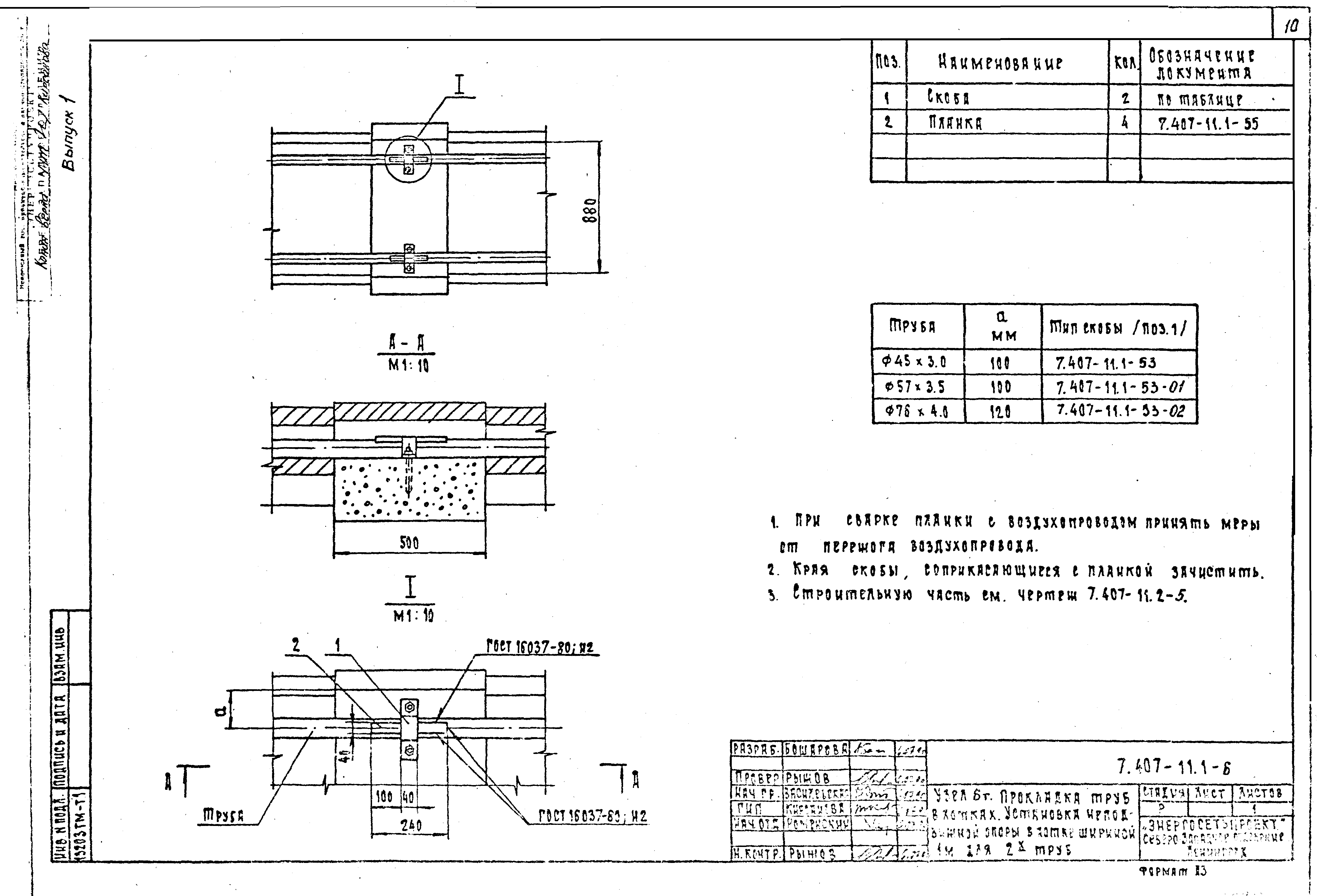
Скачать Серия 7.407-11 Выпуск 1. Воздухопроводы. Монтажные узлы. Рабочие чертежиДата актуализации: 01.01.2021
|
| Обозначение: | Серия 7.407-11 |
| Обозначение англ: | Series 7.407-11 |
| Статус: | не определен законодательством |
| Название рус.: | Выпуск 1. Воздухопроводы. Монтажные узлы. Рабочие чертежи |
| Дата добавления в базу: | 01.09.2013 |
| Дата актуализации: | 01.01.2021 |
| Дата введения: | 01.10.1990 |
| Дата окончания срока действия: | 30.06.2003 |
| Разработан: | Севзапэнергосетьпроект |
| Утверждён: | 21.06.1990 Минэнерго СССР (USSR Minenergo 40) |
| Издан: | Энергосетьпроект (1990 г. ) |























































