Скачать Серия 5.407-49 Выпуск 1. Рабочие чертежиДата актуализации: 01.01.2021
|
| Обозначение: | Серия 5.407-49 |
| Обозначение англ: | Series 5.407-49 |
| Статус: | не определен законодательством |
| Название рус.: | Выпуск 1. Рабочие чертежи |
| Дата добавления в базу: | 01.09.2013 |
| Дата актуализации: | 01.01.2021 |
| Дата введения: | 09.12.1983 |
| Дата окончания срока действия: | 30.06.2003 |
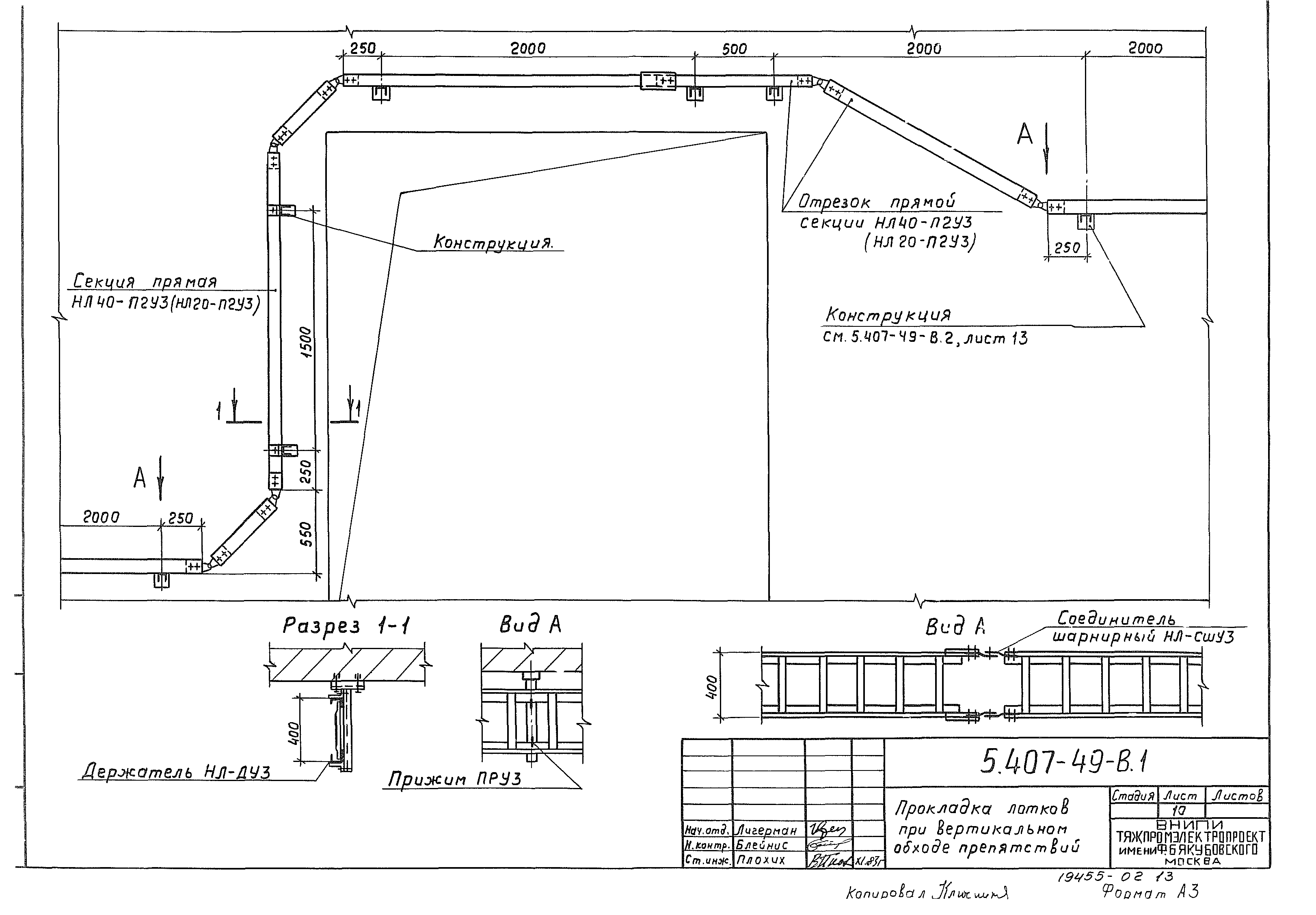
| Оглавление: | Общие указания Прокладка лотков горизонтально по стене Прокладка лотков горизонтально по стене с выступающими колоннами Прокладка лотков между колоннами с шагом 6 м Прокладка лотков при горизонтальном обходе препятствий. Варианты 1 и 2 Прокладка лотков при горизонтальном обходе препятствий. Вариант 3 Прокладка лотков под перекрытием (односторонняя) Прокладка лотков под перекрытием (двухсторонняя) Прокладка лотков под перекрытием Прокладка лотков при вертикальном обходе препятствий Вертикальное ответвление лотков. Вариант 1 Вертикальное ответвление лотков. Вариант 2 Прокладка лотков при переходе с одной отметки на другую Прокладка лотков при переходе с горизонтальной трассы на вертикальную Прокладка лотков по стене (вертикально) Прокладка лотков при подводе кабелей к щиту ЩСУ сверху Установка огнестойкой перегородки |
| Разработан: | ВНИПИ Тяжпромэлектропроект им. Ф.Б. Якубовского |
| Утверждён: | 09.12.1983 Минмонтажспецстрой СССР (USSR Minmontazhspetsstroy ) |



















