Скачать Серия 5.407-74 Прокладка маслонаполненных кабелей 110-220 кВ низкого давления в межцеховых тоннелях. Материалы для проектирования. Монтажные чертежиДата актуализации: 01.01.2021
|
| Обозначение: | Серия 5.407-74 |
| Обозначение англ: | Series 5.407-74 |
| Статус: | не определен законодательством |
| Название рус.: | Прокладка маслонаполненных кабелей 110-220 кВ низкого давления в межцеховых тоннелях. Материалы для проектирования. Монтажные чертежи |
| Дата добавления в базу: | 01.09.2013 |
| Дата актуализации: | 01.01.2021 |
| Дата введения: | 01.01.1987 |
| Дата окончания срока действия: | 30.06.2003 |
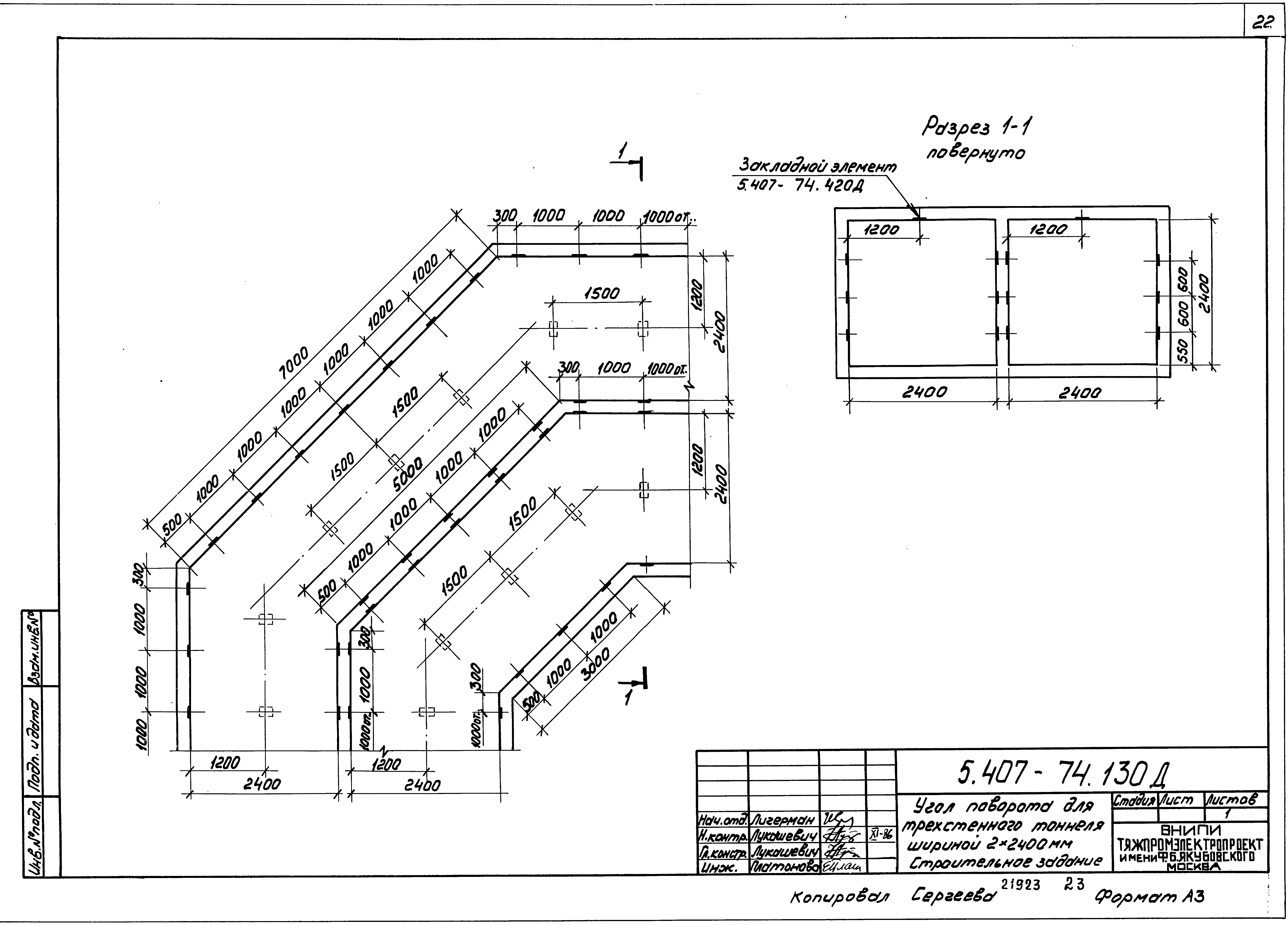
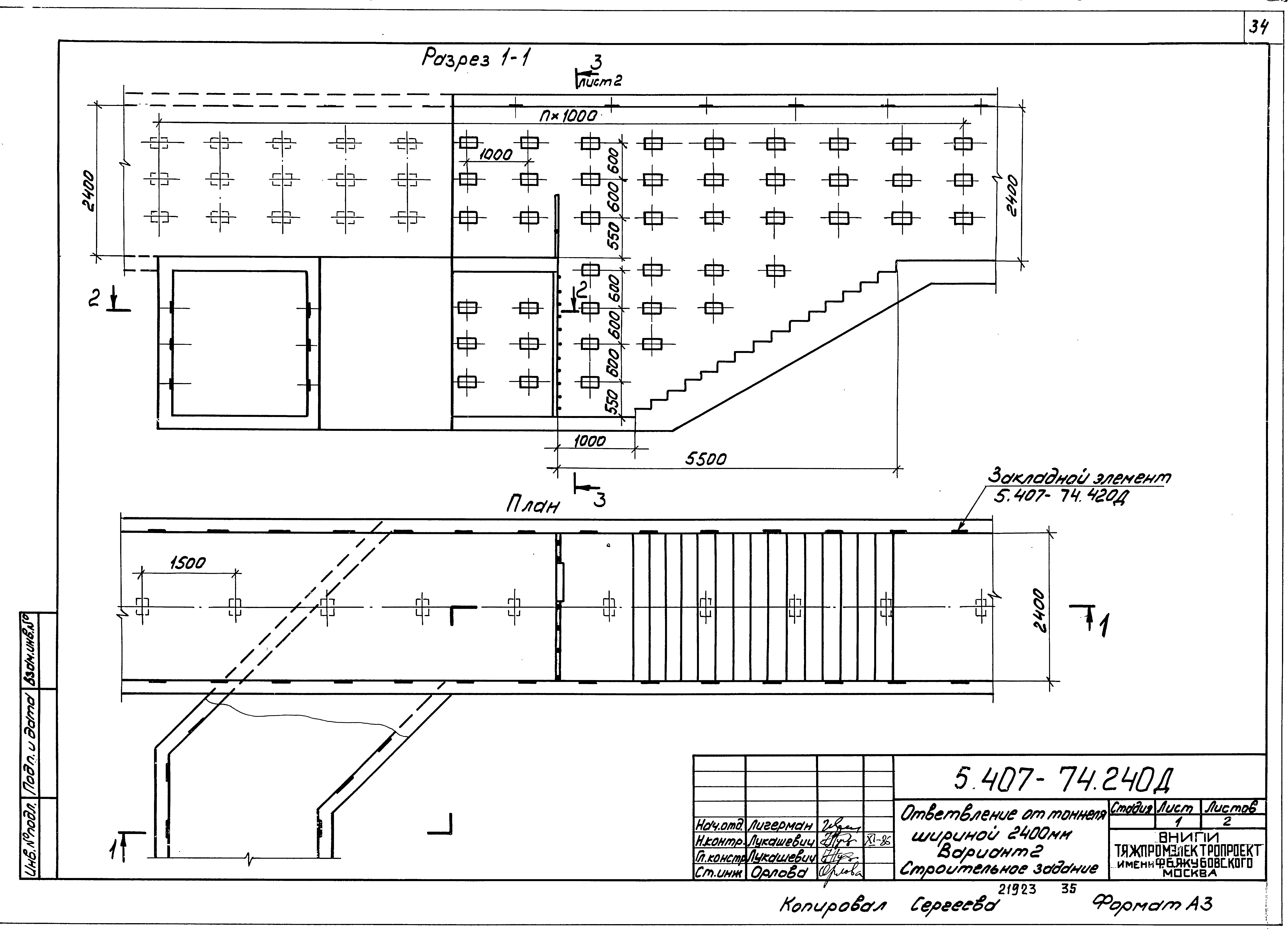
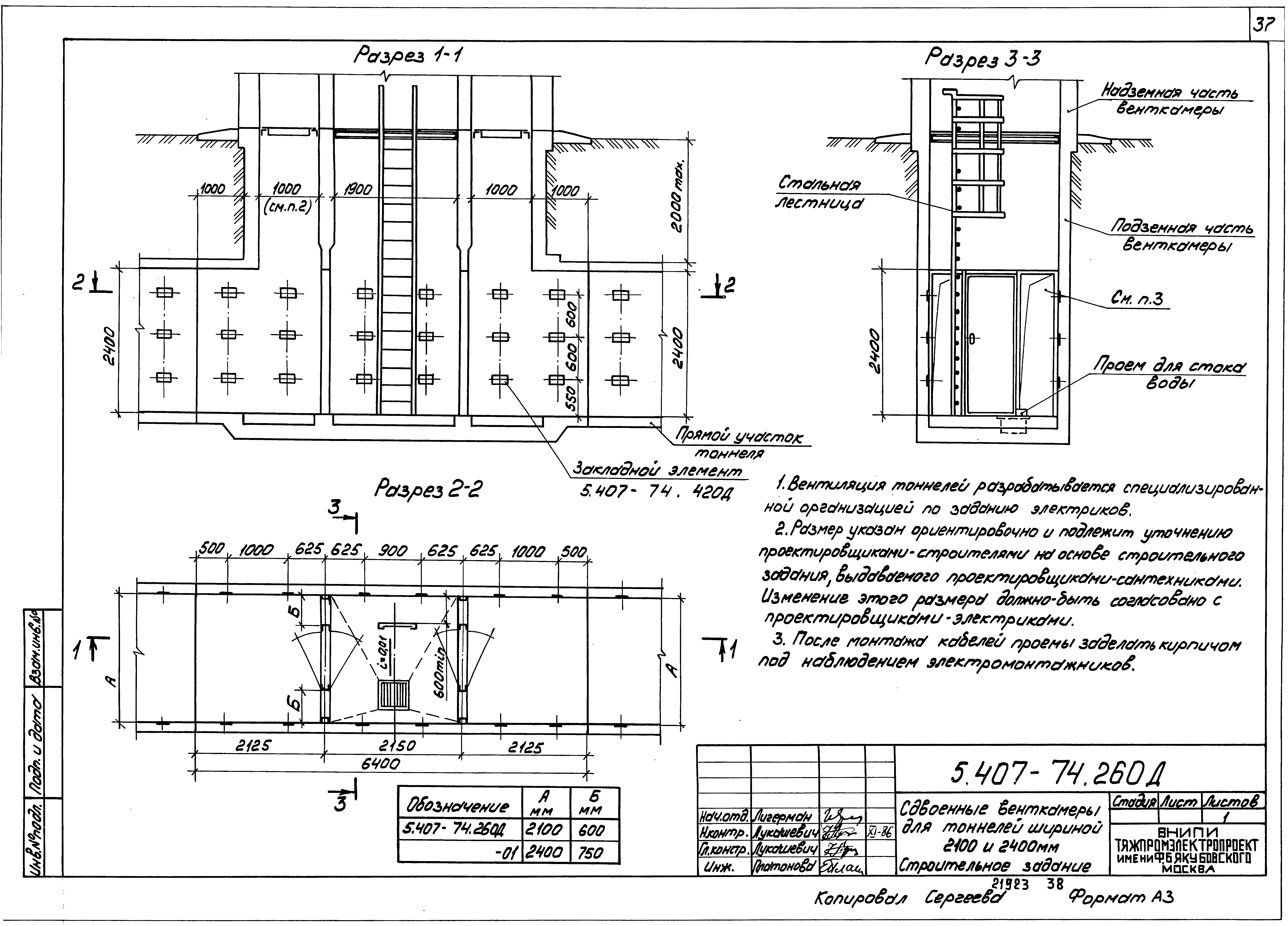
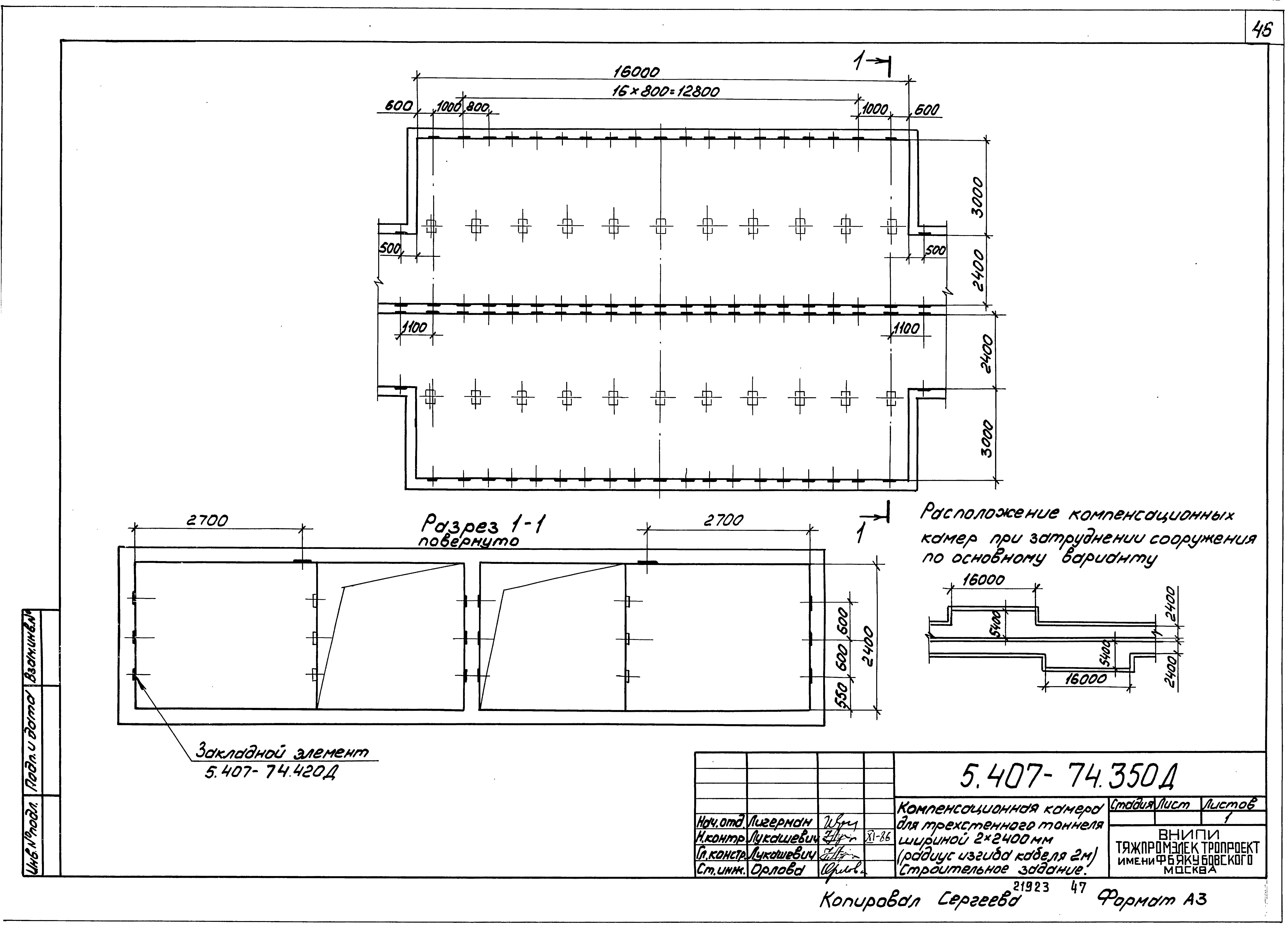
| Оглавление: | 5.407-74.ПЗ Пояснительная записка 5.407-74.10Д Строительное задание на кабельные тоннели. План. (Пример) 5.407-74.20Д Строительное задание на кабельные тоннели. Профиль. (Пример) 5.407-74.30Д Расположение кабелей в тоннеле шириной 2100 мм 5.407-74.40Д Расположение кабелей в тоннеле шириной 2400 мм (на 4; 5 линий) 5.407-74.50Д Расположение кабелей в тоннеле шириной 2400 мм (на 6 линий) 5.407-74.60Д Расположение кабелей в трехстенном тоннеле шириной 2х2100 мм (на 6 линий) 5.407-74.70Д Расположение кабелей в трехстенном тоннеле шириной 2х2400 мм (на 6 линий) 5.407-74.80Д Прямые участки тоннелей шириной 2100 и 2400 мм. Строительное задание 5.407-74.90Д Прямые участки трехстенных тоннелей шириной 2х2100 и 2х2400 мм. Строительное задание 5.407-74.100Д Угол поворота для тоннеля шириной 2100 мм. Строительное задание 5.407-74.110Д Угол поворота для тоннеля шириной 2400 мм. Строительное задание 5.407-74.120Д Угол поворота для трехстенного тоннеля шириной 2х2100 мм. Строительное задание 5.407-74.130Д Угол поворота для трехстенного тоннеля шириной 2х2400 мм. Строительное задание 5.407-74.140Д Уширение для разветвления тоннеля шириной 2100 мм. Варианты 1, 2. Строительное задание 5.407-74.150Д Уширение для разветвления тоннеля шириной 2100 мм. Вариант 3. Строительное задание 5.407-74.160Д Уширение для разветвления тоннелей шириной 2100 и 2400 мм. Вариант 1. Строительное задание 5.407-74.170Д Уширение для разветвления тоннелей шириной 2100 и 2400 мм. Варианты 2, 3. Строительное задание 5.407-74.180Д Уширение для разветвления тоннелей шириной 2100 и 2400 мм. Варианты 4, 5. Строительное задание 5.407-74.190Д Уширение для разветвления тоннелей шириной 2100 и 2400 мм. Вариант 6. Строительное задание 5.407-74.200Д Уширение для разветвления тоннелей шириной 2100 и 2400 мм. Варианты 7,8. Строительное задание 5.407-74.210Д Уширение для разветвления тоннеля шириной 2400 мм. Строительное задание 5.407-74.220Д Уширение для разветвления трехстенного тоннеля шириной 2х2400 мм. Строительное задание 5.407-74.230Д Ответвление от тоннеля шириной 2400 мм. Вариант 1. Строительное задание 5.407-74.240Д Ответвление от тоннеля шириной 2400 мм. Вариант 2. Строительное задание 5.407-74.250Д Тупиковые венткамеры для тоннелей шириной 2100 и 2400 мм. Строительное задание 5.407-74.260Д Сдвоенные венткамеры для тоннелей шириной 2100 и 2400 мм. Строительное задание 5.407-74.270Д Тупиковые венткамеры для трехстенных тоннелей шириной 2х2100 и 2х2400 мм. Строительное задание 5.407-74.280Д Сдвоенные венткамеры для трехстенных тоннелей шириной 2х2100 и 2х2400 мм. Строительное задание 5.407-74.290Д Компенсационная камера для тоннелей шириной 2100 мм (радиус изгиба кабеля 2 м.) Строительное задание 5.407-74.300Д Компенсационная камера для тоннеля шириной 2100 мм (радиус изгиба кабеля 3 м.) Строительное задание 5.407-74.310Д Компенсационная камера для тоннеля шириной 2400 мм (радиус изгиба кабеля 2 м.) Строительное задание 5.407-74.320Д Компенсационная камера для тоннеля шириной 2400 мм (радиус изгиба кабеля 3 м.) Строительное задание 5.407-74.330Д Компенсационная камера для трехстенного тоннеля шириной 2х2100 мм (радиус изгиба кабеля 2 м.) Строительное задание 5.407-74.340Д Компенсационная камера для трехстенного тоннеля шириной 2х2100 мм (радиус изгиба кабеля 3 м.) Строительное задание 5.407-74.350Д Компенсационная камера для трехстенного тоннеля шириной 2х2400 мм (радиус изгиба кабеля 2 м.) Строительное задание 5.407-74.360Д Компенсационная камера для трехстенного тоннеля шириной 2х2400 мм (радиус изгиба кабеля 3 м.) Строительное задание 5.407-74.370Д Участок для укладки соединительных муфт. Строительное задание 5.407-74.380Д Камера стопорных муфт для тоннеля шириной 2400 мм (4 линии 110 кВ - 220 кВ). Строительное задание 5.407-74.390Д Камера стопорных муфт для трехстенного тоннеля шириной 2х2100 мм (6 линий 110 кВ - 220 кВ). Строительное задание 5.407-74.400Д Камера стопорных муфт для трехстенного тоннеля шириной 2х2400 мм (8 линий 110 кВ - 220 кВ). Строительное задание 5.407-74.410Д Горловина с люком 5.407-74.420Д Закладной элемент 5.407-74.430Д Огнестойкая перегородка. Строительное задание 5.407-74.440Д Прокладка кабелей на углах поворота тоннелей шириной 2100 мм. Пример 5.407-74.450Д Прокладка кабелей на углах поворота тоннелей шириной 2400 мм. Пример 5.407-74.460Д Прокладка кабелей на углах поворота для трехстенных тоннелей шириной 2х2100 мм. Пример 5.407-74.470Д Прокладка кабелей на углах поворота для трехстенных тоннелей шириной 2х2400 мм. Пример 5.407-74.480Д Прокладка кабелей в уширении для разветвления тоннеля шириной 2100 мм. Пример 5.407-74.490Д Прокладка кабелей в уширении для разветвления тоннелей шириной 2100 и 2400 мм. Вариант 1. Пример 5.407-74.500Д Прокладка кабелей в уширении для разветвления тоннелей шириной 2100 и 2400 мм. Вариант 2. Пример 5.407-74.510Д Прокладка кабелей в уширении для разветвления тоннелей шириной 2100 и 2400 мм. Вариант 3. Пример 5.407-74.520Д Прокладка кабелей в уширении для разветвления тоннеля шириной 2400 мм. Вариант 1. Пример 5.407-74.530Д Прокладка кабелей в уширении для разветвления тоннеля шириной 2400 мм. Вариант 2. Пример 5.407-74.540Д Прокладка кабелей в уширении для разветвления трехстенного тоннеля шириной 2х2400 мм. Пример 5.407-74.550Д Прокладка кабелей в тоннеле шириной 2400 мм с ответвлением. Вариант 1. Пример 5.407-74.560Д Прокладка кабелей в тоннеле шириной 2400 мм с ответвлением. Вариант 2. Пример 5.407-74.570Д Прокладка кабелей в сдвоенной венткамере для тоннеля шириной 2400 мм. Пример 5.407-74.580Д Прокладка кабелей в сдвоенной венткамере для трехстенных тоннелей шириной 2х2400 мм. Пример 5.407-74.590Д Прокладка кабелей в компенсационной камере для тоннеля шириной 2100 мм (радиус изгиба кабеля 2 м). Пример 5.407-74.600Д Прокладка кабелей в компенсационной камере для тоннеля шириной 2100 мм (радиус изгиба кабеля 3 м). Пример 5.407-74.610Д Прокладка кабелей в компенсационной камере для тоннеля шириной 2400 мм. Пример 5.407-74.620Д Прокладка кабелей в компенсационной камере для трехстенного тоннеля шириной 2х2100 мм. Пример 5.407-74.630Д Прокладка кабелей в компенсационной камере для трехстенного тоннеля шириной 2х2400 мм. Пример 5.407-74.640Д Укладка соединительных муфт. Пример 5.407-74.650Д Прокладка кабелей в камере стопорных муфт для тоннеля шириной 2400 мм (4 линии 110 - 220 кВ). Пример 5.407-74.660Д Прокладка кабелей в камере стопорных муфт для трехстенного тоннеля шириной 2х2100 мм (6 линий 110 - 220 кВ). Пример 5.407-74.670Д Прокладка кабелей в камере стопорных муфт для трехстенного тоннеля шириной 2х2400 мм (8 линий 110 - 220 кВ). Пример 5.407-74.680Д Укладка соединительных муфт и установка баков давления. Пример 5.407-74.690МЧ Установка продольных огнестойких перегородок 5.407-74.700МЧ Установка огнестойкой перегородки 5.407-74.710МЧ Крепление трех кабелей 110 - 220 кВ 5.407-74.720МЧ Крепление одного кабеля 110 - 220 кВ 5.407-74.730МЧ Установка конструкций в монолитном тоннеле 5.407-74.740МЧ Установка конструкций в сборном тоннеле 5.407-74.750ГЧ Конструкции для кабелей 110 - 220 кВ (изделия ГЭМ) |
| Разработан: | ВНИПИ Тяжпромэлектропроект им. Ф.Б. Якубовского |
| Утверждён: | 01.12.1986 Минмонтажспецстрой СССР (USSR Minmontazhspetsstroy ) |


























































































